·Î±×ÀÎ
30
µµ½ÃÇü»ýȰÁÖÅÃ
¼ö¿øÁö¹æ¹ý¿ø ¾È»êÁö¿ø
 °¨Á¤°¡145,000,000 ¿ø
 ÃÖÀú°¡(100%) 145,000,000 ¿ø
 º¸Áõ±Ý(10%) 14,500,000 ¿ø
 Ã»±¸¾×253,000,000 ¿ø
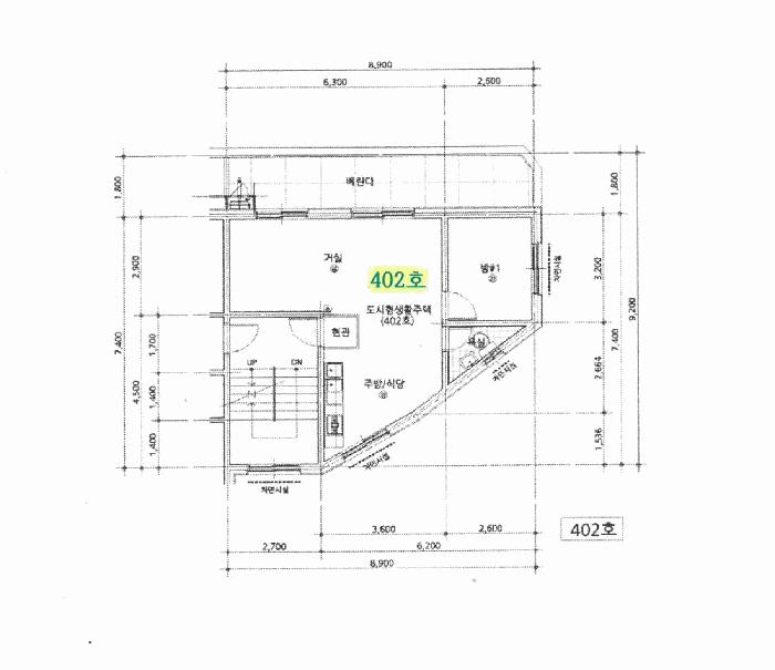
°æ±âµµ ¾È»ê½Ã »ó·Ï±¸ º»¿Àµ¿ 1128-12 ·çü¸¥ºô 4Ãþ402È£
»ç°Ç¹øÈ£ 2025Ÿ°æ52947 ¹°°Ç¹øÈ£
°æ¸ÅÁ¾·ùºÎµ¿»êÀÓÀǰæ¸Å
¸Å°¢´ë»óÅäÁö ¹× °Ç¹°Àϰý ¸Å°¢
¸Å°¢±âÀÏ    2026.04.23(¸ñ) 10:30 ÀÔÂû 11ÀÏÀü    
ÅäÁö¸éÀû25.13§³(7.60 Æò)
°Ç¹°¸éÀû42.08§³(12.73 Æò)
乫/¼ÒÀ¯ÀÚ¹ÚOO / ÃÖOO¿Ü 1¸í
ä±ÇÀÚ°æOOOOOOOOOO(OOOO OOOOOOOOO)
ÆäÀ̽ººÏ Æ®À§ÅÍ ±¸±Û+
īī¿À½ºÅ丮
īī¿ÀÅå sms¹®ÀÚº¸³»±â
 

±âÀϳ»¿ª

°æ°ú ³¯Â¥ Àú°¨ ÃÖÀú°¡ °á°ú
Á¢¼öÀÏ 2025-07-29 °æ¸ÅÁ¢¼ö
~3ÀÏ 
2025-08-01 °æ¸Å°³½Ã°áÁ¤
~257ÀÏ 
¹è´ç¿ä±¸Á¾±âÀÏ
~268ÀÏ 
2026-04-23 100%
145,000,000
ÁøÇà
¹°°Ç¸í¼¼¼­ ÇöȲÁ¶»ç¼­ ¹®°ÇÁ¢¼ö ¼Û´Þ³»¿ª

°¨Á¤Æò°¡ÇöȲ

¸ñ·Ï ÁÖ¼Ò ±¸Á¶/¿ëµµ/´ëÁö±Ç ¸éÀû ºñ°í
´ëÁö±Ç
º»¿Àµ¿ 1128-12 304.9ºÐÀÇ 25.133 25.133 §³
(7.60Æò)
°Ç¹°
º»¿Àµ¿ 1128-12 4Ãþ402È£ ö±ÙÄÜÅ©¸®Æ®±¸Á¶ 42.078 §³
(12.73Æò)
1) À§Ä¡/µµ½ÃÁö¿ª/°ü¸®Áö¿ª/Á¦1Á¾ÀϹÝÁÖ°ÅÁö¿ª/¹ö½ºÁ¤·ùÀå/ÁÖÂ÷Àå/ö±ÙÄÜÅ©¸®Æ®±¸Á¶/Æò½º¶óºêÁöºØ/µµ½Ã°¡½º/°³º°³­¹æ/°¡½ºº¸ÀÏ·¯ ´õº¸±â
°¨Á¤Æò°¡ ¿äÇ×Ç¥
1)À§Ä¡ ¹× ÁÖÀ§È¯°æ
º»°ÇÀº °æ±âµµ ¾È»ê½Ã »ó·Ï±¸ º»¿Àµ¿ ¼ÒÀç ""»ó·Ï°íµîÇб³"" ºÏ¼­Ãø Àαٿ¡ À§Ä¡Çϸç ÁÖº¯Àº
°øµ¿ÁÖÅÃ, ´Üµ¶ÁÖÅÃ, ±Ù¸°»ýȰ½Ã¼³ µîÀÌ È¥ÀçÇÏ´Â Áö¿ªÀ¸·Î Á¦¹Ý ÁÖÀ§È¯°æÀº º¸ÅëÀÓ.
2)±³Åë»óȲ
º»°Ç ÁÖÅñîÁö Â÷·®ÀÇ ÃâÀÔÀÌ °¡´ÉÇϰí Àαٿ¡ ¹ö½ºÁ¤·ùÀåÀÌ ¼ÒÀçÇÏ´Âµî ´ëÁß±³Åë»çÁ¤Àº
¹«³­ÇÔ.
3)°Ç¹°ÀÇ ±¸Á¶
ö±ÙÄÜÅ©¸®Æ®±¸Á¶ Æò½º¶óºêÁöºØ 4Ãþ °Ç³» 3Ãþ 301È£ ¹× 4Ãþ 402È£·Î¼­
¿Üº® : Ä¡À庮µ¹½×±â ¹× ÀϺΠȭ°­¼®ºÙÀÓ ¸¶°¨
³»º® : º®Áö ¹× ŸÀÏ ¸¶°¨
âȣ : ÇÏÀÌ»õ½Ã ÀÌÁßâÀÓ.
4)ÀÌ¿ë»óÅÂ
°¢ µµ½ÃÇü»ýȰÁÖÅÃ(ÈÄ÷ ³»ºÎ±¸Á¶µµ ÂüÁ¶)À¸·Î ÀÌ¿ëÁßÀÓ.
5)¼³ºñ³»¿ª
À§»ý ¹× ±Þ.¹è¼ö¼³ºñ, ÁÖÂ÷Àå¼³ºñ, µµ½Ã°¡½º¼³ºñ, µµ½Ã°¡½ºº¸ÀÏ·¯¿¡ ÀÇÇÑ °³º°³­¹æ¼³ºñµî
µÇ¾îÀÖÀ½.


6)ÅäÁöÀÇ Çü»ó ¹× ÀÌ¿ë»óÅÂ
ºÎÁ¤ÇüÀÇ ÅäÁö·Î¼­ °øµ¿ÁÖÅà °ÇºÎÁö·Î ÀÌ¿ëÁßÀÓ.
7)ÀÎÁ¢ µµ·Î»óŵî
ºÏ¼­ÃøÀ¸·Î ³ëÆø ¾à6¹ÌÅÍ ³»¿ÜÀÇ µµ·Î¿Í Á¢ÇÔ.
8)ÅäÁöÀÌ¿ë°èȹ ¹× Á¦ÇÑ»óÅÂ
µµ½ÃÁö¿ª, Á¦1Á¾ÀϹÝÁÖ°ÅÁö¿ª, ½Ã°¡Áö°æ°üÁö±¸(ÀϹÝ), ¼Ò·Î3·ù(Æø8m ¹Ì¸¸)(Á¢ÇÕ), °¡Ãà»çÀ°
Á¦Çѱ¸¿ª<°¡ÃàºÐ´¢ÀÇ °ü¸® ¹× À̿뿡 °üÇÑ ¹ý·ü>, »ó´ëº¸È£±¸¿ª(»ó·Ï°íµîÇб³)<±³À°È¯°æº¸È£
¿¡ °üÇÑ ¹ý·ü>, ´ë±â°ü¸®±Ç¿ª<´ë±â°ü¸®±Ç¿ªÀÇ ´ë±âȯ°æ°³¼±¿¡ °üÇÑ Æ¯º°¹ý>, µµ½Ã±³ÅëÁ¤ºñ
Áö¿ª<µµ½Ã±³ÅëÁ¤ºñÃËÁø¹ý>, »ýȰ¼ÒÀ½Áøµ¿°ü¸®Áö¿ª<¼ÒÀ½Áøµ¿°ü¸®¹ý>, ¼ºÀå°ü¸®±Ç¿ª<¼öµµ±Ç
Á¤ºñ°èȹ¹ý>
9)°øºÎ¿ÍÀÇ Â÷ÀÌ
¾øÀ½.
10)±âŸÂü°í»çÇ×(ÀÓ´ë°ü·Ê ¹× ±âŸ)
ÀÓ´ë°ü°è ¹Ì»óÀÓ.
Âü°í
»çÇ×
µµ½ÃÇü»ýȰÁÖÅÃ(¿ø·ë)À¸·Î ÀÌ¿ë ÁßÀÓ.
- ¸ñ·Ï1.Àº 3Ãþ 3°¡

°ÇÃ๰ÇöȲ

¼ÒÀçÁö °æ±âµµ ¾È»ê½Ã »ó·Ï±¸ º»¿Àµ¿ 1128-12¹øÁö
´ëÁö¸éÀû 304.9§³
(92.39Æò)
¿¬¸éÀû 563.128§³
(170.64Æò)
°ÇÃà¸éÀû 180.96§³
(54.84Æò)
¿ëÀû·ü»êÁ¤
¿¬¸éÀû
563.128§³
(170.64Æò)
°ÇÆóÀ² 59.35% ¿ëÀû·ü 184.69%
Áö»óÃþ¼ö 4Ãþ ÁöÇÏÃþ¼ö  
ÁÖ¿ëµµ °øµ¿ÁÖÅà ±¸Á¶ ö±ÙÄÜÅ©¸®Æ®±¸Á¶
Âø°øÀÏÀÚ 2015.04.27 »ç¿ë½ÂÀÎÀÏÀÚ 2015.09.02
°ÇÃ๰Ãþº°ÇöȲ [º¸±â]


µî±âºÎµîº» ¿ä¾à(°Ç¹°)

  Á¢¼öÀÏÀÚ µî±â¸ñÀû/±Ç¸®ÀÚ ±Ç¸®±Ý¾× ±âÁØ
1 2017³â9¿ù25ÀÏ
¼ÒÀ¯±Ç
ÃÖOO
¼Ò¸ê
2 2017³â9¿ù25ÀÏ
¼ÒÀ¯±Ç
¹ÚOO
¼Ò¸ê
3 2018³â5¿ù2ÀÏ
±ÙÀú´ç±Ç
¿ËOOOO
312,000,000 ¼Ò¸ê±âÁØ
4 2025³â8¿ù1ÀÏ
ÀÓÀǰæ¸Å
°æOOOO
¼Ò¸ê

ÀÓÂ÷ÀÎÇöȲ (¹è´ç¿ä±¸Á¾±âÀÏ: )



¸Å°¢±âÀÏ 7ÀÏÀü¿¡ ¸Å°¢¹°°Ç¸í¼¼¼­°¡ °ø°íµÇ¿À´Ï È®ÀÎÇϽñ⠹ٶø´Ï´Ù.

ÀÓÂ÷ÀÎ ¿ëµµ/Á¡À¯ º¸Áõ±Ý/¿ù¼¼ ´ëÇ×·Â
ÀüÀÔÀÏ/È®Á¤ÀÏ ¹è´ç¿ä±¸ ºñ°í
LOOOOOO 402È£ ¹Ì»ó
[¿ù]¹Ì»ó
X
2022.10.04
¹Ì»ó
¹Ì»ó
LOOOOOOOOO 402È£ ¹Ì»ó
[¿ù]¹Ì»ó
X
2022.10.04.
¹Ì»ó
¹Ì»ó
ÀÌOOOOOOOOOOOOO 402È£ÀüºÎ 40,000,000
[¿ù]600,000
X
2022.10.04.
2025.08.13.
2025.8.13. 2022.10.01.~2026.10.01.
ºñ°í
(¸Å°¢¹°°Ç
¸í¼¼¼­)
LI JIAEN : ÀÓÂ÷ÀÎ ÀÌÈ«À§(LI HONGWEI)ÀÇ ÀÚ³à·Î Á¶»çµÊ.

¿©ÀÇÁÖ°æ¸Å Á¶¾ð ÇÑ ¸¶µð


ÁÖÀÇ»çÇ× (ÃÖ¼±¼øÀ§ ¼³Á¤ÀÏ: 2018.05.02. ±ÙÀú´ç ¼³Á¤)

¸Å°¢À¸·Î ¼Ò¸êµÇÁö ¾Ê´Â µî±âºÎ±Ç¸®:
¸Å°¢À¸·Î ¼³Á¤µÈ °ÍÀ¸·Î º¸´Â Áö»ó±Ç:
µµ½ÃÇü»ýȰÁÖÅÃ(¿ø·ë)À¸·Î ÀÌ¿ë ÁßÀÓ.
¡Ø¹Ì³³°ü¸®ºñ(°ø¿ë) Àμö¿©ºÎ¸¦ ÀÔÂû Àü¿¡ È®ÀÎÇϽñ⠹ٶø´Ï´Ù

 

Áö¿ªºÐ¼®

ÁöÇÏö¸í Á÷¼±°Å¸®

Çб³¸í ÀüÈ­¹øÈ£ ÁÖ¼Ò Á÷¼±°Å¸®

¹ý¿ø

¼ö¿øÁö¹æ¹ý¿ø ¾È»êÁö¿ø (140-54)°æ±âµµ ¾È»ê½Ã ´Ü¿ø±¸ ±¤´ö¼­·Î 75 (°íÀܵ¿)
´ëÇ¥ : 031)481-1114, ¹Î¿ø : 031)481-1238, ¾ß°£ : 031)481-1112
°üÇÒÁö¿ª : ¾È»ê½Ã, ±¤¸í½Ã, ½ÃÈï½Ã

µî±â¼Ò ¼ö¿øÁö¹æ¹ý¿ø ¾È»êÁö¿ø µî±â°ú (´ëÇ¥:1544-0773, ÆÑ½º:(031)481-1290~1292, °æ±âµµ ¾È»ê½Ã ´Ü¿ø±¸ ±¤´ö¼­·Î 75 (°íÀܵ¿ 711))
¼¼¹«¼­ ¾È»ê¼¼¹«¼­ (´ëÇ¥:031-412-32, ÆÑ½º:031-412-3268, °æ±âµµ ¾È»ê½Ã ´Ü¿ø±¸ È­¶û·Î 350 (°íÀܵ¿ 517))

Àαٳ«ÂûÅë°è

±â°£ ¸Å°¢°Ç¼ö Æò±Õ°¨Á¤°¡
Æò±Õ¸Å°¢°¡
¸Å°¢°¡À²
Æò±ÕÀ¯Âû¼ö
3°³¿ù 0°Ç 0¿ø
0¿ø
0%
0ȸ
6°³¿ù 0°Ç 0¿ø
0¿ø
0%
0ȸ
12°³¿ù 2°Ç 696,545,900¿ø
395,642,500¿ø
64%
1.5ȸ


º» °æ¸ÅÁ¤º¸´Â ¹ý¿øÀÚ·á¿Í ÀÏÄ¡Çϵµ·Ï ÇÏ¿´À¸³ª ±Ç¸®»çÇ׺¯µ¿, ÀÔ·ÂÂø¿À µîÀÇ ¿øÀÎÀ¸·Î »ç½Ç°ú ´Ù¸¦ ¼ö ÀÖ½À´Ï´Ù. ÀÌ¿ë¾à°ü¿¡ ÀǰЏéÃ¥Á¶°ÇÀ¸·Î Á¦°øµÊÀ» ¾Ë¸®¸ç, °æ¸ÅÀÔÂû½Ã ¹Ýµå½Ã °ü·Ã °øºÎ¸¦ ÀçÈ®ÀÎÇϽñ⠹ٶø´Ï´Ù. º¸´Ù Æí¸®ÇÑ °æ¸ÅÁ¤º¸ Á¦°øÀ» À§ÇØ Áö¼ÓÀûÀ¸·Î °³¼±ÇϰڽÀ´Ï´Ù. ÀÌ¿ëÇØ Áּż­ °¨»çÇÕ´Ï´Ù.