·Î±×ÀÎ
9
´Ù¼¼´ë(ºô¶ó)
ÀÇÁ¤ºÎÁö¹æ¹ý¿ø °í¾çÁö¿ø
 °¨Á¤°¡447,000,000 ¿ø
 ÃÖÀú°¡(100%) 447,000,000 ¿ø
 º¸Áõ±Ý(10%) 44,700,000 ¿ø
 Ã»±¸¾×400,549,055 ¿ø
°æ±âµµ ÆÄÁֽà ¾ß´çµ¿ 55 ÇÁ¶ó¿îµå 102µ¿ 4Ãþ402È£
»ç°Ç¹øÈ£ 2025Ÿ°æ6291
°æ¸ÅÁ¾·ùºÎµ¿»êÀÓÀǰæ¸Å
¸Å°¢´ë»óÅäÁö ¹× °Ç¹°Àϰý ¸Å°¢
¸Å°¢±âÀÏ    2026.04.23(¸ñ) 10:00 ÀÔÂû 14ÀÏÀü    
ÅäÁö¸éÀû78.80§³(23.84 Æò)
°Ç¹°¸éÀû65.11§³(19.70 Æò)
乫/¼ÒÀ¯ÀÚ±èOO / ±èOO
ä±ÇÀÚ¼öOOO
ÆäÀ̽ººÏ Æ®À§ÅÍ ±¸±Û+
īī¿À½ºÅ丮
īī¿ÀÅå sms¹®ÀÚº¸³»±â
 

±âÀϳ»¿ª

°æ°ú ³¯Â¥ Àú°¨ ÃÖÀú°¡ °á°ú
Á¢¼öÀÏ 2025-10-29 °æ¸ÅÁ¢¼ö
~1ÀÏ 
2025-10-30 °æ¸Å°³½Ã°áÁ¤
~86ÀÏ 
2026-01-23 ¹è´ç¿ä±¸Á¾±âÀÏ
~176ÀÏ 
2026-04-23 100%
447,000,000
ÁøÇà
¹°°Ç¸í¼¼¼­ ÇöȲÁ¶»ç¼­ ¹®°ÇÁ¢¼ö ¼Û´Þ³»¿ª

°¨Á¤Æò°¡ÇöȲ

¸ñ·Ï ÁÖ¼Ò ±¸Á¶/¿ëµµ/´ëÁö±Ç ¸éÀû ºñ°í
´ëÁö±Ç
¾ß´çµ¿ 55 607ºÐÀÇ 78.8 78.8 §³
(23.84Æò)
°Ç¹°
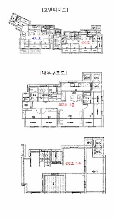
¾ß´çµ¿ 55 102µ¿ 4Ãþ402È£ ö±ÙÄÜÅ©¸®Æ®±¸Á¶ 65.1081 §³
(19.70Æò)
1) À§Ä¡/°èȹ°ü¸®Áö¿ª/Â÷·® Á¢±ÙÀÌ °¡´É/ö±ÙÄÜÅ©¸®Æ®±¸Á¶/µµ½Ã°¡½º/°³º°³­¹æ/°¡½ºº¸ÀÏ·¯/¹æ3/¿å½Ç2 ´õº¸±â
°¨Á¤Æò°¡ ¿äÇ×Ç¥
1)À§Ä¡ ¹× ÁÖÀ§È¯°æ
°æ±âµµ ÆÄÁֽà ¾ß´çµ¿ ¼ÒÀç ¿îÁ¤4µ¿ ÇàÁ¤º¹Áö¼¾ÅÍ ³²Ãø¿¡ À§Ä¡Çϰí, ÁÖÀ§´Â ´Ù¼¼´ëÁÖÅðú ´Üµ¶ÁÖÅÃÀÌ È¥ÀçÇÏ´Â ÁÖ°ÅÁö´ëÀÓ.
2)±³Åë»óȲ
±Ù°Å¸®¿¡ °æÀÇ·Î ¹× ¿îÁ¤¿ªÀÌ ÀÖ°í, º»°Ç±îÁö Â÷·® Á¢±ÙÀÌ °¡´ÉÇÏ¿© Á¦¹Ý ±³Åë¿©°ÇÀº º¸ÅëÀÓ.
3)°Ç¹°ÀÇ ±¸Á¶
ö±ÙÄÜÅ©¸®Æ®±¸Á¶ ö±ÙÄÜÅ©¸®Æ®ÁöºØ Áö»ó 4Ãþ °Ç¹°(2022. 5. 27. »ç¿ë½ÂÀÎ) Áß 4Ãþ 402È£·Î ¿Üº® ; º®µ¹½×±â¸¶°¨ ³»º® ; º®Áö ¹× ŸÀϸ¶°¨ âȣ ; ¾Ë·ç¹Ì´½Ã¢È£ÀÓ.
4)ÀÌ¿ë»óÅÂ
ÁÖ°Å¿ë(¹æ3, °Å½Ç, ÁÖ¹æ, ¿å½Ç2, µå·¹½º·ë, ´Ù¶ô µî)À¸·Î ÀÌ¿ë ÁßÀÓ.
5)¼³ºñ³»¿ª
½Â°­±â(1´ë), µµ½Ã°¡½ºº¸ÀÏ·¯¿¡ ÀÇÇÑ °³º°³­¹æ¼³ºñ, À§»ý¼³ºñ µî ¼³Ä¡µÇ¾î ÀÖÀ½.
6)ÅäÁöÀÇ Çü»ó ¹× ÀÌ¿ë»óÅÂ
ºÎÁ¤ÇüÀÇ ÅäÁö 2ÇÊÁö·Î ´Ù¼¼´ëÁÖÅÃÀÇ ºÎÁö·Î ÀÌ¿ë ÁßÀÓ.
7)ÀÎÁ¢ µµ·Î»óŵî
³²ÃøÀ¸·Î ¼¼·Î¿¡ Á¢ÇÔ.
8)ÅäÁöÀÌ¿ë°èȹ ¹× Á¦ÇÑ»óÅÂ
°èȹ°ü¸®Áö¿ª, ¼ºÀå°ü¸®°èȹ±¸¿ª(ÁØÁÖ°Åzone), °¡Ãà»çÀ°Á¦Çѱ¸¿ª, ÅäÁö°Å·¡°è¾à¿¡ °üÇÑ Çã°¡±¸¿ªÀÓ.
9)°øºÎ¿ÍÀÇ Â÷ÀÌ
¾øÀ½.
10)±âŸÂü°í»çÇ×(ÀÓ´ë°ü·Ê ¹× ±âŸ)
ÀÓ´ë°ü°è ¹Ì»óÀÓ.
Âü°í
»çÇ×

-ö±ÙÄÜÅ©¸®Æ®±¸Á¶ (ö±Ù)ÄÜÅ©¸®Æ®ÁöºØ 4Ãþ °øµ¿ÁÖÅÃ


±¹ÅäºÎ½Ç°Å·¡°¡ °æ±âµµ ÆÄÁֽà ¾ß´çµ¿

¡Ü ¸Å¸Å

¸éÀû(§³), ±Ý¾×(¸¸¿ø)

¡Ü Àü¼¼

¸éÀû(§³), ±Ý¾×(¸¸¿ø)

°è¾àÀϰǹ°¸íĪÃþ¿¬¸éÀûº¸Áõ±Ý¿ù¼¼°ÇÃà
26.03.25µ¿¼ººô¶ó³ªµ¿(45-62)142.351,000652002
26.03.25°¡¸²ºô¶ó205µ¿206µ¿455.52223,6002017
26.03.25´Ù¿øCASTLE3Â÷351.1322,0002019
26.03.22¿¡µ§ºô¸®Áö103µ¿104µ¿465.0321,5002018
26.03.19û¿ìÇÏÀÌÃ÷115µ¿116µ¿449.6915,0002014
¢Ñ ´õº¸±â


ÀÓÂ÷ÀÎÇöȲ (¹è´ç¿ä±¸Á¾±âÀÏ: 2026-01-23)



¸Å°¢±âÀÏ 7ÀÏÀü¿¡ °ø°íµÇ¿À´Ï È®ÀÎÇϽñ⠹ٶø´Ï´Ù.


¿©ÀÇÁÖ°æ¸Å Á¶¾ð ÇÑ ¸¶µð


ÁÖÀÇ»çÇ× (ÃÖ¼±¼øÀ§ ¼³Á¤ÀÏ: )

¸Å°¢À¸·Î ¼Ò¸êµÇÁö ¾Ê´Â µî±âºÎ±Ç¸®:
¸Å°¢À¸·Î ¼³Á¤µÈ °ÍÀ¸·Î º¸´Â Áö»ó±Ç:
¡Ø¹Ì³³°ü¸®ºñ(°ø¿ë) Àμö¿©ºÎ¸¦ ÀÔÂû Àü¿¡ È®ÀÎÇϽñ⠹ٶø´Ï´Ù

 

Áö¿ªºÐ¼®

ÁöÇÏö¸í Á÷¼±°Å¸®

Çб³¸í ÀüÈ­¹øÈ£ ÁÖ¼Ò Á÷¼±°Å¸®

¹ý¿ø

ÀÇÁ¤ºÎÁö¹æ¹ý¿ø °í¾çÁö¿ø (104-13)°æ±âµµ °í¾ç½Ã Àϻ굿±¸ Àå¹é·Î 209
´ëÇ¥ : 031)920-6114, ¾ß°£ : 031)920-6550, ÆÑ½º : 031)920-6119
°üÇÒÁö¿ª : °í¾ç½Ã, ÆÄÁÖ½Ã

µî±â¼Ò ÀÇÁ¤ºÎÁö¹æ¹ý¿ø °í¾çÁö¿ø ÆÄÁÖµî±â¼Ò (´ëÇ¥:1544-0773, ÆÑ½º:(031)945-4764, 3628, °æ±âµµ ÆÄÁֽà ±ÝÁ¤·Î 45 (±ÝÃ̵¿ 947-28))
¼¼¹«¼­ ÆÄÁÖ¼¼¹«¼­ (´ëÇ¥:031-956-02, ÆÑ½º:031-957-0315, °æ±âµµ ÆÄÁֽà ±Ý¸ª¿ª·Î 62 (±ÝÃ̵¿))

Àαٳ«ÂûÅë°è

±â°£ ¸Å°¢°Ç¼ö Æò±Õ°¨Á¤°¡
Æò±Õ¸Å°¢°¡
¸Å°¢°¡À²
Æò±ÕÀ¯Âû¼ö
3°³¿ù 34°Ç 257,029,412¿ø
142,664,531¿ø
56%
3.1ȸ
6°³¿ù 81°Ç 250,456,790¿ø
149,748,418¿ø
61%
2.6ȸ
12°³¿ù 122°Ç 273,172,131¿ø
167,165,242¿ø
62%
2.4ȸ


º» °æ¸ÅÁ¤º¸´Â ¹ý¿øÀÚ·á¿Í ÀÏÄ¡Çϵµ·Ï ÇÏ¿´À¸³ª ±Ç¸®»çÇ׺¯µ¿, ÀÔ·ÂÂø¿À µîÀÇ ¿øÀÎÀ¸·Î »ç½Ç°ú ´Ù¸¦ ¼ö ÀÖ½À´Ï´Ù. ÀÌ¿ë¾à°ü¿¡ ÀǰЏéÃ¥Á¶°ÇÀ¸·Î Á¦°øµÊÀ» ¾Ë¸®¸ç, °æ¸ÅÀÔÂû½Ã ¹Ýµå½Ã °ü·Ã °øºÎ¸¦ ÀçÈ®ÀÎÇϽñ⠹ٶø´Ï´Ù. º¸´Ù Æí¸®ÇÑ °æ¸ÅÁ¤º¸ Á¦°øÀ» À§ÇØ Áö¼ÓÀûÀ¸·Î °³¼±ÇϰڽÀ´Ï´Ù. ÀÌ¿ëÇØ Áּż­ °¨»çÇÕ´Ï´Ù.