·Î±×ÀÎ
37
´Ù¼¼´ë(ºô¶ó)
ÀÎõÁö¹æ¹ý¿ø ºÎõÁö¿ø
 °¨Á¤°¡353,000,000 ¿ø
 ÃÖÀú°¡(100%) 353,000,000 ¿ø
 º¸Áõ±Ý(10%) 35,300,000 ¿ø
 Ã»±¸¾×205,000,000 ¿ø
°æ±âµµ ºÎõ½Ã ¼Ò»ç±¸ ¼Ò»çº»µ¿ 163-24 ´Ù¿ÂÁÖÅà 101µ¿ 4Ãþ 401È£
»ç°Ç¹øÈ£ 2025Ÿ°æ33110
°æ¸ÅÁ¾·ùºÎµ¿»ê°­Á¦°æ¸Å
¸Å°¢´ë»óÅäÁö ¹× °Ç¹°Àϰý ¸Å°¢
¸Å°¢±âÀÏ    2026.04.22(¼ö) 10:00 ÀÔÂû 10ÀÏÀü    
ÅäÁö¸éÀû36.15§³(10.94 Æò)
°Ç¹°¸éÀû70.29§³(21.26 Æò)
乫/¼ÒÀ¯ÀÚÁ¶OO / Á¶OO
ä±ÇÀÚÁÖOOOOOOO
ÆäÀ̽ººÏ Æ®À§ÅÍ ±¸±Û+
īī¿À½ºÅ丮
īī¿ÀÅå sms¹®ÀÚº¸³»±â
 

±âÀϳ»¿ª

°æ°ú ³¯Â¥ Àú°¨ ÃÖÀú°¡ °á°ú
Á¢¼öÀÏ 2025-03-27 °æ¸ÅÁ¢¼ö
~1ÀÏ 
2025-03-28 °æ¸Å°³½Ã°áÁ¤
~69ÀÏ 
2025-06-04 ¹è´ç¿ä±¸Á¾±âÀÏ
~391ÀÏ 
2026-04-22 100%
353,000,000
ÁøÇà
¹°°Ç¸í¼¼¼­ ÇöȲÁ¶»ç¼­ ¹®°ÇÁ¢¼ö ¼Û´Þ³»¿ª

°¨Á¤Æò°¡ÇöȲ

¸ñ·Ï ÁÖ¼Ò ±¸Á¶/¿ëµµ/´ëÁö±Ç ¸éÀû ºñ°í
´ëÁö±Ç
¼Ò»çº»µ¿ 163-24 295.4ºÐÀÇ 36.15 36.15 §³
(10.94Æò)
°Ç¹°
¼Ò»çº»µ¿ 163-24 101µ¿ 4Ãþ 401È£ ö±ÙÄÜÅ©¸®Æ®±¸Á¶ 70.29 §³
(21.26Æò)
1) À§Ä¡/Á¦2Á¾ÀϹÝÁÖ°ÅÁö¿ª/½Ã³»¹ö½ºÁ¤·ùÀå/ö±ÙÄÜÅ©¸®Æ®±¸Á¶ ´õº¸±â
°¨Á¤Æò°¡ ¿äÇ×Ç¥
1)À§Ä¡ ¹× ÁÖÀ§È¯°æ
º»°ÇÀº ºÎõ½Ã ¼Ò»ç±¸ ¼Ò»çº»µ¿ ¼ÒÀç ""¼Ò»çº»µ¿ÇàÁ¤º¹Áö¼¾ÅÍ""µ¿Ãø Àαٿ¡ À§Ä¡ÇÏ´Â µµ½ÃÇü»ýȰÁÖÅà ""´Ù¿ÂÁÖÅà Á¦101µ¿"" Á¦4Ãþ Á¦401È£·Î¼­ ÀαÙÀº ´Ù¼¼´ëÁÖÅà À§ÁÖÀÇ ÁÖÅÃÁö´ëÀÓ.

2)±³Åë»óȲ
ºÏÃø ±Ù°Å¸®¿¡ °æÀÎÀüö ""¼Ò»ç¿ª"" ¹× °æÀα¹µµ°¡ ¼ÒÀçÇÏ°í ½Ã³»¹ö½ºÁ¤·ùÀåÀÌ ÀÎÁ¢ÇÏ´Â µî ´ëÁß±³Åë»óȲ Æí¸®ÇÑ ÆíÀÓ.
3)°Ç¹°ÀÇ ±¸Á¶
ö±ÙÄÜÅ©¸®Æ®±¸Á¶ 5Ãþ ±Ô¸ðÀÇ µµ½ÃÇü»ýȰÁÖÅÃ(´ÜÁöÇü´Ù¼¼´ë) °Ç¹° ³» Á¦4Ãþ Á¦401È£·Î¼­

¿Üº® : Ä¡ÀåŸÀÏ ¹× ¼®Àç ¸¶°¨
âȣ : ¼¨½ÃâȣÀÓ.
4)ÀÌ¿ë»óÅÂ
µµ½ÃÇü»ýȰÁÖÅÃÀ¸·Î ÀÌ¿ëÁßÀÓ.
5)¼³ºñ³»¿ª
ÀϹÝÀûÀÎ »óÇϼöµµ¼³ºñ ¹× À§»ý¼³ºñ °®Ãß°í ÀÖÀ½.
6)ÅäÁöÀÇ Çü»ó ¹× ÀÌ¿ë»óÅÂ
¼Ò»çº»µ¿ 163-24 ¹× 163-25 2ÇÊ 1´ÜÀÇ ¼¼ÀåÇü ÅäÁö·Î¼­ ÀÎÁ¢ÅäÁö¿Í µî°í ÆòźÇÏ¸ç µµ½ÃÇü»ýȰÁÖÅà °Ç¹°ÀÇ ºÎÁö·Î ÀÌ¿ëÁßÀÓ.
7)ÀÎÁ¢ µµ·Î»óŵî
³²ÃøÀ¸·Î ¼Ò·Î, ¼­ÃøÀ¸·Î ¼¼·Î¿¡ ¾ç¸éÁ¢ÇÔ.
8)ÅäÁöÀÌ¿ë°èȹ ¹× Á¦ÇÑ»óÅÂ
Á¦2Á¾ÀϹÝÁÖ°ÅÁö¿ª, °¡Ãà»çÀ°Á¦¤ÄÇѱ¸¿ª(ÀüºÎÁ¦Çѱ¸¿ª)(°¡ÃàºÐ´¢ÀÇ °ü¸® ¹× À̿뿡 °üÇÑ ¹ý·ü), »ó´ëº¸È£±¸¿ª(±³À°È¯°æ º¸È£¿¡ °üÇÑ ¹ý·ü), °ú¹Ð¾ïÁ¦±Ç¿ª(¼öµµ±ÇÁ¤ºñ°èȹ¹ý) ³» ÅäÁöÀÓ.
9)°øºÎ¿ÍÀÇ Â÷ÀÌ
¾øÀ½.
10)±âŸÂü°í»çÇ×(ÀÓ´ë°ü·Ê ¹× ±âŸ)
ÀÓ´ëÂ÷°ü°è ¹Ì»óÀÓ.

°ÇÃ๰ÇöȲ

¼ÒÀçÁö °æ±âµµ ºÎõ½Ã ¼Ò»ç±¸ ¼Ò»çº»µ¿ 163-24¹øÁö
´ëÁö¸éÀû 295.4§³
(89.52Æò)
¿¬¸éÀû 649.64§³
(196.86Æò)
°ÇÃà¸éÀû 173.95§³
(52.71Æò)
¿ëÀû·ü»êÁ¤
¿¬¸éÀû
649.64§³
(196.86Æò)
°ÇÆóÀ² 58.89% ¿ëÀû·ü 219.92%
Áö»óÃþ¼ö 5Ãþ ÁöÇÏÃþ¼ö  
ÁÖ¿ëµµ °øµ¿ÁÖÅà ±¸Á¶ ö±ÙÄÜÅ©¸®Æ®±¸Á¶
Âø°øÀÏÀÚ 2017.05.17 »ç¿ë½ÂÀÎÀÏÀÚ 2017.11.17
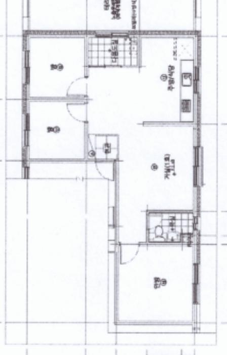
°ÇÃ๰Ãþº°ÇöȲ [º¸±â]


µî±âºÎµîº» ¿ä¾à(°Ç¹°)

  Á¢¼öÀÏÀÚ µî±â¸ñÀû/±Ç¸®ÀÚ ±Ç¸®±Ý¾× ±âÁØ
1 2019³â3¿ù29ÀÏ
¼ÒÀ¯±Ç
Á¶OO
¼Ò¸ê
2 2022³â2¿ù4ÀÏ
¾Ð·ù
±¹
¼Ò¸ê±âÁØ
3 2022³â4¿ù4ÀÏ
°¡¾Ð·ù
ÁÖOOOO
1,029,000,000 ¼Ò¸ê
4 2022³â9¿ù16ÀÏ
¾Ð·ù
ºÎOO
¼Ò¸ê
5 2023³â4¿ù6ÀÏ
ÀÓÂ÷±Ç¼³Á¤
ÀÌOOOO
205,000,000 ¼Ò¸ê
6 2023³â8¿ù2ÀÏ
¾Ð·ù
½ÃOO
¼Ò¸ê
7 2023³â9¿ù7ÀÏ
¾Ð·ù
±¹
¼Ò¸ê
8 2025³â3¿ù28ÀÏ
°­Á¦°æ¸Å
ÁÖOOOO
¼Ò¸ê

ÀÓÂ÷ÀÎÇöȲ (¹è´ç¿ä±¸Á¾±âÀÏ: 2025-06-04)



¸Å°¢±âÀÏ 7ÀÏÀü¿¡ ¸Å°¢¹°°Ç¸í¼¼¼­°¡ °ø°íµÇ¿À´Ï È®ÀÎÇϽñ⠹ٶø´Ï´Ù.

ÀÓÂ÷ÀÎ ¿ëµµ/Á¡À¯ º¸Áõ±Ý/¿ù¼¼ ´ëÇ×·Â
ÀüÀÔÀÏ/È®Á¤ÀÏ ¹è´ç¿ä±¸ ºñ°í
ÀÌOO ÀüºÎ 205,000,000
O
2019.07.15.
2019.01.23.
2019.03.29.
Á¤OO ÀüºÎ 205,000,000
O
2019.07.15.
2019.01.23.
2019.03.29.
ÁÖOOOOOOOOOOOOOOOOOOO ÀüºÎ 205,000,000
O
2019.07.15.
2019.01.23.
2025.6.2. 2019.03.29.~2023.10.27.
ºñ°í
(¸Å°¢¹°°Ç
¸í¼¼¼­)
ÀÌÁؼ®, ÀüÇýÁø: ÁÖÅÃÀÓÂ÷±Çµî±â±Ç¸®Àڷμ­ ÁÖÅÃÀÓÂ÷±Çµî±âÀÏÀº 2023. 4. 6.ÀÓ ÁÖÅõµ½Ãº¸Áõ°ø»ç(ÀÓÂ÷ÀÎ ÀÌÁؼ®, ÀüÇýÁø): °æ¸Å½Åûä±ÇÀÚÀ̰í ÀÓÂ÷ÀÎ ÀÌÁؼ®, ÀüÇýÁøÀÇ ÀÓÂ÷º¸Áõ±Ý¹Ýȯä±Ç ¾ç¼öÀÎÀ¸·Î¼­, º¸ Áõ±Ý Àü¾×À» ¹è´ç¹ÞÁö ¸øÇÏ´õ¶óµµ ÀÜÁ¸ ÀÓÂ÷º¸Áõ±Ý¹Ýȯä±ÇÀ» Æ÷±âÇϰí ÁÖÅÃÀÓÂ÷±Çµî±â ¸»¼Ò¿¡ µ¿ÀÇÇÑ´Ù´Â ÃëÁöÀÇ È®¾à¼­¸¦ Á¦ÃâÇÔ

¿©ÀÇÁÖ°æ¸Å Á¶¾ð ÇÑ ¸¶µð

¼±¼øÀ§ ÀÓÂ÷±Çµî±â°¡ µÇ¾î ÀÖ½À´Ï´Ù
´ëÇ×·ÂÀÌ ÀÖ´Â ¼±¼øÀ§ ÀÓÂ÷±Çµî±â ±Ç¸®ÀÚ°¡ ¹è´çÀ» Àü¾× ¹ÞÁö ¸øÇÒ °æ¿ì ³«ÂûÀÚ°¡ ÀÜ¿© º¸Áõ±ÝÀ» ÀμöÇØ¾ßÇÏ´Â °æ¿ìµµ ÀÖ½À´Ï´Ù.

ÁÖÀÇ»çÇ× (ÃÖ¼±¼øÀ§ ¼³Á¤ÀÏ: 2022.02.04.¾Ð·ù ¼³Á¤)

¸Å°¢À¸·Î ¼Ò¸êµÇÁö ¾Ê´Â µî±âºÎ±Ç¸®: À»±¸ ¼øÀ§ 3¹ø ÁÖÅÃÀÓÂ÷±Çµî±â(´Ù¸¸ ÁÖÅõµ½Ãº¸Áõ°ø»çÀÇ ¸»¼Òµ¿ÀÇ È®¾à¼­°¡ Á¦ÃâµÊ)
¸Å°¢À¸·Î ¼³Á¤µÈ °ÍÀ¸·Î º¸´Â Áö»ó±Ç:
¡Ø¹Ì³³°ü¸®ºñ(°ø¿ë) Àμö¿©ºÎ¸¦ ÀÔÂû Àü¿¡ È®ÀÎÇϽñ⠹ٶø´Ï´Ù

 

Áö¿ªºÐ¼®

ÁöÇÏö¸í Á÷¼±°Å¸®

Çб³¸í ÀüÈ­¹øÈ£ ÁÖ¼Ò Á÷¼±°Å¸®

¹ý¿ø

ÀÎõÁö¹æ¹ý¿ø ºÎõÁö¿ø (146-02)°æ±âµµ ºÎõ½Ã ¿ø¹Ì±¸ »óÀÏ·Î 129(»óµ¿)
´ëÇ¥ : 032)320-1114, ¹Î¿ø : 032)320-1234
°üÇÒÁö¿ª : ºÎõ½Ã, ±èÆ÷½Ã

µî±â¼Ò ÀÎõÁö¹æ¹ý¿ø ºÎõÁö¿ø µî±â°ú (´ëÇ¥:1544-0773, ÆÑ½º:(032)320-1484, 320-1485, °æ±âµµ ºÎõ½Ã »óÀÏ·Î 129 (»óµ¿ 445-1))
¼¼¹«¼­ ¼¼¹«¼­ (´ëÇ¥:, ÆÑ½º:, )

Àαٳ«ÂûÅë°è

±â°£ ¸Å°¢°Ç¼ö Æò±Õ°¨Á¤°¡
Æò±Õ¸Å°¢°¡
¸Å°¢°¡À²
Æò±ÕÀ¯Âû¼ö
3°³¿ù 18°Ç 199,666,667¿ø
134,153,805¿ø
67%
1.7ȸ
6°³¿ù 40°Ç 221,450,000¿ø
152,137,693¿ø
67%
1.7ȸ
12°³¿ù 51°Ç 221,300,000¿ø
158,655,955¿ø
70%
1.5ȸ


º» °æ¸ÅÁ¤º¸´Â ¹ý¿øÀÚ·á¿Í ÀÏÄ¡Çϵµ·Ï ÇÏ¿´À¸³ª ±Ç¸®»çÇ׺¯µ¿, ÀÔ·ÂÂø¿À µîÀÇ ¿øÀÎÀ¸·Î »ç½Ç°ú ´Ù¸¦ ¼ö ÀÖ½À´Ï´Ù. ÀÌ¿ë¾à°ü¿¡ ÀǰЏéÃ¥Á¶°ÇÀ¸·Î Á¦°øµÊÀ» ¾Ë¸®¸ç, °æ¸ÅÀÔÂû½Ã ¹Ýµå½Ã °ü·Ã °øºÎ¸¦ ÀçÈ®ÀÎÇϽñ⠹ٶø´Ï´Ù. º¸´Ù Æí¸®ÇÑ °æ¸ÅÁ¤º¸ Á¦°øÀ» À§ÇØ Áö¼ÓÀûÀ¸·Î °³¼±ÇϰڽÀ´Ï´Ù. ÀÌ¿ëÇØ Áּż­ °¨»çÇÕ´Ï´Ù.