·Î±×ÀÎ
150
Ãà»ç(³ó°¡½Ã¼³)
´ë±¸Áö¹æ¹ý¿ø °æÁÖÁö¿ø
 °¨Á¤°¡1,346,823,000 ¿ø
 ÃÖÀú°¡(49%) 659,943,000 ¿ø
 º¸Áõ±Ý(10%) 65,994,300 ¿ø
 Ã»±¸¾×1,030,296,772 ¿ø
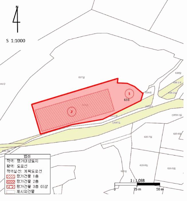
°æ»óºÏµµ °æÁֽà ³»³²¸é ¹Ú´Þ¸® 633
»ç°Ç¹øÈ£ 2025Ÿ°æ494
°æ¸ÅÁ¾·ùºÎµ¿»êÀÓÀǰæ¸Å
¸Å°¢´ë»óÅäÁö ¹× °Ç¹°Àϰý¸Å°¢
¸Å°¢±âÀÏ    2026.06.23(È­) 10:00 ÀÔÂû 23ÀÏÀü    
ÅäÁö¸éÀû3,921.00§³(1,186.10 Æò)
°Ç¹°¸éÀû2,167.50§³(655.67 Æò)
乫/¼ÒÀ¯ÀÚ´ÙOOOOOOO / ´ÙOOOOOOO
ä±ÇÀÚ°æOOOOOOOO
ÆäÀ̽ººÏ Æ®À§ÅÍ ±¸±Û+
īī¿À½ºÅ丮
īī¿ÀÅå sms¹®ÀÚº¸³»±â
 

±âÀϳ»¿ª

°æ°ú ³¯Â¥ Àú°¨ ÃÖÀú°¡ °á°ú
Á¢¼öÀÏ 2025-08-07 °æ¸ÅÁ¢¼ö
~1ÀÏ 
2025-08-08 °æ¸Å°³½Ã°áÁ¤
~75ÀÏ 
2025-10-21 ¹è´ç¿ä±¸Á¾±âÀÏ
~257ÀÏ 
2026-04-21 100%
1,346,823,000
À¯Âû
~292ÀÏ 
2026-05-26 70%
942,776,000
À¯Âû
~320ÀÏ 
2026-06-23 49%
659,943,000
ÁøÇà
¹°°Ç¸í¼¼¼­ ÇöȲÁ¶»ç¼­ ¹®°ÇÁ¢¼ö ¼Û´Þ³»¿ª

°¨Á¤Æò°¡ÇöȲ

¸ñ·Ï ÁÖ¼Ò ±¸Á¶/¿ëµµ/´ëÁö±Ç ¸éÀû ºñ°í
ÅäÁö
¹Ú´Þ¸® 633 ÀâÁ¾Áö 3921 §³
(1,186.10Æò)
°Ç¹°
¹Ú´Þ¸® 633 ´ÜÃþ µ¿.½Ä¹°°ü·Ã½Ã¼³(¹ö¼¸Á¾±ÕÀå) ÀϹÝö°ñ±¸Á¶ 2167.5 §³
(655.67Æò)
1) À§Ä¡/»ý»ê°ü¸®Áö¿ª/Â÷·®ÃâÀÔ °¡´É/ö°ñÁ¶ ´õº¸±â
°¨Á¤Æò°¡ ¿äÇ×Ç¥
1)À§Ä¡ ¹× ÁÖÀ§È¯°æ
º»°ÇÀº °æ»óºÏµµ °æÁֽà ³»³²¸é ¹Ú´Þ¸® ¹Ú´ÞÀú¼öÁö ºÏµ¿Ãø Àαٿ¡ À§Ä¡ÇÏ´Â ÅäÁö·Î¼­ ºÎ±ÙÀº ³ó°æÁö, ÀÓ¾ß, ´Üµ¶ÁÖÅà µîÀ¸·Î Çü¼ºµÇ¾î ÀÖÀ½.
2)±³Åë»óȲ
º»°Ç ±îÁö Â÷·®ÃâÀÔ °¡´ÉÇÏ°í ´ëÁß±³Åë»çÁ¤Àº ºÒÆíÇÔ.
3)ÇüÅ ¹× ÀÌ¿ë»óÅÂ
ºÎÁ¤ÇüÀÇ ÅäÁö·Î¼­ ÆòÁöÀÌ¸ç ¹ö¼¸Á¾±ÕÀå°Ç¹°ºÎÁö·Î ÀÌ¿ëÁßÀÓ

4)ÀÎÁ¢ µµ·Î»óÅÂ
8¹ÌÅÍ ³ëÆøÀÇ Áö¹æµµ·Î¿¡ ¿¬°áµÊ
5)ÅäÁöÀÌ¿ë°èȹ ¹× Á¦ÇÑ»óÅÂ
»ý»ê°ü¸®Áö¿ª, °¡Ãà»çÀ°Á¦Çѱ¸¿ª
6)Á¦½Ã¸ñ·Ï ¿ÜÀÇ ¹°°Ç
-
7)°øºÎ¿ÍÀÇ Â÷ÀÌ
¾øÀ½
8)±âŸÂü°í»çÇ×(ÀÓ´ë°ü·Ê ¹× ±âŸ)
ÀÓ´ë°ü°è : ¹Ì»óÀÓ
1)°Ç¹°ÀÇ ±¸Á¶
ÀϹÝö°ñÁ¶ ±âŸÁöºØ(»÷µåÀ§Ä¡ÆÇ³Ú) 1Ãþ °Ç¹°·Î¼­2016.10.14»ç¿ë½ÂÀÎ
Á⵿ֱ:H-Beam 500¡¿350mm, cjakrh dir 6m
º®Ã¼: ÆÇ³Ú µî ¸¶°¨
¹Ù´ÚÀº ÄÜÅ©¸®Æ®
âȣ´Â ¼¦½Ã âȣÀÓ
2)ÀÌ¿ë»óÅÂ
¹ö¼¸Á¾±Õ»ç·Î ÀÌ¿ëÇÏ¿´À¸³ª ÇöÀç °ø½ÇÀÓ
3)¼³ºñ³»¿ª
Àü±â, ¹è°ü µî ºÎ´ë½Ã¼³ ö°Å»óÅÂÀÓ
4)ºÎÇÕ¹° ¹× Á¾¹°
-
5)°øºÎ¿ÍÀÇ Â÷ÀÌ
-
6)±âŸÂü°í»çÇ×(ÀÓ´ë°ü·Ê ¹× ±âŸ)
¹Ì»óÀÓ
Âü°í
»çÇ×
Àϰý¸Å°¢

°ÇÃ๰ÇöȲ

¼ÒÀçÁö °æ»óºÏµµ °æÁֽà ³»³²¸é ¹Ú´Þ¸® 633¹øÁö
´ëÁö¸éÀû 3921§³
(1188.18Æò)
¿¬¸éÀû 2167.5§³
(656.82Æò)
°ÇÃà¸éÀû 2167.5§³
(656.82Æò)
¿ëÀû·ü»êÁ¤
¿¬¸éÀû
2167.5§³
(656.82Æò)
°ÇÆóÀ² 55.2793% ¿ëÀû·ü 55.2793%
Áö»óÃþ¼ö 1Ãþ ÁöÇÏÃþ¼ö  
ÁÖ¿ëµµ µ¿¹°¹×½Ä¹°°ü·Ã½Ã¼³ ±¸Á¶ ÀϹÝö°ñ±¸Á¶
Âø°øÀÏÀÚ 2016.04.11 »ç¿ë½ÂÀÎÀÏÀÚ 2016.10.14
°ÇÃ๰Ãþº°ÇöȲ [º¸±â]


µî±âºÎµîº» ¿ä¾à(ÅäÁö)

  Á¢¼öÀÏÀÚ µî±â¸ñÀû/±Ç¸®ÀÚ ±Ç¸®±Ý¾× ±âÁØ
1 2015³â11¿ù2ÀÏ
¼ÒÀ¯±Ç
´ÙOOOO
¼Ò¸ê
2 2016³â11¿ù25ÀÏ
±ÙÀú´ç±Ç
°æOOOO
1,040,000,000 ¼Ò¸ê±âÁØ
3 2017³â4¿ù20ÀÏ
±ÙÀú´ç±Ç
°æOOOO
39,000,000 ¼Ò¸ê
4 2017³â4¿ù21ÀÏ
°¡¾Ð·ù
±èOO
142,116,488 ¼Ò¸ê
5 2017³â7¿ù14ÀÏ
°¡¾Ð·ù
±ÙOOOO
9,000,000 ¼Ò¸ê
6 2021³â3¿ù17ÀÏ
°¡¾Ð·ù
±ÙOOOO
50,945,990 ¼Ò¸ê
7 2024³â5¿ù14ÀÏ
¾Ð·ù
±¹OOOO
¼Ò¸ê
8 2025³â7¿ù22ÀÏ
°¡¾Ð·ù
°æOOOO
30,289,161 ¼Ò¸ê
9 2025³â8¿ù8ÀÏ
ÀÓÀǰæ¸Å
°æOOOO
¼Ò¸ê
10 2025³â10¿ù1ÀÏ
¾Ð·ù
°æOO
¼Ò¸ê

µî±âºÎµîº» ¿ä¾à(°Ç¹°)

  Á¢¼öÀÏÀÚ µî±â¸ñÀû/±Ç¸®ÀÚ ±Ç¸®±Ý¾× ±âÁØ
1 2016³â10¿ù19ÀÏ
¼ÒÀ¯±Ç
´ÙOOOO
¼Ò¸ê
2 2016³â11¿ù25ÀÏ
±ÙÀú´ç±Ç
°æOOOO
1,040,000,000 ¼Ò¸ê±âÁØ
3 2017³â4¿ù20ÀÏ
±ÙÀú´ç±Ç
°æOOOO
39,000,000 ¼Ò¸ê
4 2017³â4¿ù21ÀÏ
°¡¾Ð·ù
±èOO
142,116,488 ¼Ò¸ê
5 2024³â5¿ù14ÀÏ
¾Ð·ù
±¹OOOO
¼Ò¸ê
6 2025³â7¿ù22ÀÏ
°¡¾Ð·ù
°æOOOO
30,289,161 ¼Ò¸ê
7 2025³â8¿ù8ÀÏ
ÀÓÀǰæ¸Å
°æOOOO
¼Ò¸ê

ÀÓÂ÷ÀÎÇöȲ (¹è´ç¿ä±¸Á¾±âÀÏ: 2025-10-21)


Á¶»çµÈ ÀÓÂ÷³»¿ªÀÌ ¾ø½À´Ï´Ù


¿©ÀÇÁÖ°æ¸Å Á¶¾ð ÇÑ ¸¶µð


ÁÖÀÇ»çÇ× (ÃÖ¼±¼øÀ§ ¼³Á¤ÀÏ: 2016. 11. 25. ±ÙÀú´ç±Ç ¼³Á¤)

¸Å°¢À¸·Î ¼Ò¸êµÇÁö ¾Ê´Â µî±âºÎ±Ç¸®:
¸Å°¢À¸·Î ¼³Á¤µÈ °ÍÀ¸·Î º¸´Â Áö»ó±Ç:
Àϰý¸Å°¢
¡Ø¹Ì³³°ü¸®ºñ(°ø¿ë) Àμö¿©ºÎ¸¦ ÀÔÂû Àü¿¡ È®ÀÎÇϽñ⠹ٶø´Ï´Ù

 

Áö¿ªºÐ¼®

ÁöÇÏö¸í Á÷¼±°Å¸®

Çб³¸í ÀüÈ­¹øÈ£ ÁÖ¼Ò Á÷¼±°Å¸®

¹ý¿ø

´ë±¸Áö¹æ¹ý¿ø °æÁÖÁö¿ø (381-45)°æ»óºÏµµ °æÁֽà ȭ¶û·Î 89 (µ¿ºÎµ¿ 203)
´ëÇ¥ : 054)770-4300, ¾ß°£ : 054)770-4380
°üÇÒÁö¿ª : °æÁÖ½Ã

µî±â¼Ò ´ë±¸Áö¹æ¹ý¿ø °æÁÖÁö¿ø µî±â°è (´ëÇ¥:1544-0773, ÆÑ½º:(054)742-9346, °æºÏ °æÁֽà ȭ¶û·Î 89 (µ¿ºÎµ¿ 203))
¼¼¹«¼­ °æÁÖ¼¼¹«¼­ (´ëÇ¥:054-779-12, ÆÑ½º:054-743-4408, °æ»óºÏµµ °æÁֽà ¿øÈ­·Î 335 (¼ºµ¿µ¿))

Àαٳ«ÂûÅë°è

±â°£ ¸Å°¢°Ç¼ö Æò±Õ°¨Á¤°¡
Æò±Õ¸Å°¢°¡
¸Å°¢°¡À²
Æò±ÕÀ¯Âû¼ö
3°³¿ù 29°Ç 1,414,605,127¿ø
709,328,603¿ø
50%
2.8ȸ
6°³¿ù 54°Ç 1,412,020,529¿ø
736,124,146¿ø
45%
3.2ȸ
12°³¿ù 98°Ç 1,396,771,976¿ø
763,862,283¿ø
47%
3ȸ


º» °æ¸ÅÁ¤º¸´Â ¹ý¿øÀÚ·á¿Í ÀÏÄ¡Çϵµ·Ï ÇÏ¿´À¸³ª ±Ç¸®»çÇ׺¯µ¿, ÀÔ·ÂÂø¿À µîÀÇ ¿øÀÎÀ¸·Î »ç½Ç°ú ´Ù¸¦ ¼ö ÀÖ½À´Ï´Ù. ÀÌ¿ë¾à°ü¿¡ ÀǰЏéÃ¥Á¶°ÇÀ¸·Î Á¦°øµÊÀ» ¾Ë¸®¸ç, °æ¸ÅÀÔÂû½Ã ¹Ýµå½Ã °ü·Ã °øºÎ¸¦ ÀçÈ®ÀÎÇϽñ⠹ٶø´Ï´Ù. º¸´Ù Æí¸®ÇÑ °æ¸ÅÁ¤º¸ Á¦°øÀ» À§ÇØ Áö¼ÓÀûÀ¸·Î °³¼±ÇϰڽÀ´Ï´Ù. ÀÌ¿ëÇØ Áּż­ °¨»çÇÕ´Ï´Ù.