·Î±×ÀÎ
56
¾ÆÆÄÆ®
ÀÇÁ¤ºÎÁö¹æ¹ý¿ø °í¾çÁö¿ø
 °¨Á¤°¡347,000,000 ¿ø
 ÃÖÀú°¡(100%) 347,000,000 ¿ø
 º¸Áõ±Ý(10%) 34,700,000 ¿ø
 Ã»±¸¾×89,727,956 ¿ø
°æ±âµµ ÆÄÁֽà ¸ñµ¿µ¿ 2-110 ÇØ¼Ö¸¶À»3´ÜÁö ¿îÁ¤Çö´ë¾ÆÆÄÆ® 301µ¿ 8Ãþ804È£
»ç°Ç¹øÈ£ 2025Ÿ°æ64616
Áߺ¹»ç°ÇÁߺ¹ 2026Ÿ°æ60272,
°æ¸ÅÁ¾·ùºÎµ¿»êÀÓÀǰæ¸Å
¸Å°¢´ë»óÅäÁö ¹× °Ç¹°Àϰý ¸Å°¢
¸Å°¢±âÀÏ    2026.04.21(È­) 10:00 ÀÔÂû 11ÀÏÀü    
ÅäÁö¸éÀû50.60§³(15.31 Æò)
°Ç¹°¸éÀû84.99§³(25.71 Æò)
乫/¼ÒÀ¯ÀÚÁ¤OO / Á¤OO
ä±ÇÀÚÁÖOOO OOOO¿Ü 1¸í
ÆäÀ̽ººÏ Æ®À§ÅÍ ±¸±Û+
īī¿À½ºÅ丮
īī¿ÀÅå sms¹®ÀÚº¸³»±â
 

±âÀϳ»¿ª

°æ°ú ³¯Â¥ Àú°¨ ÃÖÀú°¡ °á°ú
Á¢¼öÀÏ 2025-10-30 °æ¸ÅÁ¢¼ö
~8ÀÏ 
2025-11-07 °æ¸Å°³½Ã°áÁ¤
~102ÀÏ 
2026-02-09 ¹è´ç¿ä±¸Á¾±âÀÏ
~173ÀÏ 
2026-04-21 100%
347,000,000
ÁøÇà
¹°°Ç¸í¼¼¼­ ÇöȲÁ¶»ç¼­ ¹®°ÇÁ¢¼ö ¼Û´Þ³»¿ª

°¨Á¤Æò°¡ÇöȲ

¸ñ·Ï ÁÖ¼Ò ±¸Á¶/¿ëµµ/´ëÁö±Ç ¸éÀû ºñ°í
´ëÁö±Ç
¸ñµ¿µ¿ 2-110 70468ºÐÀÇ 50.5976 50.5976 §³
(15.31Æò)
°Ç¹°
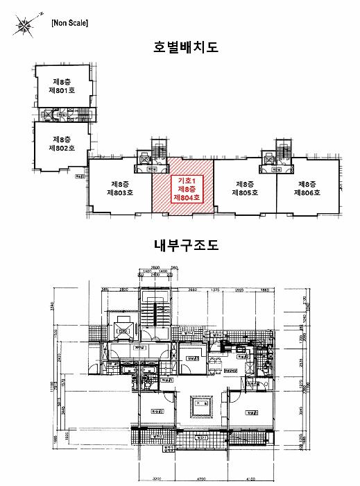
¸ñµ¿µ¿ 2-110 301µ¿ 8Ãþ804È£ ö±ÙÄÜÅ©¸®Æ®º®½Ä±¸Á¶ 84.993 §³
(25.71Æò)
1) À§Ä¡/Á¦3Á¾ÀϹÝÁÖ°ÅÁö¿ª/ÅäÁö°Å·¡°è¾à¿¡°üÇÑÇã°¡±¸¿ª/¹ö½ºÁ¤·ùÀå/°æ»çÁöºØ ´õº¸±â
°¨Á¤Æò°¡ ¿äÇ×Ç¥
1)À§Ä¡ ¹× ÁÖÀ§È¯°æ
´ë»ó¹°°ÇÀº °æ±âµµ ÆÄÁֽà ¸ñµ¿µ¿ ¼ÒÀç ¡¸ÇؼÖÁßÇб³¡¹ ³²µ¿Ãø Àαٿ¡ À§Ä¡Çϸç, ÀαÙÀº ¾ÆÆÄÆ®, ±Ù¸°»ýȰ½Ã¼³ µîÀÌ ¼ÒÀçÇÏ´Â Áö¿ªÀ¸·Î ÁÖÀ§È¯°æÀº º¸ÅëÀÓ
2)±³Åë»óȲ
´ë»ó¹°°Ç±îÁö Â÷·® ÁøÃâÀÔ °¡´ÉÇϸç, Àαٿ¡ ¹ö½ºÁ¤·ùÀåÀÌ ¼ÒÀçÇÏ´Â µî ±³Åë»óȲÀº º¸ÅëÀÓ
3)°Ç¹°ÀÇ ±¸Á¶
ö±ÙÄÜÅ©¸®Æ®º®½ÄÁ¶ °æ»çÁöºØ 20Ãþ °Ç¹°·Î¼­ Á¦301µ¿ Á¦8Ãþ Á¦804È£ ÀÓ (»ç¿ë½ÂÀÎÀÏ : 2001.06.09) ¿Üº® : ¸ôÅ» À§ ÆäÀÎÆ® ¸¶°¨ µî âȣ : »õ½Ãâȣ µî
4)ÀÌ¿ë»óÅÂ
´ë»ó¹°°ÇÀº ÁýÇÕ°ÇÃ๰´ëÀå »ó¡¸¾ÆÆÄÆ®¡¹·Î ÀÌ¿ëÁßÀÓ
5)¼³ºñ³»¿ª
À§»ý ¹× ±Þ¹è¼ö¼³ºñ, ³­¹æ¼³ºñ, ¼ÒÈ­Àü¼³ºñ µî ¼Ò¹æ¼³ºñ ¹× E/V¼³ºñ µî µÇ¾î ÀÖÀ½
6)ÅäÁöÀÇ Çü»ó ¹× ÀÌ¿ë»óÅÂ
´ë»ó¹°°Ç ¼ÒÀç ÅäÁö´Â ÀÎÁ¢ ÅäÁö ´ëºñ µî°í ÆòźÇÑ ºÎÁ¤Çü ÅäÁö·Î¼­ ¡¸¾ÆÆÄÆ®¡¹ °ÇºÎÁö ÀÓ
7)ÀÎÁ¢ µµ·Î»óŵî
ºÏ¼­Ãø ¹× ³²µ¿Ãø ÁøÃâÀÔ ´ÜÁö³» µµ·Î°¡ ¿Ü°û°øµµ¿Í ¿¬°èµÊ
8)ÅäÁöÀÌ¿ë°èȹ ¹× Á¦ÇÑ»óÅÂ
Á¦3Á¾ÀϹÝÁÖ°ÅÁö¿ª , Áß·Î2·ù(Æø 15m~20m)(ÆÄÁÖ¿îÁ¤Áö±¸.)(Á¢ÇÕ) , Áß·Î3·ù(Æø 12m~15m)(ÆÄÁÖ¿îÁ¤Áö±¸.)(Á¢ÇÕ) °¡Ãà»çÀ°Á¦Çѱ¸¿ª(ÀüºÎÁ¦Çѱ¸¿ª)<°¡ÃàºÐ´¢ÀÇ °ü¸® ¹× À̿뿡 °üÇÑ ¹ý·ü>, »ó´ëº¸È£±¸¿ª(2015-02-25)(ÆÄÁÖ¿îÁ¤Áö±¸)<±³À°È¯°æ º¸È£¿¡ °üÇÑ ¹ý·ü>, »ó´ëº¸È£±¸¿ª(2024-12-10)(2024.12.10)<±³À°È¯°æ º¸È£¿¡ °üÇÑ ¹ý·ü>, »ó´ëº¸È£±¸¿ª(ÇØ¼ÖÁßÇб³, ¹Ýµå½Ã ÆÄÁÖ±³À°Áö¿øÃ»¿¡ ÀçÈ®ÀÎ ¹Ù¶÷,TEL 031-940-7245)<±³À°È¯°æ º¸È£¿¡ °üÇÑ ¹ý·ü>, Àý´ëº¸È£±¸¿ª(2024-12-10)(2024.12.10)<±³À°È¯°æ º¸È£¿¡ °üÇÑ ¹ý·ü> ÅäÁö°Å·¡°è¾à¿¡°üÇÑÇã°¡±¸¿ª(25.8.26~26.8.25 ¿Ü±¹ÀÎ µîÀÇ ´Üµ¶ÁÖÅÃ, ´Ù°¡±¸ÁÖÅÃ, ¾ÆÆÄÆ®, ¿¬¸³ÁÖÅÃ, ´Ù¼¼´ëÁÖÅÃ)
9)°øºÎ¿ÍÀÇ Â÷ÀÌ
¾øÀ½
10)±âŸÂü°í»çÇ×(ÀÓ´ë°ü·Ê ¹× ±âŸ)
ÀÓ´ë°ü°è µî ¹Ì»óÀÓ
Âü°í
»çÇ×

-ö±ÙÄÜÅ©¸®Æ®º®½ÄÁ¶ °æ»çÁöºØ 20Ãþ ¾ÆÆÄÆ®

°ÇÃ๰ÇöȲ

¼ÒÀçÁö °æ±âµµ ÆÄÁֽà ¸ñµ¿µ¿ 2-110¹øÁö
´ëÁö¸éÀû   ¿¬¸éÀû 3677.32§³
(1114.34Æò)
°ÇÃà¸éÀû 278.602§³
(84.42Æò)
¿ëÀû·ü»êÁ¤
¿¬¸éÀû
3677.32§³
(1114.34Æò)
°ÇÆóÀ²   ¿ëÀû·ü  
Áö»óÃþ¼ö 18Ãþ ÁöÇÏÃþ¼ö  
ÁÖ¿ëµµ °øµ¿ÁÖÅà ±¸Á¶ ö±ÙÄÜÅ©¸®Æ®±¸Á¶
Âø°øÀÏÀÚ 1999.03.16 »ç¿ë½ÂÀÎÀÏÀÚ 2001.06.09
°ÇÃ๰Ãþº°ÇöȲ [º¸±â]


±¹ÅäºÎ½Ç°Å·¡°¡ °æ±âµµ ÆÄÁֽà ¸ñµ¿µ¿

¡Ü ¸Å¸Å

¸éÀû(§³), ±Ý¾×(¸¸¿ø)

¡Ü Àü¼¼

¸éÀû(§³), ±Ý¾×(¸¸¿ø)

°è¾àÀÏARTÃþÀü¿ëº¸Áõ±Ý¿ù¼¼°ÇÃà
26.03.30ÇØ¼Ö¸¶À»3´ÜÁö¿îÁ¤Çö´ë984.99328,05002001
26.03.28ÇØ¼Ö¸¶À»3´ÜÁö¿îÁ¤Çö´ë1359.99821,50002001
26.03.23ÇØ¼Ö¸¶À»3´ÜÁö¿îÁ¤Çö´ë1184.9932,0001202001
26.03.19ÇØ¼Ö¸¶À»3´ÜÁö¿îÁ¤Çö´ë9104.0228,00002001
26.03.13ÇØ¼Ö¸¶À»3´ÜÁö¿îÁ¤Çö´ë16104.0225,00002001
¢Ñ ´õº¸±â

µî±âºÎµîº» ¿ä¾à(°Ç¹°)

  Á¢¼öÀÏÀÚ µî±â¸ñÀû/±Ç¸®ÀÚ ±Ç¸®±Ý¾× ±âÁØ
1 2013³â5¿ù22ÀÏ
¼ÒÀ¯±Ç
Á¤OO
¼Ò¸ê
2 2021³â6¿ù2ÀÏ
±ÙÀú´ç±Ç
ÇÑOOOO
240,000,000 ¼Ò¸ê±âÁØ
3 2022³â7¿ù19ÀÏ
±ÙÀú´ç±Ç
(OOOO
101,400,000 ¼Ò¸ê
4 2025³â4¿ù28ÀÏ
°¡¾Ð·ù
(OOOO
58,323,092 ¼Ò¸ê
5 2025³â11¿ù10ÀÏ
ÀÓÀǰæ¸Å
(OOOO
¼Ò¸ê
6 2026³â1¿ù30ÀÏ
ÀÓÀǰæ¸Å
ÇÑOOOO
¼Ò¸ê

ÀÓÂ÷ÀÎÇöȲ (¹è´ç¿ä±¸Á¾±âÀÏ: 2026-02-09)



¸Å°¢±âÀÏ 7ÀÏÀü¿¡ °ø°íµÇ¿À´Ï È®ÀÎÇϽñ⠹ٶø´Ï´Ù.


¾ÆÆÄÆ® Á¤º¸ Çö´ë1Â÷

ÁÖ¼Ò °æ±â ÆÄÁֽà ¸ñµ¿µ¿ 2-110
½Ã°ø»ç Çö´ë»ê¾÷°³¹ß ´ÜÁö±Ô¸ð 6°³µ¿ 1274°¡±¸(16°³µ¿)¼¼´ë
³­¹æ °³º°/µµ½Ã°¡½º »ç¿ë½ÂÀÎ 2001-06
°ü¸®¼Ò 031)948-6911
Àü¿ë¸éÀû 59~158 ¼¼´ë¼ö 1274°¡±¸(16°³µ¿)
´ëÁö±Ç
Çö°ü/±¸Á¶ °è´Ü½Ä / ¹æ, ¿å½Ç
  • Çб³ Áö»êÃÊ, ¿Íµ¿ÃÊ,Áö»êÁß,
  • ÁÖº¯½Ã¼³ °æÀǼ± ¿îÁ¤¿ª
  • ´ëÁß±³Åë 310 Áö¹æµµ·Î,ÀÚÀ¯·Î,ÀÌ»êÆ÷I.C ÀÎÁ¢

¿©ÀÇÁÖ°æ¸Å Á¶¾ð ÇÑ ¸¶µð

ÃëÇÏ ¶Ç´Â Ãë¼ÒµÉ °¡´É¼ºÀº ÀÖÀ¸³ª ±×´ë·Î ÁøÇàµÉ °¡´É¼ºµµ ¸¹½À´Ï´Ù
¼±Çà°æ¸Å¸¦ ½ÅûÇÑ Ã¤±ÇÀÚ°¡ ¹è´ç ¹Þ¾Æ¾ß ÇÒ ±Ý¾×Àº 89,727,956¿øÀ¸·Î °¨Á¤°¡°Ý ´ëºñ »ó´çÈ÷ ÀûÀº ±Ý¾×À̼­ °æ¸Å°¡ ÃëÇϵǰųª Ãë¼Ò µÉ °¡´É¼ºÀÌ ÀÖ½À´Ï´Ù. ±×·±µ¥ ÈÄÇà°æ¸Å »ç°Ç (Áߺ¹ 2026Ÿ°æ60272,)ÀÌ À־ ÃëÇÏ,Ãë¼ÒµÇÁö ¾Ê°í ÁøÇàµÉ °¡´É¼ºµµ ¸¹½À´Ï´Ù.

ÁÖÀÇ»çÇ× (ÃÖ¼±¼øÀ§ ¼³Á¤ÀÏ: 2021.6.2. ±ÙÀú´ç±Ç ¼³Á¤)

¸Å°¢À¸·Î ¼Ò¸êµÇÁö ¾Ê´Â µî±âºÎ±Ç¸®:
¸Å°¢À¸·Î ¼³Á¤µÈ °ÍÀ¸·Î º¸´Â Áö»ó±Ç:
¡Ø¹Ì³³°ü¸®ºñ(°ø¿ë) Àμö¿©ºÎ¸¦ ÀÔÂû Àü¿¡ È®ÀÎÇϽñ⠹ٶø´Ï´Ù

 

Áö¿ªºÐ¼®

ÁöÇÏö¸í Á÷¼±°Å¸®

Çб³¸í ÀüÈ­¹øÈ£ ÁÖ¼Ò Á÷¼±°Å¸®

¹ý¿ø

ÀÇÁ¤ºÎÁö¹æ¹ý¿ø °í¾çÁö¿ø (104-13)°æ±âµµ °í¾ç½Ã Àϻ굿±¸ Àå¹é·Î 209
´ëÇ¥ : 031)920-6114, ¾ß°£ : 031)920-6550, ÆÑ½º : 031)920-6119
°üÇÒÁö¿ª : °í¾ç½Ã, ÆÄÁÖ½Ã

µî±â¼Ò ÀÇÁ¤ºÎÁö¹æ¹ý¿ø °í¾çÁö¿ø ÆÄÁÖµî±â¼Ò (´ëÇ¥:1544-0773, ÆÑ½º:(031)945-4764, 3628, °æ±âµµ ÆÄÁֽà ±ÝÁ¤·Î 45 (±ÝÃ̵¿ 947-28))
¼¼¹«¼­ ÆÄÁÖ¼¼¹«¼­ (´ëÇ¥:031-956-02, ÆÑ½º:031-957-0315, °æ±âµµ ÆÄÁֽà ±Ý¸ª¿ª·Î 62 (±ÝÃ̵¿))

Àαٳ«ÂûÅë°è

±â°£ ¸Å°¢°Ç¼ö Æò±Õ°¨Á¤°¡
Æò±Õ¸Å°¢°¡
¸Å°¢°¡À²
Æò±ÕÀ¯Âû¼ö
3°³¿ù 21°Ç 508,285,714¿ø
382,826,362¿ø
74%
1.4ȸ
6°³¿ù 49°Ç 477,255,102¿ø
375,393,918¿ø
78%
1.2ȸ
12°³¿ù 97°Ç 482,396,907¿ø
396,311,354¿ø
82%
1.1ȸ


º» °æ¸ÅÁ¤º¸´Â ¹ý¿øÀÚ·á¿Í ÀÏÄ¡Çϵµ·Ï ÇÏ¿´À¸³ª ±Ç¸®»çÇ׺¯µ¿, ÀÔ·ÂÂø¿À µîÀÇ ¿øÀÎÀ¸·Î »ç½Ç°ú ´Ù¸¦ ¼ö ÀÖ½À´Ï´Ù. ÀÌ¿ë¾à°ü¿¡ ÀǰЏéÃ¥Á¶°ÇÀ¸·Î Á¦°øµÊÀ» ¾Ë¸®¸ç, °æ¸ÅÀÔÂû½Ã ¹Ýµå½Ã °ü·Ã °øºÎ¸¦ ÀçÈ®ÀÎÇϽñ⠹ٶø´Ï´Ù. º¸´Ù Æí¸®ÇÑ °æ¸ÅÁ¤º¸ Á¦°øÀ» À§ÇØ Áö¼ÓÀûÀ¸·Î °³¼±ÇϰڽÀ´Ï´Ù. ÀÌ¿ëÇØ Áּż­ °¨»çÇÕ´Ï´Ù.