·Î±×ÀÎ
60
´Ù¼¼´ë(ºô¶ó)
ÀÎõÁö¹æ¹ý¿ø
 °¨Á¤°¡90,000,000 ¿ø
 ÃÖÀú°¡(100%) 90,000,000 ¿ø
 º¸Áõ±Ý(10%) 9,000,000 ¿ø
 Ã»±¸¾×105,000,000 ¿ø
ÀÎõ±¤¿ª½Ã ³²µ¿±¸ °£¼®µ¿ 37-509 4Ãþ401È£
»ç°Ç¹øÈ£ 2025Ÿ°æ513930
°æ¸ÅÁ¾·ùºÎµ¿»ê°­Á¦°æ¸Å
¸Å°¢´ë»óÅäÁö ¹× °Ç¹°Àϰý ¸Å°¢
¸Å°¢±âÀÏ    2026.04.20(¿ù) 10:00 ÀÔÂû 12ÀÏÀü    
ÅäÁö¸éÀû13.70§³(4.14 Æò)
°Ç¹°¸éÀû43.83§³(13.26 Æò)
乫/¼ÒÀ¯ÀÚ¿ÀOO / ¿ÀOO
ä±ÇÀÚÁÖOOOOOOO
ÆäÀ̽ººÏ Æ®À§ÅÍ ±¸±Û+
īī¿À½ºÅ丮
īī¿ÀÅå sms¹®ÀÚº¸³»±â
 

±âÀϳ»¿ª

°æ°ú ³¯Â¥ Àú°¨ ÃÖÀú°¡ °á°ú
Á¢¼öÀÏ 2025-11-13 °æ¸ÅÁ¢¼ö
~1ÀÏ 
2025-11-14 °æ¸Å°³½Ã°áÁ¤
~71ÀÏ 
2026-01-23 ¹è´ç¿ä±¸Á¾±âÀÏ
~158ÀÏ 
2026-04-20 100%
90,000,000
ÁøÇà
¹°°Ç¸í¼¼¼­ ÇöȲÁ¶»ç¼­ ¹®°ÇÁ¢¼ö ¼Û´Þ³»¿ª

°¨Á¤Æò°¡ÇöȲ

¸ñ·Ï ÁÖ¼Ò ±¸Á¶/¿ëµµ/´ëÁö±Ç ¸éÀû ºñ°í
´ëÁö±Ç
°£¼®µ¿ 37-509 137ºÐÀÇ 13.7 13.7 §³
(4.14Æò)
°Ç¹°
°£¼®µ¿ 37-509 4Ãþ401È£ ö±ÙÄÜÅ©¸®Æ®Á¶ 43.83 §³
(13.26Æò)
1) À§Ä¡/Á¦2Á¾ÀϹÝÁÖ°ÅÁö¿ª/ÅäÁö°Å·¡°è¾à¿¡°üÇÑÇã°¡±¸¿ª/³ë¼±¹ö½º Á¤·ùÀå/ö±ÙÄÜÅ©¸®Æ®Á¶/½½·¡ºêÁöºØ/µµ½Ã°¡½º ´õº¸±â
°¨Á¤Æò°¡ ¿äÇ×Ç¥
1)À§Ä¡ ¹× ÁÖÀ§È¯°æ
º»°ÇÀº ÀÎõ±¤¿ª½Ã ³²µ¿±¸ °£¼®µ¿ ¼ÒÀç '°£¼®3µ¿ÇàÁ¤º¹Áö¼¾ÅÍ' ³²µ¿Ãø Àαٿ¡ À§Ä¡Çϸç ÁÖÀ§´Â ¾ÆÆÄÆ®, ´Ù¼¼´ëÁÖÅÃ, Çб³, ±Ù¸°»ýȰ½Ã¼³ µîÀÌ È¥ÀçÇÏ´Â ¹ÐÁýµÈ °øµ¿ÁÖÅà Áö´ë ³» ¼ÒÀçÇÔ.
2)±³Åë»óȲ
º»°Ç±îÁö Â÷·®ÀÇ Á¢±ÙÀÌ ¿ëÀÌÇϰí Àαٿ¡ ³ë¼±¹ö½º Á¤·ùÀåÀÌ ¼ÒÀçÇÏ´Â µî ´ëÁß±³Åë»çÁ¤Àº º¸ÅëÀÓ.
3)°Ç¹°ÀÇ ±¸Á¶
ö±ÙÄÜÅ©¸®Æ®Á¶ ½½·¡ºêÁöºØ 4Ãþ Áß 4Ãþ 401È£·Î¼­, (»ç¿ë½ÂÀÎÀÏ:1995.11.21) ¿Üº®: ½Ã¸àÆ®¸ôÅ»À§ ÆäÀÎÆ® ¸¶°¨ µî, ³»º®: º®Áöµµ¹è ¹× ŸÀϸ¶°¨ µî, âȣ: »õ½ÃâÀÓ.
4)ÀÌ¿ë»óÅÂ
´Ù¼¼´ëÁÖÅÃÀ¸·Î ÀÌ¿ëÁßÀÓ.
5)¼³ºñ³»¿ª
À§»ý¼³ºñ, ±Þ¹è¼ö¼³ºñ, ³­¹æ¼³ºñ, µµ½Ã°¡½º¼³ºñ µîÀÌ µÇ¾îÀÖÀ½.
6)ÅäÁöÀÇ Çü»ó ¹× ÀÌ¿ë»óÅÂ
ÀÚüÁö¹Ý ÆòźÇÏ°Ô Á¶¼ºÇÑ »ç´Ù¸®Çü ¿Ï°æ»çÁö·Î¼­ °øµ¿ÁÖÅÃ¿ë °ÇºÎÁö·Î ÀÌ¿ëÁßÀÓ.
7)ÀÎÁ¢ µµ·Î»óŵî
º»°Ç ºÏÃøÀ¸·Î Æø5¹ÌÅÍ ³»¿Ü Æ÷Àåµµ·Î¿¡ Á¢ÇÔ.
8)ÅäÁöÀÌ¿ë°èȹ ¹× Á¦ÇÑ»óÅÂ
Á¦2Á¾ÀϹÝÁÖ°ÅÁö¿ª,°¡Ãà»çÀ°Á¦Çѱ¸¿ª(2013-03-08)((¹®ÀÇ:³²µ¿±¸È¯°æº¸Àü°ú 032-453-2343))<°¡ÃàºÐ´¢ÀÇ °ü¸® ¹× À̿뿡 °üÇÑ ¹ý·ü>, °ú¹Ð¾ïÁ¦±Ç¿ª<¼öµµ±ÇÁ¤ºñ°èȹ¹ý>,ÅäÁö°Å·¡°è¾à¿¡°üÇÑÇã°¡±¸¿ª(2025-08-21)((¿Ü±¹ÀÎ µî¿¡ ÇÑÇÔ, ´ë»ó: ´Üµ¶, ´Ù°¡±¸, ¾ÆÆÄÆ®, ¿¬¸³, ´Ù¼¼´ë(ÁöÁ¤±â°£: 2025. 08. 26. ~ 2026. 08. 25.))).
9)°øºÎ¿ÍÀÇ Â÷ÀÌ
¾ø À½.
10)±âŸÂü°í»çÇ×(ÀÓ´ë°ü·Ê ¹× ±âŸ)
-ÀÓ´ë°ü°è: ¹Ì»óÀÓ. -±âŸ: ³»ºÎÇöȲÀº °ÅÁÖÀÎ Æó¹®ºÎÀç·Î ÀÎÇÏ¿© À°¾ÈÀ¸·Î È®ÀÎÇÏÁö ¸øÇÏ¿´À¸³ª, ¾Æ·§Ãþ 301È£¿¡¼­ ´©¼ö·Î ÀÎÇÑ ÇÇÇØ¸¦ È£¼ÒÇϰí Àִ¹٠°æ¸ÅÀÔÂû½Ã À¯ÀÇÇϽñ⠹ٶ÷.
Âü°í
»çÇ×
-¿Üº®¿¡ 'ÀÌÈ­ºô¶ó 6µ¿'À¸·Î Ç¥½ÃµÊ -Çö°ü¹®¿¡ '¾Æ·¡Ãþ 301È£ÀÇ ´©¼ö°ü·Ã ÂÊÁö' ¹× '¹ëºêÀá±Ý ´Ü¼ö¾È³»'°¡ ºÙ¾î ÀÖÀ½
º»°ÇÀº ºô¶ó ÁÖ°ÅÁö¿ª¿¡ À§Ä¡ÇÏ¸ç ¿Üº®¿¡ `ÀÌÈ­ºô¶ó 6µ¿`À¸·Î Ç¥½ÃµÊ Çö°ü¿¡ ´©¼ö°ü°è·Î ¿¬¶ôÀ» ¿äÇÑ´Ù´Â ¾Æ·¡Ãþ °ÅÁÖÀÚÀÇ ÂÊÁö°¡ ºÙ¾î ÀÖ¾úÀ½

°ÇÃ๰ÇöȲ

¼ÒÀçÁö ÀÎõ±¤¿ª½Ã ³²µ¿±¸ °£¼®µ¿ 37-509¹øÁö
´ëÁö¸éÀû 137§³
(41.52Æò)
¿¬¸éÀû 485.95§³
(147.26Æò)
°ÇÃà¸éÀû 104.07§³
(31.54Æò)
¿ëÀû·ü»êÁ¤
¿¬¸éÀû
391.52§³
(118.64Æò)
°ÇÆóÀ² 75.96% ¿ëÀû·ü 285.78%
Áö»óÃþ¼ö 4Ãþ ÁöÇÏÃþ¼ö 1Ãþ
ÁÖ¿ëµµ °øµ¿ÁÖÅà ±¸Á¶ ö±ÙÄÜÅ©¸®Æ®±¸Á¶
Âø°øÀÏÀÚ 1995.02.12 »ç¿ë½ÂÀÎÀÏÀÚ 1995.11.21
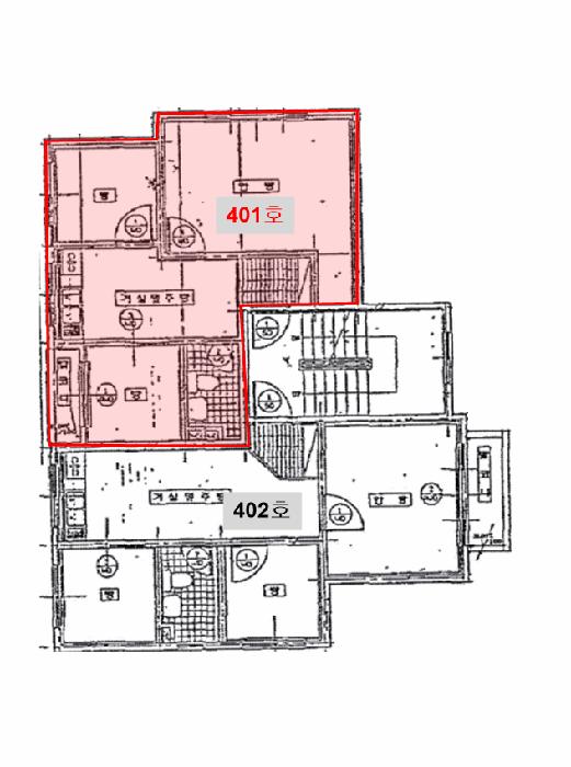
°ÇÃ๰Ãþº°ÇöȲ [º¸±â]


±¹ÅäºÎ½Ç°Å·¡°¡ ÀÎõ±¤¿ª½Ã ³²µ¿±¸ °£¼®µ¿

¡Ü ¸Å¸Å

¸éÀû(§³), ±Ý¾×(¸¸¿ø)

¡Ü Àü¼¼

¸éÀû(§³), ±Ý¾×(¸¸¿ø)

°è¾àÀϰǹ°¸íĪÃþ¿¬¸éÀûº¸Áõ±Ý¿ù¼¼°ÇÃà
26.03.30¼¼Á¾Äɽ½1068.8218,00002017
26.03.28Å¿µºô¶ó(°¡µ¿)237.51,000451992
26.03.28º¹ÁöÇÏÀÌÃ÷ºô¶ó335.39100401996
26.03.28»õÇѺô¶ó(2µ¿)236.286,8001990
26.03.27»ó¿ì¾ÆÆ®ºô473.110,70002002
¢Ñ ´õº¸±â

µî±âºÎµîº» ¿ä¾à(°Ç¹°)

  Á¢¼öÀÏÀÚ µî±â¸ñÀû/±Ç¸®ÀÚ ±Ç¸®±Ý¾× ±âÁØ
1 2022³â7¿ù26ÀÏ
¼ÒÀ¯±Ç
¿ÀOO
¼Ò¸ê
2 2023³â2¿ù7ÀÏ
¾Ð·ù
±¹
¼Ò¸ê±âÁØ
3 2024³â6¿ù24ÀÏ
ÀÓÂ÷±Ç¼³Á¤
¼ÛOO
105,000,000 ¼Ò¸ê
4 2025³â11¿ù14ÀÏ
°­Á¦°æ¸Å
ÁÖOOOO
¼Ò¸ê
5 2025³â11¿ù14ÀÏ
¾Ð·ù
±¹
¼Ò¸ê

ÀÓÂ÷ÀÎÇöȲ (¹è´ç¿ä±¸Á¾±âÀÏ: 2026-01-23)



¸Å°¢±âÀÏ 7ÀÏÀü¿¡ ¸Å°¢¹°°Ç¸í¼¼¼­°¡ °ø°íµÇ¿À´Ï È®ÀÎÇϽñ⠹ٶø´Ï´Ù.

ÀÓÂ÷ÀÎ ¿ëµµ/Á¡À¯ º¸Áõ±Ý/¿ù¼¼ ´ëÇ×·Â
ÀüÀÔÀÏ/È®Á¤ÀÏ ¹è´ç¿ä±¸ ºñ°í
¼ÛOO ÀüºÎ 105,000,000
O
2022.07.05.
2022.05.27.
2022.07.05.
ÁÖOOOOOOOOOOOOOOOO ÀüºÎ 105,000,000
O
2022.07.05.
2022.05.27.
2026.1.2. 2022.07.05.~2024.07.30.
ºñ°í
(¸Å°¢¹°°Ç
¸í¼¼¼­)
¼ÛÁöÇö : ÁÖÅÃÀÓÂ÷±Çµî±â±Ç¸®Àڷμ­ ÁÖÅÃÀÓÂ÷±Çµî±âÀÏÀº 2024.6.24.ÀÓ ÁÖÅõµ½Ãº¸Áõ°ø»ç(ÀÓÂ÷ÀÎ:¼ÛÁöÇö) : ÀÓÂ÷ÀÎ ¼ÛÁöÇöÀÇ ÀÓÂ÷º¸Áõ±Ý¹Ýȯä±Ç ¾ç¼öÀÎÀ¸·Î¼­, º¸Áõ±Ý Àü¾×À» ¹è´ç¹ÞÁö ¸øÇÏ´õ¶óµµ

¿©ÀÇÁÖ°æ¸Å Á¶¾ð ÇÑ ¸¶µð

¼±¼øÀ§ ÀÓÂ÷±Çµî±â°¡ µÇ¾î ÀÖ½À´Ï´Ù
´ëÇ×·ÂÀÌ ÀÖ´Â ¼±¼øÀ§ ÀÓÂ÷±Çµî±â ±Ç¸®ÀÚ°¡ ¹è´çÀ» Àü¾× ¹ÞÁö ¸øÇÒ °æ¿ì ³«ÂûÀÚ°¡ ÀÜ¿© º¸Áõ±ÝÀ» ÀμöÇØ¾ßÇÏ´Â °æ¿ìµµ ÀÖ½À´Ï´Ù.

ÁÖÀÇ»çÇ× (ÃÖ¼±¼øÀ§ ¼³Á¤ÀÏ: 2023.02.07. ¾Ð·ù ¼³Á¤)

¸Å°¢À¸·Î ¼Ò¸êµÇÁö ¾Ê´Â µî±âºÎ±Ç¸®: À»±¸ ¼øÀ§ 9¹ø ÁÖÅÃÀÓÂ÷±Çµî±â(´Ù¸¸, ÁÖÅõµ½Ãº¸Áõ°ø»çÀÇ ¸»¼Òµ¿ÀÇ È®¾à¼­°¡ Á¦Ãâ µÊ)
¸Å°¢À¸·Î ¼³Á¤µÈ °ÍÀ¸·Î º¸´Â Áö»ó±Ç:
-¿Üº®¿¡ 'ÀÌÈ­ºô¶ó 6µ¿'À¸·Î Ç¥½ÃµÊ -Çö°ü¹®¿¡ '¾Æ·¡Ãþ 301È£ÀÇ ´©¼ö°ü·Ã ÂÊÁö' ¹× '¹ëºêÀá±Ý ´Ü¼ö¾È³»'°¡ ºÙ¾î ÀÖÀ½
¡Ø¹Ì³³°ü¸®ºñ(°ø¿ë) Àμö¿©ºÎ¸¦ ÀÔÂû Àü¿¡ È®ÀÎÇϽñ⠹ٶø´Ï´Ù

 

Áö¿ªºÐ¼®

ÁöÇÏö¸í Á÷¼±°Å¸®

Çб³¸í ÀüÈ­¹øÈ£ ÁÖ¼Ò Á÷¼±°Å¸®

¹ý¿ø

ÀÎõÁö¹æ¹ý¿ø (222-20)ÀÎõ±¤¿ª½Ã ¹ÌÃßȦ±¸ ¼Ò¼º·Î 163¹ø±æ 17(ÇÐÀ͵¿)
´ëÇ¥ : 032)860-1113~4
°üÇÒÁö¿ª : Áß±¸, µ¿±¸, ³²±¸, ¿¬¼ö±¸, ³²µ¿±¸, ºÎÆò±¸, °è¾ç±¸, ¼­±¸, ¿ËÁø±º, °­È­±º

µî±â¼Ò ÀÎõÁö¹æ¹ý¿ø º»¿ø µî±â±¹ (´ëÇ¥:1544-0773, ÆÑ½º:(032)620-9099, ÀÎõ±¤¿ª½Ã ¹ÌÃßȦ±¸ °æ¿ø´ë·Î 881(Á־ȵ¿ 983))
¼¼¹«¼­ ³²ÀÎõ¼¼¹«¼­ (´ëÇ¥:032-460-52, ÆÑ½º:032-463-5778, ÀÎõ±¤¿ª½Ã ³²µ¿±¸ ÀÎÇÏ·Î 548 (±¸¿ùµ¿))

Àαٳ«ÂûÅë°è

±â°£ ¸Å°¢°Ç¼ö Æò±Õ°¨Á¤°¡
Æò±Õ¸Å°¢°¡
¸Å°¢°¡À²
Æò±ÕÀ¯Âû¼ö
3°³¿ù 73°Ç 124,368,493¿ø
69,384,072¿ø
55%
2.4ȸ
6°³¿ù 148°Ç 124,143,243¿ø
72,001,060¿ø
57%
2.4ȸ
12°³¿ù 289°Ç 128,676,886¿ø
78,332,176¿ø
59%
2.2ȸ


º» °æ¸ÅÁ¤º¸´Â ¹ý¿øÀÚ·á¿Í ÀÏÄ¡Çϵµ·Ï ÇÏ¿´À¸³ª ±Ç¸®»çÇ׺¯µ¿, ÀÔ·ÂÂø¿À µîÀÇ ¿øÀÎÀ¸·Î »ç½Ç°ú ´Ù¸¦ ¼ö ÀÖ½À´Ï´Ù. ÀÌ¿ë¾à°ü¿¡ ÀǰЏéÃ¥Á¶°ÇÀ¸·Î Á¦°øµÊÀ» ¾Ë¸®¸ç, °æ¸ÅÀÔÂû½Ã ¹Ýµå½Ã °ü·Ã °øºÎ¸¦ ÀçÈ®ÀÎÇϽñ⠹ٶø´Ï´Ù. º¸´Ù Æí¸®ÇÑ °æ¸ÅÁ¤º¸ Á¦°øÀ» À§ÇØ Áö¼ÓÀûÀ¸·Î °³¼±ÇϰڽÀ´Ï´Ù. ÀÌ¿ëÇØ Áּż­ °¨»çÇÕ´Ï´Ù.