·Î±×ÀÎ
193
¿ÀÇǽºÅÚ
ÀÎõÁö¹æ¹ý¿ø
 °¨Á¤°¡115,000,000 ¿ø
 ÃÖÀú°¡(49%) 56,350,000 ¿ø
 º¸Áõ±Ý(10%) 5,635,000 ¿ø
 Ã»±¸¾×152,000,000 ¿ø
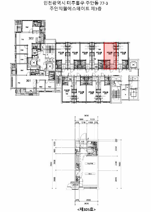
ÀÎõ±¤¿ª½Ã ¹ÌÃßȦ±¸ Á־ȵ¿ 77-3 ÁÖ¾ÈÁöÀ£¿¡½ºÅ×ÀÌÆ® 102µ¿ 3Ãþ¿ÀÇǽºÅÚ305È£
»ç°Ç¹øÈ£ 2025Ÿ°æ512707
°æ¸ÅÁ¾·ùºÎµ¿»ê°­Á¦°æ¸Å
¸Å°¢´ë»óÅäÁö ¹× °Ç¹°Àϰý ¸Å°¢
¸Å°¢±âÀÏ    2026.06.29(¿ù) 10:00 ÀÔÂû 33ÀÏÀü    
ÅäÁö¸éÀû4.56§³(1.38 Æò)
°Ç¹°¸éÀû23.27§³(7.04 Æò)
乫/¼ÒÀ¯ÀÚ¼ºOO / ¼ºOO
ä±ÇÀÚÁÖOOOOOOO
ÆäÀ̽ººÏ Æ®À§ÅÍ ±¸±Û+
īī¿À½ºÅ丮
īī¿ÀÅå sms¹®ÀÚº¸³»±â
 

±âÀϳ»¿ª

°æ°ú ³¯Â¥ Àú°¨ ÃÖÀú°¡ °á°ú
Á¢¼öÀÏ 2025-09-23 °æ¸ÅÁ¢¼ö
~1ÀÏ 
2025-09-24 °æ¸Å°³½Ã°áÁ¤
~63ÀÏ 
2025-11-25 ¹è´ç¿ä±¸Á¾±âÀÏ
~209ÀÏ 
2026-04-20 100%
115,000,000
À¯Âû
~241ÀÏ 
2026-05-22 70%
80,500,000
À¯Âû
~279ÀÏ 
2026-06-29 49%
56,350,000
ÁøÇà
¹°°Ç¸í¼¼¼­ ÇöȲÁ¶»ç¼­ ¹®°ÇÁ¢¼ö ¼Û´Þ³»¿ª

°¨Á¤Æò°¡ÇöȲ

¸ñ·Ï ÁÖ¼Ò ±¸Á¶/¿ëµµ/´ëÁö±Ç ¸éÀû ºñ°í
´ëÁö±Ç
Á־ȵ¿ 77-3 3633.7ºÐÀÇ 4.5611 4.5611 §³
(1.38Æò)
°Ç¹°
Á־ȵ¿ 77-3 102µ¿ 3Ãþ¿ÀÇǽºÅÚ305È£ ö±ÙÄÜÅ©¸®Æ®±¸Á¶ 23.2701 §³
(7.04Æò)
1) À§Ä¡/ÀϹݻó¾÷Áö¿ª/ÅäÁö°Å·¡°è¾à¿¡°üÇÑÇã°¡±¸¿ª/¹ö½ºÁ¤·ùÀå/ÁöÇÏö/Â÷·® Á¢±ÙÀÌ °¡´É/ö±ÙÄÜÅ©¸®Æ®±¸Á¶ ´õº¸±â
°¨Á¤Æò°¡ ¿äÇ×Ç¥
1)À§Ä¡ ¹× ÁÖÀ§È¯°æ
º»°ÇÀº ÀÎõ±¤¿ª½Ã ¹ÌÃßȦ±¸ Á־ȵ¿ ¼ÒÀç ÀÎõÁöÇÏö 2È£¼± ¡®½Ã¹Î°ø¿ø¿ª¡¯µ¿Ãø Àαٿ¡ À§Ä¡Çϸç, ÁÖÀ§´Â ¾÷¹«½Ã¼³, ±Ù¸°»ýȰ½Ã¼³, ´Ù¼¼´ëÁÖÅÃ, ¾ÆÆÄÆ® µîÀÌ È¥ÀçÇÏ´Â Áö´ëÀÓ.
2)±³Åë»óȲ
º»°Ç±îÁö Â÷·® Á¢±ÙÀÌ °¡´ÉÇϰí Àαٿ¡ ¹ö½ºÁ¤·ùÀå, ÁöÇÏö¿ª µîÀÌ ¼ÒÀçÇÏ¿© Á¦¹Ý ´ëÁß±³Åë ¿©°ÇÀº º¸ÅëÀÓ.
3)°Ç¹°ÀÇ ±¸Á¶
ö±ÙÄÜÅ©¸®Æ®±¸Á¶ (ö±Ù)ÄÜÅ©¸®Æ®ÆòÁöºØ Áö»ó34Ãþ °Ç¹° ³» Á¦3Ãþ Á¦305È£·Î¼­, ¿Üº® : ¼®ÀçºÙÀÓ, ¸ôŸ¸£ À§ ÆäÀÎÆÃ µî ¸¶°¨. âȣ : »þ½Ã âȣ µîÀÓ.
4)ÀÌ¿ë»óÅÂ
¾÷¹«½Ã¼³·Î ÀÌ¿ë ÁßÀÓ.
5)¼³ºñ³»¿ª
À§»ý¼³ºñ, ±Þ¹è¼ö¼³ºñ, ³­¹æ¼³ºñ, ¼Ò¹æ¼³ºñ, ½Â°­±â¼³ºñ µîÀ» ±¸ºñÇϰí ÀÖÀ½.
6)ÅäÁöÀÇ Çü»ó ¹× ÀÌ¿ë»óÅÂ
´ëü·Î »ç´Ù¸®ÇüÀÎ ÅäÁö·Î¼­ ¾÷¹«½Ã¼³ µîÀÇ °ÇºÎÁö·Î ÀÌ¿ë ÁßÀÓ.
7)ÀÎÁ¢ µµ·Î»óŵî
º»°ÇÀÌ ¼ÓÇÑ ´ëÁö´Â ºÏÃø, ¼­Ãø, ³²Ãø µµ·Î¿¡ Á¢Çϰí, º»°ÇÀÇ ÃâÀÔÀº º»°Ç ¼­Ãø ¹× ºÏÃø Æ÷Àåµµ·Î¸¦ ÀÌ¿ëÇÔ.
8)ÅäÁöÀÌ¿ë°èȹ ¹× Á¦ÇÑ»óÅÂ
ÀϹݻó¾÷Áö¿ª(2022-06-13), ¹æÈ­Áö±¸(2022-06-13), ½Ã°¡Áö°æ°üÁö±¸(2023-12-18), ´ë·Î1·ù(Æø 35m~40m)(2022-06-13)(Á¢ÇÕ) °¡Ãà»çÀ°Á¦Çѱ¸¿ª(ÀÎõ±¤¿ª½Ã ¹ÌÃßȦ±¸ °¡Ãà»çÀ°Á¦ÇÑ¿¡ °üÇÑ Á¶·Ê[2018. 7. 1.])<°¡ÃàºÐ´¢ÀÇ °ü¸® ¹× À̿뿡 °üÇÑ ¹ý·ü>, °ú¹Ð¾ïÁ¦±Ç¿ª<¼öµµ±ÇÁ¤ºñ°èȹ¹ý>, öµµº¸È£Áö±¸(2016-07-30)(½Ã öµµ°ú-552)<öµµ¾ÈÀü¹ý> ÅäÁö°Å·¡°è¾à¿¡°üÇÑÇã°¡±¸¿ª(2025-08-21)(¿Ü±¹ÀÎ µî¿¡ ÇÑÇÔ(ÁöÁ¤±â°£: 2025. 8. 26.~2026. 8. 25.)))
9)°øºÎ¿ÍÀÇ Â÷ÀÌ
ÇØ´ç»çÇ× ¾øÀ½.
10)±âŸÂü°í»çÇ×(ÀÓ´ë°ü·Ê ¹× ±âŸ)
ÀÓ´ë°ü°è ¹Ì»óÀÓ.
Âü°í
»çÇ×

´ë·Îº¯¿¡ Á¢ÇÑ 34Ãþ ¾÷¹«½Ã¼³(¿ÀÇǽºÅÚ

°ÇÃ๰ÇöȲ

¼ÒÀçÁö ÀÎõ±¤¿ª½Ã ¹ÌÃßȦ±¸ Á־ȵ¿ 77-3¹øÁö
´ëÁö¸éÀû 3633.7§³
(1101.12Æò)
¿¬¸éÀû 24947.2816§³
(7559.78Æò)
°ÇÃà¸éÀû 1018.3171§³
(308.58Æò)
¿ëÀû·ü»êÁ¤
¿¬¸éÀû
13271.6281§³
(4021.71Æò)
°ÇÆóÀ² 28.02% ¿ëÀû·ü 365.24%
Áö»óÃþ¼ö 35Ãþ ÁöÇÏÃþ¼ö 5Ãþ
ÁÖ¿ëµµ °øµ¿ÁÖÅà ±¸Á¶ ö±ÙÄÜÅ©¸®Æ®±¸Á¶
Âø°øÀÏÀÚ 2016.05.23 »ç¿ë½ÂÀÎÀÏÀÚ 2019.10.16
°ÇÃ๰Ãþº°ÇöȲ [º¸±â]


±¹ÅäºÎ½Ç°Å·¡°¡ ÀÎõ±¤¿ª½Ã ¹ÌÃßȦ±¸ Á־ȵ¿

¡Ü ¸Å¸Å

¸éÀû(§³), ±Ý¾×(¸¸¿ø)

¡Ü Àü¼¼

¸éÀû(§³), ±Ý¾×(¸¸¿ø)

°è¾àÀϰǹ°¸íĪÃþÀü¿ëº¸Áõ±Ý¿ù¼¼°ÇÃà
26.05.01ÁÖ¾È ÁöÀ£¿¡½ºÅ×ÀÌÆ®323.27500532019
26.04.27ÁÖ¾È ÁöÀ£¿¡½ºÅ×ÀÌÆ®1023.278,79002019
26.04.27ÁÖ¾È ÁöÀ£¿¡½ºÅ×ÀÌÆ®1223.27500602019
26.04.23ÁÖ¾È ÁöÀ£¿¡½ºÅ×ÀÌÆ®1623.27500602019
26.04.15ÁÖ¾È ÁöÀ£¿¡½ºÅ×ÀÌÆ®2223.27018,8002019
¢Ñ ´õº¸±â

µî±âºÎµîº» ¿ä¾à(°Ç¹°)

  Á¢¼öÀÏÀÚ µî±â¸ñÀû/±Ç¸®ÀÚ ±Ç¸®±Ý¾× ±âÁØ
1 2022³â4¿ù22ÀÏ
¼ÒÀ¯±Ç
¼ºOO
¼Ò¸ê
2 2023³â4¿ù10ÀÏ
¾Ð·ù
¹ÌOOO
¼Ò¸ê±âÁØ
3 2023³â11¿ù27ÀÏ
¾Ð·ù
ºÎOO
¼Ò¸ê
4 2024³â4¿ù24ÀÏ
ÀÓÂ÷±Ç¼³Á¤
¹ÚOO
152,000,000 ¼Ò¸ê
5 2024³â12¿ù2ÀÏ
¾Ð·ù
±¹
¼Ò¸ê
6 2025³â1¿ù16ÀÏ
¾Ð·ù
¿¬OO
¼Ò¸ê
7 2025³â9¿ù24ÀÏ
°­Á¦°æ¸Å
ÁÖOOOO
¼Ò¸ê

ÀÓÂ÷ÀÎÇöȲ (¹è´ç¿ä±¸Á¾±âÀÏ: 2025-11-25)

ÀÓÂ÷ÀÎ ¿ëµµ/Á¡À¯ º¸Áõ±Ý/¿ù¼¼ ´ëÇ×·Â
ÀüÀÔÀÏ/È®Á¤ÀÏ ¹è´ç¿ä±¸ ºñ°í
¹ÚOO ÀüºÎ 152,000,000
O
2022.04.01.
2022.03.11.
2022.04.01.
ÁÖOOOOOOOOOOOOOOOO ÀüºÎ 152,000,000
O
2022.04.01.
2022.03.11.
2025.11.17. 2022.04.01.~2024.06.10.
ºñ°í
(¸Å°¢¹°°Ç
¸í¼¼¼­)
¹Ú¼ö¾Æ : ÁÖÅÃÀÓÂ÷±Çµî±â±Ç¸®Àڷμ­ ÁÖÅÃÀÓÂ÷±Çµî±âÀÏÀº 2024.4.24.ÀÓ ÁÖÅõµ½Ãº¸Áõ°ø»ç(ÀÓÂ÷ÀÎ:¹Ú¼ö¾Æ) : ÀÓÂ÷ÀÎ ¹Ú¼ö¾ÆÀÇ ÀÓÂ÷º¸Áõ±Ý¹Ýȯä±Ç ¾ç¼öÀÎÀ¸·Î¼­, º¸Áõ±Ý Àü¾×À» ¹è´ç¹ÞÁö ¸øÇÏ´õ¶óµµ

¿©ÀÇÁÖ°æ¸Å Á¶¾ð ÇÑ ¸¶µð

¼±¼øÀ§ ÀÓÂ÷±Çµî±â°¡ µÇ¾î ÀÖ½À´Ï´Ù
´ëÇ×·ÂÀÌ ÀÖ´Â ¼±¼øÀ§ ÀÓÂ÷±Çµî±â ±Ç¸®ÀÚ°¡ ¹è´çÀ» Àü¾× ¹ÞÁö ¸øÇÒ °æ¿ì ³«ÂûÀÚ°¡ ÀÜ¿© º¸Áõ±ÝÀ» ÀμöÇØ¾ßÇÏ´Â °æ¿ìµµ ÀÖ½À´Ï´Ù.

ÁÖÀÇ»çÇ× (ÃÖ¼±¼øÀ§ ¼³Á¤ÀÏ: 2023.04.10. ¾Ð·ù ¼³Á¤)

¸Å°¢À¸·Î ¼Ò¸êµÇÁö ¾Ê´Â µî±âºÎ±Ç¸®: À»±¸ ¼øÀ§ 3¹ø ÁÖÅÃÀÓÂ÷±Çµî±â(´Ù¸¸, ÁÖÅõµ½Ãº¸Áõ°ø»çÀÇ ¸»¼Òµ¿ÀÇ È®¾à¼­°¡ Á¦Ãâ µÊ)
¸Å°¢À¸·Î ¼³Á¤µÈ °ÍÀ¸·Î º¸´Â Áö»ó±Ç:
¡Ø¹Ì³³°ü¸®ºñ(°ø¿ë) Àμö¿©ºÎ¸¦ ÀÔÂû Àü¿¡ È®ÀÎÇϽñ⠹ٶø´Ï´Ù

 

Áö¿ªºÐ¼®

ÁöÇÏö¸í Á÷¼±°Å¸®

Çб³¸í ÀüÈ­¹øÈ£ ÁÖ¼Ò Á÷¼±°Å¸®

¹ý¿ø

ÀÎõÁö¹æ¹ý¿ø (222-20)ÀÎõ±¤¿ª½Ã ¹ÌÃßȦ±¸ ¼Ò¼º·Î 163¹ø±æ 17(ÇÐÀ͵¿)
´ëÇ¥ : 032)860-1113~4
°üÇÒÁö¿ª : Áß±¸, µ¿±¸, ³²±¸, ¿¬¼ö±¸, ³²µ¿±¸, ºÎÆò±¸, °è¾ç±¸, ¼­±¸, ¿ËÁø±º, °­È­±º

µî±â¼Ò ÀÎõÁö¹æ¹ý¿ø º»¿ø µî±â±¹ (´ëÇ¥:1544-0773, ÆÑ½º:(032)620-9099, ÀÎõ±¤¿ª½Ã ¹ÌÃßȦ±¸ °æ¿ø´ë·Î 881(Á־ȵ¿ 983))
¼¼¹«¼­ ÀÎõ¼¼¹«¼­ (´ëÇ¥:032-770-02, ÆÑ½º:032-777-8104, ÀÎõ±¤¿ª½Ã µ¿±¸ ¿ì°¢·Î 75 (⿵µ¿))

Àαٳ«ÂûÅë°è

±â°£ ¸Å°¢°Ç¼ö Æò±Õ°¨Á¤°¡
Æò±Õ¸Å°¢°¡
¸Å°¢°¡À²
Æò±ÕÀ¯Âû¼ö
3°³¿ù 204°Ç 202,723,775¿ø
109,663,703¿ø
54%
2.3ȸ
6°³¿ù 466°Ç 203,927,361¿ø
119,976,715¿ø
59%
2.1ȸ
12°³¿ù 851°Ç 204,349,377¿ø
123,184,065¿ø
60%
2.2ȸ


º» °æ¸ÅÁ¤º¸´Â ¹ý¿øÀÚ·á¿Í ÀÏÄ¡Çϵµ·Ï ÇÏ¿´À¸³ª ±Ç¸®»çÇ׺¯µ¿, ÀÔ·ÂÂø¿À µîÀÇ ¿øÀÎÀ¸·Î »ç½Ç°ú ´Ù¸¦ ¼ö ÀÖ½À´Ï´Ù. ÀÌ¿ë¾à°ü¿¡ ÀǰЏéÃ¥Á¶°ÇÀ¸·Î Á¦°øµÊÀ» ¾Ë¸®¸ç, °æ¸ÅÀÔÂû½Ã ¹Ýµå½Ã °ü·Ã °øºÎ¸¦ ÀçÈ®ÀÎÇϽñ⠹ٶø´Ï´Ù. º¸´Ù Æí¸®ÇÑ °æ¸ÅÁ¤º¸ Á¦°øÀ» À§ÇØ Áö¼ÓÀûÀ¸·Î °³¼±ÇϰڽÀ´Ï´Ù. ÀÌ¿ëÇØ Áּż­ °¨»çÇÕ´Ï´Ù.