·Î±×ÀÎ
168
±Ù¸°»ó°¡
ÃáõÁö¹æ¹ý¿ø °­¸ªÁö¿ø
 °¨Á¤°¡847,000,000 ¿ø
 ÃÖÀú°¡(70%) 592,900,000 ¿ø
 º¸Áõ±Ý(10%) 59,290,000 ¿ø
 Ã»±¸¾×463,672,020 ¿ø
°­¿øÆ¯º°ÀÚÄ¡µµ µ¿Çؽà õ°îµ¿ 906-1 1,2Ãþ107È£
°­¿øÆ¯º°ÀÚÄ¡µµ µ¿Çؽà õ°îµ¿ 906-1
»ç°Ç¹øÈ£ 2025Ÿ°æ208
°æ¸ÅÁ¾·ùºÎµ¿»êÀÓÀǰæ¸Å
¸Å°¢´ë»óÅäÁö ¹× °Ç¹°Àϰý ¸Å°¢
¸Å°¢±âÀÏ    2026.06.01(¿ù) 10:00 ÀÔÂû 7ÀÏÀü    
ÅäÁö¸éÀû257.97§³(78.03 Æò)
°Ç¹°¸éÀû259.02§³(78.35 Æò)
乫/¼ÒÀ¯ÀÚ±èOO / ±èOO
ä±ÇÀÚ»ïOOOOOOOO
ÆäÀ̽ººÏ Æ®À§ÅÍ ±¸±Û+
īī¿À½ºÅ丮
īī¿ÀÅå sms¹®ÀÚº¸³»±â
 

±âÀϳ»¿ª

°æ°ú ³¯Â¥ Àú°¨ ÃÖÀú°¡ °á°ú
Á¢¼öÀÏ 2025-04-30 °æ¸ÅÁ¢¼ö
~2ÀÏ 
2025-05-02 °æ¸Å°³½Ã°áÁ¤
~98ÀÏ 
2025-08-06 ¹è´ç¿ä±¸Á¾±âÀÏ
~355ÀÏ 
2026-04-20 100%
847,000,000
À¯Âû
~397ÀÏ 
2026-06-01 70%
592,900,000
ÁøÇà
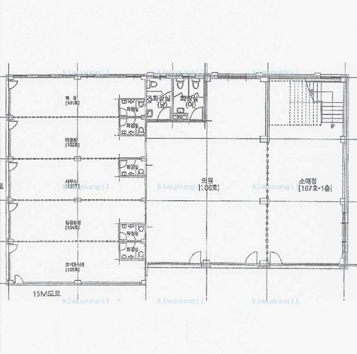
¹°°Ç¸í¼¼¼­ ÇöȲÁ¶»ç¼­ ¹®°ÇÁ¢¼ö ¼Û´Þ³»¿ª

°¨Á¤Æò°¡ÇöȲ

¸ñ·Ï ÁÖ¼Ò ±¸Á¶/¿ëµµ/´ëÁö±Ç ¸éÀû ºñ°í
´ëÁö±Ç
õ°îµ¿ 906-1 661.2ºÐÀÇ 257.9666 257.9666 §³
(78.03Æò)
°Ç¹°
õ°îµ¿ 906-1 1,2Ãþ107È£ ö±ÙÄÜÅ©¸®Æ®±¸Á¶ 259.02 §³
(78.35Æò)
1) À§Ä¡/µµ½ÃÁö¿ª/ÀϹݻó¾÷Áö¿ª/ö±ÙÄÜÅ©¸®Æ®±¸Á¶ ´õº¸±â
°¨Á¤Æò°¡ ¿äÇ×Ç¥
1)À§Ä¡ ¹× ÁÖÀ§È¯°æ
º» °ÇÀº °­¿øÆ¯º°ÀÚÄ¡µµ µ¿ÇؽÃû ³²µ¿Ãø ±Ù°Å¸®¿¡ À§Ä¡Çϰí ÀÖÀ¸¸ç ÁÖÀ§´Â ¼÷¹Ú½Ã¼³, À¯ÈïÀ½½ÄÁ¡, ´ëÁßÀ½½ÄÁ¡ µî ±Ù¸°»ýȰ½Ã¼³ÀÌ ¹ÐÁýÇÏ¿© ÀÖÀ½.
2)±³Åë»óȲ
¾çÈ£ÇÑ Áö¿ªÀÓ.
3)°Ç¹°ÀÇ ±¸Á¶
ö±ÙÄÜÅ©¸®Æ®±¸Á¶ ö±ÙÄÜÅ©¸®Æ®(Æò½½¶óºê)ÁöºØ 2Ãþ°ÇÀÇ ±¸Á¶·Î
¿Üº® : ŸÀϺÙÀÓ, ¸ôÅ»À§ ÆäÀÎÆ® ¸¶°¨
³»º® : ŸÀϺÙÀÓ, ¸ôÅ»À§ ÆäÀÎÆ®, ³»ºÎ¹ÌÀåÀç ¸¶°¨
âȣ : Æä¾î±×¶ó½º À¯¸®ÀÓ.
4)ÀÌ¿ë»óÅÂ
°ø½Ç »óÅÂÀÓ.
5)¼³ºñ³»¿ª
±Þ¹è¼ö¼³ºñ, À§»ý¼³ºñ(2Ãþ), ½Ã½ºÅ۳󭹿¼³ºñ µÇ¾îÀÖÀ½.
6)ÅäÁöÀÇ Çü»ó ¹× ÀÌ¿ë»óÅÂ
¹æÇüÀ¸·Î ºÏÃø ¿Ï°æ»çÁö¿¡ ¼ÒÀçÇϳª °è´Ü½ÄÀ¸·Î ÆòźÇÏ°Ô Á¶¼ºµÈ ±Ù¸°»ýȰ½Ã¼³ °ÇºÎÁöÀÓ.
7)ÀÎÁ¢ µµ·Î»óŵî
Æø ¾à 10m, 15mÀÇ ¾Æ½ºÆÈÆ®Æ÷Àåµµ·Î°¡ ¾çÁ¢Çϰí ÀÖÀ½.
8)ÅäÁöÀÌ¿ë°èȹ ¹× Á¦ÇÑ»óÅÂ
µµ½ÃÁö¿ª, ÀϹݻó¾÷Áö¿ªÀ¸·Î ¹æÈ­Áö±¸, ¼Ò·Î1·ùÁ¢ÇÔ, Áß·Î2·ùÁ¢ÇÔ, °¡Ãà»çÀ°Á¦Çѱ¸¿ª(¸ðµçÃàÁ¾Á¦ÇÑ), °¡·Î±¸¿ªº° ÃÖ°í³ôÀÌ Á¦Çѱ¸¿ªÀÓ.
9)°øºÎ¿ÍÀÇ Â÷ÀÌ
¾øÀ½.
10)±âŸÂü°í»çÇ×(ÀÓ´ë°ü·Ê ¹× ±âŸ)
-
Âü°í
»çÇ×
-ÁýÇÕ°ÇÃ๰´ëÀå(ÀüÀ¯ºÎ)¿¡ À§¹Ý°ÇÃ๰ Ç¥½Ã ÀÖÀ½ -Á¶»ç ¹× Æò°¡ ´ç½Ã °ø½Ç
¼ÒÀç : µ¿Çؽà õ°îµ¿ ¡°ºÏÆò¿©ÀÚ°íµîÇб³¡± ºÏµ¿Ãø Àαٿ¡ À§Ä¡ÇÔ. ÇöȲ : º»°ÇÀº µµ½ÃÁö¿ª, ÀϹݻó¾÷Áö¿ª, ¹æÈ­Áö±¸, ¼Ò·Î1·ù(Æø 10m~12m)(¼Ò·Î 1-53)(Á¢ÇÕ), Áß·Î2·ù(Æø 15m~20m)(Áß·Î2-6)(Á¢ÇÕ) Áö¿ªÀÇ Áö»óÀ§ 2Ãþ Á¦1Á¾±Ù¸°»ýȰ½Ã¼³ ¹× Á¦2Á¾±Ù¸°»ýȰ½Ã¼³ 1, 2Ãþ 107È£·Î ÇöȲÁ¶»çÂ÷ ¿©·¯Â÷·Ê ¹æ¹®ÇÏ¿´À¸³ª °ÅÁÖÀÚ¸¦ ¸¸³¯ ¼ö ¾ø¾úÀ¸¸ç, ÃâÀÔ¹®¿¡ ¹æ¹®ÇÑ ÃëÁö ¹× ¿¬¶ôó(¾Ë¸²Àå)¸¦ ºÎÂøÇØ µÎ¾úÀ¸³ª ÇöȲÁ¶»ç±â°£ ³»³» ±×´ë·Î ºÎÂøµÇ¾î ÀÖ°í »ç¶÷ÀÌ ÃâÀÔÇÑ ÈçÀûÀÌ ¾øÀ¸¸ç À°¾ÈÀ¸·Î º¸ÀÌ´Â 1Ãþ ³»ºÎ ´Â ÇöÀç °ÅÁÖÀÚ°¡ ¾ø´Â °ø½Ç »óÅÂÀÌ¸ç º»°Ç¿¡ ÀÓÂ÷ÀÎÀÌ ÀÖ´ÂÁö ¿©ºÎ ¹× Á¡À¯ÀÚ°¡ ´©±¸ÀÎÁö´Â Á¤È®È÷ ¾Ë¼ö ¾øÀ½. ¡Ø º»°Ç °ÅÁÖÀÚ¸¦ È®ÀÎÇϱâ À§ÇÏ¿© Áֹμ¾ÅÍ¿¡ ÀüÀÔ¼¼´ëÈ®Àμ­ ¹ß±Þ ¹× ¿Ü±¹ÀÎü·ùÈ®Àμ­ ¹ß±ÞÀ» ½ÅûÇѹÙ, ÇØ´çÁÖ¼Ò¿¡ ÀüÀÔÀÚ°¡ ¾ø°í µî·ÏµÈ ¿Ü±¹Àεµ ¾øÀ¸¸ç, µ¿ÀÏ °Ç¹°¿¡ Ÿ Á¡Æ÷´Â ÁÖ°£¿¡ ¿î¿µÇÏ´Â °÷ÀÌ ¾ø¾î º»°Ç °ÅÁÖÀÚ¿¡ ´ëÇÑ Å½¹®À» ÇÏÁö ¸øÇÔ.

°ÇÃ๰ÇöȲ

¼ÒÀçÁö °­¿øÆ¯º°ÀÚÄ¡µµ µ¿Çؽà õ°îµ¿ 906-1¹øÁö
´ëÁö¸éÀû 661.2§³
(200.36Æò)
¿¬¸éÀû 663.9§³
(201.18Æò)
°ÇÃà¸éÀû 488.64§³
(148.07Æò)
¿ëÀû·ü»êÁ¤
¿¬¸éÀû
663.9§³
(201.18Æò)
°ÇÆóÀ² 73.9% ¿ëÀû·ü 100.41%
Áö»óÃþ¼ö 2Ãþ ÁöÇÏÃþ¼ö  
ÁÖ¿ëµµ Á¦1Á¾±Ù¸°»ýȰ½Ã¼³ ±¸Á¶ ö±ÙÄÜÅ©¸®Æ®±¸Á¶
Âø°øÀÏÀÚ 2018.09.07 »ç¿ë½ÂÀÎÀÏÀÚ 2019.04.24
°ÇÃ๰Ãþº°ÇöȲ [º¸±â]


µî±âºÎµîº» ¿ä¾à(°Ç¹°)

  Á¢¼öÀÏÀÚ µî±â¸ñÀû/±Ç¸®ÀÚ ±Ç¸®±Ý¾× ±âÁØ
1 2019³â4¿ù29ÀÏ
¼ÒÀ¯±Ç
±èOO
¼Ò¸ê
2 2019³â4¿ù29ÀÏ
±ÙÀú´ç±Ç
ȕOOOO
504,000,000 ¼Ò¸ê±âÁØ
3 2019³â8¿ù29ÀÏ
±ÙÀú´ç±Ç
ȕOOOO
22,000,000 ¼Ò¸ê
4 2019³â10¿ù24ÀÏ
±ÙÀú´ç±Ç
Â÷OO
390,000,000 ¼Ò¸ê
5 2019³â11¿ù25ÀÏ
±ÙÀú´ç±Ç
(OOOO
33,000,000 ¼Ò¸ê
6 2023³â7¿ù4ÀÏ
¾Ð·ù
±¹
¼Ò¸ê
7 2023³â12¿ù7ÀÏ
¾Ð·ù
µ¿OO
¼Ò¸ê
8 2024³â6¿ù19ÀÏ
¾Ð·ù
°­OO
¼Ò¸ê
9 2025³â1¿ù20ÀÏ
¾Ð·ù
µ¿OO
¼Ò¸ê
10 2025³â5¿ù2ÀÏ
ÀÓÀǰæ¸Å
ȕOOOO
¼Ò¸ê

ÀÓÂ÷ÀÎÇöȲ (¹è´ç¿ä±¸Á¾±âÀÏ: 2025-08-06)

ÀÓÂ÷ÀÎ ¿ëµµ/Á¡À¯ º¸Áõ±Ý/¿ù¼¼ ´ëÇ×·Â
ÀüÀÔÀÏ/È®Á¤ÀÏ ¹è´ç¿ä±¸ ºñ°í
ÁÖOOOOOOOO 1Ãþ107È£(68.58§³) ¾øÀ½.
[¿ù]¾øÀ½.
X
2023.09.12.
2023.09.07.~
ºñ°í
(¸Å°¢¹°°Ç
¸í¼¼¼­)
ÁÖ½Äȸ»ç ´õ¿ÏȦµù½º:»ó°¡ÀÓ´ëÂ÷ÇöȲ¼­ ±âÀç¿¡ ÀÇÇÔ

¿©ÀÇÁÖ°æ¸Å Á¶¾ð ÇÑ ¸¶µð


ÁÖÀÇ»çÇ× (ÃÖ¼±¼øÀ§ ¼³Á¤ÀÏ: 20 19. 4. 29. ±Ù Àú ´ç( ½Å û ä ¼³Á¤ ±ÇÀÚ))

¸Å°¢À¸·Î ¼Ò¸êµÇÁö ¾Ê´Â µî±âºÎ±Ç¸®:
¸Å°¢À¸·Î ¼³Á¤µÈ °ÍÀ¸·Î º¸´Â Áö»ó±Ç:
-ÁýÇÕ°ÇÃ๰´ëÀå(ÀüÀ¯ºÎ)¿¡ À§¹Ý°ÇÃ๰ Ç¥½Ã ÀÖÀ½ -Á¶»ç ¹× Æò°¡ ´ç½Ã °ø½Ç
¡Ø¹Ì³³°ü¸®ºñ(°ø¿ë) Àμö¿©ºÎ¸¦ ÀÔÂû Àü¿¡ È®ÀÎÇϽñ⠹ٶø´Ï´Ù

 

Áö¿ªºÐ¼®

ÁöÇÏö¸í Á÷¼±°Å¸®

Çб³¸í ÀüÈ­¹øÈ£ ÁÖ¼Ò Á÷¼±°Å¸®

¹ý¿ø

ÃáõÁö¹æ¹ý¿ø °­¸ªÁö¿ø (254-63)°­¿øµµ °­¸ª½Ã µ¿ÇØ´ë·Î 3288-18 (³­°îµ¿)
´ëÇ¥ : 033)640-1000, ¾ß°£ : 033)640-1199
°üÇÒÁö¿ª : °­¸ª½Ã, µ¿ÇؽÃ, »ïô½Ã

µî±â¼Ò ÃáõÁö¹æ¹ý¿ø º»¿ø µ¿Çصî±â¼Ò (´ëÇ¥:1544-0773, ÆÑ½º:(033)533-8692, °­¿øµµ µ¿ÇØ½Ã ÇØ¾È·Î 217 (õ°îµ¿ 822))
¼¼¹«¼­ »ïô¼¼¹«¼­ (´ëÇ¥:033-570-02, ÆÑ½º:033-574-5788, °­¿øµµ »ïô½Ã ±³µ¿·Î 148 (±³µ¿))

Àαٳ«ÂûÅë°è

±â°£ ¸Å°¢°Ç¼ö Æò±Õ°¨Á¤°¡
Æò±Õ¸Å°¢°¡
¸Å°¢°¡À²
Æò±ÕÀ¯Âû¼ö
3°³¿ù 0°Ç 0¿ø
0¿ø
0%
0ȸ
6°³¿ù 1°Ç 394,000,000¿ø
80,200,000¿ø
20%
5ȸ
12°³¿ù 2°Ç 789,933,200¿ø
345,100,000¿ø
36%
3.5ȸ


º» °æ¸ÅÁ¤º¸´Â ¹ý¿øÀÚ·á¿Í ÀÏÄ¡Çϵµ·Ï ÇÏ¿´À¸³ª ±Ç¸®»çÇ׺¯µ¿, ÀÔ·ÂÂø¿À µîÀÇ ¿øÀÎÀ¸·Î »ç½Ç°ú ´Ù¸¦ ¼ö ÀÖ½À´Ï´Ù. ÀÌ¿ë¾à°ü¿¡ ÀǰЏéÃ¥Á¶°ÇÀ¸·Î Á¦°øµÊÀ» ¾Ë¸®¸ç, °æ¸ÅÀÔÂû½Ã ¹Ýµå½Ã °ü·Ã °øºÎ¸¦ ÀçÈ®ÀÎÇϽñ⠹ٶø´Ï´Ù. º¸´Ù Æí¸®ÇÑ °æ¸ÅÁ¤º¸ Á¦°øÀ» À§ÇØ Áö¼ÓÀûÀ¸·Î °³¼±ÇϰڽÀ´Ï´Ù. ÀÌ¿ëÇØ Áּż­ °¨»çÇÕ´Ï´Ù.