·Î±×ÀÎ
13
±Ù¸°»ó°¡
ÀÎõÁö¹æ¹ý¿ø
 °¨Á¤°¡620,000,000 ¿ø
 ÃÖÀú°¡(100%) 620,000,000 ¿ø
 º¸Áõ±Ý(10%) 62,000,000 ¿ø
 Ã»±¸¾×100,506,849 ¿ø
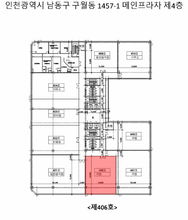
ÀÎõ±¤¿ª½Ã ³²µ¿±¸ ±¸¿ùµ¿ 1457-1 ¸ÞÀÎÇÁ¶óÀÚ 4Ãþ406È£
»ç°Ç¹øÈ£ 2025Ÿ°æ509679
°æ¸ÅÁ¾·ùºÎµ¿»ê°­Á¦°æ¸Å
¸Å°¢´ë»óÅäÁö ¹× °Ç¹°Àϰý ¸Å°¢
¸Å°¢±âÀÏ    2026.04.17(±Ý) 10:00 ÀÔÂû 13ÀÏÀü    
ÅäÁö¸éÀû52.69§³(15.94 Æò)
°Ç¹°¸éÀû177.60§³(53.72 Æò)
乫/¼ÒÀ¯ÀÚÁ¤OO / Á¤OO
ä±ÇÀÚÂ÷OO
ÆäÀ̽ººÏ Æ®À§ÅÍ ±¸±Û+
īī¿À½ºÅ丮
īī¿ÀÅå sms¹®ÀÚº¸³»±â
 

±âÀϳ»¿ª

°æ°ú ³¯Â¥ Àú°¨ ÃÖÀú°¡ °á°ú
Á¢¼öÀÏ 2025-05-29 °æ¸ÅÁ¢¼ö
~13ÀÏ 
2025-06-11 °æ¸Å°³½Ã°áÁ¤
~99ÀÏ 
2025-09-05 ¹è´ç¿ä±¸Á¾±âÀÏ
~323ÀÏ 
2026-04-17 100%
620,000,000
ÁøÇà
¹°°Ç¸í¼¼¼­ ÇöȲÁ¶»ç¼­ ¹®°ÇÁ¢¼ö ¼Û´Þ³»¿ª

°¨Á¤Æò°¡ÇöȲ

¸ñ·Ï ÁÖ¼Ò ±¸Á¶/¿ëµµ/´ëÁö±Ç ¸éÀû ºñ°í
´ëÁö±Ç
±¸¿ùµ¿ 1457-1 3507.1ºÐÀÇ 52.69 52.69 §³
(15.94Æò)
°Ç¹°
±¸¿ùµ¿ 1457-1 4Ãþ406È£ ö°ñö±ÙÄÜÅ©¸®Æ®Á¶ 177.60 §³
(53.72Æò)
1) À§Ä¡/ÀϹݻó¾÷Áö¿ª/Á¦1Á¾Áö±¸´ÜÀ§°èȹ±¸¿ª/¹ö½ºÁ¤·ùÀå/ÁöÇÏö/Â÷·® Á¢±ÙÀÌ °¡´É/ö°ñö±ÙÄÜÅ©¸®Æ®Á¶/½º¶óºêÁöºØ ´õº¸±â
°¨Á¤Æò°¡ ¿äÇ×Ç¥
1)À§Ä¡ ¹× ÁÖÀ§È¯°æ
º»°ÇÀº ÀÎõ±¤¿ª½Ã ³²µ¿±¸ ±¸¿ùµ¿ ¼ÒÀç '¿¹¼úȸ°ü¿ª(ÀÎõÁöÇÏö1È£¼±)' ³²µ¿Ãø Àαٿ¡ À§Ä¡Çϸç, ÁÖÀ§´Â »ó¾÷½Ã¼³, ±Ù¸°»ýȰ½Ã¼³, ¾÷¹«½Ã¼³, ´Ù¼¼´ëÁÖÅÃ, ¾ÆÆÄÆ® µîÀÌ È¥ÀçÇÏ´Â Áö´ëÀÓ.
2)±³Åë»óȲ
º»°Ç±îÁö Â÷·® Á¢±ÙÀÌ °¡´ÉÇϰí Àαٿ¡ ¹ö½ºÁ¤·ùÀå, ÁöÇÏö¿ª µîÀÌ ¼ÒÀçÇÏ¿© Á¦¹Ý ´ëÁß±³Åë ¿©°ÇÀº º¸ÅëÀÓ.
3)°Ç¹°ÀÇ ±¸Á¶
ö°ñö±ÙÄÜÅ©¸®Æ®Á¶ ½º¶óºêÁöºØ, ÁöÇÏ2Ãþ Áö»ó6Ãþ °Ç¹° ³» Á¦4Ãþ Á¦406È£·Î¼­,
¿Üº® : º¹ÇÕÆÇ³Ú µî ¸¶°¨.
âȣ : »þ½Ã âȣ µîÀÓ.
4)ÀÌ¿ë»óÅÂ
ÇǺΰúÀÇ¿øÀ¸·Î ÀÌ¿ë ÁßÀÓ.
5)¼³ºñ³»¿ª
À§»ý¼³ºñ, ±Þ¹è¼ö¼³ºñ, ½Â°­±â¼³ºñ µîÀ» ±¸ºñÇϰí ÀÖÀ½.
6)ÅäÁöÀÇ Çü»ó ¹× ÀÌ¿ë»óÅÂ
À广ÇüÀÎ ÅäÁö·Î¼­ ÇöȲ ±Ù¸°»ýȰ½Ã¼³, ÆÇ¸Å ¹× ¿µ¾÷½Ã¼³, À§¶ô½Ã¼³ µîÀÇ °ÇºÎÁö·Î ÀÌ¿ëÁßÀÓ.
7)ÀÎÁ¢ µµ·Î»óŵî
º»°ÇÀº º»°Ç ºÏÃø, ¼­Ãø Æ÷Àåµµ·Î¿¡ Á¢ÇÔ.
8)ÅäÁöÀÌ¿ë°èȹ ¹× Á¦ÇÑ»óÅÂ
ÀϹݻó¾÷Áö¿ª , ¹æÈ­Áö±¸ , Á¦1Á¾Áö±¸´ÜÀ§°èȹ±¸¿ª(±¸¿ù) , ¼Ò·Î1·ù(Æø 10m~12m)(2025-01-06)(Á¢ÇÕ)
°¡Ãà»çÀ°Á¦Çѱ¸¿ª(2013-03-08)((¹®ÀÇ:³²µ¿±¸È¯°æº¸Àü°ú 032-453-2343))<°¡ÃàºÐ´¢ÀÇ °ü¸® ¹× À̿뿡 °üÇÑ ¹ý·ü>, °ú¹Ð¾ïÁ¦±Ç¿ª<¼öµµ±ÇÁ¤ºñ°èȹ¹ý>

9)°øºÎ¿ÍÀÇ Â÷ÀÌ
ÇØ´ç»çÇ× ¾øÀ½.
10)±âŸÂü°í»çÇ×(ÀÓ´ë°ü·Ê ¹× ±âŸ)
ÀÓ´ë°ü°è ¹Ì»óÀÓ.
Âü°í
»çÇ×
ÇǺΰú º´¿øÀ¸·Î ¿î¿µ ÁßÀÓ.
- »ó°¡°Ç¹°³» `¼­¿ï¼öÇǺΰúÀÇ¿ø

°ÇÃ๰ÇöȲ

¼ÒÀçÁö ÀÎõ±¤¿ª½Ã ³²µ¿±¸ ±¸¿ùµ¿ 1457-1¹øÁö
´ëÁö¸éÀû 3507.1§³
(1062.76Æò)
¿¬¸éÀû 17556.17§³
(5320.05Æò)
°ÇÃà¸éÀû 2442.23§³
(740.07Æò)
¿ëÀû·ü»êÁ¤
¿¬¸éÀû
13781.92§³
(4176.34Æò)
°ÇÆóÀ² 69.64% ¿ëÀû·ü 392.97%
Áö»óÃþ¼ö 6Ãþ ÁöÇÏÃþ¼ö 2Ãþ
ÁÖ¿ëµµ Á¦2Á¾±Ù¸°»ýȰ½Ã¼³ ±¸Á¶ ö°ñö±ÙÄÜÅ©¸®Æ®±¸Á¶
Âø°øÀÏÀÚ 2002.04.10 »ç¿ë½ÂÀÎÀÏÀÚ 2002.12.24
°ÇÃ๰Ãþº°ÇöȲ [º¸±â]


µî±âºÎµîº» ¿ä¾à(°Ç¹°)

  Á¢¼öÀÏÀÚ µî±â¸ñÀû/±Ç¸®ÀÚ ±Ç¸®±Ý¾× ±âÁØ
1 2025³â4¿ù22ÀÏ
¼ÒÀ¯±Ç
Á¤OO
¼Ò¸ê
2 2025³â6¿ù16ÀÏ
°­Á¦°æ¸Å
Â÷OO
¼Ò¸ê±âÁØ

ÀÓÂ÷ÀÎÇöȲ (¹è´ç¿ä±¸Á¾±âÀÏ: 2025-09-05)



¸Å°¢±âÀÏ 7ÀÏÀü¿¡ °ø°íµÇ¿À´Ï È®ÀÎÇϽñ⠹ٶø´Ï´Ù.


¿©ÀÇÁÖ°æ¸Å Á¶¾ð ÇÑ ¸¶µð

ÃëÇÏ ¶Ç´Â Ãë¼ÒµÉ °¡´É¼º ÀÖ½À´Ï´Ù
ÀÌ ¹°°ÇÀÇ °¨Á¤°¡°ÝÀº 620,000,000¿øÀÔ´Ï´Ù. °æ¸Å¸¦ ½ÅûÇÑ Ã¤±ÇÀÚ°¡ ¹è´ç ¹Þ¾Æ¾ß ÇÒ ±Ý¾×Àº 100,506,849¿øÀ¸·Î °¨Á¤°¡°Ý ´ëºñ »ó´çÈ÷ ÀûÀº ±Ý¾×ÀÔ´Ï´Ù. ÀÌ·± °æ¿ì, 乫°¡°¡ º¯Á¦ÇÏ¿© °æ¸Å¸¦ ÃëÇϽÃŰ°Å³ª °æ¸Å½Åûä±ÇÀÚ°¡ ¹è´ç¹ÞÀº ±Ý¿øÀÌ ¾ø°ÔµÇ¾î À̸¥ ¹Ù "¹«À׿©¿¡ ÀÇÇÑ Ãë¼Ò"°¡ µÉ °¡´É¼ºÀÌ ÀÖ½À´Ï´Ù.

ÁÖÀÇ»çÇ× (ÃÖ¼±¼øÀ§ ¼³Á¤ÀÏ: 2025. 6. 16. °æ¸Å°³½Ã°áÁ¤ ¼³Á¤)

¸Å°¢À¸·Î ¼Ò¸êµÇÁö ¾Ê´Â µî±âºÎ±Ç¸®:
¸Å°¢À¸·Î ¼³Á¤µÈ °ÍÀ¸·Î º¸´Â Áö»ó±Ç:
ÇǺΰú º´¿øÀ¸·Î ¿î¿µ ÁßÀÓ.
¡Ø¹Ì³³°ü¸®ºñ(°ø¿ë) Àμö¿©ºÎ¸¦ ÀÔÂû Àü¿¡ È®ÀÎÇϽñ⠹ٶø´Ï´Ù

 

Áö¿ªºÐ¼®

ÁöÇÏö¸í Á÷¼±°Å¸®

Çб³¸í ÀüÈ­¹øÈ£ ÁÖ¼Ò Á÷¼±°Å¸®

¹ý¿ø

ÀÎõÁö¹æ¹ý¿ø (222-20)ÀÎõ±¤¿ª½Ã ¹ÌÃßȦ±¸ ¼Ò¼º·Î 163¹ø±æ 17(ÇÐÀ͵¿)
´ëÇ¥ : 032)860-1113~4
°üÇÒÁö¿ª : Áß±¸, µ¿±¸, ³²±¸, ¿¬¼ö±¸, ³²µ¿±¸, ºÎÆò±¸, °è¾ç±¸, ¼­±¸, ¿ËÁø±º, °­È­±º

µî±â¼Ò ÀÎõÁö¹æ¹ý¿ø º»¿ø µî±â±¹ (´ëÇ¥:1544-0773, ÆÑ½º:(032)620-9099, ÀÎõ±¤¿ª½Ã ¹ÌÃßȦ±¸ °æ¿ø´ë·Î 881(Á־ȵ¿ 983))
¼¼¹«¼­ ³²ÀÎõ¼¼¹«¼­ (´ëÇ¥:032-460-52, ÆÑ½º:032-463-5778, ÀÎõ±¤¿ª½Ã ³²µ¿±¸ ÀÎÇÏ·Î 548 (±¸¿ùµ¿))

Àαٳ«ÂûÅë°è

±â°£ ¸Å°¢°Ç¼ö Æò±Õ°¨Á¤°¡
Æò±Õ¸Å°¢°¡
¸Å°¢°¡À²
Æò±ÕÀ¯Âû¼ö
3°³¿ù 8°Ç 541,886,975¿ø
205,059,569¿ø
36%
4.6ȸ
6°³¿ù 15°Ç 487,673,053¿ø
185,159,691¿ø
38%
4.1ȸ
12°³¿ù 34°Ç 428,679,288¿ø
173,497,935¿ø
44%
3.4ȸ


º» °æ¸ÅÁ¤º¸´Â ¹ý¿øÀÚ·á¿Í ÀÏÄ¡Çϵµ·Ï ÇÏ¿´À¸³ª ±Ç¸®»çÇ׺¯µ¿, ÀÔ·ÂÂø¿À µîÀÇ ¿øÀÎÀ¸·Î »ç½Ç°ú ´Ù¸¦ ¼ö ÀÖ½À´Ï´Ù. ÀÌ¿ë¾à°ü¿¡ ÀǰЏéÃ¥Á¶°ÇÀ¸·Î Á¦°øµÊÀ» ¾Ë¸®¸ç, °æ¸ÅÀÔÂû½Ã ¹Ýµå½Ã °ü·Ã °øºÎ¸¦ ÀçÈ®ÀÎÇϽñ⠹ٶø´Ï´Ù. º¸´Ù Æí¸®ÇÑ °æ¸ÅÁ¤º¸ Á¦°øÀ» À§ÇØ Áö¼ÓÀûÀ¸·Î °³¼±ÇϰڽÀ´Ï´Ù. ÀÌ¿ëÇØ Áּż­ °¨»çÇÕ´Ï´Ù.