·Î±×ÀÎ
31
´Ù¼¼´ë(ºô¶ó)
ÀÎõÁö¹æ¹ý¿ø
 °¨Á¤°¡90,800,000 ¿ø
 ÃÖÀú°¡(100%) 90,800,000 ¿ø
 º¸Áõ±Ý(10%) 9,080,000 ¿ø
 Ã»±¸¾×58,928,630 ¿ø
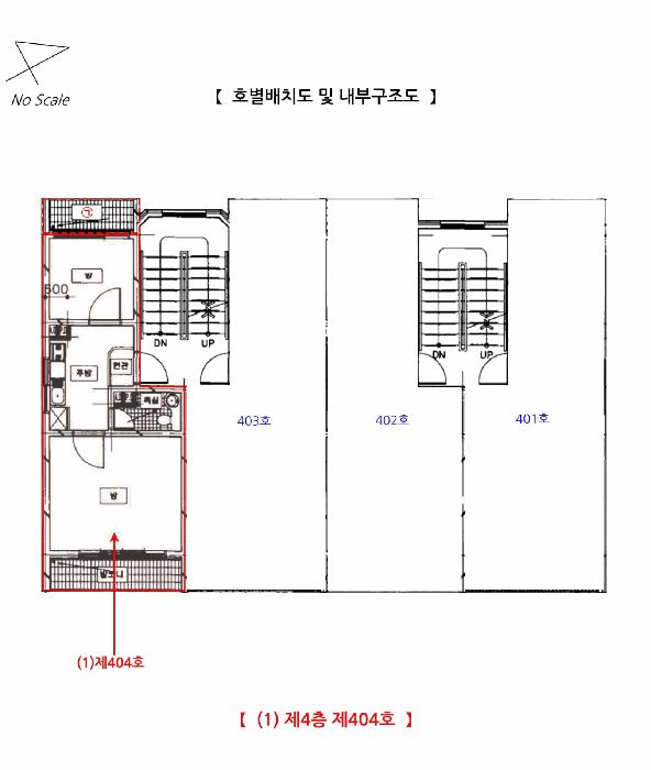
ÀÎõ±¤¿ª½Ã ºÎÆò±¸ ºÎÆòµ¿ 767-212 À¯È£À¯½ººô(1µ¿) 4Ãþ404È£
»ç°Ç¹øÈ£ 2025Ÿ°æ508144
°æ¸ÅÁ¾·ùºÎµ¿»ê°­Á¦°æ¸Å
¸Å°¢´ë»óÅäÁö ¹× °Ç¹°Àϰý ¸Å°¢
¸Å°¢±âÀÏ    2026.04.16(¸ñ) 10:00 ÀÔÂû 12ÀÏÀü    
ÅäÁö¸éÀû13.06§³(3.95 Æò)
°Ç¹°¸éÀû31.37§³(9.49 Æò)
乫/¼ÒÀ¯ÀÚ¼ºOO / ¼ºOO
ä±ÇÀÚ¼­OOOOO OOOO
ÆäÀ̽ººÏ Æ®À§ÅÍ ±¸±Û+
īī¿À½ºÅ丮
īī¿ÀÅå sms¹®ÀÚº¸³»±â
 

±âÀϳ»¿ª

°æ°ú ³¯Â¥ Àú°¨ ÃÖÀú°¡ °á°ú
Á¢¼öÀÏ 2025-03-07 °æ¸ÅÁ¢¼ö
~17ÀÏ 
2025-03-24 °æ¸Å°³½Ã°áÁ¤
~105ÀÏ 
2025-06-20 ¹è´ç¿ä±¸Á¾±âÀÏ
~405ÀÏ 
2026-04-16 100%
90,800,000
ÁøÇà
¹°°Ç¸í¼¼¼­ ÇöȲÁ¶»ç¼­ ¹®°ÇÁ¢¼ö ¼Û´Þ³»¿ª

°¨Á¤Æò°¡ÇöȲ

¸ñ·Ï ÁÖ¼Ò ±¸Á¶/¿ëµµ/´ëÁö±Ç ¸éÀû ºñ°í
´ëÁö±Ç
ºÎÆòµ¿ 767-213 241ºÐÀÇ 13.061 13.061 §³
(3.95Æò)
°Ç¹°
ºÎÆòµ¿ 767-212 4Ãþ404È£ ö±ÙÄÜÅ©¸®Æ®Á¶ 28.77 §³
(8.70Æò)
Á¦½Ã¿Ü
°Ç¹°
ºÎÆòµ¿ 767-212 ´Ù¿ëµµ 2.6 §³
(0.79Æò)
Æ÷ÇÔ
1) À§Ä¡/ÁØÁÖ°ÅÁö¿ª/Áö±¸´ÜÀ§°èȹ±¸¿ª/³ë¼±¹ö½º Á¤·ùÀå/ö±ÙÄÜÅ©¸®Æ®Á¶ ´õº¸±â
°¨Á¤Æò°¡ ¿äÇ×Ç¥
1)À§Ä¡ ¹× ÁÖÀ§È¯°æ
º»°ÇÀº ÀÎõ±¤¿ª½Ã ºÎÆò±¸ ºÎÆòµ¿ ¼ÒÀç ""Èñ¸Á°ø¿ø"" ºÏÃø Àαٿ¡ À§Ä¡Çϰí ÁÖÀ§´Â ´Ù¼¼´ëÁÖÅðú ´Üµ¶ÁÖÅÃ, ¾ÆÆÄÆ®´ÜÁö ¹× ±Ù¸°»ýȰ½Ã¼³ µîÀÌ È¥ÀçÇÏ¿© Á¦¹Ý ÁÖÀ§È¯°æÀº º¸Åë½ÃµÊ.
2)±³Åë»óȲ
º»°Ç±îÁö Â÷·®Á¢±Ù °¡´ÉÇϸç Àα٠³ë¼±¹ö½º Á¤·ùÀå µîÀÌ ¼ÒÀçÇϰí ÀÖ¾î Á¦¹Ý ±³Åë»óȲÀº º¸ÅëÀÓ.
3)°Ç¹°ÀÇ ±¸Á¶
º»°Ç ö±ÙÄÜÅ©¸®Æ®Á¶ Æò½½¶óºêÁöºØ 4Ãþ °Ç¹° ³» Á¦4Ãþ Á¦404È£·Î¼­,
¿Üº® : µå¶óÀ̺ñÆ® ¸¶°¨ µî,
³»º® : º®Áöµµ¹è ¹× ŸÀϸ¶°¨ µî,
âȣ : »õ½Ãâȣ ¸¶°¨ µîÀÓ.
4)ÀÌ¿ë»óÅÂ
º»°Ç ´Ù¼¼´ëÁÖÅÃÀ¸·Î ÀÌ¿ë ÁßÀÓ.
5)¼³ºñ³»¿ª
±âº»ÀûÀÎ À§»ý¼³ºñ¿Í ±Þ¹è¼ö¼³ºñ ³­¹æ¼³ºñ µîÀÌ ±¸ºñµÇ¾î ÀÖÀ½.
6)ÅäÁöÀÇ Çü»ó ¹× ÀÌ¿ë»óÅÂ
º»°Ç 2ÇÊ ÀÏ´ÜÀÇ »ç´Ù¸®Çü ÅäÁö·Î¼­ ´Ù¼¼´ëÁÖÅÃÀÇ °ÇºÎÁö·Î ÀÌ¿ë ÁßÀÓ.
7)ÀÎÁ¢ µµ·Î»óŵî
º»°Ç ¼­Ãø ³ëÆø ¾à6m ³»¿Ü Æ÷Àåµµ·Î¸¦ ÀÌ¿ë °¡´ÉÇÔ.
8)ÅäÁöÀÌ¿ë°èȹ ¹× Á¦ÇÑ»óÅÂ
º»°Ç ºÎÆòµ¿ 767-212´Â ÁØÁÖ°ÅÁö¿ª, Áö±¸´ÜÀ§°èȹ±¸¿ª(ÇÏÇϰñ¸¶À» ÁÖ°Åȯ°æ°³¼±»ç¾÷Áö±¸) °¡·Î±¸¿ªº° ÃÖ°í³ôÀÌ Á¦ÇÑÁö¿ª<°ÇÃà¹ý>, »ó´ëº¸È£±¸¿ª(¹«Áö°³À¯Ä¡¿ø)<±³À°È¯°æ º¸È£¿¡ °üÇÑ ¹ý·ü>, Á¤ºñ±¸¿ª(2024-03-18)<µµ½Ã ¹× ÁÖ°Åȯ°æÁ¤ºñ¹ý>, °ú¹Ð¾ïÁ¦±Ç¿ª<¼öµµ±ÇÁ¤ºñ°èȹ¹ý>,
ºÎÆòµ¿ 767-213Àº ÁØÁÖ°ÅÁö¿ª, Áö±¸´ÜÀ§°èȹ±¸¿ª(ÇÏÇϰñ¸¶À» ÁÖ°Åȯ°æ°³¼±»ç¾÷Áö±¸), µµ·Î(2015-09-09)(ÀúÃË) °¡·Î±¸¿ªº° ÃÖ°í³ôÀÌ Á¦ÇÑÁö¿ª<°ÇÃà¹ý>, »ó´ëº¸È£±¸¿ª(¹«Áö°³À¯Ä¡¿ø)<±³À°È¯°æ º¸È£¿¡ °üÇÑ ¹ý·ü>, Á¤ºñ±¸¿ª(2024-03-18)<µµ½Ã ¹× ÁÖ°Åȯ°æÁ¤ºñ¹ý>, °ú¹Ð¾ïÁ¦±Ç¿ª<¼öµµ±ÇÁ¤ºñ°èȹ¹ý>ÀÓ.


9)°øºÎ¿ÍÀÇ Â÷ÀÌ
¾øÀ½.
10)±âŸÂü°í»çÇ×(ÀÓ´ë°ü·Ê ¹× ±âŸ)
µî±â»çÇ×ÀüºÎÁõ¸í¼­»ó À»±¸ ¼øÀ§¹øÈ£ 5 ÁÖÅÃÀÓÂ÷±Çµî±â°¡ µîÀçµÇ¾î ÀÖÀ½.
Âü°í
»çÇ×
Á¦½Ã¿Ü °Ç¹° Æ÷ÇÔ
º» °ÇÀº 4Ãþ °øµ¿ÁÖÅÃÀÓ

°ÇÃ๰ÇöȲ

¼ÒÀçÁö ÀÎõ±¤¿ª½Ã ºÎÆò±¸ ºÎÆòµ¿ 767-212¹øÁö
´ëÁö¸éÀû   ¿¬¸éÀû 75.65§³
(22.92Æò)
°ÇÃà¸éÀû 63.05§³
(19.11Æò)
¿ëÀû·ü»êÁ¤
¿¬¸éÀû
63.05§³
(19.11Æò)
°ÇÆóÀ²   ¿ëÀû·ü  
Áö»óÃþ¼ö 1Ãþ ÁöÇÏÃþ¼ö 1Ãþ
ÁÖ¿ëµµ ´Üµ¶ÁÖÅà ±¸Á¶ º®µ¹±¸Á¶
Âø°øÀÏÀÚ »ç¿ë½ÂÀÎÀÏÀÚ 1979.12.17
°ÇÃ๰Ãþº°ÇöȲ [º¸±â]


±¹ÅäºÎ½Ç°Å·¡°¡ ÀÎõ±¤¿ª½Ã ºÎÆò±¸ ºÎÆòµ¿

¡Ü ¸Å¸Å

¸éÀû(§³), ±Ý¾×(¸¸¿ø)

¡Ü Àü¼¼

¸éÀû(§³), ±Ý¾×(¸¸¿ø)

°è¾àÀϰǹ°¸íĪÃþ¿¬¸éÀûº¸Áõ±Ý¿ù¼¼°ÇÃà
26.03.31¿ì¼ººô¶ó(700-36)333.965500541993
26.03.31¿ì½Å(715-47)340.2910,00001993
26.03.31°Ç¿ìÇÏÀÌÃ÷2Â÷44810,15002002
26.03.30½Å´ë¸²(438-26)545.268,40002002
26.03.30¹«±ÃÈ­ºô¶ó(Bµ¿)236.747,49001990
¢Ñ ´õº¸±â

µî±âºÎµîº» ¿ä¾à(°Ç¹°)

  Á¢¼öÀÏÀÚ µî±â¸ñÀû/±Ç¸®ÀÚ ±Ç¸®±Ý¾× ±âÁØ
1 2019³â2¿ù1ÀÏ
¼ÒÀ¯±Ç
¼ºOO
¼Ò¸ê
2 2023³â11¿ù3ÀÏ
ÀÓÂ÷±Ç¼³Á¤
ÇÑOOOO
60,000,000 Àμö
3 2025³â3¿ù24ÀÏ
°­Á¦°æ¸Å
¼­OOOO
¼Ò¸ê±âÁØ
4 2026³â3¿ù25ÀÏ
¾Ð·ù
±¹
¼Ò¸ê

ÀÓÂ÷ÀÎÇöȲ (¹è´ç¿ä±¸Á¾±âÀÏ: 2025-06-20)



¸Å°¢±âÀÏ 7ÀÏÀü¿¡ ¸Å°¢¹°°Ç¸í¼¼¼­°¡ °ø°íµÇ¿À´Ï È®ÀÎÇϽñ⠹ٶø´Ï´Ù.

ÀÓÂ÷ÀÎ ¿ëµµ/Á¡À¯ º¸Áõ±Ý/¿ù¼¼ ´ëÇ×·Â
ÀüÀÔÀÏ/È®Á¤ÀÏ ¹è´ç¿ä±¸ ºñ°í
½ÉOO 404È£ÀüºÎ 3,000,000
[¿ù]300,000
O
2024.2.22.
2025.6.10. 2023.9.15.~2025.9.15.
ÇÑOOOOOOOOOOOOOOOO ÀüºÎ 60,000,000
O
2019.2.21.
2019.3.20.
2019.4.11.~2021.4.10.
¼­OOOOOOOOO ÀüºÎ 60,000,000
O
2019.2.21.
2019.3.20.
2025.3.5. 2019.4.11.~2021.4.10.
ºñ°í
(¸Å°¢¹°°Ç
¸í¼¼¼­)
- Çѱ¹ÅäÁöÁÖÅðø»ç(ÀÔÁÖÀÚ:½ÅÀº¿µ): ÁÖÅÃÀÓÂ÷±Çµî±â±ÇÀڷμ­ ÁÖÅÃÀÓÂ÷±Çµî±âÀÏÀº 2023.11.3.ÀÓ - ¼­¿ïº¸Áõº¸Çè ÁÖ½Äȸ»ç: ÀÌ »ç°Ç ½Åûä±ÇÀÚ·Î ¹è´ç¿ä±¸ÀÏÀº °æ¸Å½ÅûÀÏÀÓ. ÀÓÂ÷ÀÎ Çѱ¹ÅäÁöÁÖÅðø»çÀÇ ÀÓÂ÷º¸Áõ±Ý¹Ýȯä±Ç ¾ç¼öÀÎÀ¸·Î¼­, º¸Áõ±Ý Àü¾×À» ¹è´ç¹ÞÁö ¸øÇÏ´õ¶óµµ ÀÜÁ¸ ÀÓÂ÷º¸Áõ±Ý¹Ýȯä±ÇÀ» Æ÷±âÇϰí ÁÖÅÃÀÓÂ÷±Çµî±â ¸»¼Ò¿¡ µ¿ÀÇÇÑ´Ù´Â ÃëÁöÀÇ È®¾à¼­¸¦ Á¦ÃâÇÔ

¿©ÀÇÁÖ°æ¸Å Á¶¾ð ÇÑ ¸¶µð

¼±¼øÀ§ ÀÓÂ÷±Çµî±â°¡ µÇ¾î ÀÖ½À´Ï´Ù
´ëÇ×·ÂÀÌ ÀÖ´Â ¼±¼øÀ§ ÀÓÂ÷±Çµî±â ±Ç¸®ÀÚ°¡ ¹è´çÀ» Àü¾× ¹ÞÁö ¸øÇÒ °æ¿ì ³«ÂûÀÚ°¡ ÀÜ¿© º¸Áõ±ÝÀ» ÀμöÇØ¾ßÇÏ´Â °æ¿ìµµ ÀÖ½À´Ï´Ù.
Á¦½Ã¿Ü ¹°°ÇÀÌ Æ÷ÇԵǾî ÀÖ½À´Ï´Ù
¡®Á¦½Ã¿Ü ¹°°Ç¡¯Àº ÇØ´ç °øºÎ»ó¿¡´Â Á¸ÀçÇÏÁö ¾ÊÁö¸¸, ÇöÀå¿¡ Á¸Àç°¡ È®ÀεǴ ¿©·¯ ÇüÅÂÀÇ °Ç¹°, ±â°è±â±¸ µîÀ» ¸»ÇÕ´Ï´Ù. ÀÌµé ´ëºÎºÐÀº ¹«Çã°¡, ¹«½Å°íÀ̰ųª »ç¿ë½ÂÀÎÀ» ¹ÞÁö ¾ÊÀº °ÍÀÔ´Ï´Ù. ¡®Á¦½Ã¿Ü ¹°°Ç¡¯ÀÌ °æ¸Å´ë»ó¿¡ Æ÷ÇԵǾî ÀÖ´Ù¸é ³«ÂûÀÚÀÇ ¼ÒÀ¯±Ç Ãëµæ¿¡´Â ¾Æ¹«·± ¹®Á¦°¡ ¾ø½À´Ï´Ù.

ÁÖÀÇ»çÇ× (ÃÖ¼±¼øÀ§ ¼³Á¤ÀÏ: 2025.3.24. ¼³Á¤ °­Á¦°æ¸Å°³½Ã°áÁ¤)

¸Å°¢À¸·Î ¼Ò¸êµÇÁö ¾Ê´Â µî±âºÎ±Ç¸®: À»±¸ ¼øÀ§ 5¹ø ÁÖÅÃÀÓÂ÷±Çµî±â(´Ù¸¸ ¼­¿ïº¸Áõº¸Çè ÁÖ½Äȸ»çÀÇ ¸»¼Òµ¿ÀÇ È®¾à¼­°¡ Á¦ÃâµÊ)
¸Å°¢À¸·Î ¼³Á¤µÈ °ÍÀ¸·Î º¸´Â Áö»ó±Ç:
Á¦½Ã¿Ü °Ç¹° Æ÷ÇÔ
¡Ø¹Ì³³°ü¸®ºñ(°ø¿ë) Àμö¿©ºÎ¸¦ ÀÔÂû Àü¿¡ È®ÀÎÇϽñ⠹ٶø´Ï´Ù

 

Áö¿ªºÐ¼®

ÁöÇÏö¸í Á÷¼±°Å¸®

Çб³¸í ÀüÈ­¹øÈ£ ÁÖ¼Ò Á÷¼±°Å¸®

¹ý¿ø

ÀÎõÁö¹æ¹ý¿ø (222-20)ÀÎõ±¤¿ª½Ã ¹ÌÃßȦ±¸ ¼Ò¼º·Î 163¹ø±æ 17(ÇÐÀ͵¿)
´ëÇ¥ : 032)860-1113~4
°üÇÒÁö¿ª : Áß±¸, µ¿±¸, ³²±¸, ¿¬¼ö±¸, ³²µ¿±¸, ºÎÆò±¸, °è¾ç±¸, ¼­±¸, ¿ËÁø±º, °­È­±º

µî±â¼Ò ÀÎõÁö¹æ¹ý¿ø º»¿ø µî±â±¹ (´ëÇ¥:1544-0773, ÆÑ½º:(032)620-9099, ÀÎõ±¤¿ª½Ã ¹ÌÃßȦ±¸ °æ¿ø´ë·Î 881(Á־ȵ¿ 983))
¼¼¹«¼­ ºÏÀÎõ¼¼¹«¼­ (´ëÇ¥:032-540-62, ÆÑ½º:032-545-0411, ÀÎõ±¤¿ª½Ã °è¾ç±¸ È¿¼­·Î244(ÀÛÀüµ¿ 422-1) )

Àαٳ«ÂûÅë°è

±â°£ ¸Å°¢°Ç¼ö Æò±Õ°¨Á¤°¡
Æò±Õ¸Å°¢°¡
¸Å°¢°¡À²
Æò±ÕÀ¯Âû¼ö
3°³¿ù 60°Ç 137,530,000¿ø
77,821,052¿ø
56%
2.5ȸ
6°³¿ù 117°Ç 144,645,299¿ø
86,937,101¿ø
60%
2.4ȸ
12°³¿ù 221°Ç 144,223,982¿ø
89,111,097¿ø
61%
2.4ȸ


º» °æ¸ÅÁ¤º¸´Â ¹ý¿øÀÚ·á¿Í ÀÏÄ¡Çϵµ·Ï ÇÏ¿´À¸³ª ±Ç¸®»çÇ׺¯µ¿, ÀÔ·ÂÂø¿À µîÀÇ ¿øÀÎÀ¸·Î »ç½Ç°ú ´Ù¸¦ ¼ö ÀÖ½À´Ï´Ù. ÀÌ¿ë¾à°ü¿¡ ÀǰЏéÃ¥Á¶°ÇÀ¸·Î Á¦°øµÊÀ» ¾Ë¸®¸ç, °æ¸ÅÀÔÂû½Ã ¹Ýµå½Ã °ü·Ã °øºÎ¸¦ ÀçÈ®ÀÎÇϽñ⠹ٶø´Ï´Ù. º¸´Ù Æí¸®ÇÑ °æ¸ÅÁ¤º¸ Á¦°øÀ» À§ÇØ Áö¼ÓÀûÀ¸·Î °³¼±ÇϰڽÀ´Ï´Ù. ÀÌ¿ëÇØ Áּż­ °¨»çÇÕ´Ï´Ù.