·Î±×ÀÎ
52
´Ù¼¼´ë(ºô¶ó)
¼­¿ï³²ºÎÁö¹æ¹ý¿ø
 °¨Á¤°¡387,000,000 ¿ø
 ÃÖÀú°¡(100%) 387,000,000 ¿ø
 º¸Áõ±Ý(10%) 38,700,000 ¿ø
 Ã»±¸¾×270,000,000 ¿ø
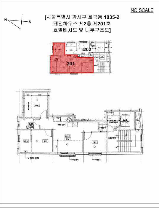
¼­¿ïƯº°½Ã °­¼­±¸ È­°îµ¿ 1035-2 ÅÂÁøÇϿ콺 Á¦2Ãþ Á¦201È£
»ç°Ç¹øÈ£ 2025Ÿ°æ12414
°æ¸ÅÁ¾·ùºÎµ¿»ê°­Á¦°æ¸Å
¸Å°¢´ë»óÅäÁö ¹× °Ç¹°Àϰý ¸Å°¢
¸Å°¢±âÀÏ    2026.04.16(¸ñ) 10:00 ÀÔÂû 10ÀÏÀü    
ÅäÁö¸éÀû28.85§³(8.73 Æò)
°Ç¹°¸éÀû42.95§³(12.99 Æò)
乫/¼ÒÀ¯ÀÚ¼ÛOO / ¼ÛOO
ä±ÇÀÚÁÖOOOOOOO
ÆäÀ̽ººÏ Æ®À§ÅÍ ±¸±Û+
īī¿À½ºÅ丮
īī¿ÀÅå sms¹®ÀÚº¸³»±â
 

±âÀϳ»¿ª

°æ°ú ³¯Â¥ Àú°¨ ÃÖÀú°¡ °á°ú
Á¢¼öÀÏ 2025-09-26 °æ¸ÅÁ¢¼ö
~4ÀÏ 
2025-09-30 °æ¸Å°³½Ã°áÁ¤
~96ÀÏ 
2025-12-31 ¹è´ç¿ä±¸Á¾±âÀÏ
~202ÀÏ 
2026-04-16 100%
387,000,000
ÁøÇà
¹°°Ç¸í¼¼¼­ ÇöȲÁ¶»ç¼­ ¹®°ÇÁ¢¼ö ¼Û´Þ³»¿ª

°¨Á¤Æò°¡ÇöȲ

¸ñ·Ï ÁÖ¼Ò ±¸Á¶/¿ëµµ/´ëÁö±Ç ¸éÀû ºñ°í
´ëÁö±Ç
È­°îµ¿ 1035-2 182.3ºÐÀÇ 28.85 28.85 §³
(8.73Æò)
°Ç¹°
È­°îµ¿ 1035-2 Á¦2Ãþ Á¦201È£ ö±ÙÄÜÅ©¸®Æ®±¸Á¶ 42.95 §³
(12.99Æò)
1) À§Ä¡/µµ½ÃÁö¿ª/Á¦2Á¾ÀϹÝÁÖ°ÅÁö¿ª/ÅäÁö°Å·¡°è¾à¿¡°üÇÑÇã°¡±¸¿ª/ÁÖÂ÷Àå/ÁöÇÏö/³ë¼±¹ö½ºÁ¤·ùÀå/ö±ÙÄÜÅ©¸®Æ®±¸Á¶/µµ½Ã°¡½º/°³º°³­¹æ ´õº¸±â
°¨Á¤Æò°¡ ¿äÇ×Ç¥
1)À§Ä¡ ¹× ÁÖÀ§È¯°æ
º»°ÇÀº ¼­¿ïƯº°½Ã °­¼­±¸ È­°îµ¿ ¼ÒÀç "È­°î3µ¿ Áֹμ¾ÅÍ" ºÏ¼­Ãø Àαٿ¡ À§Ä¡Çϸç ÁÖÀ§´Â ´Üµ¶ÁÖÅÃ, ´Ù¼¼´ëÁÖÅÃ, ¾ÆÆÄÆ®, ÁÖ»ó¿ë°Ç¹°, °ø¿ø, °ø°ø½Ã¼³, ±³À°½Ã¼³, ±Ù¸°»ýȰ½Ã¼³ µîÀÌ È¥ÀçÇÏ´Â ÁÖ°ÅÁö¿ªÀ¸·Î¼­ Á¦¹ÝÁÖÀ§È¯°æÀº º¸ÅëÀÓ.
2)±³Åë»óȲ
º»°Ç±îÁö Â÷·®ÁøÃâÀÔÀÌ °¡´ÉÇϸç ÁÖÀ§¿¡ ³ë¼±¹ö½ºÁ¤·ùÀå ¹× ÁöÇÏö5È£¼± "È­°î¿ª" µî ÀÌ ¼ÒÀçÇÏ¿© ´ëÁß±³Åë»óȲÀº º¸ÅëÀÓ.
3)°Ç¹°ÀÇ ±¸Á¶
ö±ÙÄÜÅ©¸®Æ®±¸Á¶ Æò½½¶óºêÁöºØ 6Ãþ °øµ¿ÁÖÅà °Ç¹° ³» Á¦2Ãþ Á¦201È£·Î¼­, ¿Üº® : ¼®ÀçºÙÀÓ ¸¶°¨ µî ³»º® : º®Áöµµ¹è ¹× ÀϺΠŸÀÏ ¸¶°¨ µî âȣ : ¼¦½Ã âȣ µî ÀÓ.
4)ÀÌ¿ë»óÅÂ
°øµ¿ÁÖÅÃ(µµ½ÃÇü»ýȰÁÖÅà ´ÜÁöÇü´Ù¼¼´ë)À¸·Î ÀÌ¿ëÁßÀÓ. (ÈÄ÷ ' ³»ºÎ±¸Á¶µµ' ÂüÁ¶)
5)¼³ºñ³»¿ª
°³º°³­¹æ½Ã¼³·Î¼­ µµ½Ã°¡½º¼³ºñ, ½Â°­±â¼³ºñ, ÁÖÂ÷Àå¼³ºñ, ¼ÒÈ­Àü¼³ºñ, ±Þ¹è¼ö¼³ºñ ¹× ±âº»ÀûÀÎ À§»ý¼³ºñ µî °®Ãß¾úÀ½.
6)ÅäÁöÀÇ Çü»ó ¹× ÀÌ¿ë»óÅÂ
ÀÎÁ¢Áö ¹× ÀÎÁ¢µµ·Î¿Í ´ëü·Î µî°íÆòźÇÑ ¼¼ÀåÇüÀÇ ÅäÁö·Î¼­, °øµ¿ÁÖÅÃ(µµ½ÃÇü»ýȰÁÖÅà ´ÜÁöÇü´Ù¼¼´ë) °ÇºÎÁö µîÀ¸·Î ÀÌ¿ëÁßÀÓ.
7)ÀÎÁ¢ µµ·Î»óŵî
º»°Ç ºÏÃøÀ¸·Î °­¼­·Î37±æ°ú Á¢ÇÔ.
8)ÅäÁöÀÌ¿ë°èȹ ¹× Á¦ÇÑ»óÅÂ
µµ½ÃÁö¿ª, Á¦2Á¾ÀϹÝÁÖ°ÅÁö¿ª(7ÃþÀÌÇÏ), Áß¿ä½Ã¼³¹°º¸È£Áö±¸(°øÇ×), °¡Ãà»çÀ°Á¦Çѱ¸¿ª(Áö¿ª°æÁ¦°ú È®ÀÎ ¿ä¸Á)<°¡ÃàºÐ´¢ÀÇ °ü¸® ¹× À̿뿡 °üÇÑ ¹ý·ü>, ¼öÆòÇ¥¸é±¸¿ª(¼öÆòÇ¥¸é)<°øÇ׽ü³¹ý>, ´ë°ø¹æ¾îÇùÁ¶±¸¿ª(À§Å¹°íµµ:77-257m)<±º»ç±âÁö ¹× ±º»ç½Ã¼³ º¸È£¹ý>, °ú¹Ð¾ïÁ¦±Ç¿ª<¼öµµ±ÇÁ¤ºñ°èȹ¹ý>, ÅäÁö°Å·¡°è¾à¿¡°üÇÑÇã°¡±¸¿ª(´ë»óÀÚ: ¿Ü±¹ÀÎ µî. ¿ëµµ: ´Üµ¶ ´Ù°¡±¸ ¾ÆÆÄÆ® ¿¬¸³ ´Ù¼¼´ë. ÁöÁ¤±â°£: 2025.8.26.~2026.8.25.)ÀÓ.
9)°øºÎ¿ÍÀÇ Â÷ÀÌ
-
10)±âŸÂü°í»çÇ×(ÀÓ´ë°ü·Ê ¹× ±âŸ)
ÀÓ´ë°ü°è´Â ¹Ì»óÀÓ.
Âü°í
»çÇ×
- ÀÓÂ÷ÀÎ ¹× ÁÖÅÃÀÓÂ÷±Ç ½Â°èÀÎ ÁÖÅõµ½Ãº¸Áõ°ø»çÀÇ ¹è´ç¹ÞÁö ¸øÇÏ´Â Àܾ׿¡ ´ëÇÑ ÀÓÂ÷º¸Áõ±Ý¹Ýȯû±¸±Ç Æ÷±â Á¶°Ç ¸Å°¢

°ÇÃ๰ÇöȲ

¼ÒÀçÁö ¼­¿ïƯº°½Ã °­¼­±¸ È­°îµ¿ 1035-2¹øÁö
´ëÁö¸éÀû 182.3§³
(55.24Æò)
¿¬¸éÀû 364.1§³
(110.33Æò)
°ÇÃà¸éÀû 107.64§³
(32.62Æò)
¿ëÀû·ü»êÁ¤
¿¬¸éÀû
364.1§³
(110.33Æò)
°ÇÆóÀ² 59.05% ¿ëÀû·ü 199.73%
Áö»óÃþ¼ö 6Ãþ ÁöÇÏÃþ¼ö  
ÁÖ¿ëµµ °øµ¿ÁÖÅà ±¸Á¶ ö±ÙÄÜÅ©¸®Æ®±¸Á¶
Âø°øÀÏÀÚ 2018.01.21 »ç¿ë½ÂÀÎÀÏÀÚ 2019.02.22
°ÇÃ๰Ãþº°ÇöȲ [º¸±â]


±¹ÅäºÎ½Ç°Å·¡°¡ ¼­¿ïƯº°½Ã °­¼­±¸ È­°îµ¿

¡Ü ¸Å¸Å

¸éÀû(§³), ±Ý¾×(¸¸¿ø)

¡Ü Àü¼¼

¸éÀû(§³), ±Ý¾×(¸¸¿ø)

°è¾àÀϰǹ°¸íĪÃþ¿¬¸éÀûº¸Áõ±Ý¿ù¼¼°ÇÃà
26.03.31(772-22)439.1623,52002021
26.03.31û¼ÛÆòÈ­ÇコÇϿ콺339.8422,68062016
26.03.31û¼ÛÆòÈ­ÇコÇϿ콺339.8422,68002016
26.03.30¹Ì·¡ÇϿ콺224.2420,00022018
26.03.30³ª»ê¸Ç¼Ç2Â÷428.89,100252002
¢Ñ ´õº¸±â

µî±âºÎµîº» ¿ä¾à(°Ç¹°)

  Á¢¼öÀÏÀÚ µî±â¸ñÀû/±Ç¸®ÀÚ ±Ç¸®±Ý¾× ±âÁØ
1 2019³â7¿ù15ÀÏ
¼ÒÀ¯±Ç
¼ÛOO
¼Ò¸ê
2 2020³â8¿ù28ÀÏ
°¡¾Ð·ù
ÁÖOOOO
548,000,000 ¼Ò¸ê±âÁØ
3 2023³â8¿ù1ÀÏ
ÀÓÂ÷±Ç¼³Á¤
ÇãOO
270,000,000 ¼Ò¸ê
4 2025³â9¿ù30ÀÏ
°­Á¦°æ¸Å
ÁÖOOOO
¼Ò¸ê
5 2025³â10¿ù21ÀÏ
¾Ð·ù
±¹OOOO
¼Ò¸ê

ÀÓÂ÷ÀÎÇöȲ (¹è´ç¿ä±¸Á¾±âÀÏ: 2025-12-31)



¸Å°¢±âÀÏ 7ÀÏÀü¿¡ ¸Å°¢¹°°Ç¸í¼¼¼­°¡ °ø°íµÇ¿À´Ï È®ÀÎÇϽñ⠹ٶø´Ï´Ù.

ÀÓÂ÷ÀÎ ¿ëµµ/Á¡À¯ º¸Áõ±Ý/¿ù¼¼ ´ëÇ×·Â
ÀüÀÔÀÏ/È®Á¤ÀÏ ¹è´ç¿ä±¸ ºñ°í
ÁÖOOOOOOO 201È£ÀüºÎ 270,000,000
2019.07.04(Çã¼ö¹Ì)
2019.06.27
2025.12.31. 2019.06.28 ~2021.06.27
ÇãOO °Ç¹°ÀüºÎ 270,000,000
O
2019.07.04
2019.06.27
2019.06.28 ~
ºñ°í
(¸Å°¢¹°°Ç
¸í¼¼¼­)
ÁÖÅõµ½Ãº¸Áõ°ø»ç : ÀÌ »ç°Ç ½Åûä±ÇÀÚ·Î ÁÖÅÃÀÓÂ÷±ÇÀÚ Çã¼ö¹ÌÀÇ ÁöÀ§¸¦ ½Â°èÇÏ¿© ±Ç¸®½Å°í ¹× ¹è´ç¿ä±¸ÇÔ Çã¼ö¹Ì : ÁÖÅÃÀÓÂ÷±Ç µî±âÀÏÀº 2023.08.01.ÀÓ

¿©ÀÇÁÖ°æ¸Å Á¶¾ð ÇÑ ¸¶µð

¼±¼øÀ§ ÀÓÂ÷±Çµî±â°¡ µÇ¾î ÀÖ½À´Ï´Ù
´ëÇ×·ÂÀÌ ÀÖ´Â ¼±¼øÀ§ ÀÓÂ÷±Çµî±â ±Ç¸®ÀÚ°¡ ¹è´çÀ» Àü¾× ¹ÞÁö ¸øÇÒ °æ¿ì ³«ÂûÀÚ°¡ ÀÜ¿© º¸Áõ±ÝÀ» ÀμöÇØ¾ßÇÏ´Â °æ¿ìµµ ÀÖ½À´Ï´Ù.

ÁÖÀÇ»çÇ× (ÃÖ¼±¼øÀ§ ¼³Á¤ÀÏ: 2020.08.28. °¡¾Ð·ù ¼³Á¤)

¸Å°¢À¸·Î ¼Ò¸êµÇÁö ¾Ê´Â µî±âºÎ±Ç¸®:
¸Å°¢À¸·Î ¼³Á¤µÈ °ÍÀ¸·Î º¸´Â Áö»ó±Ç:
- ÀÓÂ÷ÀÎ Çã¼ö¹Ì ¹× ÁÖÅÃÀÓÂ÷±Ç ½Â°èÀÎ ÁÖÅõµ½Ãº¸Áõ°ø»ç´Â ¸Å¼öÀο¡ ´ëÇÏ¿© ¹è´ç¹ÞÁö ¸øÇÏ´Â Àܾ׿¡ ´ëÇÑ ÀÓÂ÷º¸Áõ±Ý¹Ýȯû ±¸±ÇÀ» Æ÷±âÇϰí, ÁÖÅÃÀÓÂ÷±Çµî±â¸¦ ¸»¼ÒÇÏ´Â °ÍÀ» Á¶°ÇÀ¸·Î ¸Å°¢
¡Ø¹Ì³³°ü¸®ºñ(°ø¿ë) Àμö¿©ºÎ¸¦ ÀÔÂû Àü¿¡ È®ÀÎÇϽñ⠹ٶø´Ï´Ù

 

Áö¿ªºÐ¼®

ÁöÇÏö¸í Á÷¼±°Å¸®

Çб³¸í ÀüÈ­¹øÈ£ ÁÖ¼Ò Á÷¼±°Å¸®

¹ý¿ø

¼­¿ï³²ºÎÁö¹æ¹ý¿ø (080-88)¼­¿ïƯº°½Ã ¾çõ±¸ ½Å¿ù·Î 386(½ÅÁ¤µ¿)
´ëÇ¥ : 02)2192-1114
°üÇÒÁö¿ª : ¿µµîÆ÷±¸, °­¼­±¸, ¾çõ±¸, ±¸·Î±¸, ±Ýõ±¸

µî±â¼Ò ¼­¿ï³²ºÎÁö¹æ¹ý¿ø º»¿ø µî±â±¹ (´ëÇ¥:1544-0773, ÆÑ½º:(02)2629-7307, ¼­¿ïƯº°½Ã ¿µµîÆ÷±¸ °æÀηΠ772 (¹®·¡µ¿ 1°¡))
¼¼¹«¼­ °­¼­¼¼¹«¼­ (´ëÇ¥:02-2630-42, ÆÑ½º:02-2679-8777, ¼­¿ïƯº°½Ã °­¼­±¸ ¸¶°î¼­1·Î 60 (¸¶°îµ¿))

Àαٳ«ÂûÅë°è

±â°£ ¸Å°¢°Ç¼ö Æò±Õ°¨Á¤°¡
Æò±Õ¸Å°¢°¡
¸Å°¢°¡À²
Æò±ÕÀ¯Âû¼ö
3°³¿ù 280°Ç 268,613,786¿ø
191,666,240¿ø
71%
2.5ȸ
6°³¿ù 535°Ç 264,905,631¿ø
191,174,682¿ø
72%
2.5ȸ
12°³¿ù 1,001°Ç 262,120,763¿ø
196,606,212¿ø
76%
2.3ȸ


º» °æ¸ÅÁ¤º¸´Â ¹ý¿øÀÚ·á¿Í ÀÏÄ¡Çϵµ·Ï ÇÏ¿´À¸³ª ±Ç¸®»çÇ׺¯µ¿, ÀÔ·ÂÂø¿À µîÀÇ ¿øÀÎÀ¸·Î »ç½Ç°ú ´Ù¸¦ ¼ö ÀÖ½À´Ï´Ù. ÀÌ¿ë¾à°ü¿¡ ÀǰЏéÃ¥Á¶°ÇÀ¸·Î Á¦°øµÊÀ» ¾Ë¸®¸ç, °æ¸ÅÀÔÂû½Ã ¹Ýµå½Ã °ü·Ã °øºÎ¸¦ ÀçÈ®ÀÎÇϽñ⠹ٶø´Ï´Ù. º¸´Ù Æí¸®ÇÑ °æ¸ÅÁ¤º¸ Á¦°øÀ» À§ÇØ Áö¼ÓÀûÀ¸·Î °³¼±ÇϰڽÀ´Ï´Ù. ÀÌ¿ëÇØ Áּż­ °¨»çÇÕ´Ï´Ù.