·Î±×ÀÎ
65
¿ÀÇǽºÅÚ
¼­¿ï³²ºÎÁö¹æ¹ý¿ø
 °¨Á¤°¡207,000,000 ¿ø
 ÃÖÀú°¡(100%) 207,000,000 ¿ø
 º¸Áõ±Ý(10%) 20,700,000 ¿ø
 Ã»±¸¾×199,500,000 ¿ø
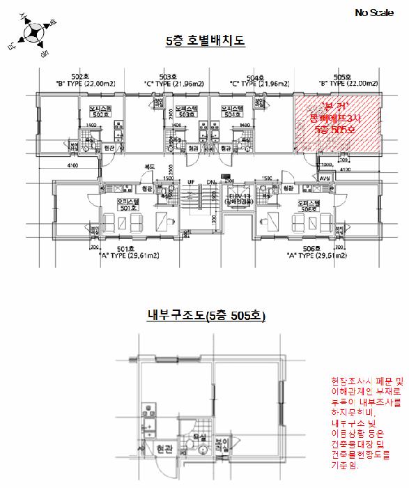
¼­¿ïƯº°½Ã ±¸·Î±¸ ±¸·Îµ¿ 1127-25 ¸ù»ß¿¡¶ß3Â÷ Á¦5Ãþ Á¦505È£
»ç°Ç¹øÈ£ 2025Ÿ°æ12029
°æ¸ÅÁ¾·ùºÎµ¿»ê°­Á¦°æ¸Å
¸Å°¢´ë»óÅäÁö ¹× °Ç¹°Àϰý ¸Å°¢
¸Å°¢±âÀÏ    2026.04.16(¸ñ) 10:00 ÀÔÂû 8ÀÏÀü    
ÅäÁö¸éÀû11.85§³(3.58 Æò)
°Ç¹°¸éÀû22.00§³(6.66 Æò)
乫/¼ÒÀ¯ÀÚ¿ÀOO / ¿ÀOO
ä±ÇÀÚÁÖOOOOOOO
ÆäÀ̽ººÏ Æ®À§ÅÍ ±¸±Û+
īī¿À½ºÅ丮
īī¿ÀÅå sms¹®ÀÚº¸³»±â
 

±âÀϳ»¿ª

°æ°ú ³¯Â¥ Àú°¨ ÃÖÀú°¡ °á°ú
Á¢¼öÀÏ 2025-09-09 °æ¸ÅÁ¢¼ö
~1ÀÏ 
2025-09-10 °æ¸Å°³½Ã°áÁ¤
~92ÀÏ 
2025-12-10 ¹è´ç¿ä±¸Á¾±âÀÏ
~219ÀÏ 
2026-04-16 100%
207,000,000
ÁøÇà
¹°°Ç¸í¼¼¼­ ÇöȲÁ¶»ç¼­ ¹®°ÇÁ¢¼ö ¼Û´Þ³»¿ª

°¨Á¤Æò°¡ÇöȲ

¸ñ·Ï ÁÖ¼Ò ±¸Á¶/¿ëµµ/´ëÁö±Ç ¸éÀû ºñ°í
´ëÁö±Ç
±¸·Îµ¿ 1127-25 530.9ºÐÀÇ 11.846 11.846 §³
(3.58Æò)
°Ç¹°
±¸·Îµ¿ 1127-25 Á¦5Ãþ Á¦505È£ ö±ÙÄÜÅ©¸®Æ®±¸Á¶ 22 §³
(6.66Æò)
1) À§Ä¡/µµ½ÃÁö¿ª/Áذø¾÷Áö¿ª/ÅäÁö°Å·¡°è¾à¿¡°üÇÑÇã°¡±¸¿ª/ÁÖÂ÷Àå/³ë¼±¹ö½ºÁ¤·ùÀå/ö±ÙÄÜÅ©¸®Æ®±¸Á¶/Æò½º¶óºêÁöºØ/°³º°³­¹æ ´õº¸±â
°¨Á¤Æò°¡ ¿äÇ×Ç¥
1)À§Ä¡ ¹× ÁÖÀ§È¯°æ
º»°ÇÀº ¼­¿ïƯº°½Ã ±¸·Î±¸ ±¸·Îµ¿ ¼ÒÀç ""±¸·ÎµðÁöÅдÜÁö¿ª(2È£¼±)"" ³²¼­Ãø Àαٿ¡ À§Ä¡Çϸç, ÁÖÀ§´Â Áö½Ä»ê¾÷¼¾ÅÍ, ´Ù¼¼´ë, ¿ÀÇǽºÅÚ, ±Ù¸°»ýȰ½Ã¼³ ¹× È£ÅÚ µîÀÌ È¥ÀçÇÏ´Â Áö´ë·Î¼­, Á¦¹Ý ÁÖÀ§¿©°ÇÀº º¸ÅëÀÓ.
2)±³Åë»óȲ
º» °Ç¹°Àº Àαٿ¡ ³ë¼±¹ö½ºÁ¤·ùÀå ¹× '±¸·ÎµðÁöÅдÜÁö¿ª(2È£¼±)'ÀÌ ¼ÒÀçÇÏ´Â µî ´ëÁß±³Åë ÆíÀǵµ´Â º¸Åë½Ã µÊ.
3)°Ç¹°ÀÇ ±¸Á¶
ö±ÙÄÜÅ©¸®Æ®±¸Á¶ (ö±Ù)ÄÜÅ©¸®Æ®Æò½º¶óºêÁöºØ Áö»ó 8Ãþ°Ç ³» 5Ãþ 505È£·Î¼­,
¿Ü º® : ¼®ÀçŸÀÏ ºÙÀÓ µî ¸¶°¨.
³» º® : º®Áö, ŸÀÏ µî ¸¶°¨.
â È£ : ¼¦½Ãâȣ ¸¶°¨.
4)ÀÌ¿ë»óÅÂ
¾÷¹«½Ã¼³(¿ÀÇǽºÅÚ) (ÈÄ÷ : ""È£º°¹èÄ¡µµ ¹× ³»ºÎ±¸Á¶µµ"" ÂüÁ¶)·Î ÀÌ¿ëÁßÀÓ.
5)¼³ºñ³»¿ª
±âº»ÀûÀÎ ½Â°­±â¼³ºñ, °³º°³­¹æ¼³ºñ, ¼ÒÈ­Àü¼³ºñ, À§»ý ¹× ±Þ¹è¼ö½Ã¼³ °®Ãß¾úÀ¸¸ç, ±â°è½ÄÁÖÂ÷Àå µîÀ» °®Ãß¾úÀ½.

6)ÅäÁöÀÇ Çü»ó ¹× ÀÌ¿ë»óÅÂ
2ÇÊÁö ÀÏ´ÜÀÇ ÆòÁö »ç´Ù¸®Çü ÅäÁö·Î, ¾÷¹«½Ã¼³(¿ÀÇǽºÅÚ)°ÇºÎÁö·Î ÀÌ¿ëÁßÀÓ.
7)ÀÎÁ¢ µµ·Î»óŵî
º»°Ç ºÏ¼­ÃøÀ¸·Î ¾à4¹ÌÅÍ ³»¿ÜÀÇ ¸·´Ù¸¥µµ·Î¸¦ ÅëÇØ Àαٵµ·Î¿Í Á¢ÇÔ.
8)ÅäÁöÀÌ¿ë°èȹ ¹× Á¦ÇÑ»óÅÂ
°øÈ÷, µµ½ÃÁö¿ª, Áذø¾÷Áö¿ª °¡·Î±¸¿ªº° ÃÖ°í³ôÀÌ Á¦ÇÑÁö¿ª(2015-08-27)<°ÇÃà¹ý>, Àå¾Ö¹°Á¦ÇÑÇ¥¸é±¸¿ª(ÁøÀÔÇ¥¸é)<°øÇ׽ü³¹ý>, ´ë°ø¹æ¾îÇùÁ¶±¸¿ª(À§Å¹°íµµ:ÇØ¹ß165m(Áö¹Ý+°ÇÃà+¿Áž µî), À°±º¼öµµ¹æÀ§»ç·ÉºÎ(02-524-3146)°üÇÒ)<±º»ç±âÁö ¹× ±º»ç½Ã¼³ º¸È£¹ý>, °ú¹Ð¾ïÁ¦±Ç¿ª<¼öµµ±ÇÁ¤ºñ°èȹ¹ý> °ÇÃà¹ý Á¦2Á¶Á¦1Ç×Á¦11È£³ª¸ñ¿¡ µû¸¥ µµ·Î(µµ·ÎÀÏºÎÆ÷ÇÔ) ÅäÁö°Å·¡°è¾à¿¡°üÇÑÇã°¡±¸¿ª(´ë»óÀÚ: ¿Ü±¹ÀÎ µî, ¿ëµµ: ´Üµ¶, ´Ù°¡±¸, ¾ÆÆÄÆ®, ¿¬¸³, ´Ù¼¼´ë, ÁöÁ¤±â°£: 2025.8.26.~2026.8.25.)
9)°øºÎ¿ÍÀÇ Â÷ÀÌ
¾ø À½.
10)±âŸÂü°í»çÇ×(ÀÓ´ë°ü·Ê ¹× ±âŸ)
ÀÓ ´ë °ü °è: µî±â»çÇ×ÀüºÎÁõ¸í¼­»ó ÀÓÂ÷±Ç¼³Á¤ µÇ¾îÀÖÀ½.

±â Ÿ: ÇØ´ç»çÇ× ¾øÀ½.
Âü°í
»çÇ×
- ÀÓÂ÷ÀÎ ¹× ÁÖÅÃÀÓÂ÷±Ç ½Â°èÀÎ ÁÖÅõµ½Ãº¸Áõ°ø»çÀÇ ¹è´ç¹ÞÁö ¸øÇÏ´Â Àܾ׿¡ ´ëÇÑ ÀÓÂ÷º¸Áõ±Ý¹Ýȯû±¸±Ç Æ÷±â Á¶°Ç ¸Å°¢

°ÇÃ๰ÇöȲ

¼ÒÀçÁö ¼­¿ïƯº°½Ã ±¸·Î±¸ ±¸·Îµ¿ 1127-25¹øÁö
´ëÁö¸éÀû 511.92§³
(155.13Æò)
¿¬¸éÀû 1401.06§³
(424.56Æò)
°ÇÃà¸éÀû 209.8§³
(63.58Æò)
¿ëÀû·ü»êÁ¤
¿¬¸éÀû
1272.26§³
(385.53Æò)
°ÇÆóÀ² 40.98% ¿ëÀû·ü 248.53%
Áö»óÃþ¼ö 8Ãþ ÁöÇÏÃþ¼ö 1Ãþ
ÁÖ¿ëµµ ¾÷¹«½Ã¼³ ±¸Á¶ ö±ÙÄÜÅ©¸®Æ®±¸Á¶
Âø°øÀÏÀÚ 2018.08.09 »ç¿ë½ÂÀÎÀÏÀÚ 2019.04.18
°ÇÃ๰Ãþº°ÇöȲ [º¸±â]


±¹ÅäºÎ½Ç°Å·¡°¡ ¼­¿ïƯº°½Ã ±¸·Î±¸ ±¸·Îµ¿

¡Ü ¸Å¸Å

¸éÀû(§³), ±Ý¾×(¸¸¿ø)

¡Ü Àü¼¼

¸éÀû(§³), ±Ý¾×(¸¸¿ø)

°è¾àÀϰǹ°¸íĪÃþÀü¿ëº¸Áõ±Ý¿ù¼¼°ÇÃà
26.03.31¸ù»ß¿¡¶ß3Â÷72215,000322019
26.03.25¸ù»ß¿¡¶ß3Â÷22217,60032019
26.03.24¸ù»ß¿¡¶ß3Â÷329.6123,30032019
26.03.24¸ù»ß¿¡¶ß3Â÷329.6123,30032019
26.03.08¸ù»ß¿¡¶ß3Â÷229.6123,00042019
¢Ñ ´õº¸±â

µî±âºÎµîº» ¿ä¾à(°Ç¹°)

  Á¢¼öÀÏÀÚ µî±â¸ñÀû/±Ç¸®ÀÚ ±Ç¸®±Ý¾× ±âÁØ
1 2019³â10¿ù21ÀÏ
¼ÒÀ¯±Ç
¿ÀOO
¼Ò¸ê
2 2022³â12¿ù1ÀÏ
¾àÁ¤/±ÝÁö»çÇ×/ȯ¸ÅƯ¾à
Àμö
3 2023³â10¿ù17ÀÏ
ÀÓÂ÷±Ç¼³Á¤
¾çOO
199,500,000 Àμö
4 2024³â6¿ù3ÀÏ
¾Ð·ù
±¹
¼Ò¸ê±âÁØ
5 2024³â9¿ù24ÀÏ
¾Ð·ù
±¹
¼Ò¸ê
6 2025³â9¿ù10ÀÏ
°­Á¦°æ¸Å
ÁÖOOOO
¼Ò¸ê

ÀÓÂ÷ÀÎÇöȲ (¹è´ç¿ä±¸Á¾±âÀÏ: 2025-12-10)



¸Å°¢±âÀÏ 7ÀÏÀü¿¡ ¸Å°¢¹°°Ç¸í¼¼¼­°¡ °ø°íµÇ¿À´Ï È®ÀÎÇϽñ⠹ٶø´Ï´Ù.

ÀÓÂ÷ÀÎ ¿ëµµ/Á¡À¯ º¸Áõ±Ý/¿ù¼¼ ´ëÇ×·Â
ÀüÀÔÀÏ/È®Á¤ÀÏ ¹è´ç¿ä±¸ ºñ°í
¾çOO °Ç¹°ÀüºÎ 199,500,000
O
2021.09.30
2021.09.01
2021.09.30 ~
ÁÖOOOOOOO 505È£ÀüºÎ 199,500,000
2021.09.30(¾çÇõ¼º)
2021.09.01
2025.12.9. 2021.09.30 ~2023.09.29
ºñ°í
(¸Å°¢¹°°Ç
¸í¼¼¼­)
¾çÇõ¼º : ÁÖÅÃÀÓÂ÷±Ç µî±âÀÏÀº 2023.10.17ÀÓ ÁÖÅõµ½Ãº¸Áõ°ø»ç : ÀÌ »ç°Ç ½Åûä±ÇÀÚ·Î ÁÖÅÃÀÓÂ÷±ÇÀÚ ¾çÇõ¼ºÀÇ ÁöÀ§¸¦ ½Â°èÇÏ¿© ±Ç¸®½Å°í ¹× ¹è´ç¿ä±¸ÇÔ

¿©ÀÇÁÖ°æ¸Å Á¶¾ð ÇÑ ¸¶µð

¼±¼øÀ§ ÀÓÂ÷±Çµî±â°¡ µÇ¾î ÀÖ½À´Ï´Ù
´ëÇ×·ÂÀÌ ÀÖ´Â ¼±¼øÀ§ ÀÓÂ÷±Çµî±â ±Ç¸®ÀÚ°¡ ¹è´çÀ» Àü¾× ¹ÞÁö ¸øÇÒ °æ¿ì ³«ÂûÀÚ°¡ ÀÜ¿© º¸Áõ±ÝÀ» ÀμöÇØ¾ßÇÏ´Â °æ¿ìµµ ÀÖ½À´Ï´Ù.

ÁÖÀÇ»çÇ× (ÃÖ¼±¼øÀ§ ¼³Á¤ÀÏ: 2024.06.03. ¾Ð·ù ¼³Á¤)

¸Å°¢À¸·Î ¼Ò¸êµÇÁö ¾Ê´Â µî±âºÎ±Ç¸®:
¸Å°¢À¸·Î ¼³Á¤µÈ °ÍÀ¸·Î º¸´Â Áö»ó±Ç:
- ÁýÇÕ°ÇÃ๰´ëÀå»ó ¡®¾÷¹«½Ã¼³(¿ÀÇǽºÅÚ)¡¯·Î µîÀçµÇ¾î ÀÖÀ¸³ª, ÇöȲ ÁÖ°Å¿ëÀ¸·Î »ç¿ëÁßÀÓ - ÀÓÂ÷ÀÎ ¾çÇõ¼º ¹× ÁÖÅÃÀÓÂ÷±Ç ½Â°èÀÎ ÁÖÅõµ½Ãº¸Áõ°ø»ç´Â ¸Å¼öÀο¡ ´ëÇÏ¿© ¹è´ç¹ÞÁö ¸øÇÏ´Â Àܾ׿¡ ´ëÇÑ ÀÓÂ÷º¸Áõ±Ý¹Ýȯû ±¸±ÇÀ» Æ÷±âÇϰí, ÁÖÅÃÀÓÂ÷±Çµî±â¸¦ ¸»¼ÒÇÏ´Â °ÍÀ» Á¶°ÇÀ¸·Î ¸Å°¢
¡Ø¹Ì³³°ü¸®ºñ(°ø¿ë) Àμö¿©ºÎ¸¦ ÀÔÂû Àü¿¡ È®ÀÎÇϽñ⠹ٶø´Ï´Ù

 

Áö¿ªºÐ¼®

ÁöÇÏö¸í Á÷¼±°Å¸®

Çб³¸í ÀüÈ­¹øÈ£ ÁÖ¼Ò Á÷¼±°Å¸®

¹ý¿ø

¼­¿ï³²ºÎÁö¹æ¹ý¿ø (080-88)¼­¿ïƯº°½Ã ¾çõ±¸ ½Å¿ù·Î 386(½ÅÁ¤µ¿)
´ëÇ¥ : 02)2192-1114
°üÇÒÁö¿ª : ¿µµîÆ÷±¸, °­¼­±¸, ¾çõ±¸, ±¸·Î±¸, ±Ýõ±¸

µî±â¼Ò ¼­¿ï³²ºÎÁö¹æ¹ý¿ø º»¿ø µî±â±¹ (´ëÇ¥:1544-0773, ÆÑ½º:(02)2629-7307, ¼­¿ïƯº°½Ã ¿µµîÆ÷±¸ °æÀηΠ772 (¹®·¡µ¿ 1°¡))
¼¼¹«¼­ ±¸·Î¼¼¹«¼­ (´ëÇ¥:02-2630-72, ÆÑ½º:02-2679-6394, ¼­¿ïƯº°½Ã ¿µµîÆ÷±¸ °æÀηΠ778 (¹®·¡µ¿1°¡))

Àαٳ«ÂûÅë°è

±â°£ ¸Å°¢°Ç¼ö Æò±Õ°¨Á¤°¡
Æò±Õ¸Å°¢°¡
¸Å°¢°¡À²
Æò±ÕÀ¯Âû¼ö
3°³¿ù 30°Ç 249,466,667¿ø
205,116,738¿ø
83%
1.7ȸ
6°³¿ù 53°Ç 242,575,472¿ø
199,394,254¿ø
83%
1.8ȸ
12°³¿ù 102°Ç 265,926,471¿ø
223,255,964¿ø
84%
1.9ȸ


º» °æ¸ÅÁ¤º¸´Â ¹ý¿øÀÚ·á¿Í ÀÏÄ¡Çϵµ·Ï ÇÏ¿´À¸³ª ±Ç¸®»çÇ׺¯µ¿, ÀÔ·ÂÂø¿À µîÀÇ ¿øÀÎÀ¸·Î »ç½Ç°ú ´Ù¸¦ ¼ö ÀÖ½À´Ï´Ù. ÀÌ¿ë¾à°ü¿¡ ÀǰЏéÃ¥Á¶°ÇÀ¸·Î Á¦°øµÊÀ» ¾Ë¸®¸ç, °æ¸ÅÀÔÂû½Ã ¹Ýµå½Ã °ü·Ã °øºÎ¸¦ ÀçÈ®ÀÎÇϽñ⠹ٶø´Ï´Ù. º¸´Ù Æí¸®ÇÑ °æ¸ÅÁ¤º¸ Á¦°øÀ» À§ÇØ Áö¼ÓÀûÀ¸·Î °³¼±ÇϰڽÀ´Ï´Ù. ÀÌ¿ëÇØ Áּż­ °¨»çÇÕ´Ï´Ù.