·Î±×ÀÎ
302
¿ÀÇǽºÅÚ
ÀÇÁ¤ºÎÁö¹æ¹ý¿ø °í¾çÁö¿ø
 °¨Á¤°¡222,000,000 ¿ø
 ÃÖÀú°¡(70%) 155,400,000 ¿ø
 º¸Áõ±Ý(10%) 15,540,000 ¿ø
 Ã»±¸¾×240,000,000 ¿ø
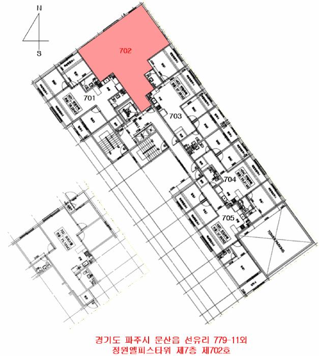
°æ±âµµ ÆÄÁֽà ¹®»êÀ¾ ¼±À¯¸® 779-11 Á¤¿ø¿¤ÇǽºÅ¸¿ö 7Ãþ702È£
»ç°Ç¹øÈ£ 2025Ÿ°æ65278
°æ¸ÅÁ¾·ùºÎµ¿»ê°­Á¦°æ¸Å
¸Å°¢´ë»óÅäÁö ¹× °Ç¹°Àϰý ¸Å°¢
¸Å°¢±âÀÏ    2026.06.25(¸ñ) 10:00 ÀÔÂû 26ÀÏÀü    
ÅäÁö¸éÀû14.43§³(4.37 Æò)
°Ç¹°¸éÀû75.10§³(22.72 Æò)
乫/¼ÒÀ¯ÀÚ¼ÕOO / ¼ÕOO
ä±ÇÀÚÁÖOOOOOOO
ÆäÀ̽ººÏ Æ®À§ÅÍ ±¸±Û+
īī¿À½ºÅ丮
īī¿ÀÅå sms¹®ÀÚº¸³»±â
 

±âÀϳ»¿ª

°æ°ú ³¯Â¥ Àú°¨ ÃÖÀú°¡ °á°ú
Á¢¼öÀÏ 2025-12-26 °æ¸ÅÁ¢¼ö
~3ÀÏ 
2025-12-29 °æ¸Å°³½Ã°áÁ¤
~87ÀÏ 
2026-03-23 ¹è´ç¿ä±¸Á¾±âÀÏ
~111ÀÏ 
2026-04-16 100%
222,000,000
À¯Âû
~146ÀÏ 
2026-05-21 70%
155,400,000
º¯°æ
~146ÀÏ 
2026-05-21 100%
222,000,000
À¯Âû
~181ÀÏ 
2026-06-25 70%
155,400,000
ÁøÇà
¹°°Ç¸í¼¼¼­ ÇöȲÁ¶»ç¼­ ¹®°ÇÁ¢¼ö ¼Û´Þ³»¿ª

°¨Á¤Æò°¡ÇöȲ

¸ñ·Ï ÁÖ¼Ò ±¸Á¶/¿ëµµ/´ëÁö±Ç ¸éÀû ºñ°í
´ëÁö±Ç
¼±À¯¸® 779-11 866ºÐÀÇ 14.43 14.43 §³
(4.37Æò)
°Ç¹°
¼±À¯¸® 779-11 7Ãþ702È£ ö±ÙÄÜÅ©¸®Æ®±¸Á¶ 75.1 §³
(22.72Æò)
1) À§Ä¡/µµ½ÃÁö¿ª/ÀϹݻó¾÷Áö¿ª/ÅäÁö°Å·¡°è¾à¿¡°üÇÑÇã°¡±¸¿ª/³ë¼±¹ö½ºÁ¤·ùÀå/ö±ÙÄÜÅ©¸®Æ®±¸Á¶ ´õº¸±â
°¨Á¤Æò°¡ ¿äÇ×Ç¥
1)À§Ä¡ ¹× ÁÖÀ§È¯°æ
º»°ÇÀº °æ±âµµ ÆÄÁֽà ¹®»êÀ¾ ¼±À¯¸® ¼ÒÀç '¹®»êµ¿ÃʵîÇб³' ³²Ãø Àαٿ¡ ¼ÒÀçÇϸç ÁÖº¯Àº ¾ÆÆÄÆ®, ±Ù¸°»ýȰ½Ã¼³, Çб³, ³ó°æÁö µîÀÌ ¼ÒÀçÇÕ´Ï´Ù.
2)±³Åë»óȲ
º»°Ç±îÁö Â÷·®ÀÇ ÁøÀÔÀÌ °¡´ÉÇϰí Àαٿ¡ ³ë¼±¹ö½ºÁ¤·ùÀåÀÌ ¼ÒÀçÇÏ´Â µî ±³Åë»óȲÀº º¸ÅëÀÔ´Ï´Ù.
3)°Ç¹°ÀÇ ±¸Á¶
ö±ÙÄÜÅ©¸®Æ®±¸Á¶ ÆòÁöºØ 14Ãþ °Ç¹° ³» Á¦7Ãþ Á¦702È£·Î¼­ (»ç¿ë½ÂÀÎÀÏ: 2018.01.08.) ¿Üº®: ¸ôÅ»À§ ÆäÀÎÆÃ ¸¶°¨ µî âȣ: ¼¦½Ãâȣ µîÀÔ´Ï´Ù.
4)ÀÌ¿ë»óÅÂ
¿ÀÇǽºÅÚ·Î ÀÌ¿ë ÁßÀÔ´Ï´Ù.
5)¼³ºñ³»¿ª
±âº»ÀûÀÎ À§»ý¼³ºñ, ±Þ¹è¼ö¼³ºñ µîÀÌ ÀÖÀ¸¸ç ½Â°­±â ¼³ºñ, ÁÖÂ÷Ÿ¿ö µîÀÌ ÀÖ½À´Ï´Ù.
6)ÅäÁöÀÇ Çü»ó ¹× ÀÌ¿ë»óÅÂ
7ÇÊÁö ÀÏ´ÜÀÇ ºÎÁ¤ÇüÀÇ ÀÎÁ¢ÅäÁö ´ëºñ µî°íÆòź ÅäÁö·Î¼­ °øµ¿ÁÖÅÃ, ¾÷¹«½Ã¼³, Á¦1Á¾±Ù¸°»ýȰ½Ã¼³ °ÇºÎÁö·Î ÀÌ¿ë ÁßÀÔ´Ï´Ù.
7)ÀÎÁ¢ µµ·Î»óŵî
º»°Ç ºÏµ¿ÃøÀ¸·Î ³ëÆø ¾à 20m, ºÏ¼­ÃøÀ¸·Î ³ëÆø ¾à 4m ³»¿ÜÀÇ µµ·Î¿Í Á¢ÇÕ´Ï´Ù.
8)ÅäÁöÀÌ¿ë°èȹ ¹× Á¦ÇÑ»óÅÂ
(1) : µµ½ÃÁö¿ª, ÀϹݻó¾÷Áö¿ª, Áß·Î1·ù(Æø 20m~25m)(2025-04-11)(Áß·Î1-5)(Á¢ÇÕ), °¡Ãà»çÀ°Á¦Çѱ¸¿ª(ÀüºÎÁ¦Çѱ¸¿ª)<°¡ÃàºÐ´¢ÀÇ °ü¸® ¹× À̿뿡 °üÇÑ ¹ý·ü>, »ó´ëº¸È£±¸¿ª(2021-12-07)(¹®»êµ¿ÃʵîÇб³, ¹Ýµå½Ã ÆÄÁÖ±³À°Áö¿øÃ»¿¡ ÀçÈ®ÀÎ ¹Ù¶÷,TEL 031-940-7245)<±³À°È¯°æ º¸È£¿¡ °üÇÑ ¹ý·ü>, ÅäÁö°Å·¡°è¾à¿¡°üÇÑÇã°¡±¸¿ª(25.8.26.~26.8.25. ¿Ü±¹ÀÎ µîÀÇ ´Üµ¶ÁÖÅÃ, ´Ù°¡±¸ÁÖÅÃ, ¾ÆÆÄÆ®, ¿¬¸³ÁÖÅÃ, ´Ù¼¼´ëÁÖÅÃ) <Ãß°¡±âÀç>°ÇÃà¹ý Á¦2Á¶Á¦1Ç×Á¦11È£³ª¸ñ¿¡ µû¸¥ µµ·Î(µµ·ÎÀÏºÎÆ÷ÇÔ) (2),(3),(6),(7) : µµ½ÃÁö¿ª, ÀϹݻó¾÷Áö¿ª, Áß·Î1·ù(Æø 20m~25m)(2025-04-11)(Áß·Î1-5)(Á¢ÇÕ), °¡Ãà»çÀ°Á¦Çѱ¸¿ª(ÀüºÎÁ¦Çѱ¸¿ª)<°¡ÃàºÐ´¢ÀÇ °ü¸® ¹× À̿뿡 °üÇÑ ¹ý·ü>, »ó´ëº¸È£±¸¿ª(2021-12-07)(¹®»êµ¿ÃʵîÇб³, ¹Ýµå½Ã ÆÄÁÖ±³À°Áö¿øÃ»¿¡ ÀçÈ®ÀÎ ¹Ù¶÷,TEL 031-940-7245)<±³À°È¯°æ º¸È£¿¡ °üÇÑ ¹ý·ü>, ÅäÁö°Å·¡°è¾à¿¡°üÇÑÇã°¡±¸¿ª(25.8.26.~26.8.25. ¿Ü±¹ÀÎ µîÀÇ ´Üµ¶ÁÖÅÃ, ´Ù°¡±¸ÁÖÅÃ, ¾ÆÆÄÆ®, ¿¬¸³ÁÖÅÃ, ´Ù¼¼´ëÁÖÅÃ) (4),(5) : µµ½ÃÁö¿ª , ÀϹݻó¾÷Áö¿ª, °¡Ãà»çÀ°Á¦Çѱ¸¿ª(ÀüºÎÁ¦Çѱ¸¿ª)<°¡ÃàºÐ´¢ÀÇ °ü¸® ¹× À̿뿡 °üÇÑ ¹ý·ü>, »ó´ëº¸È£±¸¿ª(2021-12-07)(¹®»êµ¿ÃʵîÇб³, ¹Ýµå½Ã ÆÄÁÖ±³À°Áö¿øÃ»¿¡ ÀçÈ®ÀÎ ¹Ù¶÷,TEL 031-940-7245)<±³À°È¯°æ º¸È£¿¡ °üÇÑ ¹ý·ü>, ÅäÁö°Å·¡°è¾à¿¡°üÇÑÇã°¡±¸¿ª(25.8.26.~26.8.25. ¿Ü±¹ÀÎ µîÀÇ ´Üµ¶ÁÖÅÃ, ´Ù°¡±¸ÁÖÅÃ, ¾ÆÆÄÆ®, ¿¬¸³ÁÖÅÃ, ´Ù¼¼´ëÁÖÅÃ)
9)°øºÎ¿ÍÀÇ Â÷ÀÌ
ÇØ´ç»çÇ× ¾ø½À´Ï´Ù.
10)±âŸÂü°í»çÇ×(ÀÓ´ë°ü·Ê ¹× ±âŸ)
ÀÓ´ë°ü°è ¹Ì»óÀÔ´Ï´Ù.
Âü°í
»çÇ×
½Åûä±ÇÀÚÀÎ ÁÖÅõµ½Ãº¸Áõ°ø»ç(¾çµµÀü:ÁÖÅÃÀÓÂ÷±ÇÀÚ Á¤ÁöÈÆ)°¡ ¡®ÀÓÂ÷º¸Áõ±Ý¿¡ ´ëÇÏ¿© ¿ì¼±º¯Á¦±Ç¸¸ ÁÖÀåÇÏ°í ´ëÇ×·ÂÀº Æ÷±âÇϸç, Àü¾×À» º¯Á¦¹ÞÁö ¸øÇÏ´õ¶óµµ ÀÓÂ÷±Çµî±â¸¦ ¸»¼ÒÇÔ¿¡ µ¿ÀÇÇÑ´Ù.¡¯´Â ³»¿ëÀÇ 2026.04.24.ÀÚ ÀμöÁ¶°Çº¯°æÈ®¾à¼­¸¦ Á¦ÃâÇÔ.
ö±ÙÄÜÅ©¸®Æ®±¸Á¶ ÆòÁöºØ 14Ãþ °øµ¿ÁÖÅÃ,¾÷¹«½Ã¼³,Á¦1Á¾±Ù¸°»ýȰ½Ã¼³

°ÇÃ๰ÇöȲ

¼ÒÀçÁö °æ±âµµ ÆÄÁֽà ¹®»êÀ¾ ¼±À¯¸® 779-11¹øÁö
´ëÁö¸éÀû 866§³
(262.42Æò)
¿¬¸éÀû 6401.17§³
(1939.75Æò)
°ÇÃà¸éÀû 592.87§³
(179.66Æò)
¿ëÀû·ü»êÁ¤
¿¬¸éÀû
5902.85§³
(1788.74Æò)
°ÇÆóÀ² 68.46% ¿ëÀû·ü 681.62%
Áö»óÃþ¼ö 14Ãþ ÁöÇÏÃþ¼ö 1Ãþ
ÁÖ¿ëµµ ¾÷¹«½Ã¼³ ±¸Á¶ ö±ÙÄÜÅ©¸®Æ®±¸Á¶
Âø°øÀÏÀÚ 2016.12.09 »ç¿ë½ÂÀÎÀÏÀÚ 2018.01.08
°ÇÃ๰Ãþº°ÇöȲ [º¸±â]


±¹ÅäºÎ½Ç°Å·¡°¡ °æ±âµµ ÆÄÁֽà ¹®»êÀ¾

¡Ü ¸Å¸Å

¸éÀû(§³), ±Ý¾×(¸¸¿ø)

¡Ü Àü¼¼

¸éÀû(§³), ±Ý¾×(¸¸¿ø)

°è¾àÀϰǹ°¸íĪÃþÀü¿ëº¸Áõ±Ý¿ù¼¼°ÇÃà
26.04.06Á¤¿ø ¿¤ÇǽºÅ¸¿ö674.78500702018
26.03.12Á¤¿ø ¿¤ÇǽºÅ¸¿ö574.781,000502018
26.03.11Á¤¿ø ¿¤ÇǽºÅ¸¿ö670.4500702018
26.02.06Á¤¿ø ¿¤ÇǽºÅ¸¿ö1070.41,000652018
26.01.07Á¤¿ø ¿¤ÇǽºÅ¸¿ö475.11,000622018
¢Ñ ´õº¸±â

µî±âºÎµîº» ¿ä¾à(°Ç¹°)

  Á¢¼öÀÏÀÚ µî±â¸ñÀû/±Ç¸®ÀÚ ±Ç¸®±Ý¾× ±âÁØ
1 2022³â4¿ù5ÀÏ
¼ÒÀ¯±Ç
¼ÕOO
¼Ò¸ê
2 2023³â3¿ù28ÀÏ
¾Ð·ù
±¹
¼Ò¸ê±âÁØ
3 2023³â9¿ù19ÀÏ
°¡¾Ð·ù
ÁÖOOOO
1,020,000,000 ¼Ò¸ê
4 2023³â10¿ù27ÀÏ
ÀÓÂ÷±Ç¼³Á¤
Á¤OO
240,000,000 ¼Ò¸ê
5 2025³â3¿ù13ÀÏ
¾Ð·ù
±¹
¼Ò¸ê
6 2025³â12¿ù29ÀÏ
°­Á¦°æ¸Å
ÁÖOOOO
¼Ò¸ê
7 2026³â3¿ù11ÀÏ
¾Ð·ù
ÆÄOO
¼Ò¸ê

ÀÓÂ÷ÀÎÇöȲ (¹è´ç¿ä±¸Á¾±âÀÏ: 2026-03-23)

ÀÓÂ÷ÀÎ ¿ëµµ/Á¡À¯ º¸Áõ±Ý/¿ù¼¼ ´ëÇ×·Â
ÀüÀÔÀÏ/È®Á¤ÀÏ ¹è´ç¿ä±¸ ºñ°í
±èOO
X
2024.12.24.
Á¤OO ÀüºÎ 240,000,000
O
2021.09.30.
2021.09.16.
2021.09.30.~
ºñ°í
(¸Å°¢¹°°Ç
¸í¼¼¼­)
Á¤ÁöÈÆ:ÀÓÂ÷º¸Áõ±Ý¹Ýȯä±ÇÀº ½Åûä±ÇÀÚ ÁÖÅõµ½Ãº¸Áõ°ø»ç¿¡ ½Â°èµÊ(2026.03.14. ±Ç¸®½Å°í ¹× ¹è´ç¿ä±¸¼­ Á¦Ãâ).

¿©ÀÇÁÖ°æ¸Å Á¶¾ð ÇÑ ¸¶µð

¼±¼øÀ§ ÀÓÂ÷±Çµî±â°¡ µÇ¾î ÀÖ½À´Ï´Ù
´ëÇ×·ÂÀÌ ÀÖ´Â ¼±¼øÀ§ ÀÓÂ÷±Çµî±â ±Ç¸®ÀÚ°¡ ¹è´çÀ» Àü¾× ¹ÞÁö ¸øÇÒ °æ¿ì ³«ÂûÀÚ°¡ ÀÜ¿© º¸Áõ±ÝÀ» ÀμöÇØ¾ßÇÏ´Â °æ¿ìµµ ÀÖ½À´Ï´Ù.

ÁÖÀÇ»çÇ× (ÃÖ¼±¼øÀ§ ¼³Á¤ÀÏ: 2023.03.28. ¾Ð·ù ¼³Á¤)

¸Å°¢À¸·Î ¼Ò¸êµÇÁö ¾Ê´Â µî±âºÎ±Ç¸®:
¸Å°¢À¸·Î ¼³Á¤µÈ °ÍÀ¸·Î º¸´Â Áö»ó±Ç:
½Åûä±ÇÀÚÀÎ ÁÖÅõµ½Ãº¸Áõ°ø»ç(¾çµµÀü:ÁÖÅÃÀÓÂ÷±ÇÀÚ Á¤ÁöÈÆ)°¡ ¡®ÀÓÂ÷º¸Áõ±Ý¿¡ ´ëÇÏ¿© ¿ì¼±º¯Á¦±Ç¸¸ ÁÖÀåÇÏ°í ´ëÇ×·ÂÀº Æ÷±âÇÏ ¸ç, Àü¾×À» º¯Á¦¹ÞÁö ¸øÇÏ´õ¶óµµ ÀÓÂ÷±Çµî±â¸¦ ¸»¼ÒÇÔ¿¡ µ¿ÀÇÇÑ´Ù.¡¯´Â ³»¿ëÀÇ 2026.04.24.ÀÚ ÀμöÁ¶°Çº¯°æÈ®¾à¼­¸¦ Á¦ÃâÇÔ.
¡Ø¹Ì³³°ü¸®ºñ(°ø¿ë) Àμö¿©ºÎ¸¦ ÀÔÂû Àü¿¡ È®ÀÎÇϽñ⠹ٶø´Ï´Ù

 

Áö¿ªºÐ¼®

ÁöÇÏö¸í Á÷¼±°Å¸®

Çб³¸í ÀüÈ­¹øÈ£ ÁÖ¼Ò Á÷¼±°Å¸®

¹ý¿ø

ÀÇÁ¤ºÎÁö¹æ¹ý¿ø °í¾çÁö¿ø (104-13)°æ±âµµ °í¾ç½Ã Àϻ굿±¸ Àå¹é·Î 209
´ëÇ¥ : 031)920-6114, ¾ß°£ : 031)920-6550, ÆÑ½º : 031)920-6119
°üÇÒÁö¿ª : °í¾ç½Ã, ÆÄÁÖ½Ã

µî±â¼Ò ÀÇÁ¤ºÎÁö¹æ¹ý¿ø °í¾çÁö¿ø ÆÄÁÖµî±â¼Ò (´ëÇ¥:1544-0773, ÆÑ½º:(031)945-4764, 3628, °æ±âµµ ÆÄÁֽà ±ÝÁ¤·Î 45 (±ÝÃ̵¿ 947-28))
¼¼¹«¼­ ÆÄÁÖ¼¼¹«¼­ (´ëÇ¥:031-956-02, ÆÑ½º:031-957-0315, °æ±âµµ ÆÄÁֽà ±Ý¸ª¿ª·Î 62 (±ÝÃ̵¿))

Àαٳ«ÂûÅë°è

±â°£ ¸Å°¢°Ç¼ö Æò±Õ°¨Á¤°¡
Æò±Õ¸Å°¢°¡
¸Å°¢°¡À²
Æò±ÕÀ¯Âû¼ö
3°³¿ù 2°Ç 144,500,000¿ø
80,600,000¿ø
56%
2.5ȸ
6°³¿ù 4°Ç 136,250,000¿ø
85,947,500¿ø
63%
2ȸ
12°³¿ù 21°Ç 158,904,762¿ø
82,944,833¿ø
52%
2.9ȸ


º» °æ¸ÅÁ¤º¸´Â ¹ý¿øÀÚ·á¿Í ÀÏÄ¡Çϵµ·Ï ÇÏ¿´À¸³ª ±Ç¸®»çÇ׺¯µ¿, ÀÔ·ÂÂø¿À µîÀÇ ¿øÀÎÀ¸·Î »ç½Ç°ú ´Ù¸¦ ¼ö ÀÖ½À´Ï´Ù. ÀÌ¿ë¾à°ü¿¡ ÀǰЏéÃ¥Á¶°ÇÀ¸·Î Á¦°øµÊÀ» ¾Ë¸®¸ç, °æ¸ÅÀÔÂû½Ã ¹Ýµå½Ã °ü·Ã °øºÎ¸¦ ÀçÈ®ÀÎÇϽñ⠹ٶø´Ï´Ù. º¸´Ù Æí¸®ÇÑ °æ¸ÅÁ¤º¸ Á¦°øÀ» À§ÇØ Áö¼ÓÀûÀ¸·Î °³¼±ÇϰڽÀ´Ï´Ù. ÀÌ¿ëÇØ Áּż­ °¨»çÇÕ´Ï´Ù.