·Î±×ÀÎ
24
´Ù¼¼´ë(ºô¶ó)
ÀÇÁ¤ºÎÁö¹æ¹ý¿ø °í¾çÁö¿ø
 °¨Á¤°¡166,000,000 ¿ø
 ÃÖÀú°¡(100%) 166,000,000 ¿ø
 º¸Áõ±Ý(10%) 16,600,000 ¿ø
 Ã»±¸¾×105,891,780 ¿ø
°æ±âµµ ÆÄÁֽà Á¶¸®À¾ ´ë¿ø¸® 317-14 ·ç½Ã¾Æºô 203µ¿ 3Ãþ301È£
»ç°Ç¹øÈ£ 2025Ÿ°æ63251
°æ¸ÅÁ¾·ùºÎµ¿»êÀÓÀǰæ¸Å
¸Å°¢´ë»óÅäÁö ¹× °Ç¹°Àϰý ¸Å°¢
¸Å°¢±âÀÏ    2026.04.16(¸ñ) 10:00 ÀÔÂû 12ÀÏÀü    
ÅäÁö¸éÀû62.36§³(18.86 Æò)
°Ç¹°¸éÀû49.25§³(14.90 Æò)
乫/¼ÒÀ¯ÀÚ¸Á OOO¿Ü 3¸í / ¸Á OOO¿Ü 3¸í
ä±ÇÀÚ¿¡OOOOOOOOOOOOOOOOOOOOO(OOOOOOOOOO)
ÆäÀ̽ººÏ Æ®À§ÅÍ ±¸±Û+
īī¿À½ºÅ丮
īī¿ÀÅå sms¹®ÀÚº¸³»±â
 

±âÀϳ»¿ª

°æ°ú ³¯Â¥ Àú°¨ ÃÖÀú°¡ °á°ú
Á¢¼öÀÏ 2025-05-22 °æ¸ÅÁ¢¼ö
~1ÀÏ 
2025-05-23 °æ¸Å°³½Ã°áÁ¤
~84ÀÏ 
2025-08-14 ¹è´ç¿ä±¸Á¾±âÀÏ
~329ÀÏ 
2026-04-16 100%
166,000,000
ÁøÇà
¹°°Ç¸í¼¼¼­ ÇöȲÁ¶»ç¼­ ¹®°ÇÁ¢¼ö ¼Û´Þ³»¿ª

°¨Á¤Æò°¡ÇöȲ

¸ñ·Ï ÁÖ¼Ò ±¸Á¶/¿ëµµ/´ëÁö±Ç ¸éÀû ºñ°í
´ëÁö±Ç
´ë¿ø¸® 317-14 443ºÐÀÇ 62.36 62.36 §³
(18.86Æò)
°Ç¹°
´ë¿ø¸® 317-14 3Ãþ301È£ ö±ÙÄÜÅ©¸®Æ®±¸Á¶ 49.25 §³
(14.90Æò)
1) À§Ä¡/°èȹ°ü¸®Áö¿ª/¹ö½ºÁ¤·ùÀå/ö±ÙÄÜÅ©¸®Æ®±¸Á¶ ´õº¸±â
°¨Á¤Æò°¡ ¿äÇ×Ç¥
1)À§Ä¡ ¹× ÁÖÀ§È¯°æ
º»°ÇÀº °æ±âµµ ÆÄÁֽà Á¶¸®À¾ ´ë¿ø¸® ¼ÒÀç ""´ë¿ø1¸®¸¶À»È¸°ü"" ³²Ãø Àαٿ¡ À§Ä¡Çϸç, ÁÖÀ§´Â °øµ¿ÁÖÅÃ, °¢Á¾ ±Ù¸°»ýȰ½Ã¼³ÀÌ ¼ÒÀçÇÏ´Â µî Á¦¹Ý ÁÖÀ§È¯°æÀº º¸ÅëÀÓ.
2)±³Åë»óȲ
º»°Ç±îÁö Â÷·® Áø¡¤ÃâÀÔÀÌ °¡´ÉÇϸç, Àαٿ¡ ¹ö½ºÁ¤·ùÀåÀÌ ¼ÒÀçÇÏ´Â µî Á¦¹Ý ±³Åë»óȲÀº º¸ÅëÀÓ.
3)°Ç¹°ÀÇ ±¸Á¶
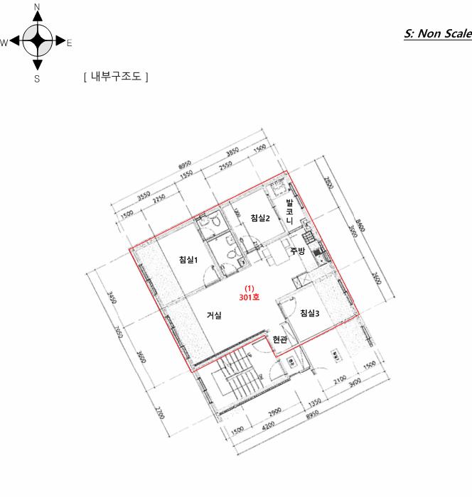
ö±ÙÄÜÅ©¸®Æ®±¸Á¶, Æò½½¶óºêÁöºØ, Áö»ó4Ãþ ·ç½Ã¾Æºô 203µ¿ Á¦3Ãþ Á¦301È£·Î¼­,
(»ç¿ë½ÂÀÎÀÏ : 2015.09.11.)
¿Üº® : ¼®Àç ŸÀϺÙÀÓ ¸¶°¨ µî,
âȣ : ¼¦½Ãâȣ µî ÀÓ.
4)ÀÌ¿ë»óÅÂ
°øµ¿ÁÖÅÃ(´Ù¼¼´ëÁÖÅÃ)À¸·Î ÀÌ¿ë ÁßÀÓ.
5)¼³ºñ³»¿ª
±âº»ÀûÀÎ À§»ý ¹× ±Þ¡¤¹è¼ö¼³ºñ, ³­¹æ¼³ºñ µîÀ» °®Ãß¾úÀ½.



6)ÅäÁöÀÇ Çü»ó ¹× ÀÌ¿ë»óÅÂ
º»°ÇÀº ÀÎÁ¢µµ·Î ´ëºñ µî°í ÆòźÇÑ ºÎÁ¤Çü ÅäÁö·Î¼­, ÇöȲ °ÇºÎÁö[°øµ¿ÁÖÅÃ(´Ù¼¼´ëÁÖÅÃ)]À¸·Î ÀÌ¿ë ÁßÀÓ.
7)ÀÎÁ¢ µµ·Î»óŵî
³²¼­Ãø ¹× ³²µ¿ÃøÀ¸·Î ³ëÆø ¾à 6M ³»¿ÜÀÇ ¾Æ½ºÆÈÆ® Æ÷Àåµµ·Î¿¡ °¢°¢ Á¢ÇÔ.
8)ÅäÁöÀÌ¿ë°èȹ ¹× Á¦ÇÑ»óÅÂ
´ë¿ø¸® 317-14 : °èȹ°ü¸®Áö¿ª, °¡Ãà»çÀ°Á¦Çѱ¸¿ª(¸ðµçÃàÁ¾ »çÀ°Á¦ÇÑ)<°¡ÃàºÐ´¢ÀÇ °ü¸® ¹× À̿뿡 °üÇÑ ¹ý·ü>, ±º»ç±âÁö ¹× ±º»ç½Ã¼³±âŸ(8¹ÌÅÍÀ§ÀÓ(10.10.13 º¯°æ))<±º»ç±âÁö ¹× ±º»ç½Ã¼³ º¸È£¹ý>, Á¦ÇѺ¸È£±¸¿ª(Àü¹æÁö¿ª:25km)<±º»ç±âÁö ¹× ±º»ç½Ã¼³ º¸È£¹ý>ÀÓ.
9)°øºÎ¿ÍÀÇ Â÷ÀÌ
¾ø À½.
10)±âŸÂü°í»çÇ×(ÀÓ´ë°ü·Ê ¹× ±âŸ)
¹Ì »ó ÀÓ.
Âü°í
»çÇ×

º»°ÇÀº ö±ÙÄÜÅ©¸®Æ®

°ÇÃ๰ÇöȲ

¼ÒÀçÁö °æ±âµµ ÆÄÁֽà Á¶¸®À¾ ´ë¿ø¸® 317-14¹øÁö
´ëÁö¸éÀû 443§³
(134.24Æò)
¿¬¸éÀû 390.11§³
(118.22Æò)
°ÇÃà¸éÀû 157.36§³
(47.68Æò)
¿ëÀû·ü»êÁ¤
¿¬¸éÀû
390.11§³
(118.22Æò)
°ÇÆóÀ² 35.52% ¿ëÀû·ü 88.06%
Áö»óÃþ¼ö 4Ãþ ÁöÇÏÃþ¼ö  
ÁÖ¿ëµµ °øµ¿ÁÖÅà ±¸Á¶ ö±ÙÄÜÅ©¸®Æ®±¸Á¶
Âø°øÀÏÀÚ 2015.02.04 »ç¿ë½ÂÀÎÀÏÀÚ 2015.09.11
°ÇÃ๰Ãþº°ÇöȲ [º¸±â]


±¹ÅäºÎ½Ç°Å·¡°¡ °æ±âµµ ÆÄÁֽà Á¶¸®À¾

¡Ü ¸Å¸Å

¸éÀû(§³), ±Ý¾×(¸¸¿ø)

¡Ü Àü¼¼

¸éÀû(§³), ±Ý¾×(¸¸¿ø)

°è¾àÀϰǹ°¸íĪÃþ¿¬¸éÀûº¸Áõ±Ý¿ù¼¼°ÇÃà
26.03.12¿¡µ§ºô¶óÆ®(119-40)-128.83,2002001
26.02.25·ç½Ã¾Æºô211µ¿149.8610,7002015
26.02.25¾ÚÆÄÅ©½ÃƼ107µ¿108µ¿139.3614,0002018
26.02.23(397-2)264.3610,5002011
26.02.23¿¡µ§ºô¶óÆ®(119-40)-128.82,8502001
¢Ñ ´õº¸±â

µî±âºÎµîº» ¿ä¾à(°Ç¹°)

  Á¢¼öÀÏÀÚ µî±â¸ñÀû/±Ç¸®ÀÚ ±Ç¸®±Ý¾× ±âÁØ
1 2025³â6¿ù24ÀÏ
¼ÒÀ¯±Ç
³²OO
¼Ò¸ê
2 2025³â6¿ù24ÀÏ
¼ÒÀ¯±Ç
±èOO
¼Ò¸ê
3 2015³â12¿ù7ÀÏ
±ÙÀú´ç±Ç
ÁßOOOO
122,400,000 ¼Ò¸ê±âÁØ
4 2025³â5¿ù23ÀÏ
ÀÓÀǰæ¸Å
ÁßOOOO
¼Ò¸ê

ÀÓÂ÷ÀÎÇöȲ (¹è´ç¿ä±¸Á¾±âÀÏ: 2025-08-14)



¸Å°¢±âÀÏ 7ÀÏÀü¿¡ °ø°íµÇ¿À´Ï È®ÀÎÇϽñ⠹ٶø´Ï´Ù.


¿©ÀÇÁÖ°æ¸Å Á¶¾ð ÇÑ ¸¶µð


ÁÖÀÇ»çÇ× (ÃÖ¼±¼øÀ§ ¼³Á¤ÀÏ: 2015.12.07. ±ÙÀú´ç±Ç ¼³Á¤)

¸Å°¢À¸·Î ¼Ò¸êµÇÁö ¾Ê´Â µî±âºÎ±Ç¸®:
¸Å°¢À¸·Î ¼³Á¤µÈ °ÍÀ¸·Î º¸´Â Áö»ó±Ç:
¡Ø¹Ì³³°ü¸®ºñ(°ø¿ë) Àμö¿©ºÎ¸¦ ÀÔÂû Àü¿¡ È®ÀÎÇϽñ⠹ٶø´Ï´Ù

 

Áö¿ªºÐ¼®

ÁöÇÏö¸í Á÷¼±°Å¸®

Çб³¸í ÀüÈ­¹øÈ£ ÁÖ¼Ò Á÷¼±°Å¸®

¹ý¿ø

ÀÇÁ¤ºÎÁö¹æ¹ý¿ø °í¾çÁö¿ø (104-13)°æ±âµµ °í¾ç½Ã Àϻ굿±¸ Àå¹é·Î 209
´ëÇ¥ : 031)920-6114, ¾ß°£ : 031)920-6550, ÆÑ½º : 031)920-6119
°üÇÒÁö¿ª : °í¾ç½Ã, ÆÄÁÖ½Ã

µî±â¼Ò ÀÇÁ¤ºÎÁö¹æ¹ý¿ø °í¾çÁö¿ø ÆÄÁÖµî±â¼Ò (´ëÇ¥:1544-0773, ÆÑ½º:(031)945-4764, 3628, °æ±âµµ ÆÄÁֽà ±ÝÁ¤·Î 45 (±ÝÃ̵¿ 947-28))
¼¼¹«¼­ ÆÄÁÖ¼¼¹«¼­ (´ëÇ¥:031-956-02, ÆÑ½º:031-957-0315, °æ±âµµ ÆÄÁֽà ±Ý¸ª¿ª·Î 62 (±ÝÃ̵¿))

Àαٳ«ÂûÅë°è

±â°£ ¸Å°¢°Ç¼ö Æò±Õ°¨Á¤°¡
Æò±Õ¸Å°¢°¡
¸Å°¢°¡À²
Æò±ÕÀ¯Âû¼ö
3°³¿ù 24°Ç 197,529,167¿ø
98,765,912¿ø
52%
2.3ȸ
6°³¿ù 34°Ç 207,873,529¿ø
104,350,836¿ø
53%
2.4ȸ
12°³¿ù 45°Ç 207,260,000¿ø
111,557,329¿ø
56%
2.2ȸ


º» °æ¸ÅÁ¤º¸´Â ¹ý¿øÀÚ·á¿Í ÀÏÄ¡Çϵµ·Ï ÇÏ¿´À¸³ª ±Ç¸®»çÇ׺¯µ¿, ÀÔ·ÂÂø¿À µîÀÇ ¿øÀÎÀ¸·Î »ç½Ç°ú ´Ù¸¦ ¼ö ÀÖ½À´Ï´Ù. ÀÌ¿ë¾à°ü¿¡ ÀǰЏéÃ¥Á¶°ÇÀ¸·Î Á¦°øµÊÀ» ¾Ë¸®¸ç, °æ¸ÅÀÔÂû½Ã ¹Ýµå½Ã °ü·Ã °øºÎ¸¦ ÀçÈ®ÀÎÇϽñ⠹ٶø´Ï´Ù. º¸´Ù Æí¸®ÇÑ °æ¸ÅÁ¤º¸ Á¦°øÀ» À§ÇØ Áö¼ÓÀûÀ¸·Î °³¼±ÇϰڽÀ´Ï´Ù. ÀÌ¿ëÇØ Áּż­ °¨»çÇÕ´Ï´Ù.