·Î±×ÀÎ
58
´Ù¼¼´ë(ºô¶ó)
¼ö¿øÁö¹æ¹ý¿ø ¾È»êÁö¿ø
 °¨Á¤°¡165,000,000 ¿ø
 ÃÖÀú°¡(100%) 165,000,000 ¿ø
 º¸Áõ±Ý(10%) 16,500,000 ¿ø
 Ã»±¸¾×136,800,000 ¿ø
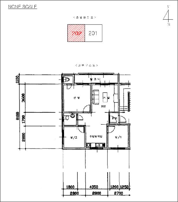
°æ±âµµ ¾È»ê½Ã ´Ü¿ø±¸ ¼±ºÎµ¿ 1116-25 2Ãþ202È£
»ç°Ç¹øÈ£ 2025Ÿ°æ52823
°æ¸ÅÁ¾·ùºÎµ¿»ê°­Á¦°æ¸Å
¸Å°¢´ë»óÅäÁö ¹× °Ç¹°Àϰý ¸Å°¢
¸Å°¢±âÀÏ    2026.04.16(¸ñ) 10:30 ÀÔÂû 10ÀÏÀü    
ÅäÁö¸éÀû31.82§³(9.63 Æò)
°Ç¹°¸éÀû62.40§³(18.87 Æò)
乫/¼ÒÀ¯ÀÚ¹®OO / ¹®OO
ä±ÇÀÚÁÖOOOOOOO
ÆäÀ̽ººÏ Æ®À§ÅÍ ±¸±Û+
īī¿À½ºÅ丮
īī¿ÀÅå sms¹®ÀÚº¸³»±â
 

±âÀϳ»¿ª

°æ°ú ³¯Â¥ Àú°¨ ÃÖÀú°¡ °á°ú
Á¢¼öÀÏ 2025-07-09 °æ¸ÅÁ¢¼ö
~1ÀÏ 
2025-07-10 °æ¸Å°³½Ã°áÁ¤
~82ÀÏ 
2025-09-29 ¹è´ç¿ä±¸Á¾±âÀÏ
~281ÀÏ 
2026-04-16 100%
165,000,000
ÁøÇà
¹°°Ç¸í¼¼¼­ ÇöȲÁ¶»ç¼­ ¹®°ÇÁ¢¼ö ¼Û´Þ³»¿ª

°¨Á¤Æò°¡ÇöȲ

¸ñ·Ï ÁÖ¼Ò ±¸Á¶/¿ëµµ/´ëÁö±Ç ¸éÀû ºñ°í
´ëÁö±Ç
¼±ºÎµ¿ 1116-25 232ºÐÀÇ 31.8208 31.8208 §³
(9.63Æò)
°Ç¹°
¼±ºÎµ¿ 1116-25 2Ãþ202È£ ö±ÙÄÜÅ©¸®Æ®Á¶ 62.395 §³
(18.87Æò)
1) À§Ä¡/µµ½ÃÁö¿ª/°ü¸®Áö¿ª/Á¦1Á¾ÀϹÝÁÖ°ÅÁö¿ª/¹ö½ºÁ¤·ùÀå/Â÷·®Á¢±Ù ¿ëÀÌ/Æò½º¶óºêÁöºØ/°³º°³­¹æ/¹æ3 ´õº¸±â
°¨Á¤Æò°¡ ¿äÇ×Ç¥
1)À§Ä¡ ¹× ÁÖÀ§È¯°æ
°æ±âµµ ¾È»ê½Ã ´Ü¿ø±¸ ¼±ºÎµ¿ ¼ÒÀç '¼±ºÎÁßÇб³' ºÏÃø Àαٿ¡ À§Ä¡ÇÏ´Â ´Ù¼¼´ëÁÖÅÃ(ÅëĪ
¼­¿ï¾ÆÆ®ºô) ³»¿¡ ¼ÒÀçÇϸç, ÀαÙÀÏ´ë´Â ÁÖ·Î À¯»ç±Ô¸ðÀÇ ´Ù¼¼´ëÁÖÅõéÀÌ ¹ÐÁýÇÏ¿© ¼ÒÀç
ÇÏ´Â ÁÖ°ÅÁö´ë·Î¼­ ÁÖÀ§¿¡ °ø¿ø ¹× Çб³ µîÀÌ »êÀçÇÏ´Â Áö¿ªÀÓ.
2)±³Åë»óȲ
º» °Ç¹°±îÁö Â÷·®Á¢±Ù ¿ëÀÌÇϰí Àαٿ¡ ¹ö½ºÁ¤·ùÀåÀÌ ¼ÒÀçÇϸç, ºÏ¼­Ãø Á÷¼±°Å¸® ¾à600
¹ÌÅÍ ÁöÁ¡¿¡ ´Þ¹Ì¿ª(¼­Çؼ±)ÀÌ À§Ä¡ÇÔ.
3)°Ç¹°ÀÇ ±¸Á¶
¾Ë¾¾Á¶ Æò½º¶óºêÁöºØ 4Ãþ°Ç ³» 2Ãþ 202È£·Î¼­
¿Üº® : µå¶óÀ̺ñÆ®, µ¹ºÙÀÓ, ÆäÀÎÆÃ µî ¸¶°¨.
³»º® : º®Áö ¹× ŸÀÏ µî ¸¶°¨.
âȣ : ÇÏÀ̼¦½Ã ¹× Ä®¶ó¼¦½Ã µî âȣÀÓ.
4)ÀÌ¿ë»óÅÂ
´Ù¼¼´ëÁÖÅÃ(¹æ3, °Å½Ç, ÁÖ¹æ°â½Ä´ç, È­Àå½Ç µî)À¸·Î ÀÌ¿ëÁßÀÓ.
5)¼³ºñ³»¿ª
º¸ÀÏ·¯¼³ºñ¿¡ ÀÇÇÑ °³º°³­¹æ ±¸Á¶À̸ç, À§»ý¼³ºñ, ±Þ.¹è¼ö¼³ºñ µî µÇ¾îÀÖÀ½.
6)ÅäÁöÀÇ Çü»ó ¹× ÀÌ¿ë»óÅÂ
¼¼ÀåÇüÀÇ ÆòÁö·Î¼­ ´Ù¼¼´ëÁÖÅà °ÇºÎÁö·Î ÀÌ¿ëÁßÀÓ.
7)ÀÎÁ¢ µµ·Î»óŵî
¼­ÃøÀ¸·Î Æø6¹ÌÅÍ Á¤µµÀÇ Æ÷Àåµµ·Î¿¡ Á¢ÇÔ.
8)ÅäÁöÀÌ¿ë°èȹ ¹× Á¦ÇÑ»óÅÂ
¼±ºÎµ¿ 1116-25 :µµ½ÃÁö¿ª, Á¦1Á¾ÀϹÝÁÖ°ÅÁö¿ª, ½Ã°¡Áö°æ°üÁö±¸(ÀϹÝ), ¼Ò·Î3·ù(Æø 8m ¹Ì¸¸)(Á¢ÇÕ), °¡Ãà»çÀ°Á¦Çѱ¸¿ª<°¡ÃàºÐ´¢ÀÇ °ü¸® ¹× À̿뿡 °üÇÑ ¹ý·ü>, »ó´ëº¸È£±¸¿ª(¼±ºÎÁßÇб³)<±³À°È¯°æ º¸È£¿¡ °üÇÑ ¹ý·ü>, »ó´ëº¸È£±¸¿ª(¾È»êÈ­Á¤ÃʵîÇб³)<±³À°È¯°æ º¸È£¿¡ °üÇÑ ¹ý·ü>, ´ë±â°ü¸®±Ç¿ª<´ë±â°ü¸®±Ç¿ªÀÇ ´ë±âȯ°æ°³¼±¿¡ °üÇÑ Æ¯º°¹ý>, µµ½Ã±³ÅëÁ¤ºñÁö¿ª<µµ½Ã±³ÅëÁ¤ºñÃËÁø¹ý>, »ýȰ¼ÒÀ½Áøµ¿°ü¸®Áö¿ª<¼ÒÀ½Áøµ¿°ü¸®¹ý>, ¼ºÀå°ü¸®±Ç¿ª<¼öµµ±ÇÁ¤ºñ°èȹ¹ý>
9)°øºÎ¿ÍÀÇ Â÷ÀÌ
¾ø À½.
10)±âŸÂü°í»çÇ×(ÀÓ´ë°ü·Ê ¹× ±âŸ)
ÀÓ´ë°ü°è : ¹Ì »ó ÀÓ.
±â Ÿ : º»°Ç ³»ºÎÀÌ¿ë»óÅ´ °ü°èÀÎ ºÎÀç·Î ÀÎÇÏ¿© °ÇÃ๰ÇöȲµµ ¹× ޹®Á¶»ç¿¡ ÀǰÅ
ÇÏ¿´À¸¸ç, µ¿ À¯Çü °øµ¿ÁÖÅÃÀÇ ÀϹÝÀûÀÎ ¼³ºñ»óȲÀ» ±âÁØÇÏ¿© Æò°¡ÇÏ¿´À¸´Ï
°æ¸ÅÁøÇà½Ã Âü°íÇϽñ⠹ٶ÷.
Âü°í
»çÇ×

- º»°Ç ºÎµ¿»ê¸íÀº `

°ÇÃ๰ÇöȲ

¼ÒÀçÁö °æ±âµµ ¾È»ê½Ã ´Ü¿ø±¸ ¼±ºÎµ¿ 1116-25¹øÁö
´ëÁö¸éÀû 232§³
(70.3Æò)
¿¬¸éÀû 514§³
(155.76Æò)
°ÇÃà¸éÀû 138.67§³
(42.02Æò)
¿ëÀû·ü»êÁ¤
¿¬¸éÀû
514§³
(155.76Æò)
°ÇÆóÀ² 59.77% ¿ëÀû·ü 221.55%
Áö»óÃþ¼ö 4Ãþ ÁöÇÏÃþ¼ö  
ÁÖ¿ëµµ °øµ¿ÁÖÅà ±¸Á¶ ö±ÙÄÜÅ©¸®Æ®±¸Á¶
Âø°øÀÏÀÚ 2002.06.04 »ç¿ë½ÂÀÎÀÏÀÚ 2002.11.16
°ÇÃ๰Ãþº°ÇöȲ [º¸±â]


µî±âºÎµîº» ¿ä¾à(°Ç¹°)

  Á¢¼öÀÏÀÚ µî±â¸ñÀû/±Ç¸®ÀÚ ±Ç¸®±Ý¾× ±âÁØ
1 2022³â6¿ù9ÀÏ
¼ÒÀ¯±Ç
¹®OO
¼Ò¸ê
2 2023³â10¿ù23ÀÏ
¾Ð·ù
±¹
¼Ò¸ê±âÁØ
3 2024³â5¿ù17ÀÏ
ÀÓÂ÷±Ç¼³Á¤
°­OO
136,800,000 ¼Ò¸ê
4 2025³â7¿ù10ÀÏ
°­Á¦°æ¸Å
ÁÖOOOO
¼Ò¸ê
5 2025³â9¿ù29ÀÏ
¾Ð·ù
ºÎOO
¼Ò¸ê

ÀÓÂ÷ÀÎÇöȲ (¹è´ç¿ä±¸Á¾±âÀÏ: 2025-09-29)



¸Å°¢±âÀÏ 7ÀÏÀü¿¡ ¸Å°¢¹°°Ç¸í¼¼¼­°¡ °ø°íµÇ¿À´Ï È®ÀÎÇϽñ⠹ٶø´Ï´Ù.

ÀÓÂ÷ÀÎ ¿ëµµ/Á¡À¯ º¸Áõ±Ý/¿ù¼¼ ´ëÇ×·Â
ÀüÀÔÀÏ/È®Á¤ÀÏ ¹è´ç¿ä±¸ ºñ°í
ÁÖOOOOOOOOOOOOOOO ÁÖÅÃÀüºÎ 136,800,000
O
2022.05.13.
2022.03.29.
2022.05.13.~
ºñ°í
(¸Å°¢¹°°Ç
¸í¼¼¼­)
ÁÖÅõµ½Ãº¸Áõ°ø»ç(ÀÓÂ÷ÀÎ °­¿ëÁØ): ¨ç°æ¸Å½Åûä±ÇÀڷμ­ `ÁÖÅÃÀÓ´ëÂ÷º¸È£¹ý` Á¦3Á¶ÀÇ 2 Á¦7Ç× Á¦9È£ÀÇ ¾ç¼öÀÎÀÓ ¨èÀÓÂ÷ÀÎ`°­¿ëÁØ`Àº ÁÖÅÃÀÓÂ÷±ÇÀڷμ­ ÁÖÅÃÀÓÂ÷±Çµî±âÀÏÀº 2024.05.17.ÀÓ

¿©ÀÇÁÖ°æ¸Å Á¶¾ð ÇÑ ¸¶µð


ÁÖÀÇ»çÇ× (ÃÖ¼±¼øÀ§ ¼³Á¤ÀÏ: 2023.10.23. (¾Ð·ù) ¼³Á¤)

¸Å°¢À¸·Î ¼Ò¸êµÇÁö ¾Ê´Â µî±âºÎ±Ç¸®: ¸Å¼öÀο¡°Ô ´ëÇ×ÇÒ ¼ö ÀÖ´Â ÁÖÅÃÀÓÂ÷±ÇÀÚ(À»±¸7¹ø) ÀÖÀ½(ÀÓ´ëÂ÷º¸Áõ±Ý:136,800,000¿ø/ ÀüÀÔÀÏÀÚ:2022.05.13./ È®Á¤ÀÏÀÚ:2022.03.29.) ¹è´ç¿¡¼­ º¸Áõ±ÝÀÌ Àü¾× º¯Á¦µÇÁö ¾Ê´Â °æ¿ì Àܾ×À» ¸Å¼öÀÎÀÌ ÀμöÇÏ¿©¾ß ÇÔ
¸Å°¢À¸·Î ¼³Á¤µÈ °ÍÀ¸·Î º¸´Â Áö»ó±Ç:
¡Ø¹Ì³³°ü¸®ºñ(°ø¿ë) Àμö¿©ºÎ¸¦ ÀÔÂû Àü¿¡ È®ÀÎÇϽñ⠹ٶø´Ï´Ù

 

Áö¿ªºÐ¼®

ÁöÇÏö¸í Á÷¼±°Å¸®

Çб³¸í ÀüÈ­¹øÈ£ ÁÖ¼Ò Á÷¼±°Å¸®

¹ý¿ø

¼ö¿øÁö¹æ¹ý¿ø ¾È»êÁö¿ø (140-54)°æ±âµµ ¾È»ê½Ã ´Ü¿ø±¸ ±¤´ö¼­·Î 75 (°íÀܵ¿)
´ëÇ¥ : 031)481-1114, ¹Î¿ø : 031)481-1238, ¾ß°£ : 031)481-1112
°üÇÒÁö¿ª : ¾È»ê½Ã, ±¤¸í½Ã, ½ÃÈï½Ã

µî±â¼Ò ¼ö¿øÁö¹æ¹ý¿ø ¾È»êÁö¿ø µî±â°ú (´ëÇ¥:1544-0773, ÆÑ½º:(031)481-1290~1292, °æ±âµµ ¾È»ê½Ã ´Ü¿ø±¸ ±¤´ö¼­·Î 75 (°íÀܵ¿ 711))
¼¼¹«¼­ ¾È»ê¼¼¹«¼­ (´ëÇ¥:031-412-32, ÆÑ½º:031-412-3268, °æ±âµµ ¾È»ê½Ã ´Ü¿ø±¸ È­¶û·Î 350 (°íÀܵ¿ 517))

Àαٳ«ÂûÅë°è

±â°£ ¸Å°¢°Ç¼ö Æò±Õ°¨Á¤°¡
Æò±Õ¸Å°¢°¡
¸Å°¢°¡À²
Æò±ÕÀ¯Âû¼ö
3°³¿ù 11°Ç 172,909,091¿ø
111,179,438¿ø
61%
3.3ȸ
6°³¿ù 26°Ç 167,338,462¿ø
119,460,759¿ø
70%
3.1ȸ
12°³¿ù 49°Ç 194,057,143¿ø
137,234,505¿ø
72%
2.3ȸ


º» °æ¸ÅÁ¤º¸´Â ¹ý¿øÀÚ·á¿Í ÀÏÄ¡Çϵµ·Ï ÇÏ¿´À¸³ª ±Ç¸®»çÇ׺¯µ¿, ÀÔ·ÂÂø¿À µîÀÇ ¿øÀÎÀ¸·Î »ç½Ç°ú ´Ù¸¦ ¼ö ÀÖ½À´Ï´Ù. ÀÌ¿ë¾à°ü¿¡ ÀǰЏéÃ¥Á¶°ÇÀ¸·Î Á¦°øµÊÀ» ¾Ë¸®¸ç, °æ¸ÅÀÔÂû½Ã ¹Ýµå½Ã °ü·Ã °øºÎ¸¦ ÀçÈ®ÀÎÇϽñ⠹ٶø´Ï´Ù. º¸´Ù Æí¸®ÇÑ °æ¸ÅÁ¤º¸ Á¦°øÀ» À§ÇØ Áö¼ÓÀûÀ¸·Î °³¼±ÇϰڽÀ´Ï´Ù. ÀÌ¿ëÇØ Áּż­ °¨»çÇÕ´Ï´Ù.