·Î±×ÀÎ
272
Ææ¼Ç(Ä·ÇÎÀå)
ÀÇÁ¤ºÎÁö¹æ¹ý¿ø ³²¾çÁÖÁö¿ø
 °¨Á¤°¡221,870,000 ¿ø
 ÃÖÀú°¡(49%) 108,716,000 ¿ø
 º¸Áõ±Ý(10%) 10,871,600 ¿ø
 Ã»±¸¾×108,151,441 ¿ø
°æ±âµµ °¡Æò±º °¡ÆòÀ¾ È£¹Ý·Î 2329-53
»ç°Ç¹øÈ£ 2025Ÿ°æ70132
°æ¸ÅÁ¾·ùºÎµ¿»êÀÓÀǰæ¸Å
¸Å°¢´ë»óÅäÁö ¹× °Ç¹°Àϰý¸Å°¢
¸Å°¢±âÀÏ    2026.06.25(¸ñ) 10:30 ÀÔÂû 31ÀÏÀü    
ÅäÁö¸éÀû220.00§³(66.55 Æò)
°Ç¹°¸éÀû118.75§³(35.92 Æò)
乫/¼ÒÀ¯ÀÚÀ¯OO / À¯OO
ä±ÇÀÚ³óOOOOOOOOOOO(OOOOOOOOOOOO)
ÆäÀ̽ººÏ Æ®À§ÅÍ ±¸±Û+
īī¿À½ºÅ丮
īī¿ÀÅå sms¹®ÀÚº¸³»±â
 

±âÀϳ»¿ª

°æ°ú ³¯Â¥ Àú°¨ ÃÖÀú°¡ °á°ú
Á¢¼öÀÏ 2025-01-03 °æ¸ÅÁ¢¼ö
~4ÀÏ 
2025-01-07 °æ¸Å°³½Ã°áÁ¤
~80ÀÏ 
2025-03-24 ¹è´ç¿ä±¸Á¾±âÀÏ
~468ÀÏ 
2026-04-16 100%
221,870,000
À¯Âû
~503ÀÏ 
2026-05-21 70%
155,309,000
À¯Âû
~538ÀÏ 
2026-06-25 49%
108,716,000
ÁøÇà
¹°°Ç¸í¼¼¼­ ÇöȲÁ¶»ç¼­ ¹®°ÇÁ¢¼ö ¼Û´Þ³»¿ª

°¨Á¤Æò°¡ÇöȲ

¸ñ·Ï ÁÖ¼Ò ±¸Á¶/¿ëµµ/´ëÁö±Ç ¸éÀû ºñ°í
ÅäÁö
ÀÌÈ­¸® 392-12 ´ë 220 §³
(66.55Æò)
°Ç¹°
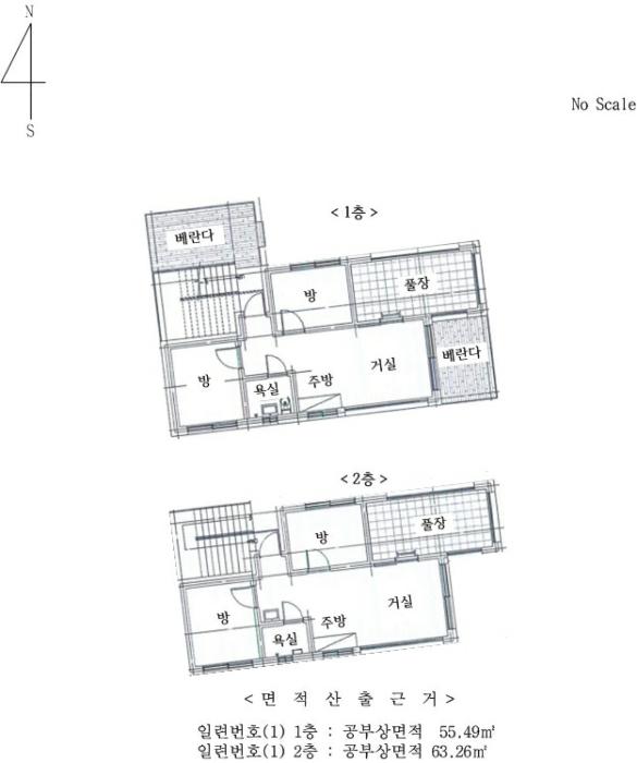
ÀÌÈ­¸® 392-12 1Ãþ Ææ¼Ç ö±ÙÄÜÅ©¸®Æ®±¸Á¶ 55.49 §³
(16.79Æò)
ÀÌÈ­¸® 392-12 2Ãþ Ææ¼Ç ö±ÙÄÜÅ©¸®Æ®±¸Á¶ 63.26 §³
(19.14Æò)
1) À§Ä¡/°èȹ°ü¸®Áö¿ª/¹ö½ºÁ¤·ùÀå/ö±ÙÄÜÅ©¸®Æ®±¸Á¶ ´õº¸±â
°¨Á¤Æò°¡ ¿äÇ×Ç¥
1)À§Ä¡ ¹× ÁÖÀ§È¯°æ
º»°ÇÀº °æ±âµµ °¡Æò±º °¡ÆòÀ¾ ÀÌÈ­¸® ¼ÒÀç "ÀÓ°ñ¸¶À»" ¼­Ãø Àαٿ¡ ¼ÒÀçÇϸç ÀαÙÀÏ´ë´Â ±âÁ¸¸¶À», Ææ¼Ç, ³ó°æÁö, ÀÓ¾ß µîÀÌ È¥Àç Çü¼ºµÈ Áö¿ªÀ¸·Î ÁÖÀ§È¯°æ º¸Åë½Ã µÊ.
2)±³Åë»óȲ
º»°Ç±îÁö Â÷·® Á¢±Ù °¡´ÉÇϸç Àαٿ¡ ¹ö½ºÁ¤·ùÀåÀÌ ¼ÒÀçÇÏ¸ç ¹ö½º ¿îÇà µîÀ¸·Î º¸¾Æ ´ëÁß±³Åë»çÁ¤Àº ´Ù¼Ò ¾çȣġ ¸øÇÔ.
3)ÇüÅ ¹× ÀÌ¿ë»óÅÂ
À¯»ç »ç´Ù¸®ÇüÀÇ ÅäÁö·Î¼­ ÁְűâŸ(Ææ¼ÇºÎÁö)·Î ÀÌ¿ëÁßÀÓ.
4)ÀÎÁ¢ µµ·Î»óÅÂ
ºÏÃøÀ¸·Î Æø ¾à 4¹ÌÅÍ ³»¿ÜÀÇ Æ÷Àåµµ·Î¿Í ÇѸéÀÌ Á¢ÇÔ.
5)ÅäÁöÀÌ¿ë°èȹ ¹× Á¦ÇÑ»óÅÂ
°èȹ°ü¸®Áö¿ª, °¡Ãà»çÀ°Á¦Çѱ¸¿ª(¸ðµçÃàÁ¾ »çÀ°Á¦ÇÑ)<°¡ÃàºÐ´¢ÀÇ °ü¸® ¹× À̿뿡 °üÇÑ ¹ý·ü>, ÀÚ¿¬º¸Àü±Ç¿ª<¼öµµ±ÇÁ¤ºñ°èȹ¹ý>
6)Á¦½Ã¸ñ·Ï ¿ÜÀÇ ¹°°Ç
¾øÀ½
7)°øºÎ¿ÍÀÇ Â÷ÀÌ
¾øÀ½
8)±âŸÂü°í»çÇ×(ÀÓ´ë°ü·Ê ¹× ±âŸ)
ÀÓ´ë°ü°è ¹Ì»óÀÓ.
1)°Ç¹°ÀÇ ±¸Á¶
º»°ÇÀº ö±ÙÄÜÅ©¸®Æ®±¸Á¶ ÆòÁöºØ(ö±ÙÄÜÅ©¸®Æ®) 2ÃþÀ¸·Î¼­
¿Üº® : ÄÜÅ©¸®Æ®À§ ÆäÀÎÆ® ¸¶°¨ ¹× ÀϺΠ¿ÜÀå¸ñÀç ¸¶°¨ µîÀÓ,
³»º® : º®Áöµµ¹è ¹× ÀϺΠŸÀÏ ¸¶°¨ÀÓ.
âȣ : »þ½Ã âȣÀÓ.
2)ÀÌ¿ë»óÅÂ
Ææ¼ÇÀ¸·Î ÀÌ¿ëÁßÀÓ(»ó¼¼ ³»¿ªÀº ³»ºÎ±¸Á¶µµ ÂüÁ¶)
3)¼³ºñ³»¿ª
±Þ¹è¼ö ¹× À§»ý¼³ºñ, ³­¹æ¼³ºñ µî µÇ¾î ÀÖÀ½.
4)ºÎÇÕ¹° ¹× Á¾¹°
¾ø À½.
5)°øºÎ¿ÍÀÇ Â÷ÀÌ
¾ø À½.
6)±âŸÂü°í»çÇ×(ÀÓ´ë°ü·Ê ¹× ±âŸ)
ÀÓ´ë°ü°è ¹Ì»óÀÓ.
Âü°í
»çÇ×
Àϰý¸Å°¢

°ÇÃ๰ÇöȲ

¼ÒÀçÁö °æ±âµµ °¡Æò±º °¡ÆòÀ¾ ÀÌÈ­¸® 392-12¹øÁö
´ëÁö¸éÀû 220§³
(66.67Æò)
¿¬¸éÀû 118.75§³
(35.98Æò)
°ÇÃà¸éÀû 66.57§³
(20.17Æò)
¿ëÀû·ü»êÁ¤
¿¬¸éÀû
118.75§³
(35.98Æò)
°ÇÆóÀ² 30.26% ¿ëÀû·ü 53.98%
Áö»óÃþ¼ö 2Ãþ ÁöÇÏÃþ¼ö  
ÁÖ¿ëµµ ´Üµ¶ÁÖÅà ±¸Á¶ ö±ÙÄÜÅ©¸®Æ®±¸Á¶
Âø°øÀÏÀÚ »ç¿ë½ÂÀÎÀÏÀÚ 2018.12.19
°ÇÃ๰Ãþº°ÇöȲ [º¸±â]


µî±âºÎµîº» ¿ä¾à(ÅäÁö)

  Á¢¼öÀÏÀÚ µî±â¸ñÀû/±Ç¸®ÀÚ ±Ç¸®±Ý¾× ±âÁØ
1 2022³â4¿ù11ÀÏ
¼ÒÀ¯±Ç
À¯OO
¼Ò¸ê
2 2022³â4¿ù11ÀÏ
±ÙÀú´ç±Ç
³óOOOO
148,800,000 ¼Ò¸ê±âÁØ
3 2024³â4¿ù25ÀÏ
±ÙÀú´ç±Ç
À¯OO
45,000,000 ¼Ò¸ê
4 2024³â11¿ù20ÀÏ
°¡¾Ð·ù
³óOOOO
7,097,260 ¼Ò¸ê
5 2024³â12¿ù13ÀÏ
°¡¾Ð·ù
³óOOOO
6,511,663 ¼Ò¸ê
6 2024³â12¿ù18ÀÏ
¾Ð·ù
±¹
¼Ò¸ê
7 2025³â1¿ù7ÀÏ
ÀÓÀǰæ¸Å
¿ÁOOOO
¼Ò¸ê
8 2025³â2¿ù24ÀÏ
¾Ð·ù
±¹OOOO
¼Ò¸ê

µî±âºÎµîº» ¿ä¾à(°Ç¹°)

  Á¢¼öÀÏÀÚ µî±â¸ñÀû/±Ç¸®ÀÚ ±Ç¸®±Ý¾× ±âÁØ
1 2022³â4¿ù11ÀÏ
¼ÒÀ¯±Ç
À¯OO
¼Ò¸ê
2 2022³â4¿ù11ÀÏ
±ÙÀú´ç±Ç
³óOOOO
148,800,000 ¼Ò¸ê±âÁØ
3 2024³â4¿ù25ÀÏ
±ÙÀú´ç±Ç
À¯OO
45,000,000 ¼Ò¸ê
4 2024³â7¿ù23ÀÏ
¾Ð·ù
±¹
¼Ò¸ê
5 2024³â11¿ù20ÀÏ
°¡¾Ð·ù
³óOOOO
7,097,260 ¼Ò¸ê
6 2024³â12¿ù13ÀÏ
°¡¾Ð·ù
³óOOOO
6,511,663 ¼Ò¸ê
7 2025³â1¿ù7ÀÏ
ÀÓÀǰæ¸Å
¿ÁOOOO
¼Ò¸ê

ÀÓÂ÷ÀÎÇöȲ (¹è´ç¿ä±¸Á¾±âÀÏ: 2025-03-24)


Á¶»çµÈ ÀÓÂ÷³»¿ªÀÌ ¾ø½À´Ï´Ù


¿©ÀÇÁÖ°æ¸Å Á¶¾ð ÇÑ ¸¶µð


ÁÖÀÇ»çÇ× (ÃÖ¼±¼øÀ§ ¼³Á¤ÀÏ: 2022. 4. 11. ±ÙÀú´ç±Ç ¼³Á¤)

¸Å°¢À¸·Î ¼Ò¸êµÇÁö ¾Ê´Â µî±âºÎ±Ç¸®:
¸Å°¢À¸·Î ¼³Á¤µÈ °ÍÀ¸·Î º¸´Â Áö»ó±Ç:
2025.08.06 ä±ÇÀÚ ³óOOOOOOOOOOO(OOOOOOOOOOOO) º¸°ü±Ýȯ±Þ°èÁº¯°æ½Åû Á¦Ãâ
2026.01.21 乫ÀÚ°â¼ÒÀ¯ÀÚ À¯OO ¼ÓÇà½Åû¼­ Á¦Ãâ
1. Àϰý¸Å°¢ 2. ¿Á¿Ü°è´Ü, µ¥Å©, ¿Á»óÀÇ ±¸Á¶¹° µîÀº °Ç¹°¿¡ Æ÷ÇÔÇÏ¿© Æò°¡
¡Ø¹Ì³³°ü¸®ºñ(°ø¿ë) Àμö¿©ºÎ¸¦ ÀÔÂû Àü¿¡ È®ÀÎÇϽñ⠹ٶø´Ï´Ù

 

Áö¿ªºÐ¼®

ÁöÇÏö¸í Á÷¼±°Å¸®

Çб³¸í ÀüÈ­¹øÈ£ ÁÖ¼Ò Á÷¼±°Å¸®

¹ý¿ø

ÀÇÁ¤ºÎÁö¹æ¹ý¿ø ³²¾çÁÖÁö¿ø (122-49)°æ±âµµ ³²¾çÁֽà ´Ù»êÁß¾Ó·Î82¹ø¾È±æ 161(´Ù»êµ¿)
´ëÇ¥ : 031)869-4114
°üÇÒÁö¿ª : °¡Æò±º, ±¸¸®½Ã, ³²¾çÁÖ½Ã

µî±â¼Ò ÀÇÁ¤ºÎÁö¹æ¹ý¿ø º»¿ø °¡Æòµî±â¼Ò (´ëÇ¥:1544-0773, ÆÑ½º:(031) 582-9948, °æ±âµµ °¡Æò±º °¡ÆòÀ¾ °¡È­·Î 180 (À¾³»¸® 685-1))
¼¼¹«¼­ ³²¾çÁÖ¼¼¹«¼­ (´ëÇ¥:031-550-32, ÆÑ½º:031-566-1808, °æ±âµµ ±¸¸®½Ã ¾È°ñ·Î 36 (±³¹®µ¿))

Àαٳ«ÂûÅë°è

±â°£ ¸Å°¢°Ç¼ö Æò±Õ°¨Á¤°¡
Æò±Õ¸Å°¢°¡
¸Å°¢°¡À²
Æò±ÕÀ¯Âû¼ö
3°³¿ù 1°Ç 576,801,000¿ø
183,010,000¿ø
32%
4ȸ
6°³¿ù 2°Ç 736,101,000¿ø
251,590,000¿ø
34%
3.5ȸ
12°³¿ù 6°Ç 486,216,140¿ø
284,313,333¿ø
66%
1.8ȸ


º» °æ¸ÅÁ¤º¸´Â ¹ý¿øÀÚ·á¿Í ÀÏÄ¡Çϵµ·Ï ÇÏ¿´À¸³ª ±Ç¸®»çÇ׺¯µ¿, ÀÔ·ÂÂø¿À µîÀÇ ¿øÀÎÀ¸·Î »ç½Ç°ú ´Ù¸¦ ¼ö ÀÖ½À´Ï´Ù. ÀÌ¿ë¾à°ü¿¡ ÀǰЏéÃ¥Á¶°ÇÀ¸·Î Á¦°øµÊÀ» ¾Ë¸®¸ç, °æ¸ÅÀÔÂû½Ã ¹Ýµå½Ã °ü·Ã °øºÎ¸¦ ÀçÈ®ÀÎÇϽñ⠹ٶø´Ï´Ù. º¸´Ù Æí¸®ÇÑ °æ¸ÅÁ¤º¸ Á¦°øÀ» À§ÇØ Áö¼ÓÀûÀ¸·Î °³¼±ÇϰڽÀ´Ï´Ù. ÀÌ¿ëÇØ Áּż­ °¨»çÇÕ´Ï´Ù.