·Î±×ÀÎ
34
¿ÀÇǽºÅÚ
ÀÎõÁö¹æ¹ý¿ø
 °¨Á¤°¡223,000,000 ¿ø
 ÃÖÀú°¡(100%) 223,000,000 ¿ø
 º¸Áõ±Ý(10%) 22,300,000 ¿ø
 Ã»±¸¾×268,002,403 ¿ø
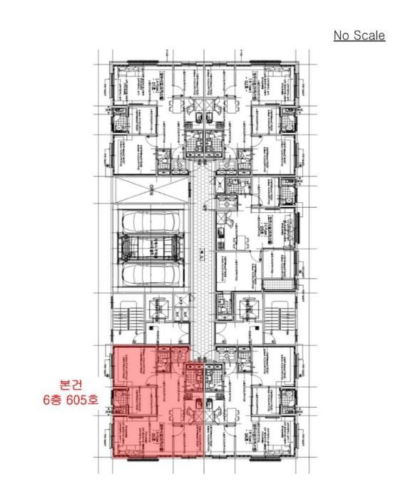
ÀÎõ±¤¿ª½Ã ¹ÌÃßȦ±¸ ÀÎÁß·Î 19, ¿¡À̵¿ 6Ãþ605È£ (¼þÀǵ¿,ÇѸ¶À½¾ÆÆÄÆ®)
ÀÎõ±¤¿ª½Ã ¹ÌÃßȦ±¸ ¼þÀǵ¿ 353-22
»ç°Ç¹øÈ£ 2024Ÿ°æ582084
°æ¸ÅÁ¾·ùºÎµ¿»ê°­Á¦°æ¸Å
¸Å°¢´ë»óÅäÁö ¹× °Ç¹°Àϰý ¸Å°¢
¸Å°¢±âÀÏ    2026.04.15(¼ö) 10:00 ÀÔÂû 3ÀÏÀü    
ÅäÁö¸éÀû12.10§³(3.66 Æò)
°Ç¹°¸éÀû64.70§³(19.57 Æò)
乫/¼ÒÀ¯ÀÚ¹ÚOO / ¹ÚOO
ä±ÇÀÚÁÖOOOOOOO
ÆäÀ̽ººÏ Æ®À§ÅÍ ±¸±Û+
īī¿À½ºÅ丮
īī¿ÀÅå sms¹®ÀÚº¸³»±â
 

±âÀϳ»¿ª

°æ°ú ³¯Â¥ Àú°¨ ÃÖÀú°¡ °á°ú
Á¢¼öÀÏ 2024-12-13 °æ¸ÅÁ¢¼ö
~6ÀÏ 
2024-12-19 °æ¸Å°³½Ã°áÁ¤
~90ÀÏ 
2025-03-13 ¹è´ç¿ä±¸Á¾±âÀÏ
~488ÀÏ 
2026-04-15 100%
223,000,000
ÁøÇà
¹°°Ç¸í¼¼¼­ ÇöȲÁ¶»ç¼­ ¹®°ÇÁ¢¼ö ¼Û´Þ³»¿ª

°¨Á¤Æò°¡ÇöȲ

¸ñ·Ï ÁÖ¼Ò ±¸Á¶/¿ëµµ/´ëÁö±Ç ¸éÀû ºñ°í
´ëÁö±Ç
¼þÀǵ¿ 353-22 719.8ºÐÀÇ 12.098 12.098 §³
(3.66Æò)
°Ç¹°
¼þÀǵ¿ 353-22 ¿¡À̵¿ 6Ãþ605È£ ö±ÙÄÜÅ©¸®Æ®±¸Á¶ 64.7 §³
(19.57Æò)
1) À§Ä¡/ÀϹݻó¾÷Áö¿ª/Â÷·®ÀÇ Á¢±ÙÀÌ °¡´É/³ë¼±¹ö½ºÁ¤·ùÀå/ö±ÙÄÜÅ©¸®Æ®±¸Á¶ ´õº¸±â
°¨Á¤Æò°¡ ¿äÇ×Ç¥
1)À§Ä¡ ¹× ÁÖÀ§È¯°æ
º»°ÇÀº ÀÎõ±¤¿ª½Ã ¹ÌÃßȦ±¸ ¼þÀǵ¿ ¼ÒÀç "¼þÀÇ·ÎÅ͸®" ¼­Ãø Àαٿ¡ À§Ä¡Çϸç, ÁÖÀ§´Â °øµ¿ÁÖÅÃ, ¿ÀÇǽºÅÚ ¹× ±Ù¸°»ýȰ½Ã¼³ µîÀÌ ¼ÒÀçÇÔ.
2)±³Åë»óȲ
º»°Ç±îÁö Â÷·®ÀÇ Á¢±ÙÀÌ °¡´ÉÇϰí, Àαٿ¡ ³ë¼±¹ö½ºÁ¤·ùÀå ¹× ¼öÀκд缱 "¼þÀÇ¿ª"ÀÌ ¼ÒÀçÇÏ¿© ´ëÁß±³ÅëÀÌ¿ëÆíÀÍÀº ¾çÈ£ÇÔ.
3)°Ç¹°ÀÇ ±¸Á¶
ö±ÙÄÜÅ©¸®Æ®±¸Á¶ (ö±Ù)ÄÜÅ©¸®Æ®ÁöºØ 15Ãþ °Ç¹° ³» 6Ãþ 605È£·Î¼­,

¿Üº®: ¸ôÅ»À§ ÆäÀÎÆÃ¸¶°¨ µî,
âȣ: ¼¦½Ã âȣÀÓ.
4)ÀÌ¿ë»óÅÂ
¿ÀÇǽºÅÚ·Î, ÇöÀåÁ¶»ç ´ç½Ã °ü¸®ºñµîÀ» Àå±â°£ ¹Ì³³ÇÑ »óÅÂÀΰÍÀ¸·Î ޹®Á¶»çµÊ.
5)¼³ºñ³»¿ª
À§»ý ¹× ±Þ¹è¼ö¼³ºñ, ³­¹æ¼³ºñ, ½Â°­±â¼³ºñ, ÁÖÂ÷¼³ºñ µîÀÌ µÇ¾îÀÖÀ½.
6)ÅäÁöÀÇ Çü»ó ¹× ÀÌ¿ë»óÅÂ
¼¼ÀåÇüÀÇ ÅäÁö·Î, ¾÷¹«½Ã¼³ ¹× °øµ¿ÁÖÅÃÀÇ °ÇºÎÁö·Î ÀÌ¿ëÁßÀÓ.
7)ÀÎÁ¢ µµ·Î»óŵî
º»°Ç ºÏµ¿ÃøÀ¸·Î ·ÎÆø ¾à 30m, ³²¼­ÃøÀ¸·Î ¾à 6m ³»¿ÜÀÇ µµ·Î¿Í Á¢ÇÔ.
8)ÅäÁöÀÌ¿ë°èȹ ¹× Á¦ÇÑ»óÅÂ
ÀϹݻó¾÷Áö¿ª(2022-06-13), ¹æÈ­Áö±¸, ½Ã°¡Áö°æ°üÁö±¸(2022-10-11), °¡Ãà»çÀ°Á¦Çѱ¸¿ª(ÀÎõ ±¤¿ª½Ã ¹ÌÃßȦ±¸ °¡Ãà»çÀ°Á¦ÇÑ¿¡ °üÇÑ Á¶·Ê[2018. 7. 1.])<°¡ÃàºÐ´¢ÀÇ °ü¸® ¹× À̿뿡 °üÇÑ ¹ý·ü>, °ú¹Ð¾ïÁ¦±Ç¿ª<¼öµµ±ÇÁ¤ºñ°èȹ¹ý>.
9)°øºÎ¿ÍÀÇ Â÷ÀÌ
¾øÀ½.
10)±âŸÂü°í»çÇ×(ÀÓ´ë°ü·Ê ¹× ±âŸ)
1) ÀÓ´ë°ü°è ¹Ì»óÀÓ.
2) º»°ÇÀº °øºÎ»ó ¿¡À̵¿À̳ª °Ç¹°¿Üº®Ç¥±â»ó 101µ¿À¸·Î µÇ¾îÀÖÀ½.
Âü°í
»çÇ×

ö±ÙÄÜÅ©¸®Æ®±¸Á¶ (ö±Ù)ÄÜÅ©

°ÇÃ๰ÇöȲ

¼ÒÀçÁö ÀÎõ±¤¿ª½Ã ¹ÌÃßȦ±¸ ¼þÀǵ¿ 353-22¹øÁö
´ëÁö¸éÀû 719.8§³
(218.12Æò)
¿¬¸éÀû 5525.24§³
(1674.32Æò)
°ÇÃà¸éÀû 508.2§³
(154Æò)
¿ëÀû·ü»êÁ¤
¿¬¸éÀû
5339.22§³
(1617.95Æò)
°ÇÆóÀ² 70.6% ¿ëÀû·ü 741.76%
Áö»óÃþ¼ö 15Ãþ ÁöÇÏÃþ¼ö 1Ãþ
ÁÖ¿ëµµ °øµ¿ÁÖÅà ±¸Á¶ ö±ÙÄÜÅ©¸®Æ®±¸Á¶
Âø°øÀÏÀÚ 2015.12.24 »ç¿ë½ÂÀÎÀÏÀÚ 2017.01.23


±¹ÅäºÎ½Ç°Å·¡°¡ ÀÎõ±¤¿ª½Ã ¹ÌÃßȦ±¸ ¼þÀǵ¿

¡Ü ¸Å¸Å

¸éÀû(§³), ±Ý¾×(¸¸¿ø)

¡Ü Àü¼¼

¸éÀû(§³), ±Ý¾×(¸¸¿ø)

°è¾àÀϰǹ°¸íĪÃþÀü¿ëº¸Áõ±Ý¿ù¼¼°ÇÃà
26.03.29ÇѸ¶À½¾ÆÆÄÆ® Aµ¿462.252,000802017

µî±âºÎµîº» ¿ä¾à(°Ç¹°)

  Á¢¼öÀÏÀÚ µî±â¸ñÀû/±Ç¸®ÀÚ ±Ç¸®±Ý¾× ±âÁØ
1 2017³â2¿ù6ÀÏ
¼ÒÀ¯±Ç
¹ÚOO
¼Ò¸ê
2 2022³â12¿ù1ÀÏ
¾àÁ¤/±ÝÁö»çÇ×/ȯ¸ÅƯ¾à
Àμö
3 2023³â8¿ù3ÀÏ
ÀÓÂ÷±Ç¼³Á¤
ÀÌOO
250,000,000 Àμö
4 2024³â12¿ù19ÀÏ
°­Á¦°æ¸Å
ÁÖOOOO
¼Ò¸ê±âÁØ

ÀÓÂ÷ÀÎÇöȲ (¹è´ç¿ä±¸Á¾±âÀÏ: 2025-03-13)

ÀÓÂ÷ÀÎ ¿ëµµ/Á¡À¯ º¸Áõ±Ý/¿ù¼¼ ´ëÇ×·Â
ÀüÀÔÀÏ/È®Á¤ÀÏ ¹è´ç¿ä±¸ ºñ°í
ÀÌOO ÀüºÎ 250,000,000
O
2021.6.10.
2021.5.21.
2021.6.10.~
ÁÖOOOOOOOOOOOOOOOO ÀüºÎ 250,000,000
O
2021.6.10.
2021.5.21.
2024.12.13. 2021.6.10.~2023.6.10.
ºñ°í
(¸Å°¢¹°°Ç
¸í¼¼¼­)
ÁÖÅõµ½Ãº¸Áõ°ø»ç(ÀÓÂ÷ÀÎ:ÀÌ¿¹¸°):ÁÖÅÃÀÓÂ÷±ÇÀÚÀÎ ÀÌ¿¹¸°ÀÇ ÀÓÂ÷º¸Áõ±Ý¹Ýȯä±ÇÀ» ¾ç¼öÇÑ ½Â°èÀÎÀ¸·Î¼­ ½Åûä±ÇÀÚÀÌ¸ç ±Ç¸® ½Å°í ¹× ¹è´ç¿ä±¸ÀÏÀÚ´Â ÀÌ »ç°Ç ½ÅûÀÏÀÓ. ÀÌ »ç°Ç¿¡¼­ ÀÓÂ÷º¸Áõ±Ý Àü¾×À» ¹è´ç¹ÞÁö ¸øÇÏ´õ¶óµµ ¸Å¼öÀο¡ ´ëÇÑ ÀÜÁ¸ ÀÓÂ÷º¸ Áõ±Ý¹Ýȯä±ÇÀ» Æ÷±âÇϰí ÁÖÅÃÀÓÂ÷±Çµî±âÀÇ ¸»¼Ò¿¡ µ¿ÀÇÇÑ´Ù´Â ÃëÁöÀÇ È®¾à¼­¸¦ Á¦ÃâÇÔ.

¿©ÀÇÁÖ°æ¸Å Á¶¾ð ÇÑ ¸¶µð

¼±¼øÀ§ ÀÓÂ÷±Çµî±â°¡ µÇ¾î ÀÖ½À´Ï´Ù
´ëÇ×·ÂÀÌ ÀÖ´Â ¼±¼øÀ§ ÀÓÂ÷±Çµî±â ±Ç¸®ÀÚ°¡ ¹è´çÀ» Àü¾× ¹ÞÁö ¸øÇÒ °æ¿ì ³«ÂûÀÚ°¡ ÀÜ¿© º¸Áõ±ÝÀ» ÀμöÇØ¾ßÇÏ´Â °æ¿ìµµ ÀÖ½À´Ï´Ù.

ÁÖÀÇ»çÇ× (ÃÖ¼±¼øÀ§ ¼³Á¤ÀÏ: 2024.12.19. °­Á¦°æ¸Å °³ ¼³Á¤ ½Ã°áÁ¤)

¸Å°¢À¸·Î ¼Ò¸êµÇÁö ¾Ê´Â µî±âºÎ±Ç¸®: À»±¸ ¼øÀ§ 3¹ø ÁÖÅÃÀÓÂ÷±Çµî±â(´Ù¸¸ ÁÖÅõµ½Ãº¸Áõ°ø»çÀÇ ¸»¼Òµ¿ÀÇ È®¾à¼­°¡ Á¦ÃâµÊ)
¸Å°¢À¸·Î ¼³Á¤µÈ °ÍÀ¸·Î º¸´Â Áö»ó±Ç:
- °Ç¹° ¿Üº® '101µ¿' Ç¥½Ã - ÇöÀåÁ¶»ç ´ç½Ã °ü¸®ºñ Àå±â°£ ¹Ì³³»óÅÂÀÎ °ÍÀ¸·Î ޹®Á¶»çµÊ
¡Ø¹Ì³³°ü¸®ºñ(°ø¿ë) Àμö¿©ºÎ¸¦ ÀÔÂû Àü¿¡ È®ÀÎÇϽñ⠹ٶø´Ï´Ù

 

Áö¿ªºÐ¼®

ÁöÇÏö¸í Á÷¼±°Å¸®

Çб³¸í ÀüÈ­¹øÈ£ ÁÖ¼Ò Á÷¼±°Å¸®

¹ý¿ø

ÀÎõÁö¹æ¹ý¿ø (222-20)ÀÎõ±¤¿ª½Ã ¹ÌÃßȦ±¸ ¼Ò¼º·Î 163¹ø±æ 17(ÇÐÀ͵¿)
´ëÇ¥ : 032)860-1113~4
°üÇÒÁö¿ª : Áß±¸, µ¿±¸, ³²±¸, ¿¬¼ö±¸, ³²µ¿±¸, ºÎÆò±¸, °è¾ç±¸, ¼­±¸, ¿ËÁø±º, °­È­±º

µî±â¼Ò ÀÎõÁö¹æ¹ý¿ø º»¿ø µî±â±¹ (´ëÇ¥:1544-0773, ÆÑ½º:(032)620-9099, ÀÎõ±¤¿ª½Ã ¹ÌÃßȦ±¸ °æ¿ø´ë·Î 881(Á־ȵ¿ 983))
¼¼¹«¼­ ÀÎõ¼¼¹«¼­ (´ëÇ¥:032-770-02, ÆÑ½º:032-777-8104, ÀÎõ±¤¿ª½Ã µ¿±¸ ¿ì°¢·Î 75 (⿵µ¿))

Àαٳ«ÂûÅë°è

±â°£ ¸Å°¢°Ç¼ö Æò±Õ°¨Á¤°¡
Æò±Õ¸Å°¢°¡
¸Å°¢°¡À²
Æò±ÕÀ¯Âû¼ö
3°³¿ù 170°Ç 201,503,824¿ø
108,567,041¿ø
54%
2.5ȸ
6°³¿ù 421°Ç 203,292,518¿ø
121,935,914¿ø
60%
2ȸ
12°³¿ù 829°Ç 205,204,487¿ø
125,263,969¿ø
61%
2.2ȸ


º» °æ¸ÅÁ¤º¸´Â ¹ý¿øÀÚ·á¿Í ÀÏÄ¡Çϵµ·Ï ÇÏ¿´À¸³ª ±Ç¸®»çÇ׺¯µ¿, ÀÔ·ÂÂø¿À µîÀÇ ¿øÀÎÀ¸·Î »ç½Ç°ú ´Ù¸¦ ¼ö ÀÖ½À´Ï´Ù. ÀÌ¿ë¾à°ü¿¡ ÀǰЏéÃ¥Á¶°ÇÀ¸·Î Á¦°øµÊÀ» ¾Ë¸®¸ç, °æ¸ÅÀÔÂû½Ã ¹Ýµå½Ã °ü·Ã °øºÎ¸¦ ÀçÈ®ÀÎÇϽñ⠹ٶø´Ï´Ù. º¸´Ù Æí¸®ÇÑ °æ¸ÅÁ¤º¸ Á¦°øÀ» À§ÇØ Áö¼ÓÀûÀ¸·Î °³¼±ÇϰڽÀ´Ï´Ù. ÀÌ¿ëÇØ Áּż­ °¨»çÇÕ´Ï´Ù.