·Î±×ÀÎ
68
´Ù¼¼´ë(ºô¶ó)
ÀÇÁ¤ºÎÁö¹æ¹ý¿ø °í¾çÁö¿ø
 °¨Á¤°¡240,000,000 ¿ø
 ÃÖÀú°¡(100%) 240,000,000 ¿ø
 º¸Áõ±Ý(10%) 24,000,000 ¿ø
 Ã»±¸¾×248,000,000 ¿ø
°æ±âµµ °í¾ç½Ã Àϻ굿±¸ ½Ä»çµ¿ 832-57 »ï¼ºÄ³½½ 107µ¿ 2Ãþ201È£
»ç°Ç¹øÈ£ 2025Ÿ°æ64776
°æ¸ÅÁ¾·ùºÎµ¿»ê°­Á¦°æ¸Å
¸Å°¢´ë»óÅäÁö ¹× °Ç¹°Àϰý ¸Å°¢
¸Å°¢±âÀÏ    2026.04.15(¼ö) 10:00 ÀÔÂû 9ÀÏÀü    
ÅäÁö¸éÀû55.70§³(16.85 Æò)
°Ç¹°¸éÀû61.49§³(18.60 Æò)
乫/¼ÒÀ¯ÀÚÁ¤OO / Á¤OO
ä±ÇÀÚÁÖOOOOOOO
ÆäÀ̽ººÏ Æ®À§ÅÍ ±¸±Û+
īī¿À½ºÅ丮
īī¿ÀÅå sms¹®ÀÚº¸³»±â
 

±âÀϳ»¿ª

°æ°ú ³¯Â¥ Àú°¨ ÃÖÀú°¡ °á°ú
Á¢¼öÀÏ 2025-11-17 °æ¸ÅÁ¢¼ö
~1ÀÏ 
2025-11-18 °æ¸Å°³½Ã°áÁ¤
~87ÀÏ 
2026-02-12 ¹è´ç¿ä±¸Á¾±âÀÏ
~149ÀÏ 
2026-04-15 100%
240,000,000
ÁøÇà
¹°°Ç¸í¼¼¼­ ÇöȲÁ¶»ç¼­ ¹®°ÇÁ¢¼ö ¼Û´Þ³»¿ª

°¨Á¤Æò°¡ÇöȲ

¸ñ·Ï ÁÖ¼Ò ±¸Á¶/¿ëµµ/´ëÁö±Ç ¸éÀû ºñ°í
´ëÁö±Ç
½Ä»çµ¿ 832-57 1070ºÐÀÇ 55.7 55.7 §³
(16.85Æò)
°Ç¹°
½Ä»çµ¿ 832-57 107µ¿ 2Ãþ201È£ ö±ÙÄÜÅ©¸®Æ®±¸Á¶ 61.49 §³
(18.60Æò)
1) À§Ä¡/µµ½ÃÁö¿ª/°èȹ°ü¸®Áö¿ª/ÅäÁö°Å·¡°è¾à¿¡°üÇÑÇã°¡±¸¿ª/³ë¼±¹ö½º Á¤·ùÀå/ö±ÙÄÜÅ©¸®Æ®±¸Á¶ ´õº¸±â
°¨Á¤Æò°¡ ¿äÇ×Ç¥
1)À§Ä¡ ¹× ÁÖÀ§È¯°æ
º»°ÇÀº °æ±âµµ °í¾ç½Ã Àϻ굿±¸ ½Ä»çµ¿ ¼ÒÀç "µ¿±¹´ëÇб³ ¹ÙÀÌ¿À¸ÞµðÄ·ÆÛ½º" ¼­Ãø¿¡ À§Ä¡Çϸç, ÁÖÀ§´Â °øµ¿ÁÖÅÃ, ±Ù¸°»ýȰ½Ã¼³ µîÀÌ ¼ÒÀçÇϸç Á¦¹Ý ÁÖÀ§È¯°æÀº º¸ÅëÀÔ´Ï´Ù.
2)±³Åë»óȲ
º»°Ç±îÁö Â÷·® Áø,ÃâÀÔÀÌ °¡´ÉÇϸç, Àαٿ¡ ³ë¼±¹ö½º Á¤·ùÀåÀÌ ¼ÒÀçÇÏ´Â µî Á¦¹Ý±³Åë»óȲÀº º¸ÅëÀÔ´Ï´Ù.
3)°Ç¹°ÀÇ ±¸Á¶
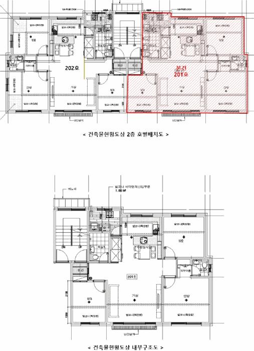
ö±ÙÄÜÅ©¸®Æ®±¸Á¶ ÆòÁöºØ Áö»ó4Ãþ ³» 2Ãþ 201È£·Î¼­, ¿Üº®: º®µ¹ºÙÀÓ ¸¶°¨ µî, âȣ: ¼¦½Ã âȣÀÔ´Ï´Ù.
4)ÀÌ¿ë»óÅÂ
´Ù¼¼´ëÁÖÅÃ(ÈÄ÷ "³»ºÎ ±¸Á¶µµ" ÂüÁ¶)À¸·Î ÀÌ¿ë ÁßÀÔ´Ï´Ù.
5)¼³ºñ³»¿ª
À§»ý ¹× ±Þ,¹è¼ö¼³ºñ, ³­¹æ¼³ºñ µîÀÌ µÇ¾îÀÖ½À´Ï´Ù.
6)ÅäÁöÀÇ Çü»ó ¹× ÀÌ¿ë»óÅÂ
ÀÎÁ¢Áö´ëºñ ÆòźÇÑ »ç´Ù¸®ÇüÀÇ ÅäÁö·Î¼­, ÀÏ´ÜÀ¸·Î ´Ù¼¼´ëÁÖÅà °ÇºÎÁö·Î ÀÌ¿ë ÁßÀÔ´Ï´Ù.
7)ÀÎÁ¢ µµ·Î»óŵî
º»°Ç ³²ÃøÀ¸·Î ³ëÆø ¾à 4~5mÀÇ Æ÷Àåµµ·Î¿Í Á¢ÇÕ´Ï´Ù.
8)ÅäÁöÀÌ¿ë°èȹ ¹× Á¦ÇÑ»óÅÂ
°èȹ°ü¸®Áö¿ª(2015-08-04), ¼ºÀå°ü¸®°èȹ±¸¿ª(º¹ÇÕzone) °¡Ãà»çÀ°Á¦Çѱ¸¿ª(2024-11-12)(ÀϺÎÁ¦Çѱ¸¿ª [ÀüºÎÁ¦Çѱ¸¿ªÀ¸·ÎºÎÅÍ Á¦ÇѰŸ® 500m (¼Ò,Á¥¼Ò,¸» Á¦ÇÑ)])<°¡ÃàºÐ´¢ÀÇ °ü¸® ¹× À̿뿡 °üÇÑ ¹ý·ü>, °¡Ãà»çÀ°Á¦Çѱ¸¿ª(2024-11-12)(ÀüºÎÁ¦Çѱ¸¿ª [µµ½ÃÁö¿ª{ÁÖ°Å,»ó¾÷,°ø¾÷,³ìÁö(ÀÚ¿¬Ãë¶ôÁö±¸)}¹×ÁְŹÐÁýÁö¿ª])<°¡ÃàºÐ´¢ÀÇ °ü¸® ¹× À̿뿡 °üÇÑ ¹ý·ü>, Á¦ÇѺ¸È£±¸¿ª(Àü¹æÁö¿ª:25km)(º¸È£)<±º»ç±âÁö ¹× ±º»ç½Ã¼³ º¸È£¹ý>, °ú¹Ð¾ïÁ¦±Ç¿ª<¼öµµ±ÇÁ¤ºñ°èȹ¹ý> ÅäÁö°Å·¡°è¾à¿¡°üÇÑÇã°¡±¸¿ª(2025-08-26)(¿Ü±¹Àεî´ë»ó,´ë»ó¿ëµµ(´Üµ¶,´Ù°¡±¸,¿¬¸³,´Ù¼¼´ëÁÖÅÃ,¾ÆÆÄÆ®)·Î»ç¿ëµÇ´ÂÅäÁö)
9)°øºÎ¿ÍÀÇ Â÷ÀÌ
°øºÎ¿ÍÀÇ Â÷ÀÌ ¾ø½À´Ï´Ù.
10)±âŸÂü°í»çÇ×(ÀÓ´ë°ü·Ê ¹× ±âŸ)
ÀÓ´ë°ü°è ¹Ì»óÀÔ´Ï´Ù. º»°ÇÀº ³»ºÎ±¸Á¶ È®ÀÎ ¹× ÀÛ¼ºÀº ÀÌÇØ°ü°èÀÎÀÇ Æó¹® ¹× ºÎÀç·Î ÀÎÇÏ¿© °Ç¹° ¿Ü°ü ¹× ޹®Á¶»ç¿¡ ÀǰÅÇÏ¿© Ç¥ÁØÀûÀ̰í ÀϹÝÀûÀÎ ÀÌ¿ë ¹× °ü¸®»óŸ¦ ±âÁØÇÏ¿© ÁøÇàÇÏ¿´À¸³ª, À̴ Ž¹®Á¶»ç¿¡ ÀǰÅÇÑ °ÍÀ¸·Î ÇöȲ°ú »óÀÌÇÒ ¼ö ÀÖ´Â ¹Ù ¾÷¹« ÁøÇà½Ã Âü°íÇϽñ⠹ٶø´Ï´Ù.
Âü°í
»çÇ×

1. º»°Ç °Ç¹°Àº ö±ÙÄÜÅ©¸®Æ®±¸Á¶ ÆòÁöºØ 4Ãþ ´Ù¼¼´ëÁÖÅÃÀÓ. 2. °Ç¹°¿Üº®°ú °øµ¿Çö°üÃâÀÔ±¸¿¡ `107`µ¿ Ç¥½Ã ÀÖÀ½.

°ÇÃ๰ÇöȲ

¼ÒÀçÁö °æ±âµµ °í¾ç½Ã Àϻ굿±¸ ½Ä»çµ¿ 832-57¹øÁö
´ëÁö¸éÀû   ¿¬¸éÀû 635.72§³
(192.64Æò)
°ÇÃà¸éÀû 214.05§³
(64.86Æò)
¿ëÀû·ü»êÁ¤
¿¬¸éÀû
539.79§³
(163.57Æò)
°ÇÆóÀ²   ¿ëÀû·ü  
Áö»óÃþ¼ö 4Ãþ ÁöÇÏÃþ¼ö 1Ãþ
ÁÖ¿ëµµ °øµ¿ÁÖÅà ±¸Á¶ ö±ÙÄÜÅ©¸®Æ®±¸Á¶
Âø°øÀÏÀÚ 2015.09.17 »ç¿ë½ÂÀÎÀÏÀÚ 2016.09.21
°ÇÃ๰Ãþº°ÇöȲ [º¸±â]


µî±âºÎµîº» ¿ä¾à(°Ç¹°)

  Á¢¼öÀÏÀÚ µî±â¸ñÀû/±Ç¸®ÀÚ ±Ç¸®±Ý¾× ±âÁØ
1 2021³â2¿ù1ÀÏ
¼ÒÀ¯±Ç
Á¤OO
¼Ò¸ê
2 2021³â3¿ù10ÀÏ
±ÙÀú´ç±Ç
(OOOO
65,000,000 ¼Ò¸ê±âÁØ
3 2021³â12¿ù24ÀÏ
±ÙÀú´ç±Ç
¾öOO
22,500,000 ¼Ò¸ê
4 2022³â1¿ù5ÀÏ
±ÙÀú´ç±Ç
¾öOO
30,000,000 ¼Ò¸ê
5 2022³â1¿ù28ÀÏ
±ÙÀú´ç±Ç
¾öOO
12,000,000 ¼Ò¸ê
6 2022³â2¿ù21ÀÏ
±ÙÀú´ç±Ç
Á¤OO
60,000,000 ¼Ò¸ê
7 2023³â6¿ù12ÀÏ
ÀÓÂ÷±Ç¼³Á¤
ÀÌOO
248,000,000 ¼Ò¸ê
8 2025³â11¿ù18ÀÏ
°­Á¦°æ¸Å
ÁÖOOOO
¼Ò¸ê

ÀÓÂ÷ÀÎÇöȲ (¹è´ç¿ä±¸Á¾±âÀÏ: 2026-02-12)



¸Å°¢±âÀÏ 7ÀÏÀü¿¡ ¸Å°¢¹°°Ç¸í¼¼¼­°¡ °ø°íµÇ¿À´Ï È®ÀÎÇϽñ⠹ٶø´Ï´Ù.

ÀÓÂ÷ÀÎ ¿ëµµ/Á¡À¯ º¸Áõ±Ý/¿ù¼¼ ´ëÇ×·Â
ÀüÀÔÀÏ/È®Á¤ÀÏ ¹è´ç¿ä±¸ ºñ°í
±èOO 201È£ÀüºÎ 20,000,000
[¿ù]600,000
X
2024.01.18.
2024.01.18.
2025.12.5. 2023.12.31.~2025.12.31.
ÀÌOO 201È£ÀüºÎ 248,000,000
O
2020.12.30.
2020.12.09.
2020.12.30.~2023.08.16
ÁÖOOOOOOO 201È£ÀüºÎ 248,000,000
O
2020.12.30.
2020.12.09.
2026.2.6. 2020.12.30.~2023.08.16
ºñ°í
(¸Å°¢¹°°Ç
¸í¼¼¼­)
ÁÖÅõµ½Ãº¸Áõ°ø»ç:½Åûä±ÇÀڷμ­ ÀÓÂ÷±ÇÀÚ ÀÌÁöÇöÀÇ ÀÓ´ëÂ÷º¸Áõ±Ý¹Ýȯä±ÇÀ» ½Â°èÇÔ.

¿©ÀÇÁÖ°æ¸Å Á¶¾ð ÇÑ ¸¶µð

¼±¼øÀ§ ÀÓÂ÷±Çµî±â°¡ µÇ¾î ÀÖ½À´Ï´Ù
´ëÇ×·ÂÀÌ ÀÖ´Â ¼±¼øÀ§ ÀÓÂ÷±Çµî±â ±Ç¸®ÀÚ°¡ ¹è´çÀ» Àü¾× ¹ÞÁö ¸øÇÒ °æ¿ì ³«ÂûÀÚ°¡ ÀÜ¿© º¸Áõ±ÝÀ» ÀμöÇØ¾ßÇÏ´Â °æ¿ìµµ ÀÖ½À´Ï´Ù.

ÁÖÀÇ»çÇ× (ÃÖ¼±¼øÀ§ ¼³Á¤ÀÏ: 2021. 03. 10. ±ÙÀú´ç±Ç ¼³Á¤)

¸Å°¢À¸·Î ¼Ò¸êµÇÁö ¾Ê´Â µî±âºÎ±Ç¸®:
¸Å°¢À¸·Î ¼³Á¤µÈ °ÍÀ¸·Î º¸´Â Áö»ó±Ç:
1. ºÎµ¿»êµî±â»çÇ×ÀüºÎÁõ¸í¼­»ó À»±¸ ¼øÀ§ 8¹ø 2023³â6¿ù12ÀÏ Á¦78218È£ Á¢¼ö ÁÖÅÃÀÓÂ÷±Çµî±â¿¡ ´ëÇÏ¿© ÀÓÂ÷±ÇÀÚÀÇ Ã¤±Ç¾ç¼ö ÀÎÀÎ ½Åûä±ÇÀÚ ÁÖÅõµ½Ãº¸Áõ°ø»ç°¡ 2026.3.3.ÀÚ È®¾à¼­(º¸Áõ±Ý Àü¾×À» ¹è´ç±Ý¿¡¼­ º¯Á¦ ¹ÞÁö ¸øÇÏ´õ¶óµµ ÀÜÁ¸ÀÓ´ëÂ÷º¸Áõ±Ý¹Ý ȯû±¸±ÇÀ» Æ÷±âÇϰí, ÀÓÂ÷±Çµî±â¸¦ ¸»¼ÒÇÏ´Â °Í¿¡ µ¿ÀÇÇÔ)¸¦ Á¦ÃâÇÔ.
¡Ø¹Ì³³°ü¸®ºñ(°ø¿ë) Àμö¿©ºÎ¸¦ ÀÔÂû Àü¿¡ È®ÀÎÇϽñ⠹ٶø´Ï´Ù

 

Áö¿ªºÐ¼®

ÁöÇÏö¸í Á÷¼±°Å¸®

Çб³¸í ÀüÈ­¹øÈ£ ÁÖ¼Ò Á÷¼±°Å¸®

¹ý¿ø

ÀÇÁ¤ºÎÁö¹æ¹ý¿ø °í¾çÁö¿ø (104-13)°æ±âµµ °í¾ç½Ã Àϻ굿±¸ Àå¹é·Î 209
´ëÇ¥ : 031)920-6114, ¾ß°£ : 031)920-6550, ÆÑ½º : 031)920-6119
°üÇÒÁö¿ª : °í¾ç½Ã, ÆÄÁÖ½Ã

µî±â¼Ò ÀÇÁ¤ºÎÁö¹æ¹ý¿ø °í¾çÁö¿ø °í¾çµî±â¼Ò (´ëÇ¥:1544-0773, ÆÑ½º:(031)920-5959, °æ±âµµ °í¾ç½Ã Àϻ굿±¸ Áß¾Ó·Î1275¹ø±æ 38-30 (ÀåÇ×µ¿ 773))
¼¼¹«¼­ °í¾ç¼¼¹«¼­ (´ëÇ¥:031-900-92, ÆÑ½º:031-907-9177, °æ±âµµ °í¾ç½Ã Àϻ굿±¸ Áß¾Ó·Î1275¹ø±æ 14-43 (ÀåÇ×µ¿) )

Àαٳ«ÂûÅë°è

±â°£ ¸Å°¢°Ç¼ö Æò±Õ°¨Á¤°¡
Æò±Õ¸Å°¢°¡
¸Å°¢°¡À²
Æò±ÕÀ¯Âû¼ö
3°³¿ù 26°Ç 292,884,615¿ø
184,165,515¿ø
62%
1.8ȸ
6°³¿ù 50°Ç 269,580,000¿ø
168,926,178¿ø
62%
2ȸ
12°³¿ù 69°Ç 266,521,739¿ø
168,948,644¿ø
63%
2ȸ


º» °æ¸ÅÁ¤º¸´Â ¹ý¿øÀÚ·á¿Í ÀÏÄ¡Çϵµ·Ï ÇÏ¿´À¸³ª ±Ç¸®»çÇ׺¯µ¿, ÀÔ·ÂÂø¿À µîÀÇ ¿øÀÎÀ¸·Î »ç½Ç°ú ´Ù¸¦ ¼ö ÀÖ½À´Ï´Ù. ÀÌ¿ë¾à°ü¿¡ ÀǰЏéÃ¥Á¶°ÇÀ¸·Î Á¦°øµÊÀ» ¾Ë¸®¸ç, °æ¸ÅÀÔÂû½Ã ¹Ýµå½Ã °ü·Ã °øºÎ¸¦ ÀçÈ®ÀÎÇϽñ⠹ٶø´Ï´Ù. º¸´Ù Æí¸®ÇÑ °æ¸ÅÁ¤º¸ Á¦°øÀ» À§ÇØ Áö¼ÓÀûÀ¸·Î °³¼±ÇϰڽÀ´Ï´Ù. ÀÌ¿ëÇØ Áּż­ °¨»çÇÕ´Ï´Ù.