·Î±×ÀÎ
44
¿ÀÇǽºÅÚ
ÀÎõÁö¹æ¹ý¿ø
 °¨Á¤°¡180,000,000 ¿ø
 ÃÖÀú°¡(100%) 180,000,000 ¿ø
 º¸Áõ±Ý(10%) 18,000,000 ¿ø
 Ã»±¸¾×170,000,000 ¿ø
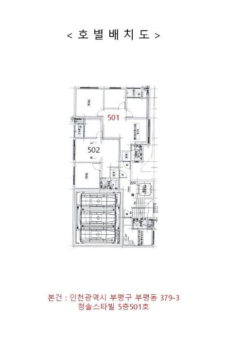
ÀÎõ±¤¿ª½Ã ºÎÆò±¸ ºÎÈïºÏ·Î 62, 5Ãþ501È£ (ºÎÆòµ¿,û¼Ö½ºÅ¸ºô)
ÀÎõ±¤¿ª½Ã ºÎÆò±¸ ºÎÆòµ¿ 379-3
»ç°Ç¹øÈ£ 2024Ÿ°æ577822
°æ¸ÅÁ¾·ùºÎµ¿»ê°­Á¦°æ¸Å
¸Å°¢´ë»óÅäÁö ¹× °Ç¹°Àϰý ¸Å°¢
¸Å°¢±âÀÏ    2026.04.15(¼ö) 10:00 ÀÔÂû 3ÀÏÀü    
ÅäÁö¸éÀû14.97§³(4.53 Æò)
°Ç¹°¸éÀû64.29§³(19.45 Æò)
乫/¼ÒÀ¯ÀÚ¹éOO / ¹éOO
ä±ÇÀÚÁÖOOOOOOO
ÆäÀ̽ººÏ Æ®À§ÅÍ ±¸±Û+
īī¿À½ºÅ丮
īī¿ÀÅå sms¹®ÀÚº¸³»±â
 

±âÀϳ»¿ª

°æ°ú ³¯Â¥ Àú°¨ ÃÖÀú°¡ °á°ú
Á¢¼öÀÏ 2024-11-28 °æ¸ÅÁ¢¼ö
~1ÀÏ 
2024-11-29 °æ¸Å°³½Ã°áÁ¤
~81ÀÏ 
2025-02-17 ¹è´ç¿ä±¸Á¾±âÀÏ
~503ÀÏ 
2026-04-15 100%
180,000,000
ÁøÇà
¹°°Ç¸í¼¼¼­ ÇöȲÁ¶»ç¼­ ¹®°ÇÁ¢¼ö ¼Û´Þ³»¿ª

°¨Á¤Æò°¡ÇöȲ

¸ñ·Ï ÁÖ¼Ò ±¸Á¶/¿ëµµ/´ëÁö±Ç ¸éÀû ºñ°í
´ëÁö±Ç
ºÎÆòµ¿ 379-3 265.9ºÐÀÇ 14.97 14.97 §³
(4.53Æò)
°Ç¹°
ºÎÆòµ¿ 379-3 5Ãþ501È£ ö±ÙÄÜÅ©¸®Æ®±¸Á¶ 64.29 §³
(19.45Æò)
1) À§Ä¡/ÀϹݻó¾÷Áö¿ª/¹ö½ºÁ¤·ùÀå/ÁÖÂ÷Àå/ö±ÙÄÜÅ©¸®Æ®±¸Á¶/µµ½Ã°¡½º ´õº¸±â
°¨Á¤Æò°¡ ¿äÇ×Ç¥
1)À§Ä¡ ¹× ÁÖÀ§È¯°æ
º»°ÇÀº ÀÎõ±¤¿ª½Ã ºÎÆò±¸ ºÎÆòµ¿ ¼ÒÀç "ºÎÆòÁßÇб³" ³²Ãø Àαٿ¡ À§Ä¡Çϸç, ÁÖÀ§´Â ¾÷¹«½Ã¼³, °øµ¿ÁÖÅÃ, ±Ù¸°»ýȰ½Ã¼³, Çб³ µîÀ¸·Î Çü¼ºµÇ¾î ÀÖÀ½.
2)±³Åë»óȲ
º»°Ç±îÁö Â÷·®ÃâÀÔÀÌ °¡´ÉÇϸç, Àαٿ¡ ¹ö½ºÁ¤·ùÀåÀÌ ¼ÒÀçÇÏ¿© ±³Åë»óȲÀº ¹«³­ÇÑ ÆíÀÓ.
3)°Ç¹°ÀÇ ±¸Á¶
ö±ÙÄÜÅ©¸®Æ®±¸Á¶ ö±ÙÄÜÅ©¸®Æ®(Æò½º¶óºê)ÁöºØ 10Ãþ °Ç¹°³» 5Ãþ501È£·Î¼­,
¿Üº® : ¸ôÅ»À§ ÆäÀÎÆÃ ¸¶°¨ µî.
³»º® : º®Áö ¹× ŸÀÏ ¸¶°¨ µî.
âȣ : ¼¦½Ã âȣ µî.
(»ç¿ë½ÂÀÎÀÏ : 2012.10.12)
4)ÀÌ¿ë»óÅÂ
¿ÀÇǽºÅÚ·Î ÀÌ¿ëÁßÀÓ.
5)¼³ºñ³»¿ª
À§»ý¼³ºñ, ±Þ¹è¼ö¼³ºñ, ³­¹æ¼³ºñ, µµ½Ã°¡½º¼³ºñ, ½Â°­±â¼³ºñ, ±â°è½ÄÁÖÂ÷Àå¼³ºñ µîÀÌ µÇ¾î ÀÖÀ½.



6)ÅäÁöÀÇ Çü»ó ¹× ÀÌ¿ë»óÅÂ
À广ÇüÀÇ ÅäÁö·Î¼­ ¾÷¹«½Ã¼³ ¹× °øµ¿ÁÖÅà °ÇºÎÁö·Î ÀÌ¿ëÁßÀÓ.
7)ÀÎÁ¢ µµ·Î»óŵî
º»°Ç ºÏÃøÀ¸·Î ³ëÆø 15m ³»¿ÜÀÇ µµ·Î¿¡ Á¢ÇÔ.
8)ÅäÁöÀÌ¿ë°èȹ ¹× Á¦ÇÑ»óÅÂ
ÀϹݻó¾÷Áö¿ª, ¹æÈ­Áö±¸, °¡·Î±¸¿ªº° ÃÖ°í³ôÀÌ Á¦ÇÑÁö¿ª<°ÇÃà¹ý>, »ó´ëº¸È£±¸¿ª<±³À°È¯°æ º¸È£¿¡ °üÇÑ ¹ý·ü>, »ó´ëº¸È£±¸¿ª(2024-03-12)<±³À°È¯°æ º¸È£¿¡ °üÇÑ ¹ý·ü>, °ú¹Ð¾ïÁ¦±Ç¿ª<¼öµµ±ÇÁ¤ºñ°èȹ¹ý>.
9)°øºÎ¿ÍÀÇ Â÷ÀÌ
¾ø À½.
10)±âŸÂü°í»çÇ×(ÀÓ´ë°ü·Ê ¹× ±âŸ)
ÀÓ´ë°ü°è ¹Ì»óÀÓ.
Âü°í
»çÇ×

º» °ÇÀº 10

°ÇÃ๰ÇöȲ

¼ÒÀçÁö ÀÎõ±¤¿ª½Ã ºÎÆò±¸ ºÎÆòµ¿ 379-3¹øÁö
´ëÁö¸éÀû 256.5§³
(77.73Æò)
¿¬¸éÀû 1464.01§³
(443.64Æò)
°ÇÃà¸éÀû 205.02§³
(62.13Æò)
¿ëÀû·ü»êÁ¤
¿¬¸éÀû
1464.01§³
(443.64Æò)
°ÇÆóÀ² 79.93% ¿ëÀû·ü 570.76%
Áö»óÃþ¼ö 10Ãþ ÁöÇÏÃþ¼ö  
ÁÖ¿ëµµ ¾÷¹«½Ã¼³ ±¸Á¶ ö±ÙÄÜÅ©¸®Æ®±¸Á¶
Âø°øÀÏÀÚ 2012.02.10 »ç¿ë½ÂÀÎÀÏÀÚ 2012.10.12
°ÇÃ๰Ãþº°ÇöȲ [º¸±â]


±¹ÅäºÎ½Ç°Å·¡°¡ ÀÎõ±¤¿ª½Ã ºÎÆò±¸ ºÎÆòµ¿

¡Ü ¸Å¸Å

¸éÀû(§³), ±Ý¾×(¸¸¿ø)

¡Ü Àü¼¼

¸éÀû(§³), ±Ý¾×(¸¸¿ø)

°è¾àÀϰǹ°¸íĪÃþÀü¿ëº¸Áõ±Ý¿ù¼¼°ÇÃà
25.05.08û¼Ö½ºÅ¸ºô664.291,500652012

µî±âºÎµîº» ¿ä¾à(°Ç¹°)

  Á¢¼öÀÏÀÚ µî±â¸ñÀû/±Ç¸®ÀÚ ±Ç¸®±Ý¾× ±âÁØ
1 2020³â6¿ù5ÀÏ
¼ÒÀ¯±Ç
¹éOO
¼Ò¸ê
2 2023³â4¿ù18ÀÏ
¾Ð·ù
±¹
¼Ò¸ê±âÁØ
3 2024³â2¿ù22ÀÏ
ÀÓÂ÷±Ç¼³Á¤
À¯OO
170,000,000 ¼Ò¸ê
4 2024³â11¿ù29ÀÏ
°­Á¦°æ¸Å
ÁÖOOOO
¼Ò¸ê
5 2024³â12¿ù16ÀÏ
¾Ð·ù
±¹OOOO
¼Ò¸ê

ÀÓÂ÷ÀÎÇöȲ (¹è´ç¿ä±¸Á¾±âÀÏ: 2025-02-17)

ÀÓÂ÷ÀÎ ¿ëµµ/Á¡À¯ º¸Áõ±Ý/¿ù¼¼ ´ëÇ×·Â
ÀüÀÔÀÏ/È®Á¤ÀÏ ¹è´ç¿ä±¸ ºñ°í
À¯OO ÀüºÎ (1)170,000,000(2)178,500,000
O
2020.5.22.
(1)2020.5.6.(2)2022.4.14.
2020.5.22.~
ÁÖOOOOOOOOOOOOOOO ÀüºÎ 170,000,000
O
2020.5.22.
(1)2020.5.6.(2)2022.4.14.
2025.2.14. 2020.5.22.~2024.5.22.
ºñ°í
(¸Å°¢¹°°Ç
¸í¼¼¼­)
À¯ÇýÁø:ÀÓÂ÷º¸Áõ±Ý Áß ±Ý8,500,000¿øÀº 2022.2.19.ÀÚ·Î Áõ¾×µÇ¾úÀ¸¸ç Áõ¾×ºÐ¿¡ ´ëÇÑ È®Á¤ÀÏÀÚ´Â 2022.4.14.ÀÓ ÁÖÅõµ½Ãº¸Áõ°ø»ç(ÀÓÂ÷ÀÎ À¯ÇýÁø):ÁÖÅÃÀÓÂ÷±ÇÀÚÀÎ À¯ÇýÁøÀÇ ÀÓÂ÷º¸Áõ±Ý¹Ýȯä±ÇÀ» (ÀϺÎ)¾ç¼öÇÑ ½Â°èÀÎÀ¸·Î¼­ °æ¸Å½Åûä±ÇÀÚ ÀÓ.

¿©ÀÇÁÖ°æ¸Å Á¶¾ð ÇÑ ¸¶µð

¼±¼øÀ§ ÀÓÂ÷±Çµî±â°¡ µÇ¾î ÀÖ½À´Ï´Ù
´ëÇ×·ÂÀÌ ÀÖ´Â ¼±¼øÀ§ ÀÓÂ÷±Çµî±â ±Ç¸®ÀÚ°¡ ¹è´çÀ» Àü¾× ¹ÞÁö ¸øÇÒ °æ¿ì ³«ÂûÀÚ°¡ ÀÜ¿© º¸Áõ±ÝÀ» ÀμöÇØ¾ßÇÏ´Â °æ¿ìµµ ÀÖ½À´Ï´Ù.

ÁÖÀÇ»çÇ× (ÃÖ¼±¼øÀ§ ¼³Á¤ÀÏ: 2023.4.18. ¾Ð·ù ¼³Á¤)

¸Å°¢À¸·Î ¼Ò¸êµÇÁö ¾Ê´Â µî±âºÎ±Ç¸®: À»±¸ ¼øÀ§ 5¹ø ÁÖÅÃÀÓÂ÷±Çµî±â(¹è´ç¿¡¼­ º¸Áõ±ÝÀÌ Àü¾× º¯Á¦µÇÁö ¾Æ´ÏÇÏ¸é ¸Å¼öÀÎÀÌ Àܾ×À» ÀμöÇÔ)
¸Å°¢À¸·Î ¼³Á¤µÈ °ÍÀ¸·Î º¸´Â Áö»ó±Ç:
¡Ø¹Ì³³°ü¸®ºñ(°ø¿ë) Àμö¿©ºÎ¸¦ ÀÔÂû Àü¿¡ È®ÀÎÇϽñ⠹ٶø´Ï´Ù

 

Áö¿ªºÐ¼®

ÁöÇÏö¸í Á÷¼±°Å¸®

Çб³¸í ÀüÈ­¹øÈ£ ÁÖ¼Ò Á÷¼±°Å¸®

¹ý¿ø

ÀÎõÁö¹æ¹ý¿ø (222-20)ÀÎõ±¤¿ª½Ã ¹ÌÃßȦ±¸ ¼Ò¼º·Î 163¹ø±æ 17(ÇÐÀ͵¿)
´ëÇ¥ : 032)860-1113~4
°üÇÒÁö¿ª : Áß±¸, µ¿±¸, ³²±¸, ¿¬¼ö±¸, ³²µ¿±¸, ºÎÆò±¸, °è¾ç±¸, ¼­±¸, ¿ËÁø±º, °­È­±º

µî±â¼Ò ÀÎõÁö¹æ¹ý¿ø º»¿ø µî±â±¹ (´ëÇ¥:1544-0773, ÆÑ½º:(032)620-9099, ÀÎõ±¤¿ª½Ã ¹ÌÃßȦ±¸ °æ¿ø´ë·Î 881(Á־ȵ¿ 983))
¼¼¹«¼­ ºÏÀÎõ¼¼¹«¼­ (´ëÇ¥:032-540-62, ÆÑ½º:032-545-0411, ÀÎõ±¤¿ª½Ã °è¾ç±¸ È¿¼­·Î244(ÀÛÀüµ¿ 422-1) )

Àαٳ«ÂûÅë°è

±â°£ ¸Å°¢°Ç¼ö Æò±Õ°¨Á¤°¡
Æò±Õ¸Å°¢°¡
¸Å°¢°¡À²
Æò±ÕÀ¯Âû¼ö
3°³¿ù 134°Ç 216,880,597¿ø
138,588,638¿ø
65%
1.9ȸ
6°³¿ù 301°Ç 217,348,837¿ø
150,532,971¿ø
70%
1.7ȸ
12°³¿ù 551°Ç 219,923,049¿ø
157,515,573¿ø
72%
1.6ȸ


º» °æ¸ÅÁ¤º¸´Â ¹ý¿øÀÚ·á¿Í ÀÏÄ¡Çϵµ·Ï ÇÏ¿´À¸³ª ±Ç¸®»çÇ׺¯µ¿, ÀÔ·ÂÂø¿À µîÀÇ ¿øÀÎÀ¸·Î »ç½Ç°ú ´Ù¸¦ ¼ö ÀÖ½À´Ï´Ù. ÀÌ¿ë¾à°ü¿¡ ÀǰЏéÃ¥Á¶°ÇÀ¸·Î Á¦°øµÊÀ» ¾Ë¸®¸ç, °æ¸ÅÀÔÂû½Ã ¹Ýµå½Ã °ü·Ã °øºÎ¸¦ ÀçÈ®ÀÎÇϽñ⠹ٶø´Ï´Ù. º¸´Ù Æí¸®ÇÑ °æ¸ÅÁ¤º¸ Á¦°øÀ» À§ÇØ Áö¼ÓÀûÀ¸·Î °³¼±ÇϰڽÀ´Ï´Ù. ÀÌ¿ëÇØ Áּż­ °¨»çÇÕ´Ï´Ù.