·Î±×ÀÎ
79
¾ÆÆÄÆ®
ÀÇÁ¤ºÎÁö¹æ¹ý¿ø °í¾çÁö¿ø
 °¨Á¤°¡312,000,000 ¿ø
 ÃÖÀú°¡(100%) 312,000,000 ¿ø
 º¸Áõ±Ý(10%) 31,200,000 ¿ø
 Ã»±¸¾×360,575,683 ¿ø
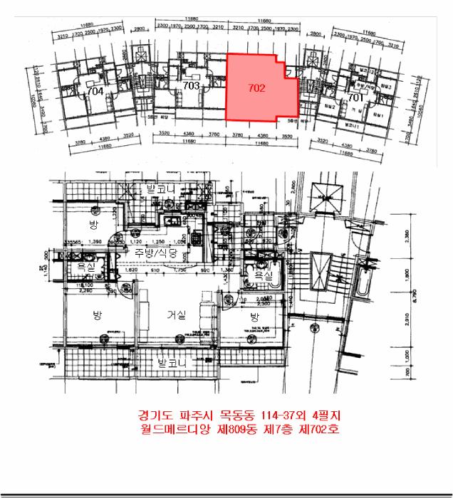
°æ±âµµ ÆÄÁֽà ¸ñµ¿µ¿ 114-37 »ê³»¸¶À»8´ÜÁö ¿ùµå¸Þ¸£µð¾Ó 809µ¿ 7Ãþ702È£
»ç°Ç¹øÈ£ 2025Ÿ°æ63793
°æ¸ÅÁ¾·ùºÎµ¿»êÀÓÀǰæ¸Å
¸Å°¢´ë»óÅäÁö ¹× °Ç¹°Àϰý ¸Å°¢
¸Å°¢±âÀÏ    2026.04.15(¼ö) 10:00 ÀÔÂû 4ÀÏÀü    
ÅäÁö¸éÀû48.65§³(14.72 Æò)
°Ç¹°¸éÀû73.10§³(22.11 Æò)
乫/¼ÒÀ¯ÀÚ¼ÛOO / ¼ÛOO
ä±ÇÀÚÀÌOOOOOOOOOOOOO OOOO (OO O OOOOO OOOO)
ÆäÀ̽ººÏ Æ®À§ÅÍ ±¸±Û+
īī¿À½ºÅ丮
īī¿ÀÅå sms¹®ÀÚº¸³»±â
 

±âÀϳ»¿ª

°æ°ú ³¯Â¥ Àú°¨ ÃÖÀú°¡ °á°ú
Á¢¼öÀÏ 2025-07-25 °æ¸ÅÁ¢¼ö
~5ÀÏ 
2025-07-30 °æ¸Å°³½Ã°áÁ¤
~87ÀÏ 
2025-10-20 ¹è´ç¿ä±¸Á¾±âÀÏ
~264ÀÏ 
2026-04-15 100%
312,000,000
ÁøÇà
¹°°Ç¸í¼¼¼­ ÇöȲÁ¶»ç¼­ ¹®°ÇÁ¢¼ö ¼Û´Þ³»¿ª

°¨Á¤Æò°¡ÇöȲ

¸ñ·Ï ÁÖ¼Ò ±¸Á¶/¿ëµµ/´ëÁö±Ç ¸éÀû ºñ°í
´ëÁö±Ç
¸ñµ¿µ¿ 1-5 72523ºÐÀÇ 48.645 48.645 §³
(14.72Æò)
°Ç¹°
¸ñµ¿µ¿ 114-37 809µ¿ 7Ãþ702È£ ö±ÙÄÜÅ©¸®Æ®Á¶ 73.095 §³
(22.11Æò)
1) À§Ä¡/µµ½ÃÁö¿ª/Á¦3Á¾ÀϹÝÁÖ°ÅÁö¿ª/ÀÚ¿¬³ìÁöÁö¿ª/¹ö½ºÁ¤·ùÀå/ÁöÇÏÁÖÂ÷Àå/ö±ÙÄÜÅ©¸®Æ®Á¶/°æ»çÁöºØ ´õº¸±â
°¨Á¤Æò°¡ ¿äÇ×Ç¥
1)À§Ä¡ ¹× ÁÖÀ§È¯°æ
º»°ÇÀº °æ±âµµ ÆÄÁֽà ¸ñµ¿µ¿ ¼ÒÀç 'û¾ÏÃʵîÇб³' ºÏÃø Àαٿ¡ ¼ÒÀçÇϸç ÁÖÀ§´Â ´ë±Ô¸ð ¾ÆÆÄÆ®´ÜÁö, ±Ù¸°»ýȰ½Ã¼³, ´Üµ¶ÁÖÅà µîÀÌ ¼ÒÀçÇÏ´Â Áö¿ªÀÔ´Ï´Ù.
2)±³Åë»óȲ
º»°Ç±îÁö Â÷·®ÀÇ ÃâÀÔÀÌ °¡´ÉÇϸç Àαٿ¡ ¹ö½ºÁ¤·ùÀåÀÌ ¼ÒÀçÇÏ´Â µî Àü¹ÝÀûÀÎ ±³Åë»óȲÀº º¸ÅëÀÎ ÆíÀÔ´Ï´Ù.
3)°Ç¹°ÀÇ ±¸Á¶
ö±ÙÄÜÅ©¸®Æ®Á¶ °æ»çÁöºØ 12Ãþ °Ç¹° ³» Á¦7Ãþ Á¦702È£·Î¼­,
(»ç¿ë½ÂÀÎÀÏ: 2001.11.29.)
¿Üº®: ¸ôÅ»À§ ÆäÀÎÆÃ ¸¶°¨
³»º®: »þ½Ãâȣ µî ÀÔ´Ï´Ù.

4)ÀÌ¿ë»óÅÂ
º»°ÇÀº ÇöȲ ¾ÆÆÄÆ®·Î ÀÌ¿ë ÁßÀÔ´Ï´Ù.
5)¼³ºñ³»¿ª
À§»ý ¹× ±Þ¹è¼ö¼³ºñ, ³­¹æ¼³ºñ, ½Â°­±â¼³ºñ, ÁöÇÏÁÖÂ÷Àå ¼³ºñ µîÀÌ ÀÖ½À´Ï´Ù.





6)ÅäÁöÀÇ Çü»ó ¹× ÀÌ¿ë»óÅÂ
º»°Ç ÅäÁö´Â ¸ñµ¿µ¿ 114-37 ¿Ü 4ÇÊÁö ÀÏ´ÜÀ¸·Î Çü¼ºµÈ ºÎÁ¤Çü ÆòÁö·Î ¾ÆÆÄÆ® °ÇºÎÁö·Î ÀÌ¿ë ÁßÀÔ´Ï´Ù.
7)ÀÎÁ¢ µµ·Î»óŵî
´ÜÁö³» µµ·Î¸¦ ÅëÇØ ¿Ü°û °øµµ¿Í ¿¬°èµË´Ï´Ù.
8)ÅäÁöÀÌ¿ë°èȹ ¹× Á¦ÇÑ»óÅÂ
±âÈ£(1)
Á¦3Á¾ÀϹÝÁÖ°ÅÁö¿ª, Áß·Î3·ù(Æø 12m~15m)(Á¢ÇÕ) °¡Ãà»çÀ°Á¦Çѱ¸¿ª(ÀüºÎÁ¦ÇÑ)<°¡ÃàºÐ´¢ÀÇ °ü¸® ¹× À̿뿡 °üÇÑ ¹ý·ü>, »ó´ëº¸È£±¸¿ª(û¾ÏÃʵîÇб³, ¹Ýµå½Ã ÆÄÁÖ±³À°Áö¿øÃ»¿¡ ÀçÈ®ÀÎ ¹Ù¶÷,TEL 031-940-7245)<±³À°È¯°æ º¸È£¿¡ °üÇÑ ¹ý·ü>, Àý´ëº¸È£±¸¿ª(û¾ÏÃʵîÇб³, ¹Ýµå½Ã ÆÄÁÖ±³À°Áö¿øÃ»¿¡ ÀçÈ®ÀÎ ¹Ù¶÷,TEL 031-940-7245)<±³À°È¯°æ º¸È£¿¡ °üÇÑ ¹ý·ü>, Á¦ÇѺ¸È£±¸¿ª(Àü¹æÁö¿ª:25km)((08.12.30))<±º»ç±âÁö ¹× ±º»ç½Ã¼³ º¸È£¹ý>, ¿ª»ç¹®È­È¯°æº¸Á¸Áö¿ª(ÆÄÆòÀ±¾¾Á¤Á¤°øÆÄ¹¦¿ª(300¹ÌÅÍÀ̳»))<¹®È­À¯»êÀÇ º¸Á¸ ¹× Ȱ¿ë¿¡ °üÇÑ ¹ý·ü>

±âÈ£(2)
Á¦3Á¾ÀϹÝÁÖ°ÅÁö¿ª °¡Ãà»çÀ°Á¦Çѱ¸¿ª(ÀüºÎÁ¦ÇÑ)<°¡ÃàºÐ´¢ÀÇ °ü¸® ¹× À̿뿡 °üÇÑ ¹ý·ü>, »ó´ëº¸È£±¸¿ª(û¾ÏÃʵîÇб³, ¹Ýµå½Ã ÆÄÁÖ±³À°Áö¿øÃ»¿¡ ÀçÈ®ÀÎ ¹Ù¶÷,TEL 031-940-7245)<±³À°È¯°æ º¸È£¿¡ °üÇÑ ¹ý·ü>, Á¦ÇѺ¸È£±¸¿ª(Àü¹æÁö¿ª:25km)((08.12.30))<±º»ç±âÁö ¹× ±º»ç½Ã¼³ º¸È£¹ý>, ¿ª»ç¹®È­È¯°æº¸Á¸Áö¿ª(ÆÄÆòÀ±¾¾Á¤Á¤°øÆÄ¹¦¿ª(300¹ÌÅÍÀ̳»))<¹®È­À¯»êÀÇ º¸Á¸ ¹× Ȱ¿ë¿¡ °üÇÑ ¹ý·ü>

±âÈ£(3)
Á¦3Á¾ÀϹÝÁÖ°ÅÁö¿ª °¡Ãà»çÀ°Á¦Çѱ¸¿ª(ÀüºÎÁ¦ÇÑ)<°¡ÃàºÐ´¢ÀÇ °ü¸® ¹× À̿뿡 °üÇÑ ¹ý·ü>, Àý´ëº¸È£±¸¿ª(û¾ÏÃʵîÇб³, ¹Ýµå½Ã ÆÄÁÖ±³À°Áö¿øÃ»¿¡ ÀçÈ®ÀÎ ¹Ù¶÷,TEL 031-940-7245)<±³À°È¯°æ º¸È£¿¡ °üÇÑ ¹ý·ü>, Á¦ÇѺ¸È£±¸¿ª(Àü¹æÁö¿ª:25km)((08.12.30))<±º»ç±âÁö ¹× ±º»ç½Ã¼³ º¸È£¹ý>, ¿ª»ç¹®È­È¯°æº¸Á¸Áö¿ª(ÆÄÆòÀ±¾¾Á¤Á¤°øÆÄ¹¦¿ª(300¹ÌÅÍÀ̳»))<¹®È­À¯»êÀÇ º¸Á¸ ¹× Ȱ¿ë¿¡ °üÇÑ ¹ý·ü>

±âÈ£(4)
µµ½ÃÁö¿ª(ÆÄÁÖ¿îÁ¤Áö±¸), ÀÚ¿¬³ìÁöÁö¿ª, Á¦3Á¾ÀϹÝÁÖ°ÅÁö¿ª °¡Ãà»çÀ°Á¦Çѱ¸¿ª(ÀüºÎÁ¦ÇÑ)<°¡ÃàºÐ´¢ÀÇ °ü¸® ¹× À̿뿡 °üÇÑ ¹ý·ü>, »ó´ëº¸È£±¸¿ª(û¾ÏÃʵîÇб³, ¹Ýµå½Ã ÆÄÁÖ±³À°Áö¿øÃ»¿¡ ÀçÈ®ÀÎ ¹Ù¶÷,TEL 031-940-7245)<±³À°È¯°æ º¸È£¿¡ °üÇÑ ¹ý·ü>, Á¦ÇѺ¸È£±¸¿ª(Àü¹æÁö¿ª:25km)((08.12.30))<±º»ç±âÁö ¹× ±º»ç½Ã¼³ º¸È£¹ý>, ¿ª»ç¹®È­È¯°æº¸Á¸Áö¿ª(ÆÄÆòÀ±¾¾Á¤Á¤°øÆÄ¹¦¿ª(300¹ÌÅÍÀ̳»))<¹®È­À¯»êÀÇ º¸Á¸ ¹× Ȱ¿ë¿¡ °üÇÑ ¹ý·ü>

±âÈ£(5)
Á¦3Á¾ÀϹÝÁÖ°ÅÁö¿ª °¡Ãà»çÀ°Á¦Çѱ¸¿ª(ÀüºÎÁ¦ÇÑ)<°¡ÃàºÐ´¢ÀÇ °ü¸® ¹× À̿뿡 °üÇÑ ¹ý·ü>, »ó´ëº¸È£±¸¿ª(û¾ÏÃʵîÇб³, ¹Ýµå½Ã ÆÄÁÖ±³À°Áö¿øÃ»¿¡ ÀçÈ®ÀÎ ¹Ù¶÷,TEL 031-940-7245)<±³À°È¯°æ º¸È£¿¡ °üÇÑ ¹ý·ü>, ¿ª»ç¹®È­È¯°æº¸Á¸Áö¿ª(ÆÄÆòÀ±¾¾Á¤Á¤°øÆÄ¹¦¿ª(300¹ÌÅÍÀ̳»))<¹®È­À¯»êÀÇ º¸Á¸ ¹× Ȱ¿ë¿¡ °üÇÑ ¹ý·ü>
9)°øºÎ¿ÍÀÇ Â÷ÀÌ
ÇØ´ç»çÇ× ¾ø½À´Ï´Ù.
10)±âŸÂü°í»çÇ×(ÀÓ´ë°ü·Ê ¹× ±âŸ)
¹Ì»óÀÔ´Ï´Ù.
Âü°í
»çÇ×

-ö±ÙÄÜÅ©¸®Æ®Á¶ °æ»çÁöºØ 12Ãþ ¾ÆÆÄÆ®

°ÇÃ๰ÇöȲ

¼ÒÀçÁö °æ±âµµ ÆÄÁֽà ¸ñµ¿µ¿ 114-37¹øÁö
´ëÁö¸éÀû   ¿¬¸éÀû 8769.38§³
(2657.39Æò)
°ÇÃà¸éÀû 750.399§³
(227.39Æò)
¿ëÀû·ü»êÁ¤
¿¬¸éÀû
8769.38§³
(2657.39Æò)
°ÇÆóÀ²   ¿ëÀû·ü  
Áö»óÃþ¼ö 15Ãþ ÁöÇÏÃþ¼ö  
ÁÖ¿ëµµ °øµ¿ÁÖÅà ±¸Á¶ ö±ÙÄÜÅ©¸®Æ®±¸Á¶
Âø°øÀÏÀÚ 1999.09.10 »ç¿ë½ÂÀÎÀÏÀÚ 2001.11.29
°ÇÃ๰Ãþº°ÇöȲ [º¸±â]


±¹ÅäºÎ½Ç°Å·¡°¡ °æ±âµµ ÆÄÁֽà ¸ñµ¿µ¿

¡Ü ¸Å¸Å

¸éÀû(§³), ±Ý¾×(¸¸¿ø)

¡Ü Àü¼¼

¸éÀû(§³), ±Ý¾×(¸¸¿ø)

°è¾àÀÏARTÃþÀü¿ëº¸Áõ±Ý¿ù¼¼°ÇÃà
26.03.23»ê³»¸¶À»8´ÜÁö¿ùµå¸Þ¸£µð¾Ó(114-3715117.39634,7002001
26.03.21»ê³»¸¶À»8´ÜÁö¿ùµå¸Þ¸£µð¾Ó(114-3711117.39610,000802001
26.03.18»ê³»¸¶À»8´ÜÁö¿ùµå¸Þ¸£µð¾Ó(114-37584.71523,00002001
26.03.12»ê³»¸¶À»8´ÜÁö¿ùµå¸Þ¸£µð¾Ó(114-37873.09531,0002001
26.03.11»ê³»¸¶À»8´ÜÁö¿ùµå¸Þ¸£µð¾Ó(114-37684.71533,0002001
¢Ñ ´õº¸±â

µî±âºÎµîº» ¿ä¾à(°Ç¹°)

  Á¢¼öÀÏÀÚ µî±â¸ñÀû/±Ç¸®ÀÚ ±Ç¸®±Ý¾× ±âÁØ
1 2017³â11¿ù21ÀÏ
¼ÒÀ¯±Ç
¼ÛOO
¼Ò¸ê
2 2022³â8¿ù31ÀÏ
±ÙÀú´ç±Ç
ÇÏOOOO
402,000,000 ¼Ò¸ê±âÁØ
3 2023³â12¿ù11ÀÏ
°¡¾Ð·ù
(OOOO
27,236,963 ¼Ò¸ê
4 2024³â1¿ù3ÀÏ
¾Ð·ù
±¹
¼Ò¸ê
5 2024³â8¿ù27ÀÏ
°¡¾Ð·ù
¿ìOOOO
25,040,160 ¼Ò¸ê
6 2024³â11¿ù7ÀÏ
¾Ð·ù
˼OO
¼Ò¸ê
7 2025³â7¿ù30ÀÏ
ÀÓÀǰæ¸Å
ÀÌOOOO
¼Ò¸ê

ÀÓÂ÷ÀÎÇöȲ (¹è´ç¿ä±¸Á¾±âÀÏ: 2025-10-20)

ÀÓÂ÷ÀÎ ¿ëµµ/Á¡À¯ º¸Áõ±Ý/¿ù¼¼ ´ëÇ×·Â
ÀüÀÔÀÏ/È®Á¤ÀÏ ¹è´ç¿ä±¸ ºñ°í
°­OO 702È£ 20,000,000
[¿ù]900,000
X
2023.09.21.
2023.09.08.
2025.9.12. 2023.09.07.~2025.09.07.±îÁö

¾ÆÆÄÆ® Á¤º¸

ÁÖ¼Ò
½Ã°ø»ç ´ÜÁö±Ô¸ð 6°³µ¿ ¼¼´ë
³­¹æ »ç¿ë½ÂÀÎ
°ü¸®¼Ò
Àü¿ë¸éÀû ¼¼´ë¼ö
´ëÁö±Ç
Çö°ü/±¸Á¶ ½Ä / ¹æ, ¿å½Ç
  • Çб³
  • ÁÖº¯½Ã¼³
  • ´ëÁß±³Åë

¿©ÀÇÁÖ°æ¸Å Á¶¾ð ÇÑ ¸¶µð


ÁÖÀÇ»çÇ× (ÃÖ¼±¼øÀ§ ¼³Á¤ÀÏ: 2022. 08. 31. ±ÙÀú´ç±Ç ¼³Á¤)

¸Å°¢À¸·Î ¼Ò¸êµÇÁö ¾Ê´Â µî±âºÎ±Ç¸®:
¸Å°¢À¸·Î ¼³Á¤µÈ °ÍÀ¸·Î º¸´Â Áö»ó±Ç:
¡Ø¹Ì³³°ü¸®ºñ(°ø¿ë) Àμö¿©ºÎ¸¦ ÀÔÂû Àü¿¡ È®ÀÎÇϽñ⠹ٶø´Ï´Ù

 

Áö¿ªºÐ¼®

ÁöÇÏö¸í Á÷¼±°Å¸®

Çб³¸í ÀüÈ­¹øÈ£ ÁÖ¼Ò Á÷¼±°Å¸®

¹ý¿ø

ÀÇÁ¤ºÎÁö¹æ¹ý¿ø °í¾çÁö¿ø (104-13)°æ±âµµ °í¾ç½Ã Àϻ굿±¸ Àå¹é·Î 209
´ëÇ¥ : 031)920-6114, ¾ß°£ : 031)920-6550, ÆÑ½º : 031)920-6119
°üÇÒÁö¿ª : °í¾ç½Ã, ÆÄÁÖ½Ã

µî±â¼Ò ÀÇÁ¤ºÎÁö¹æ¹ý¿ø °í¾çÁö¿ø ÆÄÁÖµî±â¼Ò (´ëÇ¥:1544-0773, ÆÑ½º:(031)945-4764, 3628, °æ±âµµ ÆÄÁֽà ±ÝÁ¤·Î 45 (±ÝÃ̵¿ 947-28))
¼¼¹«¼­ ÆÄÁÖ¼¼¹«¼­ (´ëÇ¥:031-956-02, ÆÑ½º:031-957-0315, °æ±âµµ ÆÄÁֽà ±Ý¸ª¿ª·Î 62 (±ÝÃ̵¿))

Àαٳ«ÂûÅë°è

±â°£ ¸Å°¢°Ç¼ö Æò±Õ°¨Á¤°¡
Æò±Õ¸Å°¢°¡
¸Å°¢°¡À²
Æò±ÕÀ¯Âû¼ö
3°³¿ù 21°Ç 506,571,429¿ø
383,917,314¿ø
74%
1.4ȸ
6°³¿ù 50°Ç 473,930,000¿ø
374,308,693¿ø
79%
1.2ȸ
12°³¿ù 98°Ç 480,219,388¿ø
395,743,993¿ø
82%
1.1ȸ


º» °æ¸ÅÁ¤º¸´Â ¹ý¿øÀÚ·á¿Í ÀÏÄ¡Çϵµ·Ï ÇÏ¿´À¸³ª ±Ç¸®»çÇ׺¯µ¿, ÀÔ·ÂÂø¿À µîÀÇ ¿øÀÎÀ¸·Î »ç½Ç°ú ´Ù¸¦ ¼ö ÀÖ½À´Ï´Ù. ÀÌ¿ë¾à°ü¿¡ ÀǰЏéÃ¥Á¶°ÇÀ¸·Î Á¦°øµÊÀ» ¾Ë¸®¸ç, °æ¸ÅÀÔÂû½Ã ¹Ýµå½Ã °ü·Ã °øºÎ¸¦ ÀçÈ®ÀÎÇϽñ⠹ٶø´Ï´Ù. º¸´Ù Æí¸®ÇÑ °æ¸ÅÁ¤º¸ Á¦°øÀ» À§ÇØ Áö¼ÓÀûÀ¸·Î °³¼±ÇϰڽÀ´Ï´Ù. ÀÌ¿ëÇØ Áּż­ °¨»çÇÕ´Ï´Ù.