·Î±×ÀÎ
43
´Ù¼¼´ë(ºô¶ó)
ÀÎõÁö¹æ¹ý¿ø
 °¨Á¤°¡90,000,000 ¿ø
 ÃÖÀú°¡(100%) 90,000,000 ¿ø
 º¸Áõ±Ý(10%) 9,000,000 ¿ø
 Ã»±¸¾×100,746,849 ¿ø
ÀÎõ±¤¿ª½Ã ¹ÌÃßȦ±¸ ¿ëÇöµ¿ 610-195 4Ãþ402È£
»ç°Ç¹øÈ£ 2025Ÿ°æ1292
°æ¸ÅÁ¾·ùºÎµ¿»ê°­Á¦°æ¸Å
¸Å°¢´ë»óÅäÁö ¹× °Ç¹°Àϰý ¸Å°¢
¸Å°¢±âÀÏ    2026.04.14(È­) 10:00 ÀÔÂû 7ÀÏÀü    
ÅäÁö¸éÀû18.29§³(5.53 Æò)
°Ç¹°¸éÀû35.65§³(10.78 Æò)
乫/¼ÒÀ¯ÀÚÀÓOO / ÀÓOO
ä±ÇÀÚÀåOO
ÆäÀ̽ººÏ Æ®À§ÅÍ ±¸±Û+
īī¿À½ºÅ丮
īī¿ÀÅå sms¹®ÀÚº¸³»±â
 

±âÀϳ»¿ª

°æ°ú ³¯Â¥ Àú°¨ ÃÖÀú°¡ °á°ú
Á¢¼öÀÏ 2025-06-30 °æ¸ÅÁ¢¼ö
~1ÀÏ 
2025-07-01 °æ¸Å°³½Ã°áÁ¤
~92ÀÏ 
2025-09-30 ¹è´ç¿ä±¸Á¾±âÀÏ
~288ÀÏ 
2026-04-14 100%
90,000,000
ÁøÇà
¹°°Ç¸í¼¼¼­ ÇöȲÁ¶»ç¼­ ¹®°ÇÁ¢¼ö ¼Û´Þ³»¿ª

°¨Á¤Æò°¡ÇöȲ

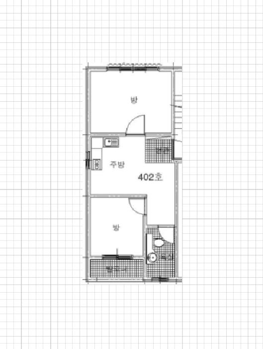
¸ñ·Ï ÁÖ¼Ò ±¸Á¶/¿ëµµ/´ëÁö±Ç ¸éÀû ºñ°í
´ëÁö±Ç
¿ëÇöµ¿ 610-195 167ºÐÀÇ 18.29 18.29 §³
(5.53Æò)
°Ç¹°
¿ëÇöµ¿ 610-195 4Ãþ402È£ ö±ÙÄÜÅ©¸®Æ®±¸Á¶ 35.65 §³
(10.78Æò)
1) À§Ä¡/ÁØÁÖ°ÅÁö¿ª/¹ö½ºÁ¤·ùÀå/ö±ÙÄÜÅ©¸®Æ®±¸Á¶/µµ½Ã°¡½º ´õº¸±â
°¨Á¤Æò°¡ ¿äÇ×Ç¥
1)À§Ä¡ ¹× ÁÖÀ§È¯°æ
º»°ÇÀº ÀÎõ±¤¿ª½Ã ¹ÌÃßȦ±¸ ¿ëÇöµ¿ ¼ÒÀç 'ÀÎõ¿ëÇöÃʵîÇб³' µ¿Ãø Àαٿ¡ À§Ä¡Çϸç, ÀαÙÀº µ¿À¯ÇüÀÇ ´Ù¼¼´ëÁÖÅÃ, ±Ù¸°»ýȰ½Ã¼³, Çб³ µîÀÌ È¥ÀçÇÏ´Â Áö¿ªÀ¸·Î ÁÖÀ§È¯°æÀº º¸Åë½ÃµÊ.
2)±³Åë»óȲ
º»°Ç±îÁö Â÷·®ÀÇ Áø¡¤ÃâÀÔÀÌ °¡´ÉÇϸç, Àαٿ¡ ¹ö½ºÁ¤·ùÀå ¹× ±Ù°Å¸®¿¡ ¼þÀÇ¿ª, ÀÎÇϴ뿪(¼öÀκд缱) µîÀÌ ¼ÒÀçÇÏ´Â µî ±³Åë»óȲÀº º¸Åë½ÃµÊ.
3)°Ç¹°ÀÇ ±¸Á¶
ö±ÙÄÜÅ©¸®Æ®±¸Á¶ (ö±Ù)ÄÜÅ©¸®Æ®ÁöºØ 5Ãþ°Ç³» Á¦4Ãþ Á¦402È£·Î¼­,
(»ç¿ë½ÂÀÎÀÏ : 2009.08.11)
¿Üº® : ½ºÅæÄÚÆ® ¸¶°¨ µî
âȣ : »þ½Ã âȣ ¸¶°¨ µîÀÓ.
4)ÀÌ¿ë»óÅÂ
º»°ÇÀº ´Ù¼¼´ëÁÖÅÃÀ¸·Î ÀÌ¿ëÁßÀÓ.
5)¼³ºñ³»¿ª
À§»ý ¹× ±Þ¡¤¹è¼ö¼³ºñ, µµ½Ã°¡½º¼³ºñ, ³­¹æ¼³ºñ µîÀÌ ±¸ºñµÇ¾î ÀÖÀ½.
6)ÅäÁöÀÇ Çü»ó ¹× ÀÌ¿ë»óÅÂ
º»°ÇÀº À广ÇüÀ¸·Î¼­, ´Ù¼¼´ëÁÖÅà ºÎÁö·Î ÀÌ¿ëÁßÀÓ.
7)ÀÎÁ¢ µµ·Î»óŵî
º»°ÇÀº µ¿ÃøÀ¸·Î ³ëÆø ¾à 4¹ÌÅÍ ³»¿ÜÀÇ Æ÷Àåµµ·Î¿Í Á¢ÇÔ.
8)ÅäÁöÀÌ¿ë°èȹ ¹× Á¦ÇÑ»óÅÂ
ÁØÁÖ°ÅÁö¿ª, °¡Ãà»çÀ°Á¦Çѱ¸¿ª(ÀÎõ±¤¿ª½Ã ¹ÌÃßȦ±¸ °¡Ãà»çÀ°Á¦ÇÑ¿¡ °üÇÑ Á¶·Ê[2018. 7. 1.])<°¡ÃàºÐ´¢ÀÇ °ü¸® ¹× À̿뿡 °üÇÑ ¹ý·ü>, »ó´ëº¸È£±¸¿ª<±³À°È¯°æ º¸È£¿¡ °üÇÑ ¹ý·ü>, »ó´ëº¸È£±¸¿ª(2024-12-26)(ÀÎõ±¤¿ª½Ã³²ºÎ±³À°Áö¿øÃ» °í½Ã Á¦2024-3È£)<±³À°È¯°æ º¸È£¿¡ °üÇÑ ¹ý·ü>, °ú¹Ð¾ïÁ¦±Ç¿ª<¼öµµ±ÇÁ¤ºñ°èȹ¹ý>
9)°øºÎ¿ÍÀÇ Â÷ÀÌ
-.
10)±âŸÂü°í»çÇ×(ÀÓ´ë°ü·Ê ¹× ±âŸ)
ÀÓ´ë°ü°è : ¹Ì»óÀÓ.
Âü°í
»çÇ×
º®¸é¿¡ "½Å¾È½¦¸£ºô"·Î ÀûÇôÀÖÀ½
- º»°ÇÀº ÀÎõ¿ëÇöÃʵîÇб³ ºÎ±Ù¿¡ À§Ä¡ÇÑ ´Ù¼¼´ë ÁÖ

°ÇÃ๰ÇöȲ

¼ÒÀçÁö ÀÎõ±¤¿ª½Ã ¹ÌÃßȦ±¸ ¿ëÇöµ¿ 610-195¹øÁö
´ëÁö¸éÀû 167§³
(50.61Æò)
¿¬¸éÀû 375.84§³
(113.89Æò)
°ÇÃà¸éÀû 99.64§³
(30.19Æò)
¿ëÀû·ü»êÁ¤
¿¬¸éÀû
375.84§³
(113.89Æò)
°ÇÆóÀ² 59.66% ¿ëÀû·ü 225.05%
Áö»óÃþ¼ö 5Ãþ ÁöÇÏÃþ¼ö  
ÁÖ¿ëµµ °øµ¿ÁÖÅà ±¸Á¶ ö±ÙÄÜÅ©¸®Æ®±¸Á¶
Âø°øÀÏÀÚ 2009.05.21 »ç¿ë½ÂÀÎÀÏÀÚ 2009.08.11
°ÇÃ๰Ãþº°ÇöȲ [º¸±â]


±¹ÅäºÎ½Ç°Å·¡°¡ ÀÎõ±¤¿ª½Ã ¹ÌÃßȦ±¸ ¿ëÇöµ¿

¡Ü ¸Å¸Å

¸éÀû(§³), ±Ý¾×(¸¸¿ø)

¡Ü Àü¼¼

¸éÀû(§³), ±Ý¾×(¸¸¿ø)

°è¾àÀϰǹ°¸íĪÃþ¿¬¸éÀûº¸Áõ±Ý¿ù¼¼°ÇÃà
26.03.30Å¿õ¿¡¹öºô366.0510,00002002
26.03.30ÀºÇýºô¶ó(8-5)137.345,2001992
26.03.29Çö´ëºô¶óÆ®Bµ¿232.283,9002007
26.03.28žçÇÏÀÌÃ÷8Â÷354.277,7002003
26.03.28DH¾¾¹Ð·¹(624-40)1444.732210,90002018
¢Ñ ´õº¸±â

µî±âºÎµîº» ¿ä¾à(°Ç¹°)

  Á¢¼öÀÏÀÚ µî±â¸ñÀû/±Ç¸®ÀÚ ±Ç¸®±Ý¾× ±âÁØ
1 2018³â12¿ù28ÀÏ
¼ÒÀ¯±Ç
ÀÓOO
¼Ò¸ê
2 2021³â6¿ù10ÀÏ
°¡¾Ð·ù
ÇÑOOOO
337,049,237 ¼Ò¸ê±âÁØ
3 2021³â8¿ù18ÀÏ
°¡¾Ð·ù
ÇÑOOOO
39,261,846 ¼Ò¸ê
4 2021³â8¿ù19ÀÏ
°¡¾Ð·ù
ÁÖOOOO
75,000,000 ¼Ò¸ê
5 2022³â1¿ù12ÀÏ
¾Ð·ù
±¹
¼Ò¸ê
6 2022³â11¿ù15ÀÏ
ÀÓÂ÷±Ç¼³Á¤
ÀåOO
95,000,000 ¼Ò¸ê
7 2025³â7¿ù2ÀÏ
°­Á¦°æ¸Å
ÀåOO
¼Ò¸ê

ÀÓÂ÷ÀÎÇöȲ (¹è´ç¿ä±¸Á¾±âÀÏ: 2025-09-30)



¸Å°¢±âÀÏ 7ÀÏÀü¿¡ ¸Å°¢¹°°Ç¸í¼¼¼­°¡ °ø°íµÇ¿À´Ï È®ÀÎÇϽñ⠹ٶø´Ï´Ù.

ÀÓÂ÷ÀÎ ¿ëµµ/Á¡À¯ º¸Áõ±Ý/¿ù¼¼ ´ëÇ×·Â
ÀüÀÔÀÏ/È®Á¤ÀÏ ¹è´ç¿ä±¸ ºñ°í
ÀåOO ÀüºÎ 95,000,000
O
2019.12.10.
2019.11.14.
2025.7.18. 2019.12.9.~ÇöÀç±îÁö
ºñ°í
(¸Å°¢¹°°Ç
¸í¼¼¼­)
ÀåÇö¼ö: ½Åûä±ÇÀÚ °â ÁÖÅÃÀÓÂ÷±Çµî±â±ÇÀڷμ­ ÁÖÅÃÀÓÂ÷±Çµî±âÀÏÀº 2022.11.15.ÀÓ ¸Å¼öÀο¡°Ô ´ëÇ×ÇÒ ¼ö ÀÖ´Â À»±¸ ¼øÀ§ 11¹ø ÀÓÂ÷±Çµî±â(ÀÓ´ëÂ÷º¸Áõ±Ý 95,000,000¿ø, ÀüÀÔÀÏÀÚ 2019.12.10.È®Á¤ÀÏÀÚ 2019.11.14.) °¡ ÀÖÀ¸¹Ç·Î ¹è´ç¿¡¼­ Àü¾× º¯Á¦µÇÁö ¾Æ´ÏÇϸé Àܾ×À» ¸Å¼öÀÎÀÌ ÀμöÇÔ

¿©ÀÇÁÖ°æ¸Å Á¶¾ð ÇÑ ¸¶µð

¼±¼øÀ§ ÀÓÂ÷±Çµî±â°¡ µÇ¾î ÀÖ½À´Ï´Ù
´ëÇ×·ÂÀÌ ÀÖ´Â ¼±¼øÀ§ ÀÓÂ÷±Çµî±â ±Ç¸®ÀÚ°¡ ¹è´çÀ» Àü¾× ¹ÞÁö ¸øÇÒ °æ¿ì ³«ÂûÀÚ°¡ ÀÜ¿© º¸Áõ±ÝÀ» ÀμöÇØ¾ßÇÏ´Â °æ¿ìµµ ÀÖ½À´Ï´Ù.

ÁÖÀÇ»çÇ× (ÃÖ¼±¼øÀ§ ¼³Á¤ÀÏ: 2021.6.10. °¡¾Ð·ù ¼³Á¤)

¸Å°¢À¸·Î ¼Ò¸êµÇÁö ¾Ê´Â µî±âºÎ±Ç¸®: À»±¸ ¼øÀ§ 11¹ø ÁÖÅÃÀÓÂ÷±Çµî±â
¸Å°¢À¸·Î ¼³Á¤µÈ °ÍÀ¸·Î º¸´Â Áö»ó±Ç:
º®¸é¿¡ "½Å¾È½¦¸£ºô"·Î ÀûÇôÀÖÀ½
¡Ø¹Ì³³°ü¸®ºñ(°ø¿ë) Àμö¿©ºÎ¸¦ ÀÔÂû Àü¿¡ È®ÀÎÇϽñ⠹ٶø´Ï´Ù

 

Áö¿ªºÐ¼®

ÁöÇÏö¸í Á÷¼±°Å¸®

Çб³¸í ÀüÈ­¹øÈ£ ÁÖ¼Ò Á÷¼±°Å¸®

¹ý¿ø

ÀÎõÁö¹æ¹ý¿ø (222-20)ÀÎõ±¤¿ª½Ã ¹ÌÃßȦ±¸ ¼Ò¼º·Î 163¹ø±æ 17(ÇÐÀ͵¿)
´ëÇ¥ : 032)860-1113~4
°üÇÒÁö¿ª : Áß±¸, µ¿±¸, ³²±¸, ¿¬¼ö±¸, ³²µ¿±¸, ºÎÆò±¸, °è¾ç±¸, ¼­±¸, ¿ËÁø±º, °­È­±º

µî±â¼Ò ÀÎõÁö¹æ¹ý¿ø º»¿ø µî±â±¹ (´ëÇ¥:1544-0773, ÆÑ½º:(032)620-9099, ÀÎõ±¤¿ª½Ã ¹ÌÃßȦ±¸ °æ¿ø´ë·Î 881(Á־ȵ¿ 983))
¼¼¹«¼­ ÀÎõ¼¼¹«¼­ (´ëÇ¥:032-770-02, ÆÑ½º:032-777-8104, ÀÎõ±¤¿ª½Ã µ¿±¸ ¿ì°¢·Î 75 (⿵µ¿))

Àαٳ«ÂûÅë°è

±â°£ ¸Å°¢°Ç¼ö Æò±Õ°¨Á¤°¡
Æò±Õ¸Å°¢°¡
¸Å°¢°¡À²
Æò±ÕÀ¯Âû¼ö
3°³¿ù 106°Ç 138,583,478¿ø
80,154,794¿ø
57%
2.5ȸ
6°³¿ù 188°Ç 138,072,068¿ø
79,224,262¿ø
56%
2.5ȸ
12°³¿ù 360°Ç 140,620,691¿ø
83,796,413¿ø
59%
2.3ȸ


º» °æ¸ÅÁ¤º¸´Â ¹ý¿øÀÚ·á¿Í ÀÏÄ¡Çϵµ·Ï ÇÏ¿´À¸³ª ±Ç¸®»çÇ׺¯µ¿, ÀÔ·ÂÂø¿À µîÀÇ ¿øÀÎÀ¸·Î »ç½Ç°ú ´Ù¸¦ ¼ö ÀÖ½À´Ï´Ù. ÀÌ¿ë¾à°ü¿¡ ÀǰЏéÃ¥Á¶°ÇÀ¸·Î Á¦°øµÊÀ» ¾Ë¸®¸ç, °æ¸ÅÀÔÂû½Ã ¹Ýµå½Ã °ü·Ã °øºÎ¸¦ ÀçÈ®ÀÎÇϽñ⠹ٶø´Ï´Ù. º¸´Ù Æí¸®ÇÑ °æ¸ÅÁ¤º¸ Á¦°øÀ» À§ÇØ Áö¼ÓÀûÀ¸·Î °³¼±ÇϰڽÀ´Ï´Ù. ÀÌ¿ëÇØ Áּż­ °¨»çÇÕ´Ï´Ù.