·Î±×ÀÎ
24
¾ÆÆÄÆ®
ºÎ»êÁö¹æ¹ý¿ø ºÎ»ê¼­ºÎÁö¿ø
 °¨Á¤°¡330,000,000 ¿ø
 ÃÖÀú°¡(100%) 330,000,000 ¿ø
 º¸Áõ±Ý(10%) 33,000,000 ¿ø
 Ã»±¸¾×110,000,000 ¿ø
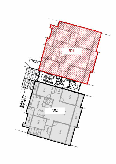
ºÎ»ê±¤¿ª½Ã »ç»ó±¸ ¾ö±Ãµ¿ 680-1 ÄÚ¿À·Õ¾ÆÆÄÆ® 101µ¿ 5Ãþ501È£
»ç°Ç¹øÈ£ 2025Ÿ°æ102015
°æ¸ÅÁ¾·ùºÎµ¿»êÀÓÀǰæ¸Å
¸Å°¢´ë»óÅäÁö ¹× °Ç¹°Àϰý ¸Å°¢
¸Å°¢±âÀÏ    2026.04.14(È­) 10:00 ÀÔÂû 12ÀÏÀü    
ÅäÁö¸éÀû66.05§³(19.98 Æò)
°Ç¹°¸éÀû134.64§³(40.73 Æò)
乫/¼ÒÀ¯ÀÚ±èOO / ±èOO
ä±ÇÀÚ°íOO
ÆäÀ̽ººÏ Æ®À§ÅÍ ±¸±Û+
īī¿À½ºÅ丮
īī¿ÀÅå sms¹®ÀÚº¸³»±â
 

±âÀϳ»¿ª

°æ°ú ³¯Â¥ Àú°¨ ÃÖÀú°¡ °á°ú
Á¢¼öÀÏ 2025-10-10 °æ¸ÅÁ¢¼ö
~5ÀÏ 
2025-10-15 °æ¸Å°³½Ã°áÁ¤
~90ÀÏ 
2026-01-08 ¹è´ç¿ä±¸Á¾±âÀÏ
~186ÀÏ 
2026-04-14 100%
330,000,000
ÁøÇà
¹°°Ç¸í¼¼¼­ ÇöȲÁ¶»ç¼­ ¹®°ÇÁ¢¼ö ¼Û´Þ³»¿ª

°¨Á¤Æò°¡ÇöȲ

¸ñ·Ï ÁÖ¼Ò ±¸Á¶/¿ëµµ/´ëÁö±Ç ¸éÀû ºñ°í
´ëÁö±Ç
¾ö±Ãµ¿ 680-1 41884.5ºÐÀÇ 66.051 66.051 §³
(19.98Æò)
°Ç¹°
¾ö±Ãµ¿ 680-1 101µ¿ 5Ãþ501È£ ö±ÙÄÜÅ©¸®Æ® º®½Ä±¸Á¶ 134.64 §³
(40.73Æò)
1) À§Ä¡/Á¦2Á¾ÀϹÝÁÖ°ÅÁö¿ª/Á¦1Á¾Áö±¸´ÜÀ§°èȹ±¸¿ª/Â÷·®Á¢±ÙÀÌ °¡´É/³ë¼±¹ö½ºÁ¤·ùÀå/ö±ÙÄÜÅ©¸®Æ® º®½Ä±¸Á¶/°æ»ç½½·¡ºêÁöºØ/µµ½Ã°¡½º/°³º°³­¹æ ´õº¸±â
°¨Á¤Æò°¡ ¿äÇ×Ç¥
1)À§Ä¡ ¹× ÁÖÀ§È¯°æ
º»°ÇÀº ºÎ»ê±¤¿ª½Ã »ç»ó±¸ ¾ö±Ãµ¿ ¼ÒÀç "¾ö±ÃÃʵîÇб³" ³²µ¿Ãø Àαٿ¡ À§Ä¡ÇÏ´Â ÄÚ¿À·Õ¾ÆÆÄÆ® 101µ¿ 5Ãþ 501È£·Î¼­, ÁÖÀ§´Â ´ë´ÜÀ§ ¾ÆÆÄÆ® ´ÜÁö, ´Ù¼¼´ëÁÖÅà ¹× °¢Á¾ ±Ù¸°»ýȰ½Ã¼³ µîÀ¸·Î Çü¼ºµÇ¾î ÀÖÀ½.
2)±³Åë»óȲ
º»°Ç±îÁö Â÷·®Á¢±ÙÀÌ °¡´ÉÇϰí, Àαٿ¡ ³ë¼±¹ö½ºÁ¤·ùÀå µîÀÌ ¼ÒÀçÇϴ¹Ù, Á¦¹Ý ±³Åë»óȲÀº º¸ÅëÀÓ.
3)°Ç¹°ÀÇ ±¸Á¶
ö±ÙÄÜÅ©¸®Æ® º®½Ä±¸Á¶ °æ»ç½½·¡ºêÁöºØ 18Ãþ °Ç¹°(101µ¿) ³» 5Ãþ 501È£·Î¼­, ¿Üº® : ¸ôÅ»À§ ÆäÀÎÆÃ ¸¶°¨ µî, âȣ : ¼¦½ÃⱸÁ¶ÀÓ ³»ºÎ¸¶°¨Àç µîÀº ÀÌÇØ°ü°èÀÎ ºÎÀç·Î Á¶»çÇÏÁö ¸øÇÏ¿´À½.
4)ÀÌ¿ë»óÅÂ
°øµ¿ÁÖÅÃ(¾ÆÆÄÆ®)À¸·Î ÀÌ¿ë ÁßÀÓ.
5)¼³ºñ³»¿ª
À§»ý¼³ºñ ¹× ±Þ¹è¼ö¼³ºñ, È­ÀçŽÁö ¹× °æº¸¼³ºñ, ¼ÒÈ­Àü¼³ºñ, ½Â°­±â¼³ºñ, µµ½Ã°¡½º¿¡ ÀÇÇÑ °³º°³­¹æ¼³ºñ µîÀÌ µÇ¾î ÀÖÀ½.
6)ÅäÁöÀÇ Çü»ó ¹× ÀÌ¿ë»óÅÂ
ºÏ¼­ÇÏÇ⠿ϰæ»çÁö´ë ³» ÀÚüÁö¹Ý ÆòźÇÏ°Ô Á¶¼ºµÈ »ç´Ù¸®Çü¿¡ À¯»çÇÑ ÅäÁö·Î¼­, °øµ¿ÁÖÅÃ(¾ÆÆÄÆ®)°ÇºÎÁö·Î ÀÌ¿ë ÁßÀÓ.
7)ÀÎÁ¢ µµ·Î»óŵî
º»°Ç ´ÜÁö ºÏ¼­ÃøÀ¸·Î Æø ¾à 15¹ÌÅÍ, ºÏµ¿ÃøÀ¸·Î Æø ¾à 5¹ÌÅÍ ³»¿ÜÀÇ Æ÷Àåµµ·Î¿Í °¢°¢ Á¢ÇÔ.
8)ÅäÁöÀÌ¿ë°èȹ ¹× Á¦ÇÑ»óÅÂ
¾ö±Ãµ¿ 680-1 :Á¦2Á¾ÀϹÝÁÖ°ÅÁö¿ª(°øµ¿ÁÖÅÃ), Á¦1Á¾Áö±¸´ÜÀ§°èȹ±¸¿ª, µµ·Î(Á¢ÇÕ), Áß·Î2·ù(Æø 15m~20m)(2023-09-06)(Á¢ÇÕ), °¡Ãà»çÀ°Á¦Çѱ¸¿ª<°¡ÃàºÐ´¢ÀÇ °ü¸® ¹× À̿뿡 °üÇÑ ¹ý·ü>, »ó´ëº¸È£±¸¿ª(2016-12-30)(Çб³È¯°æÀ§»ýÁ¤È­±¸¿ª)<±³À°È¯°æ º¸È£¿¡ °üÇÑ ¹ý·ü>, Àý´ëº¸È£±¸¿ª(2016-12-30)(Çб³È¯°æÀ§»ýÁ¤È­±¸¿ª)<±³À°È¯°æ º¸È£¿¡ °üÇÑ ¹ý·ü>, ÅÃÁö°³¹ßÁö±¸<ÅÃÁö°³¹ßÃËÁø¹ý>
9)°øºÎ¿ÍÀÇ Â÷ÀÌ
¾øÀ½.
10)±âŸÂü°í»çÇ×(ÀÓ´ë°ü·Ê ¹× ±âŸ)
1) ÀÓ´ë°ü°è: ¹Ì»óÀÓ. 2) ±âŸ»çÇ×: ¾øÀ½.

°ÇÃ๰ÇöȲ

¼ÒÀçÁö ºÎ»ê±¤¿ª½Ã »ç»ó±¸ ¾ö±Ãµ¿ 680-1¹øÁö
´ëÁö¸éÀû   ¿¬¸éÀû 7805§³
(2365.15Æò)
°ÇÃà¸éÀû 392.24§³
(118.86Æò)
¿ëÀû·ü»êÁ¤
¿¬¸éÀû
7478§³
(2266.06Æò)
°ÇÆóÀ²   ¿ëÀû·ü  
Áö»óÃþ¼ö 25Ãþ ÁöÇÏÃþ¼ö 1Ãþ
ÁÖ¿ëµµ °øµ¿ÁÖÅà ±¸Á¶ ö±ÙÄÜÅ©¸®Æ®±¸Á¶
Âø°øÀÏÀÚ 1996.07.26 »ç¿ë½ÂÀÎÀÏÀÚ 1999.06.24
°ÇÃ๰Ãþº°ÇöȲ [º¸±â]


±¹ÅäºÎ½Ç°Å·¡°¡ ºÎ»ê±¤¿ª½Ã »ç»ó±¸ ¾ö±Ãµ¿

¡Ü ¸Å¸Å

¸éÀû(§³), ±Ý¾×(¸¸¿ø)

¡Ü Àü¼¼

¸éÀû(§³), ±Ý¾×(¸¸¿ø)

°è¾àÀÏARTÃþÀü¿ëº¸Áõ±Ý¿ù¼¼°ÇÃà
26.02.24ÄÚ¿À·Õ659.92,000551999
26.02.22ÄÚ¿À·Õ2059.9415,3001999
26.02.22ÄÚ¿À·Õ2059.9415,3001999
26.02.20ÄÚ¿À·Õ1459.9414,2001999
26.02.05ÄÚ¿À·Õ484.8526,5001999
¢Ñ ´õº¸±â

µî±âºÎµîº» ¿ä¾à(°Ç¹°)

  Á¢¼öÀÏÀÚ µî±â¸ñÀû/±Ç¸®ÀÚ ±Ç¸®±Ý¾× ±âÁØ
1 2014³â10¿ù24ÀÏ
¼ÒÀ¯±Ç
±èOO
¼Ò¸ê
2 2014³â10¿ù24ÀÏ
±ÙÀú´ç±Ç
(OOOO
220,440,000 ¼Ò¸ê±âÁØ
3 2024³â3¿ù27ÀÏ
±ÙÀú´ç±Ç
°íOO
110,000,000 ¼Ò¸ê
4 2025³â10¿ù15ÀÏ
ÀÓÀǰæ¸Å
°íOO
¼Ò¸ê

ÀÓÂ÷ÀÎÇöȲ (¹è´ç¿ä±¸Á¾±âÀÏ: 2026-01-08)



¸Å°¢±âÀÏ 7ÀÏÀü¿¡ °ø°íµÇ¿À´Ï È®ÀÎÇϽñ⠹ٶø´Ï´Ù.


¾ÆÆÄÆ® Á¤º¸ ÄÚ¿À·Õ

ÁÖ¼Ò ºÎ»ê »ç»ó±¸ ¾ö±Ãµ¿ 680-1
½Ã°ø»ç ÄÚ¿À·Õ°Ç¼³ (ÁÖ) ´ÜÁö±Ô¸ð 6°³µ¿ 1158°¡±¸(13°³µ¿)¼¼´ë
³­¹æ °³º°/µµ½Ã°¡½º »ç¿ë½ÂÀÎ 1999-06
°ü¸®¼Ò 051)323-8410
Àü¿ë¸éÀû 59~134 ¼¼´ë¼ö 1158°¡±¸(13°³µ¿)
´ëÁö±Ç
Çö°ü/±¸Á¶ °è´Ü½Ä / ¹æ, ¿å½Ç
  • Çб³ µ¿±Ã,¾ö±Ã,ÇÐÁø,¾ö±Ã,
  • ÁÖº¯½Ã¼³ ¾ö±Ãµ¿»ç¹«¼Ò,¾ö±Ã¿ìü±¹, ³ó»ê¹°½ÃÀå,
  • ´ëÁß±³Åë null

¿©ÀÇÁÖ°æ¸Å Á¶¾ð ÇÑ ¸¶µð


ÁÖÀÇ»çÇ× (ÃÖ¼±¼øÀ§ ¼³Á¤ÀÏ: 2014. 10. 24. ±ÙÀú´ç±Ç ¼³Á¤)

¸Å°¢À¸·Î ¼Ò¸êµÇÁö ¾Ê´Â µî±âºÎ±Ç¸®:
¸Å°¢À¸·Î ¼³Á¤µÈ °ÍÀ¸·Î º¸´Â Áö»ó±Ç:
¡Ø¹Ì³³°ü¸®ºñ(°ø¿ë) Àμö¿©ºÎ¸¦ ÀÔÂû Àü¿¡ È®ÀÎÇϽñ⠹ٶø´Ï´Ù

 

Áö¿ªºÐ¼®

ÁöÇÏö¸í Á÷¼±°Å¸®

Çб³¸í ÀüÈ­¹øÈ£ ÁÖ¼Ò Á÷¼±°Å¸®

¹ý¿ø

ºÎ»êÁö¹æ¹ý¿ø ¼­ºÎÁö¿ø (467-26)ºÎ»ê±¤¿ª½Ã °­¼­±¸ ¸íÁö±¹Á¦7·Î 77 (¸íÁöµ¿)
´ëÇ¥ : 051)812-1114~5
°üÇÒÁö¿ª : ¼­±¸, ºÏ±¸, »ç»ó±¸, »çÇϱ¸, °­¼­±¸

µî±â¼Ò ºÎ»êÁö¹æ¹ý¿ø ¼­ºÎÁö¿ø ºÏºÎ»êµî±â¼Ò (´ëÇ¥:1544-0773, ÆÑ½º:(051)304-6230, ºÎ»ê±¤¿ª½Ã ºÏ±¸ »ç»ó·Î583¹ø±æ 14 (±¸Æ÷µ¿ 1186-26))
¼¼¹«¼­ ºÏºÎ»ê¼¼¹«¼­ (´ëÇ¥:051-310-62, ÆÑ½º:051-310-6549, ºÎ»ê±¤¿ª½Ã »ç»ó±¸ Çа¨´ë·Î 263(°¨Àüµ¿))

Àαٳ«ÂûÅë°è

±â°£ ¸Å°¢°Ç¼ö Æò±Õ°¨Á¤°¡
Æò±Õ¸Å°¢°¡
¸Å°¢°¡À²
Æò±ÕÀ¯Âû¼ö
3°³¿ù 16°Ç 187,250,000¿ø
152,657,150¿ø
80%
1.2ȸ
6°³¿ù 42°Ç 200,571,429¿ø
155,717,600¿ø
77%
1.9ȸ
12°³¿ù 89°Ç 216,483,146¿ø
163,775,356¿ø
76%
1.7ȸ


º» °æ¸ÅÁ¤º¸´Â ¹ý¿øÀÚ·á¿Í ÀÏÄ¡Çϵµ·Ï ÇÏ¿´À¸³ª ±Ç¸®»çÇ׺¯µ¿, ÀÔ·ÂÂø¿À µîÀÇ ¿øÀÎÀ¸·Î »ç½Ç°ú ´Ù¸¦ ¼ö ÀÖ½À´Ï´Ù. ÀÌ¿ë¾à°ü¿¡ ÀǰЏéÃ¥Á¶°ÇÀ¸·Î Á¦°øµÊÀ» ¾Ë¸®¸ç, °æ¸ÅÀÔÂû½Ã ¹Ýµå½Ã °ü·Ã °øºÎ¸¦ ÀçÈ®ÀÎÇϽñ⠹ٶø´Ï´Ù. º¸´Ù Æí¸®ÇÑ °æ¸ÅÁ¤º¸ Á¦°øÀ» À§ÇØ Áö¼ÓÀûÀ¸·Î °³¼±ÇϰڽÀ´Ï´Ù. ÀÌ¿ëÇØ Áּż­ °¨»çÇÕ´Ï´Ù.