·Î±×ÀÎ
231
±Ù¸°»ó°¡
´ëÀüÁö¹æ¹ý¿ø È«¼ºÁö¿ø
 °¨Á¤°¡909,000,000 ¿ø
 ÃÖÀú°¡(49%) 445,410,000 ¿ø
 º¸Áõ±Ý(10%) 44,541,000 ¿ø
 Ã»±¸¾×643,643,311 ¿ø
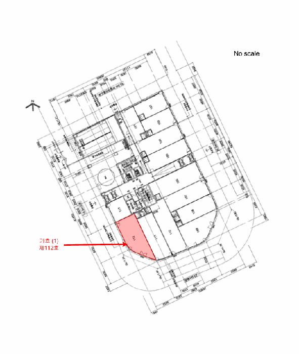
ÃæÃ»³²µµ ¿¹»ê±º »ð±³À¾ ¸ñ¸® 942 ³»Æ÷¿¡µå°¡ÇÁ¶óÀÚ3Â÷ 1Ãþ112È£
»ç°Ç¹øÈ£ 2025Ÿ°æ1085
°æ¸ÅÁ¾·ùºÎµ¿»êÀÓÀǰæ¸Å
¸Å°¢´ë»óÅäÁö ¹× °Ç¹°Àϰý ¸Å°¢
¸Å°¢±âÀÏ    2026.06.30(È­) 10:00 ÀÔÂû 33ÀÏÀü    
ÅäÁö¸éÀû16.70§³(5.05 Æò)
°Ç¹°¸éÀû66.21§³(20.03 Æò)
乫/¼ÒÀ¯ÀÚ±èOO / ±èOO
ä±ÇÀÚ»ðOOOOOOO
ÆäÀ̽ººÏ Æ®À§ÅÍ ±¸±Û+
īī¿À½ºÅ丮
īī¿ÀÅå sms¹®ÀÚº¸³»±â
 

±âÀϳ»¿ª

°æ°ú ³¯Â¥ Àú°¨ ÃÖÀú°¡ °á°ú
Á¢¼öÀÏ 2025-07-04 °æ¸ÅÁ¢¼ö
~3ÀÏ 
2025-07-07 °æ¸Å°³½Ã°áÁ¤
~82ÀÏ 
2025-09-24 ¹è´ç¿ä±¸Á¾±âÀÏ
~284ÀÏ 
2026-04-14 100%
909,000,000
À¯Âû
~326ÀÏ 
2026-05-26 70%
636,300,000
À¯Âû
~361ÀÏ 
2026-06-30 49%
445,410,000
ÁøÇà
¹°°Ç¸í¼¼¼­ ÇöȲÁ¶»ç¼­ ¹®°ÇÁ¢¼ö ¼Û´Þ³»¿ª

°¨Á¤Æò°¡ÇöȲ

¸ñ·Ï ÁÖ¼Ò ±¸Á¶/¿ëµµ/´ëÁö±Ç ¸éÀû ºñ°í
´ëÁö±Ç
¸ñ¸® 942 1448.5ºÐÀÇ 16.6977 16.6977 §³
(5.05Æò)
°Ç¹°
¸ñ¸® 942 1Ãþ112È£ ö±ÙÄÜÅ©¸®Æ®±¸Á¶ 66.21 §³
(20.03Æò)
1) À§Ä¡/µµ½ÃÁö¿ª/Á߽ɻó¾÷Áö¿ª/Áö±¸´ÜÀ§°èȹ±¸¿ª/ö±ÙÄÜÅ©¸®Æ®±¸Á¶ ´õº¸±â
°¨Á¤Æò°¡ ¿äÇ×Ç¥
1)À§Ä¡ ¹× ÁÖÀ§È¯°æ
º»°ÇÀº ÃæÃ»³²µµ ¿¹»ê±º »ð±³À¾ ¸ñ¸® ¼ÒÀç ""ÃæÃ»³²µµ °æÂûû"" ºÏµ¿Ãø Àαٿ¡ À§Ä¡Çϸç, ÁÖÀ§´Â °¢Á¾ ±Ù¸°»ýȰ½Ã¼³ ¹× ³ªÁö µîÀ¸·Î Çü¼ºµÇ¾î ÀÖ´Â ¼º¼÷ ÁßÀÎ »ó°¡Áö´ë·Î¼­, Á¦¹Ý ÁÖÀ§È¯°æÀº º¸Åë½Ã µÊ.
2)±³Åë»óȲ
º»°Ç±îÁö Â÷·® ÃâÀÔÀÌ °¡´ÉÇϰí, Àαٿ¡ ¹ö½º Á¤·ùÀåÀÌ ¼ÒÀçÇÏ´Â µî Á¦¹Ý ±³Åë»óȲÀº º¸Åë½Ã µÊ.
3)°Ç¹°ÀÇ ±¸Á¶
ö±ÙÄÜÅ©¸®Æ®±¸Á¶ (ö±Ù)ÄÜÅ©¸®Æ® ÆòÁöºØ ÁöÇÏ2Ãþ ~ Áö»ó7Ãþ °Ç ³» Á¦112È£·Î¼­, (»ç¿ë½ÂÀÎÀÏ : 2018.07.26.)

¿Üº®: È­°­¼®ÀçºÙÀÓ ¸¶°¨ µî
³»º®: ÀÎÅ׸®¾î, ¸ôÅ»À§ÆäÀÎÆÃ, ŸÀϺÙÀÓ ¸¶°¨ µî
âȣ: ¼¦½Ãâȣ µîÀÓ
4)ÀÌ¿ë»óÅÂ
º»°ÇÀº ""±Ù¸°»ýȰ½Ã¼³(COMPOSE COFFEE)""·Î ÀÌ¿ë ÁßÀÓ.
5)¼³ºñ³»¿ª
±âº»ÀûÀÎ À§»ý ±Þ¡¤¹è¼ö¼³ºñ, ¼Ò¹æ¼³ºñ, ½Â°­±â¼³ºñ µîÀÌ ±¸ºñµÇ¾î ÀÖÀ½.
6)ÅäÁöÀÇ Çü»ó ¹× ÀÌ¿ë»óÅÂ
µî°íÆòźÇÑ À广Çü ÅäÁö·Î¼­, ""±Ù¸°»ýȰ½Ã¼³ °ÇºÎÁö""·Î ÀÌ¿ë ÁßÀÓ.
7)ÀÎÁ¢ µµ·Î»óŵî
º»°Ç µ¿ÃøÀ¸·Î ¾Æ½ºÄÜÆ÷Àå ´ë·Î¿¡, ³²Ãø ¹× ¼­ÃøÀ¸·Î ¾Æ½ºÄÜÆ÷Àå Á߷ο¡ Á¢Çϸç, ºÏÃøÀ¸·Î´Â º¸ÇàÀÚ Àü¿ëµµ·Î¿¡ Á¢ÇÔ.
8)ÅäÁöÀÌ¿ë°èȹ ¹× Á¦ÇÑ»óÅÂ
µµ½ÃÁö¿ª, Á߽ɻó¾÷Áö¿ª, Áö±¸´ÜÀ§°èȹ±¸¿ª, ´ë·Î2·ù(Æø 30m~35m)(Á¢ÇÕ), ¼Ò·Î1·ù(Æø 10m~12m)(Á¢ÇÕ), Áß·Î1·ù(Æø 20m~25m)(Á¢ÇÕ), Áß·Î2·ù(Æø 15m~20m)(Á¢ÇÕ), °¡Ãà»çÀ°Á¦Çѱ¸¿ª(ÀüºÎÁ¦ÇÑÁö¿ª(µµ½ÃÁö¿ª))<°¡ÃàºÐ´¢ÀÇ °ü¸® ¹× À̿뿡 °üÇÑ ¹ý·ü>, µµ½Ã°³¹ß±¸¿ª<µµ½Ã°³¹ß¹ý>, µµÃ»ÀÌÀü½Åµµ½Ã °³¹ß¿¹Á¤Áö±¸<µµÃ»ÀÌÀüÀ» À§ÇÑ µµ½Ã°Ç¼³ ¹× Áö¿ø¿¡ °üÇÑ Æ¯º°¹ý>.
9)°øºÎ¿ÍÀÇ Â÷ÀÌ
ÇØ´ç»çÇ× ¾øÀ½.
10)±âŸÂü°í»çÇ×(ÀÓ´ë°ü·Ê ¹× ±âŸ)
ÀÓ´ë°ü°è ¹Ì»óÀ̸ç, ±âŸ º»°ÇÀº Á¶»ç½ÃÁ¡ ÇöÀç Ä¿ÇÇÀü¹®Á¡(COMPOSE COFFEE)À¸·Î ÀÌ¿ë ÁßÀÓ.

Âü°í
»çÇ×

- º» ºÎµ¿»êÀº Ä«Æä·Î »ç¿ëÁß

°ÇÃ๰ÇöȲ

¼ÒÀçÁö ÃæÃ»³²µµ ¿¹»ê±º »ð±³À¾ ¸ñ¸® 942¹øÁö
´ëÁö¸éÀû 1448.5§³
(438.94Æò)
¿¬¸éÀû 9661.21§³
(2927.64Æò)
°ÇÃà¸éÀû 1026.4§³
(311.03Æò)
¿ëÀû·ü»êÁ¤
¿¬¸éÀû
6841.1§³
(2073.06Æò)
°ÇÆóÀ² 70.86% ¿ëÀû·ü 472.29%
Áö»óÃþ¼ö 7Ãþ ÁöÇÏÃþ¼ö 2Ãþ
ÁÖ¿ëµµ Á¦2Á¾±Ù¸°»ýȰ½Ã¼³ ±¸Á¶ ö±ÙÄÜÅ©¸®Æ®±¸Á¶
Âø°øÀÏÀÚ 2017.03.06 »ç¿ë½ÂÀÎÀÏÀÚ 2018.07.26
°ÇÃ๰Ãþº°ÇöȲ [º¸±â]


µî±âºÎµîº» ¿ä¾à(°Ç¹°)

  Á¢¼öÀÏÀÚ µî±â¸ñÀû/±Ç¸®ÀÚ ±Ç¸®±Ý¾× ±âÁØ
1 2018³â10¿ù25ÀÏ
¼ÒÀ¯±Ç
±èOO
¼Ò¸ê
2 2018³â10¿ù25ÀÏ
±ÙÀú´ç±Ç
»ðOOOO
806,000,000 ¼Ò¸ê±âÁØ
3 2025³â7¿ù7ÀÏ
ÀÓÀǰæ¸Å
»ðOOOO
¼Ò¸ê

ÀÓÂ÷ÀÎÇöȲ (¹è´ç¿ä±¸Á¾±âÀÏ: 2025-09-24)

ÀÓÂ÷ÀÎ ¿ëµµ/Á¡À¯ º¸Áõ±Ý/¿ù¼¼ ´ëÇ×·Â
ÀüÀÔÀÏ/È®Á¤ÀÏ ¹è´ç¿ä±¸ ºñ°í
ȲOO 20,000,000
[¿ù]1,800,000
X
2023.01.17.
2023.01.28.~2025.01.27.

¿©ÀÇÁÖ°æ¸Å Á¶¾ð ÇÑ ¸¶µð


ÁÖÀÇ»çÇ× (ÃÖ¼±¼øÀ§ ¼³Á¤ÀÏ: 2018.10.25. ±ÙÀú´ç ¼³Á¤)

¸Å°¢À¸·Î ¼Ò¸êµÇÁö ¾Ê´Â µî±âºÎ±Ç¸®:
¸Å°¢À¸·Î ¼³Á¤µÈ °ÍÀ¸·Î º¸´Â Áö»ó±Ç:
¡Ø¹Ì³³°ü¸®ºñ(°ø¿ë) Àμö¿©ºÎ¸¦ ÀÔÂû Àü¿¡ È®ÀÎÇϽñ⠹ٶø´Ï´Ù

 

Áö¿ªºÐ¼®

ÁöÇÏö¸í Á÷¼±°Å¸®

Çб³¸í ÀüÈ­¹øÈ£ ÁÖ¼Ò Á÷¼±°Å¸®

¹ý¿ø

´ëÀüÁö¹æ¹ý¿ø È«¼ºÁö¿ø (322-26)ÃæÃ»³²µµ È«¼º±º È«¼ºÀ¾ ¹ý¿ø·Î 38 (¿ù»ê¸® 848)
´ëÇ¥ : 041)640-3100, ¾ß°£ : 041)640-3264
°üÇÒÁö¿ª : ¼­Ãµ±º, º¸·É½Ã, È«¼º±º, ¿¹»ê±º

µî±â¼Ò ´ëÀüÁö¹æ¹ý¿ø º»¿ø ¿¹»êµî±â¼Ò (´ëÇ¥:1544-0773, ÆÑ½º:(041)334-3190, 335-3190, Ãæ³² ¿¹»ê±º ¿¹»êÀ¾ º¢²É·Î 145 (»ê¼º¸® 675))
¼¼¹«¼­ ¿¹»ê¼¼¹«¼­ (´ëÇ¥:041-330-52, ÆÑ½º:041-335-2003, ÃæÃ»³²µµ ¿¹»ê±º ¿À°¡¸é À±ºÀ±æ·Î 1883)

Àαٳ«ÂûÅë°è

±â°£ ¸Å°¢°Ç¼ö Æò±Õ°¨Á¤°¡
Æò±Õ¸Å°¢°¡
¸Å°¢°¡À²
Æò±ÕÀ¯Âû¼ö
3°³¿ù 2°Ç 294,500,000¿ø
75,600,000¿ø
26%
4ȸ
6°³¿ù 5°Ç 380,400,000¿ø
104,260,000¿ø
36%
3.6ȸ
12°³¿ù 8°Ç 427,500,000¿ø
144,353,750¿ø
41%
3.1ȸ


º» °æ¸ÅÁ¤º¸´Â ¹ý¿øÀÚ·á¿Í ÀÏÄ¡Çϵµ·Ï ÇÏ¿´À¸³ª ±Ç¸®»çÇ׺¯µ¿, ÀÔ·ÂÂø¿À µîÀÇ ¿øÀÎÀ¸·Î »ç½Ç°ú ´Ù¸¦ ¼ö ÀÖ½À´Ï´Ù. ÀÌ¿ë¾à°ü¿¡ ÀǰЏéÃ¥Á¶°ÇÀ¸·Î Á¦°øµÊÀ» ¾Ë¸®¸ç, °æ¸ÅÀÔÂû½Ã ¹Ýµå½Ã °ü·Ã °øºÎ¸¦ ÀçÈ®ÀÎÇϽñ⠹ٶø´Ï´Ù. º¸´Ù Æí¸®ÇÑ °æ¸ÅÁ¤º¸ Á¦°øÀ» À§ÇØ Áö¼ÓÀûÀ¸·Î °³¼±ÇϰڽÀ´Ï´Ù. ÀÌ¿ëÇØ Áּż­ °¨»çÇÕ´Ï´Ù.