·Î±×ÀÎ
287
´Ù¼¼´ë(ºô¶ó)
¼­¿ïºÏºÎÁö¹æ¹ý¿ø
 °¨Á¤°¡238,000,000 ¿ø
 ÃÖÀú°¡(64%) 152,320,000 ¿ø
 º¸Áõ±Ý(10%) 15,232,000 ¿ø
 Ã»±¸¾×231,000,000 ¿ø
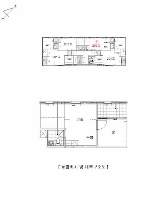
¼­¿ïƯº°½Ã µ¿´ë¹®±¸ ´ä½Ê¸®µ¿ 482-34 ¶óºê¸®ºô 2Ãþ 203È£
»ç°Ç¹øÈ£ 2025Ÿ°æ13024
°æ¸ÅÁ¾·ùºÎµ¿»ê°­Á¦°æ¸Å
¸Å°¢´ë»óÅäÁö ¹× °Ç¹°Àϰý ¸Å°¢
¸Å°¢±âÀÏ    2026.06.23(È­) 10:00 ÀÔÂû 23ÀÏÀü    
ÅäÁö¸éÀû13.24§³(4.01 Æò)
°Ç¹°¸éÀû20.39§³(6.17 Æò)
乫/¼ÒÀ¯ÀÚ¼­OO / ¼­OO
ä±ÇÀÚÁÖOOOOOOO
ÆäÀ̽ººÏ Æ®À§ÅÍ ±¸±Û+
īī¿À½ºÅ丮
īī¿ÀÅå sms¹®ÀÚº¸³»±â
 

±âÀϳ»¿ª

°æ°ú ³¯Â¥ Àú°¨ ÃÖÀú°¡ °á°ú
Á¢¼öÀÏ 2025-07-30 °æ¸ÅÁ¢¼ö
~1ÀÏ 
2025-07-31 °æ¸Å°³½Ã°áÁ¤
~89ÀÏ 
2025-10-27 ¹è´ç¿ä±¸Á¾±âÀÏ
~258ÀÏ 
2026-04-14 100%
238,000,000
À¯Âû
~293ÀÏ 
2026-05-19 80%
190,400,000
À¯Âû
~328ÀÏ 
2026-06-23 64%
152,320,000
ÁøÇà
¹°°Ç¸í¼¼¼­ ÇöȲÁ¶»ç¼­ ¹®°ÇÁ¢¼ö ¼Û´Þ³»¿ª

°¨Á¤Æò°¡ÇöȲ

¸ñ·Ï ÁÖ¼Ò ±¸Á¶/¿ëµµ/´ëÁö±Ç ¸éÀû ºñ°í
´ëÁö±Ç
´ä½Ê¸®µ¿ 482-34 365.3ºÐÀÇ 13.24 13.24 §³
(4.01Æò)
°Ç¹°
´ä½Ê¸®µ¿ 482-34 2Ãþ 203È£ ö±ÙÄÜÅ©¸®Æ®±¸Á¶ 20.39 §³
(6.17Æò)
1) À§Ä¡/µµ½ÃÁö¿ª/Á¦2Á¾ÀϹÝÁÖ°ÅÁö¿ª/ÅäÁö°Å·¡°è¾à¿¡°üÇÑÇã°¡±¸¿ª/¹ö½ºÁ¤·ùÀå/ö±ÙÄÜÅ©¸®Æ®±¸Á¶ ´õº¸±â
°¨Á¤Æò°¡ ¿äÇ×Ç¥
1)À§Ä¡ ¹× ÁÖÀ§È¯°æ
º»°ÇÀº ¼­¿ïƯº°½Ã µ¿´ë¹®±¸ ´ä½Ê¸®µ¿ ¼ÒÀç ""´ä½Ê¸®1µ¿ Áֹμ¾ÅÍ"" ³²¼­Ãø Àαٿ¡ À§Ä¡ÇÏ
¸ç, ÁÖÀ§´Â ´Ù¼¼´ëÁÖÅà ¹× ´Üµ¶ÁÖÅÃ, ¾ÆÆÄÆ®´ÜÁö, ±Ù¸°»ýȰ½Ã¼³ µîÀÌ È¥ÀçÇÏ´Â Áö¿ªÀ¸·Î¼­,
Á¦¹Ý ÁÖÀ§È¯°æÀº º¸ÅëÀÓ.
2)±³Åë»óȲ
º»°Ç±îÁö Á¦¹ÝÂ÷·®ÀÇ ÁøÃâÀÔÀº ¿ëÀÌÇϸç, Àαٿ¡ ¹ö½ºÁ¤·ùÀåÀÌ ¼ÒÀçÇÏ´Â µî Á¦¹Ý ±³Åë»óȲ
Àº ¹«³­½ÃµÊ.
3)°Ç¹°ÀÇ ±¸Á¶
ö±ÙÄÜÅ©¸®Æ®±¸Á¶ (ö±Ù)ÄÜÅ©¸®Æ®ÁöºØ ÁöÇÏ1Ãþ/Áö»ó6Ãþ °Ç¹° ³» Á¦2Ãþ Á¦203È£·Î¼­
¿Üº® : ¼®ÀçºÙÀÓ µî ¸¶°¨.
³»º® : º®Áöµµ¹è, ŸÀÏ µî ¸¶°¨.
âȣ : ¼¦½Ãâȣ µîÀÓ.
4)ÀÌ¿ë»óÅÂ
´Ù¼¼´ëÁÖÅÃÀ¸·Î ÀÌ¿ëÁßÀÓ.
5)¼³ºñ³»¿ª
±Þ¹è¼ö½Ã¼³ ¹«³­Çϸç, ±âº» À§»ý¼³ºñ, ³­¹æ¼³ºñ, ½Â°­±â¼³ºñ, ÁÖÂ÷½Ã¼³ µîÀÌ µÇ¾î ÀÖÀ½.


6)ÅäÁöÀÇ Çü»ó ¹× ÀÌ¿ë»óÅÂ
3ÇÊ ÀÏ´ÜÀÇ °¡ÀåÇü ÆòÁö·Î¼­, ´Ù¼¼´ëÁÖÅà °ÇºÎÁö µîÀ¸·Î ÀÌ¿ëÁßÀÓ.
7)ÀÎÁ¢ µµ·Î»óŵî
3ÇÊ ÀÏ´ÜÁö·Î¼­, ºÏ¼­ÃøÀ¸·Î ³ëÆø ¾à 4¹ÌÅÍ ³»¿ÜÀÇ Æ÷Àåµµ·Î¿¡ Á¢ÇÔ.
8)ÅäÁöÀÌ¿ë°èȹ ¹× Á¦ÇÑ»óÅÂ
3ÇÊÁö °øÈ÷ µµ½ÃÁö¿ª, Á¦2Á¾ÀϹÝÁÖ°ÅÁö¿ª, °¡Ãà»çÀ°Á¦Çѱ¸¿ª<°¡ÃàºÐ´¢ÀÇ °ü¸® ¹× À̿뿡 °ü
ÇÑ ¹ý·ü>, ´ë°ø¹æ¾îÇùÁ¶±¸¿ª(ÇØ¹ß134m(Áö¹Ý+°ÇÃà+¿Áž µî))<±º»ç±âÁö ¹× ±º»ç½Ã¼³ º¸È£¹ý>,
°ú¹Ð¾ïÁ¦±Ç¿ª<¼öµµ±ÇÁ¤ºñ°èȹ¹ý>, ÅäÁö°Å·¡°è¾à¿¡°üÇÑÇã°¡±¸¿ª(ÁöÁ¤±â°£:2024.09.10. ~ 20
29.09.09.)ÀÓ.
9)°øºÎ¿ÍÀÇ Â÷ÀÌ
-
10)±âŸÂü°í»çÇ×(ÀÓ´ë°ü·Ê ¹× ±âŸ)
ÀÓ´ë¹Ì»ó.
Âü°í
»çÇ×

1) ÇöÁö ¹æ¹®ÇÏ¿´À¸³ª Æó¹®ºÎÀç·Î ¾Æ¹«µµ ¸¸³ª


±¹ÅäºÎ½Ç°Å·¡°¡ ¼­¿ïƯº°½Ã µ¿´ë¹®±¸ ´ä½Ê¸®µ¿

¡Ü ¸Å¸Å

¸éÀû(§³), ±Ý¾×(¸¸¿ø)

¡Ü Àü¼¼

¸éÀû(§³), ±Ý¾×(¸¸¿ø)

°è¾àÀϰǹ°¸íĪÃþ¿¬¸éÀûº¸Áõ±Ý¿ù¼¼°ÇÃà
26.05.13¿¡½º¿£Á¦À̺ô429.8225,00002017
26.05.12±Â¸ð´×ºô279.9626,00002003
26.05.12½á¹ÔÄ«¿îƼ929.5578,688142021
26.05.11¾î¹Ý½ºÅ×ÀÌ523.725,000252023
26.05.11¾î¹Ý½ºÅ×ÀÌ523.725,000252023
¢Ñ ´õº¸±â

µî±âºÎµîº» ¿ä¾à(°Ç¹°)

  Á¢¼öÀÏÀÚ µî±â¸ñÀû/±Ç¸®ÀÚ ±Ç¸®±Ý¾× ±âÁØ
1 2020³â3¿ù3ÀÏ
¼ÒÀ¯±Ç
¼­OO
¼Ò¸ê
2 2022³â11¿ù25ÀÏ
¾àÁ¤/±ÝÁö»çÇ×/ȯ¸ÅƯ¾à
Àμö
3 2024³â2¿ù2ÀÏ
ÀÓÂ÷±Ç¼³Á¤
±èOO
231,000,000 Àμö
4 2025³â2¿ù19ÀÏ
¾Ð·ù
±¹
¼Ò¸ê±âÁØ
5 2025³â3¿ù14ÀÏ
¾Ð·ù
¼­OOOO
¼Ò¸ê
6 2025³â7¿ù31ÀÏ
°­Á¦°æ¸Å
ÁÖOOOO
¼Ò¸ê

ÀÓÂ÷ÀÎÇöȲ (¹è´ç¿ä±¸Á¾±âÀÏ: 2025-10-27)

ÀÓÂ÷ÀÎ ¿ëµµ/Á¡À¯ º¸Áõ±Ý/¿ù¼¼ ´ëÇ×·Â
ÀüÀÔÀÏ/È®Á¤ÀÏ ¹è´ç¿ä±¸ ºñ°í
±èOO Á¦2ÃþÁ¦203È£ÀüºÎ 231,000,000
O
2022.1.14.
2021.12.27.
2022.1.14.
¾çOO ÀüºÎ(¹æ2Ä­) 5,000,000
[¿ù]500,000
O
2024.08.22.
2025.10.27. 2024.06.30.ºÎÅÍ2025.12.29.±îÁö
ÁÖOOOOOOO Á¦2ÃþÁ¦203È£ÀüºÎ 231,000,000
O
2022.1.14.
2021.12.27.
2025.10.27. 2022.1.14.~2024.1.14.
ºñ°í
(¸Å°¢¹°°Ç
¸í¼¼¼­)
±è´Ù¿¹:ÁÖÅÃÀÓÂ÷±Ç µî±âÀÏÀº 2024.2.2.ÀÓ ¾çµ¿¿±:ÀÓ´ëÂ÷°è¾à¼­»ó Â÷ÀÓÀº 250,000¿øÀÓ ÁÖÅõµ½Ãº¸Áõ°ø»ç:ÀÓÂ÷ÀÎ ±è´Ù¿¹ÀÇ ÀÓ´ëÂ÷º¸Áõ±Ý¹Ýȯä±ÇÀÇ ¾ç¼öÀÎÀ¸·Î ÀÌ »ç°Ç °æ¸Å½Åû ä±ÇÀÚÀÓ.

¿©ÀÇÁÖ°æ¸Å Á¶¾ð ÇÑ ¸¶µð


ÁÖÀÇ»çÇ× (ÃÖ¼±¼øÀ§ ¼³Á¤ÀÏ: 2025.2.19. ¾Ð·ù ¼³Á¤)

¸Å°¢À¸·Î ¼Ò¸êµÇÁö ¾Ê´Â µî±âºÎ±Ç¸®: ÇØ´ç»çÇ×¾øÀ½
¸Å°¢À¸·Î ¼³Á¤µÈ °ÍÀ¸·Î º¸´Â Áö»ó±Ç: ÇØ´ç»çÇ×¾øÀ½
1. ÁÖÅõµ½Ãº¸Áõ°ø»ç(2026. 2. 13. È®¾à¼­ Á¦Ãâ)-¸Å¼öÀο¡ ÀÓÂ÷ÀÎ(±è´Ù¿¹)¿¡ ´ëÇÑ ÀÜÁ¸ ÀÓ´ëÂ÷º¸Áõ±Ý ¹Ýȯû±¸ Æ÷±â ¹× ÀÓÂ÷±Ç µî±â ¸»¼Ò µ¿ÀÇ 2. ´ëÇ×·Â ÀÖ´Â ÀÓÂ÷ÀÎ ÀÖÀ½
¡Ø¹Ì³³°ü¸®ºñ(°ø¿ë) Àμö¿©ºÎ¸¦ ÀÔÂû Àü¿¡ È®ÀÎÇϽñ⠹ٶø´Ï´Ù

 

Áö¿ªºÐ¼®

ÁöÇÏö¸í Á÷¼±°Å¸®

Çб³¸í ÀüÈ­¹øÈ£ ÁÖ¼Ò Á÷¼±°Å¸®

¹ý¿ø

¼­¿ïºÏºÎÁö¹æ¹ý¿ø (013-22)¼­¿ïƯº°½Ã µµºÀ±¸ ¸¶µé·Î749 (µµºÀ2µ¿ 626)
´ëÇ¥ : 02)910-3114
°üÇÒÁö¿ª : °­ºÏ±¸, ³ë¿ø±¸, µµºÀ±¸, µ¿´ë¹®±¸, ¼ººÏ±¸, Áß¶û±¸

µî±â¼Ò ¼­¿ïºÏºÎÁö¹æ¹ý¿ø º»¿ø µî±â±¹ (´ëÇ¥:1544-0773, ÆÑ½º:(02)2030-2330, ¼­¿ïƯº°½Ã µµºÀ±¸ ³ëÇØ·Î 325 (⵿ 337¹øÁö))
¼¼¹«¼­ µ¿´ë¹®¼¼¹«¼­ (´ëÇ¥:02-958-020, ÆÑ½º:02-967-7593, ¼­¿ïƯº°½Ã µ¿´ë¹®±¸ ¾à·É½Ã·Î 159 (û·®¸®1µ¿))

Àαٳ«ÂûÅë°è

±â°£ ¸Å°¢°Ç¼ö Æò±Õ°¨Á¤°¡
Æò±Õ¸Å°¢°¡
¸Å°¢°¡À²
Æò±ÕÀ¯Âû¼ö
3°³¿ù 14°Ç 427,990,396¿ø
377,443,429¿ø
81%
4.1ȸ
6°³¿ù 21°Ç 389,388,836¿ø
336,651,286¿ø
79%
4.2ȸ
12°³¿ù 31°Ç 341,832,760¿ø
290,263,932¿ø
79%
4.1ȸ


º» °æ¸ÅÁ¤º¸´Â ¹ý¿øÀÚ·á¿Í ÀÏÄ¡Çϵµ·Ï ÇÏ¿´À¸³ª ±Ç¸®»çÇ׺¯µ¿, ÀÔ·ÂÂø¿À µîÀÇ ¿øÀÎÀ¸·Î »ç½Ç°ú ´Ù¸¦ ¼ö ÀÖ½À´Ï´Ù. ÀÌ¿ë¾à°ü¿¡ ÀǰЏéÃ¥Á¶°ÇÀ¸·Î Á¦°øµÊÀ» ¾Ë¸®¸ç, °æ¸ÅÀÔÂû½Ã ¹Ýµå½Ã °ü·Ã °øºÎ¸¦ ÀçÈ®ÀÎÇϽñ⠹ٶø´Ï´Ù. º¸´Ù Æí¸®ÇÑ °æ¸ÅÁ¤º¸ Á¦°øÀ» À§ÇØ Áö¼ÓÀûÀ¸·Î °³¼±ÇϰڽÀ´Ï´Ù. ÀÌ¿ëÇØ Áּż­ °¨»çÇÕ´Ï´Ù.