·Î±×ÀÎ
237
¾ÆÆÄÆ®
¼ö¿øÁö¹æ¹ý¿ø ÆòÅÃÁö¿ø
 °¨Á¤°¡126,000,000 ¿ø
 ÃÖÀú°¡(70%) 88,200,000 ¿ø
 º¸Áõ±Ý(10%) 8,820,000 ¿ø
 Ã»±¸¾×65,312,603 ¿ø
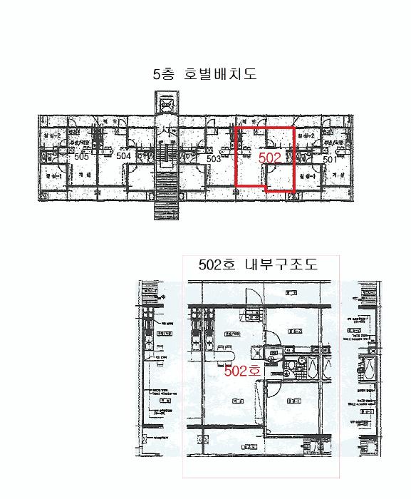
°æ±âµµ ÆòÅýà ¾ÈÁß¸é ±Ý°î¸® 337-3 ¾ÈÁ߿츲¾ÆÆÄÆ® 103µ¿ 5Ãþ502È£
»ç°Ç¹øÈ£ 2025Ÿ°æ41903
°æ¸ÅÁ¾·ùºÎµ¿»êÀÓÀǰæ¸Å
¸Å°¢´ë»óÅäÁö ¹× °Ç¹°Àϰý ¸Å°¢
¸Å°¢±âÀÏ    2026.06.08(¿ù) 10:00 ÀÔÂû 11ÀÏÀü    
ÅäÁö¸éÀû36.37§³(11.00 Æò)
°Ç¹°¸éÀû49.97§³(15.12 Æò)
乫/¼ÒÀ¯ÀÚÀÌOO / ÀÌOO
ä±ÇÀÚÁÖOOO OOOOOOOO
ÆäÀ̽ººÏ Æ®À§ÅÍ ±¸±Û+
īī¿À½ºÅ丮
īī¿ÀÅå sms¹®ÀÚº¸³»±â
 

±âÀϳ»¿ª

°æ°ú ³¯Â¥ Àú°¨ ÃÖÀú°¡ °á°ú
Á¢¼öÀÏ 2025-05-12 °æ¸ÅÁ¢¼ö
~1ÀÏ 
2025-05-13 °æ¸Å°³½Ã°áÁ¤
~91ÀÏ 
2025-08-11 ¹è´ç¿ä±¸Á¾±âÀÏ
~336ÀÏ 
2026-04-13 100%
126,000,000
À¯Âû
~392ÀÏ 
2026-06-08 70%
88,200,000
ÁøÇà
¹°°Ç¸í¼¼¼­ ÇöȲÁ¶»ç¼­ ¹®°ÇÁ¢¼ö ¼Û´Þ³»¿ª

°¨Á¤Æò°¡ÇöȲ

¸ñ·Ï ÁÖ¼Ò ±¸Á¶/¿ëµµ/´ëÁö±Ç ¸éÀû ºñ°í
´ëÁö±Ç
±Ý°î¸® 337-3 33633ºÐÀÇ 36.373 36.373 §³
(11.00Æò)
°Ç¹°
±Ý°î¸® 337-3 103µ¿ 5Ãþ502È£ ö±ÙÄÜÅ©¸®Æ®Á¶ 49.973 §³
(15.12Æò)
1) À§Ä¡/°èȹ°ü¸®Áö¿ª/Á¦3Á¾ÀϹÝÁÖ°ÅÁö¿ª/Áö±¸´ÜÀ§°èȹ±¸¿ª/Â÷·®ÃâÀÔ °¡´É/³ë¼±¹ö½º Á¤·ùÀå/ö±ÙÄÜÅ©¸®Æ®Á¶/½º¶óºêÁöºØ/µµ½Ã°¡½º/°³º°³­¹æ ´õº¸±â
°¨Á¤Æò°¡ ¿äÇ×Ç¥
1)À§Ä¡ ¹× ÁÖÀ§È¯°æ
º»°ÇÀº °æ±âµµ ÆòÅýà ¾ÈÁßÀ¾ ±Ý°î¸® ¼ÒÀç ""±Ý°î1µ¿¸¶À»È¸°ü"" ³²¼­Ãø Àαٿ¡ À§Ä¡Çϸç ÁÖÀ§´Â ³ó°æÁö, ÀÓ¾ß, ±Ù¸°»ýȰ½Ã¼³ µîÀÌ È¥ÀçÇÏ´Â °èȹ°ü¸®Áö¿ªÀÓ.
2)±³Åë»óȲ
º»°Ç±îÁö Â÷·®ÃâÀÔ °¡´ÉÇÏ¸ç ºÏÃø ¼­µ¿´ë·Î º¯¿¡ ³ë¼±¹ö½º Á¤·ùÀåÀÌ À§Ä¡ÇÏ¿© ´ëÁß±³Åë¿©°ÇÀº º¸ÅëÀÓ.
3)°Ç¹°ÀÇ ±¸Á¶
ö±ÙÄÜÅ©¸®Æ®Á¶ ½º¶óºêÁöºØ 18Ãþ ¾ÆÆÄÆ® Áß 5Ãþ 502È£·Î¼­

¿Üº® : ³ëÃâÄÜÅ©¸®Æ® À§ ÆäÀÎÆÃ ¸¶°¨
³»º® : ½Ã¸àÆ®¸ôÅ»À§ º®Áö ¹× ÀϺΠŸÀÏ ¸¶°¨
âȣ : ¾Ë¹Ì´½¼¦½Ã âȣÀÓ


4)ÀÌ¿ë»óÅÂ
°øµ¿ÁÖÅÃ(¾ÆÆÄÆ®) °Ç¹° ¿ëÁö·Î ÀÌ¿ë ÁßÀÓ.
5)¼³ºñ³»¿ª
±Þ¹è¼ö¼³ºñ, ¼ÒÈ­¼³ºñ, ½Â°­±â¼³ºñ, µµ½Ã°¡½º¼³ºñ, °³º°³­¹æ¼³ºñ µîÀÌ ±¸ºñµÊ.

6)ÅäÁöÀÇ Çü»ó ¹× ÀÌ¿ë»óÅÂ
ºÎÁ¤Çü ÆòźÁö·Î¼­ °øµ¿ÁÖÅà ¿ë °Ç¹° ºÎÁö·Î ÀÌ¿ëÁßÀÓ.
7)ÀÎÁ¢ µµ·Î»óŵî
ºÎÁö ¼­ÃøÀ¸·Î ºñÀü4·Î¿¡ Á¢ÇÏ¸ç µµ·Î»óÅ ¹«³­ÇÔ.
8)ÅäÁöÀÌ¿ë°èȹ ¹× Á¦ÇÑ»óÅÂ
Á¦3Á¾ÀϹÝÁÖ°ÅÁö¿ª, Áö±¸´ÜÀ§°èȹ±¸¿ª(ÁøÀ§2»ê´Ü), ¼Ò·Î3·ù(Æø 8M ¹Ì¸¸)(Á¢ÇÔ), Áß·Î2·ù(Æø 15~20m)(Á¢ÇÔ), °¡Ãà»çÀ°Á¦Çѱ¸¿ª, »ó´ëº¸È£±¸¿ª, Àý´ëº¸È£±¸¿ª, ÅÃÁö°³¹ßÁö±¸ÀÓ.
9)°øºÎ¿ÍÀÇ Â÷ÀÌ
´ë»ó ÅäÁö µ¿¼Ò 337-3, 33,633§³´Â 2023.3.30.ºÐÇÒµÇ¾î º»¹ø¿¡ -11(31§³)À» ºÎÇÏ¿© 33,602§³·Î µÇ¾úÀ½.
10)±âŸÂü°í»çÇ×(ÀÓ´ë°ü·Ê ¹× ±âŸ)
¹°°ÇÁ¶»ç½Ã ÀÌÇØ°ü°èÀÎ ºÎÀç·Î ÀÓ´ë»çÇ×Àº ¹Ì»óÀÌ¸ç ³»ºÎ±¸Á¶µµ´Â ÁýÇÕ°ÇÃ๰´ëÀå»ó °ÇÃ๰ÇöȲµµ¿¡ Àǰеµ½ÃÇÑ °ÍÀÓÀ» Âü°íÇϽñ⠹ٶø´Ï´Ù.
Âü°í
»çÇ×

* º»°Ç ¸ñÀû¹°Àº ¾ÈÁßÀ¾¿¡ ¼ÒÀçÇÏ´Â ¾ÈÁ߿츲¾ÆÆÄÆ® 5Ãþ¿¡ ¼ÓÇÏ´Â ÀüÀ¯ºÎºÐÀÓ. * º¹µµ½ÄÀÓ.

°ÇÃ๰ÇöȲ

¼ÒÀçÁö °æ±âµµ ÆòÅýà ¾ÈÁßÀ¾ ±Ý°î¸® 337-3¹øÁö
´ëÁö¸éÀû   ¿¬¸éÀû 9021.424§³
(2733.76Æò)
°ÇÃà¸éÀû 478.49§³
(145Æò)
¿ëÀû·ü»êÁ¤
¿¬¸éÀû
8612.856§³
(2609.96Æò)
°ÇÆóÀ²   ¿ëÀû·ü  
Áö»óÃþ¼ö 18Ãþ ÁöÇÏÃþ¼ö 1Ãþ
ÁÖ¿ëµµ °øµ¿ÁÖÅà ±¸Á¶ ö±ÙÄÜÅ©¸®Æ®±¸Á¶
Âø°øÀÏÀÚ 1996.12.11 »ç¿ë½ÂÀÎÀÏÀÚ 1999.08.13
°ÇÃ๰Ãþº°ÇöȲ [º¸±â]


µî±âºÎµîº» ¿ä¾à(°Ç¹°)

  Á¢¼öÀÏÀÚ µî±â¸ñÀû/±Ç¸®ÀÚ ±Ç¸®±Ý¾× ±âÁØ
1 2022³â9¿ù2ÀÏ
¼ÒÀ¯±Ç
ÀÌOO
¼Ò¸ê
2 2024³â5¿ù31ÀÏ
±ÙÀú´ç±Ç
(OOOO
91,500,000 ¼Ò¸ê±âÁØ
3 2024³â5¿ù31ÀÏ
Àü¼¼±Ç
¾¾OOOO
5,000,000 ¼Ò¸ê
4 2025³â5¿ù13ÀÏ
ÀÓÀǰæ¸Å
(OOOO
¼Ò¸ê

ÀÓÂ÷ÀÎÇöȲ (¹è´ç¿ä±¸Á¾±âÀÏ: 2025-08-11)


Á¶»çµÈ ÀÓÂ÷³»¿ªÀÌ ¾ø½À´Ï´Ù


¿©ÀÇÁÖ°æ¸Å Á¶¾ð ÇÑ ¸¶µð


ÁÖÀÇ»çÇ× (ÃÖ¼±¼øÀ§ ¼³Á¤ÀÏ: 2024. 5. 31. ±ÙÀú´ç±Ç ¼³Á¤)

¸Å°¢À¸·Î ¼Ò¸êµÇÁö ¾Ê´Â µî±âºÎ±Ç¸®:
¸Å°¢À¸·Î ¼³Á¤µÈ °ÍÀ¸·Î º¸´Â Áö»ó±Ç:
2026.04.03 乫ÀÚ°â¼ÒÀ¯ÀÚ ÀÌOO ±âÀÏ¿¬±â½Åû Á¦Ãâ
¡Ø¹Ì³³°ü¸®ºñ(°ø¿ë) Àμö¿©ºÎ¸¦ ÀÔÂû Àü¿¡ È®ÀÎÇϽñ⠹ٶø´Ï´Ù

 

Áö¿ªºÐ¼®

ÁöÇÏö¸í Á÷¼±°Å¸®

Çб³¸í ÀüÈ­¹øÈ£ ÁÖ¼Ò Á÷¼±°Å¸®

¹ý¿ø

¼ö¿øÁö¹æ¹ý¿ø ÆòÅÃÁö¿ø (178-48)°æ±âµµ ÆòÅýà Æò³²·Î 1036 (µ¿»èµ¿)
´ëÇ¥ : 031)650-3114, ¾ß°£ : 031)650-3150
°üÇÒÁö¿ª : ÆòÅýÃ, ¾È¼º½Ã

µî±â¼Ò ¼ö¿øÁö¹æ¹ý¿ø º»¿ø ¼Ûźµî±â¼Ò (´ëÇ¥:1544-0773, ÆÑ½º:(031)665-3769, °æ±âµµ ÆòÅýà °æ±â´ë·Î 1351 (¼­Á¤µ¿ 813-3))
¼¼¹«¼­ ÆòÅü¼¹«¼­ (´ëÇ¥:031-650-02, ÆÑ½º:031-658-1116, °æ±âµµ ÆòÅýà Á×¹é6·Î6 (Á׹鵿 796))

Àαٳ«ÂûÅë°è

±â°£ ¸Å°¢°Ç¼ö Æò±Õ°¨Á¤°¡
Æò±Õ¸Å°¢°¡
¸Å°¢°¡À²
Æò±ÕÀ¯Âû¼ö
3°³¿ù 56°Ç 322,167,857¿ø
248,375,680¿ø
74%
1.4ȸ
6°³¿ù 119°Ç 315,566,387¿ø
240,777,116¿ø
74%
1.4ȸ
12°³¿ù 213°Ç 321,791,549¿ø
238,261,560¿ø
74%
1.5ȸ


º» °æ¸ÅÁ¤º¸´Â ¹ý¿øÀÚ·á¿Í ÀÏÄ¡Çϵµ·Ï ÇÏ¿´À¸³ª ±Ç¸®»çÇ׺¯µ¿, ÀÔ·ÂÂø¿À µîÀÇ ¿øÀÎÀ¸·Î »ç½Ç°ú ´Ù¸¦ ¼ö ÀÖ½À´Ï´Ù. ÀÌ¿ë¾à°ü¿¡ ÀǰЏéÃ¥Á¶°ÇÀ¸·Î Á¦°øµÊÀ» ¾Ë¸®¸ç, °æ¸ÅÀÔÂû½Ã ¹Ýµå½Ã °ü·Ã °øºÎ¸¦ ÀçÈ®ÀÎÇϽñ⠹ٶø´Ï´Ù. º¸´Ù Æí¸®ÇÑ °æ¸ÅÁ¤º¸ Á¦°øÀ» À§ÇØ Áö¼ÓÀûÀ¸·Î °³¼±ÇϰڽÀ´Ï´Ù. ÀÌ¿ëÇØ Áּż­ °¨»çÇÕ´Ï´Ù.