·Î±×ÀÎ
79
±Ù¸°»ó°¡
¼ö¿øÁö¹æ¹ý¿ø
 °¨Á¤°¡861,000,000 ¿ø
 ÃÖÀú°¡(100%) 861,000,000 ¿ø
 º¸Áõ±Ý(10%) 86,100,000 ¿ø
 Ã»±¸¾×443,764,346 ¿ø
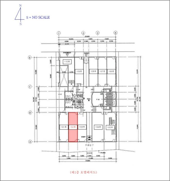
°æ±âµµ ¿À»ê½Ã ¼ö¸ñ¿ø·Î 610, 1Ãþ102È£ (±Èµ¿,¼¼¸¶Å¸¿ö)
°æ±âµµ ¿À»ê½Ã ¼¼±³µ¿ 600-3
»ç°Ç¹øÈ£ 2024Ÿ°æ96887
°æ¸ÅÁ¾·ùºÎµ¿»êÀÓÀǰæ¸Å
¸Å°¢´ë»óÅäÁö ¹× °Ç¹°Àϰý ¸Å°¢
¸Å°¢±âÀÏ    2026.04.10(±Ý) 10:00 (¿À´Ã ÀÔÂû)    
ÅäÁö¸éÀû10.94§³(3.31 Æò)
°Ç¹°¸éÀû45.60§³(13.79 Æò)
乫/¼ÒÀ¯ÀÚ±èOO / ±èOO
ä±ÇÀÚµ¿OOOOOOOO
ÆäÀ̽ººÏ Æ®À§ÅÍ ±¸±Û+
īī¿À½ºÅ丮
īī¿ÀÅå sms¹®ÀÚº¸³»±â
 

±âÀϳ»¿ª

°æ°ú ³¯Â¥ Àú°¨ ÃÖÀú°¡ °á°ú
Á¢¼öÀÏ 2024-11-07 °æ¸ÅÁ¢¼ö
~1ÀÏ 
2024-11-08 °æ¸Å°³½Ã°áÁ¤
~491ÀÏ 
2026-03-13 ¹è´ç¿ä±¸Á¾±âÀÏ
~519ÀÏ 
2026-04-10 100%
861,000,000
ÁøÇà
¹°°Ç¸í¼¼¼­ ÇöȲÁ¶»ç¼­ ¹®°ÇÁ¢¼ö ¼Û´Þ³»¿ª

°¨Á¤Æò°¡ÇöȲ

¸ñ·Ï ÁÖ¼Ò ±¸Á¶/¿ëµµ/´ëÁö±Ç ¸éÀû ºñ°í
´ëÁö±Ç
¼¼±³µ¿ 600-3 1057.3ºÐÀÇ 10.94 10.94 §³
(3.31Æò)
°Ç¹°
¼¼±³µ¿ 600-3 1Ãþ102È£ ö±ÙÄÜÅ©¸®Æ®±¸Á¶ 45.6 §³
(13.79Æò)
1) À§Ä¡/µµ½ÃÁö¿ª/ÀϹݻó¾÷Áö¿ª/Áö±¸´ÜÀ§°èȹ±¸¿ª/¹ö½ºÁ¤·ùÀå/Â÷·®Á¢±ÙÀÌ °¡´É/ÁöÇÏö/°£¼±µµ·Î/ö±ÙÄÜÅ©¸®Æ®Á¶ ´õº¸±â
°¨Á¤Æò°¡ ¿äÇ×Ç¥
1)À§Ä¡ ¹× ÁÖÀ§È¯°æ
º»°ÇÀº °æ±âµµ ¿À»ê½Ã ¼¼±³µ¿ ¼ÒÀç ÁöÇÏö 1È£¼±"¼¼¸¶¿ª" ³²¼­Ãø Àαٿ¡ À§Ä¡ÇÏ¸ç ºÎ±ÙÀº ±Ù¸°»ýȰ½Ã¼³, ¿ÀÇǽº µîÀÌ ¼ÒÀçÇÏ´Â »ó¾÷Áö´ë·Î¼­ Á¦¹Ý ÁÖÀ§È¯°æÀº º¸Åë½Ã µÊ.
2)±³Åë»óȲ
º»°Ç±îÁö Â÷·®Á¢±ÙÀÌ °¡´ÉÇϸç Àαٿ¡ ¹ö½ºÁ¤·ùÀå ¹× ÁöÇÏö 1È£¼± "¼¼¸¶¿ª"ÀÌ ¼ÒÀçÇϰí ÀÖ¾î Á¦¹Ý ´ëÁß±³Åë»óȲÀº º¸Åë½Ã µÊ.
3)°Ç¹°ÀÇ ±¸Á¶
ö±ÙÄÜÅ©¸®Æ®Á¶ (ö±Ù)ÄÜÅ©¸®Æ®ÁöºØ 10Ãþ °Ç Áß 1Ãþ 102È£·Î¼­
(»ç¿ë½ÂÀÎÀÏ: 2011.10.28)

¿Üº®: ¼®ÀçºÙÀÓ ¸¶°¨ µî.
³»º®: °³º°ÀÎÅ׸®¾î ¸¶°¨.
âȣ: ¼¦½Ã âȣÀÓ.
4)ÀÌ¿ë»óÅÂ
Á¦2Á¾±Ù¸°»ýȰ½Ã¼³(ÆíÀÇÁ¡)À¸·Î ÀÌ¿ëÁßÀÓ.
5)¼³ºñ³»¿ª
±Þ¡¤¹è¼ö¼³ºñ, À§»ý¼³ºñ, ½Â°­±â¼³ºñ, ¼ÒÈ­Àü¼³ºñ µîÀÌ ±¸ºñµÇ¾î ÀÖÀ½.


6)ÅäÁöÀÇ Çü»ó ¹× ÀÌ¿ë»óÅÂ
ÀÎÁ¢Áö¿Í µî°íÆòźÇÑ ¼¼ÀåÇüÀÇ ÅäÁö·Î¼­ »ó¾÷¿ë°ÇºÎÁö·Î ÀÌ¿ëÁßÀÓ.
7)ÀÎÁ¢ µµ·Î»óŵî
º»°Ç ³²¼­ÃøÀ¸·Î ³ëÆø ¾à 35¹ÌÅÍ ³»¿Ü, ºÏµ¿ÃøÀ¸·Î ³ëÆø ¾à 15¹ÌÅÍ ³»¿ÜÀÇ Æ÷Àåµµ·Î¿¡ Á¢ÇÔ.
8)ÅäÁöÀÌ¿ë°èȹ ¹× Á¦ÇÑ»óÅÂ
µµ½ÃÁö¿ª, ÀϹݻó¾÷Áö¿ª, Áö±¸´ÜÀ§°èȹ±¸¿ª(¼¼±³Áö±¸), ´ë·Î1·ù(Æø 35m-40m)(ÁÖ°£¼±µµ·Î)
(Á¢ÇÕ), Áß·Î2·ù(Æø 15m-20m)(Áý»êµµ·Î)(Á¢ÇÕ), °¡Ãà»çÀ°Á¦Çѱ¸¿ª(ÀüºÎÁ¦ÇÑ)
<°¡ÃàºÐ´¢ÀÇ °ü¸® ¹× À̿뿡 °üÇÑ ¹ý·ü>, ºñÇà¾ÈÀüÁ¦2±¸¿ª(Àü¼ú)<±º»ç±âÁö ¹× ±º»ç½Ã¼³ º¸È£¹ý>, ¼ºÀå°ü¸®±Ç¿ª<¼öµµ±ÇÁ¤ºñ°èȹ¹ý>, ÁßÁ¡°æ°ü°ü¸®±¸¿ªÀÓ.
9)°øºÎ¿ÍÀÇ Â÷ÀÌ
¾ø À½.
10)±âŸÂü°í»çÇ×(ÀÓ´ë°ü·Ê ¹× ±âŸ)
ÀÓ´ë°ü°è´Â ¹Ì»óÀÓ.
Âü°í
»çÇ×

º»°Ç ºÎµ¿»êÀÇ ÇöȲÀº ¿Ü°ü»ó °øºÎÀÇ ³»¿ë°ú ÀÏÄ¡ÇÏ´Â °ÍÀ¸·Î º¸ÀÓ.

°ÇÃ๰ÇöȲ

¼ÒÀçÁö °æ±âµµ ¿À»ê½Ã ¼¼±³µ¿ 600-3¹øÁö
´ëÁö¸éÀû 1062§³
(321.82Æò)
¿¬¸éÀû 8788.21§³
(2663.09Æò)
°ÇÃà¸éÀû 762.62§³
(231.1Æò)
¿ëÀû·ü»êÁ¤
¿¬¸éÀû
6192.15§³
(1876.41Æò)
°ÇÆóÀ² 71.81% ¿ëÀû·ü 583.07%
Áö»óÃþ¼ö 10Ãþ ÁöÇÏÃþ¼ö 3Ãþ
ÁÖ¿ëµµ ¾÷¹«½Ã¼³ ±¸Á¶ ö±ÙÄÜÅ©¸®Æ®±¸Á¶
Âø°øÀÏÀÚ 2010.01.04 »ç¿ë½ÂÀÎÀÏÀÚ 2011.10.28
°ÇÃ๰Ãþº°ÇöȲ [º¸±â]


µî±âºÎµîº» ¿ä¾à(°Ç¹°)

  Á¢¼öÀÏÀÚ µî±â¸ñÀû/±Ç¸®ÀÚ ±Ç¸®±Ý¾× ±âÁØ
1 2015³â5¿ù6ÀÏ
¼ÒÀ¯±Ç
±èOO
¼Ò¸ê
2 2015³â5¿ù6ÀÏ
±ÙÀú´ç±Ç
ÄÉOOOO
533,000,000 ¼Ò¸ê±âÁØ
3 2024³â11¿ù11ÀÏ
ÀÓÀǰæ¸Å
µ¿OOOO
¼Ò¸ê

ÀÓÂ÷ÀÎÇöȲ (¹è´ç¿ä±¸Á¾±âÀÏ: 2026-03-13)

ÀÓÂ÷ÀÎ ¿ëµµ/Á¡À¯ º¸Áõ±Ý/¿ù¼¼ ´ëÇ×·Â
ÀüÀÔÀÏ/È®Á¤ÀÏ ¹è´ç¿ä±¸ ºñ°í
¼­OO 102È£ 20,000,000
[¿ù](1Â÷)1,300,000¿ø(2Â÷)1,200,000¿ø
X
2016.10.17.
2026.02.23.
2026.2.24. (1Â÷)2016.10.15.~2021.06.30.(2Â÷)2021.07.01.~2026.06.30.

¿©ÀÇÁÖ°æ¸Å Á¶¾ð ÇÑ ¸¶µð


ÁÖÀÇ»çÇ× (ÃÖ¼±¼øÀ§ ¼³Á¤ÀÏ: 2015. 5. 6. ±ÙÀú´ç±Ç ¼³Á¤)

¸Å°¢À¸·Î ¼Ò¸êµÇÁö ¾Ê´Â µî±âºÎ±Ç¸®:
¸Å°¢À¸·Î ¼³Á¤µÈ °ÍÀ¸·Î º¸´Â Áö»ó±Ç:
¡Ø¹Ì³³°ü¸®ºñ(°ø¿ë) Àμö¿©ºÎ¸¦ ÀÔÂû Àü¿¡ È®ÀÎÇϽñ⠹ٶø´Ï´Ù

 

Áö¿ªºÐ¼®

ÁöÇÏö¸í Á÷¼±°Å¸®

Çб³¸í ÀüÈ­¹øÈ£ ÁÖ¼Ò Á÷¼±°Å¸®

¹ý¿ø

¼ö¿øÁö¹æ¹ý¿ø (165-12)°æ±âµµ ¼ö¿ø½Ã ¿µÅ뱸 ¹ýÁ¶·Î 105, Çϵ¿, ¼ö¿ø¹ý¿øÁ¾ÇÕû»ç
´ëÇ¥ : 031)210-1114, ¾ß°£ : 031)210-1111
°üÇÒÁö¿ª : ¼ö¿ø½Ã, ¿À»ê½Ã, È­¼º½Ã, ¿ëÀνÃ

µî±â¼Ò ¼ö¿øÁö¹æ¹ý¿ø º»¿ø È­¼ºµî±â¼Ò (´ëÇ¥:1544-0773, ÆÑ½º:(031)375-3964, °æ±âµµ ¿À»ê½Ã ¹ý¿ø·Î 65 (±Èµ¿ 662))
¼¼¹«¼­ µ¿¼ö¿ø¼¼¹«¼­ (´ëÇ¥:031-695-42, ÆÑ½º:031-273-2416, °æ±âµµ ¼ö¿ø½Ã ¿µÅ뱸 û¸í³²·Î 13 (¿µÅ뵿))

Àαٳ«ÂûÅë°è

±â°£ ¸Å°¢°Ç¼ö Æò±Õ°¨Á¤°¡
Æò±Õ¸Å°¢°¡
¸Å°¢°¡À²
Æò±ÕÀ¯Âû¼ö
3°³¿ù 4°Ç 363,787,950¿ø
246,353,778¿ø
71%
2ȸ
6°³¿ù 8°Ç 449,117,944¿ø
330,303,201¿ø
64%
2.1ȸ
12°³¿ù 12°Ç 381,328,629¿ø
257,095,301¿ø
61%
2.3ȸ


º» °æ¸ÅÁ¤º¸´Â ¹ý¿øÀÚ·á¿Í ÀÏÄ¡Çϵµ·Ï ÇÏ¿´À¸³ª ±Ç¸®»çÇ׺¯µ¿, ÀÔ·ÂÂø¿À µîÀÇ ¿øÀÎÀ¸·Î »ç½Ç°ú ´Ù¸¦ ¼ö ÀÖ½À´Ï´Ù. ÀÌ¿ë¾à°ü¿¡ ÀǰЏéÃ¥Á¶°ÇÀ¸·Î Á¦°øµÊÀ» ¾Ë¸®¸ç, °æ¸ÅÀÔÂû½Ã ¹Ýµå½Ã °ü·Ã °øºÎ¸¦ ÀçÈ®ÀÎÇϽñ⠹ٶø´Ï´Ù. º¸´Ù Æí¸®ÇÑ °æ¸ÅÁ¤º¸ Á¦°øÀ» À§ÇØ Áö¼ÓÀûÀ¸·Î °³¼±ÇϰڽÀ´Ï´Ù. ÀÌ¿ëÇØ Áּż­ °¨»çÇÕ´Ï´Ù.