·Î±×ÀÎ
16
¿ÀÇǽºÅÚ
ÀÇÁ¤ºÎÁö¹æ¹ý¿ø °í¾çÁö¿ø
 °¨Á¤°¡78,000,000 ¿ø
 ÃÖÀú°¡(100%) 78,000,000 ¿ø
 º¸Áõ±Ý(10%) 7,800,000 ¿ø
 Ã»±¸¾×75,987,151 ¿ø
°æ±âµµ °í¾ç½Ã ´ö¾ç±¸ È­Á¤µ¿ 984-7 ¿ì°æ½ÎÀÌÆ®ºô 8Ãþ812È£
»ç°Ç¹øÈ£ 2025Ÿ°æ64539
°æ¸ÅÁ¾·ùºÎµ¿»êÀÓÀǰæ¸Å
¸Å°¢´ë»óÅäÁö ¹× °Ç¹°Àϰý ¸Å°¢
¸Å°¢±âÀÏ    2026.04.09(¸ñ) 10:00 ÀÔÂû 12ÀÏÀü    
ÅäÁö¸éÀû3.47§³(1.05 Æò)
°Ç¹°¸éÀû30.56§³(9.24 Æò)
乫/¼ÒÀ¯ÀÚ¹ÚOO / ¹ÚOO
ä±ÇÀÚÁÖOOO OOOOOOO
ÆäÀ̽ººÏ Æ®À§ÅÍ ±¸±Û+
īī¿À½ºÅ丮
īī¿ÀÅå sms¹®ÀÚº¸³»±â
 

±âÀϳ»¿ª

°æ°ú ³¯Â¥ Àú°¨ ÃÖÀú°¡ °á°ú
Á¢¼öÀÏ 2025-10-22 °æ¸ÅÁ¢¼ö
~1ÀÏ 
2025-10-23 °æ¸Å°³½Ã°áÁ¤
~85ÀÏ 
2026-01-15 ¹è´ç¿ä±¸Á¾±âÀÏ
~169ÀÏ 
2026-04-09 100%
78,000,000
ÁøÇà
¹°°Ç¸í¼¼¼­ ÇöȲÁ¶»ç¼­ ¹®°ÇÁ¢¼ö ¼Û´Þ³»¿ª

°¨Á¤Æò°¡ÇöȲ

¸ñ·Ï ÁÖ¼Ò ±¸Á¶/¿ëµµ/´ëÁö±Ç ¸éÀû ºñ°í
´ëÁö±Ç
È­Á¤µ¿ 984-7 723ºÐÀÇ 3.47 3.47 §³
(1.05Æò)
°Ç¹°
È­Á¤µ¿ 984-7 8Ãþ812È£ ö±ÙÄÜÅ©¸®Æ®Á¶ 30.56 §³
(9.24Æò)
1) À§Ä¡/µµ½ÃÁö¿ª/Á߽ɻó¾÷Áö¿ª/Áö±¸´ÜÀ§°èȹ±¸¿ª/ÅäÁö°Å·¡°è¾à¿¡°üÇÑÇã°¡±¸¿ª/ÁöÇÏö/³ë¼±¹ö½º Á¤·ùÀå/ö±ÙÄÜÅ©¸®Æ®Á¶ ´õº¸±â
°¨Á¤Æò°¡ ¿äÇ×Ç¥
1)À§Ä¡ ¹× ÁÖÀ§È¯°æ
º»°ÇÀº °æ±âµµ °í¾ç½Ã ´ö¾ç±¸ È­Á¤µ¿ ¼ÒÀç "ÁöµµÃʵîÇб³" ºÏ¼­Ãø Àαٿ¡ À§Ä¡Çϸç, ÁÖÀ§´Â Á߽ɻó¾÷Áö¿ª ³» ±Ù¸°»ýȰ½Ã¼³, ±Ù¸°°ø¿ø, ¿ÀÇǽºÅÚ µîÀÌ È¥ÀçÇÏ´Â »ó¾÷Áö´ë·Î¼­ Á¦¹Ý ÁÖÀ§È¯°æÀº º¸ÅëÀÔ´Ï´Ù.
2)±³Åë»óȲ
º»°Ç±îÁö Â÷·® Áø,ÃâÀÔÀÌ °¡´ÉÇϸç, Àαٿ¡ ³ë¼±¹ö½º Á¤·ùÀå ¹× ÁöÇÏö3È£¼±'È­Á¤¿ª'ÀÌ ¼ÒÀçÇÏ´Â µî Á¦¹Ý ±³Åë»óȲÀº º¸ÅëÀÔ´Ï´Ù.
3)°Ç¹°ÀÇ ±¸Á¶
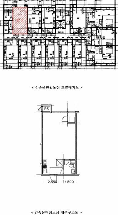
ö±ÙÄÜÅ©¸®Æ®Á¶ Æò½½¶óºêÁöºØ 16Ãþ Áß 8Ãþ 812È£·Î¼­, ¿Üº®: ¸ôÅ» À§ ÆäÀÎÆÃ ¸¶°¨ µî, âȣ: ¼¦½Ã âȣÀÓ.
4)ÀÌ¿ë»óÅÂ
¿ÀÇǽºÅÚ(ÈÄ÷ '³»ºÎ±¸Á¶µµ' ÂüÁ¶)·Î ÀÌ¿ë Áß ÀÔ´Ï´Ù.
5)¼³ºñ³»¿ª
À§»ý ¹× ±Þ,¹è¼ö¼³ºñ, ³­¹æ¼³ºñ, ½Â°­±â¼³ºñ µîÀÌ µÇ¾î ÀÖ½À´Ï´Ù.
6)ÅäÁöÀÇ Çü»ó ¹× ÀÌ¿ë»óÅÂ
ÀÎÁ¢Áö ´ëºñ µî°íÆòźÇÑ ¼¼ÀåÇüÀÇ ÅäÁö·Î¼­, ±Ù¸°»ýȰ½Ã¼³ ¹× ¾÷¹«½Ã¼³ °ÇºÎÁö·Î ÀÌ¿ë Áß ÀÔ´Ï´Ù.
7)ÀÎÁ¢ µµ·Î»óŵî
º»°Ç ÅäÁö µ¿ÃøÀ¸·Î ³ëÆø 10~15¹ÌÅÍ ³»¿ÜÀÇ Æ÷Àåµµ·Î¿Í Á¢ÇÕ´Ï´Ù.
8)ÅäÁöÀÌ¿ë°èȹ ¹× Á¦ÇÑ»óÅÂ
Á߽ɻó¾÷Áö¿ª, Áö±¸´ÜÀ§°èȹ±¸¿ª(È­Á¤´É°îÅÃÁö°³¹ß), Áß·Î2·ù(Æø 15m~20m)(Á¢ÇÕ) °¡Ãà»çÀ°Á¦Çѱ¸¿ª(2024-11-12)(ÀüºÎÁ¦Çѱ¸¿ª [µµ½ÃÁö¿ª{ÁÖ°Å,»ó¾÷,°ø¾÷,³ìÁö(ÀÚ¿¬Ãë¶ôÁö±¸)}¹×ÁְŹÐÁýÁö¿ª])<°¡ÃàºÐ´¢ÀÇ °ü¸® ¹× À̿뿡 °üÇÑ ¹ý·ü>, »ó´ëº¸È£±¸¿ª(º°ºûÀ¯Ä¡¿ø)<±³À°È¯°æ º¸È£¿¡ °üÇÑ ¹ý·ü>, °ú¹Ð¾ïÁ¦±Ç¿ª<¼öµµ±ÇÁ¤ºñ°èȹ¹ý> ÅäÁö°Å·¡°è¾à¿¡°üÇÑÇã°¡±¸¿ª(2025-08-26)(¿Ü±¹Àεî´ë»ó,´ë»ó¿ëµµ(´Üµ¶,´Ù°¡±¸,¿¬¸³,´Ù¼¼´ëÁÖÅÃ,¾ÆÆÄÆ®)·Î»ç¿ëµÇ´ÂÅäÁö)
9)°øºÎ¿ÍÀÇ Â÷ÀÌ
¾ø½À´Ï´Ù.
10)±âŸÂü°í»çÇ×(ÀÓ´ë°ü·Ê ¹× ±âŸ)
ÀÓ´ë°ü°è ¹Ì»óÀÔ´Ï´Ù.
Âü°í
»çÇ×

1. º»°Ç °Ç¹°Àº ö±ÙÄÜÅ©¸®Æ®Á¶ Æò½½¶óºêÁöºØ 16Ãþ ±Ù¸°»ýȰ½Ã¼³ ¹× ¾÷¹«½Ã¼³ÀÓ. 2. Çö°üÃâÀÔ±¸¿¡ `¿ì°æ½ÎÀÌÆ®ºô` Ç¥½Ã ÀÖÀ½.

°ÇÃ๰ÇöȲ

¼ÒÀçÁö °æ±âµµ °í¾ç½Ã ´ö¾ç±¸ È­Á¤µ¿ 984-7¹øÁö
´ëÁö¸éÀû 723§³
(219.09Æò)
¿¬¸éÀû 9604.09§³
(2910.33Æò)
°ÇÃà¸éÀû 575.02§³
(174.25Æò)
¿ëÀû·ü»êÁ¤
¿¬¸éÀû
7919.35§³
(2399.8Æò)
°ÇÆóÀ² 79.53% ¿ëÀû·ü 1095.35%
Áö»óÃþ¼ö 16Ãþ ÁöÇÏÃþ¼ö 3Ãþ
ÁÖ¿ëµµ ¾÷¹«½Ã¼³ ±¸Á¶ ö±ÙÄÜÅ©¸®Æ®±¸Á¶
Âø°øÀÏÀÚ 2001.05.07 »ç¿ë½ÂÀÎÀÏÀÚ 2002.12.09
°ÇÃ๰Ãþº°ÇöȲ [º¸±â]


µî±âºÎµîº» ¿ä¾à(°Ç¹°)

  Á¢¼öÀÏÀÚ µî±â¸ñÀû/±Ç¸®ÀÚ ±Ç¸®±Ý¾× ±âÁØ
1 2009³â10¿ù7ÀÏ
¼ÒÀ¯±Ç
¹ÚOO
¼Ò¸ê
2 2018³â5¿ù10ÀÏ
±ÙÀú´ç±Ç
(OOOO
84,000,000 ¼Ò¸ê±âÁØ
3 2025³â4¿ù15ÀÏ
°¡¾Ð·ù
ȕOOOO
11,413,247 ¼Ò¸ê
4 2025³â5¿ù23ÀÏ
°¡¾Ð·ù
(OOOO
23,222,642 ¼Ò¸ê
5 2025³â10¿ù23ÀÏ
ÀÓÀǰæ¸Å
(OOOO
¼Ò¸ê

ÀÓÂ÷ÀÎÇöȲ (¹è´ç¿ä±¸Á¾±âÀÏ: 2026-01-15)



¸Å°¢±âÀÏ 7ÀÏÀü¿¡ ¸Å°¢¹°°Ç¸í¼¼¼­°¡ °ø°íµÇ¿À´Ï È®ÀÎÇϽñ⠹ٶø´Ï´Ù.

ÀÓÂ÷ÀÎ ¿ëµµ/Á¡À¯ º¸Áõ±Ý/¿ù¼¼ ´ëÇ×·Â
ÀüÀÔÀÏ/È®Á¤ÀÏ ¹è´ç¿ä±¸ ºñ°í
ÃÖOO ÀüºÎ 5,000,000
[¿ù]450,000
X
2020.11.09.
2025.11.4. 2020.10.27.~ÇöÀç

¿©ÀÇÁÖ°æ¸Å Á¶¾ð ÇÑ ¸¶µð


ÁÖÀÇ»çÇ× (ÃÖ¼±¼øÀ§ ¼³Á¤ÀÏ: 2018.05.10.±ÙÀú´ç±Ç ¼³Á¤)

¸Å°¢À¸·Î ¼Ò¸êµÇÁö ¾Ê´Â µî±âºÎ±Ç¸®:
¸Å°¢À¸·Î ¼³Á¤µÈ °ÍÀ¸·Î º¸´Â Áö»ó±Ç:
¡Ø¹Ì³³°ü¸®ºñ(°ø¿ë) Àμö¿©ºÎ¸¦ ÀÔÂû Àü¿¡ È®ÀÎÇϽñ⠹ٶø´Ï´Ù

 

Áö¿ªºÐ¼®

ÁöÇÏö¸í Á÷¼±°Å¸®

Çб³¸í ÀüÈ­¹øÈ£ ÁÖ¼Ò Á÷¼±°Å¸®

¹ý¿ø

ÀÇÁ¤ºÎÁö¹æ¹ý¿ø °í¾çÁö¿ø (104-13)°æ±âµµ °í¾ç½Ã Àϻ굿±¸ Àå¹é·Î 209
´ëÇ¥ : 031)920-6114, ¾ß°£ : 031)920-6550, ÆÑ½º : 031)920-6119
°üÇÒÁö¿ª : °í¾ç½Ã, ÆÄÁÖ½Ã

µî±â¼Ò ÀÇÁ¤ºÎÁö¹æ¹ý¿ø °í¾çÁö¿ø °í¾çµî±â¼Ò (´ëÇ¥:1544-0773, ÆÑ½º:(031)920-5959, °æ±âµµ °í¾ç½Ã Àϻ굿±¸ Áß¾Ó·Î1275¹ø±æ 38-30 (ÀåÇ×µ¿ 773))
¼¼¹«¼­ µ¿°í¾ç¼¼¹«¼­ (´ëÇ¥:031-900-62, ÆÑ½º:031-963-2979, °æ±âµµ °í¾ç½Ã ´ö¾ç±¸ È­Áß·Î 104¹ø±æ 16(È­Á¤µ¿))

Àαٳ«ÂûÅë°è

±â°£ ¸Å°¢°Ç¼ö Æò±Õ°¨Á¤°¡
Æò±Õ¸Å°¢°¡
¸Å°¢°¡À²
Æò±ÕÀ¯Âû¼ö
3°³¿ù 12°Ç 1,000,243,833¿ø
407,242,417¿ø
44%
2.9ȸ
6°³¿ù 20°Ç 903,842,973¿ø
415,179,891¿ø
49%
2.8ȸ
12°³¿ù 23°Ç 897,472,150¿ø
408,859,470¿ø
50%
2.7ȸ


º» °æ¸ÅÁ¤º¸´Â ¹ý¿øÀÚ·á¿Í ÀÏÄ¡Çϵµ·Ï ÇÏ¿´À¸³ª ±Ç¸®»çÇ׺¯µ¿, ÀÔ·ÂÂø¿À µîÀÇ ¿øÀÎÀ¸·Î »ç½Ç°ú ´Ù¸¦ ¼ö ÀÖ½À´Ï´Ù. ÀÌ¿ë¾à°ü¿¡ ÀǰЏéÃ¥Á¶°ÇÀ¸·Î Á¦°øµÊÀ» ¾Ë¸®¸ç, °æ¸ÅÀÔÂû½Ã ¹Ýµå½Ã °ü·Ã °øºÎ¸¦ ÀçÈ®ÀÎÇϽñ⠹ٶø´Ï´Ù. º¸´Ù Æí¸®ÇÑ °æ¸ÅÁ¤º¸ Á¦°øÀ» À§ÇØ Áö¼ÓÀûÀ¸·Î °³¼±ÇϰڽÀ´Ï´Ù. ÀÌ¿ëÇØ Áּż­ °¨»çÇÕ´Ï´Ù.