·Î±×ÀÎ
81
´Ù¼¼´ë(ºô¶ó)
Á¦ÁÖÁö¹æ¹ý¿ø
 °¨Á¤°¡138,000,000 ¿ø
 ÃÖÀú°¡(70%) 96,600,000 ¿ø
 º¸Áõ±Ý(10%) 9,660,000 ¿ø
 Ã»±¸¾×94,596,473 ¿ø
Á¦ÁÖÆ¯º°ÀÚÄ¡µµ Á¦Áֽà À̵µÀ̵¿ 1050-6 2Ãþ 201È£
»ç°Ç¹øÈ£ 2025Ÿ°æ8643
°æ¸ÅÁ¾·ùºÎµ¿»êÀÓÀǰæ¸Å
¸Å°¢´ë»óÅäÁö ¹× °Ç¹°Àϰý ¸Å°¢
¸Å°¢±âÀÏ    2026.05.19(È­) 10:00 ÀÔÂû 40ÀÏÀü    
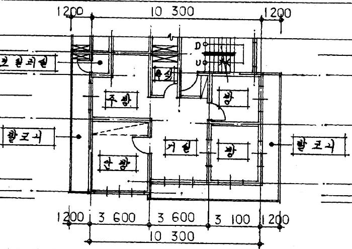
ÅäÁö¸éÀû54.73§³(16.55 Æò)
°Ç¹°¸éÀû76.98§³(23.29 Æò)
乫/¼ÒÀ¯ÀÚÀ±OO / À±OO
ä±ÇÀÚÁÖOOO OOOOO OOO OOOOOOOOOOOOOOO OOOO
ÆäÀ̽ººÏ Æ®À§ÅÍ ±¸±Û+
īī¿À½ºÅ丮
īī¿ÀÅå sms¹®ÀÚº¸³»±â
 

±âÀϳ»¿ª

°æ°ú ³¯Â¥ Àú°¨ ÃÖÀú°¡ °á°ú
Á¢¼öÀÏ 2025-08-20 °æ¸ÅÁ¢¼ö
~5ÀÏ 
2025-08-25 °æ¸Å°³½Ã°áÁ¤
~96ÀÏ 
2025-11-24 ¹è´ç¿ä±¸Á¾±âÀÏ
~230ÀÏ 
2026-04-07 100%
138,000,000
À¯Âû
~272ÀÏ 
2026-05-19 70%
96,600,000
ÁøÇà
¹°°Ç¸í¼¼¼­ ÇöȲÁ¶»ç¼­ ¹®°ÇÁ¢¼ö ¼Û´Þ³»¿ª

°¨Á¤Æò°¡ÇöȲ

¸ñ·Ï ÁÖ¼Ò ±¸Á¶/¿ëµµ/´ëÁö±Ç ¸éÀû ºñ°í
´ëÁö±Ç
À̵µÀ̵¿ 1050-6 437.8ºÐÀÇ 54.725 54.725 §³
(16.55Æò)
°Ç¹°
À̵µÀ̵¿ 1050-6 2Ãþ 201È£ ö±ÙÄÜÅ©¸®Æ®Á¶ 76.98 §³
(23.29Æò)
1) À§Ä¡/Á¦2Á¾ÀϹÝÁÖ°ÅÁö¿ª/¹ö½ºÁ¤·ùÀå/Â÷·® Á¢±ÙÀÌ °¡´É/ö±ÙÄÜÅ©¸®Æ®±¸Á¶/¹æ3 ´õº¸±â
°¨Á¤Æò°¡ ¿äÇ×Ç¥
1)À§Ä¡ ¹× ÁÖÀ§È¯°æ
º»°ÇÀº Á¦ÁÖÆ¯º°ÀÚÄ¡µµ Á¦Áֽà À̵µÀ̵¿ ¼ÒÀç 'À̵µ2µ¿ Áֹμ¾ÅÍ' ºÏµ¿Ãø Àα٠À§Ä¡Çϸç, ºÎ±ÙÀº °øµ¿ÁÖÅÃ, ´Üµ¶ÁÖÅÃ, ±Ù¸°»ýȰ½Ã¼³ µîÀÌ È¥ÀçÇÑ Áö¿ªÀÓ.
2)±³Åë»óȲ
º»°ÇÀº Â÷·® Á¢±ÙÀÌ °¡´ÉÇϰí, Àαٿ¡ ¹ö½ºÁ¤·ùÀåÀÌ À§Ä¡ÇÏ¿© ±³Åë¿©°ÇÀº ºñ±³Àû ¾çÈ£ÇÑ ÆíÀÓ.
3)°Ç¹°ÀÇ ±¸Á¶
º»°ÇÀº ö±ÙÄÜÅ©¸®Æ®±¸Á¶ ½º¶óºêÀ§½³±ÛÁöºØ Áö»ó 4Ãþ °Ç¹° ³» Á¦2Ãþ Á¦201È£·Î¼­,
(»ç¿ë½ÂÀÎÀÏ: 1996.12.24.)

¿Üº®: ŸÀϺÙÀÓ ¹× ¸ôÅ» À§ ÆäÀÎÆÃ ¸¶°¨ µî,
¹Ù´Ú: °­¸¶·ç, ŸÀϸ¶°¨ µî,
³»º®: º®Áö ¸¶°¨ µî
âȣ: ¼¦½Ã âȣ µîÀÓ.
4)ÀÌ¿ë»óÅÂ
°øµ¿ÁÖÅÃ(´Ù¼¼´ëÁÖÅÃ, ¹æ3°³, °Å½Ç, ¿å½Ç)À¸·Î ÀÌ¿ëÁßÀÓ.(ÈÄ÷ È£º°¹èÄ¡µµ, Æò¸éµµ, »çÁø¿ëÁö Âü°í)
5)¼³ºñ³»¿ª
±âº»ÀûÀÎ ±Þ¹è¼ö ¹× À§»ý¼³ºñ, º¸ÀÏ·¯¿¡ ÀÇÇÑ ³­¹æ¼³ºñ µîÀÌ ¼³Ä¡µÇ¾î ÀÖÀ½.
6)ÅäÁöÀÇ Çü»ó ¹× ÀÌ¿ë»óÅÂ
º»°Ç ÅäÁö´Â ÀÎÁ¢ µµ·Î ´ëºñ µî°í°¡ ÆòźÇÑ ºÎÁ¤ÇüÀÇ ÅäÁö·Î¼­, °øµ¿ÁÖÅà °ÇºÎÁö·Î ÀÌ¿ëµÇ°í ÀÖÀ½.
7)ÀÎÁ¢ µµ·Î»óŵî
º»°ÇÀº ºÏµ¿ÃøÀ¸·Î Æø ¾à 6m ³»¿ÜÀÇ ¾Æ½ºÆÈÆ® Æ÷Àåµµ·Î¿¡ Á¢Çϰí ÀÖÀ½.
8)ÅäÁöÀÌ¿ë°èȹ ¹× Á¦ÇÑ»óÅÂ
Á¦2Á¾ÀϹÝÁÖ°ÅÁö¿ª, °íµµÁö±¸(30MÀÌÇÏ), ¼Ò·Î3·ù(Æø 8m ¹Ì¸¸)(Á¢ÇÕ), °¡Ãà»çÀ°Á¦Çѱ¸¿ª(ÀüºÎÁ¦Çѱ¸¿ª)<°¡ÃàºÐ´¢ÀÇ °ü¸® ¹× À̿뿡 °üÇÑ ¹ý·ü>, Àå¾Ö¹°Á¦ÇÑÇ¥¸é±¸¿ª<°øÇ׽ü³¹ý>, ÁöÇϼöÀÚ¿øÆ¯º°°ü¸®±¸¿ª<Á¦ÁÖÆ¯º°ÀÚÄ¡µµ ¼³Ä¡ ¹× ±¹Á¦ÀÚÀ¯µµ½Ã Á¶¼ºÀ» À§ÇÑ Æ¯º°¹ý>, Çϼö󸮱¸¿ª<Çϼöµµ¹ý>ÀÓ.
9)°øºÎ¿ÍÀÇ Â÷ÀÌ
°øºÎ¿ÍÀÇ Â÷ÀÌ´Â ¾øÀ½.
10)±âŸÂü°í»çÇ×(ÀÓ´ë°ü·Ê ¹× ±âŸ)
ÀÓ´ë°ü°è´Â º°µµ·Î È®ÀεÇÁö ¾Ê¾ÒÀ½.

º»°Ç °Ç¹°ÀÇ ¹ßÄÚ´Ï ºÎºÐÀº ¼¦½Ã â ¼³Ä¡·Î ¿ÜºÎ¿ÍÀÇ °³¹æÀÌ Â÷´ÜµÈ »óÅÂÀ̸ç, ½ÇÁúÀûÀ¸·Î ÀüÀ¯ºÎºÐ°ú ÀÏü·Î ÀÌ¿ëµÇ°í ÀÖÀ½. µû¶ó¼­ Æò°¡¿¡ ÀÖ¾î ÇØ´ç ¹ßÄÚ´Ï ¼¦½Ã µîÀ» Æ÷ÇÔÇÏ¿© »êÁ¤ÇÏ¿´À½.
Âü°í
»çÇ×
ÇöÀåÇ¥½Ã : »ó¿ëºô¶ó
- º» È£ °Ç¹°

°ÇÃ๰ÇöȲ

¼ÒÀçÁö Á¦ÁÖÆ¯º°ÀÚÄ¡µµ Á¦Áֽà À̵µÀ̵¿ 1050-6¹øÁö
´ëÁö¸éÀû 437.8§³
(132.67Æò)
¿¬¸éÀû 659.04§³
(199.71Æò)
°ÇÃà¸éÀû 22.08§³
(6.69Æò)
¿ëÀû·ü»êÁ¤
¿¬¸éÀû
659.04§³
(199.71Æò)
°ÇÆóÀ² 50.43% ¿ëÀû·ü 150.53%
Áö»óÃþ¼ö 4Ãþ ÁöÇÏÃþ¼ö  
ÁÖ¿ëµµ °øµ¿ÁÖÅà ±¸Á¶ ö±ÙÄÜÅ©¸®Æ®±¸Á¶
Âø°øÀÏÀÚ 1996.04.13 »ç¿ë½ÂÀÎÀÏÀÚ 1996.12.24
°ÇÃ๰Ãþº°ÇöȲ [º¸±â]


±¹ÅäºÎ½Ç°Å·¡°¡ Á¦ÁÖÆ¯º°ÀÚÄ¡µµ Á¦Áֽà À̵µÀ̵¿

¡Ü ¸Å¸Å

¸éÀû(§³), ±Ý¾×(¸¸¿ø)

¡Ü Àü¼¼

¸éÀû(§³), ±Ý¾×(¸¸¿ø)

°è¾àÀϰǹ°¸íĪÃþ¿¬¸éÀûº¸Áõ±Ý¿ù¼¼°ÇÃà
26.03.26°ø°£ºô¶ó(2Â÷)442.02400331996
26.03.23޳ªÁö¿À469.6438,5002019
26.03.22(1178-12)241.04300781980
26.03.20¸®ÇÑÇϿ콺314.015150462017
26.03.18µµ³²Çصçºô866.9333,4002019
¢Ñ ´õº¸±â

µî±âºÎµîº» ¿ä¾à(°Ç¹°)

  Á¢¼öÀÏÀÚ µî±â¸ñÀû/±Ç¸®ÀÚ ±Ç¸®±Ý¾× ±âÁØ
1 2020³â1¿ù20ÀÏ
¼ÒÀ¯±Ç
˱OO
¼Ò¸ê
2 2020³â1¿ù20ÀÏ
±ÙÀú´ç±Ç
(OOOO
126,000,000 ¼Ò¸ê±âÁØ
3 2022³â8¿ù22ÀÏ
±ÙÀú´ç±Ç
(OOOO
13,000,000 ¼Ò¸ê
4 2023³â12¿ù20ÀÏ
¾Ð·ù
±¹
¼Ò¸ê
5 2024³â3¿ù19ÀÏ
¾Ð·ù
Á¦OOOO
¼Ò¸ê
6 2025³â8¿ù25ÀÏ
ÀÓÀǰæ¸Å
(OOOO
¼Ò¸ê

ÀÓÂ÷ÀÎÇöȲ (¹è´ç¿ä±¸Á¾±âÀÏ: 2025-11-24)


Á¶»çµÈ ÀÓÂ÷³»¿ªÀÌ ¾ø½À´Ï´Ù


¿©ÀÇÁÖ°æ¸Å Á¶¾ð ÇÑ ¸¶µð


ÁÖÀÇ»çÇ× (ÃÖ¼±¼øÀ§ ¼³Á¤ÀÏ: 2020.1.20. ±ÙÀú´ç±Ç ¼³Á¤)

¸Å°¢À¸·Î ¼Ò¸êµÇÁö ¾Ê´Â µî±âºÎ±Ç¸®: ÇØ´ç»çÇ×¾øÀ½
¸Å°¢À¸·Î ¼³Á¤µÈ °ÍÀ¸·Î º¸´Â Áö»ó±Ç:
- ÇöÀåÇ¥½Ã : »ó¿ëºô¶ó
¡Ø¹Ì³³°ü¸®ºñ(°ø¿ë) Àμö¿©ºÎ¸¦ ÀÔÂû Àü¿¡ È®ÀÎÇϽñ⠹ٶø´Ï´Ù

 

Áö¿ªºÐ¼®

ÁöÇÏö¸í Á÷¼±°Å¸®

Çб³¸í ÀüÈ­¹øÈ£ ÁÖ¼Ò Á÷¼±°Å¸®

¹ý¿ø

Á¦ÁÖÁö¹æ¹ý¿ø (632-23)Á¦ÁÖÆ¯º°ÀÚÄ¡µµ Á¦Áֽà ³²±¤ºÏ5±æ 3 (À̵µ2µ¿)
´ëÇ¥ : 064)729-2000
°üÇÒÁö¿ª : Á¦ÁÖ½Ã, ¼­±ÍÆ÷½Ã

µî±â¼Ò Á¦ÁÖÁö¹æ¹ý¿ø º»¿ø µî±â°ú (´ëÇ¥:1544-0773, ÆÑ½º:(064)753-0102, Á¦ÁÖÆ¯º°ÀÚÄ¡µµ Á¦Áֽà ³²±¤ºÏ5±æ 3 (À̵µ2µ¿ 950-1))
¼¼¹«¼­ Á¦ÁÖ¼¼¹«¼­ (´ëÇ¥:064-720-52, ÆÑ½º:064-724-1107, Á¦ÁÖÆ¯º°ÀÚÄ¡µµ Á¦Áֽà û»ç·Î 59 (µµ³²µ¿))

Àαٳ«ÂûÅë°è

±â°£ ¸Å°¢°Ç¼ö Æò±Õ°¨Á¤°¡
Æò±Õ¸Å°¢°¡
¸Å°¢°¡À²
Æò±ÕÀ¯Âû¼ö
3°³¿ù 5°Ç 346,200,000¿ø
241,927,580¿ø
68%
1.6ȸ
6°³¿ù 15°Ç 265,986,667¿ø
194,937,073¿ø
73%
1.5ȸ
12°³¿ù 34°Ç 234,817,647¿ø
172,097,451¿ø
71%
1.6ȸ


º» °æ¸ÅÁ¤º¸´Â ¹ý¿øÀÚ·á¿Í ÀÏÄ¡Çϵµ·Ï ÇÏ¿´À¸³ª ±Ç¸®»çÇ׺¯µ¿, ÀÔ·ÂÂø¿À µîÀÇ ¿øÀÎÀ¸·Î »ç½Ç°ú ´Ù¸¦ ¼ö ÀÖ½À´Ï´Ù. ÀÌ¿ë¾à°ü¿¡ ÀǰЏéÃ¥Á¶°ÇÀ¸·Î Á¦°øµÊÀ» ¾Ë¸®¸ç, °æ¸ÅÀÔÂû½Ã ¹Ýµå½Ã °ü·Ã °øºÎ¸¦ ÀçÈ®ÀÎÇϽñ⠹ٶø´Ï´Ù. º¸´Ù Æí¸®ÇÑ °æ¸ÅÁ¤º¸ Á¦°øÀ» À§ÇØ Áö¼ÓÀûÀ¸·Î °³¼±ÇϰڽÀ´Ï´Ù. ÀÌ¿ëÇØ Áּż­ °¨»çÇÕ´Ï´Ù.