·Î±×ÀÎ
107
´Ù¼¼´ë(ºô¶ó)
¼ö¿øÁö¹æ¹ý¿ø ¾È»êÁö¿ø
 °¨Á¤°¡122,000,000 ¿ø
 ÃÖÀú°¡(70%) 85,400,000 ¿ø
 º¸Áõ±Ý(10%) 8,540,000 ¿ø
 Ã»±¸¾×135,000,000 ¿ø
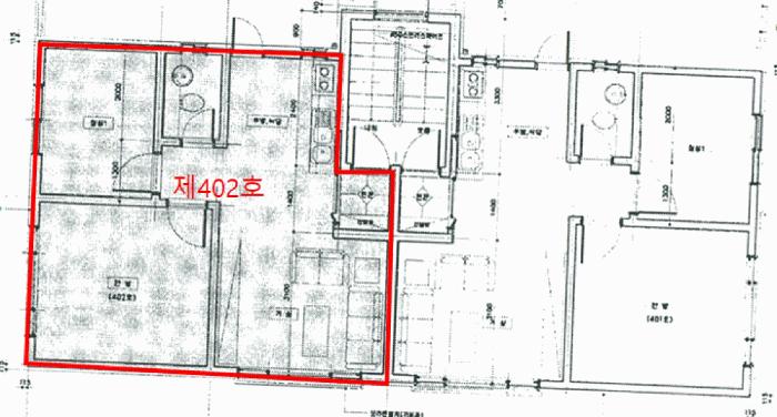
°æ±âµµ ¾È»ê½Ã ´Ü¿ø±¸ ¼±ºÎµ¿ 1126-4 ¿ùµåºô¶ó 4Ãþ402È£
»ç°Ç¹øÈ£ 2025Ÿ°æ833
°æ¸ÅÁ¾·ùºÎµ¿»ê°­Á¦°æ¸Å
¸Å°¢´ë»óÅäÁö ¹× °Ç¹°Àϰý ¸Å°¢
¸Å°¢±âÀÏ    2026.05.19(È­) 10:30 ÀÔÂû 37ÀÏÀü    
ÅäÁö¸éÀû25.19§³(7.62 Æò)
°Ç¹°¸éÀû50.60§³(15.30 Æò)
乫/¼ÒÀ¯ÀÚÃÖOO¿Ü 1¸í / ÃÖOO¿Ü 1¸í
ä±ÇÀÚ³ªOO
ÆäÀ̽ººÏ Æ®À§ÅÍ ±¸±Û+
īī¿À½ºÅ丮
īī¿ÀÅå sms¹®ÀÚº¸³»±â
 

±âÀϳ»¿ª

°æ°ú ³¯Â¥ Àú°¨ ÃÖÀú°¡ °á°ú
Á¢¼öÀÏ 2025-09-08 °æ¸ÅÁ¢¼ö
~1ÀÏ 
2025-09-09 °æ¸Å°³½Ã°áÁ¤
~77ÀÏ 
2025-11-24 ¹è´ç¿ä±¸Á¾±âÀÏ
~211ÀÏ 
2026-04-07 100%
122,000,000
À¯Âû
~253ÀÏ 
2026-05-19 70%
85,400,000
ÁøÇà
¹°°Ç¸í¼¼¼­ ÇöȲÁ¶»ç¼­ ¹®°ÇÁ¢¼ö ¼Û´Þ³»¿ª

°¨Á¤Æò°¡ÇöȲ

¸ñ·Ï ÁÖ¼Ò ±¸Á¶/¿ëµµ/´ëÁö±Ç ¸éÀû ºñ°í
´ëÁö±Ç
¼±ºÎµ¿ 1126-4 248.6ºÐÀÇ 25.193 25.193 §³
(7.62Æò)
°Ç¹°
¼±ºÎµ¿ 1126-4 4Ãþ402È£ ö±ÙÄÜÅ©¸®Æ®Á¶ 50.595 §³
(15.30Æò)
1) À§Ä¡/µµ½ÃÁö¿ª/°ü¸®Áö¿ª/Á¦1Á¾ÀϹÝÁÖ°ÅÁö¿ª/ÁöÇÏö/³ë¼±¹ö½ºÁ¤·ùÀå/Æò½º¶óºêÁöºØ/µµ½Ã°¡½º/¹æ2 ´õº¸±â
°¨Á¤Æò°¡ ¿äÇ×Ç¥
1)À§Ä¡ ¹× ÁÖÀ§È¯°æ
º»°ÇÀº °æ±âµµ ¾È»ê½Ã ´Ü¿ø±¸ ¼±ºÎµ¿ ¼ÒÀç ""¼­Çؼ± ´Þ¹Ì¿ª"" ³²µ¿Ãø Àαٿ¡ À§Ä¡Çϸç ÁÖº¯Àº ±Ù¸°»ýȰ½Ã¼³, ´Ù¼¼´ëÁÖÅà µîÀÌ È¥ÀçÇÏ´Â ±âÁ¸ÁÖ°ÅÁö´ëÀÓ.
2)±³Åë»óȲ
º»°Ç±îÁö Â÷·®ÁøÃâÀÔÀÌ °¡´ÉÇϸç Àα٠³ë¼±¹ö½ºÁ¤·ùÀå ¹× ÁöÇÏö¿ª±îÁöÀÇ °Å¸® µîÀ» °í·Á½Ã ´ëÁß±³Åëȯ°æÀº º¸ÅëÀÓ.
3)°Ç¹°ÀÇ ±¸Á¶
ö±ÙÄÜŪ¸®Æ®Á¶ Æò½º¶óºêÁöºØ 4Ãþ °Ç(»ç¿ë½ÂÀÎ: 2002.05.24)³»,
Á¦4Ãþ Á¦402È£·Î,

¿Üº®: µ¹ºÙÀÓ¸¶°¨ µî,
³»??: º®Áöµµ¹è ¹× ŸÀϸ¶°¨ µî,
âȣ: ÇÏÀ̼¦½Ãâȣ µî ÀÓ.
4)ÀÌ¿ë»óÅÂ
´Ù¼¼´ëÁÖÅÃ(¹æ2, ÁÖ¹æ ¹× °Å½Ç, È­Àå½Ç)À¸·Î ÀÌ¿ëÁßÀÓ.
5)¼³ºñ³»¿ª
±âº»±Þ¹è¼ö ¹× À§»ý¼³ºñ, µµ½Ã°¡½º¼³ºñ µîÀ» ±¸ºñÇϰí ÀÖÀ½.

6)ÅäÁöÀÇ Çü»ó ¹× ÀÌ¿ë»óÅÂ
ÀÎÁ¢ÅäÁö¿Í µî°íÆòźÇÑ ¼¼ÀåÇüÀÇ ÅäÁö·Î ´Ù¼¼´ëÁÖÅðǺÎÁö·Î ÀÌ¿ëÁßÀÓ.
7)ÀÎÁ¢ µµ·Î»óŵî
º»°Ç µ¿ÃøÀ¸·Î ³ëÆø ¾à 6m ³»¿ÜÀÇ ¾Æ½ºÆÈÆ®Æ÷Àåµµ·Î¿¡ Á¢ÇÔ.
8)ÅäÁöÀÌ¿ë°èȹ ¹× Á¦ÇÑ»óÅÂ
µµ½ÃÁö¿ª , Á¦1Á¾ÀϹÝÁÖ°ÅÁö¿ª , ½Ã°¡Áö°æ°üÁö±¸(ÀϹÝ) , ¼Ò·Î3·ù(Æø 8m ¹Ì¸¸)(Á¢ÇÕ)
°¡Ãà»çÀ°Á¦Çѱ¸¿ª<°¡ÃàºÐ´¢ÀÇ °ü¸® ¹× À̿뿡 °üÇÑ ¹ý·ü>, »ó´ëº¸È£±¸¿ª(»ý°¢À»Å°¿ì´ÂÀ¯Ä¡¿ø)<±³À°È¯°æ º¸È£¿¡ °üÇÑ ¹ý·ü>, ´ë±â°ü¸®±Ç¿ª<´ë±â°ü¸®±Ç¿ªÀÇ ´ë±âȯ°æ°³¼±¿¡ °üÇÑ Æ¯º°¹ý>, µµ½Ã±³ÅëÁ¤ºñÁö¿ª<µµ½Ã±³ÅëÁ¤ºñÃËÁø¹ý>, »ýȰ¼ÒÀ½Áøµ¿°ü¸®Áö¿ª<¼ÒÀ½Áøµ¿°ü¸®¹ý>, ¼ºÀå°ü¸®±Ç¿ª<¼öµµ±ÇÁ¤ºñ°èȹ¹ý> ÀÓ.
9)°øºÎ¿ÍÀÇ Â÷ÀÌ
-
10)±âŸÂü°í»çÇ×(ÀÓ´ë°ü·Ê ¹× ±âŸ)
ÀÓ´ë°ü°è´Â ¹Ì»óÀÓ.
Âü°í
»çÇ×
1. ¹è´ç¿¡¼­ ÀÓÂ÷º¸Áõ±ÝÀÌ Àü¾× º¯Á¦µÇÁö ¾Æ´ÏÇϸé Àܾ×À» ¸Å¼öÀÎÀÌ ÀμöÇÔ 2. Àü¼¼»ç±âÇÇÇØÀÚ Áö¿ø ¹× ÁְžÈÁ¤¿¡ °üÇÑ Æ¯º°¹ý¿¡ µû¸¥ ÀÓÂ÷ÀÎ ¿ì¼±¸Å¼ö½Å°í¸¦ Çà»çÇÒ ¼ö ÀÖÀ½.
4Ãþ 2°¡±¸

°ÇÃ๰ÇöȲ

¼ÒÀçÁö °æ±âµµ ¾È»ê½Ã ´Ü¿ø±¸ ¼±ºÎµ¿ 1126-4¹øÁö
´ëÁö¸éÀû 248.6§³
(75.33Æò)
¿¬¸éÀû 541.98§³
(164.24Æò)
°ÇÃà¸éÀû 147.25§³
(44.62Æò)
¿ëÀû·ü»êÁ¤
¿¬¸éÀû
541.98§³
(164.24Æò)
°ÇÆóÀ² 59.23% ¿ëÀû·ü 218.01%
Áö»óÃþ¼ö 4Ãþ ÁöÇÏÃþ¼ö  
ÁÖ¿ëµµ °øµ¿ÁÖÅà ±¸Á¶ ö±ÙÄÜÅ©¸®Æ®±¸Á¶
Âø°øÀÏÀÚ 2002.05.19 »ç¿ë½ÂÀÎÀÏÀÚ 2002.05.24
°ÇÃ๰Ãþº°ÇöȲ [º¸±â]


µî±âºÎµîº» ¿ä¾à(°Ç¹°)

  Á¢¼öÀÏÀÚ µî±â¸ñÀû/±Ç¸®ÀÚ ±Ç¸®±Ý¾× ±âÁØ
1 2019³â11¿ù11ÀÏ
¼ÒÀ¯±Ç
ÃÖOO
¼Ò¸ê
2 2022³â2¿ù15ÀÏ
¾Ð·ù
±¹
¼Ò¸ê±âÁØ
3 2022³â4¿ù6ÀÏ
°¡¾Ð·ù
ÁÖOOOO
4,069,000,000 ¼Ò¸ê
4 2022³â9¿ù29ÀÏ
¾Ð·ù
¾ÈOO
¼Ò¸ê
5 2022³â12¿ù22ÀÏ
¾Ð·ù
¼­OOOO
¼Ò¸ê
6 2024³â6¿ù17ÀÏ
¾Ð·ù
ÆÄOO
¼Ò¸ê
7 2025³â5¿ù22ÀÏ
¾Ð·ù
°­OO
¼Ò¸ê
8 2025³â7¿ù15ÀÏ
ÀÓÂ÷±Ç¼³Á¤
³ªOO
135,000,000 ¼Ò¸ê
9 2025³â9¿ù9ÀÏ
°­Á¦°æ¸Å
³ªOO
¼Ò¸ê
10 2025³â9¿ù11ÀÏ
¾Ð·ù
¼­OOOO
¼Ò¸ê
11 2026³â2¿ù26ÀÏ
¾Ð·ù
¾çOO
¼Ò¸ê

ÀÓÂ÷ÀÎÇöȲ (¹è´ç¿ä±¸Á¾±âÀÏ: 2025-11-24)

ÀÓÂ÷ÀÎ ¿ëµµ/Á¡À¯ º¸Áõ±Ý/¿ù¼¼ ´ëÇ×·Â
ÀüÀÔÀÏ/È®Á¤ÀÏ ¹è´ç¿ä±¸ ºñ°í
³ªOO 402È£ 135,000,000
O
2019.11.12.
2019.10.22.
2025.9.24. 2019.11.11.~ÇöÀç
ÀÓOO 402È£ ¹Ì»ó
[¿ù]¹Ì»ó
O
2019.11.25
¹Ì»ó
¹Ì»ó
ºñ°í
(¸Å°¢¹°°Ç
¸í¼¼¼­)
³ª¿¬¿ì:ÀÌ »ç°Ç °æ¸Å½Åûä±ÇÀÚ·Î 'Àü¼¼»ç±âÇÇÇØÀÚ Áö¿ø ¹× ÁְžÈÁ¤¿¡ °üÇÑ Æ¯º°¹ý'¿¡ µû¸¥ ±¹Åä±³ÅëºÎÀå°üÀÇ Àü¼¼»ç±â ÇÇÇØÀÚ °áÁ¤ ÀÖÀ½.

¿©ÀÇÁÖ°æ¸Å Á¶¾ð ÇÑ ¸¶µð

¼±¼øÀ§ ÀÓÂ÷±Çµî±â°¡ µÇ¾î ÀÖ½À´Ï´Ù
´ëÇ×·ÂÀÌ ÀÖ´Â ¼±¼øÀ§ ÀÓÂ÷±Çµî±â ±Ç¸®ÀÚ°¡ ¹è´çÀ» Àü¾× ¹ÞÁö ¸øÇÒ °æ¿ì ³«ÂûÀÚ°¡ ÀÜ¿© º¸Áõ±ÝÀ» ÀμöÇØ¾ßÇÏ´Â °æ¿ìµµ ÀÖ½À´Ï´Ù.

ÁÖÀÇ»çÇ× (ÃÖ¼±¼øÀ§ ¼³Á¤ÀÏ: 2022.02.15.¾Ð·ù ¼³Á¤)

¸Å°¢À¸·Î ¼Ò¸êµÇÁö ¾Ê´Â µî±âºÎ±Ç¸®: ¸Å¼öÀο¡°Ô ´ëÇ×ÇÒ ¼ö ÀÖ´Â À»±¸ ¼øÀ§ 5¹ø ÀÓÂ÷±Çµî±â ÀÖÀ½. ¹è´ç¿¡¼­ º¸Áõ±ÝÀÌ Àü¾× º¯Á¦µÇÁö ¾Æ´ÏÇÏ¸é ¸»¼ÒµÇÁö ¾ÊÀ½.
¸Å°¢À¸·Î ¼³Á¤µÈ °ÍÀ¸·Î º¸´Â Áö»ó±Ç:
1. ¹è´ç¿¡¼­ ÀÓÂ÷º¸Áõ±ÝÀÌ Àü¾× º¯Á¦µÇÁö ¾Æ´ÏÇϸé Àܾ×À» ¸Å¼öÀÎÀÌ ÀμöÇÔ 2. Àü¼¼»ç±âÇÇÇØÀÚ Áö¿ø ¹× ÁְžÈÁ¤¿¡ °üÇÑ Æ¯º°¹ý¿¡ µû¸¥ ÀÓÂ÷ÀÎ ¿ì¼±¸Å¼ö½Å°í¸¦ Çà»çÇÒ ¼ö ÀÖÀ½.
¡Ø¹Ì³³°ü¸®ºñ(°ø¿ë) Àμö¿©ºÎ¸¦ ÀÔÂû Àü¿¡ È®ÀÎÇϽñ⠹ٶø´Ï´Ù

 

Áö¿ªºÐ¼®

ÁöÇÏö¸í Á÷¼±°Å¸®

Çб³¸í ÀüÈ­¹øÈ£ ÁÖ¼Ò Á÷¼±°Å¸®

¹ý¿ø

¼ö¿øÁö¹æ¹ý¿ø ¾È»êÁö¿ø (140-54)°æ±âµµ ¾È»ê½Ã ´Ü¿ø±¸ ±¤´ö¼­·Î 75 (°íÀܵ¿)
´ëÇ¥ : 031)481-1114, ¹Î¿ø : 031)481-1238, ¾ß°£ : 031)481-1112
°üÇÒÁö¿ª : ¾È»ê½Ã, ±¤¸í½Ã, ½ÃÈï½Ã

µî±â¼Ò ¼ö¿øÁö¹æ¹ý¿ø ¾È»êÁö¿ø µî±â°ú (´ëÇ¥:1544-0773, ÆÑ½º:(031)481-1290~1292, °æ±âµµ ¾È»ê½Ã ´Ü¿ø±¸ ±¤´ö¼­·Î 75 (°íÀܵ¿ 711))
¼¼¹«¼­ ¾È»ê¼¼¹«¼­ (´ëÇ¥:031-412-32, ÆÑ½º:031-412-3268, °æ±âµµ ¾È»ê½Ã ´Ü¿ø±¸ È­¶û·Î 350 (°íÀܵ¿ 517))

Àαٳ«ÂûÅë°è

±â°£ ¸Å°¢°Ç¼ö Æò±Õ°¨Á¤°¡
Æò±Õ¸Å°¢°¡
¸Å°¢°¡À²
Æò±ÕÀ¯Âû¼ö
3°³¿ù 11°Ç 172,909,091¿ø
111,179,438¿ø
61%
3.3ȸ
6°³¿ù 28°Ç 165,778,571¿ø
119,959,990¿ø
71%
3ȸ
12°³¿ù 51°Ç 194,329,412¿ø
135,751,701¿ø
71%
2.3ȸ


º» °æ¸ÅÁ¤º¸´Â ¹ý¿øÀÚ·á¿Í ÀÏÄ¡Çϵµ·Ï ÇÏ¿´À¸³ª ±Ç¸®»çÇ׺¯µ¿, ÀÔ·ÂÂø¿À µîÀÇ ¿øÀÎÀ¸·Î »ç½Ç°ú ´Ù¸¦ ¼ö ÀÖ½À´Ï´Ù. ÀÌ¿ë¾à°ü¿¡ ÀǰЏéÃ¥Á¶°ÇÀ¸·Î Á¦°øµÊÀ» ¾Ë¸®¸ç, °æ¸ÅÀÔÂû½Ã ¹Ýµå½Ã °ü·Ã °øºÎ¸¦ ÀçÈ®ÀÎÇϽñ⠹ٶø´Ï´Ù. º¸´Ù Æí¸®ÇÑ °æ¸ÅÁ¤º¸ Á¦°øÀ» À§ÇØ Áö¼ÓÀûÀ¸·Î °³¼±ÇϰڽÀ´Ï´Ù. ÀÌ¿ëÇØ Áּż­ °¨»çÇÕ´Ï´Ù.