·Î±×ÀÎ
76
¾ÆÆÄÆ®
ÀÎõÁö¹æ¹ý¿ø ºÎõÁö¿ø
 °¨Á¤°¡507,000,000 ¿ø
 ÃÖÀú°¡(70%) 354,900,000 ¿ø
 º¸Áõ±Ý(10%) 35,490,000 ¿ø
 Ã»±¸¾×301,864,339 ¿ø
°æ±âµµ ºÎõ½Ã ¿ø¹Ì±¸ µµ´çµ¿ 51-3 º£³×½ºÆ®·ÎÁî 8Ãþ 803È£
»ç°Ç¹øÈ£ 2025Ÿ°æ3017
°æ¸ÅÁ¾·ùºÎµ¿»êÀÓÀǰæ¸Å
¸Å°¢´ë»óÅäÁö ¹× °Ç¹°Àϰý ¸Å°¢
¸Å°¢±âÀÏ    2026.05.14(¸ñ) 10:00 ÀÔÂû 34ÀÏÀü    
ÅäÁö¸éÀû40.55§³(12.27 Æò)
°Ç¹°¸éÀû84.02§³(25.42 Æò)
乫/¼ÒÀ¯ÀÚÆÙOOOO / ¹ÚO¿Ü 1¸í
ä±ÇÀÚ°æOOOOOOOOOO(OOOOOOOOOOOOOOO)
ÆäÀ̽ººÏ Æ®À§ÅÍ ±¸±Û+
īī¿À½ºÅ丮
īī¿ÀÅå sms¹®ÀÚº¸³»±â
 

±âÀϳ»¿ª

°æ°ú ³¯Â¥ Àú°¨ ÃÖÀú°¡ °á°ú
Á¢¼öÀÏ 2025-07-30 °æ¸ÅÁ¢¼ö
~1ÀÏ 
2025-07-31 °æ¸Å°³½Ã°áÁ¤
~82ÀÏ 
2025-10-20 ¹è´ç¿ä±¸Á¾±âÀÏ
~251ÀÏ 
2026-04-07 100%
507,000,000
À¯Âû
~288ÀÏ 
2026-05-14 70%
354,900,000
ÁøÇà
¹°°Ç¸í¼¼¼­ ÇöȲÁ¶»ç¼­ ¹®°ÇÁ¢¼ö ¼Û´Þ³»¿ª

°¨Á¤Æò°¡ÇöȲ

¸ñ·Ï ÁÖ¼Ò ±¸Á¶/¿ëµµ/´ëÁö±Ç ¸éÀû ºñ°í
´ëÁö±Ç
µµ´çµ¿ 51-3 1277.9ºÐÀÇ 40.55 40.55 §³
(12.27Æò)
°Ç¹°
µµ´çµ¿ 51-3 8Ãþ 803È£ ö±ÙÄÜÅ©¸®Æ®±¸Á¶ 84.02 §³
(25.42Æò)
1) À§Ä¡/Á¦2Á¾ÀϹÝÁÖ°ÅÁö¿ª/ÁÖÂ÷Àå/³ë¼±¹ö½º Á¤·ùÀå/ö±ÙÄÜÅ©¸®Æ®±¸Á¶/µµ½Ã°¡½º ´õº¸±â
°¨Á¤Æò°¡ ¿äÇ×Ç¥
1)À§Ä¡ ¹× ÁÖÀ§È¯°æ
´ë»ó¹°°ÇÀº °æ±âµµ ºÎõ½Ã ¿ø¹Ì±¸ µµ´çµ¿ ¼ÒÀç ""ºÎõºÏ°íµîÇб³"" ³²Ãø Àαٿ¡ À§Ä¡Çϸç, ºÎ±ÙÀº ´ë»ó¹°°Ç°ú À¯»çÇÑ ÇüÅÂÀÇ ¾ÆÆÄÆ® ¹× ¿¬¸³/´Ù¼¼´ëÁÖÅÃ, ´Üµ¶ÁÖÅÃ, ¼Ò±Ô¸ð ±Ù¸°»ýȰ½Ã¼³ µîÀ¸·Î Çü¼ºµÇ¾î ÀÖ´Â ÁÖÅà ¹× »ó°¡È¥¿ëÁö´ë·Î¼­ Á¦¹Ý ÁÖÀ§È¯°æÀº º¸Åë ¼öÁØÀÔ´Ï´Ù.
2)±³Åë»óȲ
´ë»ó¹°°Ç±îÁö Â÷·® ÃâÀÔ °¡´ÉÇϸç, Àαٿ¡ ³ë¼±¹ö½º Á¤·ùÀåÀÌ ¼ÒÀçÇÏ¿© Àü¹ÝÀûÀÎ ´ëÁß±³Åë ¿©°ÇÀº ¹«³­ÇÑ ÆíÀÔ´Ï´Ù.
3)°Ç¹°ÀÇ ±¸Á¶
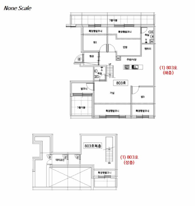
2021.05.14 »ç¿ë½ÂÀÎµÈ Ã¶±ÙÄÜÅ©¸®Æ®±¸Á¶ ö±ÙÄÜÅ©¸®Æ®ÁöºØ ÁöÇÏ1Ãþ/Áö»ó9Ãþ °Ç¹°³» Á¦8Ãþ Á¦803È£·Î¼­,
- ¿Ü º® : Ä¡Àå¼®Àç ºÙÀÓ ¸¶°¨ µî
- ³» º® : º®Áö ¹× ÀϺΠŸÀÏ ¸¶°¨ µî
- â È£ : ÇÏÀÌ»þ½Ã µîÀ¸·Î ½Ã°øµÇ¾ú½À´Ï´Ù.
4)ÀÌ¿ë»óÅÂ
º¹Ãþ(8Ãþ-ÇÏÃþ ¹× 9Ãþ-»óÃþ)ÀÇ °øµ¿ÁÖÅÃ(¾ÆÆÄÆ®)À¸·Î ÀÌ¿ëÁßÀÔ´Ï´Ù.
5)¼³ºñ³»¿ª
±âº»ÀûÀÎ À§»ý ¹× ±Þ¹è¼ö¼³ºñ, Ãþº° ¼ÒÈ­Àü¼³ºñ, ½Â°­±â¼³ºñ, µµ½Ã°¡½º¼³ºñ µîÀÌ µÇ¾î ÀÖÀ¸¸ç, Áö»ó1Ãþ(ÇÊ·ÎÆ¼) ¹× ÁöÇÏ(B1)¿¡ ÁÖÂ÷ÀåÀÌ ÀÖ½À´Ï´Ù.
6)ÅäÁöÀÇ Çü»ó ¹× ÀÌ¿ë»óÅÂ
ÀÎÁ¢Áö ¹× ÀÎÁ¢µµ·Î¿Í ´ëü·Î µî°íÆòźÇÑ ¼¼·ÎÀ广ÇüÀÇ ÅäÁö·Î¼­, °øµ¿ÁÖÅÃ(¾ÆÆÄÆ®) ¹× ±Ù¸°»ýȰ½Ã¼³ °ÇºÎÁö·Î ÀÌ¿ëÁßÀÔ´Ï´Ù.
7)ÀÎÁ¢ µµ·Î»óŵî
µ¿Ãø ¹× ºÏÃøÀ¸·Î °¢°¢ ³ëÆø ¾à 18¹ÌÅÍ ¹× 8¹ÌÅÍÀÇ Æ÷Àåµµ·Î¿Í Á¢Çϰí ÀÖ½À´Ï´Ù.
8)ÅäÁöÀÌ¿ë°èȹ ¹× Á¦ÇÑ»óÅÂ
Á¦2Á¾ÀϹÝÁÖ°ÅÁö¿ª, ¼Ò·Î2·ù(Æø 8m~10m)(Á¢ÇÕ), Áß·Î1·ù(Æø 20m~25m)(Á¢ÇÕ), °¡Ãà»çÀ°Á¦Çѱ¸¿ª(ÀüºÎÁ¦Çѱ¸¿ª)<°¡ÃàºÐ´¢ÀÇ °ü¸® ¹× À̿뿡 °üÇÑ ¹ý·ü>, Ç×°øÇ¥¸é<°øÇ׽ü³¹ý>, »ó´ëº¸È£±¸¿ª(µµ´ç°í-±³À°Ã»¹®ÀÇ)<±³À°È¯°æ º¸È£¿¡ °üÇÑ ¹ý·ü>, »ó´ëº¸È£±¸¿ª(µµ´çÁß-±³À°Ã»¹®ÀÇ)<±³À°È¯°æ º¸È£¿¡ °üÇÑ ¹ý·ü>, »ó´ëº¸È£±¸¿ª(ºÎõºÏ°í-ºÎõ±³À°Áö¿øÃ»¹®ÀÇ)<±³À°È¯°æ º¸È£¿¡ °üÇÑ ¹ý·ü>, »ó´ëº¸È£±¸¿ª(¼º°¡Á¤À¯Ä¡¿ø-ºÎõ±³À°Áö¿øÃ»¹®ÀÇ)<±³À°È¯°æ º¸È£¿¡ °üÇÑ ¹ý·ü>, °ú¹Ð¾ïÁ¦±Ç¿ª<¼öµµ±ÇÁ¤ºñ°èȹ¹ý>, ÁßÁ¡°æ°ü°ü¸®±¸¿ªÀÔ´Ï´Ù.
9)°øºÎ¿ÍÀÇ Â÷ÀÌ
ÇØ´ç»çÇ× ¾ø½À´Ï´Ù.
10)±âŸÂü°í»çÇ×(ÀÓ´ë°ü·Ê ¹× ±âŸ)
°¡. ÀÓ´ë°ü°è : ¹Ì»óÀÔ´Ï´Ù.
³ª. ±âŸ Âü°í»çÇ× : ÇØ´ç»çÇ× ¾ø½À´Ï´Ù.
Âü°í
»çÇ×
º¹Ãþ±¸Á¶

°ÇÃ๰ÇöȲ

¼ÒÀçÁö °æ±âµµ ºÎõ½Ã ¿ø¹Ì±¸ µµ´çµ¿ 51-3¹øÁö
´ëÁö¸éÀû 1277.9§³
(387.24Æò)
¿¬¸éÀû 3776.29§³
(1144.33Æò)
°ÇÃà¸éÀû 682.21§³
(206.73Æò)
¿ëÀû·ü»êÁ¤
¿¬¸éÀû
2935.49§³
(889.54Æò)
°ÇÆóÀ² 53.39% ¿ëÀû·ü 229.71%
Áö»óÃþ¼ö 9Ãþ ÁöÇÏÃþ¼ö 1Ãþ
ÁÖ¿ëµµ °øµ¿ÁÖÅà ±¸Á¶ ö±ÙÄÜÅ©¸®Æ®±¸Á¶
Âø°øÀÏÀÚ 2020.07.06 »ç¿ë½ÂÀÎÀÏÀÚ 2021.05.14
°ÇÃ๰Ãþº°ÇöȲ [º¸±â]


µî±âºÎµîº» ¿ä¾à(°Ç¹°)

  Á¢¼öÀÏÀÚ µî±â¸ñÀû/±Ç¸®ÀÚ ±Ç¸®±Ý¾× ±âÁØ
1 2021³â8¿ù11ÀÏ
¼ÒÀ¯±Ç
ÆÙOOOO
¼Ò¸ê
2 2021³â6¿ù11ÀÏ
¼ÒÀ¯±Ç
¹ÚO
¼Ò¸ê
3 2021³â6¿ù11ÀÏ
±ÙÀú´ç±Ç
¿ËOOOO
416,000,000 ¼Ò¸ê±âÁØ
4 2024³â7¿ù29ÀÏ
°¡¾Ð·ù
´ëOOO
3,414,216,660 ¼Ò¸ê
5 2025³â7¿ù31ÀÏ
ÀÓÀǰæ¸Å
°æOOOO
¼Ò¸ê

ÀÓÂ÷ÀÎÇöȲ (¹è´ç¿ä±¸Á¾±âÀÏ: 2025-10-20)


Á¶»çµÈ ÀÓÂ÷³»¿ªÀÌ ¾ø½À´Ï´Ù


¿©ÀÇÁÖ°æ¸Å Á¶¾ð ÇÑ ¸¶µð


ÁÖÀÇ»çÇ× (ÃÖ¼±¼øÀ§ ¼³Á¤ÀÏ: 2021.06.11. ±ÙÀú´ç±Ç ¼³Á¤)

¸Å°¢À¸·Î ¼Ò¸êµÇÁö ¾Ê´Â µî±âºÎ±Ç¸®:
¸Å°¢À¸·Î ¼³Á¤µÈ °ÍÀ¸·Î º¸´Â Áö»ó±Ç:
º»°Ç ÁýÇհǹ°Àº º¹Ãþ±¸Á¶ÀÓ.
¡Ø¹Ì³³°ü¸®ºñ(°ø¿ë) Àμö¿©ºÎ¸¦ ÀÔÂû Àü¿¡ È®ÀÎÇϽñ⠹ٶø´Ï´Ù

 

Áö¿ªºÐ¼®

ÁöÇÏö¸í Á÷¼±°Å¸®

Çб³¸í ÀüÈ­¹øÈ£ ÁÖ¼Ò Á÷¼±°Å¸®

¹ý¿ø

ÀÎõÁö¹æ¹ý¿ø ºÎõÁö¿ø (146-02)°æ±âµµ ºÎõ½Ã ¿ø¹Ì±¸ »óÀÏ·Î 129(»óµ¿)
´ëÇ¥ : 032)320-1114, ¹Î¿ø : 032)320-1234
°üÇÒÁö¿ª : ºÎõ½Ã, ±èÆ÷½Ã

µî±â¼Ò ÀÎõÁö¹æ¹ý¿ø ºÎõÁö¿ø µî±â°ú (´ëÇ¥:1544-0773, ÆÑ½º:(032)320-1484, 320-1485, °æ±âµµ ºÎõ½Ã »óÀÏ·Î 129 (»óµ¿ 445-1))
¼¼¹«¼­ ¼¼¹«¼­ (´ëÇ¥:, ÆÑ½º:, )

Àαٳ«ÂûÅë°è

±â°£ ¸Å°¢°Ç¼ö Æò±Õ°¨Á¤°¡
Æò±Õ¸Å°¢°¡
¸Å°¢°¡À²
Æò±ÕÀ¯Âû¼ö
3°³¿ù 27°Ç 480,370,741¿ø
392,441,346¿ø
80%
1.7ȸ
6°³¿ù 51°Ç 529,039,412¿ø
445,101,723¿ø
82%
1.5ȸ
12°³¿ù 73°Ç 512,849,452¿ø
427,893,079¿ø
82%
1.5ȸ


º» °æ¸ÅÁ¤º¸´Â ¹ý¿øÀÚ·á¿Í ÀÏÄ¡Çϵµ·Ï ÇÏ¿´À¸³ª ±Ç¸®»çÇ׺¯µ¿, ÀÔ·ÂÂø¿À µîÀÇ ¿øÀÎÀ¸·Î »ç½Ç°ú ´Ù¸¦ ¼ö ÀÖ½À´Ï´Ù. ÀÌ¿ë¾à°ü¿¡ ÀǰЏéÃ¥Á¶°ÇÀ¸·Î Á¦°øµÊÀ» ¾Ë¸®¸ç, °æ¸ÅÀÔÂû½Ã ¹Ýµå½Ã °ü·Ã °øºÎ¸¦ ÀçÈ®ÀÎÇϽñ⠹ٶø´Ï´Ù. º¸´Ù Æí¸®ÇÑ °æ¸ÅÁ¤º¸ Á¦°øÀ» À§ÇØ Áö¼ÓÀûÀ¸·Î °³¼±ÇϰڽÀ´Ï´Ù. ÀÌ¿ëÇØ Áּż­ °¨»çÇÕ´Ï´Ù.