·Î±×ÀÎ
95
´Ù¼¼´ë(ºô¶ó)
ÀÇÁ¤ºÎÁö¹æ¹ý¿ø °í¾çÁö¿ø
 °¨Á¤°¡210,000,000 ¿ø
 ÃÖÀú°¡(70%) 147,000,000 ¿ø
 º¸Áõ±Ý(10%) 14,700,000 ¿ø
 Ã»±¸¾×226,069,569 ¿ø
°æ±âµµ °í¾ç½Ã Àϻ꼭±¸ ´öÀ̵¿ 766-7 ¿¹Áö½½ 2µ¿ 4Ãþ401È£
»ç°Ç¹øÈ£ 2025Ÿ°æ64862
°æ¸ÅÁ¾·ùºÎµ¿»ê°­Á¦°æ¸Å
¸Å°¢´ë»óÅäÁö ¹× °Ç¹°Àϰý ¸Å°¢
¸Å°¢±âÀÏ    2026.05.12(È­) 10:00 ÀÔÂû 30ÀÏÀü    
ÅäÁö¸éÀû67.56§³(20.44 Æò)
°Ç¹°¸éÀû55.97§³(16.93 Æò)
乫/¼ÒÀ¯ÀÚÃÖOO / ÃÖOO
ä±ÇÀÚÁÖOOOOOOO
ÆäÀ̽ººÏ Æ®À§ÅÍ ±¸±Û+
īī¿À½ºÅ丮
īī¿ÀÅå sms¹®ÀÚº¸³»±â
 

±âÀϳ»¿ª

°æ°ú ³¯Â¥ Àú°¨ ÃÖÀú°¡ °á°ú
Á¢¼öÀÏ 2025-11-21 °æ¸ÅÁ¢¼ö
~3ÀÏ 
2025-11-24 °æ¸Å°³½Ã°áÁ¤
~95ÀÏ 
2026-02-24 ¹è´ç¿ä±¸Á¾±âÀÏ
~137ÀÏ 
2026-04-07 100%
210,000,000
À¯Âû
~172ÀÏ 
2026-05-12 70%
147,000,000
ÁøÇà
¹°°Ç¸í¼¼¼­ ÇöȲÁ¶»ç¼­ ¹®°ÇÁ¢¼ö ¼Û´Þ³»¿ª

°¨Á¤Æò°¡ÇöȲ

¸ñ·Ï ÁÖ¼Ò ±¸Á¶/¿ëµµ/´ëÁö±Ç ¸éÀû ºñ°í
´ëÁö±Ç
´öÀ̵¿ 766-7 1097ºÐÀÇ 67.559 67.559 §³
(20.44Æò)
°Ç¹°
´öÀ̵¿ 766-7 2µ¿ 4Ãþ401È£ ö±ÙÄÜÅ©¸®Æ®±¸Á¶ 55.974 §³
(16.93Æò)
1) À§Ä¡/µµ½ÃÁö¿ª/°èȹ°ü¸®Áö¿ª/ÅäÁö°Å·¡°è¾à¿¡°üÇÑÇã°¡±¸¿ª/³ë¼±¹ö½º Á¤·ùÀå/ö±ÙÄÜÅ©¸®Æ®±¸Á¶/°³º°³­¹æ ´õº¸±â
°¨Á¤Æò°¡ ¿äÇ×Ç¥
1)À§Ä¡ ¹× ÁÖÀ§È¯°æ
º»°ÇÀº °æ±âµµ °í¾ç½Ã Àϻ꼭±¸ ´öÀ̵¿ ¼ÒÀç "°í¾ç¿¹¼ú°íµîÇб³" ºÏÃø Àαٿ¡ À§Ä¡ÇÏ´Â ±¸ºÐ°Ç¹°·Î¼­, ÁÖÀ§´Â ¾ÆÆÄÆ®´ÜÁö, ´Ù¼¼´ëÁÖÅÃ, ±Ù¸°»ýȰ½Ã¼³, ³ó°æÁö µîÀÌ È¥ÀçÇÏ´Â Áö¿ªÀÔ´Ï´Ù.
2)±³Åë»óȲ
º»°Ç±îÁö Â÷·®ÁøÃâÀÔÀÌ °¡´ÉÇϰí, Àαٿ¡ ³ë¼±¹ö½º Á¤·ùÀåÀÌ ¼ÒÀçÇÕ´Ï´Ù.
3)°Ç¹°ÀÇ ±¸Á¶
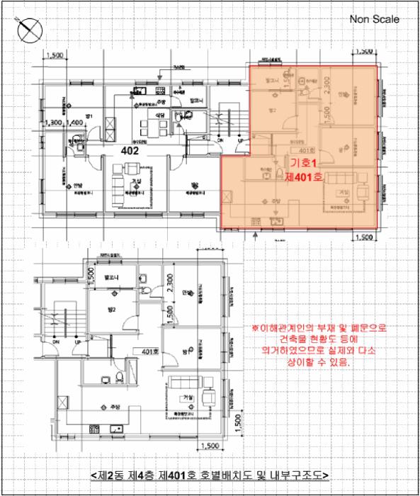
ö±ÙÄÜÅ©¸®Æ®±¸Á¶ ±âŸÁöºØ Áö»ó4Ãþ °Ç¹° ³» Á¦4Ãþ Á¦401È£·Î¼­, (»ç¿ë½ÂÀÎÀÏ : 2018.07.20.) - ¿Üº® : ¸ôÅ»À§ ÆäÀÎÆÃ ¹× ¼®Àç ºÙÀÓ ¸¶°¨ µî, - ³»º® : ¸ôÅ»À§ ÆäÀÎÆÃ ¸¶°¨ µî, - âȣ : ÇÏÀÌ»õ½Ã µî ÀÔ´Ï´Ù.
4)ÀÌ¿ë»óÅÂ
°øµ¿ÁÖÅÃ(´Ù¼¼´ëÁÖÅÃ)À¸·Î ÀÌ¿ëÁßÀÔ´Ï´Ù.
5)¼³ºñ³»¿ª
À§»ý¼³ºñ ¹× ±Þ¡¤¹è¼ö½Ã¼³, °³º°³­¹æ¼³ºñ µîÀ» °®Ãß°í ÀÖ½À´Ï´Ù.
6)ÅäÁöÀÇ Çü»ó ¹× ÀÌ¿ë»óÅÂ
ÀÎÁ¢Áö´ëºñ µî°íÆòźÇÑ ºÎÁ¤ÇüÀÇ ÅäÁö·Î¼­, ´Ù¼¼´ëÁÖÅà °ÇºÎÁö·Î ÀÌ¿ëÁßÀÔ´Ï´Ù.
7)ÀÎÁ¢ µµ·Î»óŵî
º»°Ç ³²¼­ÃøÀ¸·Î ¿Õº¹ 2Â÷¼± Æ÷Àåµµ·Î¿Í Á¢ÇÕ´Ï´Ù.
8)ÅäÁöÀÌ¿ë°èȹ ¹× Á¦ÇÑ»óÅÂ
°èȹ°ü¸®Áö¿ª, ¼ºÀå°ü¸®°èȹ±¸¿ª(ÁÖ°Åzone), °¡Ãà»çÀ°Á¦Çѱ¸¿ª(2024-11-12)(ÀϺÎÁ¦Çѱ¸¿ª [ÀüºÎÁ¦Çѱ¸¿ªÀ¸·ÎºÎÅÍ Á¦ÇѰŸ® 500m (¼Ò,Á¥¼Ò,¸» Á¦ÇÑ)])<°¡ÃàºÐ´¢ÀÇ °ü¸® ¹× À̿뿡 °üÇÑ ¹ý·ü>, °¡Ãà»çÀ°Á¦Çѱ¸¿ª(2024-11-12)(ÀüºÎÁ¦Çѱ¸¿ª [µµ½ÃÁö¿ª{ÁÖ°Å,»ó¾÷,°ø¾÷,³ìÁö(ÀÚ¿¬Ãë¶ôÁö±¸)}¹×ÁְŹÐÁýÁö¿ª])<°¡ÃàºÐ´¢ÀÇ °ü¸® ¹× À̿뿡 °üÇÑ ¹ý·ü>, »ó´ëº¸È£±¸¿ª<±³À°È¯°æ º¸È£¿¡ °üÇÑ ¹ý·ü>, »ó´ëº¸È£±¸¿ª(2013-08-23)(¿¹Áö½½À¯Ä¡¿ø)<±³À°È¯°æ º¸È£¿¡ °üÇÑ ¹ý·ü>, °ú¹Ð¾ïÁ¦±Ç¿ª<¼öµµ±ÇÁ¤ºñ°èȹ¹ý>, ÅäÁö°Å·¡°è¾à¿¡°üÇÑÇã°¡±¸¿ª(2025-08-26)(¿Ü±¹Àεî´ë»ó,´ë»ó¿ëµµ(´Üµ¶,´Ù°¡±¸,¿¬¸³,´Ù¼¼´ëÁÖÅÃ,¾ÆÆÄÆ®)·Î»ç¿ëµÇ´ÂÅäÁö).
9)°øºÎ¿ÍÀÇ Â÷ÀÌ
ÇØ´ç»çÇ× ¾ø½À´Ï´Ù.
10)±âŸÂü°í»çÇ×(ÀÓ´ë°ü·Ê ¹× ±âŸ)
- ÀÓ´ë°ü°è µî ¹Ì»óÀÔ´Ï´Ù. - º»°Ç ÇöÀåÁ¶»ç½Ã Æó¹®ºÎÀçÇÏ¿© ±Í Á¦½Ã¸ñ·Ï ¹× °øºÎ µîÀ» ÅëÇØ¼­ ´ë»ó ¹°°ÇÀ» È®ÀÎÇÏ¿´À¸´Ï °æ¸ÅÀÔÂû½Ã Âü°í¹Ù¶ø´Ï´Ù.
Âü°í
»çÇ×

-ö±ÙÄÜÅ©¸®Æ®±¸Á¶ ±âŸÁöºØ 4Ãþ °øµ¿ÁÖÅÃ

°ÇÃ๰ÇöȲ

¼ÒÀçÁö °æ±âµµ °í¾ç½Ã Àϻ꼭±¸ ´öÀ̵¿ 766-7¹øÁö
´ëÁö¸éÀû 1097§³
(332.42Æò)
¿¬¸éÀû 582.38§³
(176.48Æò)
°ÇÃà¸éÀû 195.53§³
(59.25Æò)
¿ëÀû·ü»êÁ¤
¿¬¸éÀû
582.38§³
(176.48Æò)
°ÇÆóÀ² 17.82% ¿ëÀû·ü 53.09%
Áö»óÃþ¼ö 4Ãþ ÁöÇÏÃþ¼ö  
ÁÖ¿ëµµ °øµ¿ÁÖÅà ±¸Á¶ ö±ÙÄÜÅ©¸®Æ®±¸Á¶
Âø°øÀÏÀÚ 2017.10.27 »ç¿ë½ÂÀÎÀÏÀÚ 2018.07.20
°ÇÃ๰Ãþº°ÇöȲ [º¸±â]


µî±âºÎµîº» ¿ä¾à(°Ç¹°)

  Á¢¼öÀÏÀÚ µî±â¸ñÀû/±Ç¸®ÀÚ ±Ç¸®±Ý¾× ±âÁØ
1 2020³â3¿ù3ÀÏ
¼ÒÀ¯±Ç
ÃÖOO
¼Ò¸ê
2 2022³â2¿ù14ÀÏ
¾Ð·ù
±¹
¼Ò¸ê±âÁØ
3 2022³â4¿ù6ÀÏ
°¡¾Ð·ù
ÁÖOOOO
4,069,000,000 ¼Ò¸ê
4 2022³â12¿ù22ÀÏ
¾Ð·ù
¼­OOOO
¼Ò¸ê
5 2023³â12¿ù13ÀÏ
¾Ð·ù
°íOO
¼Ò¸ê
6 2024³â2¿ù5ÀÏ
ÀÓÂ÷±Ç¼³Á¤
ÀÓOO
197,000,000 ¼Ò¸ê
7 2025³â2¿ù19ÀÏ
¾Ð·ù
±¹OOOO
¼Ò¸ê
8 2025³â9¿ù11ÀÏ
¾Ð·ù
¼­OOOO
¼Ò¸ê
9 2025³â11¿ù24ÀÏ
°­Á¦°æ¸Å
ÁÖOOOO
¼Ò¸ê
10 2025³â12¿ù29ÀÏ
¾Ð·ù
±èOO
¼Ò¸ê
11 2026³â2¿ù26ÀÏ
¾Ð·ù
¾çOO
¼Ò¸ê

ÀÓÂ÷ÀÎÇöȲ (¹è´ç¿ä±¸Á¾±âÀÏ: 2026-02-24)

ÀÓÂ÷ÀÎ ¿ëµµ/Á¡À¯ º¸Áõ±Ý/¿ù¼¼ ´ëÇ×·Â
ÀüÀÔÀÏ/È®Á¤ÀÏ ¹è´ç¿ä±¸ ºñ°í
ÀÓOO ÀüºÎ 197,000,000
O
2020.2.10.
2020.1.15.
2026.2.19. 2020.2.10.~
ºñ°í
(¸Å°¢¹°°Ç
¸í¼¼¼­)
ÁÖÅõµ½Ãº¸Áõ°ø»ç´Â ÀÓÂ÷º¸Áõ±Ý Àü¾×¿¡ ´ëÇÏ¿© ÀÓÂ÷±ÇÀÚ ÀÓÇö¼÷ÀÇ ±Ç¸®¸¦ ½Â°èÇÑ °æ¸Å½Åûä±ÇÀÚÀÓ.

¿©ÀÇÁÖ°æ¸Å Á¶¾ð ÇÑ ¸¶µð

¼±¼øÀ§ ÀÓÂ÷±Çµî±â°¡ µÇ¾î ÀÖ½À´Ï´Ù
´ëÇ×·ÂÀÌ ÀÖ´Â ¼±¼øÀ§ ÀÓÂ÷±Çµî±â ±Ç¸®ÀÚ°¡ ¹è´çÀ» Àü¾× ¹ÞÁö ¸øÇÒ °æ¿ì ³«ÂûÀÚ°¡ ÀÜ¿© º¸Áõ±ÝÀ» ÀμöÇØ¾ßÇÏ´Â °æ¿ìµµ ÀÖ½À´Ï´Ù.

ÁÖÀÇ»çÇ× (ÃÖ¼±¼øÀ§ ¼³Á¤ÀÏ: 2022.2.14.¾Ð·ù ¼³Á¤)

¸Å°¢À¸·Î ¼Ò¸êµÇÁö ¾Ê´Â µî±âºÎ±Ç¸®: ¸Å¼öÀο¡°Ô ´ëÇ×ÇÒ ¼ö ÀÖ´Â À»±¸ 3¹ø ÁÖÅÃÀÓÂ÷±Çµî±â[ÀÓ´ëÂ÷º¸Áõ±Ý (1Â÷)197,000,000¿ø, (2Â÷)197,000,000¿ø, ÀüÀÔÀÏÀÚ 2020³â2¿ù10ÀÏ, È®Á¤ÀÏÀÚ (1Â÷)2020³â1¿ù15ÀÏ, (2Â÷)¾øÀ½]°¡ ÀÖÀ¸¹Ç·Î ¹è´ç¿¡¼­ Àü¾× º¯Á¦µÇÁö ¾Æ´ÏÇϸé Àܾ×À» ¸Å¼öÀÎÀÌ ÀμöÇÔ.
¸Å°¢À¸·Î ¼³Á¤µÈ °ÍÀ¸·Î º¸´Â Áö»ó±Ç:
¡Ø¹Ì³³°ü¸®ºñ(°ø¿ë) Àμö¿©ºÎ¸¦ ÀÔÂû Àü¿¡ È®ÀÎÇϽñ⠹ٶø´Ï´Ù

 

Áö¿ªºÐ¼®

ÁöÇÏö¸í Á÷¼±°Å¸®

Çб³¸í ÀüÈ­¹øÈ£ ÁÖ¼Ò Á÷¼±°Å¸®

¹ý¿ø

ÀÇÁ¤ºÎÁö¹æ¹ý¿ø °í¾çÁö¿ø (104-13)°æ±âµµ °í¾ç½Ã Àϻ굿±¸ Àå¹é·Î 209
´ëÇ¥ : 031)920-6114, ¾ß°£ : 031)920-6550, ÆÑ½º : 031)920-6119
°üÇÒÁö¿ª : °í¾ç½Ã, ÆÄÁÖ½Ã

µî±â¼Ò ÀÇÁ¤ºÎÁö¹æ¹ý¿ø °í¾çÁö¿ø °í¾çµî±â¼Ò (´ëÇ¥:1544-0773, ÆÑ½º:(031)920-5959, °æ±âµµ °í¾ç½Ã Àϻ굿±¸ Áß¾Ó·Î1275¹ø±æ 38-30 (ÀåÇ×µ¿ 773))
¼¼¹«¼­ °í¾ç¼¼¹«¼­ (´ëÇ¥:031-900-92, ÆÑ½º:031-907-9177, °æ±âµµ °í¾ç½Ã Àϻ굿±¸ Áß¾Ó·Î1275¹ø±æ 14-43 (ÀåÇ×µ¿) )

Àαٳ«ÂûÅë°è

±â°£ ¸Å°¢°Ç¼ö Æò±Õ°¨Á¤°¡
Æò±Õ¸Å°¢°¡
¸Å°¢°¡À²
Æò±ÕÀ¯Âû¼ö
3°³¿ù 7°Ç 214,571,429¿ø
132,655,857¿ø
62%
2ȸ
6°³¿ù 13°Ç 218,923,077¿ø
139,051,038¿ø
64%
1.9ȸ
12°³¿ù 21°Ç 217,095,238¿ø
141,877,019¿ø
66%
1.8ȸ


º» °æ¸ÅÁ¤º¸´Â ¹ý¿øÀÚ·á¿Í ÀÏÄ¡Çϵµ·Ï ÇÏ¿´À¸³ª ±Ç¸®»çÇ׺¯µ¿, ÀÔ·ÂÂø¿À µîÀÇ ¿øÀÎÀ¸·Î »ç½Ç°ú ´Ù¸¦ ¼ö ÀÖ½À´Ï´Ù. ÀÌ¿ë¾à°ü¿¡ ÀǰЏéÃ¥Á¶°ÇÀ¸·Î Á¦°øµÊÀ» ¾Ë¸®¸ç, °æ¸ÅÀÔÂû½Ã ¹Ýµå½Ã °ü·Ã °øºÎ¸¦ ÀçÈ®ÀÎÇϽñ⠹ٶø´Ï´Ù. º¸´Ù Æí¸®ÇÑ °æ¸ÅÁ¤º¸ Á¦°øÀ» À§ÇØ Áö¼ÓÀûÀ¸·Î °³¼±ÇϰڽÀ´Ï´Ù. ÀÌ¿ëÇØ Áּż­ °¨»çÇÕ´Ï´Ù.