·Î±×ÀÎ
99
¾ÆÆÄÆ®
ÀÎõÁö¹æ¹ý¿ø
 °¨Á¤°¡470,000,000 ¿ø
 ÃÖÀú°¡(70%) 329,000,000 ¿ø
 º¸Áõ±Ý(10%) 32,900,000 ¿ø
 Ã»±¸¾×281,263,812 ¿ø
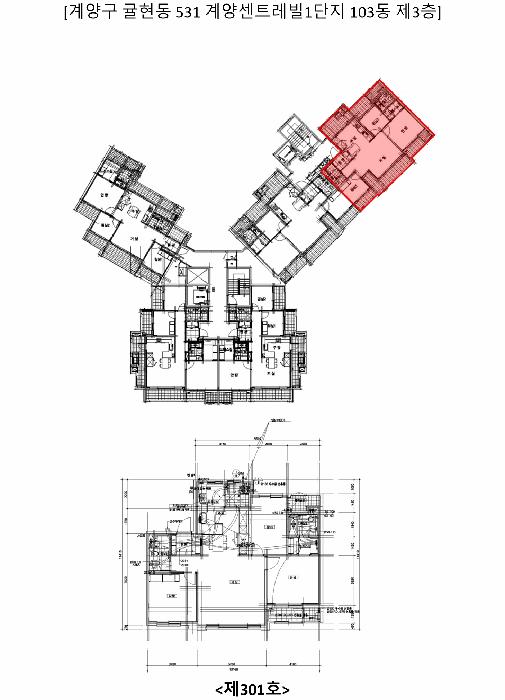
ÀÎõ±¤¿ª½Ã °è¾ç±¸ ±ÖÇöµ¿ 531 °è¾ç¼¾Æ®·¹ºô1´ÜÁö 103µ¿ 3Ãþ301È£
»ç°Ç¹øÈ£ 2025Ÿ°æ509044
°æ¸ÅÁ¾·ùºÎµ¿»êÀÓÀǰæ¸Å
¸Å°¢´ë»óÅäÁö ¹× °Ç¹°Àϰý ¸Å°¢
¸Å°¢±âÀÏ    2026.05.08(±Ý) 10:00 ÀÔÂû 26ÀÏÀü    
ÅäÁö¸éÀû
°Ç¹°¸éÀû84.99§³(25.71 Æò)
乫/¼ÒÀ¯ÀÚ±èOO / ±èOO
ä±ÇÀÚÇÑOOOOOOO
ÆäÀ̽ººÏ Æ®À§ÅÍ ±¸±Û+
īī¿À½ºÅ丮
īī¿ÀÅå sms¹®ÀÚº¸³»±â
 

±âÀϳ»¿ª

°æ°ú ³¯Â¥ Àú°¨ ÃÖÀú°¡ °á°ú
Á¢¼öÀÏ 2025-04-29 °æ¸ÅÁ¢¼ö
~1ÀÏ 
2025-04-30 °æ¸Å°³½Ã°áÁ¤
~90ÀÏ 
2025-07-28 ¹è´ç¿ä±¸Á¾±âÀÏ
~343ÀÏ 
2026-04-07 100%
470,000,000
À¯Âû
~374ÀÏ 
2026-05-08 70%
329,000,000
ÁøÇà
¹°°Ç¸í¼¼¼­ ÇöȲÁ¶»ç¼­ ¹®°ÇÁ¢¼ö ¼Û´Þ³»¿ª

°¨Á¤Æò°¡ÇöȲ

¸ñ·Ï ÁÖ¼Ò ±¸Á¶/¿ëµµ/´ëÁö±Ç ¸éÀû ºñ°í
´ëÁö±Ç
±ÖÇöµ¿ 531 ´ëÁö±Ç ¹Ìµî±â §³
°Ç¹°
±ÖÇöµ¿ 531 103µ¿ 3Ãþ301È£ ö±ÙÄÜÅ©¸®Æ®±¸Á¶ 84.986 §³
(25.71Æò)
1) À§Ä¡/Á¦2Á¾ÀϹÝÁÖ°ÅÁö¿ª/Áö±¸´ÜÀ§°èȹ±¸¿ª/¹ö½ºÁ¤·ùÀå/ÁöÇÏö/Â÷·® Á¢±ÙÀÌ °¡´É/ö±ÙÄÜÅ©¸®Æ®±¸Á¶ ´õº¸±â
°¨Á¤Æò°¡ ¿äÇ×Ç¥
1)À§Ä¡ ¹× ÁÖÀ§È¯°æ
º»°ÇÀº ÀÎõ±¤¿ª½Ã °è¾ç±¸ ±ÖÇöµ¿ ¼ÒÀç¡®ÀÎõ±ÖÇöÃʵîÇб³¡¯µ¿Ãø Àαٿ¡ À§Ä¡Çϸç, ÁÖÀ§´Â ¾ÆÆÄÆ®, ´Ù¼¼´ëÁÖÅÃ, ±Ù¸°»ýȰ½Ã¼³, ¾÷¹«½Ã¼³ µîÀÌ È¥ÀçÇÏ´Â Áö´ëÀÓ.
2)±³Åë»óȲ
º»°Ç±îÁö Â÷·® Á¢±ÙÀÌ °¡´ÉÇϰí Àαٿ¡ ¹ö½ºÁ¤·ùÀå, ±Ù°Å¸®¿¡ ÁöÇÏö¿ª(±ÖÇö¿ª) µîÀÌ ¼ÒÀçÇÏ¿© Á¦¹Ý ´ëÁß±³Åë ¿©°ÇÀº º¸ÅëÀÓ.
3)°Ç¹°ÀÇ ±¸Á¶
ö±ÙÄÜÅ©¸®Æ®±¸Á¶ (ö±Ù)ÄÜÅ©¸®Æ®ÁöºØ Áö»ó15Ãþ °Ç¹° ³» Á¦3Ãþ Á¦301È£·Î¼­,
¿Üº® : ¼®ÀçºÙÀÓ, ¸ôŸ¸£ À§ ÆäÀÎÆÃ µî ¸¶°¨.
âȣ : »þ½Ã âȣ µîÀÓ.
4)ÀÌ¿ë»óÅÂ
¾ÆÆÄÆ®·Î ÀÌ¿ë ÁßÀÓ.
5)¼³ºñ³»¿ª
À§»ý¼³ºñ, ±Þ¹è¼ö¼³ºñ, ³­¹æ¼³ºñ, ½Â°­±â¼³ºñ µîÀ» ±¸ºñÇϰí ÀÖÀ½.
6)ÅäÁöÀÇ Çü»ó ¹× ÀÌ¿ë»óÅÂ
ºÎÁ¤ÇüÀÎ ÅäÁö·Î¼­ ÇöȲ °øµ¿ÁÖÅà °ÇºÎÁö·Î ÀÌ¿ë ÁßÀÓ.
7)ÀÎÁ¢ µµ·Î»óŵî
º»°ÇÀÇ ÃâÀÔÀº ´ÜÁö ³» µµ·Î¸¦ ÀÌ¿ëÇÏ¿© °øµµ¿¡ Á¢ÇÔ.
8)ÅäÁöÀÌ¿ë°èȹ ¹× Á¦ÇÑ»óÅÂ
Á¦2Á¾ÀϹÝÁÖ°ÅÁö¿ª , Áö±¸´ÜÀ§°èȹ±¸¿ª(±ÖÇö(µµ½Ã°³¹ß)
°¡Ãà»çÀ°Á¦Çѱ¸¿ª(ÀüºÎÁ¦ÇÑÁö¿ª)<°¡ÃàºÐ´¢ÀÇ °ü¸® ¹× À̿뿡 °üÇÑ ¹ý·ü>, Àå¾Ö¹°Á¦ÇÑÇ¥¸é±¸¿ª(¼öÆòÇ¥¸é)<°øÇ׽ü³¹ý>, »ó´ëº¸È£±¸¿ª(ÀÎõ¼­ºÎ±³À°Áö¿øÃ»(560-6659))<±³À°È¯°æ º¸È£¿¡ °üÇÑ ¹ý·ü>, µµ½Ã°³¹ß±¸¿ª(±ÖÇö(¹®ÀÇ: °è¾ç±¸Ã» ½º¸¶Æ®µµ½ÃÀç»ý°ú))<µµ½Ã°³¹ß¹ý>, °ú¹Ð¾ïÁ¦±Ç¿ª<¼öµµ±ÇÁ¤ºñ°èȹ¹ý>
ÁßÁ¡°æ°ü°ü¸®±¸¿ª(2040 ÀÎõ±¤¿ª½Ã °æ°ü°èȹ)

9)°øºÎ¿ÍÀÇ Â÷ÀÌ
ÇØ´ç»çÇ× ¾øÀ½.
10)±âŸÂü°í»çÇ×(ÀÓ´ë°ü·Ê ¹× ±âŸ)
ÀÓ´ë°ü°è ¹Ì»óÀÓ.
Âü°í
»çÇ×
-´ëÁö±Ç¹Ìµî±âÀ̳ª ¸Å°¢¸ñÀû¹° ¹× Æò°¡¿¡ Æ÷ÇÔµÊ -ÅäÁö+°Ç¹°¿¡ ´ëÇÑ Ãëµæ¼¼ ³³ºÎµÊ(2025.05.19.ÀÚ ÀÎõ °è¾ç±¸Ã» »ç½ÇÁ¶È¸ ȸ½Å ÂüÁ¶) -ÀüÀ¯ºÎºÐ°ú ´ëÁö»ç¿ë±ÇÀ» ºÐ¸®Ã³ºÐ ÇÒ ¼ö ¾ø´Â ³»¿ëÀÇ ºÐ¾çȸ»ç ±Ô¾à¼­ ÀÖÀ½(2025.05.22.ÀÚ º¸Á¤¼­ ÂüÁ¶) -´ëÁö±Ç Ãëµæ¿©ºÎ¿Í ´ëÁö±Çµî±â´Â ¸Å¼öÀÎÀÇ Ã¥ÀÓ°ú ºÎ´ãÀ¸·Î ÇÔ
º» °ÇÀº 15

°ÇÃ๰ÇöȲ

¼ÒÀçÁö ÀÎõ±¤¿ª½Ã °è¾ç±¸ ±ÖÇöµ¿ 531¹øÁö
´ëÁö¸éÀû   ¿¬¸éÀû 17.6846§³
(5.36Æò)
°ÇÃà¸éÀû 19.7617§³
(5.99Æò)
¿ëÀû·ü»êÁ¤
¿¬¸éÀû
17.6846§³
(5.36Æò)
°ÇÆóÀ²   ¿ëÀû·ü  
Áö»óÃþ¼ö 1Ãþ ÁöÇÏÃþ¼ö  
ÁÖ¿ëµµ °øµ¿ÁÖÅà ±¸Á¶ ö±ÙÄÜÅ©¸®Æ®±¸Á¶
Âø°øÀÏÀÚ 2010.11.05 »ç¿ë½ÂÀÎÀÏÀÚ 2013.02.15
°ÇÃ๰Ãþº°ÇöȲ [º¸±â]


µî±âºÎµîº» ¿ä¾à(°Ç¹°)

  Á¢¼öÀÏÀÚ µî±â¸ñÀû/±Ç¸®ÀÚ ±Ç¸®±Ý¾× ±âÁØ
1 2020³â10¿ù22ÀÏ
¼ÒÀ¯±Ç
±èOO
¼Ò¸ê
2 2020³â10¿ù22ÀÏ
±ÙÀú´ç±Ç
ÇÑOOOO
308,000,000 ¼Ò¸ê±âÁØ
3 2021³â12¿ù13ÀÏ
±ÙÀú´ç±Ç
ÇÑOOOO
295,100,000 ¼Ò¸ê
4 2025³â5¿ù1ÀÏ
ÀÓÀǰæ¸Å
ÇÑOOOO
¼Ò¸ê
5 2025³â8¿ù19ÀÏ
¾Ð·ù
°èOO
¼Ò¸ê

ÀÓÂ÷ÀÎÇöȲ (¹è´ç¿ä±¸Á¾±âÀÏ: 2025-07-28)


Á¶»çµÈ ÀÓÂ÷³»¿ªÀÌ ¾ø½À´Ï´Ù


¿©ÀÇÁÖ°æ¸Å Á¶¾ð ÇÑ ¸¶µð

´ëÁö±ÇÀÌ ¹Ìµî±âµÈ ¹°°ÇÀÔ´Ï´Ù
ÁýÇհǹ°¿¡´Â ÅäÁöÁöºÐ¿¡ µû¶ó ´ëÁö±ÇÀÌ µî±âµÇ´Âµ¥, ±× ´ëÁö±Ç µî±â°¡ ¾ø´Â °æ¿ìÀÔ´Ï´Ù. ºÐ¾ç´ë±ÝÀ» ¸ðµÎ ³³ºÎÇÏ¿´À¸³ª µî±â¸¦ ¹Ì·ç°í ÀÖ´ø °æ¿ì¿Í ÅäÁö°øºÎ Á¤¸®°¡ ¾È µÇ¼­ ¸øÇÑ °æ¿ì´Â ³«ÂûÀÚ°¡ ´ëÁö±Çµî±â¸¦ ÇÒ ¼ö ÀÖ½À´Ï´Ù. ±×·±µ¥ ´ëÁö±ÇÀÌ ¾ø´Â °æ¿ì ¶Ç´Â ºÐ¾ç´ë±Ý ÀܱÝÀ» ³»Áö ¾Ê¾Æ¼­ ºÐ¾çȸ»ç°¡ µ¿½ÃÀÌÇàÇ׺¯±ÇÀ» ÁÖÀåÇÏ´Â °æ¿ì´Â Ãß°¡ ºÎ´ãÀÌ »ý±æ ¼ö ÀÖ½À´Ï´Ù.

ÁÖÀÇ»çÇ× (ÃÖ¼±¼øÀ§ ¼³Á¤ÀÏ: 2020.10.22. ±ÙÀú´ç±Ç ¼³Á¤)

¸Å°¢À¸·Î ¼Ò¸êµÇÁö ¾Ê´Â µî±âºÎ±Ç¸®:
¸Å°¢À¸·Î ¼³Á¤µÈ °ÍÀ¸·Î º¸´Â Áö»ó±Ç:
-´ëÁö±Ç¹Ìµî±âÀ̳ª ¸Å°¢¸ñÀû¹° ¹× Æò°¡¿¡ Æ÷ÇÔµÊ -ÅäÁö+°Ç¹°¿¡ ´ëÇÑ Ãëµæ¼¼ ³³ºÎµÊ(2025.05.19.ÀÚ ÀÎõ °è¾ç±¸Ã» »ç½ÇÁ¶È¸ ȸ½Å ÂüÁ¶) -ÀüÀ¯ºÎºÐ°ú ´ëÁö»ç¿ë±ÇÀ» ºÐ¸® óºÐ ÇÒ ¼ö ¾ø´Â ³»¿ëÀÇ ºÐ¾çȸ»ç ±Ô¾à¼­ ÀÖÀ½(2025.05.22.ÀÚ º¸Á¤¼­ ÂüÁ¶) -´ëÁö±Ç Ãëµæ¿©ºÎ¿Í ´ëÁö±Çµî±â´Â ¸Å¼öÀÎÀÇ Ã¥ÀÓ°ú ºÎ´ãÀ¸·Î ÇÔ
¡Ø¹Ì³³°ü¸®ºñ(°ø¿ë) Àμö¿©ºÎ¸¦ ÀÔÂû Àü¿¡ È®ÀÎÇϽñ⠹ٶø´Ï´Ù

 

Áö¿ªºÐ¼®

ÁöÇÏö¸í Á÷¼±°Å¸®

Çб³¸í ÀüÈ­¹øÈ£ ÁÖ¼Ò Á÷¼±°Å¸®

¹ý¿ø

ÀÎõÁö¹æ¹ý¿ø (222-20)ÀÎõ±¤¿ª½Ã ¹ÌÃßȦ±¸ ¼Ò¼º·Î 163¹ø±æ 17(ÇÐÀ͵¿)
´ëÇ¥ : 032)860-1113~4
°üÇÒÁö¿ª : Áß±¸, µ¿±¸, ³²±¸, ¿¬¼ö±¸, ³²µ¿±¸, ºÎÆò±¸, °è¾ç±¸, ¼­±¸, ¿ËÁø±º, °­È­±º

µî±â¼Ò ÀÎõÁö¹æ¹ý¿ø º»¿ø µî±â±¹ (´ëÇ¥:1544-0773, ÆÑ½º:(032)620-9099, ÀÎõ±¤¿ª½Ã ¹ÌÃßȦ±¸ °æ¿ø´ë·Î 881(Á־ȵ¿ 983))
¼¼¹«¼­ ºÏÀÎõ¼¼¹«¼­ (´ëÇ¥:032-540-62, ÆÑ½º:032-545-0411, ÀÎõ±¤¿ª½Ã °è¾ç±¸ È¿¼­·Î244(ÀÛÀüµ¿ 422-1) )

Àαٳ«ÂûÅë°è

±â°£ ¸Å°¢°Ç¼ö Æò±Õ°¨Á¤°¡
Æò±Õ¸Å°¢°¡
¸Å°¢°¡À²
Æò±ÕÀ¯Âû¼ö
3°³¿ù 15°Ç 265,266,667¿ø
210,292,175¿ø
78%
1.5ȸ
6°³¿ù 41°Ç 259,560,976¿ø
202,898,392¿ø
77%
1.5ȸ
12°³¿ù 86°Ç 279,500,000¿ø
221,910,816¿ø
79%
1.3ȸ


º» °æ¸ÅÁ¤º¸´Â ¹ý¿øÀÚ·á¿Í ÀÏÄ¡Çϵµ·Ï ÇÏ¿´À¸³ª ±Ç¸®»çÇ׺¯µ¿, ÀÔ·ÂÂø¿À µîÀÇ ¿øÀÎÀ¸·Î »ç½Ç°ú ´Ù¸¦ ¼ö ÀÖ½À´Ï´Ù. ÀÌ¿ë¾à°ü¿¡ ÀǰЏéÃ¥Á¶°ÇÀ¸·Î Á¦°øµÊÀ» ¾Ë¸®¸ç, °æ¸ÅÀÔÂû½Ã ¹Ýµå½Ã °ü·Ã °øºÎ¸¦ ÀçÈ®ÀÎÇϽñ⠹ٶø´Ï´Ù. º¸´Ù Æí¸®ÇÑ °æ¸ÅÁ¤º¸ Á¦°øÀ» À§ÇØ Áö¼ÓÀûÀ¸·Î °³¼±ÇϰڽÀ´Ï´Ù. ÀÌ¿ëÇØ Áּż­ °¨»çÇÕ´Ï´Ù.