·Î±×ÀÎ
88
´Ù¼¼´ë(ºô¶ó)
ÀÎõÁö¹æ¹ý¿ø
 °¨Á¤°¡90,000,000 ¿ø
 ÃÖÀú°¡(100%) 90,000,000 ¿ø
 º¸Áõ±Ý(10%) 9,000,000 ¿ø
 Ã»±¸¾×125,000,000 ¿ø
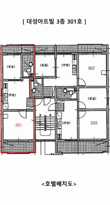
ÀÎõ±¤¿ª½Ã ¼­±¸ ¿¬Èñµ¿ 737-11 ´ë¼º¾ÆÆ®ºô 3Ãþ301È£
»ç°Ç¹øÈ£ 2025Ÿ°æ887
°æ¸ÅÁ¾·ùºÎµ¿»êÀÓÀǰæ¸Å
¸Å°¢´ë»óÅäÁö ¹× °Ç¹°Àϰý ¸Å°¢
¸Å°¢±âÀÏ    2026.04.07(È­) 10:00 (¿À´Ã ÀÔÂû)    
ÅäÁö¸éÀû18.76§³(5.67 Æò)
°Ç¹°¸éÀû38.81§³(11.74 Æò)
乫/¼ÒÀ¯ÀÚ¹ÚOO / ¹ÚOO
ä±ÇÀÚÁöO
ÆäÀ̽ººÏ Æ®À§ÅÍ ±¸±Û+
īī¿À½ºÅ丮
īī¿ÀÅå sms¹®ÀÚº¸³»±â
 

±âÀϳ»¿ª

°æ°ú ³¯Â¥ Àú°¨ ÃÖÀú°¡ °á°ú
Á¢¼öÀÏ 2025-03-14 °æ¸ÅÁ¢¼ö
~48ÀÏ 
2025-05-01 °æ¸Å°³½Ã°áÁ¤
~136ÀÏ 
2025-07-28 ¹è´ç¿ä±¸Á¾±âÀÏ
~389ÀÏ 
2026-04-07 100%
90,000,000
ÁøÇà
¹°°Ç¸í¼¼¼­ ÇöȲÁ¶»ç¼­ ¹®°ÇÁ¢¼ö ¼Û´Þ³»¿ª

°¨Á¤Æò°¡ÇöȲ

¸ñ·Ï ÁÖ¼Ò ±¸Á¶/¿ëµµ/´ëÁö±Ç ¸éÀû ºñ°í
´ëÁö±Ç
¿¬Èñµ¿ 737-11 281.1ºÐÀÇ 18.76 18.76 §³
(5.67Æò)
°Ç¹°
¿¬Èñµ¿ 737-11 3Ãþ301È£ ö±ÙÄÜÅ©¸®Æ®Á¶ 38.81 §³
(11.74Æò)
1) À§Ä¡/Á¦2Á¾ÀϹÝÁÖ°ÅÁö¿ª/Áö±¸´ÜÀ§°èȹ±¸¿ª/¹ö½ºÁ¤·ùÀå/ÁöÇÏö/ö±ÙÄÜÅ©¸®Æ®Á¶/Æò½½·¡ºêÁöºØ ´õº¸±â
°¨Á¤Æò°¡ ¿äÇ×Ç¥
1)À§Ä¡ ¹× ÁÖÀ§È¯°æ
´ë»ó¹°°ÇÀº ÀÎõ±¤¿ª½Ã ¼­±¸ ¿¬Èñµ¿ ¼ÒÀç ""¼­°ùÁßÇб³"" ºÏµ¿Ãø Àαٿ¡ À§Ä¡Çϸç, ºÎ±ÙÀº
¾ÆÆÄÆ®, ´Ù¼¼´ëÁÖÅÃ, ±Ù¸°»ýȰ½Ã¼³ µîÀÌ È¥ÀçÇÏ´Â Áö¿ªÀ¸·Î¼­ Á¦¹Ý ÁÖÀ§È¯°æÀº º¸ÅëÀÓ.
2)±³Åë»óȲ
´ë»ó¹°°Ç±îÁö Â÷·® µîÀÇ Á¢±ÙÀÌ °¡´ÉÇϸç, Àαٿ¡ ¹ö½ºÁ¤·ùÀå ¹× ÁöÇÏö ÀÎõ2È£¼± ""¾Æ
½Ã¾Æµå°æ±âÀ忪"" µîÀÌ ¼ÒÀçÇÏ¿© ´ëÁß±³Åë ÀÌ¿ëÆíÀÍÀº º¸ÅëÀÓ.
3)°Ç¹°ÀÇ ±¸Á¶
ö±ÙÄÜÅ©¸®Æ®Á¶ Æò½½·¡ºêÁöºØ 4Ãþ °Ç¹° ³» 3Ãþ 301È£·Î¼­,
2001³â 05¿ù 11ÀÏ »ç¿ë½ÂÀεǾúÀ¸¸ç,
¿Ü º® : µå¶óÀ̺ñÆ® ¸¶°¨ µî,
³» º® : º®Áöµµ¹è ¹× ÀϺΠŸÀÏ ¸¶°¨ µî,
â È£ : ¼¦½Ãâ µîÀÓ.
4)ÀÌ¿ë»óÅÂ
´ë»ó¹°°ÇÀº ´Ù¼¼´ëÁÖÅÃÀ¸·Î ÀÌ¿ëÁßÀÓ.
(ÈÄ÷ ""³»ºÎ±¸Á¶µµ"" ÂüÁ¶)
5)¼³ºñ³»¿ª
±Þ¡¤¹è¼ö¼³ºñ, À§»ý¼³ºñ, ³­¹æ¼³ºñ µîÀ» °®Ãß¾úÀ½.

6)ÅäÁöÀÇ Çü»ó ¹× ÀÌ¿ë»óÅÂ
´ëü·Î ÀÎÁ¢ÇÊÁö¿Í µî°íÆòźÇÑ Á¤¹æÇüÀÇ ÅäÁö·Î¼­, ´Ù¼¼´ëÁÖÅà °ÇºÎÁö·Î ÀÌ¿ëÁßÀÓ.
7)ÀÎÁ¢ µµ·Î»óŵî
´ë»ó¹°°Ç ºÎÁö ³²ÃøÀ¸·Î ¼¼·ÎÀÇ Æ÷Àåµµ·Î¿Í Á¢Çϸç, µµ·Î»óÅ º¸ÅëÀÓ.
8)ÅäÁöÀÌ¿ë°èȹ ¹× Á¦ÇÑ»óÅÂ
Á¦2Á¾ÀϹÝÁÖ°ÅÁö¿ª, Áö±¸´ÜÀ§°èȹ±¸¿ª(¿¬Èñ1,2±¸È¹Á¤¸®), µµ·Î(Á¢ÇÕ), °¡Ãà»çÀ°Á¦Çѱ¸¿ª
(ÀÎõ±¤¿ª½Ã ¼­±¸Á¶·Ê Á¦1749È£ )<°¡ÃàºÐ´¢ÀÇ °ü¸® ¹× À̿뿡 °üÇÑ ¹ý·ü>, »ó´ëº¸È£±¸¿ª
(2023-12-27)<±³À°È¯°æ º¸È£¿¡ °üÇÑ ¹ý·ü>, »ó´ëº¸È£±¸¿ª(ÀÎõ¼­ºÎ±³À°Ã»Æò»ý±³À°°ú¹®ÀÇ
560-6659)<±³À°È¯°æ º¸È£¿¡ °üÇÑ ¹ý·ü>, °ú¹Ð¾ïÁ¦±Ç¿ª<¼öµµ±ÇÁ¤ºñ°èȹ¹ý>.
9)°øºÎ¿ÍÀÇ Â÷ÀÌ
¾ø À½.
10)±âŸÂü°í»çÇ×(ÀÓ´ë°ü·Ê ¹× ±âŸ)
ÀÓ´ë°ü°è´Â ¹Ì»óÀÓ.
Âü°í
»çÇ×

º»°ÇÀº ºô¶ó ÁÖ°ÅÁö¿ª

°ÇÃ๰ÇöȲ

¼ÒÀçÁö ÀÎõ±¤¿ª½Ã ¼­±¸ ¿¬Èñµ¿ 737-11¹øÁö
´ëÁö¸éÀû 281.1§³
(85.18Æò)
¿¬¸éÀû 650.24§³
(197.04Æò)
°ÇÃà¸éÀû 131.84§³
(39.95Æò)
¿ëÀû·ü»êÁ¤
¿¬¸éÀû
518.4§³
(157.09Æò)
°ÇÆóÀ² 46.9% ¿ëÀû·ü 184.42%
Áö»óÃþ¼ö 4Ãþ ÁöÇÏÃþ¼ö 1Ãþ
ÁÖ¿ëµµ °øµ¿ÁÖÅà ±¸Á¶ ö±ÙÄÜÅ©¸®Æ®±¸Á¶
Âø°øÀÏÀÚ 2000.11.21 »ç¿ë½ÂÀÎÀÏÀÚ 2001.05.11
°ÇÃ๰Ãþº°ÇöȲ [º¸±â]


±¹ÅäºÎ½Ç°Å·¡°¡ ÀÎõ±¤¿ª½Ã ¼­±¸ ¿¬Èñµ¿

¡Ü ¸Å¸Å

¸éÀû(§³), ±Ý¾×(¸¸¿ø)

¡Ü Àü¼¼

¸éÀû(§³), ±Ý¾×(¸¸¿ø)

°è¾àÀϰǹ°¸íĪÃþ¿¬¸éÀûº¸Áõ±Ý¿ù¼¼°ÇÃà
26.03.25À¯¼ººô¶ó435.315,20001994
26.03.25·Ôµ¥±×¸°ºô-137.764,2002000
26.03.24´ëÈÆºô¶ó162.6212,0002009
26.03.23ÀϽźô¶ó(741-39)230.14,9002002
26.03.21¹Ý¼®¾¾Æ¼ºô¸®Áö(685-14)-135.762,8001993
¢Ñ ´õº¸±â

µî±âºÎµîº» ¿ä¾à(°Ç¹°)

  Á¢¼öÀÏÀÚ µî±â¸ñÀû/±Ç¸®ÀÚ ±Ç¸®±Ý¾× ±âÁØ
1 2022³â9¿ù15ÀÏ
¼ÒÀ¯±Ç
¹ÚOO
¼Ò¸ê
2 2022³â9¿ù23ÀÏ
Àü¼¼±Ç
ÁöO
125,000,000 ¼Ò¸ê±âÁØ
3 2023³â7¿ù5ÀÏ
¾Ð·ù
±¹
¼Ò¸ê
4 2023³â7¿ù13ÀÏ
°¡¾Ð·ù
ÁÖOOOO
225,000,000 ¼Ò¸ê
5 2024³â9¿ù30ÀÏ
ÀÓÂ÷±Ç¼³Á¤
ÁöO
125,000,000 ¼Ò¸ê
6 2024³â12¿ù20ÀÏ
¾Ð·ù
¼­O
¼Ò¸ê
7 2025³â5¿ù1ÀÏ
ÀÓÀǰæ¸Å
ÁöO
¼Ò¸ê

ÀÓÂ÷ÀÎÇöȲ (¹è´ç¿ä±¸Á¾±âÀÏ: 2025-07-28)

ÀÓÂ÷ÀÎ ¿ëµµ/Á¡À¯ º¸Áõ±Ý/¿ù¼¼ ´ëÇ×·Â
ÀüÀÔÀÏ/È®Á¤ÀÏ ¹è´ç¿ä±¸ ºñ°í
ÁöO ÀüºÎ 125,000,000
O
2022.08.25.
2022.07.08.
2025.06.12. 2022.08.25.~2024.08.25.
ºñ°í
(¸Å°¢¹°°Ç
¸í¼¼¼­)
Áö Çö:- Àü¼¼±ÇÀڷμ­ °æ¸Å½Åûä±ÇÀÚÀ̸ç Àü¼¼±Ç¼³Á¤µî±âÀÏÀº 2022.09.23.ÀÓ - ÁÖÅÃÀÓÂ÷±Çµî±â±ÇÀڷμ­ ÁÖÅÃÀÓÂ÷±Çµî±âÀÏÀº 2024.09.30.ÀÓ

¿©ÀÇÁÖ°æ¸Å Á¶¾ð ÇÑ ¸¶µð

¼±¼øÀ§ ÀÓÂ÷±Çµî±â°¡ µÇ¾î ÀÖ½À´Ï´Ù
´ëÇ×·ÂÀÌ ÀÖ´Â ¼±¼øÀ§ ÀÓÂ÷±Çµî±â ±Ç¸®ÀÚ°¡ ¹è´çÀ» Àü¾× ¹ÞÁö ¸øÇÒ °æ¿ì ³«ÂûÀÚ°¡ ÀÜ¿© º¸Áõ±ÝÀ» ÀμöÇØ¾ßÇÏ´Â °æ¿ìµµ ÀÖ½À´Ï´Ù.

ÁÖÀÇ»çÇ× (ÃÖ¼±¼øÀ§ ¼³Á¤ÀÏ: 2022.09.23. Àü¼¼±Ç ¼³Á¤)

¸Å°¢À¸·Î ¼Ò¸êµÇÁö ¾Ê´Â µî±âºÎ±Ç¸®: ¸Å¼öÀο¡°Ô ´ëÇ×ÇÒ ¼ö ÀÖ´Â À»±¸ 10¹ø ÀÓÂ÷±Çµî±â(ÀÓ´ëÂ÷º¸Áõ±Ý 125,000,000¿ø, ÀüÀÔÀÏÀÚ 2022.08.25. È®Á¤ÀÏÀÚ 2022.07.08.) ÀÖ À¸¹Ç·Î ¹è´ç¿¡¼­ Àü¾× º¯Á¦µÇÁö ¾Æ´ÏÇϸé Àܾ×À» ¸Å¼öÀÎÀÌ ÀμöÇÔ
¸Å°¢À¸·Î ¼³Á¤µÈ °ÍÀ¸·Î º¸´Â Áö»ó±Ç:
¡Ø¹Ì³³°ü¸®ºñ(°ø¿ë) Àμö¿©ºÎ¸¦ ÀÔÂû Àü¿¡ È®ÀÎÇϽñ⠹ٶø´Ï´Ù

 

Áö¿ªºÐ¼®

ÁöÇÏö¸í Á÷¼±°Å¸®

Çб³¸í ÀüÈ­¹øÈ£ ÁÖ¼Ò Á÷¼±°Å¸®

¹ý¿ø

ÀÎõÁö¹æ¹ý¿ø (222-20)ÀÎõ±¤¿ª½Ã ¹ÌÃßȦ±¸ ¼Ò¼º·Î 163¹ø±æ 17(ÇÐÀ͵¿)
´ëÇ¥ : 032)860-1113~4
°üÇÒÁö¿ª : Áß±¸, µ¿±¸, ³²±¸, ¿¬¼ö±¸, ³²µ¿±¸, ºÎÆò±¸, °è¾ç±¸, ¼­±¸, ¿ËÁø±º, °­È­±º

µî±â¼Ò ÀÎõÁö¹æ¹ý¿ø º»¿ø µî±â±¹ (´ëÇ¥:1544-0773, ÆÑ½º:(032)620-9099, ÀÎõ±¤¿ª½Ã ¹ÌÃßȦ±¸ °æ¿ø´ë·Î 881(Á־ȵ¿ 983))
¼¼¹«¼­ ¼­ÀÎõ¼¼¹«¼­ (´ëÇ¥:032-560-52, ÆÑ½º:032-561-5777, ÀÎõ±¤¿ª½Ã ¼­±¸ ¼­°ù·Î369¹ø±æ 17 (¿¬Èñµ¿))

Àαٳ«ÂûÅë°è

±â°£ ¸Å°¢°Ç¼ö Æò±Õ°¨Á¤°¡
Æò±Õ¸Å°¢°¡
¸Å°¢°¡À²
Æò±ÕÀ¯Âû¼ö
3°³¿ù 17°Ç 154,959,176¿ø
97,215,988¿ø
61%
2.3ȸ
6°³¿ù 30°Ç 166,943,533¿ø
104,546,800¿ø
62%
2.1ȸ
12°³¿ù 75°Ç 168,076,880¿ø
113,199,443¿ø
66%
1.9ȸ


º» °æ¸ÅÁ¤º¸´Â ¹ý¿øÀÚ·á¿Í ÀÏÄ¡Çϵµ·Ï ÇÏ¿´À¸³ª ±Ç¸®»çÇ׺¯µ¿, ÀÔ·ÂÂø¿À µîÀÇ ¿øÀÎÀ¸·Î »ç½Ç°ú ´Ù¸¦ ¼ö ÀÖ½À´Ï´Ù. ÀÌ¿ë¾à°ü¿¡ ÀǰЏéÃ¥Á¶°ÇÀ¸·Î Á¦°øµÊÀ» ¾Ë¸®¸ç, °æ¸ÅÀÔÂû½Ã ¹Ýµå½Ã °ü·Ã °øºÎ¸¦ ÀçÈ®ÀÎÇϽñ⠹ٶø´Ï´Ù. º¸´Ù Æí¸®ÇÑ °æ¸ÅÁ¤º¸ Á¦°øÀ» À§ÇØ Áö¼ÓÀûÀ¸·Î °³¼±ÇϰڽÀ´Ï´Ù. ÀÌ¿ëÇØ Áּż­ °¨»çÇÕ´Ï´Ù.