·Î±×ÀÎ
76
¿ÀÇǽºÅÚ
ÀÇÁ¤ºÎÁö¹æ¹ý¿ø °í¾çÁö¿ø
 °¨Á¤°¡356,000,000 ¿ø
 ÃÖÀú°¡(100%) 356,000,000 ¿ø
 º¸Áõ±Ý(10%) 35,600,000 ¿ø
 Ã»±¸¾×335,843,012 ¿ø
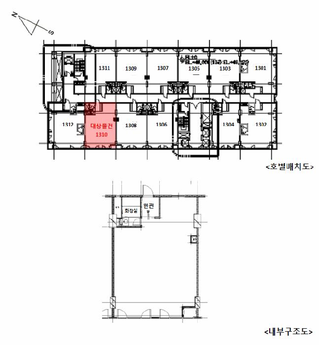
°æ±âµµ °í¾ç½Ã Àϻ굿±¸ ÀåÇ×µ¿ 869 ÀÏ»ê¹æ¼ÛÄÄÇ÷º½º¹æ¼Û°ü·Ã½Ã¼³ 13Ãþ101-1310È£
»ç°Ç¹øÈ£ 2025Ÿ°æ2985
°æ¸ÅÁ¾·ùºÎµ¿»êÀÓÀǰæ¸Å
¸Å°¢´ë»óÅäÁö ¹× °Ç¹°Àϰý ¸Å°¢
¸Å°¢±âÀÏ    2026.04.07(È­) 10:00 (¿À´Ã ÀÔÂû)    
ÅäÁö¸éÀû21.21§³(6.42 Æò)
°Ç¹°¸éÀû90.23§³(27.29 Æò)
乫/¼ÒÀ¯ÀÚÁ¶OO / Á¶OO
ä±ÇÀÚ¾ÆOOOOOOOOOOOOOOOO(OO OOOO OOOO)
ÆäÀ̽ººÏ Æ®À§ÅÍ ±¸±Û+
īī¿À½ºÅ丮
īī¿ÀÅå sms¹®ÀÚº¸³»±â
 

±âÀϳ»¿ª

°æ°ú ³¯Â¥ Àú°¨ ÃÖÀú°¡ °á°ú
Á¢¼öÀÏ 2025-06-05 °æ¸ÅÁ¢¼ö
~5ÀÏ 
2025-06-10 °æ¸Å°³½Ã°áÁ¤
~98ÀÏ 
2025-09-11 ¹è´ç¿ä±¸Á¾±âÀÏ
~306ÀÏ 
2026-04-07 100%
356,000,000
ÁøÇà
¹°°Ç¸í¼¼¼­ ÇöȲÁ¶»ç¼­ ¹®°ÇÁ¢¼ö ¼Û´Þ³»¿ª

°¨Á¤Æò°¡ÇöȲ

¸ñ·Ï ÁÖ¼Ò ±¸Á¶/¿ëµµ/´ëÁö±Ç ¸éÀû ºñ°í
´ëÁö±Ç
ÀåÇ×µ¿ 869 47364.3ºÐÀÇ 21.21 21.21 §³
(6.42Æò)
°Ç¹°
ÀåÇ×µ¿ 869 13Ãþ101-1310È£ ö°ñö±ÙÄÜÅ©¸®Æ®±¸Á¶ 90.23 §³
(27.29Æò)
1) À§Ä¡/µµ½ÃÁö¿ª/Á߽ɻó¾÷Áö¿ª/Áö±¸´ÜÀ§°èȹ±¸¿ª/ÁöÇÏö/³ë¼±¹ö½ºÁ¤·ùÀå/ö±ÙÄÜÅ©¸®Æ®±¸Á¶ ´õº¸±â
°¨Á¤Æò°¡ ¿äÇ×Ç¥
1)À§Ä¡ ¹× ÁÖÀ§È¯°æ
´ë»ó¹°°ÇÀº °æ±âµµ °í¾ç½Ã Àϻ굿±¸ ÀåÇ×µ¿ ¼ÒÀç ""»ç¹ý¿¬¼ö¿ø"" ºÏÃø Àαٿ¡ À§Ä¡Çϰí, ÁÖÀ§´Â ±Ù¸°»ýȰ½Ã¼³, ¿ÀÇǽºÅÚ, °ø°ø½Ã¼³ µîÀÌ ¼ÒÀçÇÏ´Â Áö¿ªÀ¸·Î ÁÖÀ§È¯°æÀº º¸ÅëÀÓ.
2)±³Åë»óȲ
´ë»ó¹°°Ç±îÁö Â÷·®ÃâÀÔÀÌ °¡´ÉÇϸç, Àαٿ¡ ³ë¼±¹ö½ºÁ¤·ùÀå ¹× ÁöÇÏö¿ª(¸¶µÎ¿ª ¹× Á¤¹ß»ê¿ª, 3È£¼±)ÀÌ ¼ÒÀçÇÏ´Â µî ´ëÁß±³Åë»óȲÀº º¸ÅëÀÓ.
3)°Ç¹°ÀÇ ±¸Á¶
ö±ÙÄÜÅ©¸®Æ®±¸Á¶ (ö±Ù)ÄÜÅ©¸®Æ®ÁöºØ ÁöÇÏ 4Ãþ, Áö»ó15Ãþ °Ç¹° ³» Á¦13Ãþ Á¦101-1310È£·Î¼­,
(»ç¿ë½ÂÀÎÀÏ : 2007.08.20)
¿Üº® : ¼®ÀçºÙÀÓ ¸¶°¨ µî,
âȣ : ¼¦½Ã âȣ µîÀÓ.
4)ÀÌ¿ë»óÅÂ
°øºÎ»ó ¿ëµµ´Â ¿ÀÇǽºÅÚÀ̸ç, ³»ºÎÀÌ¿ë»óȲÀº ÈÄ÷ '³»ºÎ±¸Á¶µµ'Âü°í ¹Ù¶÷.
5)¼³ºñ³»¿ª
±âº»ÀûÀÎ À§»ý ¹× ±Þ¹è¼ö¼³ºñ, ½Â°­±â¼³ºñ µîÀÌ µÇ¾î ÀÖÀ½.
6)ÅäÁöÀÇ Çü»ó ¹× ÀÌ¿ë»óÅÂ
´ë»ó¹°°ÇÀº ÀÎÁ¢Áö ´ëºñ µî°íÆòźÇÑ À广Çü ÅäÁö·Î¼­, ¾÷¹«½Ã¼³, ÆÇ¸Å½Ã¼³, ±Ù»ý½Ã¼³, ¿îµ¿½Ã¼³ °ÇºÎÁö·Î ÀÌ¿ëÁßÀÓ.
7)ÀÎÁ¢ µµ·Î»óŵî
´ë»ó¹°°ÇÀº ºÏ¼­Ãø, ³²¼­Ãø ¹× ³²µ¿ÃøÀ¸·Î °¢°¢ Æ÷Àåµµ·Î¿¡ Á¢ÇÔ.
8)ÅäÁöÀÌ¿ë°èȹ ¹× Á¦ÇÑ»óÅÂ
Á߽ɻó¾÷Áö¿ª, Áö±¸´ÜÀ§°èȹ±¸¿ª, ´ë·Î1·ù(Æø 35m~40m)(Á¢ÇÕ), Áß·Î1·ù(Æø 20m~25m)(Á¢ÇÕ),
°¡Ãà»çÀ°Á¦Çѱ¸¿ª(2024-11-12)(ÀüºÎÁ¦Çѱ¸¿ª [µµ½ÃÁö¿ª{ÁÖ°Å,»ó¾÷,°ø¾÷,³ìÁö(ÀÚ¿¬Ãë¶ôÁö±¸)}
¹×ÁְŹÐÁýÁö¿ª])<°¡ÃàºÐ´¢ÀÇ °ü¸® ¹× À̿뿡 °üÇÑ ¹ý·ü>, °ú¹Ð¾ïÁ¦±Ç¿ª<¼öµµ±ÇÁ¤ºñ°èȹ¹ý>
ÀÓ.
9)°øºÎ¿ÍÀÇ Â÷ÀÌ
¾øÀ½.
10)±âŸÂü°í»çÇ×(ÀÓ´ë°ü·Ê ¹× ±âŸ)
- ÀÓ´ë°ü°è µî ¹Ì»óÀÓ.
- '³»ºÎ±¸Á¶µµ'ÀÇ ÀÛ¼ºÀº °ÇÃ๰´ëÀå»ó ÇöȲµµ¸é, ¿ÜºÎ°üÂû µî¿¡ ÀÇÇÏ¿´À¸¸ç, ³»ºÎ½Ç»ç½Ã ´Ù¼Ò »óÀÌÇÒ ¼ö ÀÖÀ¸´Ï °æ¸Å ÁøÇà½Ã À¯ÀÇÇϽñ⠹ٶ÷.
Âü°í
»çÇ×

ö±ÙÄÜÅ©¸®Æ®±¸Á¶ (ö±Ù)

°ÇÃ๰ÇöȲ

¼ÒÀçÁö °æ±âµµ °í¾ç½Ã Àϻ굿±¸ ÀåÇ×µ¿ 869¹øÁö
´ëÁö¸éÀû 47364.3§³
(14352.82Æò)
¿¬¸éÀû 234787.15§³
(71147.62Æò)
°ÇÃà¸éÀû 17527.16§³
(5311.26Æò)
¿ëÀû·ü»êÁ¤
¿¬¸éÀû
154466.47§³
(46808.02Æò)
°ÇÆóÀ² 37.01% ¿ëÀû·ü 326.12%
Áö»óÃþ¼ö 15Ãþ ÁöÇÏÃþ¼ö 4Ãþ
ÁÖ¿ëµµ ¾÷¹«½Ã¼³ ±¸Á¶ ö°ñÄÜÅ©¸®Æ®±¸Á¶
Âø°øÀÏÀÚ »ç¿ë½ÂÀÎÀÏÀÚ 2007.08.20
°ÇÃ๰Ãþº°ÇöȲ [º¸±â]


µî±âºÎµîº» ¿ä¾à(°Ç¹°)

  Á¢¼öÀÏÀÚ µî±â¸ñÀû/±Ç¸®ÀÚ ±Ç¸®±Ý¾× ±âÁØ
1 2016³â11¿ù14ÀÏ
¼ÒÀ¯±Ç
Á¶OO
¼Ò¸ê
2 2022³â5¿ù6ÀÏ
±ÙÀú´ç±Ç
(OOOO
381,800,000 ¼Ò¸ê±âÁØ
3 2025³â3¿ù10ÀÏ
°¡¾Ð·ù
½ÅOOOO
256,490,500 ¼Ò¸ê
4 2025³â6¿ù10ÀÏ
ÀÓÀǰæ¸Å
(OOOO
¼Ò¸ê
5 2026³â2¿ù13ÀÏ
¾Ð·ù
°íOO
¼Ò¸ê

ÀÓÂ÷ÀÎÇöȲ (¹è´ç¿ä±¸Á¾±âÀÏ: 2025-09-11)

ÀÓÂ÷ÀÎ ¿ëµµ/Á¡À¯ º¸Áõ±Ý/¿ù¼¼ ´ëÇ×·Â
ÀüÀÔÀÏ/È®Á¤ÀÏ ¹è´ç¿ä±¸ ºñ°í
°íOO
O
2016.12.14.

¿©ÀÇÁÖ°æ¸Å Á¶¾ð ÇÑ ¸¶µð


ÁÖÀÇ»çÇ× (ÃÖ¼±¼øÀ§ ¼³Á¤ÀÏ: 2022.5.6.±ÙÀú´ç±Ç ¼³Á¤)

¸Å°¢À¸·Î ¼Ò¸êµÇÁö ¾Ê´Â µî±âºÎ±Ç¸®:
¸Å°¢À¸·Î ¼³Á¤µÈ °ÍÀ¸·Î º¸´Â Áö»ó±Ç:
¡Ø¹Ì³³°ü¸®ºñ(°ø¿ë) Àμö¿©ºÎ¸¦ ÀÔÂû Àü¿¡ È®ÀÎÇϽñ⠹ٶø´Ï´Ù

 

Áö¿ªºÐ¼®

ÁöÇÏö¸í Á÷¼±°Å¸®

Çб³¸í ÀüÈ­¹øÈ£ ÁÖ¼Ò Á÷¼±°Å¸®

¹ý¿ø

ÀÇÁ¤ºÎÁö¹æ¹ý¿ø °í¾çÁö¿ø (104-13)°æ±âµµ °í¾ç½Ã Àϻ굿±¸ Àå¹é·Î 209
´ëÇ¥ : 031)920-6114, ¾ß°£ : 031)920-6550, ÆÑ½º : 031)920-6119
°üÇÒÁö¿ª : °í¾ç½Ã, ÆÄÁÖ½Ã

µî±â¼Ò ÀÇÁ¤ºÎÁö¹æ¹ý¿ø °í¾çÁö¿ø °í¾çµî±â¼Ò (´ëÇ¥:1544-0773, ÆÑ½º:(031)920-5959, °æ±âµµ °í¾ç½Ã Àϻ굿±¸ Áß¾Ó·Î1275¹ø±æ 38-30 (ÀåÇ×µ¿ 773))
¼¼¹«¼­ °í¾ç¼¼¹«¼­ (´ëÇ¥:031-900-92, ÆÑ½º:031-907-9177, °æ±âµµ °í¾ç½Ã Àϻ굿±¸ Áß¾Ó·Î1275¹ø±æ 14-43 (ÀåÇ×µ¿) )

Àαٳ«ÂûÅë°è

±â°£ ¸Å°¢°Ç¼ö Æò±Õ°¨Á¤°¡
Æò±Õ¸Å°¢°¡
¸Å°¢°¡À²
Æò±ÕÀ¯Âû¼ö
3°³¿ù 12°Ç 413,287,833¿ø
208,947,675¿ø
66%
1.8ȸ
6°³¿ù 19°Ç 1,043,350,968¿ø
623,187,420¿ø
70%
1.5ȸ
12°³¿ù 24°Ç 887,694,517¿ø
522,368,036¿ø
69%
1.6ȸ


º» °æ¸ÅÁ¤º¸´Â ¹ý¿øÀÚ·á¿Í ÀÏÄ¡Çϵµ·Ï ÇÏ¿´À¸³ª ±Ç¸®»çÇ׺¯µ¿, ÀÔ·ÂÂø¿À µîÀÇ ¿øÀÎÀ¸·Î »ç½Ç°ú ´Ù¸¦ ¼ö ÀÖ½À´Ï´Ù. ÀÌ¿ë¾à°ü¿¡ ÀǰЏéÃ¥Á¶°ÇÀ¸·Î Á¦°øµÊÀ» ¾Ë¸®¸ç, °æ¸ÅÀÔÂû½Ã ¹Ýµå½Ã °ü·Ã °øºÎ¸¦ ÀçÈ®ÀÎÇϽñ⠹ٶø´Ï´Ù. º¸´Ù Æí¸®ÇÑ °æ¸ÅÁ¤º¸ Á¦°øÀ» À§ÇØ Áö¼ÓÀûÀ¸·Î °³¼±ÇϰڽÀ´Ï´Ù. ÀÌ¿ëÇØ Áּż­ °¨»çÇÕ´Ï´Ù.