·Î±×ÀÎ
59
´Ù¼¼´ë(ºô¶ó)
¼­¿ïºÏºÎÁö¹æ¹ý¿ø
 °¨Á¤°¡271,000,000 ¿ø
 ÃÖÀú°¡(100%) 271,000,000 ¿ø
 º¸Áõ±Ý(10%) 27,100,000 ¿ø
 Ã»±¸¾×162,327,273 ¿ø
¼­¿ïƯº°½Ã µµºÀ±¸ ½Ö¹®µ¿ 507-1 ¿¡µå°¡½Ö¹® Á¦5Ãþ Á¦517È£
»ç°Ç¹øÈ£ 2025Ÿ°æ4695
°æ¸ÅÁ¾·ùºÎµ¿»êÀÓÀǰæ¸Å
¸Å°¢´ë»óÅäÁö ¹× °Ç¹°Àϰý ¸Å°¢
¸Å°¢±âÀÏ    2026.04.07(È­) 10:00 ÀÔÂû 5ÀÏÀü    
ÅäÁö¸éÀû9.06§³(2.74 Æò)
°Ç¹°¸éÀû23.19§³(7.01 Æò)
乫/¼ÒÀ¯ÀÚµµO OOOO / µµO OOOO
ä±ÇÀÚÇÑOOOOOOO
ÆäÀ̽ººÏ Æ®À§ÅÍ ±¸±Û+
īī¿À½ºÅ丮
īī¿ÀÅå sms¹®ÀÚº¸³»±â
 

±âÀϳ»¿ª

°æ°ú ³¯Â¥ Àú°¨ ÃÖÀú°¡ °á°ú
Á¢¼öÀÏ 2025-10-31 °æ¸ÅÁ¢¼ö
~4ÀÏ 
2025-11-04 °æ¸Å°³½Ã°áÁ¤
~83ÀÏ 
2026-01-22 ¹è´ç¿ä±¸Á¾±âÀÏ
~158ÀÏ 
2026-04-07 100%
271,000,000
ÁøÇà
¹°°Ç¸í¼¼¼­ ÇöȲÁ¶»ç¼­ ¹®°ÇÁ¢¼ö ¼Û´Þ³»¿ª

°¨Á¤Æò°¡ÇöȲ

¸ñ·Ï ÁÖ¼Ò ±¸Á¶/¿ëµµ/´ëÁö±Ç ¸éÀû ºñ°í
´ëÁö±Ç
½Ö¹®µ¿ 507-1 3111ºÐÀÇ 9.061 9.061 §³
(2.74Æò)
°Ç¹°
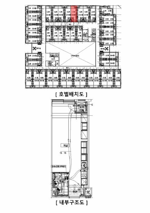
½Ö¹®µ¿ 507-1 Á¦5Ãþ Á¦517È£ ö±ÙÄÜÅ©¸®Æ®±¸Á¶ 23.1866 §³
(7.01Æò)
1) À§Ä¡/µµ½ÃÁö¿ª/ÁØÁÖ°ÅÁö¿ª/Áö±¸´ÜÀ§°èȹ±¸¿ª/ÅäÁö°Å·¡°è¾à¿¡°üÇÑÇã°¡±¸¿ª/¹ö½ºÁ¤·ùÀå/Â÷·®Á¢±ÙÀÌ °¡´É/ÁÖÂ÷Àå/ö±ÙÄÜÅ©¸®Æ®±¸Á¶ ´õº¸±â
°¨Á¤Æò°¡ ¿äÇ×Ç¥
1)À§Ä¡ ¹× ÁÖÀ§È¯°æ
º»°ÇÀº ¼­¿ïƯº°½Ã µµºÀ±¸ ½Ö¹®µ¿ "¼Ö¹ç°ø¿ø¿ª" ºÏµ¿Ãø Àαٿ¡ À§Ä¡Çϸç ÁÖÀ§´Â ¾ÆÆÄÆ®, °øµ¿ÁÖÅÃ, Çб³, ±Ù¸°»ýȰ½Ã¼³ µîÀÌ ¼ÒÀçÇÕ´Ï´Ù.
2)±³Åë»óȲ
º»°Ç±îÁö Â÷·®Á¢±ÙÀÌ °¡´ÉÇϸç Àαٿ¡ ¹ö½ºÁ¤·ùÀå, ¿ìÀ̽ż³¼± µîÀÌ ¼ÒÀçÇÕ´Ï´Ù.
3)°Ç¹°ÀÇ ±¸Á¶
ö±ÙÄÜÅ©¸®Æ®±¸Á¶ (ö±Ù)ÄÜÅ©¸®Æ®ÁöºØ 7Ãþ°Ç¹°·Î¼­, ¿Üº® : ¸ôÅ»À§ÆäÀÎÆÃ µî ¸¶°¨ âȣ : ¼¦½Ã ÀÌÁßâ µîÀÔ´Ï´Ù.
4)ÀÌ¿ë»óÅÂ
°øºÎ»ó °øµ¿ÁÖÅÃ(û³âÁÖÅÃ) ÀÔ´Ï´Ù.
5)¼³ºñ³»¿ª
³­¹æ¼³ºñ,À§»ý¼³ºñ,±Þ¹è¼ö¼³ºñ,½Â°­±â¼³ºñ,ÁÖÂ÷Àå µîÀÌ µÇ¾îÀÖ½À´Ï´Ù.
6)ÅäÁöÀÇ Çü»ó ¹× ÀÌ¿ë»óÅÂ
´ëü·Î Á¤¹æÇüÀÇÅäÁö·Î¼­, °øµ¿ÁÖÅÃ(û³âÁÖÅÃ)°ÇºÎÁö µîÀ¸·Î ÀÌ¿ë ÁßÀÔ´Ï´Ù.
7)ÀÎÁ¢ µµ·Î»óŵî
º»°Ç ¼­Ãø, ºÏÃø, µ¿ÃøÀ¸·Î µµ·Î°¡ ¼ÒÀçÇÕ´Ï´Ù.
8)ÅäÁöÀÌ¿ë°èȹ ¹× Á¦ÇÑ»óÅÂ
µµ½ÃÁö¿ª , ÁØÁÖ°ÅÁö¿ª , °íµµÁö±¸(28m ÀÌÇÏ) , Áö±¸´ÜÀ§°èȹ±¸¿ª , µµ·Î(Á¢ÇÕ) , ¼Ò·Î3·ù(Æø 8m ¹Ì¸¸)(Á¢ÇÕ) , Á¶¸Á°¡·ÎƯȭ°æ°üÁö±¸,°¡Ãà»çÀ°Á¦Çѱ¸¿ª<°¡ÃàºÐ´¢ÀÇ °ü¸® ¹× À̿뿡 °üÇÑ ¹ý·ü>, ±³À°È¯°æº¸È£±¸¿ª<±³À°È¯°æ º¸È£¿¡ °üÇÑ ¹ý·ü>, ´ë°ø¹æ¾îÇùÁ¶±¸¿ª(À§Å¹°íµµ:77-257m)<±º»ç±âÁö ¹× ±º»ç½Ã¼³ º¸È£¹ý>, °ø°øÁö¿ø¹Î°£ÀÓ´ëÁÖÅà °ø±ÞÃËÁøÁö±¸<¹Î°£ÀÓ´ëÁÖÅÿ¡ °üÇÑ Æ¯º°¹ý>, °ú¹Ð¾ïÁ¦±Ç¿ª<¼öµµ±ÇÁ¤ºñ°èȹ¹ý>,ÅäÁö°Å·¡°è¾à¿¡°üÇÑÇã°¡±¸¿ª(´ë»óÀÚ: ¿Ü±¹ÀÎ µî, ¿ëµµ: ´Üµ¶, ´Ù°¡±¸, ¾ÆÆÄÆ®, ¿¬¸³, ´Ù¼¼´ë, ÁöÁ¤±â°£: 2025.8.26.~2026.8.25.),ÅäÁö°Å·¡°è¾à¿¡°üÇÑÇã°¡±¸¿ª(ÁöÁ¤±â°£:2025.10.20.~2026.12.31./¾ÆÆÄÆ® ¿ëµµ ÇÑÁ¤),°ÇÃ༱(ÇØ´ç µµ·ÎÀÇ °æ°è¼±¿¡¼­ 3m ÈÄÅð¼± (°ÇÃà¹ý))ÀÔ´Ï´Ù.
9)°øºÎ¿ÍÀÇ Â÷ÀÌ
¾ø½À´Ï´Ù.
10)±âŸÂü°í»çÇ×(ÀÓ´ë°ü·Ê ¹× ±âŸ)
ÀÓ´ë°ü°è ¹Ì»óÀÔ´Ï´Ù.
Âü°í
»çÇ×

1) ÇöÁö ¹æ¹®ÇÏ¿´À¸³ª Æó¹®ºÎÀç·Î ¾Æ¹«µµ ¸¸³ªÁö ¸øÇÔ. 2) ¾È³»¹®À» ÃâÀÔ¹®¿¡ ºÎÂøÇÏ¿´À¸³ª ¾Æ¹« ¿¬¶ôÀÌ ¾ø¾î Á¡À¯ÀÚ È®ÀÎ ºÒ´ÉÇÔ.

°ÇÃ๰ÇöȲ

¼ÒÀçÁö ¼­¿ïƯº°½Ã µµºÀ±¸ ½Ö¹®µ¿ 507-1¹øÁö
´ëÁö¸éÀû 3111§³
(942.73Æò)
¿¬¸éÀû 17008.9407§³
(5154.22Æò)
°ÇÃà¸éÀû 2147.0119§³
(650.61Æò)
¿ëÀû·ü»êÁ¤
¿¬¸éÀû
11725.5947§³
(3553.21Æò)
°ÇÆóÀ² 69.01% ¿ëÀû·ü 376.91%
Áö»óÃþ¼ö 7Ãþ ÁöÇÏÃþ¼ö 2Ãþ
ÁÖ¿ëµµ °øµ¿ÁÖÅà ±¸Á¶ ö±ÙÄÜÅ©¸®Æ®±¸Á¶
Âø°øÀÏÀÚ 2020.04.13 »ç¿ë½ÂÀÎÀÏÀÚ 2022.05.13
°ÇÃ๰Ãþº°ÇöȲ [º¸±â]


±¹ÅäºÎ½Ç°Å·¡°¡ ¼­¿ïƯº°½Ã µµºÀ±¸ ½Ö¹®µ¿

¡Ü ¸Å¸Å

¸éÀû(§³), ±Ý¾×(¸¸¿ø)

¡Ü Àü¼¼

¸éÀû(§³), ±Ý¾×(¸¸¿ø)

°è¾àÀϰǹ°¸íĪÃþ¿¬¸éÀûº¸Áõ±Ý¿ù¼¼°ÇÃà
26.03.11¹Ì·¡ºô¶ó(26-101)149.111,40002003
26.03.10Çϳª¾ÆÆ®ºô¸®Áö-148.328,000252002
26.03.09⵿¾ÆÆ®ºô¶ó-132.885,00001993
26.03.09´Ùµ¿144.110,00091975
26.03.09¿¡µ§ÇÏÀÌÃ÷ºô¶ó244.559,92001992
¢Ñ ´õº¸±â

µî±âºÎµîº» ¿ä¾à(°Ç¹°)

  Á¢¼öÀÏÀÚ µî±â¸ñÀû/±Ç¸®ÀÚ ±Ç¸®±Ý¾× ±âÁØ
1
¼ÒÀ¯±Ç
µµOOOO
¼Ò¸ê
2 2022³â8¿ù12ÀÏ
±ÙÀú´ç±Ç
ÇÑOOOO
162,327,273 ¼Ò¸ê±âÁØ
3 2022³â8¿ù12ÀÏ
¾àÁ¤/±ÝÁö»çÇ×/ȯ¸ÅƯ¾à
¼Ò¸ê
4 2023³â7¿ù14ÀÏ
±ÙÀú´ç±Ç
ÇÑOOOO
162,327,273 ¼Ò¸ê
5 2023³â7¿ù14ÀÏ
±ÙÀú´ç±Ç
(OOOO
34,271,160 ¼Ò¸ê
6 2025³â4¿ù23ÀÏ
°¡¾Ð·ù
¹ÚOO
1,593,440,000 ¼Ò¸ê
7 2025³â11¿ù4ÀÏ
ÀÓÀǰæ¸Å
ÇÑOOOO
¼Ò¸ê
8 2026³â1¿ù27ÀÏ
¾Ð·ù
±¹
¼Ò¸ê

ÀÓÂ÷ÀÎÇöȲ (¹è´ç¿ä±¸Á¾±âÀÏ: 2026-01-22)

ÀÓÂ÷ÀÎ ¿ëµµ/Á¡À¯ º¸Áõ±Ý/¿ù¼¼ ´ëÇ×·Â
ÀüÀÔÀÏ/È®Á¤ÀÏ ¹è´ç¿ä±¸ ºñ°í
ÀÌOO ¹Ì»ó ¹Ì»ó
[¿ù]¹Ì»ó
X
2025.05.13.
¹Ì»ó
¹Ì»ó

¿©ÀÇÁÖ°æ¸Å Á¶¾ð ÇÑ ¸¶µð


ÁÖÀÇ»çÇ× (ÃÖ¼±¼øÀ§ ¼³Á¤ÀÏ: 2022. 8. 12. ±ÙÀú´ç±Ç ¼³Á¤)

¸Å°¢À¸·Î ¼Ò¸êµÇÁö ¾Ê´Â µî±âºÎ±Ç¸®:
¸Å°¢À¸·Î ¼³Á¤µÈ °ÍÀ¸·Î º¸´Â Áö»ó±Ç:
¡Ø¹Ì³³°ü¸®ºñ(°ø¿ë) Àμö¿©ºÎ¸¦ ÀÔÂû Àü¿¡ È®ÀÎÇϽñ⠹ٶø´Ï´Ù

 

Áö¿ªºÐ¼®

ÁöÇÏö¸í Á÷¼±°Å¸®

Çб³¸í ÀüÈ­¹øÈ£ ÁÖ¼Ò Á÷¼±°Å¸®

¹ý¿ø

¼­¿ïºÏºÎÁö¹æ¹ý¿ø (013-22)¼­¿ïƯº°½Ã µµºÀ±¸ ¸¶µé·Î749 (µµºÀ2µ¿ 626)
´ëÇ¥ : 02)910-3114
°üÇÒÁö¿ª : °­ºÏ±¸, ³ë¿ø±¸, µµºÀ±¸, µ¿´ë¹®±¸, ¼ººÏ±¸, Áß¶û±¸

µî±â¼Ò ¼­¿ïºÏºÎÁö¹æ¹ý¿ø º»¿ø µî±â±¹ (´ëÇ¥:1544-0773, ÆÑ½º:(02)2030-2330, ¼­¿ïƯº°½Ã µµºÀ±¸ ³ëÇØ·Î 325 (⵿ 337¹øÁö))
¼¼¹«¼­ µµºÀ¼¼¹«¼­ (´ëÇ¥:02-944-020, ÆÑ½º:02-984-2580, ¼­¿ïƯº°½Ã °­ºÏ±¸ µµºÀ·Î 117 (¹Ì¾Æµ¿))

Àαٳ«ÂûÅë°è

±â°£ ¸Å°¢°Ç¼ö Æò±Õ°¨Á¤°¡
Æò±Õ¸Å°¢°¡
¸Å°¢°¡À²
Æò±ÕÀ¯Âû¼ö
3°³¿ù 8°Ç 314,125,000¿ø
231,761,875¿ø
75%
1.9ȸ
6°³¿ù 17°Ç 256,000,000¿ø
188,178,882¿ø
75%
1.9ȸ
12°³¿ù 28°Ç 257,730,357¿ø
198,549,286¿ø
78%
1.7ȸ


º» °æ¸ÅÁ¤º¸´Â ¹ý¿øÀÚ·á¿Í ÀÏÄ¡Çϵµ·Ï ÇÏ¿´À¸³ª ±Ç¸®»çÇ׺¯µ¿, ÀÔ·ÂÂø¿À µîÀÇ ¿øÀÎÀ¸·Î »ç½Ç°ú ´Ù¸¦ ¼ö ÀÖ½À´Ï´Ù. ÀÌ¿ë¾à°ü¿¡ ÀǰЏéÃ¥Á¶°ÇÀ¸·Î Á¦°øµÊÀ» ¾Ë¸®¸ç, °æ¸ÅÀÔÂû½Ã ¹Ýµå½Ã °ü·Ã °øºÎ¸¦ ÀçÈ®ÀÎÇϽñ⠹ٶø´Ï´Ù. º¸´Ù Æí¸®ÇÑ °æ¸ÅÁ¤º¸ Á¦°øÀ» À§ÇØ Áö¼ÓÀûÀ¸·Î °³¼±ÇϰڽÀ´Ï´Ù. ÀÌ¿ëÇØ Áּż­ °¨»çÇÕ´Ï´Ù.