·Î±×ÀÎ
40
¿ÀÇǽºÅÚ
¼ö¿øÁö¹æ¹ý¿ø ¼º³²Áö¿ø
 °¨Á¤°¡155,000,000 ¿ø
 ÃÖÀú°¡(100%) 155,000,000 ¿ø
 º¸Áõ±Ý(10%) 15,500,000 ¿ø
 Ã»±¸¾×197,731,564 ¿ø
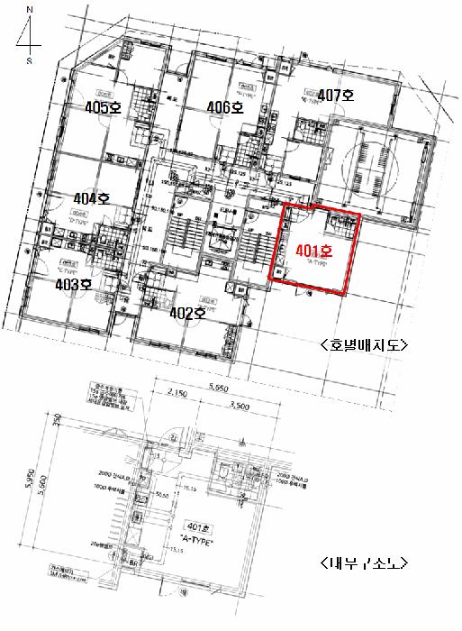
°æ±âµµ ¼º³²½Ã Áß¿ø±¸ µµÃ̵¿ 562 À¸¶äÀÌ·¹°¡ 4Ãþ401È£
»ç°Ç¹øÈ£ 2025Ÿ°æ52591
°æ¸ÅÁ¾·ùºÎµ¿»ê°­Á¦°æ¸Å
¸Å°¢´ë»óÅäÁö ¹× °Ç¹°Àϰý ¸Å°¢
¸Å°¢±âÀÏ    2026.04.06(¿ù) 10:00 ÀÔÂû 2ÀÏÀü    
ÅäÁö¸éÀû10.40§³(3.15 Æò)
°Ç¹°¸éÀû28.19§³(8.53 Æò)
乫/¼ÒÀ¯ÀÚÁÖOOO OOOO / ÁÖOOO OOOO
ä±ÇÀÚÇÑOOOOOOO
ÆäÀ̽ººÏ Æ®À§ÅÍ ±¸±Û+
īī¿À½ºÅ丮
īī¿ÀÅå sms¹®ÀÚº¸³»±â
 

±âÀϳ»¿ª

°æ°ú ³¯Â¥ Àú°¨ ÃÖÀú°¡ °á°ú
Á¢¼öÀÏ 2025-07-14 °æ¸ÅÁ¢¼ö
~1ÀÏ 
2025-07-15 °æ¸Å°³½Ã°áÁ¤
~64ÀÏ 
2025-09-16 ¹è´ç¿ä±¸Á¾±âÀÏ
~266ÀÏ 
2026-04-06 100%
155,000,000
ÁøÇà
¹°°Ç¸í¼¼¼­ ÇöȲÁ¶»ç¼­ ¹®°ÇÁ¢¼ö ¼Û´Þ³»¿ª

°¨Á¤Æò°¡ÇöȲ

¸ñ·Ï ÁÖ¼Ò ±¸Á¶/¿ëµµ/´ëÁö±Ç ¸éÀû ºñ°í
´ëÁö±Ç
µµÃ̵¿ 562 742.2ºÐÀÇ 10.397 10.397 §³
(3.15Æò)
°Ç¹°
µµÃ̵¿ 562 4Ãþ401È£ ö±ÙÄÜÅ©¸®Æ®±¸Á¶ 28.187 §³
(8.53Æò)
1) À§Ä¡/µµ½ÃÁö¿ª/ÁØÁÖ°ÅÁö¿ª/Áö±¸´ÜÀ§°èȹ±¸¿ª/¹ö½ºÁ¤·ùÀå/ö±ÙÄÜÅ©¸®Æ®±¸Á¶/µµ½Ã°¡½º ´õº¸±â
°¨Á¤Æò°¡ ¿äÇ×Ç¥
1)À§Ä¡ ¹× ÁÖÀ§È¯°æ
º»°ÇÀº °æ±âµµ ¼º³²½Ã Áß¿ø±¸ µµÃ̵¿ ¼ÒÀç 'µµÃÌÁßÇб³' ³²¼­Ãø Àαٿ¡ À§Ä¡Çϸç, ÁÖÀ§´Â ±Ù¸°»ýȰ½Ã¼³, ¾÷¹«½Ã¼³(¿ÀÇǽºÅÚ), ¾ÆÆÄÆ®´ÜÁö, Çб³ ¹× °ø¿ø µîÀÌ ¼ÒÀçÇÏ´Â Áö¿ªÀ¸·Î¼­ Á¦¹Ý ÁÖÀ§È¯°æÀº º¸ÅëÀÓ.
2)±³Åë»óȲ
º»°Ç±îÁö Â÷·®ÀÇ ÃâÀÔÀÌ °¡´ÉÇϸç, Àαٿ¡ ¹ö½ºÁ¤·ùÀåÀÌ ¼ÒÀçÇÏ´Â µî ±³Åë»óȲÀº º¸ÅëÀÓ.
3)°Ç¹°ÀÇ ±¸Á¶
ö±ÙÄÜÅ©¸®Æ®±¸Á¶ ÆòÁöºØ 7Ãþ °Ç¹° ³» Á¦4Ãþ Á¦401È£·Î¼­,
[»ç¿ë½ÂÀÎÀÏ : 2019.2.21.]
¿Üº® : ¼®ÀçºÙÀÓ µî ¸¶°¨,
³»º® : º®Áöµµ¹è ¹× ÀϺΠŸÀϺÙÀÓ µî ¸¶°¨,
âȣ : ÇÏÀÌ»õ½Ã µîÀÓ.
4)ÀÌ¿ë»óÅÂ
º»°ÇÀº ÇöÀåÁ¶»ç½Ã ÀÌÇØ°ü°èÀÎÀÇ Æó¹®ºÎÀç µîÀ¸·Î ÀÎÇÏ¿© ³»ºÎÈ®ÀÎÀÌ ¾î·Á¿üÀ¸¸ç,
°øºÎ»ó ¾÷¹«½Ã¼³(¿ÀÇǽºÅÚ)·Î µîÀçµÇ¾îÀÖÀ¸³ª µî±â»çÇ×ÀüºÎÁõ¸í¼­ À»±¸ »ó ÁÖÅÃÀÓÂ÷±ÇÀÌ È®ÀεǴ ¹Ù ÇöȲ ÁÖ°Å¿ë ¿ÀÇǽºÅÚ·Î ÀÌ¿ëÁßÀ̹ǷΠ°æ¸ÅÁøÇà½Ã Âü°íÇϽñ⠹ٶ÷.
5)¼³ºñ³»¿ª
±âº»ÀûÀÎ À§»ý ¹× ±Þ¹è¼ö¼³ºñ, ³­¹æ¼³ºñ, µµ½Ã°¡½º¼³ºñ, ½Â°­±â¼³ºñ µîÀÌ µÇ¾îÀÖÀ½.

6)ÅäÁöÀÇ Çü»ó ¹× ÀÌ¿ë»óÅÂ
ÀÎÁ¢ÇÊÁö ´ëºñ µî°íÆòźÇÑ ¼¼ÀåÇü ÅäÁö(ÁÖµµ·Î ±âÁØ, °¡°¢Á¤¸®µÈ ºÎºÐ ¹Ì°í·Á)·Î¼­, ±Ù¸°»ýȰ½Ã¼³ ¹× ¾÷¹«½Ã¼³(¿ÀÇǽºÅÚ)ÀÇ °ÇºÎÁö·Î ÀÌ¿ëÁßÀÓ.
7)ÀÎÁ¢ µµ·Î»óŵî
º»°Ç ¼­ÃøÀ¸·Î ³ëÆø ¾à 20MÀÇ Æ÷Àåµµ·Î(µµÃÌ·Î), ºÏÃøÀ¸·Î ³ëÆø ¾à 13M ¹× µ¿ÃøÀ¸·Î ³ëÆø ¾à 11MÀÇ Æ÷Àåµµ·Î(µµÃÌ·Î8¹ø±æ)¿¡ °¢°¢ Á¢Çϰí ÀÖÀ½.
8)ÅäÁöÀÌ¿ë°èȹ ¹× Á¦ÇÑ»óÅÂ
µµ½ÃÁö¿ª, ÁØÁÖ°ÅÁö¿ª, Áö±¸´ÜÀ§°èȹ±¸¿ª(µµÃÌ), ¼Ò·Î1·ù(Æø 10m~12m)(Á¢ÇÕ), Áß·Î1·ù(Æø 20m~25m)(Á¢ÇÕ), Áß·Î3·ù(Æø 12m~15m)(Á¢ÇÕ), °¡Ãà»çÀ°Á¦Çѱ¸¿ª<°¡ÃàºÐ´¢ÀÇ °ü¸® ¹× À̿뿡 °üÇÑ ¹ý·ü>, »ó´ëº¸È£±¸¿ª(2014-12-30)<±³À°È¯°æ º¸È£¿¡ °üÇÑ ¹ý·ü>, »ó´ëº¸È£±¸¿ª(°æ±âµµ¼º³²±³À°Áö¿øÃ» È®Àοä¸Á)<±³À°È¯°æ º¸È£¿¡ °üÇÑ ¹ý·ü>, ºñÇà¾ÈÀüÁ¦6±¸¿ª(Àü¼ú)<±º»ç±âÁö ¹× ±º»ç½Ã¼³ º¸È£¹ý>, ´ë±âȯ°æ±ÔÁ¦Áö¿ª<´ë±âȯ°æº¸Àü¹ý>, µµ½Ã±³ÅëÁ¤ºñÁö¿ª<µµ½Ã±³ÅëÁ¤ºñÃËÁø¹ý>, °ú¹Ð¾ïÁ¦±Ç¿ª<¼öµµ±ÇÁ¤ºñ°èȹ¹ý> µîÀÓ.
9)°øºÎ¿ÍÀÇ Â÷ÀÌ
¾øÀ½.
10)±âŸÂü°í»çÇ×(ÀÓ´ë°ü·Ê ¹× ±âŸ)
ÀÓ´ë°ü°è´Â ¹Ì»óÀ̳ª, µî±â»çÇ×ÀüºÎÁõ¸í¼­ À»±¸ ¼øÀ§¹øÈ£ 1¿¡ ÁÖÅÃÀÓÂ÷±Ç ¼³Á¤(ÀÓÂ÷º¸Áõ±Ý: ±Ý179,000,000¿ø, ¿ùÂ÷ÀÓ ±Ý40,000¿ø µî)°ú °ü·ÃµÈ ³»¿ëÀÌ ÀÖÀ¸´Ï °æ¸Å½Ã Âü°íÇϽñ⠹ٶ÷.
Âü°í
»çÇ×
ÁÖ°Å¿ë ¿ÀÇǽºÅÚ·Î ÀÌ¿ëÁßÀÓ.

°ÇÃ๰ÇöȲ

¼ÒÀçÁö °æ±âµµ ¼º³²½Ã Áß¿ø±¸ µµÃ̵¿ 562¹øÁö
´ëÁö¸éÀû 742.2§³
(224.91Æò)
¿¬¸éÀû 4188.647§³
(1269.29Æò)
°ÇÃà¸éÀû 504.769§³
(152.96Æò)
¿ëÀû·ü»êÁ¤
¿¬¸éÀû
2913.587§³
(882.91Æò)
°ÇÆóÀ² 68.01% ¿ëÀû·ü 392.561%
Áö»óÃþ¼ö 7Ãþ ÁöÇÏÃþ¼ö 2Ãþ
ÁÖ¿ëµµ ¾÷¹«½Ã¼³ ±¸Á¶ ö±ÙÄÜÅ©¸®Æ®±¸Á¶
Âø°øÀÏÀÚ 2017.03.20 »ç¿ë½ÂÀÎÀÏÀÚ 2019.02.21
°ÇÃ๰Ãþº°ÇöȲ [º¸±â]


µî±âºÎµîº» ¿ä¾à(°Ç¹°)

  Á¢¼öÀÏÀÚ µî±â¸ñÀû/±Ç¸®ÀÚ ±Ç¸®±Ý¾× ±âÁØ
1 2019³â11¿ù22ÀÏ
¼ÒÀ¯±Ç
(OOOO
¼Ò¸ê
2 2024³â1¿ù19ÀÏ
°¡¾Ð·ù
(OOOO
1,000,000,000 ¼Ò¸ê±âÁØ
3 2024³â6¿ù14ÀÏ
ÀÓÂ÷±Ç¼³Á¤
ÀÌOO
179,000,000 ¼Ò¸ê
4 2025³â7¿ù15ÀÏ
°­Á¦°æ¸Å
ÇÑOOOO
¼Ò¸ê

ÀÓÂ÷ÀÎÇöȲ (¹è´ç¿ä±¸Á¾±âÀÏ: 2025-09-16)

ÀÓÂ÷ÀÎ ¿ëµµ/Á¡À¯ º¸Áõ±Ý/¿ù¼¼ ´ëÇ×·Â
ÀüÀÔÀÏ/È®Á¤ÀÏ ¹è´ç¿ä±¸ ºñ°í
ÀÌOO °Ç¹°ÀüºÎ 179,000,000
[¿ù]40,000
O
2022.05.30.
2022.04.13.
2022.05.30.(Á¡À¯°³½ÃÀÏÀÚ)
ºñ°í
(¸Å°¢¹°°Ç
¸í¼¼¼­)
ÀÌÁö¿ø: ÀÓÂ÷ÀÎ ÀÌÁö¿øÀº ÁÖÅÃÀÓÂ÷±ÇÀÚ·Î ÀÓÂ÷±Çµî±âÀÏÀÚ´Â 2024.06.14.ÀÓ. ÁÖÅõµ½Ãº¸Áõ°ø»ç´Â ½Åûä±ÇÀÚ°â ÀÓÂ÷ÀÎ ÀÌÁö¿øÀÇ ¾ç¼öÀÎÀ¸·Î ÈļøÀ§±Ç¸®ÀÚº¸´Ù ¿ì¼±¹è´çÀ» ¹ÞÀ½.

¿©ÀÇÁÖ°æ¸Å Á¶¾ð ÇÑ ¸¶µð

¼±¼øÀ§ ÀÓÂ÷±Çµî±â°¡ µÇ¾î ÀÖ½À´Ï´Ù
´ëÇ×·ÂÀÌ ÀÖ´Â ¼±¼øÀ§ ÀÓÂ÷±Çµî±â ±Ç¸®ÀÚ°¡ ¹è´çÀ» Àü¾× ¹ÞÁö ¸øÇÒ °æ¿ì ³«ÂûÀÚ°¡ ÀÜ¿© º¸Áõ±ÝÀ» ÀμöÇØ¾ßÇÏ´Â °æ¿ìµµ ÀÖ½À´Ï´Ù.

ÁÖÀÇ»çÇ× (ÃÖ¼±¼øÀ§ ¼³Á¤ÀÏ: 2024. 1. 19. °¡¾Ð·ù ¼³Á¤)

¸Å°¢À¸·Î ¼Ò¸êµÇÁö ¾Ê´Â µî±âºÎ±Ç¸®: ¸Å¼öÀο¡°Ô ´ëÇ×ÇÒ ¼ö ÀÖ´Â À»±¸ ¼øÀ§ 1¹ø ÁÖÅÃÀÓÂ÷±Çµî±â ÀÖÀ½(ÀÓÂ÷º¸Áõ±Ý: ±Ý179,000,000¿ø, Áֹεî·ÏÀÏÀÚ: 2022.05.30, Á¡À¯ °³½ÃÀÏÀÚ: 2022.05.30, È®Á¤ÀÏÀÚ: 2022.04.13.) ¹è´ç¿¡¼­ ÀÓÂ÷º¸Áõ±ÝÀÌ Àü¾× ¹è´çµÇÁö ¾Æ´ÏÇϸé Àܾ×À» ¸Å¼öÀÎÀÌ ÀμöÇÔ.
¸Å°¢À¸·Î ¼³Á¤µÈ °ÍÀ¸·Î º¸´Â Áö»ó±Ç:
ÁÖ°Å¿ë ¿ÀÇǽºÅÚ·Î ÀÌ¿ëÁßÀÓ.
¡Ø¹Ì³³°ü¸®ºñ(°ø¿ë) Àμö¿©ºÎ¸¦ ÀÔÂû Àü¿¡ È®ÀÎÇϽñ⠹ٶø´Ï´Ù

 

Áö¿ªºÐ¼®

ÁöÇÏö¸í Á÷¼±°Å¸®

Çб³¸í ÀüÈ­¹øÈ£ ÁÖ¼Ò Á÷¼±°Å¸®

¹ý¿ø

¼ö¿øÁö¹æ¹ý¿ø ¼º³²Áö¿ø (131-43)°æ±âµµ ¼º³²½Ã ¼öÁ¤±¸ »ê¼º´ë·Î 451 (´Ü´ëµ¿)
´ëÇ¥ : 031)737-1558, ¾ß°£ : 031)737-1120
°üÇÒÁö¿ª : ¼º³²½Ã, ±¤ÁÖ½Ã, Çϳ²½Ã

µî±â¼Ò ¼ö¿øÁö¹æ¹ý¿ø ¼º³²Áö¿ø µî±â°ú (´ëÇ¥:1544-0773, ÆÑ½º:(031)741-2913, °æ±âµµ ¼º³²½Ã ¼öÁ¤±¸ »ê¼º´ë·Î 451 (´Ü´ëµ¿ 75))
¼¼¹«¼­ ¼º³²¼¼¹«¼­ (´ëÇ¥:031-730-62, ÆÑ½º:031-736-1904, °æ±âµµ ¼º³²½Ã ¼öÁ¤±¸ Èñ¸Á·Î 480 (´Ü´ëµ¿))

Àαٳ«ÂûÅë°è

±â°£ ¸Å°¢°Ç¼ö Æò±Õ°¨Á¤°¡
Æò±Õ¸Å°¢°¡
¸Å°¢°¡À²
Æò±ÕÀ¯Âû¼ö
3°³¿ù 4°Ç 270,128,073¿ø
194,058,525¿ø
60%
3.5ȸ
6°³¿ù 4°Ç 270,128,073¿ø
194,058,525¿ø
60%
3.5ȸ
12°³¿ù 12°Ç 322,842,691¿ø
224,563,475¿ø
70%
2.5ȸ


º» °æ¸ÅÁ¤º¸´Â ¹ý¿øÀÚ·á¿Í ÀÏÄ¡Çϵµ·Ï ÇÏ¿´À¸³ª ±Ç¸®»çÇ׺¯µ¿, ÀÔ·ÂÂø¿À µîÀÇ ¿øÀÎÀ¸·Î »ç½Ç°ú ´Ù¸¦ ¼ö ÀÖ½À´Ï´Ù. ÀÌ¿ë¾à°ü¿¡ ÀǰЏéÃ¥Á¶°ÇÀ¸·Î Á¦°øµÊÀ» ¾Ë¸®¸ç, °æ¸ÅÀÔÂû½Ã ¹Ýµå½Ã °ü·Ã °øºÎ¸¦ ÀçÈ®ÀÎÇϽñ⠹ٶø´Ï´Ù. º¸´Ù Æí¸®ÇÑ °æ¸ÅÁ¤º¸ Á¦°øÀ» À§ÇØ Áö¼ÓÀûÀ¸·Î °³¼±ÇϰڽÀ´Ï´Ù. ÀÌ¿ëÇØ Áּż­ °¨»çÇÕ´Ï´Ù.