·Î±×ÀÎ
3
´Ù¼¼´ë(ºô¶ó)
¼ö¿øÁö¹æ¹ý¿ø ¼º³²Áö¿ø
 °¨Á¤°¡137,000,000 ¿ø
 ÃÖÀú°¡(100%) 137,000,000 ¿ø
 º¸Áõ±Ý(10%) 13,700,000 ¿ø
 Ã»±¸¾×33,894,496 ¿ø
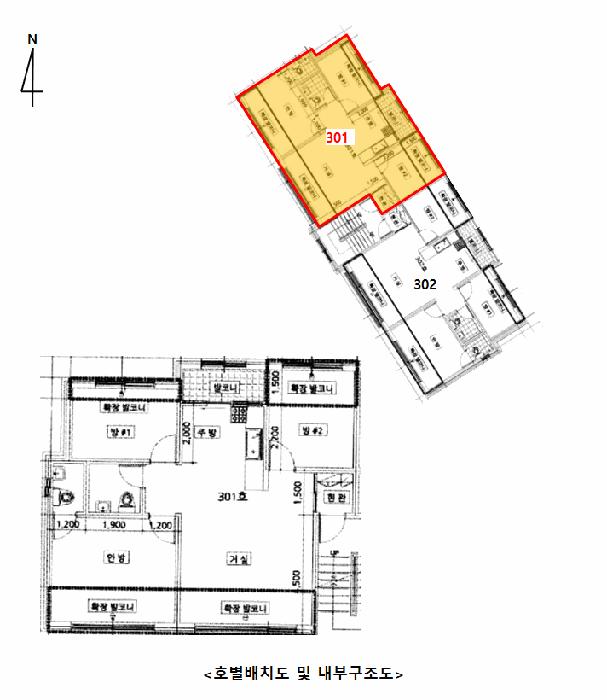
°æ±âµµ ±¤Áֽà ÅðÃ̸é õÁø¾Ï·Î570¹ø±æ 12-6, 103µ¿ 3Ãþ301È£ (Èѹ̸®Å¸¿î)
°æ±âµµ ±¤Áֽà ÅðÃÌ¸é °üÀ½¸® 533-15
»ç°Ç¹øÈ£ 2024Ÿ°æ71980
°æ¸ÅÁ¾·ùºÎµ¿»êÀÓÀǰæ¸Å
¸Å°¢´ë»óÅäÁö ¹× °Ç¹°Àϰý ¸Å°¢
¸Å°¢±âÀÏ    2026.04.06(¿ù) 10:00 ÀÔÂû 9ÀÏÀü    
ÅäÁö¸éÀû68.13§³(20.61 Æò)
°Ç¹°¸éÀû59.61§³(18.03 Æò)
乫/¼ÒÀ¯ÀÚÀÌOO¿Ü 25¸í / ÀÌOO¿Ü 25¸í
ä±ÇÀÚÇÑOOOOOOO
ÆäÀ̽ººÏ Æ®À§ÅÍ ±¸±Û+
īī¿À½ºÅ丮
īī¿ÀÅå sms¹®ÀÚº¸³»±â
 

±âÀϳ»¿ª

°æ°ú ³¯Â¥ Àú°¨ ÃÖÀú°¡ °á°ú
Á¢¼öÀÏ 2024-12-24 °æ¸ÅÁ¢¼ö
~202ÀÏ 
2025-07-14 °æ¸Å°³½Ã°áÁ¤
~272ÀÏ 
2025-09-22 ¹è´ç¿ä±¸Á¾±âÀÏ
~468ÀÏ 
2026-04-06 100%
137,000,000
ÁøÇà
¹°°Ç¸í¼¼¼­ ÇöȲÁ¶»ç¼­ ¹®°ÇÁ¢¼ö ¼Û´Þ³»¿ª

°¨Á¤Æò°¡ÇöȲ

¸ñ·Ï ÁÖ¼Ò ±¸Á¶/¿ëµµ/´ëÁö±Ç ¸éÀû ºñ°í
´ëÁö±Ç
°üÀ½¸® 533-13 545ºÐÀÇ 68.125 68.125 §³
(20.61Æò)
°Ç¹°
°üÀ½¸® 533-13 103µ¿ 3Ãþ301È£ ö±ÙÄÜÅ©¸®Æ®±¸Á¶ 59.605 §³
(18.03Æò)
1) À§Ä¡/°èȹ°ü¸®Áö¿ª/¹ö½ºÁ¤·ùÀå/ö±ÙÄÜÅ©¸®Æ®±¸Á¶/Æò½º¶óºêÁöºØ ´õº¸±â
°¨Á¤Æò°¡ ¿äÇ×Ç¥
1)À§Ä¡ ¹× ÁÖÀ§È¯°æ
º»°ÇÀº °æ±âµµ ±¤Áֽà ÅðÃÌ¸é °üÀ½¸® ¼ÒÀç '°üÀ½»ç°Å¸®' ³²µ¿Ãø Àαٿ¡ À§Ä¡Çϰí ÀÖÀ¸¸ç, ÁÖÀ§´Â ´Üµ¶ÁÖÅÃ, °øµ¿ÁÖÅÃ, ±Ù¸°»ýȰ½Ã¼³, ³ó°æÁö, ÀÚ¿¬¸²µîÀÌ È¥ÀçÇÔ.
2)±³Åë»óȲ
º»°Ç±îÁö Â÷·®Á¢±Ù °¡´ÉÇϰí, Àαٿ¡ ¹ö½ºÁ¤·ùÀåÀÌ ¼ÒÀçÇÏ´Â µî ´ëÁß±³Åë»çÁ¤Àº º¸ÅëÀÓ.
3)°Ç¹°ÀÇ ±¸Á¶
ö±ÙÄÜÅ©¸®Æ®±¸Á¶ Æò½º¶óºêÁöºØ 4Ãþ °ÇÁß Á¦3Ãþ Á¦301È£·Î¼­,
(»ç¿ë½ÂÀÎÀÏ: 2012.02.24)
¿Üº® : Ä¡À庮µ¹½×±â ¸¶°¨µîÀÓ.
³»º® : º®Áöµµ¹è ¹× ÀϺΠŸÀϸ¶°¨µîÀÓ.
âȣ : ¼¦½ÃâȣµîÀÓ.
4)ÀÌ¿ë»óÅÂ
´Ù¼¼´ëÁÖÅÃ(ÈÄ÷ ""³»ºÎ±¸Á¶µµ"" ÂüÁ¶)·Î ÀÌ¿ëÁßÀÓ.
5)¼³ºñ³»¿ª
±Þ¹è¼ö¼³ºñ, À§»ý¼³ºñ, °øµ¿Çö°ü º¸¾È¼³ºñ, ¼Ò¹æ¼³ºñ, ³­¹æ¼³ºñµîÀÌ ±¸ºñµÇ¾î ÀÖÀ½.
6)ÅäÁöÀÇ Çü»ó ¹× ÀÌ¿ë»óÅÂ
ºÎÁ¤Çü ÆòÁöÀÇ ÅäÁö·Î¼­, ´Ù¼¼´ëÁÖÅÃÀÇ °ÇºÎÁö·Î ÀÌ¿ëÁßÀÓ.
7)ÀÎÁ¢ µµ·Î»óŵî
º»°Ç ³²¼­ÃøÀ¸·Î ³ëÆø 4¹ÌÅÍÁ¤µµÀÇ µµ·Î¿¡ Á¢ÇÔ.
8)ÅäÁöÀÌ¿ë°èȹ ¹× Á¦ÇÑ»óÅÂ
°èȹ°ü¸®Áö¿ª(°èȹ°ü¸®) , ¼ºÀå°ü¸®°èȹ±¸¿ª(¼ºÀå°ü¸®Áö¿ª(ÁÖ°ÅÇü)),°¡Ãà»çÀ°Á¦Çѱ¸¿ª(ÀϺÎÁ¦Çѱ¸¿ª)<°¡ÃàºÐ´¢ÀÇ °ü¸® ¹× À̿뿡 °üÇÑ ¹ý·ü>, ¿ª»ç¹®È­È¯°æº¸Á¸Áö¿ª<¹®È­À¯»êÀÇ º¸Á¸ ¹× Ȱ¿ë¿¡ °üÇÑ ¹ý·ü>, ¹èÃâ½Ã¼³¼³Ä¡Á¦ÇÑÁö¿ª<¹°È¯°æº¸Àü¹ý>, ÀÚ¿¬º¸Àü±Ç¿ª<¼öµµ±ÇÁ¤ºñ°èȹ¹ý>, °øÀå¼³¸³½ÂÀÎÁö¿ª<¼öµµ¹ý>, Ưº°´ëÃ¥Áö¿ª<ȯ°æÁ¤Ã¥±âº»¹ý>ÀÓ.
9)°øºÎ¿ÍÀÇ Â÷ÀÌ
¾øÀ½.
10)±âŸÂü°í»çÇ×(ÀÓ´ë°ü·Ê ¹× ±âŸ)
ÀÓ´ë¹Ì»óÀÓ.

º»°Ç ³»ºÎ±¸Á¶´Â ÇöÀåÁ¶»ç½Ã Æó¹® ¹× ÀÌÇØ°ü°èÀÎÀÇ ºÎÀçµîÀ¸·Î ÀÎÇÏ¿© °ÇÃ๰ ÇöȲµµ¸é ¹× ޹®Á¶»çµîÀ» ÅëÇÏ¿© Ç¥ÁØÀû ÀÌ¿ë»óȲÀ» ±âÁØÇÏ¿´°í, ½ÇÁ¦¿Í ´Ù¼Ò »óÀÌÇÒ ¼ö ÀÖ´Â ¹Ù °æ¸ÅÁøÇà½Ã ÂüÁ¶ÇϽñ⠹ٶ÷.

°ÇÃ๰ÇöȲ

¼ÒÀçÁö °æ±âµµ ±¤Áֽà ÅðÃÌ¸é °üÀ½¸® 533-13¹øÁö
´ëÁö¸éÀû 545§³
(165.15Æò)
¿¬¸éÀû 523.64§³
(158.68Æò)
°ÇÃà¸éÀû 180.49§³
(54.69Æò)
¿ëÀû·ü»êÁ¤
¿¬¸éÀû
523.64§³
(158.68Æò)
°ÇÆóÀ² 33.12% ¿ëÀû·ü 96.08%
Áö»óÃþ¼ö 4Ãþ ÁöÇÏÃþ¼ö  
ÁÖ¿ëµµ °øµ¿ÁÖÅà ±¸Á¶ ö±ÙÄÜÅ©¸®Æ®±¸Á¶
Âø°øÀÏÀÚ 2011.07.07 »ç¿ë½ÂÀÎÀÏÀÚ 2012.02.24


±¹ÅäºÎ½Ç°Å·¡°¡ °æ±âµµ ±¤Áֽà ÅðÃ̸é

¡Ü ¸Å¸Å

¸éÀû(§³), ±Ý¾×(¸¸¿ø)

¡Ü Àü¼¼

¸éÀû(§³), ±Ý¾×(¸¸¿ø)

°è¾àÀϰǹ°¸íĪÃþ¿¬¸éÀûº¸Áõ±Ý¿ù¼¼°ÇÃà
26.03.12ÁÖ¸ñ»þ³ÚÄ«¿îƼ256.698,00002009
26.03.10Èѹ̸®Å¸¿îCµ¿373.19,00002005
26.03.07´Ù¿ÂÇϿ콺103µ¿373.3324,0002018
26.03.04û¿îºô(101µ¿)271.8817,0002011
26.03.03¾çÁö»çÀκô(102µ¿)344.50510,0002015
¢Ñ ´õº¸±â

µî±âºÎµîº» ¿ä¾à(°Ç¹°)

  Á¢¼öÀÏÀÚ µî±â¸ñÀû/±Ç¸®ÀÚ ±Ç¸®±Ý¾× ±âÁØ
1 2025³â6¿ù19ÀÏ
¼ÒÀ¯±Ç
ȫOO
¼Ò¸ê
2 2025³â6¿ù19ÀÏ
¼ÒÀ¯±Ç
ÃÖOO
¼Ò¸ê
3 2025³â6¿ù19ÀÏ
¼ÒÀ¯±Ç
ÃÖOO
¼Ò¸ê
4 2025³â6¿ù19ÀÏ
¼ÒÀ¯±Ç
ÃÖOO
¼Ò¸ê
5 2025³â6¿ù19ÀÏ
¼ÒÀ¯±Ç
ÃÖOO
¼Ò¸ê
6 2025³â6¿ù19ÀÏ
¼ÒÀ¯±Ç
ÃÖOO
¼Ò¸ê
7 2025³â6¿ù19ÀÏ
¼ÒÀ¯±Ç
ÃÖOO
¼Ò¸ê
8 2025³â6¿ù19ÀÏ
¼ÒÀ¯±Ç
ÀÌOO
¼Ò¸ê
9 2025³â6¿ù19ÀÏ
¼ÒÀ¯±Ç
ÀÌOO
¼Ò¸ê
10
¼ÒÀ¯±Ç
¼Ò¸ê
11 2025³â6¿ù19ÀÏ
¼ÒÀ¯±Ç
ÀÌOO
¼Ò¸ê
12 2025³â6¿ù19ÀÏ
¼ÒÀ¯±Ç
ÀÌOO
¼Ò¸ê
13 2025³â6¿ù19ÀÏ
¼ÒÀ¯±Ç
ÀÌOO
¼Ò¸ê
14 2025³â6¿ù19ÀÏ
¼ÒÀ¯±Ç
ÀÌOO
¼Ò¸ê
15 2025³â6¿ù19ÀÏ
¼ÒÀ¯±Ç
ÀÌOO
¼Ò¸ê
16 2025³â6¿ù19ÀÏ
¼ÒÀ¯±Ç
ÀÌOO
¼Ò¸ê
17 2025³â6¿ù19ÀÏ
¼ÒÀ¯±Ç
ÀÌOO
¼Ò¸ê
18 2025³â6¿ù19ÀÏ
¼ÒÀ¯±Ç
ÀÌOO
¼Ò¸ê
19 2025³â6¿ù19ÀÏ
¼ÒÀ¯±Ç
ÀÌOO
¼Ò¸ê
20 2025³â6¿ù19ÀÏ
¼ÒÀ¯±Ç
ÀÌOO
¼Ò¸ê
21 2025³â6¿ù19ÀÏ
¼ÒÀ¯±Ç
ÀÌOO
¼Ò¸ê
22 2025³â6¿ù19ÀÏ
¼ÒÀ¯±Ç
ÀÌOO
¼Ò¸ê
23 2025³â6¿ù19ÀÏ
¼ÒÀ¯±Ç
ÀÌOO
¼Ò¸ê
24 2025³â6¿ù19ÀÏ
¼ÒÀ¯±Ç
ÀÌOO
¼Ò¸ê
25 2025³â6¿ù19ÀÏ
¼ÒÀ¯±Ç
ÀÌOO
¼Ò¸ê
26 2025³â6¿ù19ÀÏ
¼ÒÀ¯±Ç
ÀÌOO
¼Ò¸ê
27 2025³â6¿ù19ÀÏ
¼ÒÀ¯±Ç
¹ÚOO
¼Ò¸ê
28 2019³â7¿ù19ÀÏ
±ÙÀú´ç±Ç
ÇÑOOOO
194,000,000 ¼Ò¸ê±âÁØ
29 2019³â7¿ù19ÀÏ
¾àÁ¤/±ÝÁö»çÇ×/ȯ¸ÅƯ¾à
¼Ò¸ê
30 2025³â7¿ù15ÀÏ
ÀÓÀǰæ¸Å
ÇÑOOOO
¼Ò¸ê
31 2025³â11¿ù18ÀÏ
¾Ð·ù
±¹
¼Ò¸ê
32 2026³â1¿ù9ÀÏ
¾Ð·ù
±¹
¼Ò¸ê
33 2026³â1¿ù19ÀÏ
¾Ð·ù
°üOO
¼Ò¸ê

ÀÓÂ÷ÀÎÇöȲ (¹è´ç¿ä±¸Á¾±âÀÏ: 2025-09-22)



¸Å°¢±âÀÏ 7ÀÏÀü¿¡ °ø°íµÇ¿À´Ï È®ÀÎÇϽñ⠹ٶø´Ï´Ù.


¿©ÀÇÁÖ°æ¸Å Á¶¾ð ÇÑ ¸¶µð

ÃëÇÏ ¶Ç´Â Ãë¼ÒµÉ °¡´É¼º ÀÖ½À´Ï´Ù
ÀÌ ¹°°ÇÀÇ °¨Á¤°¡°ÝÀº 137,000,000¿øÀÔ´Ï´Ù. °æ¸Å¸¦ ½ÅûÇÑ Ã¤±ÇÀÚ°¡ ¹è´ç ¹Þ¾Æ¾ß ÇÒ ±Ý¾×Àº 33,894,496¿øÀ¸·Î °¨Á¤°¡°Ý ´ëºñ »ó´çÈ÷ ÀûÀº ±Ý¾×ÀÔ´Ï´Ù. ÀÌ·± °æ¿ì, 乫°¡°¡ º¯Á¦ÇÏ¿© °æ¸Å¸¦ ÃëÇϽÃŰ°Å³ª °æ¸Å½Åûä±ÇÀÚ°¡ ¹è´ç¹ÞÀº ±Ý¿øÀÌ ¾ø°ÔµÇ¾î À̸¥ ¹Ù "¹«À׿©¿¡ ÀÇÇÑ Ãë¼Ò"°¡ µÉ °¡´É¼ºÀÌ ÀÖ½À´Ï´Ù.

ÁÖÀÇ»çÇ× (ÃÖ¼±¼øÀ§ ¼³Á¤ÀÏ: 2019.7.19. ±ÙÀú´ç±Ç ¼³Á¤)

¸Å°¢À¸·Î ¼Ò¸êµÇÁö ¾Ê´Â µî±âºÎ±Ç¸®: ÇØ´ç»çÇ×¾øÀ½
¸Å°¢À¸·Î ¼³Á¤µÈ °ÍÀ¸·Î º¸´Â Áö»ó±Ç: ÇØ´ç»çÇ×¾øÀ½
¡Ø¹Ì³³°ü¸®ºñ(°ø¿ë) Àμö¿©ºÎ¸¦ ÀÔÂû Àü¿¡ È®ÀÎÇϽñ⠹ٶø´Ï´Ù

 

Áö¿ªºÐ¼®

ÁöÇÏö¸í Á÷¼±°Å¸®

Çб³¸í ÀüÈ­¹øÈ£ ÁÖ¼Ò Á÷¼±°Å¸®

¹ý¿ø

¼ö¿øÁö¹æ¹ý¿ø ¼º³²Áö¿ø (131-43)°æ±âµµ ¼º³²½Ã ¼öÁ¤±¸ »ê¼º´ë·Î 451 (´Ü´ëµ¿)
´ëÇ¥ : 031)737-1558, ¾ß°£ : 031)737-1120
°üÇÒÁö¿ª : ¼º³²½Ã, ±¤ÁÖ½Ã, Çϳ²½Ã

µî±â¼Ò ¼ö¿øÁö¹æ¹ý¿ø ¼º³²Áö¿ø ±¤ÁÖµî±â¼Ò (´ëÇ¥:1544-0773, ÆÑ½º:(031)765-2388, °æ±âµµ ±¤Áֽà ÇàÁ¤Å¸¿î·Î 49-15 (¼ÛÁ¤µ¿ 346-4))
¼¼¹«¼­ °æ±â±¤ÁÖ¼¼¹«¼­ (´ëÇ¥:031-880-92, ÆÑ½º:031-769-0417, °æ±âµµ ±¤Áֽà ¹®È­·Î 127)

Àαٳ«ÂûÅë°è

±â°£ ¸Å°¢°Ç¼ö Æò±Õ°¨Á¤°¡
Æò±Õ¸Å°¢°¡
¸Å°¢°¡À²
Æò±ÕÀ¯Âû¼ö
3°³¿ù 0°Ç 0¿ø
0¿ø
0%
0ȸ
6°³¿ù 1°Ç 143,000,000¿ø
80,561,200¿ø
56%
2ȸ
12°³¿ù 2°Ç 230,000,000¿ø
152,816,150¿ø
64%
1.5ȸ


º» °æ¸ÅÁ¤º¸´Â ¹ý¿øÀÚ·á¿Í ÀÏÄ¡Çϵµ·Ï ÇÏ¿´À¸³ª ±Ç¸®»çÇ׺¯µ¿, ÀÔ·ÂÂø¿À µîÀÇ ¿øÀÎÀ¸·Î »ç½Ç°ú ´Ù¸¦ ¼ö ÀÖ½À´Ï´Ù. ÀÌ¿ë¾à°ü¿¡ ÀǰЏéÃ¥Á¶°ÇÀ¸·Î Á¦°øµÊÀ» ¾Ë¸®¸ç, °æ¸ÅÀÔÂû½Ã ¹Ýµå½Ã °ü·Ã °øºÎ¸¦ ÀçÈ®ÀÎÇϽñ⠹ٶø´Ï´Ù. º¸´Ù Æí¸®ÇÑ °æ¸ÅÁ¤º¸ Á¦°øÀ» À§ÇØ Áö¼ÓÀûÀ¸·Î °³¼±ÇϰڽÀ´Ï´Ù. ÀÌ¿ëÇØ Áּż­ °¨»çÇÕ´Ï´Ù.