·Î±×ÀÎ
357
±Ù¸°»ó°¡
¼ö¿øÁö¹æ¹ý¿ø ¼º³²Áö¿ø
 °¨Á¤°¡34,000,000 ¿ø
 ÃÖÀú°¡(49%) 16,660,000 ¿ø
 º¸Áõ±Ý(10%) 1,666,000 ¿ø
 Ã»±¸¾×65,000,000 ¿ø
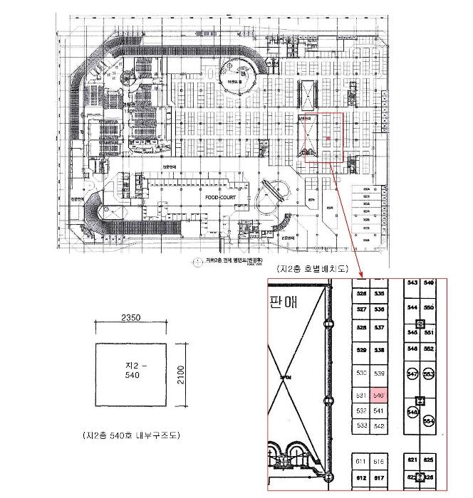
°æ±âµµ ¼º³²½Ã ºÐ´ç±¸ ¼º³²´ë·Î925¹ø±æ 16, Áö2Ãþ540È£ (¾ßžµ¿,¼º³²(ºÐ´ç)¿©°´ÀÚµ¿Â÷Å͹̳ι׺¹Çհǹ°)
°æ±âµµ ¼º³²½Ã ºÐ´ç±¸ ¾ßžµ¿ 341
»ç°Ç¹øÈ£ 2024Ÿ°æ4324
°æ¸ÅÁ¾·ùºÎµ¿»êÀÓÀǰæ¸Å
¸Å°¢´ë»óÅäÁö ¹× °Ç¹°Àϰý ¸Å°¢
¸Å°¢±âÀÏ    2026.06.15(¿ù) 10:00 ÀÔÂû 16ÀÏÀü    
ÅäÁö¸éÀû2.21§³(0.67 Æò)
°Ç¹°¸éÀû4.94§³(1.49 Æò)
乫/¼ÒÀ¯ÀÚÇÑOOOOOO OOOO / ÁÖOOOOOOOO
ä±ÇÀÚ¾çOO¿Ü 1¸í
ÆäÀ̽ººÏ Æ®À§ÅÍ ±¸±Û+
īī¿À½ºÅ丮
īī¿ÀÅå sms¹®ÀÚº¸³»±â
 

±âÀϳ»¿ª

°æ°ú ³¯Â¥ Àú°¨ ÃÖÀú°¡ °á°ú
Á¢¼öÀÏ 2024-07-16 °æ¸ÅÁ¢¼ö
~13ÀÏ 
2024-07-29 °æ¸Å°³½Ã°áÁ¤
~76ÀÏ 
2024-09-30 ¹è´ç¿ä±¸Á¾±âÀÏ
~629ÀÏ 
2026-04-06 100%
34,000,000
À¯Âû
~664ÀÏ 
2026-05-11 70%
23,800,000
À¯Âû
~699ÀÏ 
2026-06-15 49%
16,660,000
ÁøÇà
¹°°Ç¸í¼¼¼­ ÇöȲÁ¶»ç¼­ ¹®°ÇÁ¢¼ö ¼Û´Þ³»¿ª

°¨Á¤Æò°¡ÇöȲ

¸ñ·Ï ÁÖ¼Ò ±¸Á¶/¿ëµµ/´ëÁö±Ç ¸éÀû ºñ°í
´ëÁö±Ç
¾ßžµ¿ 341 27308.1ºÐÀÇ 2.2104 2.2104 §³
(0.67Æò)
°Ç¹°
¾ßžµ¿ 341 Áö2Ãþ540È£ ö°ñö±ÙÄÜÅ©¸®Æ®Á¶ 4.94 §³
(1.49Æò)
1) À§Ä¡/µµ½ÃÁö¿ª/Á߽ɻó¾÷Áö¿ª/Áö±¸´ÜÀ§°èȹ±¸¿ª/¹ö½ºÁ¤·ùÀå/ÁöÇÏö/°£¼±µµ·Î/ö°ñö±ÙÄÜÅ©¸®Æ®Á¶/Áß¾Ó°ø±Þ½Ä ´õº¸±â
°¨Á¤Æò°¡ ¿äÇ×Ç¥
1)À§Ä¡ ¹× ÁÖÀ§È¯°æ
º»°ÇÀº °æ±âµµ ¼º³²½Ã ºÐ´ç±¸ ¾ßžµ¿ ¼ÒÀç ÁöÇÏö "¾ßž¿ª" ºÏ¼­Ãø Àαٿ¡ À§Ä¡Çϸç,
ÁÖÀ§´Â ÁöÇÏö ¿ª¼¼±ÇÀ¸·Î °¢Á¾ »ó¾÷¿ë ¹× ¾÷¹«¿ë °Ç¹° µîÀÌ ¹ÐÁýÇÏ´Â Á߽ɻó°¡Áö´ëÀÓ.
2)±³Åë»óȲ
º»°Ç¼ÒÀç °Ç¹°¿¡ Â÷·® ÁøÃâÀÔÀÌ ¿ëÀÌÇϸç, °í¼Ó¹ö½ºÅ͹̳Î(Æó¾÷Áß ÀӽøÅÇ¥¼Ò¿î¿µ) ¹×
ÁöÇÏö "¾ßž¿ª" ÀÌ ÀÎÁ¢Çϰí, Àαٿ¡ ¹ö½ºÁ¤·ùÀåÀÌ ¼ÒÀçÇϰí ÀÖ¾î ´ëÁß±³ÅëÀÌ¿ëÀº ¾çÈ£ÇÔ.
3)°Ç¹°ÀÇ ±¸Á¶
ö°ñö±ÙÄÜÅ©¸®Æ®Á¶ ÁöÇÏ4Ãþ Áö»ó7Ãþ °Ç¹° ³» ÁöÇÏ2Ãþ 540È£·Î¼­
¿Ü º®: º¹ÇÕÆÇ³ÚºÙÀÓ ¹× È­°­¼®ºÙÀÓ µî ¸¶°¨.
³» º®: ¸ôÅ»À§ÆäÀÎÆ®¸¶°¨.
¹Ù ´Ú: ¾Æ½ºÅ¸Àϸ¶°¨,ºñ´Ò½¬Æ®¸¶°¨.
â È£: ¼¦½ÃâȣÀÓ.

4)ÀÌ¿ë»óÅÂ
2003.01.30ÀÚ·Î »ç¿ë½ÂÀÎµÈ °Ç¹°·Î¼­
ÆÇ¸Å ¹× ¿µ¾÷½Ã¼³(¿ÀÇÂÇü »ó°¡)À̸ç ÇöȲ "°ø½Ç" »óÅÂÀÓ.
5)¼³ºñ³»¿ª
°øµ¿ À§»ý¹× ±Þ¹è¼ö¼³ºñ,Áß¾Ó°ø±Þ½Ä ³Ã³­¹æ¼³ºñ,½Â°­±â¼³ºñ,¼ÒÈ­Àü ¹× È­Àç°æº¸¼³ºñ,
¿¡½ºÄ÷¹ÀÌÅÍ, Áö»ó ¹× ÁöÇÏ ÁÖÂ÷¼³ºñ µîÀÌ µÇ¾îÀÖÀ½.
6)ÅäÁöÀÇ Çü»ó ¹× ÀÌ¿ë»óÅÂ
À广ÇüÀÇ ÆòÁö·Î¼­ Å͹̳Π¹× »ó¾÷¿ë °ÇºÎÁö·Î ÀÌ¿ëÁßÀÓ.
7)ÀÎÁ¢ µµ·Î»óŵî
º»°Ç µ¿ÃøÀ¸·Î ³ëÆø ¾à40m, ³²Ãø ¹× ¼­ÃøÀ¸·Î 20m,ºÏÃøÀ¸·Î 25m Æ÷Àåµµ·Î¿¡ Á¢ÇÔ.
8)ÅäÁöÀÌ¿ë°èȹ ¹× Á¦ÇÑ»óÅÂ
µµ½ÃÁö¿ª,Á߽ɻó¾÷Áö¿ª,Áö±¸´ÜÀ§°èȹ±¸¿ª(ºÐ´ç),´ë·Î3·ù(Æø25m-30m)(º¸Á¶°£¼±µµ·Î)(Á¢ÇÔ),
ÀÚµ¿Â÷Á¤·ùÀå,Áß·Î1·ù(Æø20m-25m)(Áý»êµµ·Î)(Á¢ÇÔ),°¡Ãà»çÀ°Á¦Çѱ¸¿ª,ºñÇà¾ÈÀüÁ¦6±¸¿ª
(Àü¼ú),´ë±âȯ°æ±ÔÁ¦Áö¿ª,µµ½Ã±³ÅëÁ¤ºñÁö¿ª,º¥Ã³±â¾÷À°¼ºÃËÁøÁö±¸,°ú¹Ð¾ïÁ¦±Ç¿ª,(ÇѰ­)
Æó±â¹°¸Å¸³½Ã¼³ ¼³Ä¡Á¦ÇÑÁö¿ªÀÓ.
9)°øºÎ¿ÍÀÇ Â÷ÀÌ
--
10)±âŸÂü°í»çÇ×(ÀÓ´ë°ü·Ê ¹× ±âŸ)
ÀÓ´ë°ü°è ¹Ì»óÀÓ.(ÁýÇÕ°ÇÃ๰´ëÀå Ç¥Á¦ºÎ »ó À§¹Ý°ÇÃ๰ Ç¥½ÃµÇ¾î ÀÖÀ½)
Âü°í
»çÇ×
ÀÎÁ¢ È£¼ö¿Í ÇÔ²² º®Ã¼±¸ºÐ ¾øÀÌ ÀÌ¿ëÁßÀ̸ç, ÇöÀç´Â °ø½ÇÀÓ.

°ÇÃ๰ÇöȲ

¼ÒÀçÁö °æ±âµµ ¼º³²½Ã ºÐ´ç±¸ ¾ßžµ¿ 341¹øÁö
´ëÁö¸éÀû 27308.1§³
(8275.18Æò)
¿¬¸éÀû 205754.26§³
(62349.78Æò)
°ÇÃà¸éÀû 19553.13§³
(5925.19Æò)
¿ëÀû·ü»êÁ¤
¿¬¸éÀû
40701.83§³
(12333.89Æò)
°ÇÆóÀ² 71.6% ¿ëÀû·ü 149.05%
Áö»óÃþ¼ö 7Ãþ ÁöÇÏÃþ¼ö 4Ãþ
ÁÖ¿ëµµ ÆÇ¸Å½Ã¼³ ±¸Á¶ ÀϹÝö°ñ±¸Á¶
Âø°øÀÏÀÚ 1995.05. »ç¿ë½ÂÀÎÀÏÀÚ 2003.01.30
°ÇÃ๰Ãþº°ÇöȲ [º¸±â]


µî±âºÎµîº» ¿ä¾à(°Ç¹°)

  Á¢¼öÀÏÀÚ µî±â¸ñÀû/±Ç¸®ÀÚ ±Ç¸®±Ý¾× ±âÁØ
1 2016³â7¿ù22ÀÏ
¼ÒÀ¯±Ç
(OOOO
¼Ò¸ê
2 2003³â5¿ù3ÀÏ
±ÙÀú´ç±Ç
¾çOOOO
65,000,000 ¼Ò¸ê±âÁØ
3 2016³â8¿ù29ÀÏ
¾Ð·ù
¼ºOOOO
¼Ò¸ê
4 2017³â4¿ù18ÀÏ
¾Ð·ù
±¹
¼Ò¸ê
5 2017³â6¿ù30ÀÏ
°­Á¦°ü¸®½Åû
ÀÓOO
¼Ò¸ê
6 2024³â7¿ù29ÀÏ
ÀÓÀǰæ¸Å
¾çOOOO
¼Ò¸ê

ÀÓÂ÷ÀÎÇöȲ (¹è´ç¿ä±¸Á¾±âÀÏ: 2024-09-30)


Á¶»çµÈ ÀÓÂ÷³»¿ªÀÌ ¾ø½À´Ï´Ù


¿©ÀÇÁÖ°æ¸Å Á¶¾ð ÇÑ ¸¶µð


ÁÖÀÇ»çÇ× (ÃÖ¼±¼øÀ§ ¼³Á¤ÀÏ: 2003.5.3. ±ÙÀú´ç±Ç ¼³Á¤)

¸Å°¢À¸·Î ¼Ò¸êµÇÁö ¾Ê´Â µî±âºÎ±Ç¸®: ÇØ´ç»çÇ×¾øÀ½
¸Å°¢À¸·Î ¼³Á¤µÈ °ÍÀ¸·Î º¸´Â Áö»ó±Ç: ÇØ´ç»çÇ×¾øÀ½
ÀÎÁ¢ È£¼ö¿Í ÇÔ²² º®Ã¼±¸ºÐ ¾øÀÌ ÀÌ¿ëÁßÀ̸ç, ÇöÀç´Â °ø½ÇÀÓ.
¡Ø¹Ì³³°ü¸®ºñ(°ø¿ë) Àμö¿©ºÎ¸¦ ÀÔÂû Àü¿¡ È®ÀÎÇϽñ⠹ٶø´Ï´Ù

 

Áö¿ªºÐ¼®

ÁöÇÏö¸í Á÷¼±°Å¸®

Çб³¸í ÀüÈ­¹øÈ£ ÁÖ¼Ò Á÷¼±°Å¸®

¹ý¿ø

¼ö¿øÁö¹æ¹ý¿ø ¼º³²Áö¿ø (131-43)°æ±âµµ ¼º³²½Ã ¼öÁ¤±¸ »ê¼º´ë·Î 451 (´Ü´ëµ¿)
´ëÇ¥ : 031)737-1558, ¾ß°£ : 031)737-1120
°üÇÒÁö¿ª : ¼º³²½Ã, ±¤ÁÖ½Ã, Çϳ²½Ã

µî±â¼Ò ¼ö¿øÁö¹æ¹ý¿ø ¼º³²Áö¿ø ºÐ´çµî±â¼Ò (´ëÇ¥:1544-0773, ÆÑ½º:(031)709-1164, °æ±âµµ ¼º³²½Ã ºÐ´ç±¸ ºÒÁ¤·Î406¹ø±æ 21 (¼­Çöµ¿ 318))
¼¼¹«¼­ ºÐ´ç¼¼¹«¼­ (´ëÇ¥:031-219-92, ÆÑ½º:031-781-6851, °æ±âµµ ¼º³²½Ã ºÐ´ç±¸ Ȳ»õ¿ï·Î 311¹ø±æ 11)

Àαٳ«ÂûÅë°è

±â°£ ¸Å°¢°Ç¼ö Æò±Õ°¨Á¤°¡
Æò±Õ¸Å°¢°¡
¸Å°¢°¡À²
Æò±ÕÀ¯Âû¼ö
3°³¿ù 9°Ç 468,444,444¿ø
264,379,156¿ø
67%
2.9ȸ
6°³¿ù 19°Ç 568,542,105¿ø
372,169,846¿ø
69%
2.2ȸ
12°³¿ù 26°Ç 566,676,923¿ø
425,072,233¿ø
73%
1.9ȸ


º» °æ¸ÅÁ¤º¸´Â ¹ý¿øÀÚ·á¿Í ÀÏÄ¡Çϵµ·Ï ÇÏ¿´À¸³ª ±Ç¸®»çÇ׺¯µ¿, ÀÔ·ÂÂø¿À µîÀÇ ¿øÀÎÀ¸·Î »ç½Ç°ú ´Ù¸¦ ¼ö ÀÖ½À´Ï´Ù. ÀÌ¿ë¾à°ü¿¡ ÀǰЏéÃ¥Á¶°ÇÀ¸·Î Á¦°øµÊÀ» ¾Ë¸®¸ç, °æ¸ÅÀÔÂû½Ã ¹Ýµå½Ã °ü·Ã °øºÎ¸¦ ÀçÈ®ÀÎÇϽñ⠹ٶø´Ï´Ù. º¸´Ù Æí¸®ÇÑ °æ¸ÅÁ¤º¸ Á¦°øÀ» À§ÇØ Áö¼ÓÀûÀ¸·Î °³¼±ÇϰڽÀ´Ï´Ù. ÀÌ¿ëÇØ Áּż­ °¨»çÇÕ´Ï´Ù.