·Î±×ÀÎ
83
¾ÆÆÄÆ®
¼ö¿øÁö¹æ¹ý¿ø
 °¨Á¤°¡416,000,000 ¿ø
 ÃÖÀú°¡(100%) 416,000,000 ¿ø
 º¸Áõ±Ý(10%) 41,600,000 ¿ø
 Ã»±¸¾×328,613,939 ¿ø
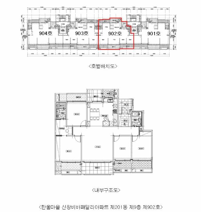
°æ±âµµ È­¼º½Ã ºÀ´ãÀ¾ ¼ö¿µ¸® 673 Çѿ︶À» ½Åâºñ¹ÙÆÐ¹Ð¸®¾ÆÆÄÆ® 201µ¿ 9Ãþ902È£
»ç°Ç¹øÈ£ 2025Ÿ°æ54468
°æ¸ÅÁ¾·ùºÎµ¿»êÀÓÀǰæ¸Å
¸Å°¢´ë»óÅäÁö ¹× °Ç¹°Àϰý ¸Å°¢
¸Å°¢±âÀÏ    2026.04.03(±Ý) 10:00    
ÅäÁö¸éÀû70.19§³(21.23 Æò)
°Ç¹°¸éÀû123.34§³(37.31 Æò)
乫/¼ÒÀ¯ÀÚÀÌOO / ÀÌOO
ä±ÇÀÚ¿¥OOOOOOOOO
ÆäÀ̽ººÏ Æ®À§ÅÍ ±¸±Û+
īī¿À½ºÅ丮
īī¿ÀÅå sms¹®ÀÚº¸³»±â
 

±âÀϳ»¿ª

°æ°ú ³¯Â¥ Àú°¨ ÃÖÀú°¡ °á°ú
Á¢¼öÀÏ 2025-02-13 °æ¸ÅÁ¢¼ö
~1ÀÏ 
2025-02-14 °æ¸Å°³½Ã°áÁ¤
~75ÀÏ 
2025-04-29 ¹è´ç¿ä±¸Á¾±âÀÏ
¹°°Ç¸í¼¼¼­ ÇöȲÁ¶»ç¼­ ¹®°ÇÁ¢¼ö ¼Û´Þ³»¿ª

°¨Á¤Æò°¡ÇöȲ

¸ñ·Ï ÁÖ¼Ò ±¸Á¶/¿ëµµ/´ëÁö±Ç ¸éÀû ºñ°í
´ëÁö±Ç
¼ö¿µ¸® 673 24923.4ºÐÀÇ 70.1928 70.1928 §³
(21.23Æò)
°Ç¹°
¼ö¿µ¸® 673 201µ¿ 9Ãþ902È£ ö±ÙÄÜÅ©¸®Æ®±¸Á¶ 123.3429 §³
(37.31Æò)
 
1) À§Ä¡/Á¦2Á¾ÀϹÝÁÖ°ÅÁö¿ª/Áö±¸´ÜÀ§°èȹ±¸¿ª/¹ö½ºÁ¤·ùÀå/°£¼±µµ·Î/ö±ÙÄÜÅ©¸®Æ®±¸Á¶/µµ½Ã°¡½º ´õº¸±â
°¨Á¤Æò°¡ ¿äÇ×Ç¥
1)À§Ä¡ ¹× ÁÖÀ§È¯°æ
º»°ÇÀº °æ±âµµ È­¼º½Ã ºÀ´ãÀ¾ ¼ö¿µ¸® ¼ÒÀç ""¼ö¿µÃʵîÇб³"" ºÏÃø Àαٿ¡ À§Ä¡Çϸç, ÀαÙÀº ¾ÆÆÄÆ®´ÜÁö, ±Ù¸°»ýȰ½Ã¼³, °øÀå, ³ó°æÁö µîÀÌ È¥ÀçÇÏ´Â Áö¿ªÀ¸·Î¼­ ÁÖÀ§È¯°æÀº º¸Åë½Ã µÊ.
2)±³Åë»óȲ
º»°Ç±îÁö Â÷·®ÁøÃâÀÔÀÌ °¡´ÉÇϸç, Àαٿ¡ ¹ö½ºÁ¤·ùÀåÀÌ À§Ä¡ÇÏ´Â µî Àü¹ÝÀûÀÎ ±³Åë»çÁ¤Àº º¸Åë½Ã µÊ.
3)°Ç¹°ÀÇ ±¸Á¶
ö±ÙÄÜÅ©¸®Æ®±¸Á¶ (ö±Ù)ÄÜÅ©¸®Æ®ÁöºØ 17Ãþ °Ç Áß, Á¦9Ãþ Á¦902È£·Î¼­,
(»ç¿ë½ÂÀÎÀÏ:2008.06.05.)

¿Üº®: ¸ôÅ»À§ ÆäÀÎÆÃ ¸¶°¨ µî,
âȣ: ¼¦½Ã µîÀÓ.
4)ÀÌ¿ë»óÅÂ
¾ÆÆÄÆ®·Î ÀÌ¿ëÁßÀÓ (÷ºÎ ""³»ºÎ±¸Á¶µµ"" ÂüÁ¶)
5)¼³ºñ³»¿ª
±âº»ÀûÀÎ Àü±â¼³ºñ, À§»ý ¹× ±Þ¹è¼ö¼³ºñ, µµ½Ã°¡½º, ¼ÒÈ­Àü¼³ºñ, È­ÀçŽÁö¼³ºñ, ½Â°­±â µîÀÌ ±¸ºñµÇ¾î ÀÖÀ½.

6)ÅäÁöÀÇ Çü»ó ¹× ÀÌ¿ë»óÅÂ
2ÇÊÁö ÀÏ´ÜÀÇ ´ëü·Î µî°íÆòźÇÑ »ç´Ù¸®Çü ÅäÁö·Î¼­, ¾ÆÆÄÆ® °ÇºÎÁö·Î ÀÌ¿ë ÁßÀÓ.
7)ÀÎÁ¢ µµ·Î»óŵî
º»°Ç ´ÜÁö ¿Ü°ûµµ·Î¸¦ ÅëÇØ Àα٠°£¼±µµ·Î µîÀ¸·Î Á¢±Ù°¡´ÉÇϸç, ³²Ãø¿¡ ³ëÆø ¾à20¹ÌÅÍ ³»¿Ü, ¼­Ãø¿¡ ³ëÆø ¾à12¹ÌÅÍ ³»¿Ü, ºÏ¼­Ãø¿¡ ³ëÆø ¾à8¹ÌÅÍ ³»¿ÜÀÇ Æ÷ÀåµÈ µµ·Î¿Í Á¢Çϰí ÀÖÀ½.
8)ÅäÁöÀÌ¿ë°èȹ ¹× Á¦ÇÑ»óÅÂ
1. ¼ö¿µ¸® 673
Á¦2Á¾ÀϹÝÁÖ°ÅÁö¿ª , Áö±¸´ÜÀ§°èȹ±¸¿ª(¼ö¿µ4Áö±¸) , ¼Ò·Î1·ù(Æø 10m~12m)(Á¢ÇÕ) , ¼Ò·Î2·ù(Æø 8m~10m)(Á¢ÇÕ) , Áß·Î1·ù(Æø 20m~25m)(Á¢ÇÕ) , Áß·Î2·ù(Æø 15m~20m)(Á¢ÇÕ) , Áß·Î3·ù(Æø 12m~15m)(Á¢ÇÕ) , °¡Ãà»çÀ°Á¦Çѱ¸¿ª(2018-03-30)(ÀüºÎÁ¦Çѱ¸¿ª)<°¡ÃàºÐ´¢ÀÇ °ü¸® ¹× À̿뿡 °üÇÑ ¹ý·ü>, °¡Ãà»çÀ°Á¦Çѱ¸¿ª(ÀüºÎÁ¦ÇÑ)<°¡ÃàºÐ´¢ÀÇ °ü¸® ¹× À̿뿡 °üÇÑ ¹ý·ü>, »ó´ëº¸È£±¸¿ª(È­¼º¿À»ê±³À°Áö¿øÃ» ¹®ÀÇ)<±³À°È¯°æ º¸È£¿¡ °üÇÑ ¹ý·ü>, Àý´ëº¸È£±¸¿ª(È­¼º¿À»ê±³À°Áö¿øÃ» ¹®ÀÇ)<±³À°È¯°æ º¸È£¿¡ °üÇÑ ¹ý·ü>, ºñÇà¾ÈÀüÁ¦6±¸¿ª(Àü¼ú)<±º»ç±âÁö ¹× ±º»ç½Ã¼³ º¸È£¹ý>, ¼ºÀå°ü¸®±Ç¿ª<¼öµµ±ÇÁ¤ºñ°èȹ¹ý>À̰í,


2. ¼ö¿µ¸® 673-1
Á¦2Á¾ÀϹÝÁÖ°ÅÁö¿ª , Áö±¸´ÜÀ§°èȹ±¸¿ª(¼ö¿µ4Áö±¸) , Áß·Î3·ù(Æø 12m~15m)(Á¢ÇÕ) , °¡Ãà»çÀ°Á¦Çѱ¸¿ª(2018-03-30)(ÀüºÎÁ¦Çѱ¸¿ª)<°¡ÃàºÐ´¢ÀÇ °ü¸® ¹× À̿뿡 °üÇÑ ¹ý·ü>, °¡Ãà»çÀ°Á¦Çѱ¸¿ª(ÀüºÎÁ¦ÇÑ)<°¡ÃàºÐ´¢ÀÇ °ü¸® ¹× À̿뿡 °üÇÑ ¹ý·ü>, »ó´ëº¸È£±¸¿ª(È­¼º¿À»ê±³À°Áö¿øÃ» ¹®ÀÇ)<±³À°È¯°æ º¸È£¿¡ °üÇÑ ¹ý·ü>, ºñÇà¾ÈÀüÁ¦6±¸¿ª(Àü¼ú)<±º»ç±âÁö ¹× ±º»ç½Ã¼³ º¸È£¹ý>, ¼ºÀå°ü¸®±Ç¿ª<¼öµµ±ÇÁ¤ºñ°èȹ¹ý>ÀÓ.
9)°øºÎ¿ÍÀÇ Â÷ÀÌ
--.
10)±âŸÂü°í»çÇ×(ÀÓ´ë°ü·Ê ¹× ±âŸ)
ÀÓ´ëÂ÷ °ü°è´Â ¹Ì»óÀÓ.
Âü°í
»çÇ×

ÇØ´ç ºÎµ¿»êÀÇ ÇöȲÀº ¿Ü

°ÇÃ๰ÇöȲ

¼ÒÀçÁö °æ±âµµ È­¼º½Ã È¿Ç౸ ºÀ´ãÀ¾ ¼ö¿µ¸® 673¹øÁö
´ëÁö¸éÀû   ¿¬¸éÀû 287.56§³
(87.14Æò)
°ÇÃà¸éÀû   ¿ëÀû·ü»êÁ¤
¿¬¸éÀû
 
°ÇÆóÀ²   ¿ëÀû·ü  
Áö»óÃþ¼ö   ÁöÇÏÃþ¼ö 1Ãþ
ÁÖ¿ëµµ °øµ¿ÁÖÅà ±¸Á¶ ö±ÙÄÜÅ©¸®Æ®±¸Á¶
Âø°øÀÏÀÚ 2005.09.01 »ç¿ë½ÂÀÎÀÏÀÚ 2008.06.05
°ÇÃ๰Ãþº°ÇöȲ [º¸±â]


µî±âºÎµîº» ¿ä¾à(°Ç¹°)

  Á¢¼öÀÏÀÚ µî±â¸ñÀû/±Ç¸®ÀÚ ±Ç¸®±Ý¾× ±âÁØ
1 2012³â9¿ù5ÀÏ
¼ÒÀ¯±Ç
ÀÌOO
¼Ò¸ê
2 2023³â8¿ù23ÀÏ
±ÙÀú´ç±Ç
¿¥OOOO
351,600,000 ¼Ò¸ê±âÁØ
3 2024³â8¿ù21ÀÏ
°¡¾Ð·ù
ÇÏOOOO
39,598,980 ¼Ò¸ê
4 2024³â9¿ù3ÀÏ
°¡¾Ð·ù
¿£OOOO
34,185,952 ¼Ò¸ê
5 2024³â9¿ù11ÀÏ
°¡¾Ð·ù
ÇÑOOOO
13,552,141 ¼Ò¸ê
6 2024³â10¿ù8ÀÏ
°¡¾Ð·ù
·ÔOOOO
9,060,493 ¼Ò¸ê
7 2024³â10¿ù23ÀÏ
°¡¾Ð·ù
°æOOOO
30,000,000 ¼Ò¸ê
8 2025³â2¿ù14ÀÏ
ÀÓÀǰæ¸Å
¿¥OOOO
¼Ò¸ê
9 2025³â2¿ù25ÀÏ
¾Ð·ù
±¹
¼Ò¸ê

ÀÓÂ÷ÀÎÇöȲ (¹è´ç¿ä±¸Á¾±âÀÏ: 2025-04-29)

ÀÓÂ÷ÀÎ ¿ëµµ/Á¡À¯ º¸Áõ±Ý/¿ù¼¼ ´ëÇ×·Â
ÀüÀÔÀÏ/È®Á¤ÀÏ ¹è´ç¿ä±¸ ºñ°í
JOOOOOOOOO
O
2014.10.20
 
JOOOOOOOOO
O
2022.06.30
 
LOOOOO
O
2023.06.30
 

¾ÆÆÄÆ® Á¤º¸

ÁÖ¼Ò
½Ã°ø»ç ´ÜÁö±Ô¸ð 6°³µ¿ ¼¼´ë
³­¹æ »ç¿ë½ÂÀÎ
°ü¸®¼Ò
Àü¿ë¸éÀû ¼¼´ë¼ö
´ëÁö±Ç
Çö°ü/±¸Á¶ ½Ä / ¹æ, ¿å½Ç
  • Çб³
  • ÁÖº¯½Ã¼³
  • ´ëÁß±³Åë

¿©ÀÇÁÖ°æ¸Å Á¶¾ð ÇÑ ¸¶µð


ÁÖÀÇ»çÇ× (ÃÖ¼±¼øÀ§ ¼³Á¤ÀÏ: 2023.8.23. ±ÙÀú´ç±Ç ¼³Á¤)

¸Å°¢À¸·Î ¼Ò¸êµÇÁö ¾Ê´Â µî±âºÎ±Ç¸®:
¸Å°¢À¸·Î ¼³Á¤µÈ °ÍÀ¸·Î º¸´Â Áö»ó±Ç:
¡Ø¹Ì³³°ü¸®ºñ(°ø¿ë) Àμö¿©ºÎ¸¦ ÀÔÂû Àü¿¡ È®ÀÎÇϽñ⠹ٶø´Ï´Ù

 

Áö¿ªºÐ¼®

ÁöÇÏö¸í Á÷¼±°Å¸®

Çб³¸í ÀüÈ­¹øÈ£ ÁÖ¼Ò Á÷¼±°Å¸®

¹ý¿ø

¼ö¿øÁö¹æ¹ý¿ø (165-12)°æ±âµµ ¼ö¿ø½Ã ¿µÅ뱸 ¹ýÁ¶·Î 105, Çϵ¿, ¼ö¿ø¹ý¿øÁ¾ÇÕû»ç
´ëÇ¥ : 031)210-1114, ¾ß°£ : 031)210-1111
°üÇÒÁö¿ª : ¼ö¿ø½Ã, ¿À»ê½Ã, È­¼º½Ã, ¿ëÀνÃ

µî±â¼Ò ¼ö¿øÁö¹æ¹ý¿ø º»¿ø È­¼ºµî±â¼Ò (´ëÇ¥:1544-0773, ÆÑ½º:(031)375-3964, °æ±âµµ ¿À»ê½Ã ¹ý¿ø·Î 65 (±Èµ¿ 662))
¼¼¹«¼­ µ¿¼ö¿ø¼¼¹«¼­ (´ëÇ¥:031-695-42, ÆÑ½º:031-273-2416, °æ±âµµ ¼ö¿ø½Ã ¿µÅ뱸 û¸í³²·Î 13 (¿µÅ뵿))

Àαٳ«ÂûÅë°è

±â°£ ¸Å°¢°Ç¼ö Æò±Õ°¨Á¤°¡
Æò±Õ¸Å°¢°¡
¸Å°¢°¡À²
Æò±ÕÀ¯Âû¼ö
3°³¿ù 37°Ç 523,162,162¿ø
476,737,476¿ø
90%
0.9ȸ
6°³¿ù 90°Ç 492,044,444¿ø
448,046,535¿ø
90%
1ȸ
12°³¿ù 211°Ç 469,440,758¿ø
425,108,986¿ø
90%
1ȸ


º» °æ¸ÅÁ¤º¸´Â ¹ý¿øÀÚ·á¿Í ÀÏÄ¡Çϵµ·Ï ÇÏ¿´À¸³ª ±Ç¸®»çÇ׺¯µ¿, ÀÔ·ÂÂø¿À µîÀÇ ¿øÀÎÀ¸·Î »ç½Ç°ú ´Ù¸¦ ¼ö ÀÖ½À´Ï´Ù. ÀÌ¿ë¾à°ü¿¡ ÀǰЏéÃ¥Á¶°ÇÀ¸·Î Á¦°øµÊÀ» ¾Ë¸®¸ç, °æ¸ÅÀÔÂû½Ã ¹Ýµå½Ã °ü·Ã °øºÎ¸¦ ÀçÈ®ÀÎÇϽñ⠹ٶø´Ï´Ù. º¸´Ù Æí¸®ÇÑ °æ¸ÅÁ¤º¸ Á¦°øÀ» À§ÇØ Áö¼ÓÀûÀ¸·Î °³¼±ÇϰڽÀ´Ï´Ù. ÀÌ¿ëÇØ Áּż­ °¨»çÇÕ´Ï´Ù.