·Î±×ÀÎ
56
´Ù¼¼´ë(ºô¶ó)
ÀÇÁ¤ºÎÁö¹æ¹ý¿ø ³²¾çÁÖÁö¿ø
 °¨Á¤°¡769,000,000 ¿ø
 ÃÖÀú°¡(100%) 769,000,000 ¿ø
 º¸Áõ±Ý(10%) 76,900,000 ¿ø
 Ã»±¸¾×450,000,000 ¿ø
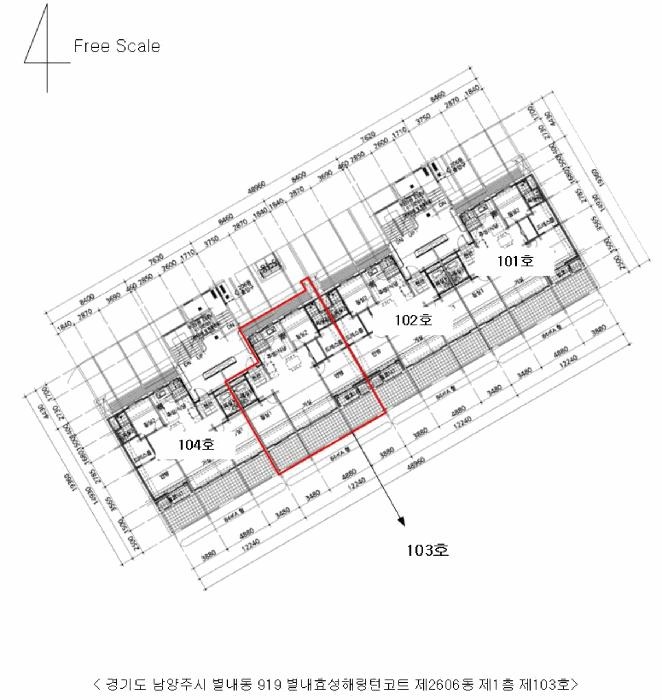
°æ±âµµ ³²¾çÁֽà º°³»µ¿ 919 º°³»È¿¼ºÇظµÅÏÄÚÆ® 2606µ¿ 1Ãþ 103È£
»ç°Ç¹øÈ£ 2025Ÿ°æ71578
°æ¸ÅÁ¾·ùºÎµ¿»êÀÓÀǰæ¸Å
¸Å°¢´ë»óÅäÁö ¹× °Ç¹°Àϰý ¸Å°¢
¸Å°¢±âÀÏ    2026.04.02(¸ñ) 10:30 ÀÔÂû 8ÀÏÀü    
ÅäÁö¸éÀû125.10§³(37.84 Æò)
°Ç¹°¸éÀû84.88§³(25.68 Æò)
乫/¼ÒÀ¯ÀÚÀÌOO / ÀÌOO
ä±ÇÀÚÁÖOOO OOOOOOOO
ÆäÀ̽ººÏ Æ®À§ÅÍ ±¸±Û+
īī¿À½ºÅ丮
īī¿ÀÅå sms¹®ÀÚº¸³»±â
 

±âÀϳ»¿ª

°æ°ú ³¯Â¥ Àú°¨ ÃÖÀú°¡ °á°ú
Á¢¼öÀÏ 2025-04-18 °æ¸ÅÁ¢¼ö
~4ÀÏ 
2025-04-22 °æ¸Å°³½Ã°áÁ¤
~81ÀÏ 
2025-07-08 ¹è´ç¿ä±¸Á¾±âÀÏ
~349ÀÏ 
2026-04-02 100%
769,000,000
ÁøÇà
¹°°Ç¸í¼¼¼­ ÇöȲÁ¶»ç¼­ ¹®°ÇÁ¢¼ö ¼Û´Þ³»¿ª

°¨Á¤Æò°¡ÇöȲ

¸ñ·Ï ÁÖ¼Ò ±¸Á¶/¿ëµµ/´ëÁö±Ç ¸éÀû ºñ°í
´ëÁö±Ç
º°³»µ¿ 919 38847.1ºÐÀÇ 125.0998 125.0998 §³
(37.84Æò)
°Ç¹°
º°³»µ¿ 919 2606µ¿ 1Ãþ 103È£ ö±ÙÄÜÅ©¸®Æ®±¸Á¶ 84.88 §³
(25.68Æò)
1) À§Ä¡/Á¦1Á¾ÀϹÝÁÖ°ÅÁö¿ª/Áö±¸´ÜÀ§°èȹ±¸¿ª/Â÷·®ÃâÀÔ °¡´É/³ë¼±¹ö½ºÁ¤·ùÀå/ö±ÙÄÜÅ©¸®Æ®±¸Á¶/¹æ3/È­Àå½Ç2 ´õº¸±â
°¨Á¤Æò°¡ ¿äÇ×Ç¥
1)À§Ä¡ ¹× ÁÖÀ§È¯°æ
º»°ÇÀº °æ±âµµ ³²¾çÁֽà º°³»µ¿ ¼ÒÀç ""º°°¡¶÷ÃʵîÇб³"" ºÏÃø Àαٿ¡ À§Ä¡Çϸç, ÁÖÀ§´Â ´ë±Ô
¸ð ¾ÆÆÄÆ® ´ÜÁö, ¿¬¸³ÁÖÅÃ, ±Ù¸°»ýȰ½Ã¼³, Çб³ µîÀÌ È¥ÀçÇϰí ÀÖÀ½.
2)±³Åë»óȲ
º»°Ç±îÁö Â÷·®ÃâÀÔ °¡´ÉÇϸç Àαٿ¡ ³ë¼±¹ö½ºÁ¤·ùÀåÀÌ ¼ÒÀçÇÏ´Â µî Á¦¹Ý ±³Åë»óȲÀº º¸ÅëÀÓ.
3)°Ç¹°ÀÇ ±¸Á¶
ö±ÙÄÜÅ©¸®Æ®±¸Á¶ (ö±Ù)ÄÜÅ©¸®Æ®ÁöºØ Á¦1Ãþ Á¦103È£·Î¼­,

-¿Üº® : µ¹ºÙÀÓ ¹× ¸ôÅ»À§ ÆäÀÎÆÃ ¸¶°¨ µî.
-³»º® : º®Áö ¹× ÀϺΠŸÀϸ¶°¨.
-âȣ : ¼¦½Ã âȣÀÓ.
4)ÀÌ¿ë»óÅÂ
°øµ¿ÁÖÅÃ(¿¬¸³ÁÖÅÃ)(¹æ3, °Å½Ç, ÁÖ¹æ/½Ä´ç, ¿å½Ç ¹× È­Àå½Ç2, ¹ßÄÚ´Ï µî)·Î ÀÌ¿ëÁßÀÓ.
5)¼³ºñ³»¿ª
À§»ý ¹× ±Þ¹è¼ö¼³ºñ, Àü±â¼³ºñ, ³­¹æ¼³ºñ, ½Â°­±â¼³ºñ, ¼ÒÈ­Àü ¼³ºñ µîÀÌ ±¸ºñµÇ¾î ÀÖÀ½.
6)ÅäÁöÀÇ Çü»ó ¹× ÀÌ¿ë»óÅÂ
»ç´Ù¸®ÇüÀÇ ÅäÁö·Î¼­ °øµ¿ÁÖÅÃ(¿¬¸³ÁÖÅÃ) °ÇºÎÁö·Î ÀÌ¿ë ÁßÀÓ.
7)ÀÎÁ¢ µµ·Î»óŵî
º»°Ç ´ÜÁö ³» Æ÷Àåµµ·Î°¡ °³¼³µÇ¾î ÀÖÀ¸¸ç ÀÎÁ¢ °øµµ¿Í ¿¬°èµÇ¾î ÀÖÀ½.
8)ÅäÁöÀÌ¿ë°èȹ ¹× Á¦ÇÑ»óÅÂ
Á¦1Á¾ÀϹÝÁÖ°ÅÁö¿ª, Áö±¸´ÜÀ§°èȹ±¸¿ª(º°³»ÅÃÁöÁö±¸), ´ë·Î3·ù(Æø 25m~30m)(Á¢ÇÕ), ¼Ò·Î2·ù
(Æø 8m~10m)(º¸ÇàÀÚÀü¿ëµµ·Î)(Á¢ÇÕ), °¡Ãà»çÀ°Á¦Çѱ¸¿ª, »ó´ëº¸È£±¸¿ª(º°°¡¶÷ÃʵîÇб³),
Àý´ëº¸È£±¸¿ª(º°°¡¶÷ÃʵîÇб³), ¿ª»ç¹®È­È¯°æº¸Á¸Áö¿ª(±¸Á¤³²À繦¿ª º¸È£±¸¿ª¿Ü°û°æ°è·ÎºÎÅÍ
200MÀ̳»), ¿ª»ç¹®È­È¯°æº¸Á¸Áö¿ª(±¸Á¤³²À繦¿ª º¸È£±¸¿ª¿Ü°û°æ°è·ÎºÎÅÍ200MÀÌ»ó300MÀ̳»ÀÇ
Áö¿ª), ¹èÃâ½Ã¼³¼³Ä¡Á¦ÇÑÁö¿ª, ¼ºÀå°ü¸®±Ç¿ª, °øÀå¼³¸³½ÂÀÎÁö¿ª(¼öµµ¹ý½ÃÇà·É Á¦14Á¶ÀÇ3 1È£
), ÅÃÁö°³¹ßÁö±¸(º°³»Áö±¸)ÀÓ.
9)°øºÎ¿ÍÀÇ Â÷ÀÌ
¾øÀ½.
10)±âŸÂü°í»çÇ×(ÀÓ´ë°ü·Ê ¹× ±âŸ)
- ÀÓ´ë°ü°è : ¹Ì»óÀÓ.

- ±âŸ : ÇØ´ç»çÇ× ¾øÀ½.

Âü°í
»çÇ×

¸ñ·Ï ºÎ

°ÇÃ๰ÇöȲ

¼ÒÀçÁö °æ±âµµ ³²¾çÁֽà º°³»µ¿ 919¹øÁö
´ëÁö¸éÀû   ¿¬¸éÀû 227.69§³
(69Æò)
°ÇÃà¸éÀû   ¿ëÀû·ü»êÁ¤
¿¬¸éÀû
 
°ÇÆóÀ²   ¿ëÀû·ü  
Áö»óÃþ¼ö   ÁöÇÏÃþ¼ö 1Ãþ
ÁÖ¿ëµµ °øµ¿ÁÖÅà ±¸Á¶ ö±ÙÄÜÅ©¸®Æ®±¸Á¶
Âø°øÀÏÀÚ 2015.10.07 »ç¿ë½ÂÀÎÀÏÀÚ 2017.03.24
°ÇÃ๰Ãþº°ÇöȲ [º¸±â]


±¹ÅäºÎ½Ç°Å·¡°¡ °æ±âµµ ³²¾çÁֽà º°³»µ¿

¡Ü ¸Å¸Å

¸éÀû(§³), ±Ý¾×(¸¸¿ø)

¡Ü Àü¼¼

¸éÀû(§³), ±Ý¾×(¸¸¿ø)

°è¾àÀϰǹ°¸íĪÃþ¿¬¸éÀûº¸Áõ±Ý¿ù¼¼°ÇÃà
26.03.05º°³»È¿¼ºÇظµÅÏÄÚÆ®184.8836,75002017
26.02.12º°³»È¿¼ºÇظµÅÏÄÚÆ®384.8870,0002017
26.02.03º°³»È¿¼ºÇظµÅÏÄÚÆ®284.8754,00002017
26.01.26º°³»È¿¼ºÇظµÅÏÄÚÆ®384.8867,5002017
26.01.21º°³»È¿¼ºÇظµÅÏÄÚÆ®484.8860,00002017
¢Ñ ´õº¸±â

µî±âºÎµîº» ¿ä¾à(°Ç¹°)

  Á¢¼öÀÏÀÚ µî±â¸ñÀû/±Ç¸®ÀÚ ±Ç¸®±Ý¾× ±âÁØ
1 2017³â7¿ù11ÀÏ
¼ÒÀ¯±Ç
ÀÌOO
¼Ò¸ê
2 2021³â1¿ù5ÀÏ
±ÙÀú´ç±Ç
ȕOOOO
36,000,000 ¼Ò¸ê±âÁØ
3 2024³â3¿ù26ÀÏ
±ÙÀú´ç±Ç
(OOOO
450,000,000 ¼Ò¸ê
4 2024³â3¿ù26ÀÏ
±ÙÀú´ç±Ç
(OOOO
270,000,000 ¼Ò¸ê
5 2024³â11¿ù27ÀÏ
°¡¾Ð·ù
·ÔOOOO
6,225,744 ¼Ò¸ê
6 2024³â12¿ù5ÀÏ
°¡¾Ð·ù
½ÅOOOO
45,376,504 ¼Ò¸ê
7 2024³â12¿ù10ÀÏ
°¡¾Ð·ù
(OOOO
9,229,171 ¼Ò¸ê
8 2024³â12¿ù17ÀÏ
°¡¾Ð·ù
(OOOO
32,648,289 ¼Ò¸ê
9 2024³â12¿ù23ÀÏ
°¡¾Ð·ù
³óOOOO
10,397,020 ¼Ò¸ê
10 2025³â4¿ù23ÀÏ
ÀÓÀǰæ¸Å
(OOOO
¼Ò¸ê

ÀÓÂ÷ÀÎÇöȲ (¹è´ç¿ä±¸Á¾±âÀÏ: 2025-07-08)



¸Å°¢±âÀÏ 7ÀÏÀü¿¡ °ø°íµÇ¿À´Ï È®ÀÎÇϽñ⠹ٶø´Ï´Ù.


¿©ÀÇÁÖ°æ¸Å Á¶¾ð ÇÑ ¸¶µð


ÁÖÀÇ»çÇ× (ÃÖ¼±¼øÀ§ ¼³Á¤ÀÏ: 2021. 1. 5. ±ÙÀú´ç±Ç ¼³Á¤)

¸Å°¢À¸·Î ¼Ò¸êµÇÁö ¾Ê´Â µî±âºÎ±Ç¸®:
¸Å°¢À¸·Î ¼³Á¤µÈ °ÍÀ¸·Î º¸´Â Áö»ó±Ç:
¡Ø¹Ì³³°ü¸®ºñ(°ø¿ë) Àμö¿©ºÎ¸¦ ÀÔÂû Àü¿¡ È®ÀÎÇϽñ⠹ٶø´Ï´Ù

 

Áö¿ªºÐ¼®

ÁöÇÏö¸í Á÷¼±°Å¸®

Çб³¸í ÀüÈ­¹øÈ£ ÁÖ¼Ò Á÷¼±°Å¸®

¹ý¿ø

ÀÇÁ¤ºÎÁö¹æ¹ý¿ø ³²¾çÁÖÁö¿ø (122-49)°æ±âµµ ³²¾çÁֽà ´Ù»êÁß¾Ó·Î82¹ø¾È±æ 161(´Ù»êµ¿)
´ëÇ¥ : 031)869-4114
°üÇÒÁö¿ª : °¡Æò±º, ±¸¸®½Ã, ³²¾çÁÖ½Ã

µî±â¼Ò ÀÇÁ¤ºÎÁö¹æ¹ý¿ø º»¿ø ³²¾çÁÖµî±â¼Ò (´ëÇ¥:1544-0773, ÆÑ½º:(031)551-2010, °æ±âµµ ³²¾çÁֽà °æÃá·Î 514 (Áö±Ýµ¿ 158-4))
¼¼¹«¼­ ³²¾çÁÖ¼¼¹«¼­ (´ëÇ¥:031-550-32, ÆÑ½º:031-566-1808, °æ±âµµ ±¸¸®½Ã ¾È°ñ·Î 36 (±³¹®µ¿))

Àαٳ«ÂûÅë°è

±â°£ ¸Å°¢°Ç¼ö Æò±Õ°¨Á¤°¡
Æò±Õ¸Å°¢°¡
¸Å°¢°¡À²
Æò±ÕÀ¯Âû¼ö
3°³¿ù 11°Ç 192,636,364¿ø
123,650,982¿ø
66%
1.6ȸ
6°³¿ù 26°Ç 219,972,308¿ø
151,802,211¿ø
69%
1.5ȸ
12°³¿ù 36°Ç 200,591,111¿ø
140,588,680¿ø
70%
1.4ȸ


º» °æ¸ÅÁ¤º¸´Â ¹ý¿øÀÚ·á¿Í ÀÏÄ¡Çϵµ·Ï ÇÏ¿´À¸³ª ±Ç¸®»çÇ׺¯µ¿, ÀÔ·ÂÂø¿À µîÀÇ ¿øÀÎÀ¸·Î »ç½Ç°ú ´Ù¸¦ ¼ö ÀÖ½À´Ï´Ù. ÀÌ¿ë¾à°ü¿¡ ÀǰЏéÃ¥Á¶°ÇÀ¸·Î Á¦°øµÊÀ» ¾Ë¸®¸ç, °æ¸ÅÀÔÂû½Ã ¹Ýµå½Ã °ü·Ã °øºÎ¸¦ ÀçÈ®ÀÎÇϽñ⠹ٶø´Ï´Ù. º¸´Ù Æí¸®ÇÑ °æ¸ÅÁ¤º¸ Á¦°øÀ» À§ÇØ Áö¼ÓÀûÀ¸·Î °³¼±ÇϰڽÀ´Ï´Ù. ÀÌ¿ëÇØ Áּż­ °¨»çÇÕ´Ï´Ù.