·Î±×ÀÎ
41
´Ù¼¼´ë(ºô¶ó)
¿ï»êÁö¹æ¹ý¿ø
 °¨Á¤°¡37,000,000 ¿ø
 ÃÖÀú°¡(70%) 25,900,000 ¿ø
 º¸Áõ±Ý(10%) 2,590,000 ¿ø
 Ã»±¸¾×16,624,131 ¿ø
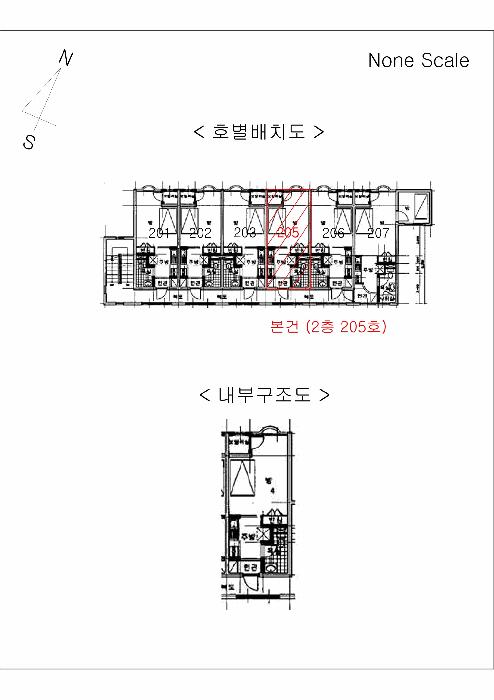
¿ï»ê±¤¿ª½Ã ³²±¸ ¾ßÀ½µ¿ 20-19 Âü±×¸°ºô¶ó 2Ãþ205È£
»ç°Ç¹øÈ£ 2025Ÿ°æ11506
°æ¸ÅÁ¾·ùºÎµ¿»ê°­Á¦°æ¸Å
¸Å°¢´ë»óÅäÁö ¹× °Ç¹°Àϰý ¸Å°¢
¸Å°¢±âÀÏ    2026.05.07(¸ñ) 10:00 ÀÔÂû 31ÀÏÀü    
ÅäÁö¸éÀû26.55§³(8.03 Æò)
°Ç¹°¸éÀû26.90§³(8.14 Æò)
乫/¼ÒÀ¯ÀÚ¼ÕOO¿Ü 1¸í / ¼ÕOO¿Ü 1¸í
ä±ÇÀÚ½ÅOOO OOOO
ÆäÀ̽ººÏ Æ®À§ÅÍ ±¸±Û+
īī¿À½ºÅ丮
īī¿ÀÅå sms¹®ÀÚº¸³»±â
 

±âÀϳ»¿ª

°æ°ú ³¯Â¥ Àú°¨ ÃÖÀú°¡ °á°ú
Á¢¼öÀÏ 2025-03-14 °æ¸ÅÁ¢¼ö
~3ÀÏ 
2025-03-17 °æ¸Å°³½Ã°áÁ¤
~94ÀÏ 
2025-06-16 ¹è´ç¿ä±¸Á¾±âÀÏ
~383ÀÏ 
2026-04-01 100%
37,000,000
À¯Âû
~419ÀÏ 
2026-05-07 70%
25,900,000
ÁøÇà
¹°°Ç¸í¼¼¼­ ÇöȲÁ¶»ç¼­ ¹®°ÇÁ¢¼ö ¼Û´Þ³»¿ª

°¨Á¤Æò°¡ÇöȲ

¸ñ·Ï ÁÖ¼Ò ±¸Á¶/¿ëµµ/´ëÁö±Ç ¸éÀû ºñ°í
´ëÁö±Ç
¾ßÀ½µ¿ 20-19 512ºÐÀÇ 26.55 26.55 §³
(8.03Æò)
°Ç¹°
¾ßÀ½µ¿ 20-19 2Ãþ205È£ ö±ÙÄÜÅ©¸®Æ®Á¶ 26.90 §³
(8.14Æò)
1) À§Ä¡/µµ½ÃÁö¿ª/Á¦1Á¾ÀϹÝÁÖ°ÅÁö¿ª/Â÷·® Á¢±ÙÀÌ °¡´É/ö±ÙÄÜÅ©¸®Æ®±¸Á¶/½½·¡ºêÁöºØ ´õº¸±â
°¨Á¤Æò°¡ ¿äÇ×Ç¥
1)À§Ä¡ ¹× ÁÖÀ§È¯°æ
º»°ÇÀº ¿ï»ê±¤¿ª½Ã ³²±¸ ¾ßÀ½µ¿ ¼ÒÀç 'ÅÂÈ­ÁßÇб³' ³²Ãø Àαٿ¡ À§Ä¡ÇÏ´Â Âü±×¸°ºô¶ó
2Ãþ 205È£·Î¼­, ÁÖÀ§´Â ´Üµ¶ÁÖÅÃ, ´Ù¼¼´ëÁÖÅÃ, ±Ù¸°»ýȰ½Ã¼³ ¹× ÁְųªÁö µîÀ¸·Î Çü¼º
µÇ¾îÀÖÀ½.
2)±³Åë»óȲ
º»°Ç ÀαٱîÁö Â÷·® Á¢±ÙÀÌ °¡´ÉÇϸç, ÀϹÝÀûÀÎ ±³Åë»çÁ¤ º¸Åë½ÃµÊ.
3)°Ç¹°ÀÇ ±¸Á¶
ö±ÙÄÜÅ©¸®Æ®±¸Á¶ ö±ÙÄÜÅ©¸®Æ®½½·¡ºêÁöºØ 3Ãþ°Ç ³» 2Ãþ 205È£·Î¼­,
¿Üº®: µå¶óÀ̺ñÆ® ¸¶°¨,
³»º®: º®Áö¹Ù¸§, ÀϺΠ³»Àå ŸÀϺÙÀÓ µî,
âȣ: ¼¦½ÃâȣÀÓ.
4)ÀÌ¿ë»óÅÂ
°øµ¿ÁÖÅÃ(´Ù¼¼´ëÁÖÅÃ)À¸·Î ÀÌ¿ëÁßÀÓ.
5)¼³ºñ³»¿ª
À§»ý ¹× ±Þ,¹è¼ö ¼³ºñ, ³­¹æ¼³ºñ µîÀÌ µÇ¾îÀÖÀ½.
6)ÅäÁöÀÇ Çü»ó ¹× ÀÌ¿ë»óÅÂ
¿Ï°æ»çÁö¿¡ À§Ä¡ÇÑ »ç´Ù¸®Çü°ú À¯»çÇÑ ÅäÁö·Î¼­, °øµ¿ÁÖÅÃ(´Ù¼¼´ëÁÖÅÃ) ºÎÁö·Î ÀÌ¿ëÁßÀÓ.
7)ÀÎÁ¢ µµ·Î»óŵî
º»°Ç ³²¼­ÃøÀ¸·Î Æø ¾à 2~3¹ÌÅÍ µµ·Î¿¡ Á¢ÇÔ.
8)ÅäÁöÀÌ¿ë°èȹ ¹× Á¦ÇÑ»óÅÂ
µµ½ÃÁö¿ª, Á¦1Á¾ÀϹÝÁÖ°ÅÁö¿ª °¡Ãà»çÀ°Á¦Çѱ¸¿ª±âŸ(ÀϺÎÁ¦ÇÑ)<°¡ÃàºÐ´¢ÀÇ °ü¸® ¹× À̿뿡 °üÇÑ ¹ý·ü>, »ó´ëº¸È£±¸¿ª(2017-03-30)(»õ¶óÀ¯Ä¡¿ø)<±³À°È¯°æ º¸È£¿¡ °üÇÑ ¹ý·ü>, »ó´ëº¸È£±¸¿ª(ÅÂÈ­ÁßÇб³)<±³À°È¯°æ º¸È£¿¡ °üÇÑ ¹ý·ü> ÀÓ.
9)°øºÎ¿ÍÀÇ Â÷ÀÌ
¾ø À½.
10)±âŸÂü°í»çÇ×(ÀÓ´ë°ü·Ê ¹× ±âŸ)
°¡. ÀÓ´ë°ü°è
¹Ì»óÀÓ.

³ª. ±âŸ
¾ø À½.
Âü°í
»çÇ×

º»°ÇÀº ¿ï»ê±¤¿ª½Ã ³²±¸ ¾ßÀ½µ¿¿¡ ¼ÒÀçÇÏ´Â °øµ¿ÁÖÅÃÀÓ.

°ÇÃ๰ÇöȲ

¼ÒÀçÁö ¿ï»ê±¤¿ª½Ã ³²±¸ ¾ßÀ½µ¿ 20-19¹øÁö
´ëÁö¸éÀû 511§³
(154.85Æò)
¿¬¸éÀû 619.11§³
(187.61Æò)
°ÇÃà¸éÀû 206.37§³
(62.54Æò)
¿ëÀû·ü»êÁ¤
¿¬¸éÀû
619.11§³
(187.61Æò)
°ÇÆóÀ² 40.38% ¿ëÀû·ü 121.16%
Áö»óÃþ¼ö 3Ãþ ÁöÇÏÃþ¼ö  
ÁÖ¿ëµµ °øµ¿ÁÖÅà ±¸Á¶ ö±ÙÄÜÅ©¸®Æ®±¸Á¶
Âø°øÀÏÀÚ 2001.02.20 »ç¿ë½ÂÀÎÀÏÀÚ 2001.11.29
°ÇÃ๰Ãþº°ÇöȲ [º¸±â]


±¹ÅäºÎ½Ç°Å·¡°¡ ¿ï»ê±¤¿ª½Ã ³²±¸ ¾ßÀ½µ¿

¡Ü ¸Å¸Å

¸éÀû(§³), ±Ý¾×(¸¸¿ø)

¡Ü Àü¼¼

¸éÀû(§³), ±Ý¾×(¸¸¿ø)

°è¾àÀϰǹ°¸íĪÃþ¿¬¸éÀûº¸Áõ±Ý¿ù¼¼°ÇÃà
26.03.23´ëÇö159.278,00051978
26.03.09Àײ¿¿ø·ë328.14500302003
26.03.04´ëÇö159.279,00001978
26.02.13¾ÆÁÖºô¶ó357.8211,00001992
26.01.31°­µ¿ºô¶ó469.4511,00001991
¢Ñ ´õº¸±â

µî±âºÎµîº» ¿ä¾à(°Ç¹°)

  Á¢¼öÀÏÀÚ µî±â¸ñÀû/±Ç¸®ÀÚ ±Ç¸®±Ý¾× ±âÁØ
1 2009³â5¿ù20ÀÏ
¼ÒÀ¯±Ç
¼ÕOO
¼Ò¸ê
2 2025³â3¿ù17ÀÏ
°­Á¦°æ¸Å
½ÅOOOO
¼Ò¸ê±âÁØ
3 2025³â6¿ù16ÀÏ
°¡¾Ð·ù
(OOOO
15,198,255 ¼Ò¸ê

ÀÓÂ÷ÀÎÇöȲ (¹è´ç¿ä±¸Á¾±âÀÏ: 2025-06-16)


Á¶»çµÈ ÀÓÂ÷³»¿ªÀÌ ¾ø½À´Ï´Ù


¿©ÀÇÁÖ°æ¸Å Á¶¾ð ÇÑ ¸¶µð


ÁÖÀÇ»çÇ× (ÃÖ¼±¼øÀ§ ¼³Á¤ÀÏ: )

¸Å°¢À¸·Î ¼Ò¸êµÇÁö ¾Ê´Â µî±âºÎ±Ç¸®:
¸Å°¢À¸·Î ¼³Á¤µÈ °ÍÀ¸·Î º¸´Â Áö»ó±Ç:
¡Ø¹Ì³³°ü¸®ºñ(°ø¿ë) Àμö¿©ºÎ¸¦ ÀÔÂû Àü¿¡ È®ÀÎÇϽñ⠹ٶø´Ï´Ù

 

Áö¿ªºÐ¼®

ÁöÇÏö¸í Á÷¼±°Å¸®

Çб³¸í ÀüÈ­¹øÈ£ ÁÖ¼Ò Á÷¼±°Å¸®

¹ý¿ø

¿ï»êÁö¹æ¹ý¿ø (446-43)¿ï»ê±¤¿ª½Ã ³²±¸ ¹ý´ë·Î 55(¿Áµ¿ 1415)
´ëÇ¥ : 052)216-8000, ¹Î¿ø : 052)216-8021~3
°üÇÒÁö¿ª : ¿ï»ê±¤¿ª½Ã, ¾ç»ê½Ã

µî±â¼Ò ¿ï»êÁö¹æ¹ý¿ø º»¿ø µî±â°ú (´ëÇ¥:1544-0773, ÆÑ½º:(052)260-6293, ¿ï»ê±¤¿ª½Ã ³²±¸ ¹ý´ë·Î 55 (¿Áµ¿ 1415))
¼¼¹«¼­ ¿ï»ê¼¼¹«¼­ (´ëÇ¥:052-259-02, ÆÑ½º:052-266-2135, ¿ï»ê±¤¿ª½Ã ³²±¸ °¥¹ç·Î 49 (»ï»êµ¿))

Àαٳ«ÂûÅë°è

±â°£ ¸Å°¢°Ç¼ö Æò±Õ°¨Á¤°¡
Æò±Õ¸Å°¢°¡
¸Å°¢°¡À²
Æò±ÕÀ¯Âû¼ö
3°³¿ù 21°Ç 351,047,619¿ø
347,050,039¿ø
98%
1ȸ
6°³¿ù 40°Ç 334,522,250¿ø
323,808,421¿ø
95%
1ȸ
12°³¿ù 87°Ç 335,458,506¿ø
299,652,509¿ø
88%
1.3ȸ


º» °æ¸ÅÁ¤º¸´Â ¹ý¿øÀÚ·á¿Í ÀÏÄ¡Çϵµ·Ï ÇÏ¿´À¸³ª ±Ç¸®»çÇ׺¯µ¿, ÀÔ·ÂÂø¿À µîÀÇ ¿øÀÎÀ¸·Î »ç½Ç°ú ´Ù¸¦ ¼ö ÀÖ½À´Ï´Ù. ÀÌ¿ë¾à°ü¿¡ ÀǰЏéÃ¥Á¶°ÇÀ¸·Î Á¦°øµÊÀ» ¾Ë¸®¸ç, °æ¸ÅÀÔÂû½Ã ¹Ýµå½Ã °ü·Ã °øºÎ¸¦ ÀçÈ®ÀÎÇϽñ⠹ٶø´Ï´Ù. º¸´Ù Æí¸®ÇÑ °æ¸ÅÁ¤º¸ Á¦°øÀ» À§ÇØ Áö¼ÓÀûÀ¸·Î °³¼±ÇϰڽÀ´Ï´Ù. ÀÌ¿ëÇØ Áּż­ °¨»çÇÕ´Ï´Ù.