·Î±×ÀÎ
3
´Ù¼¼´ë(ºô¶ó)
ÀÎõÁö¹æ¹ý¿ø
 °¨Á¤°¡61,000,000 ¿ø
 ÃÖÀú°¡(100%) 61,000,000 ¿ø
 º¸Áõ±Ý(10%) 6,100,000 ¿ø
 Ã»±¸¾×49,137,366 ¿ø
ÀÎõ±¤¿ª½Ã ³²µ¿±¸ ¸¸¼öµ¿ 111-33 û±¸ºô¶ó 2Ãþ201È£
»ç°Ç¹øÈ£ 2025Ÿ°æ1269
°æ¸ÅÁ¾·ùºÎµ¿»êÀÓÀǰæ¸Å
¸Å°¢´ë»óÅäÁö ¹× °Ç¹°Àϰý ¸Å°¢
¸Å°¢±âÀÏ    2026.04.01(¼ö) 10:00 ÀÔÂû 14ÀÏÀü    
ÅäÁö¸éÀû9.88§³(2.99 Æò)
°Ç¹°¸éÀû31.20§³(9.44 Æò)
乫/¼ÒÀ¯ÀÚÀÌOO / ÀÌOO
ä±ÇÀÚ´ëOOOOOOO
ÆäÀ̽ººÏ Æ®À§ÅÍ ±¸±Û+
īī¿À½ºÅ丮
īī¿ÀÅå sms¹®ÀÚº¸³»±â
 

±âÀϳ»¿ª

°æ°ú ³¯Â¥ Àú°¨ ÃÖÀú°¡ °á°ú
Á¢¼öÀÏ 2025-06-23 °æ¸ÅÁ¢¼ö
~11ÀÏ 
2025-07-04 °æ¸Å°³½Ã°áÁ¤
~109ÀÏ 
2025-10-10 ¹è´ç¿ä±¸Á¾±âÀÏ
~282ÀÏ 
2026-04-01 100%
61,000,000
ÁøÇà
¹°°Ç¸í¼¼¼­ ÇöȲÁ¶»ç¼­ ¹®°ÇÁ¢¼ö ¼Û´Þ³»¿ª

°¨Á¤Æò°¡ÇöȲ

¸ñ·Ï ÁÖ¼Ò ±¸Á¶/¿ëµµ/´ëÁö±Ç ¸éÀû ºñ°í
´ëÁö±Ç
¸¸¼öµ¿ 111-33 158ºÐÀÇ 9.875 9.875 §³
(2.99Æò)
°Ç¹°
¸¸¼öµ¿ 111-33 2Ãþ201È£ ö±ÙÄÜÅ©¸®Æ®Á¶ 31.20 §³
(9.44Æò)
1) À§Ä¡/Á¦2Á¾ÀϹÝÁÖ°ÅÁö¿ª/¹ö½ºÁ¤·ùÀå/ö±ÙÄÜÅ©¸®Æ®Á¶/½½·¡ºêÁöºØ ´õº¸±â
°¨Á¤Æò°¡ ¿äÇ×Ç¥
1)À§Ä¡ ¹× ÁÖÀ§È¯°æ
º»°ÇÀº ÀÎõ±¤¿ª½Ã ³²µ¿±¸ ¸¸¼öµ¿ ¼ÒÀç 'ÀÎõµ¿ºÎÃʵîÇб³' ºÏÃø Àαٿ¡ À§Ä¡Çϸç,
ÁÖÀ§´Â ´Ù¼¼´ëÁÖÅÃ, ´Üµ¶ÁÖÅÃ, ¾ÆÆÄÆ® µîÀ¸·Î Çü¼ºµÈ Áö¿ªÀ¸·Î Á¦¹Ý ÁÖº¯È¯°æÀº
º¸Åë½ÃµÊ.
2)±³Åë»óȲ
º»°Ç±îÁö Â÷·®ÀÇ ÁøÃâÀÔÀÌ °¡´ÉÇϸç, Àαٿ¡ ¹ö½ºÁ¤·ùÀåÀÌ ¼ÒÀçÇÏ´Â µî Á¦¹Ý ±³Åë»óȲÀº
¹«³­ÇÔ.
3)°Ç¹°ÀÇ ±¸Á¶
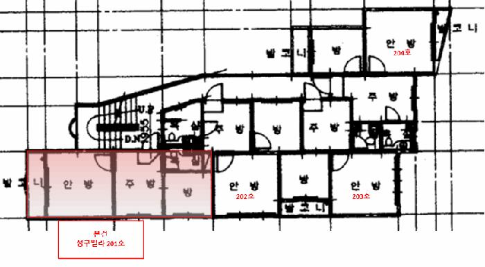
ö±ÙÄÜÅ©¸®Æ®Á¶ ½½·¡ºêÁöºØ Áö»ó4Ãþ °Ç Áß Á¦2Ãþ Á¦201È£·Î¼­
¿Üº® : ¸ôÅ» À§ ÆäÀÎÆÃ ¸¶°¨ µî
³»º® : º®Áö µµ¹è ¹× ÀϺΠŸÀÏ ¸¶°¨ ÃßÁ¤
âȣ : ¼¦½ÃâȣÀÓ.
4)ÀÌ¿ë»óÅÂ
´Ù¼¼´ëÁÖÅÃÀ¸·Î ÀÌ¿ëÁßÀÓ.
5)¼³ºñ³»¿ª
À§»ý ¹× ±Þ¹è¼ö¼³ºñ µîÀÌ µÇ¾î ÀÖÀ½.
6)ÅäÁöÀÇ Çü»ó ¹× ÀÌ¿ë»óÅÂ
ÀÎÁ¢Áö ¹× ÀÎÁ¢µµ·Î¿Í µî°íÆòźÇÑ »ç´Ù¸®ÇüÀÇ ÅäÁö·Î¼­ ´Ù¼¼´ëÁÖÅà °ÇºÎÁö·Î ÀÌ¿ëÁßÀÓ.
7)ÀÎÁ¢ µµ·Î»óŵî
ºÏÃøÀ¸·Î ¼¼·ÎÀÇ Æ÷Àåµµ·Î¿¡ Á¢ÇÔ.
8)ÅäÁöÀÌ¿ë°èȹ ¹× Á¦ÇÑ»óÅÂ
Á¦2Á¾ÀϹÝÁÖ°ÅÁö¿ª, °¡Ãà»çÀ°Á¦Çѱ¸¿ª(2013-03-08)((¹®ÀÇ:³²µ¿±¸È¯°æº¸Àü°ú 032-453-2343))
<°¡ÃàºÐ´¢ÀÇ °ü¸® ¹× À̿뿡 °üÇÑ ¹ý·ü>, »ó´ëº¸È£±¸¿ª(¹®ÀÇ: ÀÎõµ¿ºÎ±³À°Áö¿øÃ»
Æò»ý±³À°°Ç°­°ú 460-6086)<±³À°È¯°æ º¸È£¿¡ °üÇÑ ¹ý·ü>, °ú¹Ð¾ïÁ¦±Ç¿ª<¼öµµ±ÇÁ¤ºñ°èȹ¹ý>
9)°øºÎ¿ÍÀÇ Â÷ÀÌ
¾øÀ½.
10)±âŸÂü°í»çÇ×(ÀÓ´ë°ü·Ê ¹× ±âŸ)
ÀÓ´ë°ü°è´Â ¹Ì»óÀÓ.
»ç¿ë½ÂÀÎÀÏ : 1996.10.04
Âü°í
»çÇ×

º»°ÇÀº ºô¶ó ¹ÐÁý Áö¿ª¿¡ À§Ä¡ÇÔ


±¹ÅäºÎ½Ç°Å·¡°¡ ÀÎõ±¤¿ª½Ã ³²µ¿±¸ ¸¸¼öµ¿

¡Ü ¸Å¸Å

¸éÀû(§³), ±Ý¾×(¸¸¿ø)

¡Ü Àü¼¼

¸éÀû(§³), ±Ý¾×(¸¸¿ø)

°è¾àÀϰǹ°¸íĪÃþ¿¬¸éÀûº¸Áõ±Ý¿ù¼¼°ÇÃà
26.03.13¼ÛÁ¤(1097-13)3µ¿334.926,3501991
26.03.13¿ìÁøºô¶ó(877-10)°¡µ¿-140.274,0001992
26.03.13´ë¿ìºô¶ó(3µ¿)135.075,00001989
26.03.12´ë»êºô¶ó(111-328)1µ¿136.63500301990
26.03.12Çö´ëºô¶ó(109-241)Bµ¿238.544,5491997
¢Ñ ´õº¸±â


ÀÓÂ÷ÀÎÇöȲ (¹è´ç¿ä±¸Á¾±âÀÏ: 2025-10-10)



¸Å°¢±âÀÏ 7ÀÏÀü¿¡ °ø°íµÇ¿À´Ï È®ÀÎÇϽñ⠹ٶø´Ï´Ù.


¿©ÀÇÁÖ°æ¸Å Á¶¾ð ÇÑ ¸¶µð


ÁÖÀÇ»çÇ× (ÃÖ¼±¼øÀ§ ¼³Á¤ÀÏ: )

¸Å°¢À¸·Î ¼Ò¸êµÇÁö ¾Ê´Â µî±âºÎ±Ç¸®:
¸Å°¢À¸·Î ¼³Á¤µÈ °ÍÀ¸·Î º¸´Â Áö»ó±Ç:
¡Ø¹Ì³³°ü¸®ºñ(°ø¿ë) Àμö¿©ºÎ¸¦ ÀÔÂû Àü¿¡ È®ÀÎÇϽñ⠹ٶø´Ï´Ù

 

Áö¿ªºÐ¼®

ÁöÇÏö¸í Á÷¼±°Å¸®

Çб³¸í ÀüÈ­¹øÈ£ ÁÖ¼Ò Á÷¼±°Å¸®

¹ý¿ø

ÀÎõÁö¹æ¹ý¿ø (222-20)ÀÎõ±¤¿ª½Ã ¹ÌÃßȦ±¸ ¼Ò¼º·Î 163¹ø±æ 17(ÇÐÀ͵¿)
´ëÇ¥ : 032)860-1113~4
°üÇÒÁö¿ª : Áß±¸, µ¿±¸, ³²±¸, ¿¬¼ö±¸, ³²µ¿±¸, ºÎÆò±¸, °è¾ç±¸, ¼­±¸, ¿ËÁø±º, °­È­±º

µî±â¼Ò ÀÎõÁö¹æ¹ý¿ø º»¿ø µî±â±¹ (´ëÇ¥:1544-0773, ÆÑ½º:(032)620-9099, ÀÎõ±¤¿ª½Ã ¹ÌÃßȦ±¸ °æ¿ø´ë·Î 881(Á־ȵ¿ 983))
¼¼¹«¼­ ³²ÀÎõ¼¼¹«¼­ (´ëÇ¥:032-460-52, ÆÑ½º:032-463-5778, ÀÎõ±¤¿ª½Ã ³²µ¿±¸ ÀÎÇÏ·Î 548 (±¸¿ùµ¿))

Àαٳ«ÂûÅë°è

±â°£ ¸Å°¢°Ç¼ö Æò±Õ°¨Á¤°¡
Æò±Õ¸Å°¢°¡
¸Å°¢°¡À²
Æò±ÕÀ¯Âû¼ö
3°³¿ù 81°Ç 125,676,543¿ø
70,676,335¿ø
55%
2.4ȸ
6°³¿ù 146°Ç 122,188,356¿ø
70,468,681¿ø
56%
2.4ȸ
12°³¿ù 297°Ç 128,141,818¿ø
78,032,000¿ø
59%
2.3ȸ


º» °æ¸ÅÁ¤º¸´Â ¹ý¿øÀÚ·á¿Í ÀÏÄ¡Çϵµ·Ï ÇÏ¿´À¸³ª ±Ç¸®»çÇ׺¯µ¿, ÀÔ·ÂÂø¿À µîÀÇ ¿øÀÎÀ¸·Î »ç½Ç°ú ´Ù¸¦ ¼ö ÀÖ½À´Ï´Ù. ÀÌ¿ë¾à°ü¿¡ ÀǰЏéÃ¥Á¶°ÇÀ¸·Î Á¦°øµÊÀ» ¾Ë¸®¸ç, °æ¸ÅÀÔÂû½Ã ¹Ýµå½Ã °ü·Ã °øºÎ¸¦ ÀçÈ®ÀÎÇϽñ⠹ٶø´Ï´Ù. º¸´Ù Æí¸®ÇÑ °æ¸ÅÁ¤º¸ Á¦°øÀ» À§ÇØ Áö¼ÓÀûÀ¸·Î °³¼±ÇϰڽÀ´Ï´Ù. ÀÌ¿ëÇØ Áּż­ °¨»çÇÕ´Ï´Ù.