·Î±×ÀÎ
52
¿ÀÇǽºÅÚ
¼ö¿øÁö¹æ¹ý¿ø
 °¨Á¤°¡143,000,000 ¿ø
 ÃÖÀú°¡(70%) 100,100,000 ¿ø
 º¸Áõ±Ý(10%) 10,010,000 ¿ø
 Ã»±¸¾×164,068,493 ¿ø
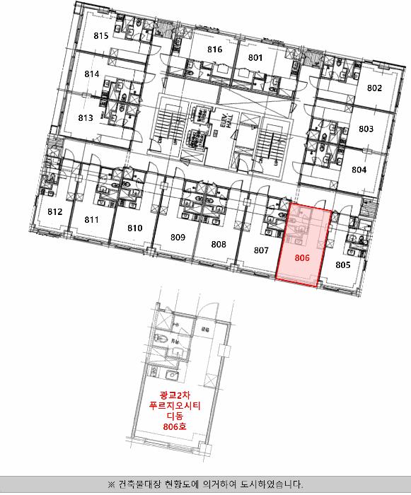
°æ±âµµ ¿ëÀνà ¼öÁö±¸ »óÇöµ¿ 1117-8 ±¤±³2Â÷Ǫ¸£Áö¿À½ÃƼ µðµ¿ 8Ãþ806È£
»ç°Ç¹øÈ£ 2025Ÿ°æ54785
°æ¸ÅÁ¾·ùºÎµ¿»ê°­Á¦°æ¸Å
¸Å°¢´ë»óÅäÁö ¹× °Ç¹°Àϰý ¸Å°¢
¸Å°¢±âÀÏ    2026.05.06(¼ö) 10:00 ÀÔÂû 30ÀÏÀü    
ÅäÁö¸éÀû6.58§³(1.99 Æò)
°Ç¹°¸éÀû23.64§³(7.15 Æò)
乫/¼ÒÀ¯ÀÚ½ÅOO / ½ÅOO
ä±ÇÀÚ±èOO
ÆäÀ̽ººÏ Æ®À§ÅÍ ±¸±Û+
īī¿À½ºÅ丮
īī¿ÀÅå sms¹®ÀÚº¸³»±â
 

±âÀϳ»¿ª

°æ°ú ³¯Â¥ Àú°¨ ÃÖÀú°¡ °á°ú
Á¢¼öÀÏ 2025-02-21 °æ¸ÅÁ¢¼ö
~6ÀÏ 
2025-02-27 °æ¸Å°³½Ã°áÁ¤
~89ÀÏ 
2025-05-21 ¹è´ç¿ä±¸Á¾±âÀÏ
~404ÀÏ 
2026-04-01 100%
143,000,000
À¯Âû
~439ÀÏ 
2026-05-06 70%
100,100,000
ÁøÇà
¹°°Ç¸í¼¼¼­ ÇöȲÁ¶»ç¼­ ¹®°ÇÁ¢¼ö ¼Û´Þ³»¿ª

°¨Á¤Æò°¡ÇöȲ

¸ñ·Ï ÁÖ¼Ò ±¸Á¶/¿ëµµ/´ëÁö±Ç ¸éÀû ºñ°í
´ëÁö±Ç
»óÇöµ¿ 1117-8 1035.8ºÐÀÇ 6.583 6.583 §³
(1.99Æò)
°Ç¹°
»óÇöµ¿ 1117-8 µðµ¿ 8Ãþ806È£ ö±ÙÄÜÅ©¸®Æ®±¸Á¶ 23.64 §³
(7.15Æò)
1) À§Ä¡/µµ½ÃÁö¿ª/ÀϹݻó¾÷Áö¿ª/Áö±¸´ÜÀ§°èȹ±¸¿ª/ÁöÇÏÁÖÂ÷Àå/ö±ÙÄÜÅ©¸®Æ®±¸Á¶ ´õº¸±â
°¨Á¤Æò°¡ ¿äÇ×Ç¥
1)À§Ä¡ ¹× ÁÖÀ§È¯°æ
º»°ÇÀº °æ±âµµ ¿ëÀνà ¼öÁö±¸ »óÇöµ¿ ¼ÒÀç '»óÇö¿ª(½ÅºÐ´ç¼±)' ³²¼­Ãø Àαٿ¡ À§Ä¡Çϰí, ÁÖÀ§·Î´Â ¾÷¹«½Ã¼³, ±Ù¸°»ýȰ½Ã¼³, ¾ÆÆÄÆ® µîÀÌ È¥ÀçÇÏ¿© Á¦¹Ý ÁÖÀ§ ȯ°æÀº º¸ÅëÀÓ.
2)±³Åë»óȲ
º»°Ç±îÁö Â÷·® ÃâÀÔ °¡´ÉÇÏ°í µµº¸·Î ¾à 2ºÐ °Å¸®¿¡ »óÇö¿ªÀÌ ¼ÒÀçÇϰí ÀÖÀ¸¸ç, Àα٠¹ö½º Á¤·ùÀå±îÁöÀÇ °Å¸® µîÀ» Á¾ÇÕ °í·ÁÇÒ ¶§ ±³Åë»çÁ¤Àº ¾çÈ£ÇÔ.
3)°Ç¹°ÀÇ ±¸Á¶
ö±ÙÄÜÅ©¸®Æ®±¸Á¶ (ö±Ù)ÄÜÅ©¸®Æ®ÁöºØ Áö»ó10Ãþ °Ç¹° ³» 8Ãþ 806È£·Î
¿Üº® : ¼®Àç ºÙÀÓ ¹× ÆäÀÎÆÃ ¸¶°¨ µî.
âȣ : ¼¦½ÃÀÓ.
4)ÀÌ¿ë»óÅÂ
¿ÀÇǽºÅÚ·Î ÀÌ¿ë ÁßÀÓ.
5)¼³ºñ³»¿ª
À§»ý, ±Þ¹è¼ö ¼³ºñ, ³­¹æ, ½Â°­±â, ¼ÒÈ­Àü ¼³ºñ, ÁöÇÏÁÖÂ÷Àå µîÀÌ ÀÖÀ½.
6)ÅäÁöÀÇ Çü»ó ¹× ÀÌ¿ë»óÅÂ
ÀÎÁ¢ µµ·Î¿Í µî°í ÆòźÇÑ ¼¼ÀåÇüÀÇ ÅäÁö·Î, ¾÷¹«½Ã¼³(¿ÀÇǽºÅÚ) ¹× ±Ù¸°»ýȰ½Ã¼³ °ÇºÎÁö·Î ÀÌ¿ë ÁßÀÓ.
7)ÀÎÁ¢ µµ·Î»óŵî
³²Ãø, ¼­Ãø ¹× µ¿ÃøÀ¸·Î µµ·Î¿Í Á¢ÇÔ.
8)ÅäÁöÀÌ¿ë°èȹ ¹× Á¦ÇÑ»óÅÂ
(°æ±âµµ ¿ëÀνà ¼öÁö±¸ »óÇöµ¿ 1117-8)
µµ½ÃÁö¿ª, ÀϹݻó¾÷Áö¿ª, Áö±¸´ÜÀ§°èȹ±¸¿ª, ´ë·Î2·ù(Æø 30m~35m)(Á¢ÇÕ), Áß·Î2·ù(Æø 15m~20m)(Á¢ÇÕ) °¡Ãà»çÀ°Á¦Çѱ¸¿ª<°¡ÃàºÐ´¢ÀÇ °ü¸® ¹× À̿뿡 °üÇÑ ¹ý·ü>, ¼ºÀå°ü¸®±Ç¿ª<¼öµµ±ÇÁ¤ºñ°èȹ¹ý>, ÅÃÁö°³¹ßÁö±¸<ÅÃÁö°³¹ßÃËÁø¹ý>
9)°øºÎ¿ÍÀÇ Â÷ÀÌ
¾øÀ½.
10)±âŸÂü°í»çÇ×(ÀÓ´ë°ü·Ê ¹× ±âŸ)
ÀÓ´ë°ü°è´Â ¹Ì»óÀÓ.
Âü°í
»çÇ×

º»°Ç ºÎµ¿»êÀÇ ÇöȲÀº ¿Ü

°ÇÃ๰ÇöȲ

¼ÒÀçÁö °æ±âµµ ¿ëÀνà ¼öÁö±¸ »óÇöµ¿ 1117-8¹øÁö
´ëÁö¸éÀû 1035.8§³
(313.88Æò)
¿¬¸éÀû 9402.449§³
(2849.23Æò)
°ÇÃà¸éÀû 619.41§³
(187.7Æò)
¿ëÀû·ü»êÁ¤
¿¬¸éÀû
5177.208§³
(1568.85Æò)
°ÇÆóÀ² 59.8% ¿ëÀû·ü 499.83%
Áö»óÃþ¼ö 10Ãþ ÁöÇÏÃþ¼ö 5Ãþ
ÁÖ¿ëµµ ¾÷¹«½Ã¼³ ±¸Á¶ ö±ÙÄÜÅ©¸®Æ®±¸Á¶
Âø°øÀÏÀÚ 2012.06.20 »ç¿ë½ÂÀÎÀÏÀÚ 2014.06.12
°ÇÃ๰Ãþº°ÇöȲ [º¸±â]


µî±âºÎµîº» ¿ä¾à(°Ç¹°)

  Á¢¼öÀÏÀÚ µî±â¸ñÀû/±Ç¸®ÀÚ ±Ç¸®±Ý¾× ±âÁØ
1 2021³â11¿ù10ÀÏ
¼ÒÀ¯±Ç
½ÅOO
¼Ò¸ê
2 2022³â7¿ù5ÀÏ
°¡¾Ð·ù
¾ÈOO
98,933,900 ¼Ò¸ê±âÁØ
3 2022³â11¿ù23ÀÏ
°¡¾Ð·ù
(OOOO
120,000,000 ¼Ò¸ê
4 2022³â11¿ù29ÀÏ
°¡¾Ð·ù
ˡOOOO
1,400,000,000 ¼Ò¸ê
5 2024³â8¿ù27ÀÏ
ÀÓÂ÷±Ç¼³Á¤
±èOO
145,000,000 ¼Ò¸ê
6 2025³â2¿ù27ÀÏ
°­Á¦°æ¸Å
±èOO
¼Ò¸ê

ÀÓÂ÷ÀÎÇöȲ (¹è´ç¿ä±¸Á¾±âÀÏ: 2025-05-21)

ÀÓÂ÷ÀÎ ¿ëµµ/Á¡À¯ º¸Áõ±Ý/¿ù¼¼ ´ëÇ×·Â
ÀüÀÔÀÏ/È®Á¤ÀÏ ¹è´ç¿ä±¸ ºñ°í
±èOO 145,000,000
O
2021.05.24.
2021.04.21.
2025.4.14. 2021.05.24.~2023.05.23.
ºñ°í
(¸Å°¢¹°°Ç
¸í¼¼¼­)
±èÁöȯ:°æ¸Å½Åûä±ÇÀÚÀÓ.

¿©ÀÇÁÖ°æ¸Å Á¶¾ð ÇÑ ¸¶µð


ÁÖÀÇ»çÇ× (ÃÖ¼±¼øÀ§ ¼³Á¤ÀÏ: 2022.7.5.°¡¾Ð·ù ¼³Á¤)

¸Å°¢À¸·Î ¼Ò¸êµÇÁö ¾Ê´Â µî±âºÎ±Ç¸®:
¸Å°¢À¸·Î ¼³Á¤µÈ °ÍÀ¸·Î º¸´Â Áö»ó±Ç:
¡Ø¹Ì³³°ü¸®ºñ(°ø¿ë) Àμö¿©ºÎ¸¦ ÀÔÂû Àü¿¡ È®ÀÎÇϽñ⠹ٶø´Ï´Ù

 

Áö¿ªºÐ¼®

ÁöÇÏö¸í Á÷¼±°Å¸®

Çб³¸í ÀüÈ­¹øÈ£ ÁÖ¼Ò Á÷¼±°Å¸®

¹ý¿ø

¼ö¿øÁö¹æ¹ý¿ø (165-12)°æ±âµµ ¼ö¿ø½Ã ¿µÅ뱸 ¹ýÁ¶·Î 105, Çϵ¿, ¼ö¿ø¹ý¿øÁ¾ÇÕû»ç
´ëÇ¥ : 031)210-1114, ¾ß°£ : 031)210-1111
°üÇÒÁö¿ª : ¼ö¿ø½Ã, ¿À»ê½Ã, È­¼º½Ã, ¿ëÀνÃ

µî±â¼Ò ¼ö¿øÁö¹æ¹ý¿ø º»¿ø ¿ëÀεî±â¼Ò (´ëÇ¥:1544-0773, ÆÑ½º:(031)321-3919, °æ±âµµ ¿ëÀνà óÀα¸ ¼º»ê·Î 7 (¿ªºÏµ¿ 391-28))
¼¼¹«¼­ ¿ëÀμ¼¹«¼­ (´ëÇ¥:031-329-22, ÆÑ½º:031-329-2328, °æ±âµµ ¿ëÀνà óÀα¸ Áߺδë·Î1161¹ø±æ 71 (»ï°¡µ¿))

Àαٳ«ÂûÅë°è

±â°£ ¸Å°¢°Ç¼ö Æò±Õ°¨Á¤°¡
Æò±Õ¸Å°¢°¡
¸Å°¢°¡À²
Æò±ÕÀ¯Âû¼ö
3°³¿ù 3°Ç 186,666,667¿ø
128,395,000¿ø
65%
4.3ȸ
6°³¿ù 7°Ç 167,857,143¿ø
130,033,571¿ø
77%
2.4ȸ
12°³¿ù 14°Ç 190,107,143¿ø
148,436,429¿ø
77%
2.3ȸ


º» °æ¸ÅÁ¤º¸´Â ¹ý¿øÀÚ·á¿Í ÀÏÄ¡Çϵµ·Ï ÇÏ¿´À¸³ª ±Ç¸®»çÇ׺¯µ¿, ÀÔ·ÂÂø¿À µîÀÇ ¿øÀÎÀ¸·Î »ç½Ç°ú ´Ù¸¦ ¼ö ÀÖ½À´Ï´Ù. ÀÌ¿ë¾à°ü¿¡ ÀǰЏéÃ¥Á¶°ÇÀ¸·Î Á¦°øµÊÀ» ¾Ë¸®¸ç, °æ¸ÅÀÔÂû½Ã ¹Ýµå½Ã °ü·Ã °øºÎ¸¦ ÀçÈ®ÀÎÇϽñ⠹ٶø´Ï´Ù. º¸´Ù Æí¸®ÇÑ °æ¸ÅÁ¤º¸ Á¦°øÀ» À§ÇØ Áö¼ÓÀûÀ¸·Î °³¼±ÇϰڽÀ´Ï´Ù. ÀÌ¿ëÇØ Áּż­ °¨»çÇÕ´Ï´Ù.