·Î±×ÀÎ
46
´Ù¼¼´ë(ºô¶ó)
¼­¿ïÁß¾ÓÁö¹æ¹ý¿ø
 °¨Á¤°¡349,000,000 ¿ø
 ÃÖÀú°¡(100%) 349,000,000 ¿ø
 º¸Áõ±Ý(10%) 34,900,000 ¿ø
 Ã»±¸¾×330,000,000 ¿ø
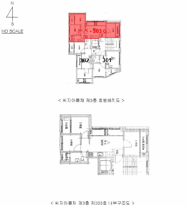
¼­¿ïƯº°½Ã °ü¾Ç±¸ ½Å¸²µ¿ 626-3 ¾¾Áö¾Æ¸§Ã¤ 3Ãþ303È£
»ç°Ç¹øÈ£ 2025Ÿ°æ102640
°æ¸ÅÁ¾·ùºÎµ¿»ê°­Á¦°æ¸Å
¸Å°¢´ë»óÅäÁö ¹× °Ç¹°Àϰý ¸Å°¢
¸Å°¢±âÀÏ    2026.04.01(¼ö) 10:00 ÀÔÂû 10ÀÏÀü    
ÅäÁö¸éÀû24.13§³(7.30 Æò)
°Ç¹°¸éÀû36.95§³(11.18 Æò)
乫/¼ÒÀ¯ÀÚ°íOO / °íOO
ä±ÇÀÚÁÖOOOOOOO
ÆäÀ̽ººÏ Æ®À§ÅÍ ±¸±Û+
īī¿À½ºÅ丮
īī¿ÀÅå sms¹®ÀÚº¸³»±â
 

±âÀϳ»¿ª

°æ°ú ³¯Â¥ Àú°¨ ÃÖÀú°¡ °á°ú
Á¢¼öÀÏ 2025-04-08 °æ¸ÅÁ¢¼ö
~8ÀÏ 
2025-04-16 °æ¸Å°³½Ã°áÁ¤
~85ÀÏ 
2025-07-02 ¹è´ç¿ä±¸Á¾±âÀÏ
~358ÀÏ 
2026-04-01 100%
349,000,000
ÁøÇà
¹°°Ç¸í¼¼¼­ ÇöȲÁ¶»ç¼­ ¹®°ÇÁ¢¼ö ¼Û´Þ³»¿ª

°¨Á¤Æò°¡ÇöȲ

¸ñ·Ï ÁÖ¼Ò ±¸Á¶/¿ëµµ/´ëÁö±Ç ¸éÀû ºñ°í
´ëÁö±Ç
½Å¸²µ¿ 626-3 216ºÐÀÇ 24.13 24.13 §³
(7.30Æò)
°Ç¹°
½Å¸²µ¿ 626-3 3Ãþ303È£ ö±ÙÄÜÅ©¸®Æ®±¸Á¶ 36.95 §³
(11.18Æò)
1) À§Ä¡/µµ½ÃÁö¿ª/Á¦2Á¾ÀϹÝÁÖ°ÅÁö¿ª/³ë¼±¹ö½ºÁ¤·ùÀå/°£¼±µµ·Î/ö±ÙÄÜÅ©¸®Æ®±¸Á¶/µµ½Ã°¡½º ´õº¸±â
°¨Á¤Æò°¡ ¿äÇ×Ç¥
1)À§Ä¡ ¹× ÁÖÀ§È¯°æ
º» °ÇÀº ¼­¿ïƯº°½Ã °ü¾Ç±¸ ½Å¸²µ¿ ¼ÒÀç ""³²±¤°íµîÇб³"" ¼­Ãø Àαٿ¡ À§Ä¡Çϸç, ÁÖÀ§´Â ÀϹÝÁÖÅÃ, °øµ¿ÁÖÅÃ, ±Ù¸°ÁÖÅà µîÀ¸·Î Çü¼ºµÈ ÁÖ°ÅÁö¿ªÀ¸·Î¼­, Á¦¹Ý ÁÖÀ§È¯°æÀº ¹«³­ÇÔ.
2)±³Åë»óȲ
º» °Ç±îÁö Â÷·® Áø¡¤ÃâÀÔÀÌ °¡´ÉÇϸç, ±Ù°Å¸®¿¡ ³ë¼±¹ö½ºÁ¤·ùÀåÀÌ ¼ÒÀçÇÏ´Â µî Àü¹ÝÀûÀÎ ´ëÁß±³Åë ¿©°ÇÀº º¸ÅëÀÓ.
3)°Ç¹°ÀÇ ±¸Á¶
ö±ÙÄÜÅ©¸®Æ®±¸Á¶ (ö±Ù)ÄÜÅ©¸®Æ®ÁöºØ 5Ãþ°Ç³» Á¦3Ãþ Á¦303È£·Î¼­,
¿Ü º® : ÀÎÁ¶¼® ºÙÀÓ ¸¶°¨,
³» º® : º®Áöµµ¹è, ³»ºÎ ÀÎÅ׸®¾î ¸¶°¨ ¹× ŸÀÏ ¸¶°¨ µî,
â È£ : ¾Ë·ç¹Ì´½¼¦½Ã ÀÌÁßâȣ ¸¶°¨.

4)ÀÌ¿ë»óÅÂ
°øµ¿ÁÖÅÃ(´Ù¼¼´ëÁÖÅÃ)(ÈÄ¸é º°Ã· ""È£º°¹èÄ¡µµ ¹× ³»ºÎ±¸Á¶µµ ""ÂüÁ¶)À¸·Î ÀÌ¿ë ÁßÀÓ.

5)¼³ºñ³»¿ª
±âº»ÀûÀÎ À§»ý ¹× ±Þ¹è¼ö½Ã¼³, ½Â°­±â, È­Àç°æº¸ÀåÄ¡, µµ½Ã°¡½º°ø±Þ¼³ºñ¿¡ ÀÇÇÑ °³º° ³­¹æ½Ã¼³ µîÀÇ ¼³ºñ µÇ¾îÀÖÀ½.

6)ÅäÁöÀÇ Çü»ó ¹× ÀÌ¿ë»óÅÂ
º» °ÇÀº ¿Ï°æ»çÁö¿¡ Á¶¼ºµÈ »ç´Ù¸®ÇüÀÇ ÅäÁö·Î¼­, °øµ¿ÁÖÅÃ(´Ù¼¼´ëÁÖÅÃ) °ÇºÎÁö·Î ÀÌ¿ëÁßÀÓ.

7)ÀÎÁ¢ µµ·Î»óŵî
º»°ÇÀº ³²ÃøÀ¸·Î ³ëÆø ¾à 6¹ÌÅÍÀÇ ¾Æ½ºÆÈÆ® Æ÷Àåµµ·Î¿Í Á¢Çϸç, ÀÌ µµ·Î¸¦ ÅëÇÏ¿© ¼­Ãø Àαٿ¡ ´ëÁß±³ÅëÀÌ ¿îÇàÇÏ´Â °£¼±µµ·Î(³­°î·Î)¿Í ¿¬°èµÊ.
8)ÅäÁöÀÌ¿ë°èȹ ¹× Á¦ÇÑ»óÅÂ
µµ½ÃÁö¿ª, Á¦2Á¾ÀϹÝÁÖ°ÅÁö¿ª(7ÃþÀÌÇÏ), µµ·Î(Á¢ÇÕ), °¡Ãà»çÀ°Á¦Çѱ¸¿ª<°¡ÃàºÐ´¢ÀÇ °ü¸® ¹× À̿뿡 °üÇÑ ¹ý·ü>, ±³À°È¯°æº¸È£±¸¿ª(»ó´ë/Àý´ëÁ¤È­±¸¿ª ÃÖÁ¾È®ÀÎÀº µ¿ÀÛ±³À°Ã»¿¡ ¹Ýµå½Ã È®ÀÎÀÌ ÇÊ¿äÇÑ »çÇ×ÀÓ)<±³À°È¯°æ º¸È£¿¡ °üÇÑ ¹ý·ü>, ´ë°ø¹æ¾îÇùÁ¶±¸¿ª(À§Å¹°íµµ:194m)<±º»ç±âÁö ¹× ±º»ç½Ã¼³ º¸È£¹ý>, °ú¹Ð¾ïÁ¦±Ç¿ª<¼öµµ±ÇÁ¤ºñ°èȹ¹ý>, ÁßÁ¡°æ°ü°ü¸®±¸¿ª(ÁÖ¿ä»ê ÁÖº¯)ÀÓ.
9)°øºÎ¿ÍÀÇ Â÷ÀÌ
-
10)±âŸÂü°í»çÇ×(ÀÓ´ë°ü·Ê ¹× ±âŸ)
ÀÓ´ë°ü°è ¹Ì»óÀÓ.

°ÇÃ๰ÇöȲ

¼ÒÀçÁö ¼­¿ïƯº°½Ã °ü¾Ç±¸ ½Å¸²µ¿ 626-3¹øÁö
´ëÁö¸éÀû 216§³
(65.45Æò)
¿¬¸éÀû 421.94§³
(127.86Æò)
°ÇÃà¸éÀû 129.18§³
(39.15Æò)
¿ëÀû·ü»êÁ¤
¿¬¸éÀû
421.94§³
(127.86Æò)
°ÇÆóÀ² 59.81% ¿ëÀû·ü 195.34%
Áö»óÃþ¼ö 5Ãþ ÁöÇÏÃþ¼ö  
ÁÖ¿ëµµ °øµ¿ÁÖÅà ±¸Á¶ ö±ÙÄÜÅ©¸®Æ®±¸Á¶
Âø°øÀÏÀÚ 2019.10.01 »ç¿ë½ÂÀÎÀÏÀÚ 2020.05.12
°ÇÃ๰Ãþº°ÇöȲ [º¸±â]


±¹ÅäºÎ½Ç°Å·¡°¡ ¼­¿ïƯº°½Ã °ü¾Ç±¸ ½Å¸²µ¿

¡Ü ¸Å¸Å

¸éÀû(§³), ±Ý¾×(¸¸¿ø)

¡Ü Àü¼¼

¸éÀû(§³), ±Ý¾×(¸¸¿ø)

°è¾àÀϰǹ°¸íĪÃþ¿¬¸éÀûº¸Áõ±Ý¿ù¼¼°ÇÃà
26.03.13¾ÆÆ®ºôÇϿ콺1Â÷435.0817,300302011
26.03.12¿¹±×¸°331.0713,000352018
26.03.12°æ¿øÇÏÀÌÃ÷ÅÚ1113.641,000602019
26.03.12°æ¿øÇÏÀÌÃ÷ÅÚ1013.645,000352019
26.03.12Å©³ªÅ«ÇϿ콺429.589,000312016
¢Ñ ´õº¸±â

µî±âºÎµîº» ¿ä¾à(°Ç¹°)

  Á¢¼öÀÏÀÚ µî±â¸ñÀû/±Ç¸®ÀÚ ±Ç¸®±Ý¾× ±âÁØ
1 2021³â8¿ù23ÀÏ
¼ÒÀ¯±Ç
°íOO
¼Ò¸ê
2 2021³â8¿ù23ÀÏ
¾àÁ¤/±ÝÁö»çÇ×/ȯ¸ÅƯ¾à
Àμö
3 2023³â1¿ù3ÀÏ
°¡¾Ð·ù
ÁÖOOOO
788,000,000 ¼Ò¸ê±âÁØ
4 2023³â6¿ù20ÀÏ
¾Ð·ù
±¹
¼Ò¸ê
5 2023³â6¿ù20ÀÏ
¾Ð·ù
±¹
¼Ò¸ê
6 2023³â7¿ù14ÀÏ
ÀÓÂ÷±Ç¼³Á¤
¹®OO
330,000,000 ¼Ò¸ê
7 2025³â4¿ù17ÀÏ
°­Á¦°æ¸Å
ÁÖOOOO
¼Ò¸ê

ÀÓÂ÷ÀÎÇöȲ (¹è´ç¿ä±¸Á¾±âÀÏ: 2025-07-02)



¸Å°¢±âÀÏ 7ÀÏÀü¿¡ ¸Å°¢¹°°Ç¸í¼¼¼­°¡ °ø°íµÇ¿À´Ï È®ÀÎÇϽñ⠹ٶø´Ï´Ù.

ÀÓÂ÷ÀÎ ¿ëµµ/Á¡À¯ º¸Áõ±Ý/¿ù¼¼ ´ëÇ×·Â
ÀüÀÔÀÏ/È®Á¤ÀÏ ¹è´ç¿ä±¸ ºñ°í
¹®OO 303È£ 330,000,000
O
2021.08.03.
2021.08.03.
2025.6.20. 2021.08.20.
ºñ°í
(¸Å°¢¹°°Ç
¸í¼¼¼­)
¹®ÁöÀº:°æ¸Å½Åûä±ÇÀÚ ÁÖÅõµ½Ãº¸Áõ°ø»ç´Â ÀÓÂ÷ÀÎ ¹®ÁöÀºÀÇ ÀÓÂ÷º¸Áõ±Ý¹Ýȯä±Ç ¾ç¼öÀÎÀÓ(´ëÇ׷¹׿켱º¯Á¦±Ç ½Â°è)

¿©ÀÇÁÖ°æ¸Å Á¶¾ð ÇÑ ¸¶µð

¼±¼øÀ§ ÀÓÂ÷±Çµî±â°¡ µÇ¾î ÀÖ½À´Ï´Ù
´ëÇ×·ÂÀÌ ÀÖ´Â ¼±¼øÀ§ ÀÓÂ÷±Çµî±â ±Ç¸®ÀÚ°¡ ¹è´çÀ» Àü¾× ¹ÞÁö ¸øÇÒ °æ¿ì ³«ÂûÀÚ°¡ ÀÜ¿© º¸Áõ±ÝÀ» ÀμöÇØ¾ßÇÏ´Â °æ¿ìµµ ÀÖ½À´Ï´Ù.

ÁÖÀÇ»çÇ× (ÃÖ¼±¼øÀ§ ¼³Á¤ÀÏ: )

¸Å°¢À¸·Î ¼Ò¸êµÇÁö ¾Ê´Â µî±âºÎ±Ç¸®: ¸Å¼öÀο¡°Ô ´ëÇ×ÇÒ ¼ö ÀÖ´Â À»±¸ 3¹ø ÀÓÂ÷±Çµî±â(ÀÓ´ëÂ÷º¸Áõ±Ý 330,000,000¿ø, ÀüÀÔÀÏÀÚ 2021.08.03. È®Á¤ÀÏÀÚ 2021.08.03.)°¡ ÀÖÀ¸¹Ç·Î ¹è´ç¿¡¼­ Àü¾× º¯Á¦µÇÁö ¾Æ´ÏÇϸé Àܾ×Àº ¸Å¼öÀο¡°Ô ÀμöµÉ ¼ö ÀÖÀ½
¸Å°¢À¸·Î ¼³Á¤µÈ °ÍÀ¸·Î º¸´Â Áö»ó±Ç:
¡Ø¹Ì³³°ü¸®ºñ(°ø¿ë) Àμö¿©ºÎ¸¦ ÀÔÂû Àü¿¡ È®ÀÎÇϽñ⠹ٶø´Ï´Ù

 

Áö¿ªºÐ¼®

ÁöÇÏö¸í Á÷¼±°Å¸®

Çб³¸í ÀüÈ­¹øÈ£ ÁÖ¼Ò Á÷¼±°Å¸®

¹ý¿ø

¼­¿ïÁß¾ÓÁö¹æ¹ý¿ø (065-94)¼­¿ïƯº°½Ã ¼­Ãʱ¸ ¼­ÃÊÁß¾Ó·Î 157 (¼­Ãʵ¿)
´ëÇ¥ : 02)530-1114, ¾ß°£ : 02)530-1280/536-8003
°üÇÒÁö¿ª : Á¾·Î±¸, Áß±¸, °­³²±¸, ¼­Ãʱ¸, °ü¾Ç±¸, µ¿ÀÛ±¸

µî±â¼Ò ¼­¿ïÁß¾ÓÁö¹æ¹ý¿ø º»¿ø µî±â±¹ (´ëÇ¥:1544-0773, ÆÑ½º:(02)590-1881, ¼­¿ïƯº°½Ã ¼­Ãʱ¸ ¹ý¿ø·Î3±æ 14 (¼­Ãʵ¿ 1707-4))
¼¼¹«¼­ °ü¾Ç¼¼¹«¼­ (´ëÇ¥:02-2173-42, ÆÑ½º:02-2173-4269, ¼­¿ïƯº°½Ã °ü¾Ç±¸ ¹®¼º·Î 187(½Å¸²µ¿))

Àαٳ«ÂûÅë°è

±â°£ ¸Å°¢°Ç¼ö Æò±Õ°¨Á¤°¡
Æò±Õ¸Å°¢°¡
¸Å°¢°¡À²
Æò±ÕÀ¯Âû¼ö
3°³¿ù 24°Ç 1,581,664,132¿ø
897,390,458¿ø
76%
3.3ȸ
6°³¿ù 37°Ç 1,131,944,302¿ø
672,994,822¿ø
79%
2.8ȸ
12°³¿ù 47°Ç 948,360,408¿ø
578,614,290¿ø
81%
2.5ȸ


º» °æ¸ÅÁ¤º¸´Â ¹ý¿øÀÚ·á¿Í ÀÏÄ¡Çϵµ·Ï ÇÏ¿´À¸³ª ±Ç¸®»çÇ׺¯µ¿, ÀÔ·ÂÂø¿À µîÀÇ ¿øÀÎÀ¸·Î »ç½Ç°ú ´Ù¸¦ ¼ö ÀÖ½À´Ï´Ù. ÀÌ¿ë¾à°ü¿¡ ÀǰЏéÃ¥Á¶°ÇÀ¸·Î Á¦°øµÊÀ» ¾Ë¸®¸ç, °æ¸ÅÀÔÂû½Ã ¹Ýµå½Ã °ü·Ã °øºÎ¸¦ ÀçÈ®ÀÎÇϽñ⠹ٶø´Ï´Ù. º¸´Ù Æí¸®ÇÑ °æ¸ÅÁ¤º¸ Á¦°øÀ» À§ÇØ Áö¼ÓÀûÀ¸·Î °³¼±ÇϰڽÀ´Ï´Ù. ÀÌ¿ëÇØ Áּż­ °¨»çÇÕ´Ï´Ù.