·Î±×ÀÎ
57
´Ù¼¼´ë(ºô¶ó)
¼ö¿øÁö¹æ¹ý¿ø ¾È¾çÁö¿ø
 °¨Á¤°¡278,000,000 ¿ø
 ÃÖÀú°¡(100%) 278,000,000 ¿ø
 º¸Áõ±Ý(10%) 27,800,000 ¿ø
 Ã»±¸¾×229,000,000 ¿ø
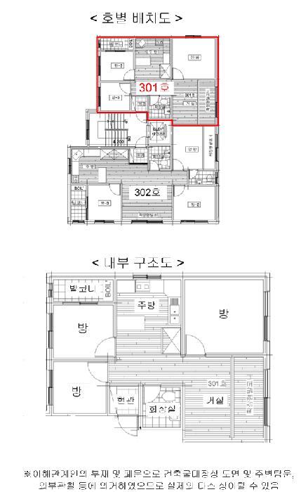
°æ±âµµ ¾È¾ç½Ã ¸¸¾È±¸ ¾È¾çµ¿ 830-23 Á¶¾çÀ§³Ê½º 3Ãþ301È£
»ç°Ç¹øÈ£ 2025Ÿ°æ101018
°æ¸ÅÁ¾·ùºÎµ¿»ê°­Á¦°æ¸Å
¸Å°¢´ë»óÅäÁö ¹× °Ç¹°Àϰý ¸Å°¢
¸Å°¢±âÀÏ    2026.03.31(È­) 10:00 ÀÔÂû 3ÀÏÀü    
ÅäÁö¸éÀû30.19§³(9.13 Æò)
°Ç¹°¸éÀû50.26§³(15.20 Æò)
乫/¼ÒÀ¯ÀÚ¹ÚOO / ¹ÚOO
ä±ÇÀÚÁÖOOOOOOO
ÆäÀ̽ººÏ Æ®À§ÅÍ ±¸±Û+
īī¿À½ºÅ丮
īī¿ÀÅå sms¹®ÀÚº¸³»±â
 

±âÀϳ»¿ª

°æ°ú ³¯Â¥ Àú°¨ ÃÖÀú°¡ °á°ú
Á¢¼öÀÏ 2025-04-24 °æ¸ÅÁ¢¼ö
~5ÀÏ 
2025-04-29 °æ¸Å°³½Ã°áÁ¤
~85ÀÏ 
2025-07-18 ¹è´ç¿ä±¸Á¾±âÀÏ
~341ÀÏ 
2026-03-31 100%
278,000,000
ÁøÇà
¹°°Ç¸í¼¼¼­ ÇöȲÁ¶»ç¼­ ¹®°ÇÁ¢¼ö ¼Û´Þ³»¿ª

°¨Á¤Æò°¡ÇöȲ

¸ñ·Ï ÁÖ¼Ò ±¸Á¶/¿ëµµ/´ëÁö±Ç ¸éÀû ºñ°í
´ëÁö±Ç
¾È¾çµ¿ 830-23 254.7ºÐÀÇ 30.1852 30.1852 §³
(9.13Æò)
°Ç¹°
¾È¾çµ¿ 830-23 3Ãþ301È£ ö±ÙÄÜÅ©¸®Æ®±¸Á¶ 50.26 §³
(15.20Æò)
1) À§Ä¡/µµ½ÃÁö¿ª/Á¦1Á¾ÀϹÝÁÖ°ÅÁö¿ª/¹ö½ºÁ¤·ùÀå/ÁöÇÏö/ö±ÙÄÜÅ©¸®Æ®±¸Á¶/µµ½Ã°¡½º ´õº¸±â
°¨Á¤Æò°¡ ¿äÇ×Ç¥
1)À§Ä¡ ¹× ÁÖÀ§È¯°æ
º»°ÇÀº °æ±âµµ ¾È¾ç½Ã ¸¸¾È±¸ ¾È¾çµ¿ ¼ÒÀç ""¾È¾ç¿©ÀÚÁßÇб³"" ¼­Ãø Àαٿ¡ À§Ä¡Çϸç ÁÖÀ§´Â
´Üµ¶ÁÖÅÃ, °øµ¿ÁÖÅÃ, ±Ù¸°»ýȰ½Ã¼³, Çб³ µîÀÌ È¥ÀçÇÏ´Â Áö¿ªÀ¸·Î Á¦¹Ý ÁÖÀ§ ȯ°æÀº º¸ÅëÀÓ.
2)±³Åë»óȲ
º»°ÇÀÌ ¼ÓÇÑ °Ç¹°±îÁö Â÷·®ÀÇ ÁøÃâÀÔÀÌ °¡´ÉÇϸç Àαٿ¡ ¹ö½ºÁ¤·ùÀå ¹× ±Ù°Å¸®¿¡ ÁöÇÏö
1È£¼±(¾È¾ç¿ª) ¼ÒÀçÇÏ´Â µî Á¦¹Ý ´ëÁß±³ÅëÀÌ¿ëÀº ¹«³­ÇÔ.
3)°Ç¹°ÀÇ ±¸Á¶
ö±ÙÄÜÅ©¸®Æ®±¸Á¶ ÆòÁöºØ Áö»ó5Ãþ °Ç¹° ³» 3Ãþ 301È£·Î¼­
(»ç¿ë½ÂÀÎÀÏ: 2018.07.02.)

¿Üº® : ¿ÜÀåŸÀÏ ¹× ¼®ÀçºÙÀÓ ¸¶°¨ µî
³»º® : º®Áö ¹× ÀϺΠŸÀϸ¶°¨ µî
âȣ : ÇÏÀÌ»õ½Ã âȣ ¸¶°¨.
4)ÀÌ¿ë»óÅÂ
´Ù¼¼´ëÁÖÅÃÀ¸·Î ÀÌ¿ëÁßÀÓ.
5)¼³ºñ³»¿ª
À§»ý ¹× ±Þ¹è¼ö¼³ºñ, µµ½Ã°¡½º¿¡ ÀÇÇÑ ³­¹æ¼³ºñ, ½Â°­±â¼³ºñ, È­ÀçŽÁö¼³ºñ, ¼ÒÈ­Àü ¼³ºñ µîÀ» °®Ãß°í ÀÖÀ½.
6)ÅäÁöÀÇ Çü»ó ¹× ÀÌ¿ë»óÅÂ
ÀÎÁ¢Áö ¹× ÀÎÁ¢µµ·Î ´ëºñ ÆòźÇÑ ¼¼ÀåÇü À¯»çÀÇ ÅäÁö·Î¼­ ""°øµ¿ÁÖÅà °ÇºÎÁö""·Î ÀÌ¿ëÁßÀÓ.
7)ÀÎÁ¢ µµ·Î»óŵî
³²ÃøÀ¸·Î ³ëÆø ¾à8¹ÌÅÍ ³»¿ÜÀÇ Æ÷Àåµµ·Î¿Í Á¢Çϰí ÀÖÀ½.
8)ÅäÁöÀÌ¿ë°èȹ ¹× Á¦ÇÑ»óÅÂ
µµ½ÃÁö¿ª, Á¦1Á¾ÀϹÝÁÖ°ÅÁö¿ª, ¼Ò·Î2·ù(Æø 8m~10m)(Á¢ÇÕ), ´ë±â°ü¸®±Ç¿ª<´ë±â°ü¸®±Ç¿ªÀÇ ´ë
±âȯ°æ°³¼±¿¡ °üÇÑ Æ¯º°¹ý>, ±³Åë±âŸ¿ëµµÁö¿ªÁö±¸¹ÌºÐ·ù(´ëµµ½Ã±Ç)<µµ·Î¹ý>, µµ½Ã±³ÅëÁ¤ºñ
Áö¿ª<µµ½Ã±³ÅëÁ¤ºñÃËÁø¹ý>, °ú¹Ð¾ïÁ¦±Ç¿ª<¼öµµ±ÇÁ¤ºñ°èȹ¹ý>.
9)°øºÎ¿ÍÀÇ Â÷ÀÌ
ÇØ´ç»çÇ× ¾øÀ½.
10)±âŸÂü°í»çÇ×(ÀÓ´ë°ü·Ê ¹× ±âŸ)
- ÀÓ´ë°ü°è ¹Ì»óÀÓ.
- º»°ÇÀº °ÅÁÖÀÎÀÇ Æó¹®ºÎÀç·Î ÀÎÇÏ¿© ³»ºÎ±¸Á¶µµ ¹× ÀÌ¿ë»óÅ µîÀº ¿ÜºÎ°üÂû, ޹®, Ç¥ÁØÀû
ÀÎ »óȲ µî¿¡ ÀÇÇÏ¿´À¸¹Ç·Î °æ¸Å ÁøÇà½Ã ÂüÁ¶¹Ù¶÷.

°ÇÃ๰ÇöȲ

¼ÒÀçÁö °æ±âµµ ¾È¾ç½Ã ¸¸¾È±¸ ¾È¾çµ¿ 830-23¹øÁö
´ëÁö¸éÀû 254.7§³
(77.18Æò)
¿¬¸éÀû 505.54§³
(153.19Æò)
°ÇÃà¸éÀû 146.81§³
(44.49Æò)
¿ëÀû·ü»êÁ¤
¿¬¸éÀû
505.54§³
(153.19Æò)
°ÇÆóÀ² 57.64% ¿ëÀû·ü 198.48%
Áö»óÃþ¼ö 5Ãþ ÁöÇÏÃþ¼ö  
ÁÖ¿ëµµ °øµ¿ÁÖÅà ±¸Á¶ ö±ÙÄÜÅ©¸®Æ®±¸Á¶
Âø°øÀÏÀÚ 2018.01.08 »ç¿ë½ÂÀÎÀÏÀÚ 2018.07.02
°ÇÃ๰Ãþº°ÇöȲ [º¸±â]


µî±âºÎµîº» ¿ä¾à(°Ç¹°)

  Á¢¼öÀÏÀÚ µî±â¸ñÀû/±Ç¸®ÀÚ ±Ç¸®±Ý¾× ±âÁØ
1 2019³â3¿ù14ÀÏ
¼ÒÀ¯±Ç
¹ÚOO
¼Ò¸ê
2 2020³â11¿ù3ÀÏ
°¡¾Ð·ù
ÁÖOOOO
3,046,000,000 ¼Ò¸ê±âÁØ
3 2021³â4¿ù28ÀÏ
ÀÓÂ÷±Ç¼³Á¤
Á¶OO
229,000,000 ¼Ò¸ê
4 2024³â4¿ù25ÀÏ
¾Ð·ù
±¹
¼Ò¸ê
5 2024³â10¿ù2ÀÏ
¾Ð·ù
±ÝOO
¼Ò¸ê
6 2025³â4¿ù29ÀÏ
°­Á¦°æ¸Å
ÁÖOOOO
¼Ò¸ê

ÀÓÂ÷ÀÎÇöȲ (¹è´ç¿ä±¸Á¾±âÀÏ: 2025-07-18)

ÀÓÂ÷ÀÎ ¿ëµµ/Á¡À¯ º¸Áõ±Ý/¿ù¼¼ ´ëÇ×·Â
ÀüÀÔÀÏ/È®Á¤ÀÏ ¹è´ç¿ä±¸ ºñ°í
¼­OO ¹Ì»ó
X
2023.11.15
¹Ì»ó
Á¶OO 301È£ 229,000,000
O
2019.03.14
2019.03.04
2019.03.14
ÁÖOOOOOOOOOOOOOOOOOOO 301È£ÀüºÎ 229,000,000
O
2019.03.14
2019.03.04
2025.6.24. 2019.03.14 ~2021.06.28

¿©ÀÇÁÖ°æ¸Å Á¶¾ð ÇÑ ¸¶µð

¼±¼øÀ§ ÀÓÂ÷±Çµî±â°¡ µÇ¾î ÀÖ½À´Ï´Ù
´ëÇ×·ÂÀÌ ÀÖ´Â ¼±¼øÀ§ ÀÓÂ÷±Çµî±â ±Ç¸®ÀÚ°¡ ¹è´çÀ» Àü¾× ¹ÞÁö ¸øÇÒ °æ¿ì ³«ÂûÀÚ°¡ ÀÜ¿© º¸Áõ±ÝÀ» ÀμöÇØ¾ßÇÏ´Â °æ¿ìµµ ÀÖ½À´Ï´Ù.

ÁÖÀÇ»çÇ× (ÃÖ¼±¼øÀ§ ¼³Á¤ÀÏ: 2020.11.3. °¡¾Ð·ù ¼³Á¤)

¸Å°¢À¸·Î ¼Ò¸êµÇÁö ¾Ê´Â µî±âºÎ±Ç¸®: ¸Å¼öÀο¡°Ô ´ëÇ×ÇÒ ¼ö ÀÖ´Â À»±¸ ¼øÀ§ 1¹ø ÀÓÂ÷±Çµî±â(2021.4.28. µî±â) ÀÖÀ½(ÀÓ´ëÂ÷º¸Áõ±Ý 2¾ï2õ9¹é¸¸ ¿ø, ÀüÀÔÀÏ 2019.3.14., È®Á¤ÀÏÀÚ 2019.3.4.). ¹è´ç¿¡¼­ º¸Áõ±ÝÀÌ Àü¾× º¯Á¦µÇÁö ¾Æ´ÏÇϸé Àܾ×À» ¸Å¼öÀÎÀÌ ÀμöÇÔ
¸Å°¢À¸·Î ¼³Á¤µÈ °ÍÀ¸·Î º¸´Â Áö»ó±Ç:
¡Ø¹Ì³³°ü¸®ºñ(°ø¿ë) Àμö¿©ºÎ¸¦ ÀÔÂû Àü¿¡ È®ÀÎÇϽñ⠹ٶø´Ï´Ù

 

Áö¿ªºÐ¼®

ÁöÇÏö¸í Á÷¼±°Å¸®

Çб³¸í ÀüÈ­¹øÈ£ ÁÖ¼Ò Á÷¼±°Å¸®

¹ý¿ø

¼ö¿øÁö¹æ¹ý¿ø ¾È¾çÁö¿ø (140-54)°æ±âµµ ¾È¾ç½Ã µ¿¾È±¸ °üÆò·Î 212¹ø±æ 70 (°ü¾çµ¿)
´ëÇ¥ : 031)8086-1114, ¾ß°£ : 031)8086-1380
°üÇÒÁö¿ª : ¾È¾ç½Ã, ±ºÆ÷½Ã, ÀǿսÃ, °úõ½Ã

µî±â¼Ò ¼ö¿øÁö¹æ¹ý¿ø ¾È¾çÁö¿ø ¾È¾çµî±â¼Ò (´ëÇ¥:1544-0773, ÆÑ½º:(031)8086-4599, °æ±âµµ ¾È¾ç½Ã µ¿¾È±¸ °üÆò·Î212¹ø±æ 69 (°ü¾çµ¿ 1588-18))
¼¼¹«¼­ ¾È¾ç¼¼¹«¼­ (´ëÇ¥:031-467-12, ÆÑ½º:031-467-1300, °æ±âµµ ¾È¾ç½Ã ¸¸¾È±¸ ³Ãõ·Î 83 (¾È¾çµ¿))

Àαٳ«ÂûÅë°è

±â°£ ¸Å°¢°Ç¼ö Æò±Õ°¨Á¤°¡
Æò±Õ¸Å°¢°¡
¸Å°¢°¡À²
Æò±ÕÀ¯Âû¼ö
3°³¿ù 8°Ç 225,125,000¿ø
140,762,500¿ø
60%
6.8ȸ
6°³¿ù 21°Ç 258,047,619¿ø
173,584,138¿ø
66%
5.3ȸ
12°³¿ù 27°Ç 266,000,000¿ø
178,177,396¿ø
66%
5.2ȸ


º» °æ¸ÅÁ¤º¸´Â ¹ý¿øÀÚ·á¿Í ÀÏÄ¡Çϵµ·Ï ÇÏ¿´À¸³ª ±Ç¸®»çÇ׺¯µ¿, ÀÔ·ÂÂø¿À µîÀÇ ¿øÀÎÀ¸·Î »ç½Ç°ú ´Ù¸¦ ¼ö ÀÖ½À´Ï´Ù. ÀÌ¿ë¾à°ü¿¡ ÀǰЏéÃ¥Á¶°ÇÀ¸·Î Á¦°øµÊÀ» ¾Ë¸®¸ç, °æ¸ÅÀÔÂû½Ã ¹Ýµå½Ã °ü·Ã °øºÎ¸¦ ÀçÈ®ÀÎÇϽñ⠹ٶø´Ï´Ù. º¸´Ù Æí¸®ÇÑ °æ¸ÅÁ¤º¸ Á¦°øÀ» À§ÇØ Áö¼ÓÀûÀ¸·Î °³¼±ÇϰڽÀ´Ï´Ù. ÀÌ¿ëÇØ Áּż­ °¨»çÇÕ´Ï´Ù.