·Î±×ÀÎ
263
´Ù¼¼´ë(ºô¶ó)
¼­¿ïºÏºÎÁö¹æ¹ý¿ø
 °¨Á¤°¡201,000,000 ¿ø
 ÃÖÀú°¡(64%) 128,640,000 ¿ø
 º¸Áõ±Ý(10%) 12,864,000 ¿ø
 Ã»±¸¾×0 ¿ø
¼­¿ïƯº°½Ã Áß¶û±¸ µ¿ÀÏ·Î109±æ 62-8, 1µ¿ 5Ãþ502È£ (¸é¸ñµ¿,ȲÁöȨŸ¿î)
¼­¿ïƯº°½Ã Áß¶û±¸ ¸é¸ñµ¿ 185-119
»ç°Ç¹øÈ£ 2024Ÿ°æ5844
°æ¸ÅÁ¾·ùû»êÀ»À§ÇÑÇü½ÄÀû°æ¸Å
¸Å°¢´ë»óÅäÁö ¹× °Ç¹°Àϰý ¸Å°¢
¸Å°¢±âÀÏ    2026.06.09(È­) 10:00 ÀÔÂû 13ÀÏÀü    
ÅäÁö¸éÀû12.26§³(3.71 Æò)
°Ç¹°¸éÀû32.52§³(9.84 Æò)
乫/¼ÒÀ¯ÀÚ /
ä±ÇÀÚ
ÆäÀ̽ººÏ Æ®À§ÅÍ ±¸±Û+
īī¿À½ºÅ丮
īī¿ÀÅå sms¹®ÀÚº¸³»±â
 

±âÀϳ»¿ª

°æ°ú ³¯Â¥ Àú°¨ ÃÖÀú°¡ °á°ú
Á¢¼öÀÏ 2024-11-07 °æ¸ÅÁ¢¼ö
~1ÀÏ 
2024-11-08 °æ¸Å°³½Ã°áÁ¤
~75ÀÏ 
2025-01-21 ¹è´ç¿ä±¸Á¾±âÀÏ
~509ÀÏ 
2026-03-31 100%
201,000,000
À¯Âû
~546ÀÏ 
2026-05-07 80%
160,800,000
À¯Âû
~579ÀÏ 
2026-06-09 64%
128,640,000
ÁøÇà
¹°°Ç¸í¼¼¼­ ÇöȲÁ¶»ç¼­ ¹®°ÇÁ¢¼ö ¼Û´Þ³»¿ª

°¨Á¤Æò°¡ÇöȲ

¸ñ·Ï ÁÖ¼Ò ±¸Á¶/¿ëµµ/´ëÁö±Ç ¸éÀû ºñ°í
´ëÁö±Ç
¸é¸ñµ¿ 185-119 427.4ºÐÀÇ 12.26 12.26 §³
(3.71Æò)
°Ç¹°
¸é¸ñµ¿ 185-119 1µ¿ 5Ãþ502È£ ö±ÙÄÜÅ©¸®Æ®±¸Á¶ 32.515 §³
(9.84Æò)
1) À§Ä¡/Á¦2Á¾ÀϹÝÁÖ°ÅÁö¿ª/Á¦¹ÝÂ÷·® ÃâÀÔ/³ë¼±¹ö½ºÁ¤·ùÀå/ö±ÙÄÜÅ©¸®Æ®±¸Á¶/µµ½Ã°¡½º/°³º°³­¹æ ´õº¸±â
°¨Á¤Æò°¡ ¿äÇ×Ç¥
1)À§Ä¡ ¹× ÁÖÀ§È¯°æ
º»°ÇÀº ¼­¿ïƯº°½Ã Áß¶û±¸ ¸é¸ñµ¿ ¼ÒÀç "Áß¶ûÃʵîÇб³" ºÏÃø Àαٿ¡ À§Ä¡Çϰí, Àαٿ¡
´Ù¼¼´ëÁÖÅÃ, ´Üµ¶ÁÖÅÃ, ±Ù¸°»ýȰ½Ã¼³, °¢±Þ Çб³ µîÀÌ È¥ÀçÇÏ´Â Áö¿ªÀ¸·Î¼­ Á¦¹Ý ÁÖÀ§È¯
°æÀº º¸Åë½ÃµË´Ï´Ù.
2)±³Åë»óȲ
º»°ÇÀº Á¦¹ÝÂ÷·® ÃâÀÔÀÌ °¡´ÉÇϸç, Àα٠µµ·Îº¯¿¡ ³ë¼±¹ö½ºÁ¤·ùÀåÀÌ ¼ÒÀçÇÏ´Â µî ´ëÁß
±³Åë¿©°ÇÀº º¸Åë½Ã µË´Ï´Ù.
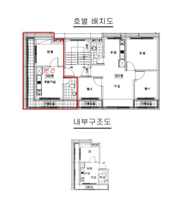
3)°Ç¹°ÀÇ ±¸Á¶
ö±ÙÄÜÅ©¸®Æ®±¸Á¶ Æò½½¶óºêÁöºØ 5ÃþÁß 5Ãþ 502È£·Î¼­,
¿Üº® : µ¹ºÙÀÓ µî¸¶°¨.
³»º® : º®Áöµµ¹è ¹× ÀϺΠŸÀϺÙÀÓ µî ¸¶°¨.
âȣ : ¼¦½Ã âȣÀÓ.
4)ÀÌ¿ë»óÅÂ
´Ù¼¼´ëÁÖÅÃ(¹æ, °Å½Ç, ÁÖ¹æ, ¿å½Ç, ´Ù¿ëµµ½Ç, Çö°ü µî)À¸·Î ÀÌ¿ëÁßÀÔ´Ï´Ù.
5)¼³ºñ³»¿ª
±Þ,¹è¼ö¼³ºñ µî ±âº»ÀûÀÎ À§»ý¼³ºñ, µµ½Ã°¡½º¿¡ ÀÇÇÑ °³º°³­¹æ¼³ºñ µîÀÌ µÇ¾î ÀÖ½À´Ï´Ù.


6)ÅäÁöÀÇ Çü»ó ¹× ÀÌ¿ë»óÅÂ
º»°ÇÀº ÀÎÁ¢ ´ëÁö¿Í ´ëü·Î µî°íÆòźÇÑ °¡ÀåÇüÀÇ ÅäÁö·Î¼­, ´Ù¼¼´ëÁÖÅà °ÇºÎÁö·Î ÀÌ¿ëÁß
ÀÔ´Ï´Ù.
7)ÀÎÁ¢ µµ·Î»óŵî
º»°ÇÀº ¼­ÃøÀ¸·Î ³ëÆø ¾à 4¹ÌÅÍÀÇ Æ÷Àåµµ·Î¿Í Á¢ÇÕ´Ï´Ù.
8)ÅäÁöÀÌ¿ë°èȹ ¹× Á¦ÇÑ»óÅÂ
¸é¸ñµ¿ 185-119
Á¦2Á¾ÀϹÝÁÖ°ÅÁö¿ª(7ÃþÀÌÇÏ), °¡Ãà»çÀ°Á¦Çѱ¸¿ª, ±³À°È¯°æº¸È£±¸¿ª, »ó´ëº¸È£±¸¿ª
(2016-04-01), ´ë°ø¹æ¾îÇùÁ¶±¸¿ª(À§Å¹°íµµ:ÇØ¹ß107m(Áö¹Ý+°ÇÃà+¿Ážµî)), °ú¹Ð¾ïÁ¦±Ç
¿ª, (ÇѰ­)Æó±â¹°¸Å¸³½Ã¼³ ¼³Ä¡Á¦ÇÑÁö¿ª µîÀÔ´Ï´Ù.
<ÀÚ¼¼ÇÑ ³»¿ªÀº ÈÄ÷ "ÅäÁöÀÌ¿ë°èȹȮÀμ­" ÂüÁ¶ÇϽñ⠹ٶø´Ï´Ù.>
9)°øºÎ¿ÍÀÇ Â÷ÀÌ
--
10)±âŸÂü°í»çÇ×(ÀÓ´ë°ü·Ê ¹× ±âŸ)
1) ÀÓ´ë°ü°è
ÀÓ´ë¹Ì»óÀÔ´Ï´Ù.

2) ±âŸ
--
Âü°í
»çÇ×

* °øµ¿ÃâÀÔ¹®ÀÌ Àá°Ü ÀÖ°í, È£ÃâÇÏ¿´À¸³ª ÀÀ´äÀÌ ¾øÀ½. * ¿ìÆíÇÔ¿¡ ¾È³»¹®À» ³Ö¾îµÎ¾úÀ¸³ª ¾Æ¹« ¿¬¶ôÀÌ ¾ø¾î Á¡À¯ÀÚ È®ÀÎ ºÒ´ÉÀÓ.

°ÇÃ๰ÇöȲ

¼ÒÀçÁö ¼­¿ïƯº°½Ã Áß¶û±¸ ¸é¸ñµ¿ 185-119¹øÁö
´ëÁö¸éÀû   ¿¬¸éÀû 449.12§³
(136.1Æò)
°ÇÃà¸éÀû 127.69§³
(38.69Æò)
¿ëÀû·ü»êÁ¤
¿¬¸éÀû
449.12§³
(136.1Æò)
°ÇÆóÀ²   ¿ëÀû·ü  
Áö»óÃþ¼ö 5Ãþ ÁöÇÏÃþ¼ö  
ÁÖ¿ëµµ °øµ¿ÁÖÅà ±¸Á¶ ö±ÙÄÜÅ©¸®Æ®±¸Á¶
Âø°øÀÏÀÚ 2011.10.14 »ç¿ë½ÂÀÎÀÏÀÚ 2012.05.01


±¹ÅäºÎ½Ç°Å·¡°¡ ¼­¿ïƯº°½Ã Áß¶û±¸ ¸é¸ñµ¿

¡Ü ¸Å¸Å

¸éÀû(§³), ±Ý¾×(¸¸¿ø)

¡Ü Àü¼¼

¸éÀû(§³), ±Ý¾×(¸¸¿ø)

°è¾àÀϰǹ°¸íĪÃþ¿¬¸éÀûº¸Áõ±Ý¿ù¼¼°ÇÃà
26.05.18¶ì¾Æ¸ðÇϿ콺258.4345,0002022
26.05.18¸é¸ñ»ó»óÇå427.4126,55002018
26.05.18ûº¸ÆÄÅ©ºô(´Ùµ¿)624.1716,60002016
26.05.16¾î¹ÝÈÞ6Â÷829.0325,30002020
26.05.16´ëÁ¾¾ÆÆ®ºô329.8518,00002022
¢Ñ ´õº¸±â

µî±âºÎµîº» ¿ä¾à(°Ç¹°)

  Á¢¼öÀÏÀÚ µî±â¸ñÀû/±Ç¸®ÀÚ ±Ç¸®±Ý¾× ±âÁØ
1 2022³â3¿ù30ÀÏ
¼ÒÀ¯±Ç
ÀÌOO
¼Ò¸ê
2 2022³â5¿ù20ÀÏ
±ÙÀú´ç±Ç
(OOOO
100,000,000 ¼Ò¸ê±âÁØ
3 2023³â8¿ù22ÀÏ
°¡¾Ð·ù
Á¦OOOO
21,703,847 ¼Ò¸ê
4 2023³â8¿ù29ÀÏ
°¡¾Ð·ù
(OOOO
9,489,639 ¼Ò¸ê
5 2023³â8¿ù30ÀÏ
ÀÓÂ÷±Ç¼³Á¤
ȫOO
190,000,000 ¼Ò¸ê
6 2024³â11¿ù8ÀÏ
ÀÓÀǰæ¸Å
ÆÄOOOO
¼Ò¸ê

ÀÓÂ÷ÀÎÇöȲ (¹è´ç¿ä±¸Á¾±âÀÏ: 2025-01-21)

ÀÓÂ÷ÀÎ ¿ëµµ/Á¡À¯ º¸Áõ±Ý/¿ù¼¼ ´ëÇ×·Â
ÀüÀÔÀÏ/È®Á¤ÀÏ ¹è´ç¿ä±¸ ºñ°í
È«OO ÀüºÎ(502È£ÀüºÎ) 190,000,000
O
2021.07.30.
2021.07.05.
2025.1.21. 2021.07.31.ºÎÅÍ2025.01.ÇöÀç±îÁö
ºñ°í
(¸Å°¢¹°°Ç
¸í¼¼¼­)
È«½Â¿ì:ÀÓÂ÷±ÇÀڷμ­ ÀÓÂ÷±Çµî±âÀÏÀº 2023³â8¿ù30ÀÏ

¿©ÀÇÁÖ°æ¸Å Á¶¾ð ÇÑ ¸¶µð

¼±¼øÀ§ ÀÓÂ÷±Çµî±â°¡ µÇ¾î ÀÖ½À´Ï´Ù
´ëÇ×·ÂÀÌ ÀÖ´Â ¼±¼øÀ§ ÀÓÂ÷±Çµî±â ±Ç¸®ÀÚ°¡ ¹è´çÀ» Àü¾× ¹ÞÁö ¸øÇÒ °æ¿ì ³«ÂûÀÚ°¡ ÀÜ¿© º¸Áõ±ÝÀ» ÀμöÇØ¾ßÇÏ´Â °æ¿ìµµ ÀÖ½À´Ï´Ù.

ÁÖÀÇ»çÇ× (ÃÖ¼±¼øÀ§ ¼³Á¤ÀÏ: 2022. 5. 20. ±ÙÀú´ç±Ç ¼³Á¤)

¸Å°¢À¸·Î ¼Ò¸êµÇÁö ¾Ê´Â µî±âºÎ±Ç¸®: 2023³â8¿ù30ÀÏ Á¦128811È£·Î °æ·áµÈ À»±¸ 10¹ø ÁÖÅÃÀÓÂ÷±Çµî±â´Â ¹è´ç¿¡¼­ º¸Áõ±ÝÀü¾×ÀÌ º¯Á¦µÇÁö ¾ÊÀ¸¸é Àܾ×À» ¸Å¼öÀÎÀÌ ÀμöÇÔ
¸Å°¢À¸·Î ¼³Á¤µÈ °ÍÀ¸·Î º¸´Â Áö»ó±Ç:
¡Ø¹Ì³³°ü¸®ºñ(°ø¿ë) Àμö¿©ºÎ¸¦ ÀÔÂû Àü¿¡ È®ÀÎÇϽñ⠹ٶø´Ï´Ù

 

Áö¿ªºÐ¼®

ÁöÇÏö¸í Á÷¼±°Å¸®

Çб³¸í ÀüÈ­¹øÈ£ ÁÖ¼Ò Á÷¼±°Å¸®

¹ý¿ø

¼­¿ïºÏºÎÁö¹æ¹ý¿ø (013-22)¼­¿ïƯº°½Ã µµºÀ±¸ ¸¶µé·Î749 (µµºÀ2µ¿ 626)
´ëÇ¥ : 02)910-3114
°üÇÒÁö¿ª : °­ºÏ±¸, ³ë¿ø±¸, µµºÀ±¸, µ¿´ë¹®±¸, ¼ººÏ±¸, Áß¶û±¸

µî±â¼Ò ¼­¿ïºÏºÎÁö¹æ¹ý¿ø º»¿ø µî±â±¹ (´ëÇ¥:1544-0773, ÆÑ½º:(02)2030-2330, ¼­¿ïƯº°½Ã µµºÀ±¸ ³ëÇØ·Î 325 (⵿ 337¹øÁö))
¼¼¹«¼­ Áß¶û ¼¼¹«¼­ (´ëÇ¥:02-2170-02, ÆÑ½º:02-493-7315, ¼­¿ïƯº°½Ã Áß¶û±¸ ¸Á¿ì·Î 176(»óºÀµ¿ 137-1))

Àαٳ«ÂûÅë°è

±â°£ ¸Å°¢°Ç¼ö Æò±Õ°¨Á¤°¡
Æò±Õ¸Å°¢°¡
¸Å°¢°¡À²
Æò±ÕÀ¯Âû¼ö
3°³¿ù 25°Ç 267,606,720¿ø
196,528,864¿ø
72%
2.6ȸ
6°³¿ù 41°Ç 278,740,683¿ø
208,646,942¿ø
73%
2.8ȸ
12°³¿ù 49°Ç 277,252,408¿ø
214,141,741¿ø
76%
2.6ȸ


º» °æ¸ÅÁ¤º¸´Â ¹ý¿øÀÚ·á¿Í ÀÏÄ¡Çϵµ·Ï ÇÏ¿´À¸³ª ±Ç¸®»çÇ׺¯µ¿, ÀÔ·ÂÂø¿À µîÀÇ ¿øÀÎÀ¸·Î »ç½Ç°ú ´Ù¸¦ ¼ö ÀÖ½À´Ï´Ù. ÀÌ¿ë¾à°ü¿¡ ÀǰЏéÃ¥Á¶°ÇÀ¸·Î Á¦°øµÊÀ» ¾Ë¸®¸ç, °æ¸ÅÀÔÂû½Ã ¹Ýµå½Ã °ü·Ã °øºÎ¸¦ ÀçÈ®ÀÎÇϽñ⠹ٶø´Ï´Ù. º¸´Ù Æí¸®ÇÑ °æ¸ÅÁ¤º¸ Á¦°øÀ» À§ÇØ Áö¼ÓÀûÀ¸·Î °³¼±ÇϰڽÀ´Ï´Ù. ÀÌ¿ëÇØ Áּż­ °¨»çÇÕ´Ï´Ù.