·Î±×ÀÎ
63
´Ù¼¼´ë(ºô¶ó)
¼­¿ï¼­ºÎÁö¹æ¹ý¿ø
 °¨Á¤°¡279,000,000 ¿ø
 ÃÖÀú°¡(80%) 223,200,000 ¿ø
 º¸Áõ±Ý(10%) 22,320,000 ¿ø
 Ã»±¸¾×255,000,000 ¿ø
¼­¿ïƯº°½Ã ÀºÆò±¸ ÅëÀÏ·Î71°¡±æ 6, 2Ãþ201È£ (´ëÁ¶µ¿,ÃÊ¿ø±×¸°ºô)
¼­¿ïƯº°½Ã ÀºÆò±¸ ´ëÁ¶µ¿ 84-14
»ç°Ç¹øÈ£ 2024Ÿ°æ53641
°æ¸ÅÁ¾·ùºÎµ¿»ê°­Á¦°æ¸Å
¸Å°¢´ë»óÅäÁö ¹× °Ç¹°Àϰý ¸Å°¢
¸Å°¢±âÀÏ    2026.05.26(È­) 10:00 ÀÔÂû 50ÀÏÀü    
ÅäÁö¸éÀû31.19§³(9.43 Æò)
°Ç¹°¸éÀû47.14§³(14.26 Æò)
乫/¼ÒÀ¯ÀÚÀüOO / ÀüOO
ä±ÇÀÚÁÖOOOOOOO
ÆäÀ̽ººÏ Æ®À§ÅÍ ±¸±Û+
īī¿À½ºÅ丮
īī¿ÀÅå sms¹®ÀÚº¸³»±â
 

±âÀϳ»¿ª

°æ°ú ³¯Â¥ Àú°¨ ÃÖÀú°¡ °á°ú
Á¢¼öÀÏ 2024-04-07 °æ¸ÅÁ¢¼ö
~1ÀÏ 
2024-04-08 °æ¸Å°³½Ã°áÁ¤
~74ÀÏ 
2024-06-20 ¹è´ç¿ä±¸Á¾±âÀÏ
~723ÀÏ 
2026-03-31 100%
279,000,000
À¯Âû
~779ÀÏ 
2026-05-26 80%
223,200,000
ÁøÇà
¹°°Ç¸í¼¼¼­ ÇöȲÁ¶»ç¼­ ¹®°ÇÁ¢¼ö ¼Û´Þ³»¿ª

°¨Á¤Æò°¡ÇöȲ

¸ñ·Ï ÁÖ¼Ò ±¸Á¶/¿ëµµ/´ëÁö±Ç ¸éÀû ºñ°í
´ëÁö±Ç
´ëÁ¶µ¿ 84-14 231ºÐÀÇ 31.19 31.19 §³
(9.43Æò)
°Ç¹°
´ëÁ¶µ¿ 84-14 2Ãþ201È£ ö±ÙÄÜÅ©¸®Æ®±¸Á¶ 47.14 §³
(14.26Æò)
1) À§Ä¡/µµ½ÃÁö¿ª/Á¦3Á¾ÀϹÝÁÖ°ÅÁö¿ª/Â÷·®Á¢±ÙÀÌ °¡´É/ÁöÇÏö/³ë¼±¹ö½ºÁ¤·ùÀå/ö±ÙÄÜÅ©¸®Æ®±¸Á¶ ´õº¸±â
°¨Á¤Æò°¡ ¿äÇ×Ç¥
1)À§Ä¡ ¹× ÁÖÀ§È¯°æ
º»°ÇÀº ¼­¿ïƯº°½Ã ÀºÆò±¸ ´ëÁ¶µ¿ ¼ÒÀç "ºÒ±¤¿ª" ºÏ¼­Ãø Àαٿ¡ À§Ä¡Çϰí, ÁÖÀ§´Â ´ÜÁ·ÁÖÅÃ, ´Ù¼¼´ëÁÖÅà µî°ú °¢Á¾ ±Ù¸°»ýȰ ½Ã¼³ µîÀÌ ¼ÒÀçÇÏ´Â µî ÁÖÀ§È¯°æÀº º¸Åë½ÃµÊ.
2)±³Åë»óȲ
º»°Ç±îÁö Â÷·®Á¢±ÙÀÌ °¡´ÉÇϸç, Àαٿ¡ ³ë¼±¹ö½ºÁ¤·ùÀå, ÁöÇÏö "ºÒ±¤¿ª" µîÀÌ ¼ÒÀçÇÏ¿© ±³Åë»óȲÀº º¸Åë½ÃµÊ.
3)°Ç¹°ÀÇ ±¸Á¶
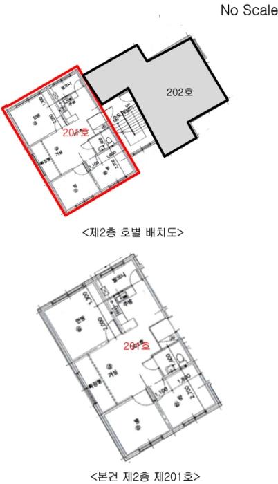
´ë»ó¹°°ÇÀº ö±ÙÄÜÅ©¸®Æ®±¸Á¶ (ö±Ù)ÄÜÅ©¸®Æ®(Æò½½·¡ºê)ÁöºØ Áö»ó4Ãþ °Ç¹° ³» Á¦2Ãþ Á¦201È£·Î¼­,

¿Üº®: ¼®ÀçºÙÀÓ ¸¶°¨µî
³»º®: -
âȣ: »þ½Ãâȣ µîÀÓ.

4)ÀÌ¿ë»óÅÂ
´Ù¼¼´ëÁÖÅÃÀ¸·Î ÀÌ¿ëÁßÀÓ.
5)¼³ºñ³»¿ª
À§»ý ¹× ±Þ¹è¼ö¼³ºñ, ³­¹æ¼³ºñ, ¼Ò¹æ¼³ºñ µîÀÓ.
6)ÅäÁöÀÇ Çü»ó ¹× ÀÌ¿ë»óÅÂ
º»°ÇÀº »ç´Ù¸®ÇüÀÇ ÆòÁö·Î¼­, ´Ù¼¼´ëÁÖÅà °ÇºÎÁö·Î ÀÌ¿ëÁßÀÓ.
7)ÀÎÁ¢ µµ·Î»óŵî
º»°Ç ºÏµ¿ÃøÀ¸·Î ³ëÆø ¾à 4m, ³²ÃøÀ¸·Î ³ëÆø ¾à 6mÀÇ µµ·Î¿¡ Á¢ÇÔ
8)ÅäÁöÀÌ¿ë°èȹ ¹× Á¦ÇÑ»óÅÂ
µµ½ÃÁö¿ª, Á¦3Á¾ÀϹÝÁÖ°ÅÁö¿ª, ¼Ò·Î3·ù(Æø 8m ¹Ì¸¸)(ÀúÃË), °¡Ãà»çÀ°Á¦Çѱ¸¿ª<°¡ÃàºÐ´¢ÀÇ °ü¸® ¹× À̿뿡 °üÇÑ ¹ý·ü>, »ó´ëº¸È£±¸¿ª((ÃÖÁ¾È®ÀÎÀº °üÇÒ ±³À°Ã»¿¡ ¹Ýµå½Ã È®ÀÎÀÌ ÇÊ¿äÇÑ »çÇ×ÀÓ))<±³À°È¯°æ º¸È£¿¡ °üÇÑ ¹ý·ü>, »ó´ëº¸È£±¸¿ª(ÃÖÁ¾È®ÀÎÀº °üÇÒ ±³À°Ã»¿¡ ¹Ýµå½Ã È®ÀÎÀÌ ÇÊ¿äÇÑ »çÇ×ÀÓ)<±³À°È¯°æ º¸È£¿¡ °üÇÑ ¹ý·ü>, ´ë°ø¹æ¾îÇùÁ¶±¸¿ª(À§Å¹°íµµ:77-257m)<±º»ç±âÁö ¹× ±º»ç½Ã¼³ º¸È£¹ü>, °ú¹Ð¾ïÁ¦±Ç¿ª<¼öµµ±ÇÁ¤ºñ°èȹ¹ý>ÀÓ.
9)°øºÎ¿ÍÀÇ Â÷ÀÌ
-
10)±âŸÂü°í»çÇ×(ÀÓ´ë°ü·Ê ¹× ±âŸ)
ÀÓ´ë°ü°è ¹Ì»ó
Âü°í
»çÇ×
ÀÓÂ÷ÀÎ ¹× ÀÓÂ÷±Ç½Â°èÀÎ ÁÖÅõµ½Ãº¸Áõ°ø»ç´Â ¹è´ç¹ÞÁö ¸øÇÏ´Â Àܾ׿¡ ´ëÇÑ ÀÓ´ëÂ÷º¸Áõ±Ý ¹Ýȯû±¸±ÇÀ» Æ÷±âÇϰí, ÀÓÂ÷±Çµî±â¸¦ ¸»¼ÒÇÏ´Â °ÍÀ» Á¶°ÇÀ¸·Î ¸Å°¢

°ÇÃ๰ÇöȲ

¼ÒÀçÁö ¼­¿ïƯº°½Ã ÀºÆò±¸ ´ëÁ¶µ¿ 84-14¹øÁö
´ëÁö¸éÀû 225§³
(68.18Æò)
¿¬¸éÀû 517.19§³
(156.72Æò)
°ÇÃà¸éÀû 112.23§³
(34.01Æò)
¿ëÀû·ü»êÁ¤
¿¬¸éÀû
397.18§³
(120.36Æò)
°ÇÆóÀ² 49.88% ¿ëÀû·ü 176.52%
Áö»óÃþ¼ö 4Ãþ ÁöÇÏÃþ¼ö 1Ãþ
ÁÖ¿ëµµ °øµ¿ÁÖÅà ±¸Á¶ ö±ÙÄÜÅ©¸®Æ®±¸Á¶
Âø°øÀÏÀÚ 2015.03.07 »ç¿ë½ÂÀÎÀÏÀÚ 2015.08.07
°ÇÃ๰Ãþº°ÇöȲ [º¸±â]


±¹ÅäºÎ½Ç°Å·¡°¡ ¼­¿ïƯº°½Ã ÀºÆò±¸ ´ëÁ¶µ¿

¡Ü ¸Å¸Å

¸éÀû(§³), ±Ý¾×(¸¸¿ø)

¡Ü Àü¼¼

¸éÀû(§³), ±Ý¾×(¸¸¿ø)

°è¾àÀϰǹ°¸íĪÃþ¿¬¸éÀûº¸Áõ±Ý¿ù¼¼°ÇÃà
26.03.31¿¡µ§ºô¶ó(209-13)552.1417,70002002
26.03.30È«³²ÇÏÀÌÃ÷¸Ç¼Ç136.428,000301993
26.03.29»ïÀÍÇÏÀ̺ô(A,Bµ¿)355.1320,000402009
26.03.28Áß¾Ó½¦¸£ºô(194-25)241.225,000752003
26.03.28µå¸²½ºÄ«À̺ô529.9322,00002018
¢Ñ ´õº¸±â

µî±âºÎµîº» ¿ä¾à(°Ç¹°)

  Á¢¼öÀÏÀÚ µî±â¸ñÀû/±Ç¸®ÀÚ ±Ç¸®±Ý¾× ±âÁØ
1 2016³â2¿ù19ÀÏ
¼ÒÀ¯±Ç
ÀüOO
¼Ò¸ê
2 2022³â10¿ù11ÀÏ
ÀÓÂ÷±Ç¼³Á¤
ÀÌOO
255,000,000 Àμö
3 2024³â4¿ù8ÀÏ
°­Á¦°æ¸Å
ÁÖOOOO
¼Ò¸ê±âÁØ
4 2024³â4¿ù12ÀÏ
¾Ð·ù
±¹OOOO
¼Ò¸ê
5 2024³â6¿ù19ÀÏ
¾Ð·ù
˼OO
¼Ò¸ê

ÀÓÂ÷ÀÎÇöȲ (¹è´ç¿ä±¸Á¾±âÀÏ: 2024-06-20)

ÀÓÂ÷ÀÎ ¿ëµµ/Á¡À¯ º¸Áõ±Ý/¿ù¼¼ ´ëÇ×·Â
ÀüÀÔÀÏ/È®Á¤ÀÏ ¹è´ç¿ä±¸ ºñ°í
ÀÌOO ÀüºÎ 255,000,000
O
2020.09.18
2020.08.18
2024.6.20. 2020.09.19~
ºñ°í
(¸Å°¢¹°°Ç
¸í¼¼¼­)
À̽žÖ:ÀÓÂ÷º¸Áõ±Ý ¿ì¼±º¯Á¦±ÇÀ» ½Åûä±ÇÀÚ ÁÖÅõµ½Ãº¸Áõ°ø»ç¿¡¼­ ½Â°èÇÔ.

¿©ÀÇÁÖ°æ¸Å Á¶¾ð ÇÑ ¸¶µð

¼±¼øÀ§ ÀÓÂ÷±Çµî±â°¡ µÇ¾î ÀÖ½À´Ï´Ù
´ëÇ×·ÂÀÌ ÀÖ´Â ¼±¼øÀ§ ÀÓÂ÷±Çµî±â ±Ç¸®ÀÚ°¡ ¹è´çÀ» Àü¾× ¹ÞÁö ¸øÇÒ °æ¿ì ³«ÂûÀÚ°¡ ÀÜ¿© º¸Áõ±ÝÀ» ÀμöÇØ¾ßÇÏ´Â °æ¿ìµµ ÀÖ½À´Ï´Ù.

ÁÖÀÇ»çÇ× (ÃÖ¼±¼øÀ§ ¼³Á¤ÀÏ: 2024.04.08. °æ¸Å°³½Ã°áÁ¤ ¼³Á¤)

¸Å°¢À¸·Î ¼Ò¸êµÇÁö ¾Ê´Â µî±âºÎ±Ç¸®:
¸Å°¢À¸·Î ¼³Á¤µÈ °ÍÀ¸·Î º¸´Â Áö»ó±Ç:
ÀÓÂ÷ÀÎ ¹× ÀÓÂ÷±Ç½Â°èÀÎ ÁÖÅõµ½Ãº¸Áõ°ø»ç´Â ¹è´ç¹ÞÁö ¸øÇÏ´Â Àܾ׿¡ ´ëÇÑ ÀÓ´ëÂ÷º¸Áõ±Ý ¹Ýȯû±¸±ÇÀ» Æ÷±âÇϰí, ÀÓÂ÷±Çµî±â ¸¦ ¸»¼ÒÇÏ´Â °ÍÀ» Á¶°ÇÀ¸·Î ¸Å°¢
¡Ø¹Ì³³°ü¸®ºñ(°ø¿ë) Àμö¿©ºÎ¸¦ ÀÔÂû Àü¿¡ È®ÀÎÇϽñ⠹ٶø´Ï´Ù

 

Áö¿ªºÐ¼®

ÁöÇÏö¸í Á÷¼±°Å¸®

Çб³¸í ÀüÈ­¹øÈ£ ÁÖ¼Ò Á÷¼±°Å¸®

¹ý¿ø

¼­¿ï¼­ºÎÁö¹æ¹ý¿ø (042-07)¼­¿ïƯº°½Ã ¸¶Æ÷±¸ ¸¶Æ÷´ë·Î 174 (°ø´öµ¿)
´ëÇ¥ : 02)3271-1114, ¹Î¿ø : 02)3271-1704/1881, ¾ß°£ : 02)3271-1700~1
°üÇÒÁö¿ª : ¿ë»ê±¸, ¼­´ë¹®±¸, ¸¶Æ÷±¸, ÀºÆò±¸

µî±â¼Ò ¼­¿ï¼­ºÎÁö¹æ¹ý¿ø º»¿ø µî±â±¹ (´ëÇ¥:1544-0773, ÆÑ½º:(02)3271-9130, ¼­¿ïƯº°½Ã ¸¶Æ÷±¸ ¸¶Æ÷´ë·Î 199 (¾ÆÇöµ¿ 783))
¼¼¹«¼­ ÀºÆò¼¼¹«¼­ (´ëÇ¥:02-2132-92, ÆÑ½º:02-2132-9501, ¼­¿ïƯº°½Ã ÀºÆò±¸ ¼­¿À¸ª·Î7(ÀÀ¾Ïµ¿84-5))

Àαٳ«ÂûÅë°è

±â°£ ¸Å°¢°Ç¼ö Æò±Õ°¨Á¤°¡
Æò±Õ¸Å°¢°¡
¸Å°¢°¡À²
Æò±ÕÀ¯Âû¼ö
3°³¿ù 47°Ç 253,019,160¿ø
163,987,788¿ø
63%
4.7ȸ
6°³¿ù 86°Ç 269,888,378¿ø
180,680,928¿ø
66%
4.8ȸ
12°³¿ù 177°Ç 285,603,905¿ø
200,505,179¿ø
70%
3.7ȸ


º» °æ¸ÅÁ¤º¸´Â ¹ý¿øÀÚ·á¿Í ÀÏÄ¡Çϵµ·Ï ÇÏ¿´À¸³ª ±Ç¸®»çÇ׺¯µ¿, ÀÔ·ÂÂø¿À µîÀÇ ¿øÀÎÀ¸·Î »ç½Ç°ú ´Ù¸¦ ¼ö ÀÖ½À´Ï´Ù. ÀÌ¿ë¾à°ü¿¡ ÀǰЏéÃ¥Á¶°ÇÀ¸·Î Á¦°øµÊÀ» ¾Ë¸®¸ç, °æ¸ÅÀÔÂû½Ã ¹Ýµå½Ã °ü·Ã °øºÎ¸¦ ÀçÈ®ÀÎÇϽñ⠹ٶø´Ï´Ù. º¸´Ù Æí¸®ÇÑ °æ¸ÅÁ¤º¸ Á¦°øÀ» À§ÇØ Áö¼ÓÀûÀ¸·Î °³¼±ÇϰڽÀ´Ï´Ù. ÀÌ¿ëÇØ Áּż­ °¨»çÇÕ´Ï´Ù.