·Î±×ÀÎ
68
´Ù¼¼´ë(ºô¶ó)
¼ö¿øÁö¹æ¹ý¿ø ¼º³²Áö¿ø
 °¨Á¤°¡211,000,000 ¿ø
 ÃÖÀú°¡(100%) 211,000,000 ¿ø
 º¸Áõ±Ý(10%) 21,100,000 ¿ø
 Ã»±¸¾×224,643,615 ¿ø
°æ±âµµ ±¤Áֽà ¼ö·¹½Ç±æ 143-54, 1Ãþ101È£ (´ÉÆòµ¿,¶ó¶¼ÇϿ콺)
°æ±âµµ ±¤Áֽà ´ÉÆòµ¿ 654-24
»ç°Ç¹øÈ£ 2025Ÿ°æ51419
°æ¸ÅÁ¾·ùºÎµ¿»ê°­Á¦°æ¸Å
¸Å°¢´ë»óÅäÁö ¹× °Ç¹°Àϰý ¸Å°¢
¸Å°¢±âÀÏ    2026.03.30(¿ù) 10:00 ÀÔÂû 1ÀÏÀü    
ÅäÁö¸éÀû60.18§³(18.20 Æò)
°Ç¹°¸éÀû50.08§³(15.15 Æò)
乫/¼ÒÀ¯ÀÚÃÖOO / ÃÖOO
ä±ÇÀÚ±èOO
ÆäÀ̽ººÏ Æ®À§ÅÍ ±¸±Û+
īī¿À½ºÅ丮
īī¿ÀÅå sms¹®ÀÚº¸³»±â
 

±âÀϳ»¿ª

°æ°ú ³¯Â¥ Àú°¨ ÃÖÀú°¡ °á°ú
Á¢¼öÀÏ 2025-01-23 °æ¸ÅÁ¢¼ö
~11ÀÏ 
2025-02-03 °æ¸Å°³½Ã°áÁ¤
~75ÀÏ 
2025-04-08 ¹è´ç¿ä±¸Á¾±âÀÏ
~431ÀÏ 
2026-03-30 100%
211,000,000
ÁøÇà
¹°°Ç¸í¼¼¼­ ÇöȲÁ¶»ç¼­ ¹®°ÇÁ¢¼ö ¼Û´Þ³»¿ª

°¨Á¤Æò°¡ÇöȲ

¸ñ·Ï ÁÖ¼Ò ±¸Á¶/¿ëµµ/´ëÁö±Ç ¸éÀû ºñ°í
´ëÁö±Ç
´ÉÆòµ¿ 654-24 469ºÐÀÇ 60.175 60.175 §³
(18.20Æò)
°Ç¹°
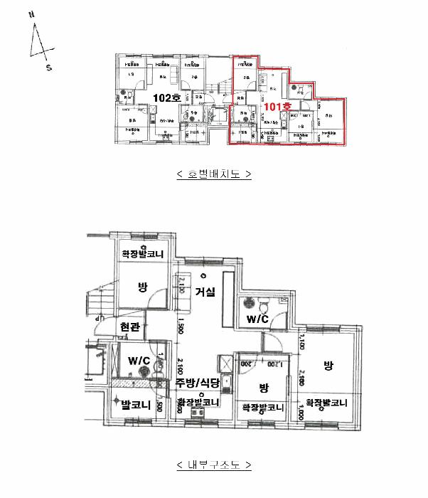
´ÉÆòµ¿ 654-24 1Ãþ101È£ ö±ÙÄÜÅ©¸®Æ®±¸Á¶ 50.08 §³
(15.15Æò)
1) À§Ä¡/°èȹ°ü¸®Áö¿ª/¹ö½ºÁ¤·ùÀå/ö±ÙÄÜÅ©¸®Æ®±¸Á¶/°³º°³­¹æ ´õº¸±â
°¨Á¤Æò°¡ ¿äÇ×Ç¥
1)À§Ä¡ ¹× ÁÖÀ§È¯°æ
º»°ÇÀº °æ±âµµ ±¤Áֽà ´ÉÆòµ¿ ¼ÒÀç ""¼ö·¹½Ç¸¶À»"" ³²¼­Ãø Àαٿ¡ À§Ä¡ÇÏ¸ç ºÎ±ÙÀ¸·Î ´Üµ¶ÁÖÅÃ
¹× ´Ù¼¼´ëÁÖÅÃ, ¼Ò±Ô¸ð °øÀå ¹× Ã¢°í, ±Ù¸°»ýȰ½Ã¼³, ³ó°æÁö, ÀӾߵîÀÌ ¼ÒÀçÇϸç ÁÖ°ÅÁö·Î¼­
ÀÇ Á¦¹Ý ÁÖÀ§È¯°æÀº º¸ÅëÀÎ ÆíÀÓ.
2)±³Åë»óȲ
º»°Ç±îÁö Â÷·® ÁøÃâÀÔ °¡´ÉÇϸç Àαٿ¡ ¹ö½ºÁ¤·ùÀåÀÌ ¼ÒÀçÇÏ¿© ´ëÁß±³Åë ÀÌ¿ëÀº º¸ÅëÀÎ ÆíÀÓ.
3)°Ç¹°ÀÇ ±¸Á¶
ö±ÙÄÜÅ©¸®Æ®±¸Á¶ (ö±Ù)ÄÜÅ©¸®Æ®(°æ»ç½º¶óºê)ÁöºØ 4Ãþ°Ç ´Ù¼¼´ëÁÖÅà 1Ãþ 101È£·Î¼­,

¿Ü º® : Ä¡À庮µ¹½×±â ¹× ÀϺΠµ¹ºÙÀÓ.
³» º® : º®Áöµµ¹è ¹× ŸÀϸ¶°¨.
â È£ : ÇÏÀ̼¦½Ã ÀÌÁßâÀÓ.
4)ÀÌ¿ë»óÅÂ
´Ù¼¼´ëÁÖÅÃÀ¸·Î ÀÌ¿ëÁßÀÓ.(Èĸé""³»ºÎ±¸Á¶µµ""Âü°í)
5)¼³ºñ³»¿ª
À§»ý ±Þ.¹è¼ö¼³ºñ, °³º°³­¹æ¼³ºñ, ¼Ò¹æ¼³ºñ, ½Â°­±â, °øµ¿Çö°üº¸¾È¼³ºñ µîÀÓ.
6)ÅäÁöÀÇ Çü»ó ¹× ÀÌ¿ë»óÅÂ
ºÏ¼­Ãø ÇÏÇ⠿ϰæ»çÀÇ ÅäÁö¸¦ ÆòÁöÁ¶¼ºÇÑ ºÎÁ¤Çü ÅäÁö·Î¼­¼­ ´Ù¼¼´ëÁÖÅà °ÇºÎÁö·Î ÀÌ¿ëÁßÀÓ.
7)ÀÎÁ¢ µµ·Î»óŵî
º»°Ç ºÏ¼­Ãø ¹× ºÏµ¿ÃøÀ¸·Î ·ÎÆø ¾à 4-6¹ÌÅÍ µµ·Î¿¡ °¢°¢ Á¢ÇÔ.
8)ÅäÁöÀÌ¿ë°èȹ ¹× Á¦ÇÑ»óÅÂ
°èȹ°ü¸®Áö¿ª, ¼ºÀå°ü¸®°èȹ±¸¿ª(¼ºÀå°ü¸®Áö¿ª(ÁÖ°ÅÇü))

°¡Ãà»çÀ°Á¦Çѱ¸¿ª(ÀϺÎÁ¦Çѱ¸¿ª)<°¡ÃàºÐ´¢ÀÇ °ü¸® ¹× À̿뿡 °üÇÑ ¹ý·ü>, ¹èÃâ½Ã¼³¼³Ä¡Á¦ÇÑ
Áö¿ª<¹°È¯°æº¸Àü¹ý>, ÀÚ¿¬º¸Àü±Ç¿ª<¼öµµ±ÇÁ¤ºñ°èȹ¹ý>, Ưº°´ëÃ¥Áö¿ª<ȯ°æÁ¤Ã¥±âº»¹ý>
9)°øºÎ¿ÍÀÇ Â÷ÀÌ
-
10)±âŸÂü°í»çÇ×(ÀÓ´ë°ü·Ê ¹× ±âŸ)
ÀÓ´ë°ü°è ¹Ì»óÀÓ.

°ÇÃ๰ÇöȲ

¼ÒÀçÁö °æ±âµµ ±¤Áֽà ´ÉÆòµ¿ 654-24¹øÁö
´ëÁö¸éÀû 469§³
(142.12Æò)
¿¬¸éÀû 458.68§³
(138.99Æò)
°ÇÃà¸éÀû 154.34§³
(46.77Æò)
¿ëÀû·ü»êÁ¤
¿¬¸éÀû
458.68§³
(138.99Æò)
°ÇÆóÀ² 32.91% ¿ëÀû·ü 97.8%
Áö»óÃþ¼ö 4Ãþ ÁöÇÏÃþ¼ö  
ÁÖ¿ëµµ °øµ¿ÁÖÅà ±¸Á¶ ö±ÙÄÜÅ©¸®Æ®±¸Á¶
Âø°øÀÏÀÚ 2013.07.03 »ç¿ë½ÂÀÎÀÏÀÚ 2017.12.29
°ÇÃ๰Ãþº°ÇöȲ [º¸±â]


±¹ÅäºÎ½Ç°Å·¡°¡ °æ±âµµ ±¤Áֽà ´ÉÆòµ¿

¡Ü ¸Å¸Å

¸éÀû(§³), ±Ý¾×(¸¸¿ø)

¡Ü Àü¼¼

¸éÀû(§³), ±Ý¾×(¸¸¿ø)

°è¾àÀϰǹ°¸íĪÃþ¿¬¸éÀûº¸Áõ±Ý¿ù¼¼°ÇÃà
26.03.12¿£Ä«¿îƼ(102µ¿)471.3822,000202016
26.03.11Àå¹ÌŸ¿î(°¡µ¿)157.4111,200152012
26.03.07±¹Á¦½¦¸£ºô(3µ¿)454.39514,3002012
26.03.06±×¸°ÇìÀ̺ìºô¸®Áö(Gµ¿)274.5220,900102013
26.03.06¿¡º¥ÇϿ콺(101µ¿)347.2914,5002012
¢Ñ ´õº¸±â

µî±âºÎµîº» ¿ä¾à(°Ç¹°)

  Á¢¼öÀÏÀÚ µî±â¸ñÀû/±Ç¸®ÀÚ ±Ç¸®±Ý¾× ±âÁØ
1 2021³â12¿ù21ÀÏ
¼ÒÀ¯±Ç
ÃÖOO
¼Ò¸ê
2 2024³â7¿ù25ÀÏ
ÀÓÂ÷±Ç¼³Á¤
±èOO
210,000,000 Àμö
3 2025³â2¿ù3ÀÏ
°­Á¦°æ¸Å
±èOO
¼Ò¸ê±âÁØ
4 2025³â4¿ù18ÀÏ
¾Ð·ù
±¹OOOO
¼Ò¸ê

ÀÓÂ÷ÀÎÇöȲ (¹è´ç¿ä±¸Á¾±âÀÏ: 2025-04-08)

ÀÓÂ÷ÀÎ ¿ëµµ/Á¡À¯ º¸Áõ±Ý/¿ù¼¼ ´ëÇ×·Â
ÀüÀÔÀÏ/È®Á¤ÀÏ ¹è´ç¿ä±¸ ºñ°í
±èOO 101È£ÀüºÎ 210,000,000
O
2022.07.15.
2022.07.07.
2022.07.15.ºÎÅÍ
ÁÖOOOOOOO ÀüºÎ 210,000,000
O
2022.07.15.
2022.07.07.
2025.3.11. 2022.07.15.ºÎÅÍ
ºñ°í
(¸Å°¢¹°°Ç
¸í¼¼¼­)
±èÇü¿ø:°æ¸Å½Åûä±ÇÀÚ·Î ¹è´ç¿ä±¸ÀÏÀÚ´Â °æ¸Å½ÅûÀÏÀÓ ÁÖÅÃÀÓÂ÷±Çµî±âÀÏÀº 2024.07.25.ÀÓ ÁÖ½Äȸ»ç ¿ì¸®ÀºÇà:ÀÓÂ÷ÀÎ ±èÇü¿øÀÇ ÀÓÂ÷º¸Áõ±Ý¹Ýȯä±Ç Áß ±Ý201,600,000¿øÀÇ ¾ç¼öÀÎÀÓ(´ëÇ׷¹׿켱º¯Á¦±Ç ½Â°è)

¿©ÀÇÁÖ°æ¸Å Á¶¾ð ÇÑ ¸¶µð

¼±¼øÀ§ ÀÓÂ÷±Çµî±â°¡ µÇ¾î ÀÖ½À´Ï´Ù
´ëÇ×·ÂÀÌ ÀÖ´Â ¼±¼øÀ§ ÀÓÂ÷±Çµî±â ±Ç¸®ÀÚ°¡ ¹è´çÀ» Àü¾× ¹ÞÁö ¸øÇÒ °æ¿ì ³«ÂûÀÚ°¡ ÀÜ¿© º¸Áõ±ÝÀ» ÀμöÇØ¾ßÇÏ´Â °æ¿ìµµ ÀÖ½À´Ï´Ù.

ÁÖÀÇ»çÇ× (ÃÖ¼±¼øÀ§ ¼³Á¤ÀÏ: 2025. 2. 3. °­Á¦°æ¸Å°³½Ã ¼³Á¤ °áÁ¤)

¸Å°¢À¸·Î ¼Ò¸êµÇÁö ¾Ê´Â µî±âºÎ±Ç¸®: ¸Å¼öÀο¡°Ô ´ëÇ×ÇÒ ¼ö ÀÖ´Â À»±¸ 7¹ø ÀÓÂ÷±Çµî±â(ÀÓ´ëÂ÷º¸Áõ±Ý 210,000,000¿ø, ÀüÀÔÀÏÀÚ 2022.07.15. È®Á¤ÀÏÀÚ 2022.07.07.)°¡ ÀÖÀ¸¹Ç·Î ¹è´ç¿¡¼­ Àü¾× º¯Á¦µÇÁö ¾Æ´ÏÇϸé Àܾ×À» ¸Å¼öÀÎÀÌ ÀμöÇÔ
¸Å°¢À¸·Î ¼³Á¤µÈ °ÍÀ¸·Î º¸´Â Áö»ó±Ç:
¡Ø¹Ì³³°ü¸®ºñ(°ø¿ë) Àμö¿©ºÎ¸¦ ÀÔÂû Àü¿¡ È®ÀÎÇϽñ⠹ٶø´Ï´Ù

 

Áö¿ªºÐ¼®

ÁöÇÏö¸í Á÷¼±°Å¸®

Çб³¸í ÀüÈ­¹øÈ£ ÁÖ¼Ò Á÷¼±°Å¸®

¹ý¿ø

¼ö¿øÁö¹æ¹ý¿ø ¼º³²Áö¿ø (131-43)°æ±âµµ ¼º³²½Ã ¼öÁ¤±¸ »ê¼º´ë·Î 451 (´Ü´ëµ¿)
´ëÇ¥ : 031)737-1558, ¾ß°£ : 031)737-1120
°üÇÒÁö¿ª : ¼º³²½Ã, ±¤ÁÖ½Ã, Çϳ²½Ã

µî±â¼Ò ¼ö¿øÁö¹æ¹ý¿ø ¼º³²Áö¿ø ±¤ÁÖµî±â¼Ò (´ëÇ¥:1544-0773, ÆÑ½º:(031)765-2388, °æ±âµµ ±¤Áֽà ÇàÁ¤Å¸¿î·Î 49-15 (¼ÛÁ¤µ¿ 346-4))
¼¼¹«¼­ °æ±â±¤ÁÖ¼¼¹«¼­ (´ëÇ¥:031-880-92, ÆÑ½º:031-769-0417, °æ±âµµ ±¤Áֽà ¹®È­·Î 127)

Àαٳ«ÂûÅë°è

±â°£ ¸Å°¢°Ç¼ö Æò±Õ°¨Á¤°¡
Æò±Õ¸Å°¢°¡
¸Å°¢°¡À²
Æò±ÕÀ¯Âû¼ö
3°³¿ù 45°Ç 237,164,444¿ø
146,810,945¿ø
63%
1.9ȸ
6°³¿ù 91°Ç 236,443,956¿ø
152,082,123¿ø
66%
1.8ȸ
12°³¿ù 128°Ç 241,198,438¿ø
158,936,494¿ø
67%
1.7ȸ


º» °æ¸ÅÁ¤º¸´Â ¹ý¿øÀÚ·á¿Í ÀÏÄ¡Çϵµ·Ï ÇÏ¿´À¸³ª ±Ç¸®»çÇ׺¯µ¿, ÀÔ·ÂÂø¿À µîÀÇ ¿øÀÎÀ¸·Î »ç½Ç°ú ´Ù¸¦ ¼ö ÀÖ½À´Ï´Ù. ÀÌ¿ë¾à°ü¿¡ ÀǰЏéÃ¥Á¶°ÇÀ¸·Î Á¦°øµÊÀ» ¾Ë¸®¸ç, °æ¸ÅÀÔÂû½Ã ¹Ýµå½Ã °ü·Ã °øºÎ¸¦ ÀçÈ®ÀÎÇϽñ⠹ٶø´Ï´Ù. º¸´Ù Æí¸®ÇÑ °æ¸ÅÁ¤º¸ Á¦°øÀ» À§ÇØ Áö¼ÓÀûÀ¸·Î °³¼±ÇϰڽÀ´Ï´Ù. ÀÌ¿ëÇØ Áּż­ °¨»çÇÕ´Ï´Ù.