·Î±×ÀÎ
267
¿ÀÇǽºÅÚ
ÀÎõÁö¹æ¹ý¿ø
 °¨Á¤°¡349,000,000 ¿ø
 ÃÖÀú°¡(49%) 171,010,000 ¿ø
 º¸Áõ±Ý(10%) 17,101,000 ¿ø
 Ã»±¸¾×239,586,862 ¿ø
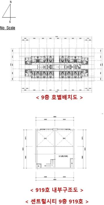
ÀÎõ±¤¿ª½Ã ¼­±¸ û¶óÇѳ»·Î72¹ø±æ 7-15, 9Ãþ919È£ (û¶óµ¿,¼¾Æ®·²½ÃƼ)
ÀÎõ±¤¿ª½Ã ¼­±¸ û¶óµ¿ 96-16
»ç°Ç¹øÈ£ 2024Ÿ°æ15348
°æ¸ÅÁ¾·ùºÎµ¿»êÀÓÀǰæ¸Å
¸Å°¢´ë»óÅäÁö ¹× °Ç¹°Àϰý ¸Å°¢
¸Å°¢±âÀÏ    2026.06.02(È­) 10:00 ÀÔÂû 11ÀÏÀü    
ÅäÁö¸éÀû9.25§³(2.80 Æò)
°Ç¹°¸éÀû41.75§³(12.63 Æò)
乫/¼ÒÀ¯ÀÚÀÌOO / ÀÌOO
ä±ÇÀÚÀ¯OOOOOOOOOOOO OOOO (OOOOOOOO OOOO)
ÆäÀ̽ººÏ Æ®À§ÅÍ ±¸±Û+
īī¿À½ºÅ丮
īī¿ÀÅå sms¹®ÀÚº¸³»±â
 

±âÀϳ»¿ª

°æ°ú ³¯Â¥ Àú°¨ ÃÖÀú°¡ °á°ú
Á¢¼öÀÏ 2024-11-19 °æ¸ÅÁ¢¼ö
~2ÀÏ 
2024-11-21 °æ¸Å°³½Ã°áÁ¤
~83ÀÏ 
2025-02-10 ¹è´ç¿ä±¸Á¾±âÀÏ
~493ÀÏ 
2026-03-27 100%
349,000,000
À¯Âû
~525ÀÏ 
2026-04-28 70%
244,300,000
À¯Âû
~560ÀÏ 
2026-06-02 49%
171,010,000
ÁøÇà
¹°°Ç¸í¼¼¼­ ÇöȲÁ¶»ç¼­ ¹®°ÇÁ¢¼ö ¼Û´Þ³»¿ª

°¨Á¤Æò°¡ÇöȲ

¸ñ·Ï ÁÖ¼Ò ±¸Á¶/¿ëµµ/´ëÁö±Ç ¸éÀû ºñ°í
´ëÁö±Ç
û¶óµ¿ 96-16 2801.6ºÐÀÇ 9.25 9.25 §³
(2.80Æò)
°Ç¹°
û¶óµ¿ 96-16 9Ãþ919È£ ö±ÙÄÜÅ©¸®Æ®±¸Á¶ 41.75 §³
(12.63Æò)
1) À§Ä¡/Á߽ɻó¾÷Áö¿ª/Áö±¸´ÜÀ§°èȹ±¸¿ª/ö±ÙÄÜÅ©¸®Æ®±¸Á¶/Áö¿ª³­¹æ ´õº¸±â
°¨Á¤Æò°¡ ¿äÇ×Ç¥
1)À§Ä¡ ¹× ÁÖÀ§È¯°æ
º»°ÇÀº ÀÎõ±¤¿ª½Ã ¼­±¸ û¶óµ¿ ¼ÒÀç "ÀÎÃµÇØ¿øÃʵîÇб³" ºÏµ¿Ãø Àαٿ¡ À§Ä¡Çϸç, ÁÖÀ§´Â ¾ÆÆÄÆ®, ¿ÀÇǽºÅÚ ¹× °¢Á¾ ±Ù¸°»ýȰ½Ã¼³ µîÀÌ È¥ÀçÇÏ´Â Áö¿ªÀÓ.
2)±³Åë»óȲ
Â÷·®ÀÇ Á¢±ÙÀÌ Àα٠³ë¼± ¹ö½º Á¤·ùÀå µîÀÌ ¼ÒÀçÇÏ´Â ¹Ù, Àü¹ÝÀûÀÎ ´ëÁß±³Åë¿©°ÇÀº º¸ÅëÀÓ.
3)°Ç¹°ÀÇ ±¸Á¶
ö±ÙÄÜÅ©¸®Æ®±¸Á¶ (ö±Ù)ÄÜÅ©¸®Æ®ÁöºØ 14Ãþ °Ç¹° ³» 9Ãþ 919È£·Î¼­,
(»ç¿ë½ÂÀÎÀÏ : 2022.03.18)

¿Üº®: ¹ü¶ûÆÇ³Ú µî ¸¶°¨.
âȣ: ½Ã½ºÅÛ Ã¢È£ µî ¸¶°¨ÀÓ.
4)ÀÌ¿ë»óÅÂ
¾÷¹«½Ã¼³(¿ÀÇǽºÅÚ)·Î ÀÌ¿ëÁßÀÓ.
5)¼³ºñ³»¿ª
±âº»ÀûÀÎ À§»ý ¹× ±Þ¹è¼ö¼³ºñ, Áö¿ª³­¹æ¼³ºñ, ½Â°­±â¼³ºñ, ½ºÇÁ¸µÅ¬·¯ µîÀÌ µÇ¾îÀÖÀ½.
6)ÅäÁöÀÇ Çü»ó ¹× ÀÌ¿ë»óÅÂ
°¡ÀåÇüÀÇ ÅäÁö·Î¼­ ¾÷¹«½Ã¼³(¿ÀÇǽºÅÚ) °ÇºÎÁö·Î ÀÌ¿ëÁßÀÓ.
7)ÀÎÁ¢ µµ·Î»óŵî
³²ÃøÀ¸·Î ³ëÆø ¾à 10m ³»¿ÜÀÇ ¾Æ½ºÆÈÆ® Æ÷Àåµµ·Î¿Í Á¢ÇÔ.
8)ÅäÁöÀÌ¿ë°èȹ ¹× Á¦ÇÑ»óÅÂ
Á߽ɻó¾÷Áö¿ª,Áö±¸´ÜÀ§°èȹ±¸¿ª,Áß·Î2·ù(Æø 15m-20m)(Á¢ÇÕ),°¡Ãà»çÀ°Á¦Çѱ¸¿ª(ÀÎõ±¤¿ª½Ã
¼­±¸ Á¶·Ê Á¦ 1749È£)<°¡ÃàºÐ´¢ÀÇ °ü¸® ¹× À̿뿡 °üÇÑ ¹ý·ü>,°æÁ¦ÀÚÀ¯±¸¿ª(2022-01-03)
<°æÁ¦ÀÚÀ¯±¸¿ªÀÇ ÁöÁ¤ ¹× ¿î¿µ¿¡ °üÇÑ Æ¯º°¹ý>,¼ºÀå°ü¸®±Ç¿ª<¼öµµ±ÇÁ¤ºñ°èȹ¹ý>
9)°øºÎ¿ÍÀÇ Â÷ÀÌ
-
10)±âŸÂü°í»çÇ×(ÀÓ´ë°ü·Ê ¹× ±âŸ)
ÀÓ´ë°ü°è´Â ¹Ì»óÀÓ.
Âü°í
»çÇ×

ö±ÙÄÜÅ©¸®Æ®±¸Á¶ (ö±Ù)ÄÜÅ©¸®Æ®ÁöºØ 14Ãþ ¾÷¹«½Ã¼³(¿ÀÇǽºÅÚ)

°ÇÃ๰ÇöȲ

¼ÒÀçÁö ÀÎõ±¤¿ª½Ã ¼­±¸ û¶óµ¿ 96-16¹øÁö
´ëÁö¸éÀû 2801.6§³
(848.97Æò)
¿¬¸éÀû 30903.06§³
(9364.56Æò)
°ÇÃà¸éÀû 1651.5§³
(500.45Æò)
¿ëÀû·ü»êÁ¤
¿¬¸éÀû
16804.76§³
(5092.35Æò)
°ÇÆóÀ² 58.95% ¿ëÀû·ü 599.83%
Áö»óÃþ¼ö 14Ãþ ÁöÇÏÃþ¼ö 6Ãþ
ÁÖ¿ëµµ ¾÷¹«½Ã¼³ ±¸Á¶ ö±ÙÄÜÅ©¸®Æ®±¸Á¶
Âø°øÀÏÀÚ 2019.08.12 »ç¿ë½ÂÀÎÀÏÀÚ 2022.03.18
°ÇÃ๰Ãþº°ÇöȲ [º¸±â]


±¹ÅäºÎ½Ç°Å·¡°¡ ÀÎõ±¤¿ª½Ã ¼­±¸ û¶óµ¿

¡Ü ¸Å¸Å

¸éÀû(§³), ±Ý¾×(¸¸¿ø)

¡Ü Àü¼¼

¸éÀû(§³), ±Ý¾×(¸¸¿ø)

°è¾àÀϰǹ°¸íĪÃþÀü¿ëº¸Áõ±Ý¿ù¼¼°ÇÃà
26.04.21¼¾Æ®·²½ÃƼ1421.221,000602022
26.04.09¼¾Æ®·²½ÃƼ621.2212,00002022
26.04.06¼¾Æ®·²½ÃƼ1421.221,000602022
26.04.05¼¾Æ®·²½ÃƼ542.821,000852022
26.04.01¼¾Æ®·²½ÃƼ1221.2212,00002022
¢Ñ ´õº¸±â

µî±âºÎµîº» ¿ä¾à(°Ç¹°)

  Á¢¼öÀÏÀÚ µî±â¸ñÀû/±Ç¸®ÀÚ ±Ç¸®±Ý¾× ±âÁØ
1 2022³â6¿ù21ÀÏ
¼ÒÀ¯±Ç
ÀÌOO
¼Ò¸ê
2 2022³â6¿ù21ÀÏ
±ÙÀú´ç±Ç
(OOOO
283,200,000 ¼Ò¸ê±âÁØ
3 2022³â6¿ù21ÀÏ
±ÙÀú´ç±Ç
(OOOO
156,390,000 ¼Ò¸ê
4 2024³â11¿ù21ÀÏ
ÀÓÀǰæ¸Å
(OOOO
¼Ò¸ê

ÀÓÂ÷ÀÎÇöȲ (¹è´ç¿ä±¸Á¾±âÀÏ: 2025-02-10)


Á¶»çµÈ ÀÓÂ÷³»¿ªÀÌ ¾ø½À´Ï´Ù


¿©ÀÇÁÖ°æ¸Å Á¶¾ð ÇÑ ¸¶µð


ÁÖÀÇ»çÇ× (ÃÖ¼±¼øÀ§ ¼³Á¤ÀÏ: 2022. 6. 21. ±ÙÀú´ç±Ç ¼³Á¤)

¸Å°¢À¸·Î ¼Ò¸êµÇÁö ¾Ê´Â µî±âºÎ±Ç¸®:
¸Å°¢À¸·Î ¼³Á¤µÈ °ÍÀ¸·Î º¸´Â Áö»ó±Ç:
¡Ø¹Ì³³°ü¸®ºñ(°ø¿ë) Àμö¿©ºÎ¸¦ ÀÔÂû Àü¿¡ È®ÀÎÇϽñ⠹ٶø´Ï´Ù

 

Áö¿ªºÐ¼®

ÁöÇÏö¸í Á÷¼±°Å¸®

Çб³¸í ÀüÈ­¹øÈ£ ÁÖ¼Ò Á÷¼±°Å¸®

¹ý¿ø

ÀÎõÁö¹æ¹ý¿ø (222-20)ÀÎõ±¤¿ª½Ã ¹ÌÃßȦ±¸ ¼Ò¼º·Î 163¹ø±æ 17(ÇÐÀ͵¿)
´ëÇ¥ : 032)860-1113~4
°üÇÒÁö¿ª : Áß±¸, µ¿±¸, ³²±¸, ¿¬¼ö±¸, ³²µ¿±¸, ºÎÆò±¸, °è¾ç±¸, ¼­±¸, ¿ËÁø±º, °­È­±º

µî±â¼Ò ÀÎõÁö¹æ¹ý¿ø º»¿ø µî±â±¹ (´ëÇ¥:1544-0773, ÆÑ½º:(032)620-9099, ÀÎõ±¤¿ª½Ã ¹ÌÃßȦ±¸ °æ¿ø´ë·Î 881(Á־ȵ¿ 983))
¼¼¹«¼­ ¼­ÀÎõ¼¼¹«¼­ (´ëÇ¥:032-560-52, ÆÑ½º:032-561-5777, ÀÎõ±¤¿ª½Ã ¼­±¸ ¼­°ù·Î369¹ø±æ 17 (¿¬Èñµ¿))

Àαٳ«ÂûÅë°è

±â°£ ¸Å°¢°Ç¼ö Æò±Õ°¨Á¤°¡
Æò±Õ¸Å°¢°¡
¸Å°¢°¡À²
Æò±ÕÀ¯Âû¼ö
3°³¿ù 25°Ç 743,472,704¿ø
383,613,092¿ø
50%
2.6ȸ
6°³¿ù 33°Ç 642,055,079¿ø
339,679,464¿ø
53%
2.4ȸ
12°³¿ù 53°Ç 576,785,238¿ø
294,348,429¿ø
55%
2.3ȸ


º» °æ¸ÅÁ¤º¸´Â ¹ý¿øÀÚ·á¿Í ÀÏÄ¡Çϵµ·Ï ÇÏ¿´À¸³ª ±Ç¸®»çÇ׺¯µ¿, ÀÔ·ÂÂø¿À µîÀÇ ¿øÀÎÀ¸·Î »ç½Ç°ú ´Ù¸¦ ¼ö ÀÖ½À´Ï´Ù. ÀÌ¿ë¾à°ü¿¡ ÀǰЏéÃ¥Á¶°ÇÀ¸·Î Á¦°øµÊÀ» ¾Ë¸®¸ç, °æ¸ÅÀÔÂû½Ã ¹Ýµå½Ã °ü·Ã °øºÎ¸¦ ÀçÈ®ÀÎÇϽñ⠹ٶø´Ï´Ù. º¸´Ù Æí¸®ÇÑ °æ¸ÅÁ¤º¸ Á¦°øÀ» À§ÇØ Áö¼ÓÀûÀ¸·Î °³¼±ÇϰڽÀ´Ï´Ù. ÀÌ¿ëÇØ Áּż­ °¨»çÇÕ´Ï´Ù.