·Î±×ÀÎ
89
´Ù¼¼´ë(ºô¶ó)
ÀÇÁ¤ºÎÁö¹æ¹ý¿ø °í¾çÁö¿ø
 °¨Á¤°¡157,000,000 ¿ø
 ÃÖÀú°¡(70%) 109,900,000 ¿ø
 º¸Áõ±Ý(10%) 10,990,000 ¿ø
 Ã»±¸¾×174,000,000 ¿ø
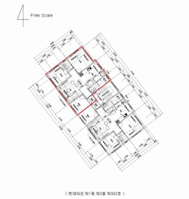
°æ±âµµ °í¾ç½Ã Àϻ꼭±¸ ´öÀ̵¿ 767-6 Çö´ëŸ¿î 1µ¿ 3Ãþ302È£
»ç°Ç¹øÈ£ 2025Ÿ°æ64377
°æ¸ÅÁ¾·ùºÎµ¿»ê°­Á¦°æ¸Å
¸Å°¢´ë»óÅäÁö ¹× °Ç¹°Àϰý ¸Å°¢
¸Å°¢±âÀÏ    2026.04.29(¼ö) 10:00 ÀÔÂû 32ÀÏÀü    
ÅäÁö¸éÀû55.95§³(16.92 Æò)
°Ç¹°¸éÀû51.00§³(15.43 Æò)
乫/¼ÒÀ¯ÀÚ¼ÛOO / ¼ÛOO
ä±ÇÀÚÁÖOOOOOOO
ÆäÀ̽ººÏ Æ®À§ÅÍ ±¸±Û+
īī¿À½ºÅ丮
īī¿ÀÅå sms¹®ÀÚº¸³»±â
 

±âÀϳ»¿ª

°æ°ú ³¯Â¥ Àú°¨ ÃÖÀú°¡ °á°ú
Á¢¼öÀÏ 2025-09-29 °æ¸ÅÁ¢¼ö
~1ÀÏ 
2025-09-30 °æ¸Å°³½Ã°áÁ¤
~84ÀÏ 
2025-12-22 ¹è´ç¿ä±¸Á¾±âÀÏ
~177ÀÏ 
2026-03-25 100%
157,000,000
À¯Âû
~212ÀÏ 
2026-04-29 70%
109,900,000
ÁøÇà
¹°°Ç¸í¼¼¼­ ÇöȲÁ¶»ç¼­ ¹®°ÇÁ¢¼ö ¼Û´Þ³»¿ª

°¨Á¤Æò°¡ÇöȲ

¸ñ·Ï ÁÖ¼Ò ±¸Á¶/¿ëµµ/´ëÁö±Ç ¸éÀû ºñ°í
´ëÁö±Ç
´öÀ̵¿ 767-6 933ºÐÀÇ 55.9451 55.9451 §³
(16.92Æò)
°Ç¹°
´öÀ̵¿ 767-6 1µ¿ 3Ãþ302È£ ö±ÙÄÜÅ©¸®Æ®±¸Á¶ 51 §³
(15.43Æò)
1) À§Ä¡/µµ½ÃÁö¿ª/°èȹ°ü¸®Áö¿ª/ÅäÁö°Å·¡°è¾à¿¡°üÇÑÇã°¡±¸¿ª/Â÷·®Á¢±ÙÀÌ °¡´É/³ë¼±¹ö½ºÁ¤·ùÀå/ö±ÙÄÜÅ©¸®Æ®±¸Á¶/Æò½º¶óºêÁöºØ ´õº¸±â
°¨Á¤Æò°¡ ¿äÇ×Ç¥
1)À§Ä¡ ¹× ÁÖÀ§È¯°æ
º»°ÇÀº °æ±âµµ °í¾ç½Ã Àϻ꼭±¸ ´öÀ̵¿ ¼ÒÀç '¹é¼Û°íµîÇб³' ºÏµ¿Ãø Àαٿ¡ À§Ä¡ÇÏ´Â ºÎµ¿»êÀ¸·Î ÁÖº¯Àº ´Ù¼¼´ëÁÖÅÃ, °øÀå ¹× Ã¢°í, ±Ù¸°»ýȰ½Ã¼³ µîÀÌ ¼ÒÀçÇÏ´Â Áö¿ªÀ¸·Î¼­, Á¦¹Ý ÀÔÁö¿©°ÇÀº ´ëü·Î º¸Åë½ÃµË´Ï´Ù.
2)±³Åë»óȲ
º»°Ç±îÁö Â÷·®Á¢±ÙÀÌ °¡´ÉÇϸç, Àαٿ¡ ³ë¼±¹ö½ºÁ¤·ùÀåÀÌ ¼ÒÀçÇÏ´Â µî ´ëÁß±³Åë¼ö´ÜÀÌ¿ëÀº º¸ÅëÀÔ´Ï´Ù.
3)°Ç¹°ÀÇ ±¸Á¶
ö±ÙÄÜÅ©¸®Æ®±¸Á¶ Æò½º¶óºêÁöºØ 4Ãþ °Ç¹° ³» Á¦3Ãþ Á¦302È£·Î¼­, ¿Üº® : º®µ¹Ä¡Àå½×±â ¸¶°¨ µî ³»º® : ÀÎÅ׸®¾î ¹× ÀϺΠŸÀϺÙÀÓ ¸¶°¨ µî âȣ : ÇÏÀ̼¦½Ã âȣ ¸¶°¨ µîÀ¸·Î °ü¸®»óÅ´ ´ëü·Î ¹«³­½ÃµË´Ï´Ù.
4)ÀÌ¿ë»óÅÂ
º»°ÇÀº ´Ù¼¼´ëÁÖÅÃÀ¸·Î ÀÌ¿ëÁßÀÌ¸ç »ó¼¼³»¿ëÀº ÈÄ÷ '³»ºÎ±¸Á¶µµ' ÂüÁ¶¹Ù¶ø´Ï´Ù. - ÀÌÇØ°ü°èÀÎÀÇ ºÎÀç·Î ÀÎÇÏ¿© °ÇÃ๰´ëÀå ÇöȲµµ¸é, ¿ÜºÎ°üÂû, ޹® µîÀ» ÂüÁ¶ÇÑ °ÍÀ¸·Î ÇöȲ°ú ´Ù¼Ò ´Ù¸¦ ¼ö ÀÖ»ç¿À´Ï °æ¸ÅÁøÇà½Ã ÂüÁ¶¹Ù¶ø´Ï´Ù.
5)¼³ºñ³»¿ª
À§»ý ¹× ±Þ¹è¼ö½Ã¼³, ³­¹æ¼³ºñ, ¼ÒÈ­Àü¼³ºñ µîÀÌ ±¸ºñµÇ¾î ÀÖ½À´Ï´Ù.
6)ÅäÁöÀÇ Çü»ó ¹× ÀÌ¿ë»óÅÂ
ÀÎÁ¢Áö¿Í µî°íÆòźÇÑ °¡ÀåÇü ÅäÁö·Î¼­, ´Ù¼¼´ëÁÖÅà °ÇºÎÁö·Î ÀÌ¿ëÁßÀÔ´Ï´Ù.
7)ÀÎÁ¢ µµ·Î»óŵî
º»°Ç ³²¼­ÃøÀ¸·Î ¾à 10¹ÌÅÍ, ºÏ¼­ÃøÀ¸·Î ¾à 6¹ÌÅÍ ³»¿ÜÀÇ ¾Æ½ºÆÈÆ® Æ÷Àåµµ·Î¿Í °¢°¢ Á¢Çϰí ÀÖ½À´Ï´Ù.
8)ÅäÁöÀÌ¿ë°èȹ ¹× Á¦ÇÑ»óÅÂ
°èȹ°ü¸®Áö¿ª , ¼ºÀå°ü¸®°èȹ±¸¿ª(ÁÖ°Åzone), °¡Ãà»çÀ°Á¦Çѱ¸¿ª(2024-11-12)(ÀϺÎÁ¦Çѱ¸¿ª [ÀüºÎÁ¦Çѱ¸¿ªÀ¸·ÎºÎÅÍ Á¦ÇѰŸ® 500m (¼Ò,Á¥¼Ò,¸» Á¦ÇÑ)])<°¡ÃàºÐ´¢ÀÇ °ü¸® ¹× À̿뿡 °üÇÑ ¹ý·ü>, °¡Ãà»çÀ°Á¦Çѱ¸¿ª(2024-11-12)(ÀüºÎÁ¦Çѱ¸¿ª [µµ½ÃÁö¿ª{ÁÖ°Å,»ó¾÷,°ø¾÷,³ìÁö(ÀÚ¿¬Ãë¶ôÁö±¸)}¹×ÁְŹÐÁýÁö¿ª])<°¡ÃàºÐ´¢ÀÇ °ü¸® ¹× À̿뿡 °üÇÑ ¹ý·ü>, »ó´ëº¸È£±¸¿ª<±³À°È¯°æ º¸È£¿¡ °üÇÑ ¹ý·ü>, »ó´ëº¸È£±¸¿ª(2013-08-23)(¿¹Áö½½À¯Ä¡¿ø)<±³À°È¯°æ º¸È£¿¡ °üÇÑ ¹ý·ü>, °ú¹Ð¾ïÁ¦±Ç¿ª<¼öµµ±ÇÁ¤ºñ°èȹ¹ý>, ÅäÁö°Å·¡°è¾à¿¡°üÇÑÇã°¡±¸¿ª(2025-08-26)(¿Ü±¹Àεî´ë»ó,´ë»ó¿ëµµ(´Üµ¶,´Ù°¡±¸,¿¬¸³,´Ù¼¼´ëÁÖÅÃ,¾ÆÆÄÆ®)·Î»ç¿ëµÇ´ÂÅäÁö)
9)°øºÎ¿ÍÀÇ Â÷ÀÌ
-
10)±âŸÂü°í»çÇ×(ÀÓ´ë°ü·Ê ¹× ±âŸ)
1) ÀÓ´ë°ü°è : ¹Ì»óÀÔ´Ï´Ù. 2) ±â Ÿ : -
Âü°í
»çÇ×
½Åûä±ÇÀÚÀÎ ÁÖÅõµ½Ãº¸Áõ°ø»ç(¾çµµÀü:ÁÖÅÃÀÓÂ÷±ÇÀÚ ¹Ú¿¬¼ö)·ÎºÎÅÍ 2026.2.4.ÀÚ¿¡ ¡®ÀÓÂ÷º¸Áõ±Ý¿¡ ´ëÇÏ¿© ¿ì¼±º¯Á¦±Ç¸¸ ÁÖÀåÇÏ°í ´ëÇ×·ÂÀº Æ÷±âÇϸç, Àü¾×À» º¯Á¦¹ÞÁö ¸øÇÏ´õ¶óµµ ÀÓÂ÷±Çµî±â¸¦ ¸»¼ÒÇÔ¿¡ µ¿ÀÇÇÑ´Ù.¡¯´Â ³»¿ëÀÇ È®¾à¼­°¡ Á¦ÃâµÊ.
-ö±ÙÄÜÅ©¸®Æ®±¸Á¶ Æò½º¶óºêÁöºØ 4Ãþ °øµ¿ÁÖÅÃ

°ÇÃ๰ÇöȲ

¼ÒÀçÁö °æ±âµµ °í¾ç½Ã Àϻ꼭±¸ ´öÀ̵¿ 767-6¹øÁö
´ëÁö¸éÀû 933§³
(282.73Æò)
¿¬¸éÀû 473.6§³
(143.52Æò)
°ÇÃà¸éÀû 175.7§³
(53.24Æò)
¿ëÀû·ü»êÁ¤
¿¬¸éÀû
473.6§³
(143.52Æò)
°ÇÆóÀ² 18.83% ¿ëÀû·ü 50.76%
Áö»óÃþ¼ö 4Ãþ ÁöÇÏÃþ¼ö  
ÁÖ¿ëµµ °øµ¿ÁÖÅà ±¸Á¶ ö±ÙÄÜÅ©¸®Æ®±¸Á¶
Âø°øÀÏÀÚ 2015.07.22 »ç¿ë½ÂÀÎÀÏÀÚ 2016.03.16
°ÇÃ๰Ãþº°ÇöȲ [º¸±â]


µî±âºÎµîº» ¿ä¾à(°Ç¹°)

  Á¢¼öÀÏÀÚ µî±â¸ñÀû/±Ç¸®ÀÚ ±Ç¸®±Ý¾× ±âÁØ
1 2020³â9¿ù4ÀÏ
¼ÒÀ¯±Ç
¼ÛOO
¼Ò¸ê
2 2021³â10¿ù26ÀÏ
°¡¾Ð·ù
ÁßOOOO
104,072,204 ¼Ò¸ê±âÁØ
3 2022³â10¿ù7ÀÏ
ÀÓÂ÷±Ç¼³Á¤
¹ÚOO
174,000,000 ¼Ò¸ê
4 2022³â11¿ù4ÀÏ
¾Ð·ù
±¹OOOO
¼Ò¸ê
5 2025³â10¿ù1ÀÏ
°­Á¦°æ¸Å
ÁÖOOOO
¼Ò¸ê

ÀÓÂ÷ÀÎÇöȲ (¹è´ç¿ä±¸Á¾±âÀÏ: 2025-12-22)

ÀÓÂ÷ÀÎ ¿ëµµ/Á¡À¯ º¸Áõ±Ý/¿ù¼¼ ´ëÇ×·Â
ÀüÀÔÀÏ/È®Á¤ÀÏ ¹è´ç¿ä±¸ ºñ°í
¹ÚOO ÀüºÎ 174,000,000
O
2020. 8. 14.
2020. 7. 27.
2020. 8. 14.
ÁÖOOOOOOO ÀüºÎ 174,000,000
O
2020. 8. 14.
2020. 7. 27.
2025.12.22. 2020. 8. 14.~2023. 2. 1.
ºñ°í
(¸Å°¢¹°°Ç
¸í¼¼¼­)
ÁÖÅõµ½Ãº¸Áõ°ø»ç:°æ¸Å½Åûä±ÇÀÚ·Î ÀÓÂ÷ÀÎ ¹Ú¿¬¼öÀÇ ÀÓÂ÷º¸Áõ±Ý¹Ýȯä±Ç ¾ç¼öÀÎÀÓ(´ëÇ׷¹׿켱º¯Á¦±Ç ½Â°è, 2025.12.22. ±Ç ¸®½Å°í¹×¹è´ç¿ä±¸½Åû¼­ Á¦Ãâ)

¿©ÀÇÁÖ°æ¸Å Á¶¾ð ÇÑ ¸¶µð

¼±¼øÀ§ ÀÓÂ÷±Çµî±â°¡ µÇ¾î ÀÖ½À´Ï´Ù
´ëÇ×·ÂÀÌ ÀÖ´Â ¼±¼øÀ§ ÀÓÂ÷±Çµî±â ±Ç¸®ÀÚ°¡ ¹è´çÀ» Àü¾× ¹ÞÁö ¸øÇÒ °æ¿ì ³«ÂûÀÚ°¡ ÀÜ¿© º¸Áõ±ÝÀ» ÀμöÇØ¾ßÇÏ´Â °æ¿ìµµ ÀÖ½À´Ï´Ù.

ÁÖÀÇ»çÇ× (ÃÖ¼±¼øÀ§ ¼³Á¤ÀÏ: 2021. 10. 26. °¡¾Ð·ù ¼³Á¤)

¸Å°¢À¸·Î ¼Ò¸êµÇÁö ¾Ê´Â µî±âºÎ±Ç¸®:
¸Å°¢À¸·Î ¼³Á¤µÈ °ÍÀ¸·Î º¸´Â Áö»ó±Ç:
½Åûä±ÇÀÚÀÎ ÁÖÅõµ½Ãº¸Áõ°ø»ç(¾çµµÀü:ÁÖÅÃÀÓÂ÷±ÇÀÚ ¹Ú¿¬¼ö)·ÎºÎÅÍ 2026.2.4.ÀÚ¿¡ ¡®ÀÓÂ÷º¸Áõ±Ý¿¡ ´ëÇÏ¿© ¿ì¼±º¯Á¦±Ç¸¸ ÁÖÀåÇÏ °í ´ëÇ×·ÂÀº Æ÷±âÇϸç, Àü¾×À» º¯Á¦¹ÞÁö ¸øÇÏ´õ¶óµµ ÀÓÂ÷±Çµî±â¸¦ ¸»¼ÒÇÔ¿¡ µ¿ÀÇÇÑ´Ù.¡¯´Â ³»¿ëÀÇ È®¾à¼­°¡ Á¦ÃâµÊ.
¡Ø¹Ì³³°ü¸®ºñ(°ø¿ë) Àμö¿©ºÎ¸¦ ÀÔÂû Àü¿¡ È®ÀÎÇϽñ⠹ٶø´Ï´Ù

 

Áö¿ªºÐ¼®

ÁöÇÏö¸í Á÷¼±°Å¸®

Çб³¸í ÀüÈ­¹øÈ£ ÁÖ¼Ò Á÷¼±°Å¸®

¹ý¿ø

ÀÇÁ¤ºÎÁö¹æ¹ý¿ø °í¾çÁö¿ø (104-13)°æ±âµµ °í¾ç½Ã Àϻ굿±¸ Àå¹é·Î 209
´ëÇ¥ : 031)920-6114, ¾ß°£ : 031)920-6550, ÆÑ½º : 031)920-6119
°üÇÒÁö¿ª : °í¾ç½Ã, ÆÄÁÖ½Ã

µî±â¼Ò ÀÇÁ¤ºÎÁö¹æ¹ý¿ø °í¾çÁö¿ø °í¾çµî±â¼Ò (´ëÇ¥:1544-0773, ÆÑ½º:(031)920-5959, °æ±âµµ °í¾ç½Ã Àϻ굿±¸ Áß¾Ó·Î1275¹ø±æ 38-30 (ÀåÇ×µ¿ 773))
¼¼¹«¼­ °í¾ç¼¼¹«¼­ (´ëÇ¥:031-900-92, ÆÑ½º:031-907-9177, °æ±âµµ °í¾ç½Ã Àϻ굿±¸ Áß¾Ó·Î1275¹ø±æ 14-43 (ÀåÇ×µ¿) )

Àαٳ«ÂûÅë°è

±â°£ ¸Å°¢°Ç¼ö Æò±Õ°¨Á¤°¡
Æò±Õ¸Å°¢°¡
¸Å°¢°¡À²
Æò±ÕÀ¯Âû¼ö


º» °æ¸ÅÁ¤º¸´Â ¹ý¿øÀÚ·á¿Í ÀÏÄ¡Çϵµ·Ï ÇÏ¿´À¸³ª ±Ç¸®»çÇ׺¯µ¿, ÀÔ·ÂÂø¿À µîÀÇ ¿øÀÎÀ¸·Î »ç½Ç°ú ´Ù¸¦ ¼ö ÀÖ½À´Ï´Ù. ÀÌ¿ë¾à°ü¿¡ ÀǰЏéÃ¥Á¶°ÇÀ¸·Î Á¦°øµÊÀ» ¾Ë¸®¸ç, °æ¸ÅÀÔÂû½Ã ¹Ýµå½Ã °ü·Ã °øºÎ¸¦ ÀçÈ®ÀÎÇϽñ⠹ٶø´Ï´Ù. º¸´Ù Æí¸®ÇÑ °æ¸ÅÁ¤º¸ Á¦°øÀ» À§ÇØ Áö¼ÓÀûÀ¸·Î °³¼±ÇϰڽÀ´Ï´Ù. ÀÌ¿ëÇØ Áּż­ °¨»çÇÕ´Ï´Ù.